Levrack Kit Specifications Guide







![]()




























































• Pallet Racking is the foundation for all Levrack systems. Levrack utilizes the existing structures and capacities of Pallet Racking as the Framework to support high density mobile aisle shelving.
• Unlimited configurations are available based on space availability and storage needs.
• Roll-formed 14 gauge steel.
• Black Powder Coated components









Standard Configuration:
• (4) Shelves per Cabinet
• (8) Shelf Supports
• (1) Handle
• Trolley Assembly
• (2) Upright Panels
• (1) Back Panel
• Hardware
• Textured Powder Coat






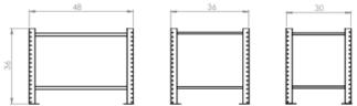
Cabinet QTY per Beam Span: (Standard Configuration)








Included in Kit:
• Pallet Rack Upright, Beams, and Wire Decking
• (6) 18” Mobile Cabinets
• (4) Steel Shelves per Mobile Cabinet
• Additional Shelves and Accessories can be added
• Key-slot design for easy adjustment and integration
• LED motion activated Lighting
Storage Capacity:
• 264 cubic feet (cabinet volume)
• 144 square feet (shelving surface area)
• 96 linear feet of shelving
• Top Level Storage = 48 square feet
• Additional shelving can be added
Weights:
• Overall System Capacity (12ft Beam Pair) = 7000 lbs.
• Individual Mobile Cabinet Capacity = 800 lbs.
• Individual Shelf Capacity = 200 lbs.
• Kit Weight: 1720 lbs. (distributed to 4 corners)
Required Footprint:
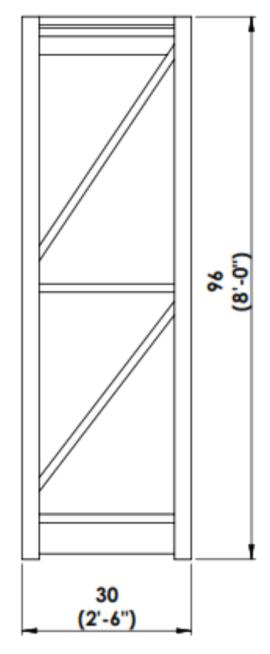
• Length = 12’-6” (150”)
• Height = 8’-0” (96”)
• Width = 4’-0” (48”)









Included in Kit:
• Pallet Rack Upright, Beams, and Wire Decking
• (6) 18” Mobile Cabinets
• (4) Steel Shelves per Mobile Cabinet
• Additional Shelves and Accessories can be added
• Key-slot design for easy adjustment and integration
• LED motion activated Lighting
Storage Capacity:
• 231 cubic feet (cabinet volume)
• 126 square feet (shelving surface area)
• 84 linear feet of shelving
• Top Level Storage = 42 square feet
• Additional shelving can be added
Weights:
• Overall System Capacity (12ft Beam Pair) = 7000 lbs.
• Individual Mobile Cabinet Capacity = 800 lbs.
• Individual Shelf Capacity = 200 lbs.
• Kit Weight: 1590 lbs. (distributed to 4 corners)
Required Footprint:
• Length = 12’-6” (150”)
• Height = 8’-0” (96”)
• Width = 4’-0” (48”)









Included in Kit:
• Pallet Rack Upright, Beams, and Wire Decking
• (6) 18” Mobile Cabinets
• (4) Steel Shelves per Mobile Cabinet
• Additional Shelves and Accessories can be added
• Key-slot design for easy adjustment and integration
• LED motion activated Lighting
Storage Capacity:
• 198 cubic feet (cabinet volume)
• 108 square feet (shelving surface area)
• 72 linear feet of shelving
• Top Level Storage = 36 square feet
• Additional shelving can be added
Weights:
• Overall System Capacity (12ft Beam Pair) = 7000 lbs.
• Individual Mobile Cabinet Capacity = 800 lbs.
• Individual Shelf Capacity = 200 lbs.
• Kit Weight: 1470 lbs. (distributed to 4 corners)
Required Footprint:
• Length = 12’-6” (150”)
• Height = 8’-0” (96”)
• Width = 3’-0” (36”)









Included in Kit:
• Pallet Rack Upright, Beams, and Wire Decking
• (6) 18” Mobile Cabinets
• (4) Steel Shelves per Mobile Cabinet
• Additional Shelves and Accessories can be added
• Key-slot design for easy adjustment and integration
• LED motion activated Lighting
Storage Capacity:
• 165 cubic feet (cabinet volume)
• 90 square feet (shelving surface area)
• 60 linear feet of shelving
• Top Level Storage = 30 square feet
• Additional shelving can be added
Weights:
• Overall System Capacity (12ft Beam Pair) = 7000 lbs.
• Individual Mobile Cabinet Capacity = 800 lbs.
• Individual Shelf Capacity = 200 lbs.
• Kit Weight: 1350 lbs. (distributed to 4 corners)
Required Footprint:
• Length = 12’-6” (150”)
• Height = 8’-0” (96”)
• Width = 2’-6” (30”)







Included in Kit:

• Pallet Rack Upright, Beams, and Wire Decking
• (6) 18” Mobile Cabinets
• (4) Steel Shelves per Mobile Cabinet
• Additional Shelves and Accessories can be added
• Key-slot design for easy adjustment and integration
• LED motion activated Lighting
Storage Capacity:
• 228 cubic feet (cabinet volume)
• 144 square feet (shelving surface area)
• 96 linear feet of shelving
• Top Level Storage = 48 square feet
• Additional shelving can be added
Weights:
• Overall System Capacity (12ft Beam Pair) = 7000 lbs.
• Individual Mobile Cabinet Capacity = 800 lbs.
• Individual Shelf Capacity = 200 lbs.
• Kit Weight: 1600 lbs. (distributed to 4 corners)
Required Footprint:
• Length = 12’-6” (150”)
• Height = 7’-0” (84”)
• Width = 4’-0” (48”)








Included in Kit:

• Pallet Rack Upright, Beams, and Wire Decking
• (6) 18” Mobile Cabinets
• (4) Steel Shelves per Mobile Cabinet
• Additional Shelves and Accessories can be added
• Key-slot design for easy adjustment and integration
• LED motion activated Lighting
Storage Capacity:
• 200 cubic feet (cabinet volume)
• 126 square feet (shelving surface area)
• 84 linear feet of shelving
• Top Level Storage = 42 square feet
• Additional shelving can be added
Weights:
• Overall System Capacity (12ft Beam Pair) = 7000 lbs.
• Individual Mobile Cabinet Capacity = 800 lbs.
• Individual Shelf Capacity = 200 lbs.
• Kit Weight: 1490 ls. (distributed to 4 corners)
Required Footprint:
• Length = 12’-6” (150”)
• Height = 7’-0” (84”)
• Width = 4’-0” (48”)










Included in Kit:
• Pallet Rack Upright, Beams, and Wire Decking
• (6) 18” Mobile Cabinets
• (4) Steel Shelves per Mobile Cabinet
• Additional Shelves and Accessories can be added
• Key-slot design for easy adjustment and integration
• LED motion activated Lighting
Storage Capacity:
• 171 cubic feet (cabinet volume)
• 108 square feet (shelving surface area)
• 72 linear feet of shelving
• Top Level Storage = 36 square feet
• Additional shelving can be added
Weights:
• Overall System Capacity (12ft Beam Pair) = 7000 lbs.
• Individual Mobile Cabinet Capacity = 800 lbs.
• Individual Shelf Capacity = 200 lbs.
• Kit Weights: 1380 lbs. (distributed to 4 corners)
Required Footprint:
• Length = 12’-6” (150”)
• Height = 7’-0” (84”)
• Width = 3’-0” (36”)







Included in Kit:

• Pallet Rack Upright, Beams, and Wire Decking
• (6) 18” Mobile Cabinets
• (4) Steel Shelves per Mobile Cabinet
• Additional Shelves and Accessories can be added
• Key-slot design for easy adjustment and integration
• LED motion activated Lighting
Storage Capacity:
• 142 cubic feet (storage volume)
• 90 square feet (shelving surface area)
• 60 linear feet of shelving
• Top Level Storage = 30 square feet
• Additional shelving can be added
Weights:
• Overall System Capacity (12ft Beam Pair) = 7000 lbs.
• Individual Mobile Cabinet Capacity = 800 lbs.
• Individual Shelf Capacity = 200 lbs.
• Kit Weight: 1270 lbs. (distributed to 4 corners)
Required Footprint:
• Length = 12’-6” (150”)
• Height = 7’-0” (84”)
• Width = 2’-6” (30”)










Included in Kit:
• Pallet Rack Upright, Beams, and Wire Decking
• (5) 18” Mobile Cabinets
• (4) Steel Shelves per Mobile Cabinet
• Additional Shelves and Accessories can be added
• Key-slot design for easy adjustment and integration
• LED motion activated Lighting
Storage Capacity:
• 220 cubic feet (cabinet volume)
• 120 square feet (shelving surface area)
• 80 linear feet of shelving
• Top Level Storage = 40 square feet
• Additional shelving can be added
Weights:
• Overall System Capacity (10ft Beam Pair) = 8000 lbs.
• Individual Mobile Cabinet Capacity = 800 lbs.
• Individual Shelf Capacity = 200 lbs.
• Kit Weight: 1440 lbs. (distributed to 4 corners)
Required Footprint:
• Length = 10’-6” (126”)
• Height = 8’-0” (96”)
• Width = 4’-0” (48”)









Included in Kit:
• Pallet Rack Upright, Beams, and Wire Decking
• (5) 18” Mobile Cabinets
• (4) Steel Shelves per Mobile Cabinet
• Additional Shelves and Accessories can be added
• Key-slot design for easy adjustment and integration
• LED motion activated Lighting
Storage Capacity:
• 192 cubic feet (cabinet volume)
• 105 square feet (shelving surface area)
• 70 linear feet of shelving
• Top Level Storage = 35 square feet
• Additional shelving can be added
Weights:
• Overall System Capacity (10ft Beam Pair) = 8000 lbs.
• Individual Mobile Cabinet Capacity = 800 lbs.
• Individual Shelf Capacity = 200 lbs.
• Kit Weight: 1350 lbs. (distributed to 4 corners)
Required Footprint:
• Length = 10’-6” (126”)
• Height = 8’-0” (96”)
• Width = 4’-0” (48”)









Included in Kit:
• Pallet Rack Upright, Beams, and Wire Decking
• (5) 18” Mobile Cabinets
• (4) Steel Shelves per Mobile Cabinet
• Additional Shelves and Accessories can be added
• Key-slot design for easy adjustment and integration
• LED motion activated Lighting
Storage Capacity:
• 165 cubic feet (cabinet volume)
• 90 square feet (shelving surface area)
• 60 linear feet of shelving
• Top Level Storage = 30 square feet
• Additional shelving can be added
Weights:
• Overall System Capacity (10ft Beam Pair) = 8000 lbs.
• Individual Mobile Cabinet Capacity = 800 lbs.
• Individual Shelf Capacity = 200 lbs.
• Kit Weight: 1250 lbs. (distributed to 4 corners)
Required Footprint:
• Length = 10’-6” (126”)
• Height = 8’-0” (96”)
• Width = 3’-0” (36”)









Included in Kit:
• Pallet Rack Upright, Beams, and Wire Decking
• (5) 18” Mobile Cabinets
• (4) Steel Shelves per Mobile Cabinet
• Additional Shelves and Accessories can be added
• Key-slot design for easy adjustment and integration
• LED motion activated Lighting
Storage Capacity:
• 137 cubic feet (cabinet volume)
• 75 square feet (shelving surface area)
• 50 linear feet of shelving
• Top Level Storage = 25 square feet
• Additional shelving can be added
Weights:
• Overall System Capacity (10ft Beam Pair) = 8000 lbs.
• Individual Mobile Cabinet Capacity = 800 lbs.
• Individual Shelf Capacity = 200 lbs.
• Kit Weight: 1140 lbs. (distributed to 4 corners)
Required Footprint:
• Length = 10’-6” (126”)
• Height = 8’-0” (96”)
• Width = 2’-6” (30”)









Included in Kit:
• Pallet Rack Upright, Beams, and Wire Decking
• (5) 18” Mobile Cabinets
• (4) Steel Shelves per Mobile Cabinet
• Additional Shelves and Accessories can be added
• Key-slot design for easy adjustment and integration
• LED motion activated Lighting
Storage Capacity:
• 190 cubic feet (cabinet volume)
• 120 square feet (shelving surface area)
• 80 linear feet of shelving
• Top Level Storage = 40 square feet
• Additional shelving can be added
Weights:
• Overall System Capacity (10ft Beam Pair) = 8000 lbs.
• Individual Mobile Cabinet Capacity = 800 lbs.
• Individual Shelf Capacity = 200 lbs.
• Kit Weight: 1350 lbs. (distributed to 4 corners)
Required Footprint:
• Length = 10’-6” (126”)
• Height = 7’-0” (84”)
• Width = 4’-0” (48”)









Included in Kit:
• Pallet Rack Upright, Beams, and Wire Decking
• (5) 18” Mobile Cabinets
• (4) Steel Shelves per Mobile Cabinet
• Additional Shelves and Accessories can be added
• Key-slot design for easy adjustment and integration
• LED motion activated Lighting
Storage Capacity:
• 167 cubic feet (cabinet volume)
• 105 square feet (shelving surface area)
• 70 linear feet of shelving
• Top Level Storage= 35 square feet
• Additional shelving can be added
Weights:
• Overall System Capacity (10ft Beam Pair) = 8000 lbs.
• Individual Mobile Cabinet Capacity = 800 lbs.
• Individual Shelf Capacity = 200 lbs.
• Kit Weights: 1260 lbs. (distributed to 4 corners)
Required Footprint:
• Length = 10’-6” (126”)
• Height = 7’-0” (84”)
• Width = 4’-0” (48”)









Included in Kit:
• Pallet Rack Upright, Beams, and Wire Decking
• (5) 18” Mobile Cabinets
• (4) Steel Shelves per Mobile Cabinet
• Additional Shelves and Accessories can be added
• Key-slot design for easy adjustment and integration
• LED motion activated Lighting
Storage Capacity:
• 142 cubic feet (cabinet volume)
• 90 square feet (shelving surface area)
• 60 linear feet of shelving
• Top Level Storage = 30 square feet
• Additional shelving can be added
Weights:
• Overall System Capacity (10ft Beam Pair) = 8000 lbs.
• Individual Mobile Cabinet Capacity = 800 lbs.
• Individual Shelf Capacity = 200 lbs.
• Kit Weight: 1170 lbs. (distributed to 4 corners)
Required Footprint:
• Length = 10’-6” (126”)
• Height = 7’-0” (84”)
• Width = 3’-0” (36”)









Included in Kit:
• Pallet Rack Upright, Beams, and Wire Decking
• (5) 18” Mobile Cabinets
• (4) Steel Shelves per Mobile Cabinet
• Additional Shelves and Accessories can be added
• Key-slot design for easy adjustment and integration
• LED motion activated Lighting
Storage Capacity:
• 119 cubic feet (storage volume)
• 75 square feet (shelving surface area)
• 50 linear feet of shelving
• Top Level Storage = 25 square feet
• Additional shelving can be added
Weights:
• Overall System Capacity (10ft Beam Pair) = 8000 lbs.
• Individual Mobile Cabinet Capacity = 800 lbs.
• Individual Shelf Capacity = 200 lbs.
• Kit Weight: 1070 lbs. (distributed to 4 corners)
Required Footprint:
• Length = 10’-6” (126”)
• Height = 7’-0” (84”)
• Width = 2’-6” (30”)










Included in Kit:
• Pallet Rack Upright, Beams, and Wire Decking
• (2) 18” Mobile Cabinets
• (2) 15” Mobile Cabinets
• (4) Steel Shelves per Mobile Cabinet
• Additional Shelves and Accessories can be added
• Key-slot design for easy adjustment and integration
• LED motion activated Lighting
Storage Capacity:
• 161 cubic feet (cabinet volume)
• 88 square feet (shelving surface area)
• 64 linear feet of shelving
• Top Level Storage = 32 square feet
• Additional shelving can be added
Weights:
• Overall System Capacity (8ft Beam Pair) = 9000 lbs.
• Individual Mobile Cabinet Capacity = 800 lbs.
• Individual Shelf Capacity = 200 lbs.
• Kit Weight: 1150 lbs. (distributed to 4 corners)
Required Footprint:
• Length = 8’-6” (102”)
• Height = 8’-0” (96”)
• Width = 4’-0” (48”)








Included in Kit:
• Pallet Rack Upright, Beams, and Wire Decking
• (2) 18” Mobile Cabinets
• (2) 15” Mobile Cabinets
• (4) Steel Shelves per Mobile Cabinet
• Additional Shelves and Accessories can be added
• Key-slot design for easy adjustment and integration
• LED motion activated Lighting
Storage Capacity:
• 142 cubic feet (cabinet volume)
• 77 square feet (shelving surface area)
• 56 linear feet of shelving
• Top Level Storage = 28 square feet
• Additional shelving can be added
Weights:
• Overall System Capacity (8ft Beam Pair) = 9000 lbs.
• Individual Mobile Cabinet Capacity = 800 lbs.
• Individual Shelf Capacity = 200 lbs.
• Kit Weight: 1070 lbs. (distributed to 4 corners)
Required Footprint:
• Length = 8’-6” (102”)
• Height = 8’-0” (96”)
• Width = 4’-0” (48”)










Included in Kit:
• Pallet Rack Upright, Beams, and Wire Decking
• (2) 18” Mobile Cabinets
• (2) 15” Mobile Cabinets
• (4) Steel Shelves per Mobile Cabinet
• Additional Shelves and Accessories can be added
• Key-slot design for easy adjustment and integration
• LED motion activated Lighting
Storage Capacity:
• 121 cubic feet (cabinet volume)
• 66 square feet (shelving surface area)
• 48 linear feet of shelving
• Top Level Storage = 24 square feet
• Additional shelving can be added
Weights:
• Overall System Capacity (8ft Beam Pair) = 9000 lbs.
• Individual Mobile Cabinet Capacity = 800 lbs.
• Individual Shelf Capacity = 200 lbs.
• Kit Weight: 980 lbs. (distributed to 4 corners)
Required Footprint:
• Length = 8’-6” (102”)
• Height = 8’-0” (96”)
• Width = 3’-0” (36”)









Included in Kit:
• Pallet Rack Upright, Beams, and Wire Decking
• (2) 18” Mobile Cabinets
• (2) 15” Mobile Cabinets
• (4) Steel Shelves per Mobile Cabinet
• Additional Shelves and Accessories can be added
• Key-slot design for easy adjustment and integration
• LED motion activated Lighting
Storage Capacity:
• 101 cubic feet (cabinet volume)
• 55 square feet (shelving surface area)
• 40 linear feet of shelving
• Top Level Storage = 20 square feet
• Additional shelving can be added
Weights:
• Overall System Capacity (8ft Beam Pair) = 9000 lbs.
• Individual Mobile Cabinet Capacity = 800 lbs.
• Individual Shelf Capacity = 200 lbs.
• Kit Weight: 900 lbs. (distributed to 4 corners)
Required Footprint:
• Length = 8’-6” (102”)
• Height = 8’-0” (96”)
• Width = 2’-6” (30”)








Included in Kit:
• Pallet Rack Upright, Beams, and Wire Decking
• (2) 18” Mobile Cabinets
• (2) 15” Mobile Cabinets
• (4) Steel Shelves per Mobile Cabinet
• Additional Shelves and Accessories can be added
• Key-slot design for easy adjustment and integration
• LED motion activated Lighting
Storage Capacity:
• 139 cubic feet (cabinet volume)
• 88 square feet (shelving surface area)
• 64 linear feet of shelving
• Top Level Storage = 32 square feet
• Additional shelving can be added
Weights:
• Overall System Capacity (8ft Beam Pair) = 9000 lbs.
• Individual Mobile Cabinet Capacity = 800 lbs.
• Individual Shelf Capacity = 200 lbs. Kit Weight: 1070 lbs. (distributed to 4 corners)
Required Footprint:
• Length = 8’-6” (102”)
• Height = 7’-0” (84”)
• Width = 4’-0” (48”)









Included in Kit:
• Pallet Rack Upright, Beams, and Wire Decking
• (2) 18” Mobile Cabinets
• (2) 15” Mobile Cabinets
• (4) Steel Shelves per Mobile Cabinet
• Additional Shelves and Accessories can be added
• Key-slot design for easy adjustment and integration
• LED motion activated Lighting
Storage Capacity:
• 122 cubic feet (cabinet volume)
• 77 square feet (shelving surface area)
• 56 linear feet of shelving
• Top Level Storage= 28 square feet
• Additional shelving can be added
Weights:
• Overall System Capacity (8ft Beam Pair) = 9000 lbs.
• Individual Mobile Cabinet Capacity = 800 lbs.
• Individual Shelf Capacity = 200 lbs.
• Kit Weight: 990 lbs. (distributed to 4 corners)
Required Footprint:
• Length = 8’-6” (102”)
• Height = 7’-0” (84”)
• Width = 4’-0” (48”)










Included in Kit:
• Pallet Rack Upright, Beams, and Wire Decking
• (2) 18” Mobile Cabinets
• (2) 15” Mobile Cabinets
• (4) Steel Shelves per Mobile Cabinet
• Additional Shelves and Accessories can be added
• Key-slot design for easy adjustment and integration
• LED motion activated Lighting
Storage Capacity:
• 104 cubic feet (cabinet volume)
• 55 square feet (shelving surface area)
• 40 linear feet of shelving
• Top Level Storage = 20 square feet
• Additional shelving can be added
Weights:
• Overall System Capacity (8ft Beam Pair) = 9000 lbs.
• Individual Mobile Cabinet Capacity = 800 lbs.
• Individual Shelf Capacity = 200 lbs.
• Kit Weight: 920 lbs. (distributed to 4 corners)
Required Footprint:
• Length = 8’-6” (102”)
• Height = 7’-0” (84”)
• Width = 3’-0” (36”)









Included in Kit:
• Pallet Rack Upright, Beams, and Wire Decking
• (2) 18” Mobile Cabinets
• (2) 15” Mobile Cabinets
• (4) Steel Shelves per Mobile Cabinet
• Additional Shelves and Accessories can be added
• Key-slot design for easy adjustment and integration
• LED motion activated Lighting
Storage Capacity:
• 87 cubic feet (storage volume)
• 55 square feet (shelving surface area)
• 40 linear feet of shelving
• Top Level Storage = 20 square feet
• Additional shelving can be added
Weights:
• Overall System Capacity (8ft Beam Pair) = 9000 lbs.
• Individual Mobile Cabinet Capacity = 800 lbs.
• Individual Shelf Capacity = 200 lbs.
• Kit Weight: 850 lbs. (distributed to 4 corners)
Required Footprint:
• Length = 8’-6” (102”)
• Height = 7’-0” (84”)
• Width = 2’-6” (30”)









Included in Kit:
• Pallet Rack Upright, Beams, and Wire Decking
• (4) 15” Mobile Cabinets
• (4) Steel Shelves per Mobile Cabinet
• Additional Shelves and Accessories can be added
• Key-slot design for easy adjustment and integration
• LED motion activated Lighting
Storage Capacity:
• 146 cubic feet (cabinet volume)
• 80 square feet (shelving surface area)
• 64 linear feet of shelving
• Top Level Storage = 28 square feet
• Additional shelving can be added
Weights:
• Overall System Capacity (7ft Beam Pair) = 9500 lbs.
• Individual Mobile Cabinet Capacity = 800 lbs.
• Individual Shelf Capacity = 200 lbs.
• Kit Weight: 1100 lbs. (distributed to 4 corners)
Required Footprint:
• Length = 7’-6” (90”)
• Height = 8’-0” (96”)
• Width = 4’-0” (48”)









Included in Kit:
• Pallet Rack Upright, Beams, and Wire Decking
• (4) 15” Mobile Cabinets
• (4) Steel Shelves per Mobile Cabinet
• Additional Shelves and Accessories can be added
• Key-slot design for easy adjustment and integration
• LED motion activated Lighting
Storage Capacity:
• 128 cubic feet (cabinet volume)
• 70 square feet (shelving surface area)
• 56 linear feet of shelving
• Top Level Storage = 24.5 square feet
• Additional shelving can be added
Weights:
• Overall System Capacity (7ft Beam Pair) = 9500 lbs.
• Individual Mobile Cabinet Capacity = 800 lbs.
• Individual Shelf Capacity = 200 lbs.
• Kit Weight: 1000 lbs. (distributed to 4 corners)
Required Footprint:
• Length = 7’-6” (90”)
• Height = 8’-0” (96”)
• Width = 4’-0” (48”)









Included in Kit:
• Pallet Rack Upright, Beams, and Wire Decking
• (4) 15” Mobile Cabinets
• (4) Steel Shelves per Mobile Cabinet
• Additional Shelves and Accessories can be added
• Key-slot design for easy adjustment and integration
• LED motion activated Lighting
Storage Capacity:
• 110 cubic feet (cabinet volume)
• 60 square feet (shelving surface area)
• 48 linear feet of shelving
• Top Level Storage = 21 square feet
• Additional shelving can be added
Weights:
• Overall System Capacity (7ft Beam Pair) = 9500 lbs.
• Individual Mobile Cabinet Capacity = 800 lbs.
• Individual Shelf Capacity = 200 lbs.
• Kit Weight: 930 lbs. (distributed to 4 corners)
Required Footprint:
• Length = 7’-6” (90”)
• Height = 8’-0” (96”)
• Width = 3’-0” (36”)








Included in Kit:
• Pallet Rack Upright, Beams, and Wire Decking
• (4) 15” Mobile Cabinets
• (4) Steel Shelves per Mobile Cabinet
• Additional Shelves and Accessories can be added
• Key-slot design for easy adjustment and integration
• LED motion activated Lighting
Storage Capacity:
• 92 cubic feet (cabinet volume)
• 50 square feet (shelving surface area)
• 40 linear feet of shelving
• Top Level Storage = 17.5 square feet
• Additional shelving can be added
Weights:
• Overall System Capacity (7ft Beam Pair) = 9500 lbs.
• Individual Mobile Cabinet Capacity = 800 lbs.
• Individual Shelf Capacity = 200 lbs.
• Kit Weight: 850 lbs. (distributed to 4 corners)
Required Footprint:
• Length = 7’-6” (90”)
• Height = 8’-0” (96”)
• Width = 2’-6” (30”)










Included in Kit:
• Pallet Rack Upright, Beams, and Wire Decking
• (4) 15” Mobile Cabinets
• (4) Steel Shelves per Mobile Cabinet
• Additional Shelves and Accessories can be added
• Key-slot design for easy adjustment and integration
• LED motion activated Lighting
Storage Capacity:
• 127 cubic feet (cabinet volume)
• 80 square feet (shelving surface area)
• 64 linear feet of shelving
• Top Level Storage = 28 square feet
• Additional shelving can be added
Weights:
• Overall System Capacity (7ft Beam Pair) = 9500 lbs.
• Individual Mobile Cabinet Capacity = 800 lbs.
• Individual Shelf Capacity = 200 lbs.
• Kit Weight: 1010 lbs. (distributed to 4 corners)
Required Footprint:
• Length = 7’-6” (90”)
• Height = 7’-0” (84”)
• Width = 4’-0” (48”)









Included in Kit:
• Pallet Rack Upright, Beams, and Wire Decking
• (4) 15” Mobile Cabinets
• (4) Steel Shelves per Mobile Cabinet
• Additional Shelves and Accessories can be added
• Key-slot design for easy adjustment and integration
• LED motion activated Lighting
Storage Capacity:
• 111 cubic feet (cabinet volume)
• 70 square feet (shelving surface area)
• 56 linear feet of shelving
• Top Level Storage = 24.5 square feet
• Additional shelving can be added
Weights:
• Overall System Capacity (7ft Beam Pair) = 9500 lbs.
• Individual Mobile Cabinet Capacity = 800 lbs.
• Individual Shelf Capacity = 200 lbs.
• Kit Weight: 940 lbs. (distributed to 4 corners)
Required Footprint:
• Length = 7’-6” (90”)
• Height = 7’-0” (84”)
• Width = 4’-0” (48”)








Included in Kit:
• Pallet Rack Upright, Beams, and Wire Decking
• (4) 15” Mobile Cabinets
• (4) Steel Shelves per Mobile Cabinet
• Additional Shelves and Accessories can be added
• Key-slot design for easy adjustment and integration
• LED motion activated Lighting
Storage Capacity:
• 95 cubic feet (cabinet volume)
• 60 square feet (shelving surface area)
• 48 linear feet of shelving
• Top Level Storage = 21 square feet
• Additional shelving can be added
Weights:
• Overall System Capacity (7ft Beam Pair) = 9500 lbs.
• Individual Mobile Cabinet Capacity = 800 lbs.
• Individual Shelf Capacity = 200 lbs.
• Kit Weight: 870 lbs. (distributed to 4 corners)
Required Footprint:
• Length = 7’-6” (90”)
• Height = 7’-0” (84”)
• Width = 3’-0” (36”)








Included in Kit:
• Pallet Rack Upright, Beams, and Wire Decking
• (4) 15” Mobile Cabinets
• (4) Steel Shelves per Mobile Cabinet
• Additional Shelves and Accessories can be added
• Key-slot design for easy adjustment and integration
• LED motion activated Lighting
Storage Capacity:
• 79 cubic feet (storage volume)
• 50 square feet (shelving surface area)
• 40 linear feet of shelving
• Top Level Storage = 17.5 square feet
• Additional shelving can be added
Weights:
• Overall System Capacity (7ft Beam Pair) = 9500 lbs.
• Individual Mobile Cabinet Capacity = 800 lbs.
• Individual Shelf Capacity = 200 lbs.
• Kit Weight: 800 lbs. (distributed to 4 corners)
Required Footprint:
• Length = 7’-6” (126”)
• Height = 7’-0” (84”)
• Width = 2’-6” (30”)







Cabinet QTY per Beam Span: (Alternate Configurations)











Existing Pallet Racking:
Levrack Kits can be implemented into existing Pallet Racking assemblies. The following checklist is required for Levrack Kit implementation:
Existing Racking Checklist:
1. Upright Frame Width _________ (typically 30”, 36”, 42”, 48”)
2. Beam Length ________________(Span between the uprights)
3. System Height _______________(Levrack Kit Height is 7ft or 8ft)
4. Key-slot Style_________________(Levrack Kits require “Teardrop” Style Upright)








