

Schools
Portfolio
As architects, landscape architects and urban designers, we create award winning buildings, living landscapes and thriving urban spaces, using inventive design to solve real life challenges. Each of our projects is different but the driving force behind every one is the desire to create something that is inherently beautiful, sustainable and useful.
Designing buildings for education is an established strand of our portfolio. Our work covers both primary and secondary age groups, including junior schools, sixth form centres, music facilities, teaching accommodation and boarding houses. We also draw on our experience in other sectors such as the arts, where we have expertise in the design of auditoriums.
We also work on extensive, strategic masterplans that offer a creative framework and vision for growth. This helps bring school estates into the 21st Century in terms of evolving educational needs, student experience and environmental excellence. Many of our recent projects have dealt with listed buildings on constrained, sensitive sites. Importantly, we always strike a balance between respecting architectural heritage whilst meeting modern day quality and accessibility standards.
The additional resource of our urban designers and landscape architects enables us to look holistically at all projects, providing the expertise to deal with both the macro scale masterplanning and micro scale detailing. We use a variety of different methods of engagement, ensuring that everyone understands our vision and can contribute their ideas.
Our clients include:
• Withington Girls’ School
• Stonyhurst College
• Eltham College
• King’s Bruton
• Haberdashers’ Monmouth Schools
• Leighton Park School
• Elizabeth College
• St Bede’s College
• Queen Margaret’s School
• Marymount International School
• King Edward VI High School for Girls
• Blackheath Prep
• St Albans High School for Girls
• Oswestry School
Contents
Haberdashers’ Monmouth School
Masterplan
Sixth Form Centre
Dance Studio
Dining Hall
School House
Prep School
Performing Arts Centre
The Turberville Building, Eltham College
Withington Girls’ School
Queen Elizabeth Music School, Kings School, Bruton
Perrot Court, Elizabeth College
Stonyhurst College Masterplan
Elizabeth College Masterplan
Leighton Park School Masterplan
Old Infirmary Boarding House, Stonyhurst College
Fryer House Junior Boarding
St Albans High School for Girls
Marymount School, Masterplan and Decarbonisation Plan
Marymount School Science Centre
Performing Arts Centre, Oswestry School

Haberdashers’ Monmouth School: Masterplan
Monmouth,
Wales
Haberdashers’ Monmouth School
Levitt Bernstein has a long standing, collaborative relationship with Haberdashers’ Monmouth School. Following our design and delivery of their Performing Arts Centre, we were commissioned, in 2022 to carry out a comprehensive masterplanning exercise across the School’s five town sites, encompassing space auditing, options appraisals, and decarbonisation planning. The project evolved into the design and delivery of five education facilities on three main campus sites, supporting the schools’ transition to a fully coeducational model for ages 4-18. Our role encompassed masterplanning, architecture (including Project Lead and Contract Administration) interior design, and landscape architecture, with full responsibility from RIBA Stages 0/1-7.

“Levitt Bernstein were successful in delivering multiple projects across the site, with particular logistical complexity arising with our dining hall and sixth form facilities as a result of phasing and delivering the projects within a live school site. They are easy to work with, they communicate with all stakeholders in an effective and collaborative way that ensures the projects always deliver what we, as the end user, need. ”
Mrs T Norgrove, Foundation Bursar for Haberdashers’ Monmouth School


This project focused on transforming an isolated section of the school’s estate into a new Sixth Form Centre, positioned between four existing buildings the new design establishes a distinct entrance and identity.
The existing teaching block to the south underwent a comprehensive retrofit, which included a redesign for a café-style food offering on the ground floor and modern teaching spaces above. These upgrades improved the building’s thermal envelope, enhancing energy efficiency and reducing energy consumption.

Haberdashers’ Monmouth School: Sixth Form Centre
Monmouth, Wales
Haberdashers’ Monmouth School




Haberdashers’ Monmouth School: Dance Studio
Monmouth, Wales
Haberdashers’ Monmouth School
Working closely with the School, we’ve transformed their former squash courts into a sustainable, purposebuilt dance studio that serves both educational and environmental goals.
It was important to the School to create a sustainable building with aligns with the site-wide decarbonisation strategy. We enhanced the building’s thermal performance through carefully selected practical solutions - adding external wall insulation with a thoughtfully combined brick and metal cladding system. New double-glazed windows and strategically placed skylights maximize natural light throughout the space. By retaining much of the existing structure and materials, we significantly reduced the project’s embodied carbon impact.



To accommodate the school’s transition to a co-educational model, the dining hall at Monmouth Boys’ School required an expansion. This transformative project is a comprehensive retrofit that supports the school’s decarbonisation plan, developed in partnership with Levitt Bernstein and Max Fordham.
In keeping with carbon reduction goals, the project retained much of the existing building fabric with minimal demolition. The addition of new over-cladding has enhanced both the environmental performance and visual appeal of the structure, with sleek cladding unifying the existing building and new extension.
The building’s extensive flat roof supports a maximized PV array, helping to balance energy use and contributing to the school’s broader energy network. A new green roof enhances biodiversity, offering a more visually engaging outlook onto the overlooked building.

Haberdashers’ Monmouth School: Dining Hall
Monmouth, Wales
Haberdashers’ Monmouth School




Haberdashers’ Monmouth School: School House
Monmouth, Wales
Haberdashers’ Monmouth School
The refurbishment of the Grade II Listed School House carefully modernises the historic Monmouth Boys’ boarding facility into a high-quality, co-educational teaching space. Now equipped with contemporary classrooms and student dayrooms, the upgraded School House aligns with the school’s transition to a co-educational model.
The restoration honours the building’s historic character, reinstating original classroom layouts and restoring architectural elements like the grand four-story staircase to their former elegance. A focus has been placed on preserving as much of the building’s historic fabric as possible.


Haberdashers’ Monmouth School: Prep School
Monmouth, Wales
Haberdashers’ Monmouth School
As part of delivering the wider Monmouth School vision, this project has converted an existing listed boarding building, which historically served as classrooms, into a modern preparatory school. This project aims to blend high-quality education with the preservation of the building’s historical significance, creating a state-of-the-art learning environment that respects and showcases its architectural heritage.
The new prep school provides an inspiring and supportive setting for young learners, promoting academic excellence and personal growth. Where possible the project has incorporate sustainable principles, such as upgrading some of the existing single glazed windows to double glazing, and using natural ventilation.


The Performing Arts Centre
Monmouth
Haberdashers’ Monmouth Schools
Enjoying a prominent position above the town of Monmouth in south Wales, this boarding school for girls is on a challenging steep site which includes a Grade II listed main school building.
A new three storey performing arts centre replaces an old gymnasium and links directly to the school’s existing main theatre building to provide a centrally located, combined facility for music, drama and dance. Key spaces include an entrance foyer which can be expanded for performance gatherings, a series of peripatetic, group practice and soundproof rooms, a technical studio, music classrooms, a library and new recital hall seating 200 people.



Under the College’s expansion plans, we have replaced a failing 1960s wing extension with the new Turberville Building; a new central sixth form centre and a variety of departmental teaching, study, seminar and social spaces organised over three storeys. Located adjacent to the listed main school building and forming the fourth side of the re-landscaped historic quad, its design is a modern interpretation of the classical architecture adjacent and responds appropriately to the differing contextual scales on the two opposite sides of the building. A new wellbeing centre, clad in black stained timber, also sits as a modest pavilion in the new landscaped setting.

“I am absolutely delighted with the new Turberville Building at Eltham College, which will allow us to provide exceptional new facilities for our students as we look to enhance our teaching and learning space before becoming fully co-educational.”
Guy Sanderson, Headmaster, Eltham
College
The Turberville Building
Bromley, London
Eltham College


“From the first moment it opened, the building lived up to its promise of being not only visually stunning but alsofit-for-purpose as a high quality educational facility. You would think it had always been there.”
Susan Roxby, Bursar, Eltham College

“The new facilities will transform the learning of our girls in a number of subjects, providing for practical, hands-on activities and giving huge amounts of extra space for girls’ independent learning and social interaction alike.”
Sue Marks, Headmistress, Withington Girls’ School

New Junior School and Communal Hub
Manchester
Withington Girls’ School
In order to provide additional facilities for this growing school, we first provided a masterplan for the estate focusing on reclaiming underused areas. An external courtyard is now a new internal hub encompassing the existing two storey octagonal arts building, which has been kept and a new roof added at first floor level to link it to the surrounding buildings. A new two form entry, 7-11, junior school also infills space providing eight new classrooms, alongside a hall, IT suite, library, staff office, storage rooms and changing areas.




The Queen Elizabeth Music School
Somerset
King’s School, Bruton
The new music school at King’s School, Bruton, sits on the site of a former open-air swimming pool, amongst a collection of listed buildings dating from the 16th Century. Facilities include a recital hall, peripatetic rooms, practice rooms, music classrooms and a recording studio.
A carefully crafted ‘box of tricks’, the design has been driven by the constrained but inspiring site and an ambitious client brief. Situated within a rich landscape of historic structures, the setting demanded an architecturally sympathetic response, whilst delivering the complex technical and acoustic requirements of a music school.

“Since the idea of a new music school was first discussed, I hoped the building would transform both our music facilities and an unappealing brownfield site at the centre of our historic campus. The final building is even better than I hoped for… The design, use of light and space as well as the acoustic engineering are all of the highest quality.”
Ian Wilmshurst, Headmaster, King’s School




Perrot Court is the re-imagining of a disconnected, monolithic office building into an inspiring, contemporary learning facility. Favouring re-use over replacement, the project makes best use of existing facilities through a considered strategy of refurbishment, environmental retrofit and targeted architectural intervention, to provide best value for our client and minimise the loss of embodied carbon on site.
A new bridge and pedestrian link connect the re-purposed building with the existing campus, as part of a wider placemaking strategy conceived through our earlier Master Estates Plan. Significantly expanding existing school facilities with a new sixth form centre, library, learning enrichment and wellbeing centre, social sciences and drama teaching departments, the refurbished building also includes a major administrative suite and the main school reception.

“People are moving into the building! Y13 Prelims, Learning Enrichment, student tours and the first books are in the library. Very exciting! It’s been brilliant working with the Levitt Bernstein team on this transformation.”
Jenny Palmer (Principal, Elizabeth College)
Perrot Court
Guernsey Elizabeth College




Stonyhurst College Masterplan
Lancashire
Stonyhurst College
Dating from 1593, this historic estate comprises a mix of Grade I, II* and II listed structures and landscape features. Working closely with stakeholders, including staff, governors and Historic England, we have completed a comprehensive strategic masterplan for the site.
Our cohesive vision for the buildings and grounds respects and draws inspiration from the school’s rich heritage, whilst identifying opportunities for future development to meet evolving educational needs. Reuse of existing buildings and underused space has been prioritised and supported with new buildings where necessary. We are currently working with the College to deliver the first stages of the masterplan.

“Levitt Bernstein immediately immersed themselves in the culture and history of Stonyhurst. They produced a masterplan which has engaged all the stakeholders and captures every aspect of our estate.”
Simon Marsden, Bursar, Stonyhurst College


We have delivered a masterplan for Elizabeth College that builds on the strength of their reputation, school community and historic setting in St Peter Port. We worked in close partnership with the College to establish a strategic vision for the school’s future.
Our comprehensive process of research, wide arching stakeholder consultation and rigorous design resulted in a richly layered proposal considering challenges of all scales. The resultant masterplan features a programme of refurbishment, demolition, new build and significant landscape improvements. Proposals make best use of the estate, including a recently acquired large office building adjacent to the site, whilst modernising facilities through a common vision to prepare for everchanging educational needs.

“The masterplan that Levitt Bernstein has produced with and for us has provided a clear route map for the development of an historic, town centre school site. I have very much appreciated their patience, experience, encouragement and creativity.”
Jenny Palmer, Principal, Elizabeth College
Elizabeth College Masterplan
Guernsey Elizabeth College


Leighton Park School Masterplan
Reading
Leighton Park School
Our detailed masterplan for this co-educational boarding school considered all aspects of their large historic estate in the centre of Reading. It included an audit of teaching facilities and focused on best use of existing buildings alongside proposed new build. Consultation with key stakeholders was an integral part of the process to ensure support.
Setting out a framework for development, the masterplan will guide the estate’s evolution over the next 30 years. The projects and strategies make best use of the existing site whilst modernising facilities, and a cohesive architectural vision prepares the estate for future educational and boarding needs.

“The masterplan has a very clear narrative and incorporates our recent concerns. The ideas will generate a fair bit of discussion – we feel really uplifted and on a purposeful journey with you.”
Matthew Judd, Headmaster, Leighton Park School


Following our completion of Stonyhurst College’s estate-wide development masterplan, we were commissioned to deliver the first phase; a new boarding house in the Grade II* listed old infirmary building.
The project involved careful internal reworking of this unique building to provide contemporary facilities to meet high-quality boarding demands. The 23 ensuite bedrooms are a mixture of single and twin rooms. Amenities include a house social lounge, two staff flats, kitchen and laundry facilities. The boarding house was designed and delivered within a very short programme to open for the start of the new academic year.

“Rather than pupils boarding in vertical houses, at Stonyhurst we group boarders by a horizontal system, or year group. The design of the Old Infirmary fosters this unique family atmosphere.”
Simon Marsden, Bursar, Stonyhurst College
Old Infirmary Boarding House
Lancashire
Stonyhurst College


Fryer House, Junior Boarding
Reading
Leighton Park School
A strategic decision at the school to relocate the junior boarders from the current vertical house system to a boarding house of their own has led to the remodelling of the current junior day house. Accommodating 25 boarding spaces for students and associated staff residences, the house is split into boys and girls wings with combined social lounge and kitchen facilities. The dormitories will sleep three to four, with an ensuite shower room in each. The design addresses opportunities for future phased refurbishment, including enclosing the external courtyard to create improved internal social space for both junior day and boarding pupils.

“Since progressing with the refurbishment of Fryer Boarding House, it’s clear the level of quality and finish is just as we hope for here at Leighton Park!”
Matthew Judd, Headmaster, Leighton Park School


St Albans High School for Girls
Hertfordshire
St Albans High School for Girls
Levitt Bernstein were commissioned by the school to carry out a cohesive landscape and buildings strategic ‘vision’ for their senior school site. External space is a premium in such a constrained urban setting and focusing on the benefits and opportunities posed by all the external spaces was essential. Key issues to resolve included: creating a stronger school identity and sense of arrival– ‘kerb appeal’; have spaces which complement and reinforce the STAHS Vision and Values set out in the senior school prospectus; creation of more consistent appearance to street frontage and enhancement of general amenity provision for the pupils. We engaged with all staff and pupils to create a vision that addresses the senior school operational shortfalls and overall look, feel and cohesion in the short medium and longer term.
We are now progressing the first phase of development to create a new student entrance building and associated landscaped forecourt and extended amenity along Townsend Avenue.



Marymount School, Masterplan and Decarbonisation Plan
Kingston
Marymount International School
Marymount International School are committed to ensuring all future developments on their Kingston, London site are considered within a new masterplan framework as well as leading in sustainable practice through a parallel decarbonisation study. The masterplan study involved detailed analysis, stakeholder engagement and options studies leading to a detailed preferred final estate vision of phased reorganistion, refurbishment and extension. The holistic approach is completed through a comprehensive landscape strategy and the decarbonisation plan involving an environmental audit reviewing the existing condition of building fabric and systems, providing an understanding of energy consumption and a targeted timeline for the School to decarbonise by 2040.
41%
Buildings are likely to have some insulation

57%
Buildings are likely to have little/no insulation*
Approximate age ranges of buildings. Percentages generated on an area weighted basis. *Unless that insulation has been added by the School since the building's construction.


Proposed Design

PHYSICS
We are appointed to transform the school’s existing Science Block through refurbishment and extension to create a new centre for all of the school’s science facilities; including additional teaching laboratories and a dedicated space for assessed laboratory experiments, connecting with other STEAMrelated curriculum spaces, across the school site. The new Biology laboratory will be coupled with a connecting greenhouse, with level access to a Science garden and pond as well as new, external teaching areas. Currently, the small, central staff room works hard as a prep room, staff office and chemical store. Under the new proposals, these areas are separated and enlarged, ensuring the right adjacencies with laboratories and safe and secure storage for apparatus and chemicals. A central circulation spine allows for visual connectivity between laboratories and arrives at a break-out hub area, providing opportunity for students to take group study work outside of the classroom and space for seminars. Expected completion Spring 2027.
Greenhouse IARoom

Marymount School, Science Centre
Kingston
Marymount International School


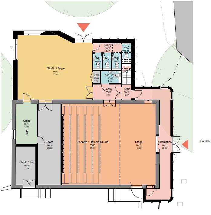
Performing Arts Centre, Oswestry School
Shropshire
Oswestry School
Our project for Oswestry School will refurbish and extend the existing school theatre to create two dedicated dance studios and a flexible, multi-functional performance space featuring retractable seating and tailored acoustic characteristics. Supporting facilities are thoughtfully located and organised to carefully separate the audience and performers whilst maximising use of space, to provide best value for the client within this constrained site.
Featuring prominently from the main school entrance, the re-imagined performance and rehearsal centre will be nestled within a historic garden setting. Bound by mature trees and historic schools buildings, a landscaped arrival space, fronting the new extension, and a will provide an outdoor arrival / reception space.
Fabric improvements to the existing space and high u-values to the new extension will help ensure this retrofit meets sustainability aspirations.



Other brochures
Architecture
Landscape Architecture
Urban Design
Arts
Commercial
Education
Environmental Design
Estate Regeneration
Health
Higher Education
Historic Buildings
Housing
Interior Design
Public Realm
Research
Supported Housing
