Portafolio de Arquitectura_Ramirez Leila

Page 1

LEILA RAMIREZ MAMANI

PORTAFOLIO ARQUITECTONICO

LEILA RAMIREZ MAMANI

FORMACIÓN ACADÉMICA

NIVEL PRIMARIA

AMPLIACIÓN DEL MAC

SECUNDARIA

UNIVERSITARIO

CONOCIMIENTOS

INFORMACIÓN PERSONAL

Fecha de nacimiento: 26 -12 - 1999

Lugar de nacimiento: Buenos Aires, Argentina Edad: 22 años

Dirección: Jr. Almeria 202

Distrito: San Luis Teléfono / celular: 938105985

Correo electronico: leilajimenaoutlook.es

IDIOMAS

Descripción, concepto y programa Plantas Cortes Renders

MUSEO DEL MAR PERUANO

Descripción, concepto y programa Plantas Cortes Renders

CENTRO RELIGIOSO MUSULMÁN

Descripción, concepto y programa Plantas Cortes Renders 21

CENTRO COMUNITARIO

Descripción, concepto y programa Plantas Cortes Renders 27

BIBLIOTECA DE SAN ANTONIO

Descripción, concepto y programa Plantas Cortes Renders

CV
Universidad Peruana de Ciencias Aplicadas (UPC)
AutoCAD 3D Max Revit Twinmotion Photoshop Illustrator Premiere Pro Adobe Effects Sketchup
San Miguel Garicoits (ARG) Villa Jardin NIVEL
Saco Oliveros NIVEL
Español - lengua materna Inglés
CONTENIDO 03 09 15

AMPLIACIÓN-MAC

Considerando su alrededor asi como la forma y concepto del MAC de una isla, se creará un nuevo espacio cultural.

6
3

DESCRIPCIÓN DEL PROYECTO

A partir del área que ocupa actualmente el Museo del Arte Contemporáneo (MAC), el único museo de la ciudad de Lima especializado en la difusión del arte moderno y del arte contemporáneO, se tiene como objetivo realizarle una ampliación creando un nuevo espacio cultural de mayor volumen ya que, será el espacio principal de las exhibiciones.

UBICACIÓN

Ubicado en la Av. Almte. Miguel Grau 1511, Barranco y situado en un predio cedido en concesión por la municipalidad de Barranco.

CONCEPTO

Mantener la forma cuadrada pero con forma de “S” remarcando dos espacios principales una, donde se ubicará la circulación principal y en la otra, las grandes exhibiciones proporcionando al publico dobles alturas y dos miradas distintas.

Espacio 30x30, respectando los elementos estrcuturales ya establecidos.

9
PLANTA 2 ESC: 1/100 sala audiovisual oficina sala de reuniòn sala de diseño industrial sala de arte digital NPT +1.50 NPT +3.00 NPT +3.50 oficina NPT +2.00 NPT +3.00 1 1 2 2 PLANTA
ESC:
CORTE
ESC:
sala de instalaciones SALA DE DISEÑO INDUSTRIAL HALL DE INGRESO internet depòsito sala de instalaciones hall de ingreso NPT+0.00 NPT -1.50 NPT -1.50 tienda 1 1 2 2 NTT+6.00 NPT+3.00 NPT±0.00 NTT+6.00 NPT+3.50 NPT-1.50 NPT+1.00 -1.00 -1.50 -2.00 -0.50 ss.hh(h) ss.hh(m) PLANTA
6
1
1/100
1-1
1/100
2 PLANTA 1

PLANTA 1 ESC: 1/100

PLANTA 2 ESC: 1/100

CORTE A

CORTE 1-1 ESC: 1/100

CORTE 2-2 ESC: 1/100

RECORRIDO

El visitante se encontrará con un hall de recepción con doble altura remarcandolo como punto de inicio. Luego, la persona irá por una gran rampa a la exhibición permanente que ocupa casi todo un piso y esta privilegiada tambien de una doble altura y de una gran mampara en uno de sus lados. Por último, continuando con su recorrido hacia el segundo nivel, encontrará las disintitas salas de exhibición que remataran en la sala audivisual.

11 PERSPECTIVAS
INGRESO VISTA DE LA CIRCULACIÓN EXHIBICIÓN PERMANENTE 8
INTERIORES
sala de reuniòn sala de arte digital
sala de instalaciones sala de ARTE DIGITAL HALL DE INGRESO NTT+6.00 NPT+1.50 NPT-1.50 NTT+6.00 NPT+3.00 NPT±0.00 2 CORTES
CORTE B
sala de instalaciones SALA DE DISEÑO INDUSTRIAL HALL DE INGRESO NTT+6.00 NPT+3.00 NPT±0.00 NTT+6.00 NPT+3.50 NPT-1.50 NPT+1.00

MAR PERUANO MUSEO DEL

Reinterpretación de un refugio que formara parte de una gran vista en donde el cielo y la tierra se unen mediante la transición del gran espejo de agua.

12
9

DESCRIPCIÓN DEL PROYECTO

Se plantea un Museo con el objetivo de dar a conocer todas las virtudes e historia del mar peruano asi como convertirlo en un hito importante y con ello revivir este lugar, ya que esta siendo olvidado y dañado. En conclusión, el objetivo es crear un nuevo espacio cultural el cual tendrá como tema principal el mar peruano.

UBICACIÓN

Ubicado en el “Salto del fraile” , distrito de chorrillos, Perú. El terreno se encuentra sobre un peñasco donde actualmente esta situado un restaurante (el cual no se tomará en cuenta para el proyecto).

CONCEPTO

No entrar directamente al Museo sino, visualizar nuestro alrededor antes de entrar. Una vez dentro, empezamos a ser mas concientes de nuestro mar e historia para que luego en el final del trayecto podamos verlo de otra manera.

Con una forma alargada y en punta señalando al mar, el cual es nuestro tema principal.

15
SOTANO 1
12
PRIMER NIVEL

CORTES

PERSPECTIVAS INTERIORES

CORTE A

CORTE B

RECORRIDO

El Museo tendrá dos entradas las cuales, ambas ingresarán a una pasarela con vista al mar, tema del Museo, antes de adentrarse por completo a este. Ya adentrandonos, encontraremos la cafetería ubicada en la punta del museo con una vista privilegiada al mar peruano asi como, al auditorio y al sum en su lateral y en el último nivel tendremos las dos exhibiciones (temporal y permanente) debido a que, se busca que el visitante reflexione sobre el mas peruano y tome conciencia del estado de este.

17
PERSPECTIVA
REMATE 14
INGRESO
1

MUSULMAN RELIGIOSO CENTRO

La religión musulmana se encuentra tambien en el Perú sin embargo, no hay muchos de sus centros religiosos o estos no se llegan a expresarse como tal.

18
15
SAN MIGUEL, LIMA, PERÚ

DESCRIPCIÓN DEL PROYECTO

Se plantea un centro religioso musulman con la capacidad de albergar a 500 personas teniendo en cuenta principalmente que la sala de oración de hombres y mujeres se encuentren en distintos niveles y a su vez la dirección de estas, sea hacia la Meca. Un reto más de este proyecto es la forma del terreno en donde se desarrollará.

UBICACIÓN

Ubicado en el distrito de Chorrillos al limite con el distrito de Lince. El terreno se encuentra en pendiente y entre una edificación de 3 pisos y un condominio de 20 pisos de altura.

CONCEPTO

El elemento mas significativo del proyecto sera la parte de las salas de oración por lo que, se le dio un acabo exterior parecido a la Kaaba añadiendole a su vez la piedra sagrada negra, todo este elemento se encuentra en la esquina lo mas cercano y girado a la dirección de la Kaaba dandole al proyecto una sensación de movimiento.

Cuenta con dos minaretes en sus ex tremos proporcionandole mas verti calidad a la edificación.

21
18

CORTES

PERSPECTIVAS INTERIORES

CORTE A

CORTE B

RECORRIDO

Cuenta con un ingreso remarcado en doble altura del cual se llega a las salas de exposión, cafetería y un modulo vertical de ascensores y escalera de emergencia. En el segundo nivel se encontrará la sala de oración de hombres con sus respectivos espacios previos y la biblioteca y talleres. Posteriormente, en el tercer nivel estará la sala de oración de mujeres y el salon de juego y gimnasio del mismo género. En los pisos superiores se encontrara el paquete administrativo y residencial de las 4 esposas del musulman.

23
HALL DE INGRESO SALA DE ORACIÓN
20
GIMNASIO

COMUNITARIO CENTRO

Teniendo en cuenta un analisis urbano previo, se logra visualizar que hay zonas en el distrito que no cuentan con establecimientos importantes a su alcance.

24
21

DESCRIPCIÓN DEL PROYECTO

Con el análisis urbano en primer lugar, se visualizo que la mayor concentración de equipamientos (comercio, salud y educación) se daba en la parte central del distrito sin embargo, al realizar el foda y un analisis más a fondo para la elección de la tipología a realizar, se vio la ausencia principalmente del sector salud en el distrito en la parte suroeste y la de educación especificamente de guarderias y nidos en constraste con la población.

UBICACIÓN

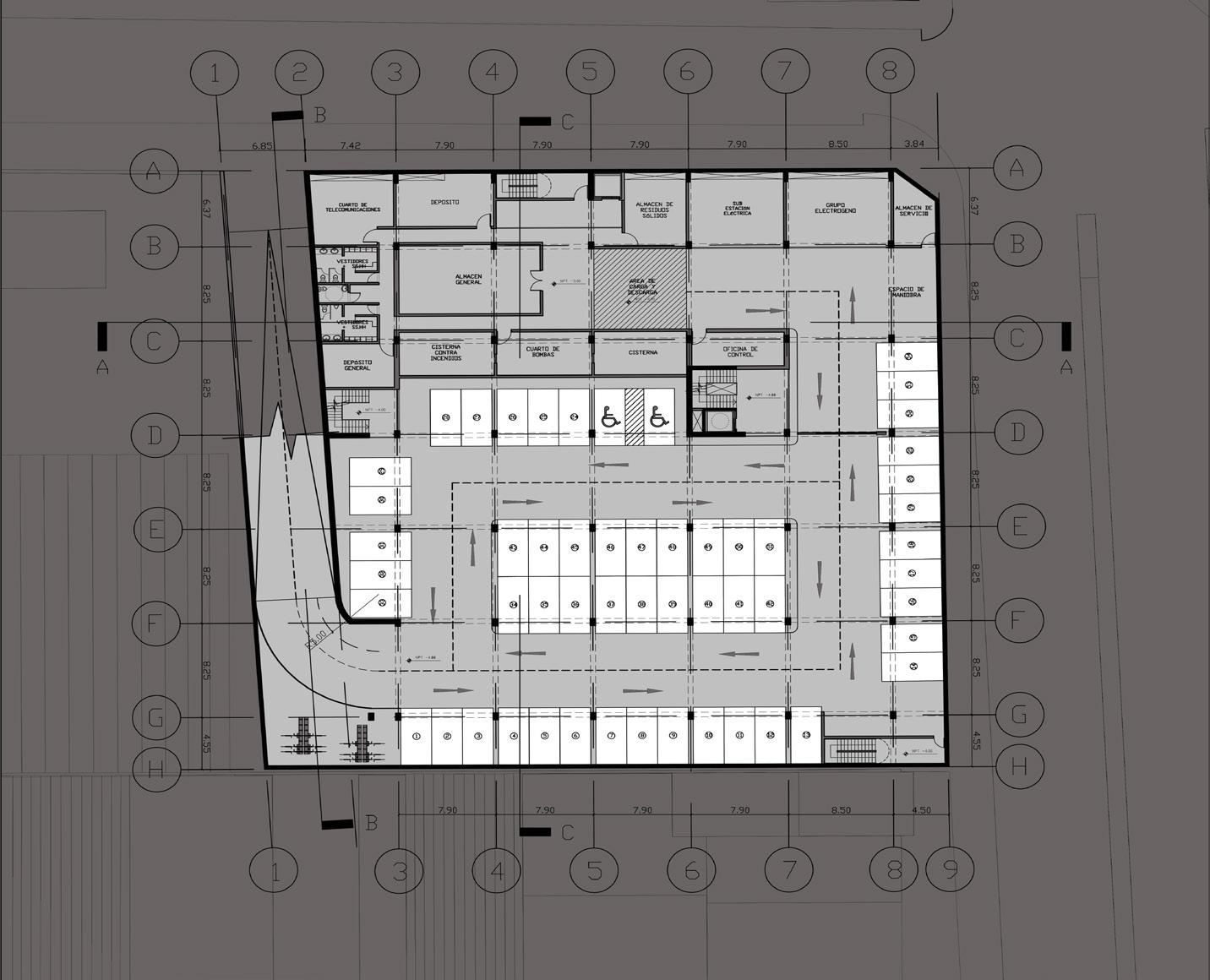
Ubicado en el distrito de Chorrillos en la intersección de las avenidas los horizontes y huaylas . El terreno se encuentra con una leve pendiente de 1% y cuenta con un área aproximada de 2550m2.

CONCEPTO

Se busca integrar los diferentes paquetes a partir de 4 nodos que serán los de mayor afluencia de personas mediante áreas verdes interiores invitandolos a recorrer la edificación por el patio principal, proporcionandoles a partir de estos, ejes vi suales dinámicos y una mayor espacialidad entre los ambien tes.

LEYENDA Salud Educación Área común Cultural

LEYENDA Salud Educación Área común Cultural

Serv. Generales Serv. Generales

Modulación estructural de la edificación de 1 sótano y 3 niveles.

27
www.autodesk.com/revit Scale Checked by Drawn Date Project number Consultant Phone FaxAddress PhoneAddress Address -mail Address PhoneAddress Address -mail Sin nombre Project Name Owner A101 No.DescriptionDate 24
PRIMER
SÓTANO
NIVEL SEGUNDO NIVEL

CORTES

PERSPECTIVAS INTERIORES

CORTE A

RECORRIDO

Cuenta con dos ingresos siendo el principal paralelo a la gran avenida los horizontes y de cual uno se puede distribuir a los diferentes programas de la edificación. En la esquina interior se encuentra el sector educativo (guardería y jardín) con un patio central que permite la iluminación y ventilación natural a las diferentes aulas. En este lado del ingreso principal se encuentra el área comun (comedor comunitario, SUM) y el área cultural en el segundo y tercer nivel (talleres, sala de exposición, biblioteca, sala de lectura) y por último, en la avenida perpendicular a la principal, se encuentra el sector salud (consultorios, tópico, farmacia, entre otros ambientes).

29
COMEDOR COMUNITARIO HALL DE SALUD
26
PATIO DEL SECTOR EDUCATIVO

SAN ANTONIO BIBLIOTECA DE

A modo de rejuvenecer y crear un nuevo hito de encuentro dentro de la zona, se plantea la elaboración de una biblioteca pública.

30
27
SAN ANTONIO, TEXAS, ESTADOS UNIDOS

DESCRIPCIÓN DEL PROYECTO

La biblioteca deberá emplazarse dentro del terreno trapezoidal considerando las normas del reglamento del país y de la zona con respecto a los retiros, áreas verdes, accesibilidad, seguridad y también, de que la biblioteca tenga un aproximado de 2 500m2 construidos los cuales se terminan distribuyendo, en tres pisos.

UBICACIÓN

PRIMER NIVEL

Ubicado en la ciudad de San Antonio, al sur de Texas y al lado del río Apache Creek. El terreno se encuentra con una leve pendiente de 1% y cuenta con un área aproximada de 8375m2/90148ft2.

CONCEPTO

La forma de la edificación surge a partir de un volumen puro rectangular el cual termina partiendose en dos para que uno de sus lados, el que da en dirección al rió, se encuentre paralelo a este último y aproveche toda esa gran vista natural. Es por ello, que tambien este último volumen cuenta con una mayor altura

Planteamiento de un sistema estructural de acero en conjunto con las estrategias climáticas mediante los dos cerramientos.

SEGUNDO NIVEL TERCER NIVEL

LEYENDA

Área común Cultural

LEYENDA

Área común Cultural

Serv. Generales Serv. Generales

33
33

CORTES

PERSPECTIVAS INTERIORES

CORTE A

RECORRIDO

Cuenta con tres ingresos uno de servicio aledaño al estacionamiento y los otros dos, para el público en general ubicandose ambos en el centro e intersección de ambos volúmenes rectangulares y siendo el principal, distinguido por su hall de triple altura. Los ambientes con mayor ingreso de los ciudadanos se ubican en el volúmen más alto tales como el SUM, galería y la sala de proyección multimedia en el primer nivel, el segundo nivel esta destinado para los niñós y en el volumen del oeste, para la parte administrativa y en el último nivel, se ubica el espacio de adultos y jóvenes con los ambientes tales como salas de estudio, computadoras y de descanso con terrazas en ambos lados. Cabe resaltar, que el proyecto cuenta con dos escaleras de emergencia de acuerdo a reglamento.

35
HALL PRINCIPAL ESPACIO PARA NIÑOS
32
ESPACIO PARA JÓVENES Y ADULTOS
CONTACTO Celular: 938105985 Correo:leilajimena@outlook.es Gmail: leilajimenar2612@gamil.com

Turn static files into dynamic content formats.

Create a flipbook
Issuu converts static files into: digital portfolios, online yearbooks, online catalogs, digital photo albums and more. Sign up and create your flipbook.