
1 minute read
LÁMINA 7
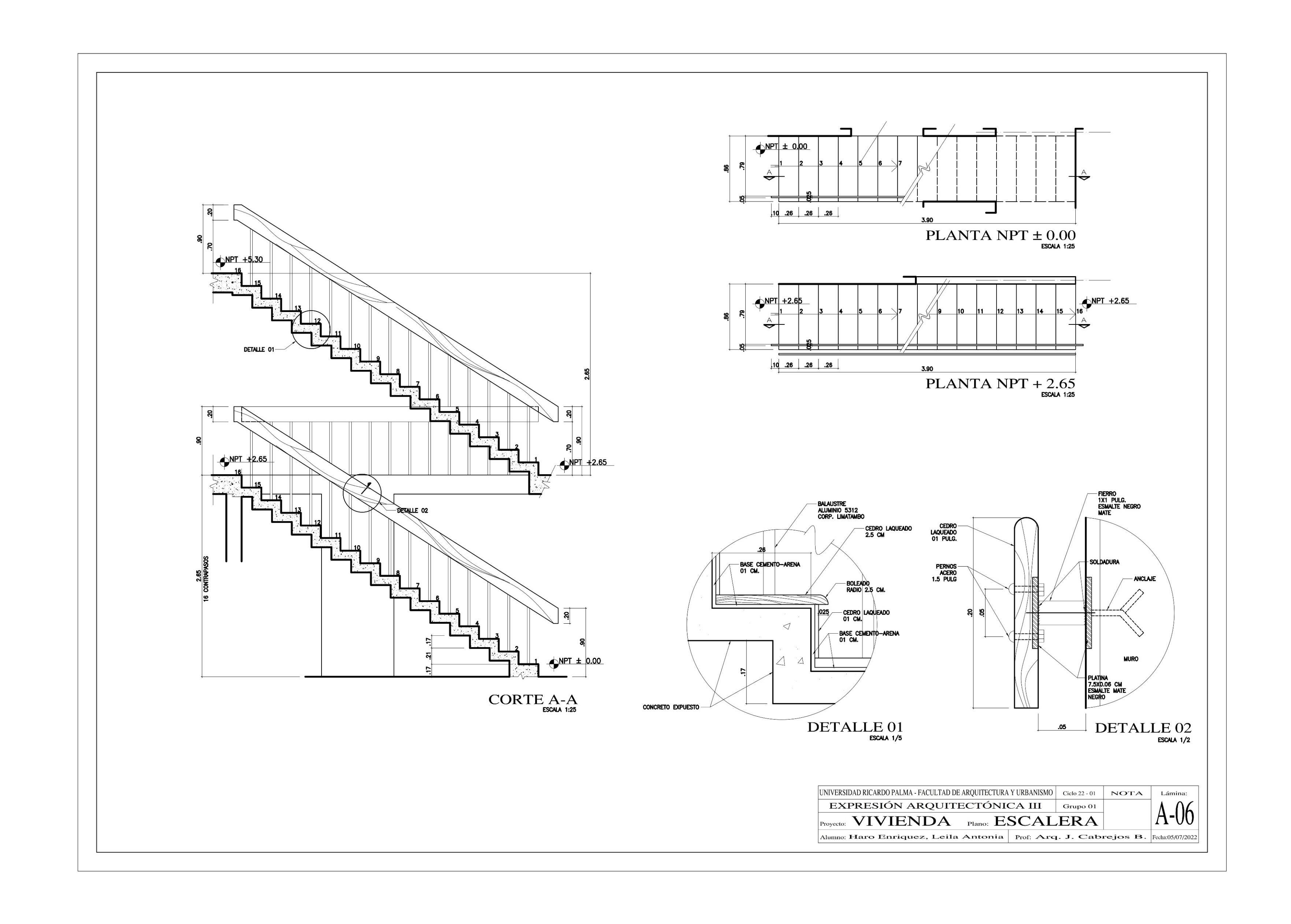
Incluir imágenes y textos complementarios de modo libre (cantidad y tamaño), según el tipo de producto de cada asignación o tarea.
Las imágenes pueden ser controles de lectura resueltos, esquemas, mapas, planos, fotos, renders, de acuerdo a las características de la asignatura.
Advertisement
ASIGNACIONES Y TAREAS DE APRENDIZAJE
EJERCICIO n-1 Incluir texto del ejercicio, tarea o asignación establecida por el docente
CONSIDERACIONES FINALES

Al terminar esta asignatura considero que aprendí a utilizar de manera correcta y eficiente el programa de AutoCAD para mis proyectos arquitectónicos. Cada lamina realizada me enseño diferentes cosas acerca del dibujo arquitectónico digital, ya que empezamos desde lo mas básico hasta lo mas complejo en cuanto a un proyecto arquitectico se refiere. El arquitecto enseño de manera clara los conceptos y herramientas que hay en AutoCAD, a pesar de estar en clases virtuales. Así que considero que aprendí mucho en este ciclo a cerca de dibujo arquitectónico digital.






