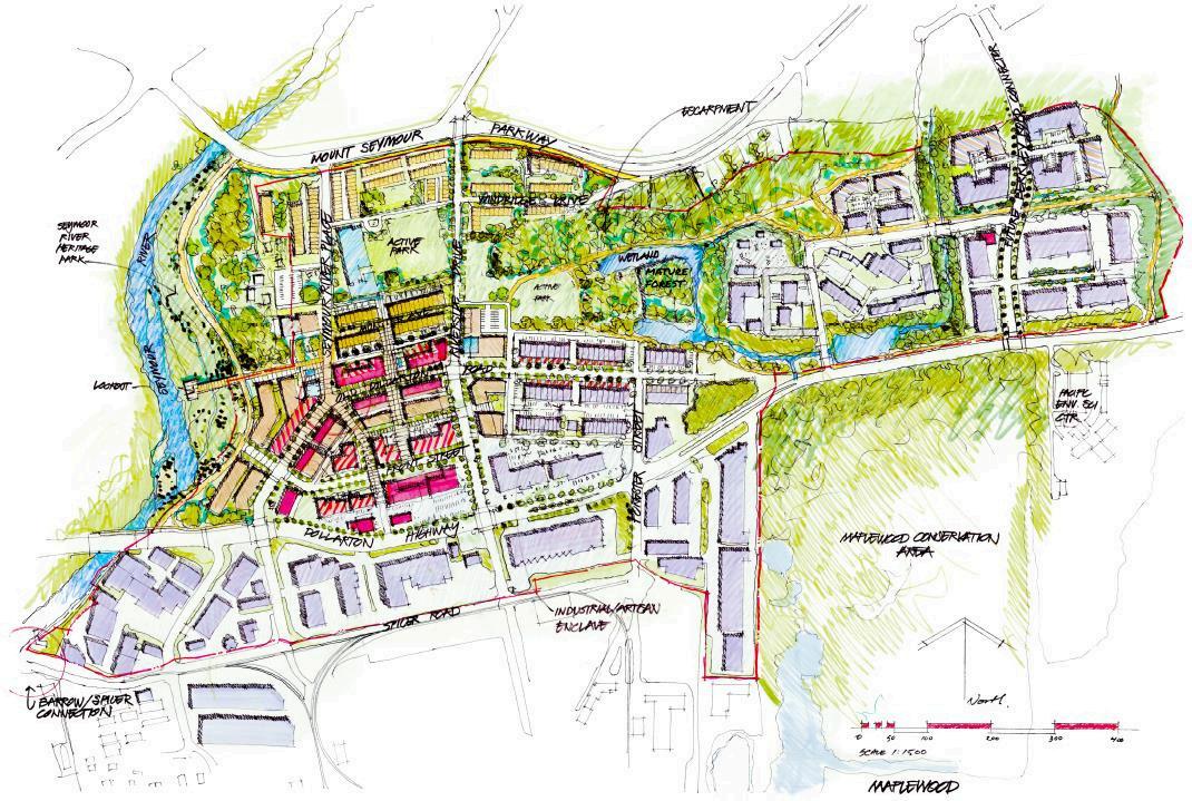
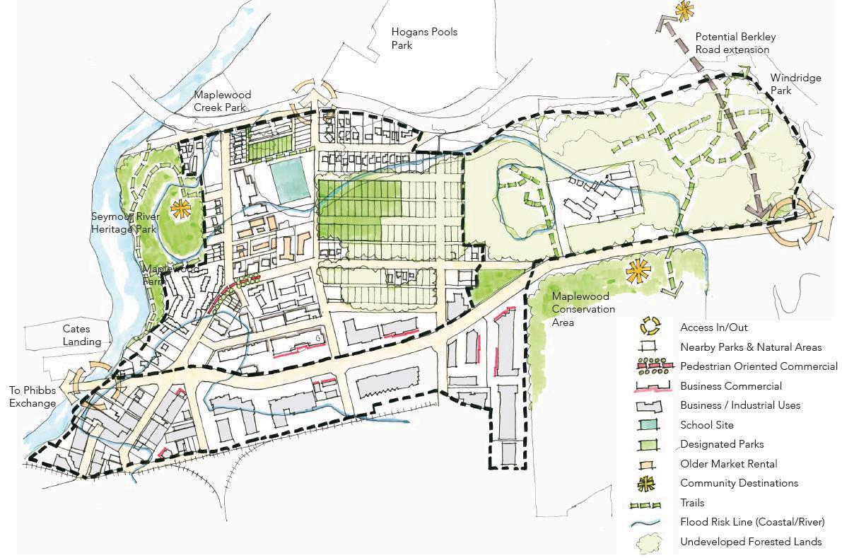
This case study, part of the Housing Design course, explores the innovative urban planning and architectural strategies implemented in Maplewood Village. The project emphasizes sustainability, affordability, and community-centered design, integrating mixed-use spaces, green infrastructure, and pedestrian-friendly environments. Through an in-depth analysis, this study highlights how Maplewood Village serves as a model for livable and environmentally conscious housing developments.