Skip to main content

Architecture Portfolio 2025

Page 1


LAYA CYBUL

BACHELOR OF ARCHITECTURE

EDUCATION

Pratt Institute School of Architecture

2018 - 2023 (5 Years) Brooklyn,NY

Bachelor of Architecture (Honors)

_Pratt Institute (SoA) Rome

2022 (Ene - May) Rome, Italy

_Study abroad, Advanced Honors Program

EXPERIENCE

Architectural Designer II

+57-318-484-3336

layacybul07@gmail.com

Panama City, Panama

(2023 - 2025) Magnusson Architecture and Planning (MAP) - New York, NY

• Produced sets of schematic drawings for an adaptive reuse project and new construction.

• Assisted in the production of construction documents using Revit, BIM 360, and Bluebeam..

• Designed a residential project consisting of four independent buildings using AutoCAD and Revit.

• Rendered interiors and exteriors for more than 5 projects using Enscape and Photoshop.

• Participated in the interior design of residential projects.

Dregree Project Honorary Mention

_Attendance to DP Awards Review

President’s list

Semesters 1 - 2 - 3 - 4 - 5 - 8 - 9 - 10

_Pratt Institute SoA_GPA: 3.7

Archived Project _Selected studio project

Semesters 1 - 2 - 3 - 4 - 5 - 8 - 9 - 10

SKILLS

_Rhino _AutoCad

_Revit

_Enscape

_Sketchup

_Indesign _Photoshop

_Illustrator

_Bluebeam _Grasshopper

HABILITIES

_Interpretacion de planos planos

_Diseño 2D / 3D

_Renderización

_Rápido Aprendizaje _Creativity

AWARDS LANGUAGES

Spanish ( Native)

English ( Advanced)

Italian ( Basic)

_Good Communication Time Management

PARTICIPATION

_Volunteer Planning Team

- MAP 2024

_LAAB - Latin American Architecture Lab

- (2019 - 2023)

Independent Work

(2023 - Present) Vacation Rental Design - San Andres Island, COL

• Participation in design meetings with engineers and the client.

• Design of detailed plans that ensure optimal space utilization.

(2023 - 2024) Kitchen Renovation - San Andres Island, COL

• Development of conceptual drawings for the kitchen expansion.

• Production of a 3D model and rendering of the new design.

Architectural Internship

Magnusson Architecture and Planning (MAP) - New York, NY

Summer 2022 (14 Weeks)

• Development of sustainability and system operation diagrams for over 5 company projects.

• Production of documents and diagrams for architectural proposal submissions using Illustrator and SketchUp.

• Research and development of innovative concepts for architecture competitions.

Summer 2021 (14 Weeks)

• Assistance in site visits to inspect progress and contractor compliance with the contract.

• Development of site analyses and conceptual schematics for projects in the pre-design stage.

• Participation in meetings with clients and architects to assess design goals and objectives for future projects.

Architecture and Design Studio Mentor

Pratt Institute Pre-College Program - Brooklyn, NY

Summer 2019 (8 Weeks)

• Offer guidance to students to improve their understanding of architectural principles and concepts.

• Create teaching strategies and develop the program curriculum in collaboration with instructors.

1

2

“Vizualizing Interiors”

3

4

“Architectural

Compositions”

Professional Architectural Drawings

“Multi Species Architecture”

ARCH 500 / Thesis Fall 2022 - Spring 2023

“A World of its Own”

Arch 302 / Comprehensive Design

Interior Renderings 2023 - 2024 Spring 2021 2024

6

“Micro

Housing: An Interactive Community”

Arch 301 / Comprehensive Design

Fall 2020

Spring 2022 5

“Medicinal Botanical Garden”

Arch 403 / Advanced Design

Fall 2020

7 8

“Delirium Rome”

Arch 402 / Advanced Design

Spring 2022 / Study Abroad Rome

“Rome”

Drawing / Sketching

“ Visualizing Interios”

Independent Work + Magnusson Architecture and Planning

2023 - 2024

Rendering is essential for visualizing our designs, conveying ideas, and capturing the client’s vision. In the kitchen renovation and expansion project (independent work), the client envisioned a space defined by earth tones and a sophisticated blend of textures. Through detailed renders, we brought this vision to life before construction began, creating a kitchen that enhanced functionality with practical gadgets and nooks while transforming it into a stylish social hub within the home.

Similarly, for the Webster Avenue project (MAP) in the Bronx, designed for senior citizens, we utilized bold, vibrant colors and simplified materials to achieve the client’s goals of cost efficiency and impactful aesthetics.

A. Kitchen Expansion and Redesign - View from Living Room
B.Kitchen Expansion and Redesign - View from Entry
C.Kitchen Expansion and Redesign - View towards Pantry
A. Webster Ave Multipurpose Room
B. Webster Ave Laundry Room
C. Webster Aver Lobby

“ Architectural Compositions ”

Magnusson Architecture and Planning

2023 - Present

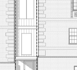
In the early stages of my career, I’ve had the opportunity to work on a diverse range of projects. This portfolio features a selection of architectural drawings from my time at Magnusson Architecture and Planning. A highlight, is the YWCA Schenectady project, a shelter for women survivors of domestic violence in upstate New York. This experience allowed me to refine my Revit skills while creating detailed drawings that preserved the historical character of the existing building.

A-202 00 1

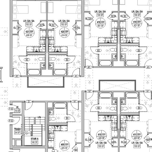
Additionally, I worked on the Belmont Apartments in the Bronx, where I designed four individual buildings for homeownership. In alignment with the New York Housing Preservation Department (HPD) design guidelines and client preferences, I developed a series of drawings that emphasize the qualities and functionality of the spaces created.

B. Belmont Apartments Site D Typical Floor Plan

“Multi Species Architecture”

Degree Project

Design Partner: Louise Anteby

Professor Gonzalo Carbajo

Professor Eva Perez de Vega

Here’s a revised version of your paragraph:

The gravity of climate change and its far-reaching consequences have become increasingly evident, particularly in their impact on oceanic ecosystems. Approximately 25% of all marine life relies on coral reefs, making them especially vulnerable to climate change. Human activity has pushed the world’s coral reefs to the brink of extinction, with projections indicating that without urgent action, 90% of all corals could perish by 2050. The loss of corals and the species that depend on them significantly affects marine ecosystems and the livelihoods of coastal communities. Beyond providing critical habitat for numerous species, corals act as natural barriers, preventing erosion and storm surges, thereby safeguarding both humans and wildlife on land.

By understanding the life cycle of corals and the formation of coral reefs, we believe architectural interventions can help improve the living conditions of communities directly affected by coral loss. We propose a modular additive system designed to facilitate reef restoration, integrating architectural programs such as underwater farming, emergency shelters, and trading markets for local production.

B. Underwater Farming Section
A. Fishermen Point of View
B. Turtle’s Point of View
C. People on Market Point of View

“ A World Of Its Own”

62nd Beach street Far Rockaway - Community Center / Emergency Shelter

Partner: Louise Anteby

Professor Greg Merrywether

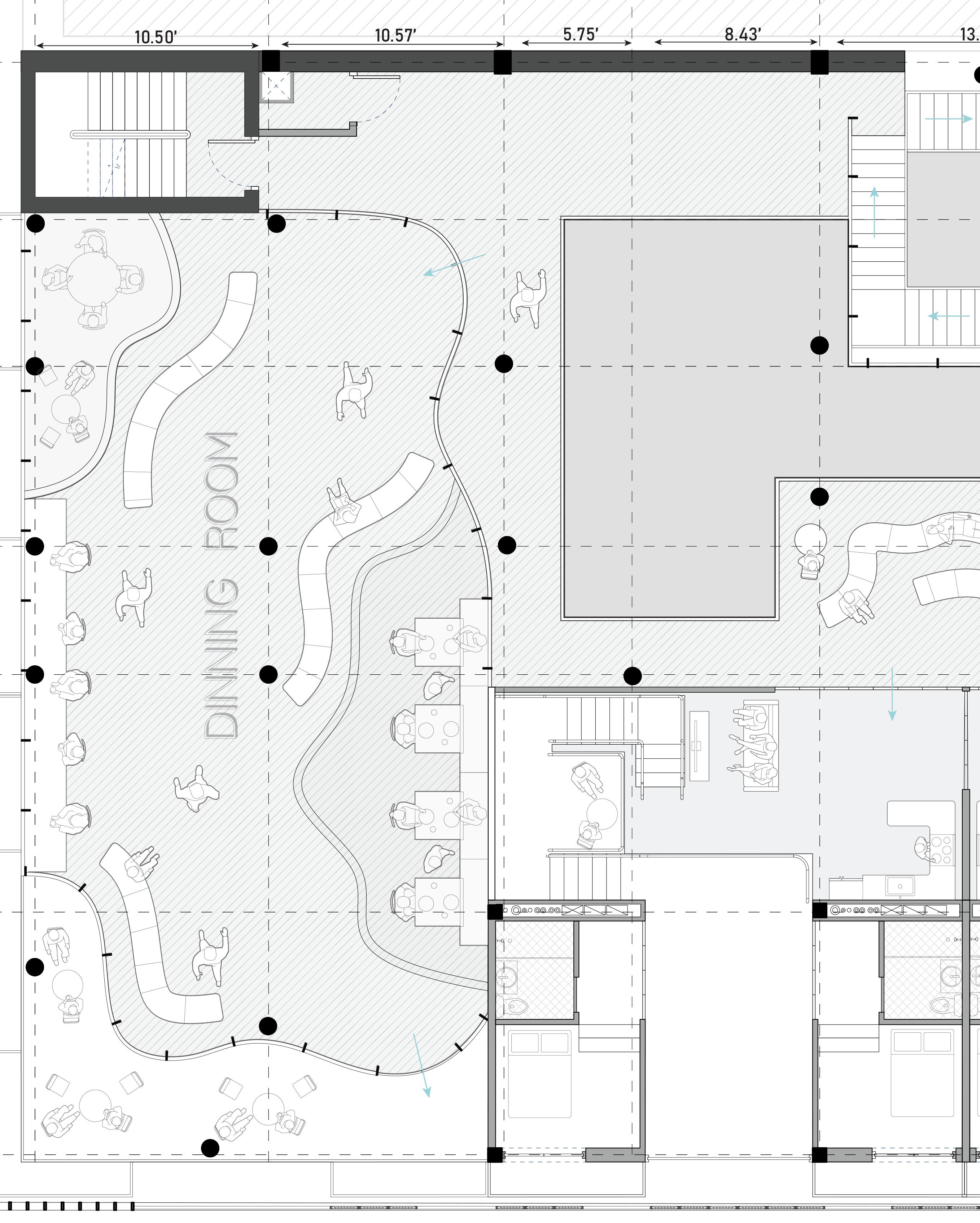
Located in Far Rockaway, this community center-turned-emergency shelter emphasizes the integration of agriculture and resilience, fostering community engagement. The core focus of this project is farming, serving as a catalyst to encourage occupants to actively participate in improving their neighborhood. Farming begins on the ground floor and extends vertically through two towers, which facilitate circulation while creating an artificial environment for growing plants and vegetables. The agricultural theme continues on the third floor, maintaining the same principles of circulation and occupant experience.

Circulation flows from the street into the building, seamlessly wrapping around internal programs and gardening spaces. Pathways from the street intersect with public gathering areas that surround an outdoor market, enhancing community interaction.

The first floor is designed as a sacrificial space, acknowledging the site’s floodplain. The landscape is tailored to align with the area’s flooding patterns, while the building is elevated slightly above street level. In times of emergency, the structure transitions into a shelter; metal panels on the second floor can be shifted to the third floor to fully enclose the outdoor areas, providing safety and security.

B.Circulation Diagram

Concept Section Diagram

“ Micro Housing - An Interactive Community ”

47 Bridge St Co-Housing Project

Design Partner: Katie Kwok

Professor Salvatore Tranchina

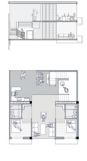
Located in Brooklyn’s Vinegar Hill, this co-housing project is designed specifically for individuals in the culinary industry. The goal is to foster connections among residents by merging and intertwining spaces and circulation while respecting individual privacy. Each “cell,” or bedroom, offers the option to connect to adjacent workspaces or living areas through folding walls. This flexibility encourages collaboration and reinforces the idea that food brings people together, allowing kitchen spaces to blend with neighbors.

To ensure each unit receives ample sunlight and to facilitate communal programs, the clusters are arranged in an offset pattern. This design strategy not only enhances circulation and light distribution but also creates two atriums. The staggered layout allows light to reach lower areas that would otherwise be shaded by neighboring buildings.

We envision the journey as part of the destination. The staircase begins on the ground floor, spiraling around to the outdoor atrium, ascending outdoor stairs, then re-entering the building to continue its intertwining path. This design transforms the atrium into an engaging thoroughfare, filled with activities and scenic views.

B. Circulation Cores
C. Structural Systems

UNIT TYPE B

Indoor Atrium + Communal Areas
Indoor Open Kitchens
South Elevation
North Elevation

“ Medicinal Botanical Garden”

Planet Mars, NASA Gardens

Design Partner: Mariana Bravo Rivera Professor Michael Morris

Located on Mars’ Deuteronilus Mensae, a maze of canyons and valleys where traces of buried glacier ice have been detected, the “Medicinal Botanical Gardens” project proposes a preventive and curative facility for radiation exposure illnesses resulting from the high radiation levels in the Martian atmosphere. In alignment with NASA’s “ARTEMIS: Moon to Mars” expedition, we envision this project taking shape in the year 2080.

At the core of this initiative is the question: how can the development of a medicinal botanical garden enhance human performance on Mars? Our response involves creating three simulated environments that represent different ecosystems beneficial for the mental and physical health of the scientists on site, providing both preventive and curative treatments for radiation-related ailments, as well as immersive isolation experiences. Each ecosystem features an integrated medicinal wing tailored to address specific stages of radiation exposure illnesses: preventive, curative, and, in worst-case scenarios, a hospice-like isolated environment. This design aims to foster a sense of belonging in the harsh landscape of a foreign planet.

Unfolded Section

“ Delirium Rome”

Foro Boario, Rome, Italy

Design Partner: Mariana Bravo Rivera Professor Beth O’neill

Located on the Foro Boario in Rome, Italy, “Delirium Rome” introduces an additional historical layer that prioritizes pedestrian movement through a visually immersive experience. By establishing a new ground and city edge, the project merges the primary layers of Rome—History, Manufacturing, and Tourism—into a cohesive space, connecting all elements of the forum through the introduction of new boundaries.

Starting from the edge of the Tiber River and extending towards the Circus Maximus and the Arch of Janus, the proposal features an elevated platform with multiple access points, facilitating continuous circulation over the highly congested site. The targeted users are categorized into three groups based on varying levels of privacy: Tourists, Locals, and Pilgrims.

Market areas are distributed throughout the platform, representing Italy’s diverse manufacturing industries and fostering interaction among the different user groups. The bathhouse along the Tiber redefines the river’s edge, reviving the historical essence of ancient bathhouses. Centrally located next to Santa Maria in Cosmedin, the Caravanserai is intersected by a race track that spans most of the platform. This race track serves as a unifying element, creating new forms of interaction among occupants and enhancing the experience of the intricate layers that make up Rome.

Foro Boarium + Track + Walkway
Market + Track + Caravanserai

Turn static files into dynamic content formats.

Create a flipbook