PORTFOLIO_ENG

Page 1


PORTFOLIO | TOMASZ PADŁO

STUDIES

WINDMILL

THE MAIN GOAL OF THE PROJECT IS TO ADAPT OLD, ABANDONED WINDMILLS IN POLAND. WINDMILLS ARE AN INTEGRAL PART OF THE REGIONAL LANDSCAPE, AND THEY ARE NOT PROTECTED. IN THE PAST, WINDMILLS WERE THE CENTRAL CORE OF THE LOCAL ECONOMY. CURRENTLY, THERE ARE AROUND 150 WINDMILLS IN THE REGION. THE CREATION OF SINGLE-FAMILY HOMES WITHIN THE WINDMILL STRUCTURES HAS GREAT POTENTIAL.

COMPETITION

MODERN VILLAGE HOUSE 2014

INTERNATIONAL STUDENT COMPETITION

II. PRIZE - FACULTY STAGE

DISTINCTION - NATIONAL STAGE

PYZDRY, PL

DR INŻ. ARCH. MAGDALENA ŻMUDZINSKA - NOWAK

MASTER STUDIE | 1. YEAR

2013 | 2014

MICHAŁ KUCHARSKI, TOMASZ PADŁO

CONCEPT, DRAFTS, 3D MODEL

350 M2

ARCHICAD, AUTOCAD, PHOTOSHOP

1. EXISITNG CONSTRUCTION
2. NEW CONSTRUCTION ADDICTION OF SLAB UND COLUMNS
3. ESCARPMENT
REFERENCE TO THE CONSTRUCTION OF THE WINDMILL ON HILLS
4. ENTRANCE TO THE BUILDING
ELEVATION EAST 1:100
ELEVATION NORTH 1:100
MODEL
MODEL
FOTO | REALISATION OF THE PROJECT IN LUBARTOW, PL
FOTO REALISATION OF THE PROJECT IN LUBARTOW, PL
FOTO | REALISATION OF THE PROJECT IN LUBARTOW, PL
FOTO REALISATION OF THE PROJECT IN LUBARTOW, PL

MASTER

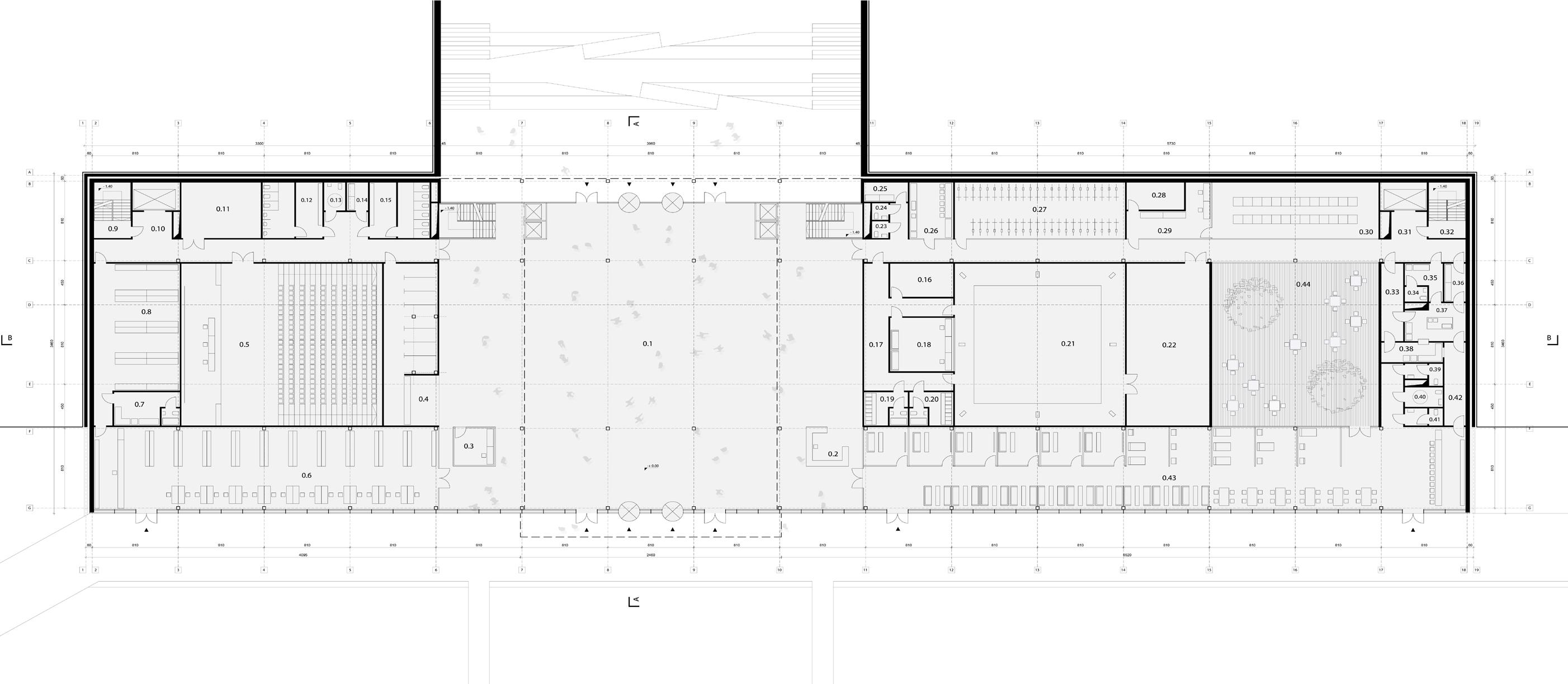
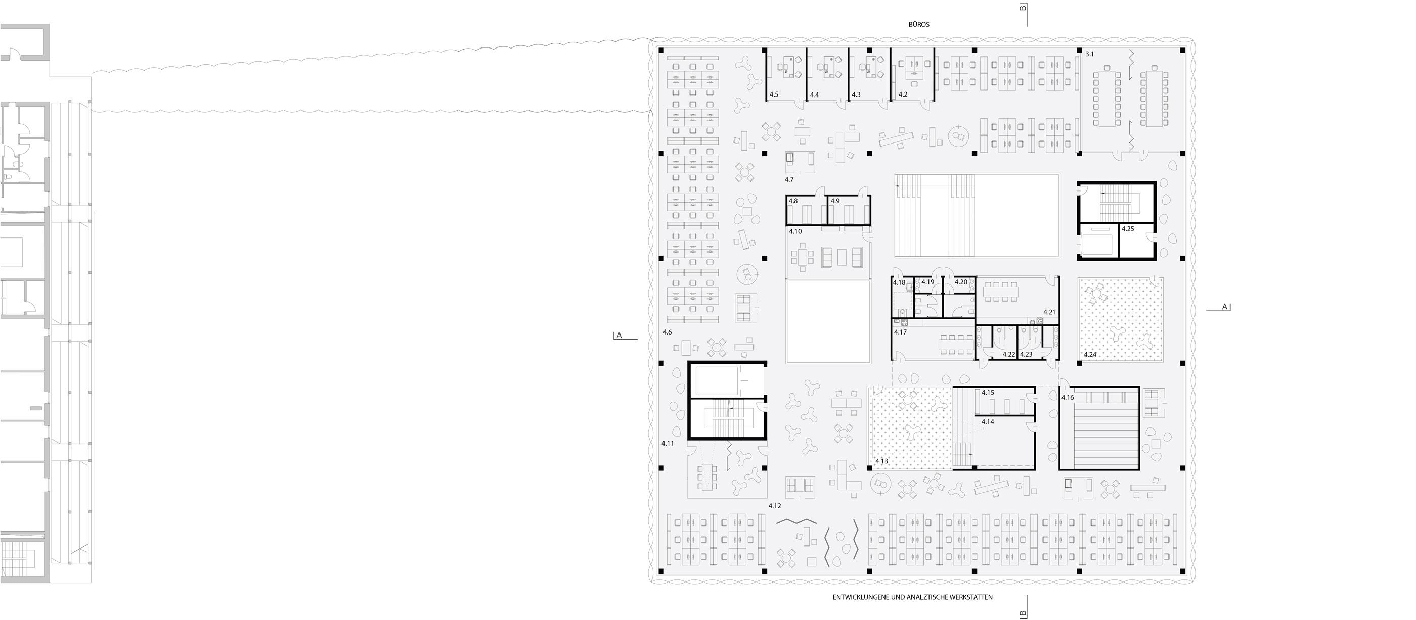
COMPUTER GAMES – A CONTEMPORARY FORM OF INTERACTIVE ENTERTAINMENT. THE COMPUTER GAME INDUSTRY IS ONE OF THE FASTEST-DEVELOPING SECTORS OF EVERYDAY LIFE. THIS PROJECT IS A RESPONSE TO THE RISING PHENOMENON OF THE SIGNIFICANCE OF COMPUTER GAMES IN THE MODERN WORLD. THE PROGRAM OF FUNCTIONS IS BASED ON AREAS SUCH AS: ECONOMY, TECHNOLOGY, CULTURE, AND SOCIOLOGY. THE LOCATION IS A POST-INDUSTRIAL SITE OF THE STEELWORKS IN ZABRZE. THE BUILDING IS SITUATED WHERE LARGE BLAST FURNACES ONCE STOOD. THE DESIGNED SPACE IS INTENDED TO BECOME A NEW PUBLIC AREA IN THE CITY CENTER OF ZABRZE. THE SEQUENCE OF FUNCTIONS IS CLEARLY DIVIDED INTO FOUR MAIN ZONES. THE GLASS FAÇADE REFLECTS THE HISTORIC STEELWORKS BUILDING.

SUBJECT

TOPIC

MASTER

VIDEO GAMES CENTER – THE CENTER FOR EDUCATION, CREATION, AND PROMOTION OF COMPUTER GAMES

ZABRZE, PL

PROF. DR HAB. INŻ. ARCH. JAN RABIEJ

DR HAB. INŻ. ARCH. TOMASZ WAGNER

MASTER STUDIES | 2. YEAR

2014 | 2016

14 350 M2

AUTOCAD, SKETCHUP

1 - VIDEO GAMES CENTRE, 2- HISTORICAL RETEINING WALL, 3 - ENTRANCE HALL, 4 - MULTIFUNCTIONAL
, 5 - STEELWORKS, 6 - PARK, 7 - ,
- KINDERGARTEN, 9 - THEATER, CONCERT HALL, UNIVERSITY, 10 - SHOPING MALL

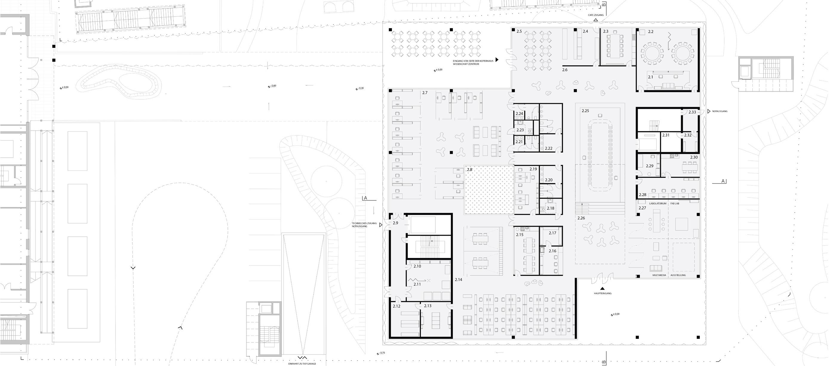
COPERNICUS

THE COPERNICUS SCIENCE CENTRE IS A BUILDING COMPLEX IN WARSAW. CREATIVITY, FLEXIBILITY, INTERDISCIPLINARITY, AND ENERGY EFFICIENCY ARE CONCEPTS REFLECTED IN THE SHAPE AND FORM OF THE NEW BUILDING. THE THREE-DIMENSIONAL STRUCTURE OF THE EXTERIOR FAÇADE GIVES THE NEW CONSTRUCTION A LIGHT AND INNOVATIVE CHARACTER. THE SPATIAL STRUCTURE OF THE BUILDING IS BASED ON AN INTERPLAY OF FIXED FUNCTIONAL MODULES FOR STAIRCASES AND ROOMS, AS WELL AS A FLEXIBLE AREA FOR LABORATORIES AND OFFICE SPACES.

COMPETITION

TEACHING SCIENCE CENTER – WORKSHOP OF THE COPERNICAN REVOLUTION

I. PRIZE

WARSAW, PL

2017 - 2018

HEINLE WISCHER

EDZARD SCHULTZ, ANNA STRYSZEWSKA-SLONSKA, TOMASZ PADLO, JOANNA PITTNER, PATRYK SLUSARSKI, KATARZYNA WOSZCZYNA, MALGORZATA OLESKOWSKA

FACADES

2020 - 2022

6150 M2

AUTOCAD, REVIT

2.
FOTO ©HEINLEWISCHER
BIM MODEL ©HEINLEWISCHER
FOTO ©HEINLEWISCHER
FOTO ©HEINLEWISCHER
FOTO ©HEINLEWISCHER
FOTO ©HEINLEWISCHER
FOTO ©HEINLEWISCHER
FOTO ©HEINLEWISCHER

COGITEON

THE COGITEON SCIENCE CENTER WILL BE ONE OF THE ARCHITECTURAL SYMBOLS OF THE CITY. THE ARCHITECTURE OF THE CENTER REFERENCES THE AIR FORCE MUSEUM, AIRCRAFT PARK, AND RUNWAY. THE SEQUENCE OF FUNCTIONS IS CLEARLY DIVIDED INTO FOUR MAIN ZONES. THE BUILDING WAS EMBEDDED INTO THE NATURAL TERRAIN, SUNKEN INTO THE GROUND. IT FEATURES A GREEN ROOF THAT SERVES AS A PUBLIC SPACE.

COMPETION

PHASES

SCIENCE CENTER LESSER POLAND 1. PRICE

CONCEPT, SUBMISSION, EXECUTION

KRAKOW, PL

2017 - 2019

HEINLE WISCHER

EDZARD SCHULTZ, THOMAS HEINLE, ANNA STRYSZEWSKA-SŁONSKA, WOJECIECH CHOLUJ, MALGORZATA BIERNACKA, TOMASZ PADLO, JOANNA PITTNER, MALGORZATA OLESKOWSKA, LUKASZ ORLOWSKI, DOMINIKA NIEWCZAS, BARBARA TROJANOWSKA, KATARZYNA WOSZCZYNA

FACADES

2020 - 2022

25300 M2

AUTOCAD, REVIT

2. DIVISION INTO ZONES
- PARK, 2 BUILDING, 3 - PARKING
3. GREEN ROOF
TO THE HISTORICAL RUNWAY
BIM MODEL ©HEINLEWISCHER
FOTO ©HEINLEWISCHER
FOTO ©HEINLEWISCHER
FOTO ©HEINLEWISCHER
BIM MODEL ©HEINLEWISCHER
FOTO ©HEINLEWISCHER
FOTO ©HEINLEWISCHER

DIAKONIE

AS PART OF A PROCESS OPTIMIZATION, THE STRUCTURE FOUNDED IN 1894 AND LATER ADDITIONS WERE SUPPLEMENTED WITH EAST AND WEST EXTENSIONS, CREATING BOTH A SPATIAL AND FUNCTIONAL CLOSED LOOP. FOR ENERGY-EFFICIENCY AND AESTHETIC REASONS, IT IS ESSENTIAL TO MOVE AWAY FROM THE PRACTICE OF PIECEMEAL ADDITIONS AND INSTEAD CONCEIVE THE BUILDING AS A COHESIVE UNIT. THE RESULTING INTERIOR COURTYARDS PROVIDE BOTH LIGHT-FILLED THERAPY AND TREATMENT SPACES AS WELL AS PROTECTED INTERNAL OUTDOOR AREAS. IN ADDITION TO THE NEWLY BUILT THERAPY AREAS IN THE SOUTH, THERE IS AN ADDITIONAL SUNKEN TERRACE WITH SHADING OPTIONS AND THERAPY GARDENS FOR PATIENTS (FEATURING SENSORY ELEMENTS, HERBS, FLOWERS, BERRIES), WHICH ALSO GRANTS ACCESS TO A LOWER TERRACE WITH RAISED PLANTING BEDS.

PHASES

LOCATION

DUTIES

REALIZATION

SOFTWARE

SUBMISSION, EXECUTION

FELDKIRCHEN IN KÄRNTEN

2023 - 2024

DIETGER WISSOUNIG ARCHITEKTEN

DIETGER WISSOINING, PETER LORBER, ALEXANDER BLACHER, STEFAN KROPSCH, META AMBROZIC, LAURA TREIBLMAYER, TOMASZ PADLO

GROUND PLANS, SECTIONS, ELEVATIONS, CONSULTATIONS WITH TECHNICAL PLANNERS

2024 - 2026

AUTOCAD, MS OFFICE

AXONOMETRY ©DIETGER WISSOUNING ARCHITEKTEN CONCEPT DIAGRAMS ©DIETGER WISSOUNING ARCHITEKTEN

DIESE ZEICHNUNG IST GEISTIGES EIGENTUM DES PLANVERFASSERS UND DAMIT GESETZLICH GESCHÜTZT! JEDE BENÜTZUNG, VERVIELFÄLTIGUNG;

VERÖFFENTLICHUNG; ÜBERARBEITUNG ODER WEITERGABE AN DRITTE IN VERBINDUNG MIT EINER ANDEREN ARBEIT ODER EINEM ANDEREN OBJEKT

BEDARF DER AUSDRÜCKLICHEN, SCHRIFTLICHEN ZUSTIMMUNG DES GENERALPLANERS. NUR UNTER DER BEDINGUNG DER VOLLSTÄNDIGEN VERTRAGSERFÜLLUNG ERHÄLT DER AUFTRAGGEBER DAS RECHT, DAS WERK DES AUFTRAGNEHMERS

Planungsbeteiligte

HKLS-PLANUNG, ELEKTRO-PLANUNG

Ogrisek & Knopper GmbH Kärntnerstraße 525, 8054 Seiersberg

DIESE ZEICHNUNG IST GEISTIGES EIGENTUM DES PLANVERFASSERS UND DAMIT GESETZLICH GESCHÜTZT! JEDE BENÜTZUNG, VERVIELFÄLTIGUNG; VERÖFFENTLICHUNG; ÜBERARBEITUNG ODER WEITERGABE AN DRITTE IN VERBINDUNG MIT EINER ANDEREN ARBEIT ODER EINEM ANDEREN OBJEKT BEDARF DER AUSDRÜCKLICHEN, SCHRIFTLICHEN ZUSTIMMUNG DES GENERALPLANERS. NUR UNTER DER BEDINGUNG DER VOLLSTÄNDIGEN

UND DIE PLÄNE ZUR AUSFÜHRUNG DES BAUWERKS ZU VERWENDEN.

Rosenfelder & Höfler Gmbh & Co KG Gleisdorfergasse 4, 8010 Graz

BAUPHYSIK, BRANDSCHUTZ/BAUKG Rabl ZT Gmbh Uhlandgasse 16, 8010 Graz

Diakonie de La Tour Gemeinnützige BetriebEGesellschaft m.b.H 9020 Harbacher Straße 70, 9020 Klagenfurt a. W. Kärnten Österreich

ARCHITEKTUR

BAUPHYSIK, BRANDSCHUTZ/BAUKG

2-Bett Psychosomatik-Sucht 2.059

Wissounig Architekten ZT GmbH Schlögelgasse 9/1 8010 Graz

STATIK, GEOT., SCHAD- U. STÖRSTOFF

DI Jürgen Freller ZT GmbH Villacherstraße 51, 9020 Klagenfurt

TB Pechmann GmbH Grazerstraße 48f, 8062 Kumberg

HKLS-PLANUNG, ELEKTRO-PLANUNG Ogrisek & Knopper GmbH Kärntnerstraße 525, 8054 Seiersberg

Rosenfelder & Höfler Gmbh & Co KG Gleisdorfergasse 4, 8010 Graz

Rabl ZT Gmbh Uhlandgasse 16, 8010 Graz

Projekt

Zu-

Grundeigentümer

Planung

Behörde

Fachplaner / Planverfasser

Turn static files into dynamic content formats.

Create a flipbook
Issuu converts static files into: digital portfolios, online yearbooks, online catalogs, digital photo albums and more. Sign up and create your flipbook.