4.29.24 Portfolio

Page 1

Architecture
Lauren Ray 20212025
Portfolio

Table of Contents

Biography.....................................................................4-5

Element Project - Earth..............................................6

Element Project - Air...................................................7

Element Project - Fire.................................................8

Element Project - Water..............................................9

Farm to Table Project.................................................10

Cube Transformation...................................................11

Interfaith Space.......................................................12-13

Biography

Profile

laurenroseray3@gmail.com

I am a driven and flexible professional with a diverse background spanning customer service, retail, and construction industries. With hands-on experience in commercial and highway construction, I bring valuable insights to my studies in architecture. Known for my outgoing nature, I easily connect with others and thrive in teamenvironments. Additionally, my managerial skills and financial responsibility experience further enhance my capabilities.

References

Raven Green - General Manager (Bob Evans)

Mobile (304) 376-2191

Work (304) 296-6356

Clinton Walker - Superintendent (Triton Construction)

Mobile (304) 588-6616

Shawn Valentine - Supervisor (J&J Drywall)

Mobile (304) 844-7820

Education

Fairmont State University - Fairmont, WV 2021-Present - Bachelors Degree of Architecture

3.9 GPA

West Virginia University - Morgantown, WV 2016-2018 - General Studies

3.5 GPA

Professional History

Key Supervisor - Bob Evans - Morgantown, WV (2017-Present)

• Collaborated with management team to ensure seamless shift operations

• Responsible for managing and overseeing significant financial transactions

• Trained new restaurant staff in every category

• Excelled in a fast-paced and high-stress environment

Apprentice Carpenter - Eastern Atlantic States Regional Council of CarpentersBridgeport, WV (2019-2021)

• Provided assistance to journeyman carpenters in various tasks

• Experience in interiors, lumber, drywall, hardware, and metal studs

• Experience in heavy highways, pouring concrete, making forms, and welding

• Cooperated with a skilled team to achieve goals within deadlines

Skills
1902 Brunswick Court Morgantown, WV 304-888-5398
Lauren Rose Ray
Revit Sketchup Adobe Products Lumion Drawing Determination 70% 100% 65% 90% 88% 90%

In this project, I designed a 12’x12’ outdoor space for people to experience the earth. The design draws inspiration from the ancient symbol of the Priestly Blessing Hands, a Jewish motif with roots tracing back to biblical times. The structure sits four feet into the ground and the stairs are flanked with benches on either side. It has a dirt floor and rammed earth in the open corner. While sitting on the benches, a persons’ eyes will be directly in line with the ground that surrounds them.

Earth
East Elevation North-South Section
Plan N
Floor Plan Experiential View Interior View Experiential View

This structure is designed to immerse the user in the embrace of the wind. It has four spinners that take the shape of the overall plan of the structure. It is made partially from aromatic red cedar, amplifying the wind with a sense of smell. In its entirety, this sacred space orchestrates a multi-sensory engagement, inviting occupants to hear the whispers of the wind, smell the aromatic red cedar, feel the subtle shifts in atmosphere, and witness the interplay of light and shadow.

Air
West Elevation Section A-A
Floor Plan Plan Experiential View Interior View Experiential View

his structure is designed to enhance the element of re. t the heart of the cube lies a grand circular re pit, ser ing as the main focal point. uspended abo e the pit, a ring crafted from plated gold reflects and ampli es the re s luminance. ncircling the flames are columns that seamlessl transition into benches. he cube harnesses geometr tranforming from a cube, to triangular columns, to an octagonal floor and ceiling, and then a c lindrical oid in the center.

Fire

South
Section A-A
Elevation
Floor Plan Plan Experiential View Interior View Experiential View

This space was designed as a shelter from the rain. Modeled after a simple umbrella, the structure sheilds from the rain while also expressing the element to the user. The top of the shelter acts as a collection pool. There is a small hole in the roof that allows water to trickle down, hitting a series of metal bars, and creating a tune. hat water then drains into small cre ices in the floor, creating an open crossed pattern in the middle. he side walls mimic the flow of a waterfall.

Water
South Elevation Section A-A
Plan Experiential View Interior View Experiential View

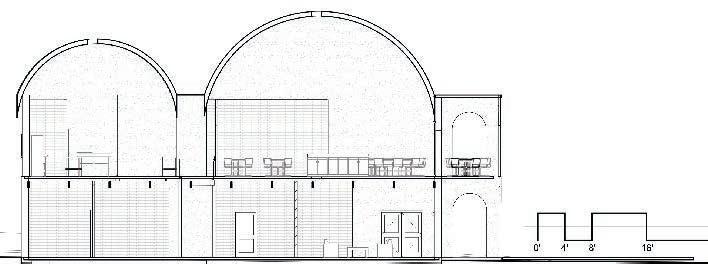
The Steel Arch Harvest House is an ode to the iconic city of Pittsburgh, Pennsylvania. With numerous arches included in the facade, it recognizes the historic Heinz Arch, the adjacent 16th St. Bridge, and the hilly landscape of the area. It is located in the west corner of the site, highlighting the views of the downtown skyline, the 16th St. Bridge, and the Heinz buildings and iconic arch. The garden paths make an immersive outdoor experience with a walking bridge leading from the gardens.

Farm-to-Table Restaurant

Level 1 Level 2 South Elevation
Site
North-South Section
Plan

and ade odel ketchup ender

escription reate a series of e models that demonstrate the transformation of a solid cube into a cubic olume and then use that form to design a functional architectural element. I transformed a basic cubic olume into the base of a dining table. he purpose of this pro ect was to e plore the importance of transforming simple shapes and olumes to create something uni ue. lthough we all started with a cube, m peers and I all had completel di erent end results. We also had to make a ph sical model of the olume, re ning our model making techni ues and gi ing us a better understanding of the ph sical olume. I drew inspiration from e orbusier s assina glass top table.

nderneath erspecti e

e orbusier s assina able

erspecti e

Cube Transformation

le ation

Architecture

Portfolio

20212025

Turn static files into dynamic content formats.

Create a flipbook
Issuu converts static files into: digital portfolios, online yearbooks, online catalogs, digital photo albums and more. Sign up and create your flipbook.