FRAGMENTA[DOS]

Page 1

Proyecto de grado de Arquitectura FRAGMENTA[DOS]

UNIVERSIDAD DE LOS ANDES

Junio 2022, Bogotá

Laura Daniela Rubio Rojas Candidata a grado de Arquitecta

Lorenzo Castro Jaramillo Arquitecto, Profesor Proyecto Unidad Avanzada

Maria Carolina Concha Arquitecta, Profesora Análisis Unidad Avanzada

Introducción

1.1 2

El territorio Escala ciudad .2 Escala lugar .3 Contextualización

Marco conceptual de 2 3 La

Estrategias .1

FRAGMENTA[DOS] 01020304
proyectuales 4
Objetivos y estrategias
3.1 Obra
arte 3.
Fotografía 3.
grieta/El limite 3.4 Pregunta de investigación
2.1
2
2
Motivación personal 1.
Reescritura del tema
CONTENIDO05060708BibliografíaElproyecto7.1 El parque lineal 7.3 El umbral Emplazamiento 6.1 Lugar de intervención Exploración 5.1 Concepto transecto urbano
F R A G M E N T A [ D O S ] 6 INTRODUCCIÓN
01

MOTIVACIÓN PERSONAL

Miro hacia los cerros e inmediatamente recuerdo el día en que lle gue a la ciudad de Bogotá, una chica soñadora con muchas expec tativas, había culminado mi bachillerato y estaba a punto de co menzar mi etapa universitaria. Como una migrante más veo en los cerros una ciudad que me oriento y guío durante los últimos 5 años de mi vida, y es de esa guía y orientación que surge mi proyecto: Fragmenta[dos], Umbral activo hacia los cerros.

9
Bosque Calderon Tejada Imagen de autoria propia

REESCRITURA DEL TEMA

Al inicio de nuestra carrera universitaria veíamos la arquitectura como edificios que contienen usos y actividades, pero a medida que crecíamos e íbamos avanzando se mestre tras semestre nos dábamos cuenta de la importancia del espacio publico en ella. Las personas, la naturaleza, la cultura y el movimiento resultan tejidos cotidiana mente. Juntos conforman el espacio público, el cual se considera que es el elemen to más importante de cualquier ciudad, ya que es el elemento donde se relaciona lo construido y sus habitantes, y además es el elemento que más transformaciones permite, en donde se logran unir las dinámicas humanas con la ciudad sin tener en cuenta raza, política, sexo o religión. Por lo tanto, así como dice Rogelio Salmona: “Hacer arquitectura en Colombia hoy es un acto político, además de ser estético y cultural. Toda acción que transforme los espacios en función de bienestar, la parti cipación y la apropiación de propuestas ciudadanas para el encuentro y la acción, sean de protesta o de apoyo a democracias, son necesarias y la arquitectura no pue de estar ausente. Porque la arquitectura es la que transforma los espacios públicos y debe resistir los abusos y la especulación urbana. La estética debe ser una ética”.

Pensar la arquitectura como un elemento único es un pensamiento tradicional que se ha dejado de lado para dar paso a la nueva idea de la arquitectura como parte de un conjunto. Este espacio en el cual no solo intervienen los arquitectos, si no una gran cantidad de elementos, condiciones y profesionales que modifican, crean y complementan las propuestas y los proyectos. Es decir, debemos ver la arquitectura como un área multidisciplinar, en donde intervenimos todos en pro de la sociedad.

Asimismo, debemos entender la ciudad como un organismo vivo, el cual cambia con el tiempo y depende de nosotros como pobladores, más que como arquitec tos, el cambiar las formas de habitar en ella. Estos cambios se pueden apreciar en Bogotá a través de sus planos históricos, en donde se muestra el rápido crecimien to que ha tenido la ciudad en las ultimas décadas, en la cual cada día llegan más personas de diferentes partes del país y del mundo en busca de refugio y mejores oportunidades; con esa esperanza llegan sus costumbres, formas de vida y tradi ciones. Bogotá, una ciudad variable en donde sus individuos buscan cada día más autonomía, pues como humanos buscamos ir en contravía de lo que nos han im puesto, por ello buscamos ir en contra de aquellos cubículos encerrados en torres densas de apartamentos con cerramientos que limitan cada vez mas el contacto y las relaciones interpersonales, como dice Fernando de la Carrera una “rejalopolis”.

Aunque es común en la mayoría de nuestras ciudades latinoamericanas este mo delo de vivienda, encontramos en las periferias barrios en donde la autocons trucción ha modelado la ciudad como una situación de sostenimiento, y en ellos encontramos esas cualidades que el conjunto cerrado ha reprimido, como la proxi midad, densidad y escala humana, calles como espacios públicos alegres y segu ros. Sin embargo, no debemos caer en el error de romantizar este tipo de vivienda, pues son poblaciones que en la mayoría de casos han sido sometidas a vivir allí y no se han podido desarrollar legalmente dentro de las normas urbanas de la ciudad.

Debido a lo anterior, veo en el barrio Bosque Calderón Tejada y en sus proximida des la capacidad de generar una arquitectura que articule la relación existente entre lo construido y lo natural, entre la informalidad y la legalidad. Lo que quiero es generar una nueva visión del territorio mediante la concientización de sus mo radores, incrementando el sentido de pertenencia y de apropiación por el territo rio en el que habitan, en donde se encuentren oportunidades en lugar de dificul tades, seguridad en lugar de temor y finalmente, identidad en lugar de abandono. Necesitamos iniciar un camino de transición a la sostenibilidad donde las genera ciones actuales juguemos un papel fundamental en lo que leguemos a las futuras.

11
F R A G M E N T A [ D O S ] 12 TERRITORIOEL
02
F R A G M E N T A [ D O S ] 14

America del Sur

Cordillera de los Andes

Los cerros bogotanos como los conocemos hacen par te de una gran cadena de montañas, conocida como la Cordillera de los Andes. Tiene una longitud de 8500 ki lómetros y es la cordillera mas larga de la tierra. Sus te rrenos incluyen glaciares, volcanes, praderas, desiertos, lagos y bosques.

Izq. Mapa de America del Sur. Relieve particular de los cerros orientales
15
F R A G M E N T A [ D O S ] 16

CHAPINERO

Chapinero es una localidad ubicada al norte de Bogotá, limita, al norte, con la loca lidad de Usaquén, al sur, con localidad de Santa Fe, al occidente, con las localidades de Teusaquillo y de Barrios Unidos, y al oriente con La Calera (Paramo de las moyas). Tiene una extensión total de 3.8 hectáreas y posee 126.000 habitantes. La localidad se divide en cinco UPZ y una UPR, las cuales son la UPZ 88 - El Refugio, la UPZ 89 - San Isidro Patios, la UPZ 90 - Pardo Rubio, la UPZ 97 - Chicó Lago y la UPZ 99 – Chapinero. Junto a Santa Fe, La Candelaria y Teusaquillo es una de las localidades tradicionales de la ciudad.

En la localidad de Chapinero hay algunos sectores declarados como zona de Interés Cultural de la ciudad. Se destacan los barrios de Quinta Camacho, Chapinero y el Mu seo del Chicó. En el sector encontramos varios teatros, cines y las dos más elegantes zonas de esparcimiento nocturno: la Zona Rosa y el parque de la 93. Es el punto de encuentro de músicos y artistas de toda la ciudad, debido a la concen tración de estudios, bares y auditorios de conciertos, lo cual convierte a este sector, junto a La Candelaria y Teusaquillo, en una importante cuna de expresiones culturales urbanas. El barrio ha inspirado obras como la publicación alternativa Revista Chapi nero, de proyectos musicales como el disco Gaitanista de Eduardo Arias y Karl Troller, bajo el seudónimo de Hotel Regina y la Orquesta Sinfónica de Chapinero, y de la no vela Chapinero, del escritor bogotano Andrés Ospina. En esta localidad se ha desarro llado gran parte de la cultura musical bogotana, e incluso de Colombia, debido a que gran parte de los bares, estudios y auditorios de la ciudad se ubican en esta zona.

Adicionalmente, En la segunda mitad del siglo XX su orientación cambió de residen cial a comercial, y además es la zona que más viajes atrae en la ciudad. Toda la locali dad es considerada el “centro expandido” de la ciudad. Allí se encuentran localizados un gran número de lugares de trabajo de la ciudad. Por tal razón, Chapinero tiene una gran población flotante de personas que la visitan al día, pero que no residen ahí. De hecho, gran parte de las rutas del Sistema Integrado de Transporte Público SITP pa san por el eje de la 11 y la 13 hacia el sur o la 7.ª y la 15 hacia el norte. Lo anterior produjo notables cambios demográficos a lo largo de los últimos años.

Izq. Localidad Chapinero. Llenos y vacios en la ciudad
17

Estructura hidrológica. Principales cuerpos de agua de la ciudad.

Estructura ecológica. Zonas de protección especial, parques y corredores verdes de la ciudad

F R A G M E N T A [ D O S ] 18

La estructura ecológica principal tiene tres componentes. Primero, El sistema de áreas protegidas del Distrito Capital: es el conjunto de espacios con valores únicos para el patrimonio natural del Distrito, de la región o de la Nación, y cuya conservación resulta imprescindible para el funcionamiento de los ecosistemas, la conservación de la bio diversidad y el progreso de la cultura en el Distrito Capital. En segundo lugar, Los par ques urbanos y por último el área de manejo especial del valle aluvial del río Bogotá. De su extensión total de 3.816 hectáreas (ha), 1.316 se clasifican en suelo urbano y 2.500 se clasifican como áreas protegidas en suelo rural, lo que equivale al 65,5% del total de la superficie de la localidad. Su altura va de los 2.600 a los 3.500 msnm, tiene un clima frío subhúmedo y la temperatura promedio anual es de 14,2 ºC. Dentro de sus límites se presentan dos unidades geomorfológicas, una zona plana de sabana y una zona montañosa correspondiente a la cordillera Oriental. La parte montañosa de la locali dad de Chapinero se encuentra atravesada por varios cuerpos de agua de los cuales los más importantes son el río Arzobispo, las quebradas La Vieja, Rosales, El Chicó, Las Delicias y numerosas escorrentías secundarias que conforman una red de considera ble importancia ecológica.

19
Aeropuerto el Dorado Parque Simón Bolivar Centro de Alto Rendimiento
F R A G M E N T A [ D O S ] 20
BibliotecaEstadio
Estadio El Campín Sendero de los Cerros Biblioteca Virgilio Barco
21

Entre la Cl. 63 y la Quebrada Las Delicias

Nos ubicamos en la parte central de Chapinero, una zona rica en biodiversidad, ya que hay presencia de remanentes de bosques andinos, paramos y subpáramos. De entre las 12 quebradas que encontramos en la localidad, está la Quebrada las delicias y será nuestro punto de interés junto con sus coaliciones y fronteras.

Izq. Quebrada Las Delicias. UPZ Pardo Rubio
23
F R A G M E N T A [ D O S ] 24 LLENOS Y VACIOS EQUIPAMIENTOS

MALLA VIAL PUBLICO Y EEP

25
ESPACIO

Fotografía intersección entre la Av. Circunvalar y la Quebrada las Delicias. Diurna

Fotografía intersección entre la Av. Circunvalar y la Quebrada las Delicias. Nocturna

F R A G M E N T A [ D O S ] 26

FRONTERAS, BORDES Y LIMITES

Territorialmente hablando existen límites, bordes y fronteras tanto nacionales como locales, las cuales se encargan de fragmentar el espacio y, curiosamente, al mismo tiempo generan arraigo e identidad. Los bordes no sólo materializan la territorialidad, sino que también implican el “aquí” y “allá”, el “ellos y nosotros”. Los bordes señalan, y a la vez unen y contienen. Por otro lado, los limites delimitan, límite se refiere a la “línea” divisoria y los bordes son las zonas fronterizas a dicho límite. Por lo tanto, mien tras que límite se refiere a una línea que separa dos espacios, frontera se refiere a una zona que tiene cierto grado de profundidad y permeabilidad, la frontera constituye una región o un ambiente de transición, en el cual se encuentra el límite, cumpliendo con la función dual de ser barrera y membrana permeable a la vez.

27
F R A G M E N T A [ D O S ] 28
29
F R A G M E N T A [ D O S ] 30 CONCEPTUALMARCO
03

SHIBBOLETHObradearte

Veo a la obra de Doris Salcedo “Shibboleth” y me recuerda lo que pretendo lograr en mi proyecto, un lugar en el que en lugar remarcar la constante fragmentación del es pacio y la división, integre y genere unión en todas las escalas y categorías. La Avenida Circunvalar y la Quebrada las Delicias se presentan como dos límites que demarcan, segregan y separan comunidades social, económica y territorialmente hablando. Sin embargo, al ver las personas cruzando de un lado al otro de la grieta con dar simple mente un paso me hace entender que, aunque existen peligros al cruzar bordes, es posible superar esas barreras y esos límites. Pero más allá del hecho de superar esos límites y esas diferencias, luego de finalizar la exposición y sellar la grieta, una perma nente cicatriz va a estar siempre en la Sala de Turbinas, como alguna memoria, como recuerdo de que alguna vez existió un límite, como una conmemoración a todas las vidas que no reconocemos, que son como fantasmas para nosotros.

«Y los galaaditas tomaron los vados del Jordán a Efraím, y cuando alguno de los de Efraím que había huido decía: ¿Pasaré? Los de Galaad le preguntaban: ¿Eres tú efrateo? Si él respondía No, entonces le decían: Pues di Shibboleth.
Y él decía Sibboleth, porque no podía pronunciar aquella suerte. Entonces le echaban mano y le degollaban. Y así murieron cuarenta y dos mil de los de Efraím…»
Fotografía de la obra de arte de Doris Salcedo “Shibboleth”. Grieta en el Tate Modern.
33
F R A G M E N T A [ D O S ] 34

Fotografía Le Touquet (1984)

Entropía y espacio urbano

Entropía: Perdidas de energía en todos los mecanismos. “Encaja con esa idea que siempre suele ocurrir cada fin de siglo. de crisis, de que lo pasado fue mejor, de reflexión”

“Me gusta mucho su tendencia a la fotografía que muestra la «trans formación» de una ciudad, acerca de cómo cambia, de cómo evo luciona, de cómo se va expandiendo poco a poco, a veces sin orden ni concierto, creando una ciudad imperfecta y hasta poco aprove

Fotografías en Francia por Gabriele Basilico. Contrastes

35
F R A G M E N T A [ D O S ] 36

¿ ¿Cómo puedo por medio de mi proyecto configurar una experiencia lúdica en torno al paisaje que propicie la construcción de una nueva conciencia de lo natural y lo social?

Diagrama de puentes sobre el lugar de intervención. Formas de atravesar la grieta.

37
F R A G M E N T A [ D O S ] 38
39
F R A G M E N T A [ D O S ] 40 ESTRATEGIAS PROYECTUALES
04
¿ ¿CÓMO PUEDO POR MEDIO DE MI PROYECTO CONFIGURAR UNA EXPERIENCIA EN TORNO AL PAISAJE QUE FAVOREZCA LA CONSTRUCCIÓN DE UNA CONSCIENCIA SOBRE LO NATURAL Y LO SOCIAL?

Reconocer (Visibilizar)

Observar el territorio, para conocer su identidad, naturaleza y ac tuales(Indagar)circunstancias.

Destacar que en lugar en el que nos vamos a emplazar existe una marcada diferencia social, evidenciar la informalidad y hacerlo par te de la realidad Instauran(Establecer)social.supropiaidentidad.

Vincular (Permear)

Romper el límite físico, para atravesar él limite social. (Unir)

Hacer del recorrido no solo parte de la ciudad, sino también un ele mento que genere acción urbana, vida en la ciudad. (Enlazar)

Atar los diferentes granos de forma fuerte y duradera, de tal modo que se genere una fuerte comunicación entre los ciudadanos y la ciudad.

Potenciar (Garantizar)

Asegurar las condiciones y elementos mínimos para generar identi dad, seguridad y confort a las diferentes formas de habitar. (Proponer)

Plantear una serie de elementos que favorezcan la actividad huma na y de igual forma, que el proyecto sea un corazón lúdico, cultural y ecológico en la ciudad, en el cual se realcen las cualidades naturales del paisaje. Crear una arquitectura que transforme y mejore las con diciones para habitar en la ciudad, en la que las piezas y elementos que componen el proyecto completen y articulen los diferentes sis temas e infraestructuras existentes.

F R A G M E N T A [ D O S ] 46 EXPLORACIÓN
05

TRANSECTO URBANO

Según la publicación “THE JOURNAL OF URBAN DESIGN” se define Transecto como: “Un transecto es un corte transversal geográfico de una región utilizado para revelar una secuencia de ambientes. Para los entornos humanos, esta sección se puede utili zar para identificar un conjunto de hábitats que varían según su nivel y la intensidad de carácter urbano, un continuum que va desde las zonas rurales a las urbanas.

F R A G M E N T A [ D O S ] 48

“El transecto , propone la construcción de entornos inmersivos, que consisten básica mente en crear una experiencia de inmersión en un mismo tipo de medio ambiente, a través la especificación y la organización de los elementos que conforman ese en torno de una manera lógica, dada la naturaleza del lugar”. WDe esta forma, no es ló gico por ejemplo encontrar viviendas con grandes espacios abiertos y baja densidad en el centro urbano. Así como tampoco, lo es un edificio de oficinas en un medio rural.

49

PISOS

La escala de gradualidad propuesta en transectos por entornos se aplica a la escala de la vegetación implementada para la recuperación de suelos, los cuales se eligen acorde a los pisos térmicos de los cerros, que han dado origen a los siguientes ecosis temas: Paramo, posee una vegetación abierta, especies de poca altura, distanciadas entre sí, caracterizada por el predominio de frailejones (Espeletia cf. grandiflora). Lue go encontramos el Bosque Andino Alto: Está ubicado entre los 2.750 y 3.200 m.s.n.m. Se caracteriza por una vegetación alta y cerrada, con bosques de encenillo (Weinman nia tomentosa) y otras especies como pegamoscos (Befaria), canelo (Drymis), espino (Duranta), arrayán (Eugenia), entre otros. Tiene un alto nivel de humedad (entre 900 y 1.500 mm anuales) y posee una gran variedad de especies.

F R A G M E N T A [ D O S ] 50
TÉRMICOS

De igual forma, el bosque andino bajo aparece en las laderas bajas de los cerros, entre los 2.550 y 2.750 m.s.n.m. Está formado por gran diversidad de especies. Aunque, en los potreros que quedan luego de la tala, la fauna es muy pobre y sólo existen algu nas comadrejas, runchos y cánidos en los lugares donde hay cercas vivas o reductos cercanos de bosque. En cuanto a las aves, hay mirla negra (Turdus fuscater gigas), golondrina (Stretoproche zonaris albicincta), cernícalo y chirlobirlo (Sturnella magda meridionalis).

La desaparición de estos bosques es muy perjudicial para todo el sistema de la saba na y afecta directamente todo el régimen hídrico. “La destrucción de los bosques na turales de los cerros tiene relación directa con la desaparición de aguas superficiales (quebradas), la disminución de la infiltración de aguas hacia el agua subterránea y la erosión y degradación de suelos”.

51 TÉRMICOS Y ECOSISTEMAS
F R A G M E N T A [ D O S ] 52 FLORA POR PISOS

RomeroChusquedeHoja

Ancha Espino Espuelo Morado Musgo Salton Uvo de Páramo
53 PISOS TÉRMICOS Paramo
Romero
TéFrailejóndeBogotá
Puyas

Subparamo

Amargoso Canelo Laurel Dorado
F R A G M E N T A [ D O S ] 54
Helecho
Mano de Oso Oreja de Burro Orquídea Pegamosco Siete Cueros Tagua

Bosque Andino

Arrayan Mortiño Carbonero Marranero Raque Rodamonte Cucharo
55
Alto
QuichesHelecho
Higuerilla

Bosque Bajo Andino

Aliso Arrayán Cedro Cucharo Espino Garrocho Mano de OsoRaque Samper Tuno
F R A G M E N T A [ D O S ] 56 FLORA POR PISOS
57 Bosque de Lauraceas y Alisos PISOS TERMICOSAlisoRaque AlmanegraTibar TrompetoCedro CucharoTuno Laurel
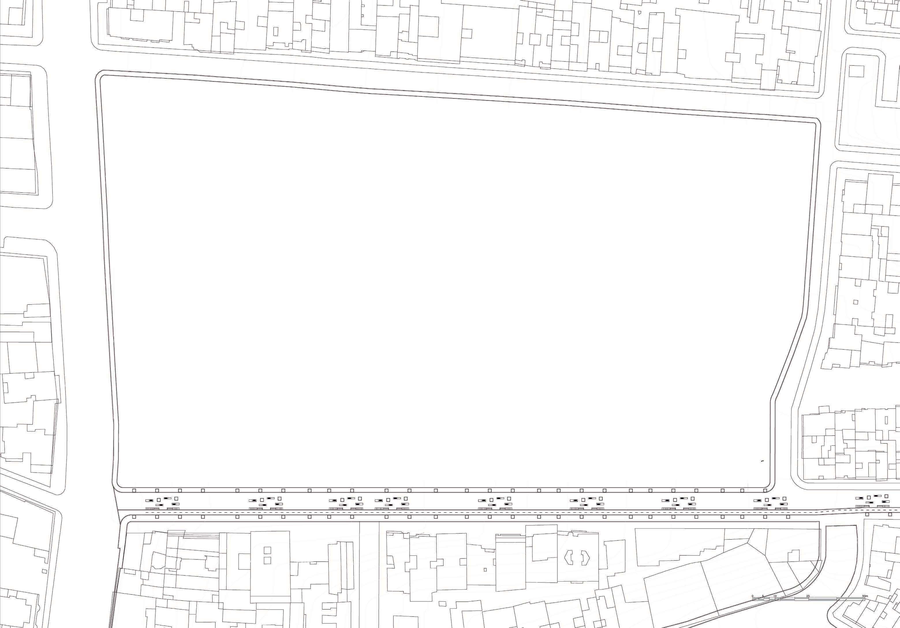
F R A G M E N T A [ D O S ] 58 EMPLAZAMIENTO
06
TRAMO 1 TRAMO 2
TRAMO 3 TRAMO 4 TRAMO 5TRAMO 6
F R A G M E N T A [ D O S ] 62 PROYECTOEL
07

ESCALA URBANA

EL PARQUE LINEAL

F R A G M E N T A [ D O S ] 64
65 Antes TRAMO 1 Déspues

AntesDéspues

F R A G M E N T A [ D O S ] 66 TRAMO 2

AntesDéspues

67 TRAMO 3

AntesDéspues

F R A G M E N T A [ D O S ] 68 TRAMO 4

DéspuesAntes

69 TRAMO 5
F R A G M E N T A [ D O S ] 70 TRAMO 6
71 LA CONEXIÓN CON LOS CERROS
F R A G M E N T A [ D O S ] 72 UMBRALEL
06
F R A G M E N T A [ D O S ] 74
75
F R A G M E N T A [ D O S ] 76 Planta primer piso
77
F R A G M E N T A [ D O S ] 78
79 Axonometría -Las partes
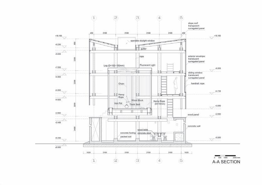
F R A G M E N T A [ D O S ] 80 Corte A-A’- Viviendas medianeras y torre de oficinas
81

Plantas

Planta segundo nivel

Planta tercer nivel

Planta cuarto nivel

F R A G M E N T A [ D O S ] 82
biblioteca
83
F R A G M E N T A [ D O S ] 84 Corte B-B’- Biblioteca y torre de viviendas
85
Corte C-C’- El parque lineal y la continuación hacia los cerros
F R A G M E N T A [ D O S ] 88 Axonometría explotada- La dualidad de las barras
89
F R A 90 Fachada externa- Biblioteca
91 Fachada interna- Biblioteca
F R A G M E N T A [ D O S ] 92 Fachada externa- Vivienda
93 Fachada interna- Vivienda
F R A G M E N T A [ D O S ] 94 Corte D- D’- Relacion entre el parque lineal y la biblioteca
95

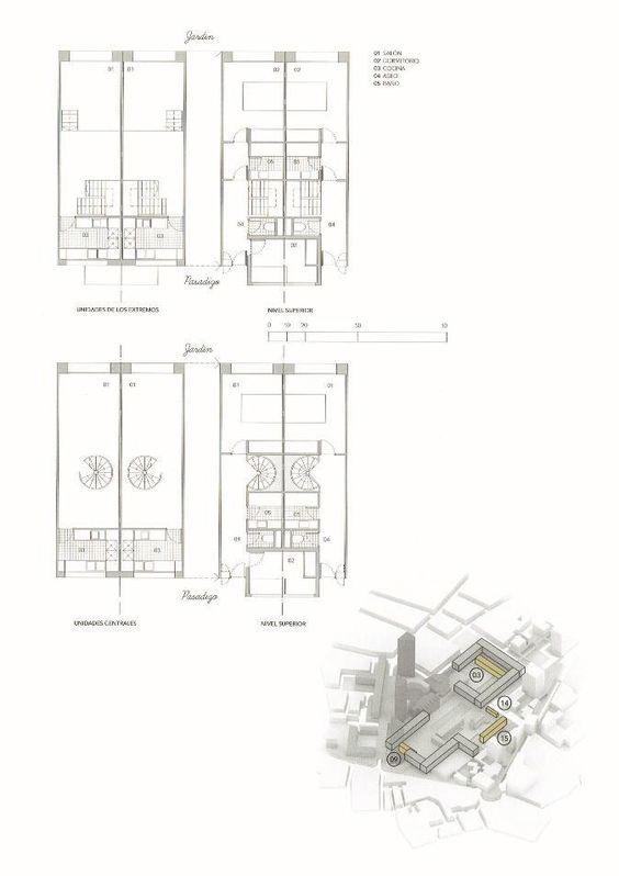
Diagrama sobre los tipos de vivienda

TIPO 4

TIPO 2

TIPO 3 TIPO A

F R A G M E N T A [ D O S ] 96
97 TIPO 1 TIPO B TIPO C
TIPO 2 TIPO 1
TIPO 4 TIPO 3
tipoTIPO TIPO B
Plantas casas
A
TIPO C

Plantas

Planta baja

F R A G M E N T A [ D O S ] 102
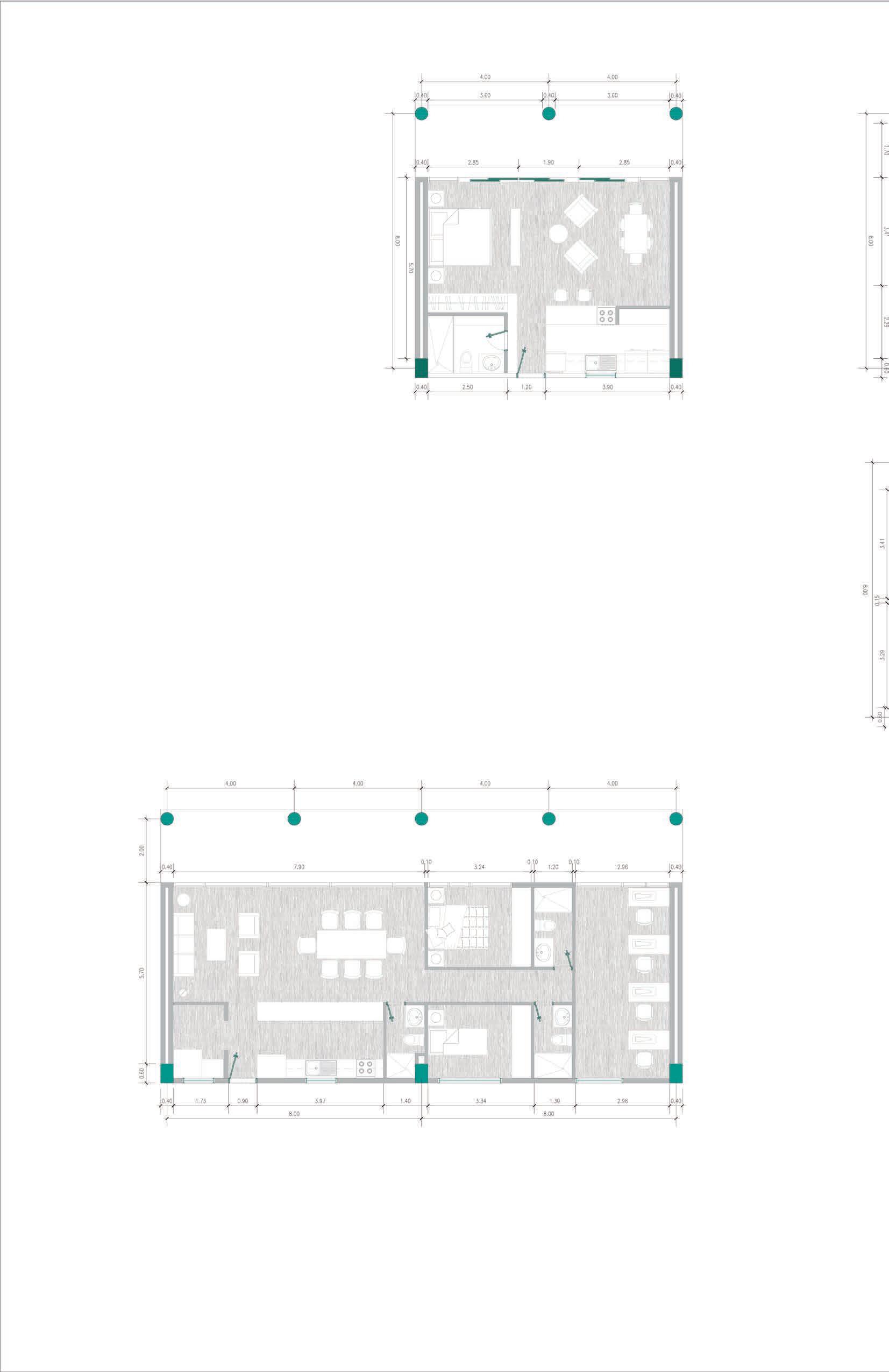
Edificio vivienda
APTO A APTO B

Planta Segundo Nivel

103
APTO C
F R A G M E N T A [ D O S ] 104
105
F R A G M E N T A [ D O S ] 106 BIBLIOGRAFÍA
F R A G M E N T A [ D O S ] 108

Bibliografía

ALcuadrado arquitectos. (s/f). Al2arquitectos.com. Recuperado el 25 de febrero de 2022, de Villegasdana.blogspot.com/2013/07/urbanismo-centripeto-transecto-en.htmlUrbanismo[Accessed<https://www.revistatransas.com/2016/07/14/doris-salcedo-y-paul-celan-shibboleth/>Revistahttp://www.chapinero.gov.co/mi-localidad/conociendo-mi-localidad/historiaReseñaMonteys,Monteys,keley-plus-kengo-kuma-and-associates>www.archdaily.co/co/761722/nest-we-grow-college-of-environmental-design-uc-bersignsociates”Nest2022,Lacessedtps://inoniblog.wordpress.com/2010/05/01/aprender-mirando-gabriele-basilico/>iNONIciones/manual-de-coberturas-vegetales-de-bogota-d-c/>JardínJardíncom/arquitectura/las-folies-del-parc-de-la-villette/Gardinetti,tal-urbano-del-rio-cali-colombia>www.archdaily.co/co/914438/conoce-el-proyecto-ganador-para-el-corredor-ambienRíoEquipona-de-zinc-allmannajuvet-peter-zumthorthor.Effa,Colombia.biente,asociadosBejarano,https://al2arquitectos.com/blog/portfolio_page/design-of-total-mechanics/P.2014.Editora.HistoriaambientalyrecuperaciónintegraldelosterritoriosaquebradasyríosenBogotá(casoChapinero).SecretaríaDistritaldeAmAlcaldíaLocaldeChapineroyConservaciónInternacionalColombia.Bogotá,336ppJ.(2016,octubre10).MuseodelaMinadeZincAllmannajuvet/PeterZumArchDailyColombia.https://www.archdaily.co/co/797003/museo-de-la-miEditorial.“ConoceelproyectoganadorparaelcorredorambientalurbanodelCali,Colombia”15abr2019.ArchDailyColombia.Accedidoel24Feb2022.<https://ISSN0719-8914M.(2012,noviembre1).Folies,Juegosdelenguaje.TECNNE.https://tecnne.BotánicodeBogotá.2022.ManualdecoberturasvegetalesdeBogotáD.C.-BotánicodeBogotá.[online]Availableat:<https://jbb.gov.co/nosotros/publica[Accessed4May2022].Blog.2022.AprenderMirando:GABRIELEBASILICO.[online]Availableat:<ht[Ac20April2022].CotaMilcomolímitedelaciudad.(s/f).aalandarch.Recuperadoel20deabrildedehttps://www.aacv2.com/cotamilWeGrow/CollegeofEnvironmentalDesignUCBerkeley+KengoKuma&As[NestWeGrow/KengoKuma&Associates+CollegeofEnvironmentalDeUCBerkeley]05feb2015.ArchDailyColombia.Accedidoel24Feb2022.<https://ISSN0719-8914(S/f).X.(2012).Rehabitarennueveepisodios.MinisteriodeVivienda.X.(2017).Lacalleylacasa:urbanismodeinteriores.EditorialGustavoGiliHistóricadeChapinero.(s/f).Gov.co.Recuperadoel20deabrilde2022,deTransas.2022.DorisSalcedoyPaulCelan(“Shibboleth”).[online]Availableat:20April2022].Centrípeto-TransectoenIztapalapa.(s.f.).UbiCiudad.http://opiniondealJiménez,B.,&Rothkirch,C.von.(2000).CerrosdeBogotá.VillegasEditores.

109
F R A G M E N T A [ D O S ] 110 REFERENTES

A través de la exploración de diversos referentes se generaron di versas reflexiones en torno al proceso proyectual que siguió nuestro proyecto a lo largo del semestre.

111
F R A G M E N T A [ D O S ] 112 CARACASMIL-COTALABIOPARQUEMUSEOVIVO CALI R-RuralR U-UrbanointegraciónC
113 U-UrbanointegraciónC-CorredorUC
F R A G M E N T A [ D O S ] 114 LibertadlaPlazaCivicoCentro CenterBarbicanTheOPUS+Toroposada ChamberlinBon&Powell UrbanoU REFERENTES PROYECTUALES
115 UrbanoU PROYECTUALES
F R A G M E N T A [ D O S ] 116 KENGOGROW-WENEST KUMA ZINC-DEMINASMUSEIO ZUMTHORPETER RuralR
117 RuralR

Turn static files into dynamic content formats.

Create a flipbook
Issuu converts static files into: digital portfolios, online yearbooks, online catalogs, digital photo albums and more. Sign up and create your flipbook.