KLAIPĖDOS ARCHITEKTŪRA 2022






































KLAIPĖDA ARCHITECTURE 2022















KLAIPĖDA ARCHITECTURE 2022
Klaipėdos architektūra / Klaipėda architecture 2022 (Nr. 22)
Leidinį nuo 2001m. leidžia / Published since 2001 by Lietuvos architektų sąjungos Klaipėdos apskrities organizacija (LASKAO) / Lithuanian architect union’s Klaipėda county organization (LASKAO)
Bažnyčių g. 6-1, LT-91246 Klaipėda www.architektams.lt
2023m. iniciatyvinė grupė / 2023 initiative group Mantas Daukšys, Aurimas Baužys, Jurgita Raišutienė
Leidinio sudarytoja / Editor
Miglė Paužaitė
Lietuvių kalbos redaktorė / Lithuanian language editor
Romualda Nikžentaitienė
Anglų kalbos redaktoriai / English language editors
Miglė Paužaitė ir Aurimas Baužys
Dizainas / Design
Miglė Paužaitė
Spausdino / Printed by
UAB „BALTO print“
Utenos g. 41A, LT-08217 Vilnius
Leidėjų ir autorių nuomonės gali nesutapti. Už pateiktų projektų, tekstų turinį ir kokybę leidėjai neatsako
Tiražas 300 eg.
© LASKAO, 2022
© Miglė Paužaitė, 2022
© Autoriai, 2022
ISSN 2029-9559
Klaipėdos architektų registras / Klaipėda architect registry www.architektams.lt/registras
Įžanga / Foreword
6 Mantas Daukšys. LASKAO valdybos pirmininkas
Įvykiai / Events
8 2022 metų architektūrinių įvykių kronika
Žvilgsniai / Views
10 Irina Krasota Design during the war
12 Edmundas Benetis. Visuomeniškų architektų vaidmuo: pokalbis apie miesto iššūkius, santykį su savivalda ir ateities lūkesčius
16 Berta Meironaitė ir Povilas Čepaitis.
Malūnų rajonas - „15 minučių miesto“ pradžia
Konkursiniai projektai / Competitions
Klaipėdos valstybinio jūrų uosto krantinių ir administracinio pastato atviras architektūrinis konkursas
18 Devyni plius + Architektūros linija. I vieta
20 DO architects. II vieta
22 Urbanistinė architektūra + YCL + Kelprojektas + Kordonas III vieta
Daugiabučio pastato su administracinėmis patalpomis architektūrinis konkursas
24 Urbanistinė architektūra. I vieta
Progimnazijos Vilniuje atviras architektūrinis konkursas
su administracinėmis patalpomis
60 Very Good Architecture Company. VGP 34
62 Vakarų siluetas. Gyvenamasis namas šlaite
64 Vakarų siluetas. Poilsio namelių kompleksas
66 Vytautas Grykšas. Savaitgalio namų grupė monciškėse
68 Erdvės architektūra. Viešbutis ir daugiabutis Šventojoje
69 DO architects. Marių g. poilsio pastatų kompleksas
70 Inžinerinė statyba ir projektavimas. Daugiabutis gyvenamasis namas su ūkiniu pastatu
71 Uostamiesčio projektas Administracinės paskirties pastatas su gyvenamosiomis patalpomis
72 Archko. Daugiabučio gyvenamojo namo rekonstravimas
73 Architektorius. Daugiabučiai Palangoje
74 Urbanistinė architektūra. Poilsio paskirties pastatas Šventojoje
76 Archko Svečių namai
78 G.A.L. architektai. Miško vėtrungės
80 G.A.L. architektai. Poilsio namai
81 G.A.L. architektai. Poilsio namai
82 Andrijausko architektų biuras. Daugiabutis gyvenamasis namas
84 Archipoint LT Bangų g. kvartalas Palangoje
86 A Team Projects. Daugiabučių gyvenamųjų namų kvartalas
88 Studija nytt + 2L architektai. Palangos jaunimo centras
90 Archko. Gydymo paskirties pastato rekonstravimas
26
Urbanistinė architektūra. I vieta
Valstybinių miškų urėdijos administracinio pastato atviras architekūrinis
konkursas
28 Archicechas. II vieta
Galimybių studijos / Feasibility studies
30 Bauland Kultūros centro Žvejų rūmai modernizavimo koncepcijos galimybių studija
Projektai / Projects
32 Archko. Vieno buto gyvenamas namas
33 Archipoint LT. Namai Kunigiškėse
34 Architektūros namai. Namas prie upės
35 TS projects. Namas kuršių marių pakrantėje
36 TS projects Žuvų namas
37 TS projects. Muižės dvaro sodyba
38 NT projektavimas. Priekulės oazė
39 NT projektavimas. Ventės sodyba
40 Arches. Namas pajūryje
41 Arches Namas pajūryje
42 Arches. Namas pajūryje
43 Arches. Namas pajūryje
44 Arches. Alėjos namai
46 Kadatada. Namas Tauralaukyje
47 Kadatada. Namas Samališkės kaime
48 MAK GROUP. Namas ant šlaito
49 MAK GROUP. Gyvenamasis namas
50 MAK GROUP. Namas kalne
51 MAK GROUP. Namas kalne
52 MAK GROUP. Dvibutis namas Palangoje
54 Studija Kopa. Šeimos namas Klaipėdoje
56 Studija nytt + Baltijos regiono projektai. Pajūrio vila
58 Studija nytt + Baltijos regiono projektai. Dvibutis gyvenamasis namas
91 TS projects. „Šachmatinė“
92 Altitudės + Projektų rengimo centras Naujoji Smiltynės perkėla
94 2L Architects. Prekybos centro ,,Akropolis“ priestatas
95 Uostamiesčio projektas. Sandėliavimo paskirties pastatas
96 Uostamiesčio projektas. Viešbutis Palangoje
98 Arches. Poilsio paskirties pastatas su viešbučio paskirties patalpomis
100 AEXN V4 - SPA ir viešbutis Palangoje
102 NEBRAU. Administracinis pastatas su sandėliu 104 Uostamiesčio projektas. Du administracinės paskirties pastatai 106 Arches + Sweco. Mineralinio vandens SPA kompleksas
architektai. Futuristai
+ Neoforma VMG Technics R&D Park
projektai. Holistinis žmogaus tobulėjimo centras - „Holaxy“ 114 Altitudės. Skveras ir sodas
116 TS projects. Šilutės miesto civinių kapinių plėtra
Realizuoti projektai / Built projects
118 Urbanistinė architektūra. Atminimo paminklas Alfonsui Žaliui 119 Uostamiesčio projektas. Prekybos ir sporto įrangos nuomos pavilionas
120 Architektų biuras G. Natkevičius ir partneriai Gyvenamasis namas
122 Neoforma. Blokuoti gyvenamieji namai Nemirsetoje
123 DO architects. Svencelės uostas
124 DO architects. Sauserių gyvenvietė
126 Svirskis studio. Feniksas
128 AEXN. Krematoriumas „Pilkapis“
130 Uostamiesčio projektas. Poilsio paskirties pastatas Preiloje
132 Archko. Baltijos jūros gyvūnų reabilitacijos centras
134 2L Architects. Socialinių mokslų kolegija (SMK)
136 G.A.L. architektai. Marių vėtrungės
138 Neoforma. Poilsio namų rekonstrukcija Palangoje
139 Archko. Prano Mašioto progimnazijos paprastasis remontas
140 NTH projektai. Prekybos paskirties pastatai su sandėliavimo ir administracinėmis patalpomis
Leidinyje „Klaipėdos architektūra“ nuo 2001 m. kasmet kruopščiai renkami ir skelbiami Klaipėdos miesto architektūros kūrėjų pateikti darbai. Šį pirmą kartą pristatoma vakarų regiono architektūra.
Prabėgę pandemijos metai privertė keisti įpročius ir darbo metodus. Ištobulinus nuotolinio r yšio, bendravimo ir darbo priemones, atsidūrėme dar mažesniame pasaulyje, kur objektai ir par tneriai kituose miestuose tapo dar lengviau pasiekiami. Vieno miesto erdvė kūr ybai ir verslui dažnam iš mūsų jau per ankšta, įpratome veikti plačiau. Atliepiant, ūgtelėjo ir šiuos darbus pristatantis leidinys. Čia rasite per 2022 metus sukurtus projektus vakarų Lietuvoje (apytikriai - Klaipėdos apskrities savivaldybėse), taip pat Klaipėdos krašto architektų svarbiausius (apdovanotus ar kitaip pastebėtus) darbus kituose kraštuose. Tikimės, kad leidinys ir kūrėjus įgalins kritiškai įvertinti kūr ybos kokybę, jos tendencijas regione, bei santykyje su Lietuvos ir pasaulio architektūros ieškojimais. Leidinyje pristatyti darbai bus eksponuojami parodose regiono savivaldybėse. Nežinia, kur šiuo metu gyvena, mokosi, ar dirba r ytojaus architektūros kūrėjas, statytojas, ar tiesiog mylėtojas, todėl, norint juos pasiekti, skatinamas ir plečiamas susidomėjimas architektūra plačiai aplink.
Leidėjas – Lietuvos architektų sąjungos Klaipėdos apskrities organizacija - 2022 metais tęsė tradiciniu tapusio architektūros renginių ciklo veiklas. Suorganizuota vieša ekskursija architektūros istorijos tema, stipendijos konkursas architektūros studentams, knygų pristatymai, diskusija dėl viešosios erdvės – Klaipėdos karių kapinių pertvarkymo perspektyvų, šventiškai paminėta Liepos pirmoji – tradicinė architektų diena, sutikti kolegos iš kare atsidūrusios Ukrainos architektų sąjungos, pasidalinta patirtimi, dovanota parama. Sėkmingai suorganizuotas “Teritorijos prie Danės upės dešiniosios krantinės, nuo žiočių iki Pilies tilto, Klaipėdoje, (vad. „Šiaurės rago skveras“), sutvarkymo architektūrinis konkursas – pavyzdys, kai renkama geriausia architektūra iš solidžiai ir suprantamai pateiktų alternatyvų.
Organizacija skatina visas vakarų Lietuvos savivaldybes įgyvendinti Architektūros įstatymo nuostatas, kad architektūriniu, urbanistiniu, valstybiniu ar viešojo intereso požiūriu reikšmingų objektų planavimo ar projektavimo atvejais būtų rengiami architektūriniai konkursai. Vakarų regionas gali tapti dar geresne vieta gyventi, jei architektūros kūr ybai skirsime deramai didesnį dėmesį. Tai atrodo pasiekiama architektams veikiant ir savo viziją pristatant sutelktai, įtaigiai ir įdomiai, taip, kaip daroma šiame leidinyje.
In the publication "Klaipėda Architecture," since 2001, the carefully selected and published works are being submitted by architects of Klaipėda. These publications mark the first instances of showcasing the architecture of the western region.
The past year of the pandemic has compelled us to adapt our habits and work methods. With advancements in remote communication, collaboration, and work tools, we have found ourselves in a smaller world where objects and par tners in other cities have become more accessible. The creative and business space of a single city has become too limiting, prompting us to operate on a broader scale As a response, the publication of projects have expanded. You will find projects created in western Lithuania, during 2022. Additionally, it features significant works by architects from the Klaipėda region that have been awarded or recognized in other areas. Through this publication, we aim to encourage critical evaluation of the quality of creative works, identify regional trends, and explore their relationship with the broader architectural landscape. The showcased works in these publications will also be exhibited in shows held in the regional municipalities, with the aim of expanding interest in architecture within a broader context.
The publisher of this publication is the Klaipėda County branch of the Lithuanian Architects' Association, which has continued its traditional cycle of architecture events in 2022. These events have included public excursions on architectural history, scholarship competition for architecture students, book presentations, discussions on public space, such as the perspectives of the reconstruction of Klaipėda War Cemetery, traditional Architects' Day celebration, and visits from colleagues of the Ukrainian Architects' Association who have experienced war. Through these events, experiences have been shared and support has been provided. Notably, the successful organization of the architectural competition for the arrangement of the territory near the right bank of the Danė River, from the docks to the Pilies Bridge in Klaipėda, called "Nor th Horn Square," ser ves as an exemplary model for selecting the best architecture from well-presented and comprehensible alternatives.
The Organization actively encourages all municipalities in western Lithuania to adhere to the provisions of the Architecture Law, which stipulate the organization of architectural competitions for significant objects related to architectural, urban, state, or public interest. By giving due attention to architectural creativity, the western region can further enhance its desirability as a place to live. This objective becomes achievable when architects collectively act and present their visionar y ideas in an impressive and engaging manner, as exemplified in these published works.
Mantas Daukšys
Lietuvos architektų sąjungos Klaipėdos apskrities organizacijos (LASKAO) valdybos pirmininkas
Diskusija
Atvira diskusija ir kūrybinė sesija dėl Danės upės krantinės tarp Pilies tilto ir šiaurės rago pertvarkos. Iniciatorius - V.Į. „Idėjos miestui”, rengusi teritorijos architektūrinę-urbanistinę galimybių studiją
Asociacijoje darbą pradėjo veiklos koordinatorė (pakeitusi atsakingą sekretorių) Jurgita Raišutienė
- 03.06 Susirinkimas
Leidyklos „Lapas” ruošiamos medžiagos knygai „Klaipėdos architektūros gidas” dirbtuvės Klaipėdoje ir L ASKAO salėje. Autorių kolektyve: dr. M. Drėmaitė, dr. V. Safronovas, dr. L. Nekrošius, dr. V. Petrulis, dr. M. Mankus ir K. Sadauskienė
Pirminis ir pakartotinis visuotinis LASKAO ir LAS Klaipėdos skyriaus narių susirinkimas
Kasmetinio leidinio „Klaipėdos architektūra 2021“ pristatymas.
Eksponuotos dvi parodos: „Klaipėdos architektūra 2021“ ir architekto Petro Džer vaus meninis projektas-tyrimas
„Klaipėdos utopija 2100“. Parodos kuratorius - Vladas Balsys. Parodą iš dalies finansuoja Lietuvos kultūros tar yba. Ekspozicijos „Klaipėdos architektūra 2021“ rėmėjas - Klaipėdos miesto savivaldybės administracija.
Diskusija „Aktuali erdvė - memorialas sovietų kariams ir kiti meniniai akcentai Klaipėdoje“.
Įžvalgomis dalinosi: skulptorius Arūnas Sakalauskas, dizaineris Kęstutis Mickevičius, architektas Vladas Balsys, istorikai doc. dr. Vacys Vaivada ir prof. dr. Vasilijus Safronovas, kalbino architektas Mantas Daukšys
Ekskursija „Aktuali erdvė“ su istoriku Vasilijumi Safronovu. Pasivaikščiojimas skir tas „nepatogiajai“ Klaipėdos praeičiai ir jos reliktams viešosiose miesto erdvėse
Ekskursija LASKAO nariams su architektu Edmundu Andrijausku po viešbutį Victoria Hotel Klaipėda
Eksponuota 2022 metų LASKAO ir „ERGOLAIN“ stipendijos konkurso architektūros studentams darbų paroda. Tema – „Klaipėdos apskritis. Aktuali architektūra“. Konkurso partneris – UAB „Ergolain projektai“
LASKAO ir „ERGOLAIN“ stipendijos konkurso darbų vertinimas, laureatų paskebimas
Dešimtoji architektų irklavimo regata. Regatos partneriai: UAB „VELUX Lietuva“ ir irklavimo klubas „Gigas“
Paskelbtas Šiaurės rago skvero tarp Naujosios Uosto gatvės ir Kuršių marių sutvarkymo atviras projekto konkursas
Eksponuota paroda „Holistinė daugiabučių kvartalų renovacija" pristatanti 11 Europoje realizuotų holistinės renovacijos pavyzdžių ir šios srities tyrimus. Parodos organizatoriai: Tarptautinė architektų sąjunga UIA, Baltijos architektų sąjungų asociacija BAUA, Lietuvos architektų sąjunga, Estijos architektų sąjunga, Latvijos architektų sąjunga
Klaipėdoje sutikti Ukrainos architektų bendruomenės atstovai, pravesta ekskursija, pristatyta turima architektų savivaldos ir praktikos Lietuvoje patirtis
LASKAO architektų klubo renginys, kuriame pristatytas 2022 metų L ASKAO ir „ERGOL AIN“ stipendijos architektūros studentams konkurso laimėtojos Evelinos Simonaitytės darbas tema „Pramonės teritorijų konversija: AB „Klaipėdos energijos“ atvejo studija“ (Vilniaus dailės akademija, darbo vadovas: Doc Ar tūras Burba), bei paskatinamosios premijos laimėtojos Gintarės Marozaitės darbas tema „Mažosios Lietuvos statybinio paveldo išsaugojimo galimybių studija“ (Kauno technologijos universitetas, darbo vadovė: Lekt. dr. Ingrida Povilaitienė)
Eksponuota Baltijos šalių geriausių architektūros studentų baigiamųjų darbų konkurso „BAUA Student Awards 2021“ paroda Klaipėdoje. Parodos organizatorius - Baltijos architektų sąjungų asociacija BAUA.
Partneriai: Lietuvos architektų sąjunga, Estijos architektų sąjunga, Latvijos architektų sąjunga
Leidinio „100 žingsnių moderniosios lietuviškosios architektūros link“ pristatymas Klaipėdoje
Architektūros teoretiko ir praktiko, VDA prof. dr Tomo Grunskio, vieno iš buv įmonės „Laivitė" teritorijos regeneravimo koncepcijos autorių, pranešimas "Dinaminių modelių taikymas kuriant ir tiriant viešąsias miesto erdves".
Renginio partneriai: Stemma Group, TEMA
Kaune, Šiauliuose ir Gargžduose eksponuotos trys architektūros parodos „Klaipėdos architektūra 2021“ dalys
Danės skvere eksponuota paroda „Architektūra: Kaunas 2022“
Architektas dr. Matas Šiupšinskas dalinosi įžvalgomis paskaitoje - diskusisjoje "Kolektyvinių sodų architektūra ir planavimas sovietmečiu"
Paleko architektų studijos vadovas, architektas Rolandas Palekas bei partnerė, architektė Alma Palekienė pristatė antrąją studijos knygą „PAS 2“. Architektus kalbino architektai Andrius Laurinaitis bei Vaidotas Dapkevičius
LASKAO narių teminė išvyka laivu į Smiltynę aplankyti Baltijos jūros gyvūnų reabilitacijos centrą
My story begins like many others you’ve read this year. On February 24, 2022, I woke up to explosions outside my window at 5 o’clock in the morning, and my life changed from that moment on However, I’m not here to dwell on the horrors of war or discuss the plight of my people during this time. Instead, I want to share how we continue to work in the field of design despite the ongoing conflict.
When the war started, all of us lost our jobs in the design industry. Everything came to a halt, much was destroyed, and countless lives were lost. To preserve my sanity during the evacuation, I began searching for a part-time job Prior to the war, my colleagues and I ran an interior design studio called MalyKrasota Design. We took pleasure in working on projects and witnessing them come to life. So, I took a seat and started drafting my resume for the first time in nearly a decade, recalling all the completed projects, reminiscing about the international architectural publications that featured our work, and reflecting on the numerous projects that were successfully executed. It was actually heartening to see and acknowledge how far we had come.
Fortunately, I had the opportunity to connect with Gintare and Andrius from Kopa Architects, who were willing to collaborate with us online. They not only provided us with employment but also helped us maintain our sanity, retain our sense of humor, and, most importantly, stay true to ourselves during this challenging period. After a few months, thanks to the efforts of our armed forces, we were able to return to Kyiv, where it was comparatively safer, and we resumed our partnership with Kopa Architects on projects in the Klaipėda and Vilnius regions.
Over time, our clients in Kyiv continued with their apartment construction projects despite the shelling and scheduled power outages. I recall standing on a construction site with a client and the foreman, discussing a structural detail in the darkness. As soon as the power was restored, someone in the building immediately started using a drill. On that very day, a massive rocket attack occurred, forcing us to seek shelter. Nonetheless, we continued our project discussion in the safety of the shelter, attempting to ignore the dangers around us, worrying about our loved ones scattered across the city and the country, and trying to drown out the terrifying sounds of explosions.
Just last month, we initiated an interior project in Kharkiv, a city located close to the front line and frequently targeted by shelling. The client sent us a video of the premises and provided measurements. In the video, I noticed that the windows were covered with plywood. When I inquired about it, the client responded, “There are no windows because
a rocket landed nearby, but please proceed with the project. I have already ordered new windows, and they will be installed soon.” I can’t fully convey the emotions tied to that statement, but to me, it exemplifies the courage and yearning for a better life that our people possess. Such individuals can never be broken, and if someone tries, we will rebuild everything. Life goes on, and we all desire to live in comfortable and beautiful surroundings.
I would have never imagined living through a war, let alone enduring it. However, now more than ever, each of us cherishes every day and strives to live it to the fullest, recognizing that life can be abruptly cut short. So, like many other Ukrainians, we choose to embrace the present and not postpone it for later. Repairs are underway around us, designers are diligently working, houses are being constructed, new windows are replacing the shattered
ones, and fundraising efforts persist to acquire equipment for our military. We contribute to the best of our abilities on the home front, paying taxes to bolster the country’s economy, raising funds to support our soldiers and those affected by the war. We firmly believe that victory will soon be ours, enabling us to construct remarkable buildings and interiors in a free nation. We hold onto the belief that we will soon forget the sound of air raid sirens, and our militar y will safeguard us. In the near future, we will proudly send photographs of completed projects in Ukraine to architectural publications, rejoicing in the fact that they were accomplished within Ukraine, providing our people with the opportunity to reside in aesthetically pleasing environments and stylish homes.
Glory to Ukraine!
Mano istorija prasideda kaip ir daugelis Jūsų skaitytų šiais metais. 2022 metų vasario 24 dieną aš atsikėliau 5 valandą r yto nuo sprogimo garsų. Mano gyvenimas pasikeitė. Bet aš Jums noriu papasakoti ne apie visus karo žiaurumus ar apie tai, ką šiuo metu išgyvena mūsų žmonės. Aš noriu papasakoti apie tai, kaip mes tęsiame projektavimo darbus karo metu.
Prasidėjus karui visi praradome darbus architektūros ir dizaino srityje. Viskas staiga sustojo, daug buvo sunaikinta, prarasta gausybė gyvybių. Priverstinės evakuacijos metu, norėdama neprarasti sveiko proto, pradėjau ieškoti darbo puse etato. Prieš karą kartu su kolega turėjome interjero dizaino studiją „MalyKrasota design“ ir mėgavomės projektavimo procesu bei realizuojamais objektais. Pirmą kartą po dešimties metų prisėdau rašyti savo CV, prisimindama visus pabaigtus projektus, tarptautines architektūros publikacijas apie mūsų darbus, galvodama apie visus pastatytus objektus. Buvo malonu matyti ir suvokti, kaip toli mes nuėjome. Laimei, man teko susipažinti su Gintare ir Andriumi iš „Kopa Architects“, kurie norėjo dirbti kartu su mumis nuotoliu. Jie ne tik davė mums darbų, bet ir suteikė galimybę išsaugoti sveiką protą, neprarasti humoro jausmo ir, svarbiausia, išlikti savimi šiuo itin sunkiu periodu. Po kelių mėnesių mūsų kariuomenės dėka galėjome grįžti į saugesnį Kyjivą ir tęsti bendradarbiavimą su „Kopa Architects“ rengdami projektus Klaipėdos ir Vilniaus regionuose.
Per laiką mūsų klientai Kyjive atnaujino apartamentų statybos projektus, nepaisant bombardavimo ir energijos tiekimo sutrikimų. Atsimenu, kaip būnant statybvietėje kartu su užsakovu ir darbų vadovu, tamsoje aptarinėjant konstrukcines detales, staiga atsiradus elektrai kažkas iš darbininkų nieko nelaukdamas pradėjo gręžti. Tą pačią dieną mus užklupo didelė raketų ataka. Darbinį susitikimą teko tęsti slėptuvėje, kur aptarėme projekto klausimus, bandydami negalvoti apie pavojų, nesijaudinti dėl
artimųjų skirtingose miesto ir šalies vietose, bandydami bendravimu užgožti bauginančius sprogimų garsus.
Praėjusį mėnesį pradėjome interjero projektą Charkive, nuolat apšaudomame mieste šalia fronto linijos. Užsakovas atsiuntė mums patalpų matmenis ir vaizdo įrašą, kuriame pastebėjau fanera uždengtus langus. Kai jo apie tai paklausiau, užsakovas atsakė: „Langų nėra, nes netoliese nukrito raketa, tačiau tęskite projektavimo darbus. Aš jau užsakiau naujus langus, ir jie netrukus bus sudėti.“ Nežinau, ar tai skamba taip pat kaip jaučiama, tačiau, man regis, taip pasireiškia mūsų žmonių drąsa ir geresnio gyvenimo troškimas. Tokie žmonės negali būti palaužti, ir jei kas nors pabando, mes viską atkursime. Gyvenimas tęsiasi, o mes norime komfortiškai gyventi gražiose erdvėse.
Aš niekada negalvojau, kad gyvensiu karo sąlygomis ar kad tai būtų įmanoma. Tačiau dabar labiau negu niekada kiekvienas iš mūsų vertina kasdieną ir nori gyventi ją kuo prasmingiau, nes gyvybė gali nutrūkti bet kuriuo momentu. Kaip ir dauguma ukrainiečių mes pasirinkome gyventi dabartimi, nenukelti nieko ateičiai. Aplink mus vyksta remonto darbai, dirba dizaineriai, statomi namai, vietoje sudužusių langų montuojami nauji ir tęsiamos lėšų rinkimo akcijos naujai mūsų kariuomenės įrangai pirkti. Mes kaip įmanydami stengiamės puoselėti savo namus, mokame mokesčius ekonomikai kelti, renkame lėšas padėti kariuomenei ir tiems, ką labiausiai paveikė karas. Tikime, kad netrukus ateis pergalė ir galėsime kurti interjerus, statyti gražius pastatus laisvoje šalyje. Žinome, kad greitai pamiršime oro pavojaus sirenų garsą, o mūsų kariuomenė apsaugos mus. Netolimoje ateityje vėl galėsime siųsti įgyvendintų projektų nuotraukas tarptautiniams žurnalams, didžiuodamiesi tuo, kas sukurta Ukrainoje, o mūsų žmonės turės galimybę gyventi gražioje aplinkoje ir stilinguose namuose.
Šlovė Ukrainai!
EXPLORING THE ROLE OF SOCIALLY ACTIVE ARCHITECTS: A CONVERSATION ON URBAN CHALLENGES, MUNICIPAL RELATIONS, AND EXPECTATIONS FOR THE FUTURE
Kalbino architektė Miglė Paužaitė
Pastaraisiais metais stebint miesto urbanistinės plėtros aktualijas, jus galima pamatyti kiekviename su tuo susijusiame tarybos posėdyje tvirtai su kolegomis atstovaujant architektų pozicijai. Kas jus paskatino užsiimti šia visuomenine veikla?
Aš to nevadinčiau visuomenine veikla, nes tai yra mano profesija, kuriai atidaviau tik 42 savo gyvenimo metus. Didelę reikšmę turi ir tai, kad nuo 2018 metų, kai išėjau į pensiją, atsirado daug daugiau laiko ir galimybių daryti tai, ką noriu. Jeigu šiuos penkerius metus būčiau dirbęs, aš niekur, jokioje „visuomeninėje veikloje“ nebūčiau taip ir tiek dalyvavęs.
Teritorijų planavimo dokumentų viešinimo sistema Lietuvoje yra gan juokinga: savivaldybė duoda galimybę žmogui susipažinti su teritorijų planavimo dokumentais, skiria laiką viešinimui, tačiau tas laikas būna darbo valandomis – dirbančiam žmogui nėra galimybių tokiose procedūrose dalyvauti. Paskui mes pykstame, kad visuomenė neaktyvi, nesidomi, nedalyvauja. Visuomenė nedalyvauja, nes ji neturi galimybės dalyvauti, kai viešą svarstymą paskiria 14 ar 16 val. Raskite darbdavį, kuriam pasakysite: „Aš einu pažiūrėti, kaip ten Girulių miškas projektuojamas.“ Kiek iš 10 darbdavių jus išleis? Į kelis tokius renginius per mėnesį jūs galėsite nueiti?
Kaip žmogus, dviejose savivaldybėse buvęs vyriausiuoju architektu bei Valstybinėje teritorijų planavimo ir statybos inspekcijoje dirbęs vyriausiuoju specialistu, kaip manote, kokios yra aktualiausios urbanistinės Klaipėdos miesto problemos?
Aš pasakysiu paprastai ir trumpai: Klaipėdos miestas neprieina prie vandens. Klaipėdos problema buvo ir yra vienintelė – 15 km uosto teritorija, kuri miestą atskyrė nuo marių ir jūros. Ir metams bėgant ta problema tik auga, nepriklausomai nuo to, ką mes šnekam ar darom. Todėl aš nemėgstu kalbėti apie kokius nors naujus Baltijos pr. ir Šilutės pl. transporto mazgus, apie uosto ar geležinkelio tvoras, nes, tai yra niekai. O kai pamatai, kad uosto bendrajame plane šios 15 km juostos „aukštingumas“ yra iki 30 m, o užstatymo tankis šioje teritorijoje yra iki 80 %, imi ir susimąstai, kaip ta 15 km miesto dalis gali sugyventi su ta kita miesto dalimi, ta, kur už uosto tvoros, kur mes, klaipėdiečiai, gyvename?
Problema yra vienintelė ir esminė: miesto ir uosto santykis, ir jau seniai akivaizdu, kad tai yra nesuderinta. Aš žinau, kaip atrodo Stokholmas, Helsinkis, Kopenhaga, Gdanskas, kaip atrodo Riugeno sala, Gotlandas, Ryga ar Talinas. Tokių uostamiesčių, kuriuose tarši krova būtų įsispraudusi tarp miesto ir vandens, daugiau Baltijos jūros pakrantėje nėra.
2018–2020 metais Klaipėdos miesto Taryba rengė Klaipėdos miesto savivaldybės 2021–2030 metų strateginį plėtros planą, kurį 2020 metais patvirtino. Man teko garbė būti deleguotam Klaipėdos bendruomenių asociacijos ir dalyvauti rengiant šį dokumentą. Kartu su kitais 25–30 žmonių darbavomės urbanistinio planavimo, infrastruktūros ir aplinkos apsaugos dalyse. To strateginio plėtros plano pirma dalis – tai tiesiog fantastiška statistika, oficialūs duomenys apie tai, kas ir kokie mes esame, kokios yra Klaipėdos stipriosios pusės, o kur trūkumai. Iš tos puikios statistikos
atsirado tokia lentelė, kurioje buvo išvardyta 14 esminių Klaipėdos problemų (urbanistikos, teritorijų planavimo, transporto ir kitose srityse). Tos esminės Klaipėdos problemos buvo išvardytos kažkaip atsitiktinai, be jokio reitingavimo ir net ne abėcėlės tvarka. Vėliau tos 14 esminių Klaipėdos miesto problemų pavirto maždaug 70-ia sprendinių, kaip tas problemas reikėtų spręsti.
Ir tuomet, pamatęs, kokiomis priemonėmis bus siūloma tas esmines Klaipėdos problemas spręsti (gydyti miestą), aš oficialiai atsisakiau toliau teikti bet kokias pastabas ir siūlymus, nes supratau, kad viskas baigiasi kažkokiu nesusipratimu. Neįvardijant dar kažkuo gerokai stipriau.
O ką davė ta pirmoji, man labai patikusi, to strateginio dokumento dalis, ką naujo apie savo miestą sužinojome iš tos statistikos ir kitų dokumentų? Priminsiu, kad statistika buvo daroma maždaug 2015–2018 metais, kas, kalbant apie miestą, nėra seniai. Man asmeniškai buvo šokas, kai aš perskaičiau oficialią statistiką, kad tarp penkių didžiausių Lietuvos miestų (Vilnius, Kaunas, Klaipėda, Šiauliai, Panevėžys) Klaipėda pirmauja keturiose labai liūdnose nominacijose: Klaipėdoje yra didžiausias sergamumas, didžiausia tarša, trumpiausia gyvenimo trukmė ir didžiausias mirtingumas. Ar ne keista? O juk mes gyvename Baltijos jūros pakrantėje, šalia marių, už 25 km yra Palanga, kitoje pusėje už 50 km yra Nida, ir staiga – didžiausias mirtingumas tarp Lietuvos didžiųjų miestų? Kas čia per nesąmonė? Džiaugiuosi, kad šiek tiek prisidėjau prie Strateginio plėtros plano rengimo, tačiau reikėjo kovoti, kad sakinys, kad esame taršiausias miestas, patektų į esminių Klaipėdos problemų sąrašą. Tik gaila, kad toliau rengiant šį svarbų Klaipėdai strateginį dokumentą, tos problemos kažkaip elegantiškai „prisimiršo“, ir pabaigoje gavome apie 70 priemonių („vaistai“ nuo esminių Klaipėdos problemų). Tarp jų – Klaipėdos miesto dviračių takų tinklo tobulinimas, mažėja jaunimo, trūksta sporto bazių būsimų olimpiečių rengimui ir panašūs kliedesiai. Kai vienoje Klaipėdos miesto gatvės pusėje vyksta atvira geležies rūdos, metalo laužo ar anglies krova, o kitoje gatvės pusėje stovi darželis, mokykla, – tai skamba kaip kažkokia beprotybė.
Prieš savivaldos rinkimus du kandidatai į Klaipėdos miesto merus buvo atėję pabendrauti su architektų bendruomene. Abiem kandidatams pacitavau geriausią sakinį iš viso Strateginio plėtros plano, kad Klaipėdos miesto taršos priežastys eilės tvarka yra: tarši uosto veikla, laisvosios ekonominės zonos ir kitų įmonių veikla bei jas visas aptarnaujantis sunkusis ir geležinkelių transportas. Klaipėdos miesto „ligų“ diagnozė šiuo sakiniu yra nustatyta labai aiškiai, atrodo, nebėra apie ką šnekėti.
Norėtųsi labai paprasto dalyko, kad tarp Klaipėdos miesto ir vandens nebebūtų jokių pramonės įmonių, jokių tvorų, jokių kranų ir jokių geležinkelių. Tai yra mano tikslas ir svajonė. Aš nesu tikras, kad suspėsiu tai padar yti, bet aš bandau tą svajonę perduoti ir kitiems miestiečiams, kolegoms. Jeigu mes – architektai, urbanistai
apie tai nekalbame, jeigu mes dėl užsakymų nenorim rodyti miesto valdžiai miesto urbanistinių skaudulių, nenorime bartis su savivaldybe, nieko ir nebus. Žinoma, aš, lyginant su kolegomis
architektais, turiu veiksmo ir žodžio laisvę, nepriklausau nuo nieko ir tuo naudojuosi. Aš žinau, kad ne visi kolegos prieštarauja tam, ką aš sakau, daugelis net tyliai palinksi galvomis. Bet tik tiek. Kol kas.
Rinkimų kampanijoje su dideliu entuziazmu kalbėta apie pietinės miesto dalies gyventojų automobilių stovėjimo vietų stoką kaip didžiulę miesto problemą. Taip, tai didžiulė problema. Bet... turiu gerą asmeninį pavyzdį: kai dirbau Šilutės rajono savi- valdybės vyriausiuoju architektu 2017–2018 metais, mes Šilutėje padarėme miesto r ytinės dalies daugiabučių namų kvartalo sutvarkymo projektą. Tarybinis užstatymas, kuriame gyvena bemaž trečdalis Šilutės miesto gyventojų. Suprojektavome ir realizavome tai, ko jie neturėjo paskutinius 30–40 metų. Tai visų pirma ta pati bėda kaip ir Klaipėdoje – nebuvo automobilių stovėjimo vietų. Suprojektavome ir įrengėme, ir išsyk nebeliko poreikio statyti automobilį daugiabučio gyvenamojo namo pievoje, krepšinio aikštelėje ar ant šaligatvio. Kažkodėl ir požeminiai konteineriai Šilutėje jau penkerius metus veikia nešaukiant, nerėkiant. Tuo tarpu Klaipėda iki šiol sugeba „nudžiugti“, kad pagerės gyvenimas mieste, kai bus padar yta kokia viena (ar net dvi) pusiau požeminė konteinerių aikštelė kurioje nors miesto dalyje. Buvusiam administracijos direktoriui prieš ketverius metus nešiau ploną segtuvą su rekomendacijomis, kaip išspręsti automobilių aikštelių problemas, jeigu atrasiu ir būsiu geros nuotaikos, padovanosiu kopiją ir naujam merui.
Grįžtant prie Klaipėdos problemų, matyt, esu tinginys, nes nuolat šnekėti ir aimanuoti apie vis dar nesamas dviračių takų jungtis ar apie šaligatvių plotį, kai nesusitvarkome iš esmės, neįdomu ir tingiu. Jeigu mes Klaipėdoje nesugebame pasidar yti taršios uosto teritorijos konversijos etapais, iškeliant taršią uosto veiklą iš miesto, tai nieko ir nebus.
Pasibaigus uosto bendrojo plano viešajam svarstymui, uostininkai suorganizavo kelių žurnalistų ir kelių bendruomenių atstovų nuvežimą į Roterdamą, kad parodytų, kaip yra tvarkomas vienas didžiausių Europos uostų, kad patys savo akimis pamatytų, kad ir Klaipėdos uoste viskas yra gerai. Po ekskursijos „Vakarų eksprese“ buvo paskelbtas straipsnelis, kuriame rašoma, jog ir Roterdame taip pat „vyksta birių medžiagų krova, bet ten yra naudojamos cheminės rišančios medžiagos. Kad mažiau dulkėtų. Ir mes (uostininkai) tokias Klaipėdoje nusipirksim ir panaudosim“. Puiku. Bet čia dar ne pabaiga. Už kelių sakinių rašoma, matyt, viso rašinio „vinis“, kad „taršių medžiagų krova Roterdame vyksta, bet <...> 15 km už miesto“! Kai perskaičiau šį sakinį, aš uostininkams pasakiau: „Kai jūs su savo taršia krova būsite 15 km už miesto, tai galėsite krauti ką tik norite, kad ir su šiūpeliu dieną naktį, barstykite į kairę, į dešinę trąšas, cementą, geležį, bet jūs žmonių nenuodysite vidur yje 150-tūkstantinio miesto.“ Klaipėdiečių ekskursija Roterdame baigėsi, o tarši uosto krova Klaipėdoje?..
Dar reikėtų paminėti miesto bendrąjį planą ir peripetijas, kurios nutiko jį berengiant. 2018 metais miesto Taryba apsvarstė keturis uosto plėtros variantus: 1. Plėtojama esama centrinė miesto dalis; 2. Plėtojama centrinė ir pietinė miesto dalys; 3. Plėtojama centrinė ir šiaurinė miesto dalys (su išoriniu giliavandeniu uostu Melnragėje) ir 4. Plėtojamos visos – centrinė, pietinė ir šiaurinė miesto dalys. Taryba pritarė antrajam variantui, pietinei plėtrai, sprendimas galioja iki šiol. Tačiau šiandien turime patvirtintą galiojantį Miesto bendrąjį planą su... maksimalia miesto plėtra, t. y ketvirtuoju variantu. Kam įdomu, kaip tai nutiko, išsamiai aprašiau dar 2020 metais „Atviroje Klaipėdoje“, straipsnyje „Miesto bendrojo plano rengimas: pats tikriausias skandalas“.
Šnekėjome apie taršią uosto krovą, bet yra ir kitas aspektas –transporto apkrova ir tarša. Perspektyviniais skaičiavimais, per Klaipėdos
miestą trimis kr yptimis į uostą yra planuojama 12 700 krovininių automobilių per parą. Palyginimui, aš kažkur buvau aptikęs informaciją, kad Lamanšo sąsiaurio jungties tarp Didžiosios Britanijos ir Prancūzijos paros apkrovimas yra tik 11 000 krovininių automobilių per parą.
Niekada nebuvau ir nesu prieš uostą Uostas ir buvo, ir yra reikalingas Klaipėdai. Ir Lietuvai. Problema yra ne uostas, o uosto vieta ir ypač uosto veikla bei tos veiklos tarša. Taršios veiklos vidur yje miesto negali būti. Lietuvos bendrajame plane išoriniam uostui yra siūlomi du vietos variantai: Klaipėda arba Būtingė. Jeigu būtų atliktas išsamus šių variantų vertinimas, nebereikėtų dabar net ir kalbėti. Turėtume tyrimą, jo rezultatus ir konkrečią išorinio giliavandenio uosto vietą. Žinant Uosto bendrojo plano strateginio pasekmių aplinkai vertinimo ataskaitos 2018 m. išvadą, kad išorinio giliavandenio uosto Melnragėje statybos pasekmės bus tiesioginės, neigiamos, ilgalaikės ir reikšmingos visam Lietuvos pajūriui į šiaurę nuo Klaipėdos iki pat Latvijos (prasidės negrįžtami kranto erozijos procesai), galimų išorinio giliavandenio uosto vietos variantų skaičius sumažėja iki minimumo. Kol nieko, be uosto įplaukos kanalo gilinimo ir įplaukos kanalo molų ilginimo, nedarome, atrodo, kad nieko nevyksta ir jokių neigiamų pasekmių Lietuvos pajūriui nebus. Tik kasmet šimtatūkstantines ir milijonines sumas smėlio supilame Lietuvos paplūdimiams pamaitinti. O šiaip – viskas gerai?.. Daugelį metų teko plaukioti „Lietuvos“ jachta į Europos miestus uostus: Stokholmą, Kopenhagą, Gotlandą, Riugeną ir t. t. Aš žinau, ką reiškia atplaukti į Kopenhagą ir prisišvartuoti 200 m atstumu nuo „Undinėlės“ skulptūros arba Stokholme prisišvartuoti 300 m atstumu nuo „Vazos“ muziejaus. Deja, pas mus būsimai Klaipėdos marinai vietos miesto centre nėra ir nenusimato, bet užtat rimtais veidais siūloma jai vieta visiškame miesto pakraštyje, pietinėje miesto dalyje, dar piečiau už visas kamineras ir BRT Ką ten išsilaipinę turistai veiks? Kyla klausimas, kodėl tai daroma ne viduryje miesto? Akivaizdžiai nėra jokios jūrinės Klaipėdos vizijos. Kokius matote architektų / urbanistų ir savivaldybės santykius, sprendžiant miesto iššūkius, ir ką, Jūsų nuomone, būtų galima padaryti, kad šie santykiai pagerėtų?
Į šiuos santykius galima žiūrėti kaip į piramidės principą, kur jos viršūnėje yra politikai. Ir jeigu nėra politinės valios, išminties, nebus nieko. Tačiau, kita vertus, jeigu mes, specialistai, planuotojai, urbanistai, architektai, nekalbėsime apie miestą ir jo problemas, nenorėkime, kad 31 politikas staiga praregėtų, sėdėdami Liepų gatvės Tarybos salėje, ir pradėtų postringauti apie Klaipėdos ateitį. Miesto urbanistiniai sprendimai – tai mūsų – architektų – pareiga: matyti, baksnoti pirštu, kelti klausimus ir juos spręsti.
Aš sakiau ir kandidatams į merus, kad mes grįšime prie nuo 2014 metų galiojančio teritorijų planavimo įstatymo, kuris leidžia dar yti valstybei svarbių projektų bendruosius planus atskirai nuo miestų (vienintelis atvejis visoje Lietuvoje yra Uosto bendrasis planas ir Klaipėdos miesto bendrasis planas). Nes 5 % miesto dalies (Uosto BP) uždeda apynasrį likusiems 95 %. Aš jau nekalbu apie tų 5 % taršią veiklą ir ką tos veiklos pasekmės daro su mūsų sveikata. Uosto bendrojo plano mes nepajudinsim, jei nepasikeis teisinė bazė Klaipėdos miesto bendrojo plano problemų (čia aš pabūsiu pesimistu) šioje Tarybos kadencijoje tikrai niekas nejudins.
Šiais metais savivaldybės išsirinko naujus merus ir tarybas. Žvelgiant į ankstesnės Klaipėdos miesto valdžios kadenciją, kokios, jūsų nuomone, buvo jų stipriosios ir silpnosios pusės sprendžiant urbanistines problemas mieste?
Mano atsakymas bus paprastas, aš, be neigiamų, neturiu ką pasakyti. Ką tik baigusi kadenciją Taryba labai apsidžiaugė: mes patvirtinome
Klaipėdos bendrąjį planą. O aš pasakysiu paprastai, jis nenaudingas Klaipėdai, klaipėdiečiams ir neturi jokios urbanistinės perspektyvos.
Ši kadencija padarė milžinišką klaidą dėl Klaipėdos plėtros koncepcijos, kai iš antrojo varianto – centrinės ir pietinės miesto dalių plėtros „kažkaip“ ėmė ir „pasidarė“ ketvirtasis variantas su maksimalia uosto plėtra. Beveik visi Tarybos nariai pakėlė rankas, nes jiems priimtina maksimali taršaus uosto plėtra su 3,2 karto didesne krova ir transporto tarša, triukšmo tarša, užterštumu, mirtingumu. Štai ir visa mūsų perspektyva, tad kokias „stipriąsias“ nuėjusių politikų puses galima pamatyti ir vertinti?
Kokių pokyčių ar patobulinimų tikitės iš naujojo mero ir miesto Tarybos sprendžiant miesto iššūkius ir ko, jūsų nuomone, jie galėtų pasimokyti iš ankstesnės miesto valdžios?
Na pasvajokime. Aš būčiau priblokštas, jeigu po 100 dienų meras pasikviestų architektus ir prisimintų, kaip prieš rinkimus pas mus buvo, apie kokius miesto skaudulius buvo iš mūsų išgirdęs. Nebekalbėtų apie pietinės dalies automobilių stovėjimo vietų trūkumą, o imtų ir tas aikšteles įrengtų. Reikėtų kalbėti apie viso miesto viziją, apie strategiją, apie esamą uosto taršą, apie uosto teritorijos konversiją. Jei tik pradėtų dialogą šiomis temomis, prašytų pagalbos nusimatant gaires, klaustų, nuo ko pradėti –atbėgčiau pats pirmas. Kiek reikėtų, sėdėčiau, kiek reikėtų, važiuočiau. Kai yra tikslas, kai yra vizija, negaila savo laiko. Suprantu, didžioji dalis mūsų dirba, kad užsidirbtų duonai, yra šeimos, paskolos, butai – ta buitis, kuri „suvalgo“ begalę laiko ir pinigų. Bet jeigu kalbame apie miesto plėtros viziją, galų gale – apie Baltijos jūros taršą, apie Lietuvos pajūrio ir visos rekreacinės industrijos likimą, – negaila nieko.
Taigi mano svajonė yra tokia, ir nemanau, kad ji yra neįmanoma. Bet kaip išjudinti tą problemą? Lietuvos bendrasis planas neišjudins, bet Klaipėdos bendrąjį planą pajudinti būtų galima. Tarši krova pati savaime neišsikels ir neišnyks. Tai neatsitiks nei per metus, nei per dvejus, bet jeigu mes turėtume viziją, kad, pavyzdžiui, po 20 metų iš tų 15 km uosto kokie 10 būtų Klaipėdos miesto, ar įsivaizduojate, kokia šventė Klaipėdoje būtų?
Yra Klaipėdos mieste tikrų architektūrinių ir urbanistinių bėdų ir net problemų. Yra dėl ko suraukti kaktas ir suremti pečius. Dirbkim.
What motivated you to become a socially active architect?
I wouldn't consider it public activity because it's my profession, which I dedicated 42 years of my life to. Since retiring in 2018, I have more time and freedom to do what I want. The system of publishing territorial planning documents in Lithuania is ironic. The municipality allows people to access the documents but only during working hours, making it impossible for employed individuals to par ticipate. Then we wonder why the public is inactive and uninterested. Find an employer who would let you attend events related to your interests. How many out of 10 employers do you think would allow it? How many events like that could you attend in a month?
As someone who served as a chief architect in two municipalities, what do you think are the most pressing urban issues facing the city?
Klaipėda city lacks water access due to the 15-kilometer port territory that separates it from the sea. This ongoing issue worsens over time, regardless of discussions or actions taken. The elevation of this strip is up to 30 meters, with a building density of up to 80%, raising concerns about coexistence with the rest of the city.
The issue is clear: the city-port relationship is incompatible.
Examples like Stockholm, Helsinki, Copenhagen, Gdansk, Rügen Island, Gotland, Riga, or Tallinn demonstrate that there are no port cities with heavy loads squeezed between the city and the Baltic Sea coast.
From 2018 to 2020, the Klaipėda City Council developed a strategic development plan for the municipality from 2021 to 2030, which was approved in 2020. I had the privilege of representing the Klaipėda Community Association and contributing to this document. Alongside 25-30 other individuals, we focused on urban planning, infrastructure, and environmental protection. The initial par t of the plan presents valuable statistics and official data, highlighting Klaipėda's strengths, weaknesses, and identity Based on this data, we identified 14 crucial problems in areas like urban planning, territorial planning, and transportation. These issues were listed without ranking or alphabetical order. Eventually, these 14 problems transformed into approximately 70 proposed solutions to address them.
Upon reviewing the proposed measures to address the crucial issues in Klaipėda, I decided not to offer any additional comments or suggestions due to the likelihood of misunderstandings, and even more serious consequences.
The initial strategic document revealed alarming statistics about our city, Klaipėda. Surprisingly, we ranked first in four unfavorable categories among Lithuania's largest cities: highest morbidity, pollution, shortest life expectancy, and highest mortality. It's puzzling given our coastal location. Despite my input, the essential problems of Klaipėda were overlooked in favor of trivial remedies like improving bike paths and addressing a decrease in the youth population. It's absurd to prioritize these distractions when we have industrial loading next to schools.
Before the local elections, two candidates for the mayor of Klaipėda came to meet with the architectural community. I quoted both candidates the best sentence from the entire Strategic Development Plan, stating that the causes of pollution in the city of Klaipėda, in order, are: the polluting activities of the port, the activities of the free economic zones and other companies, as well as the heavy and railway transportation ser ving them all. The "diagnosis" of the city of Klaipėda's "ailments" is stated very clearly in this sentence, and it seems that there is nothing more to discuss.
My wish is simple: no industrial companies, fences, cranes, or railways between Klaipėda city and the waterfront. It's my goal and dream. I'm unsure if I can achieve it, but I'm tr ying to share this dream with my fellow citizens and colleagues. If architects and urban planners don't address this issue, if we don't expose the city's urban wounds to the municipal authorities despite commissions, if we don't fight for change, nothing will happen. Unlike my colleagues, I have the freedom to act and speak without dependency. I know not all architects oppose my views; many silently agree. But that's all, for now.
During the election campaign, there was a great deal of enthusiasm about the shortage of parking spaces for cars in the southern part of the city as a huge urban problem. Yes, it is a huge problem. But... I have a good personal example: when I worked as the chief architect of the Šilutė District Municipality in 2017-2018, we developed a project to improve the residential block in the eastern par t of Šilutė. It is a Soviet-era development where about a third of Šilutė's residents live. We designed and implemented what they had been lacking for the past 30-40 years. It is essentially the same problem as in Klaipėda - the lack of parking spaces. We designed and installed them, and there was no
longer a need to park cars in the courtyard of apar tment buildings, basketball courts, or on the sidewalk. For some reason, the underground containers in Šilutė have been functioning without any complaints or issues for the past five years. Meanwhile, Klaipėda still manages to "delight" itself with the promise of an improved quality of life when one (or even two) semi-underground container parking lots are built somewhere in the city. Four years ago, I brought a thin folder with recommendations on how to solve the parking problems to the former administration director, and if I find it and am in a good mood, I will give a copy to the new mayor as well.
Regarding Klaipėda's issues, we can't just focus on bicycle path connections or sidewalk widths without addressing the core problems. If we fail to convert the polluted port area and relocate polluting port activities away from the city, nothing will change.
After a tour of Rotterdam to demonstrate that the Port of Klaipėda is managed well, an ar ticle was published in "Vakarų ekspresas" stating that the port representatives will purchase chemical binding agents to minimize dust. However, the ar ticle mentions that polluting materials in Rotterdam are handled 15 km outside the city When I read this sentence, I told the port representatives, "When you and your polluting cargo are 15 km outside the city, then you can load whatever you want, day and night, spread fertilizers, cement, iron to the left and to the right, but you won't be poisoning people in the middle of a 150,000-resident city."
We discussed port cargo pollution, but transportation also adds to the burden. It is estimated that 12,700 freight vehicles pass through Klaipėda towards the port daily By comparison, the English Channel crossing sees only 11,000 freight vehicles per day.
I support the necessity of the port in Klaipėda and Lithuania, but I have concerns about its location and the associated pollution. It is crucial to keep polluting activities away from the city center. A comprehensive evaluation of two potential locations, Klaipėda or Būtingė, would provide a clear solution However, the Environmental Impact Assessment Report highlights the negative consequences of constructing the port in Melnragė, including irreversible coastal erosion. By only focusing on channel deepening and pier extension, we seem to ignore the potential harm to the coastline, requiring continuous expensive efforts to maintain the beaches.
For years, I sailed on the "Lietuva" yacht to European city ports like Stockholm, Copenhagen, Gotland, Rügen, and more. I experienced docking just 200 meters from the "Little Mermaid" sculpture in Copenhagen and being 300 meters away from the Vasa Museum in Stockholm. However, our future Klaipėda marina lacks a designated space in the city center. Instead, they propose an outskir t location in the southern par t, far from the city centre. This raises questions about the lack of a clear vision for maritime Klaipėda.
How do you see the relationship between architects/urban planners and the municipality in addressing urban challenges, and what do you think could be done to improve this relationship?
Relationships in urban planning can be likened to a pyramid, with politicians at the top. Without political will and wisdom, progress is unlikely. As specialists, it's our responsibility as architects, planners, and urbanists to discuss and address the city's problems. We shouldn't rely on 31 politicians suddenly taking up the task of discussing Klaipėda's future. We must see urban decisions as our duty—to obser ve, raise concerns, ask questions, and find solutions.
I informed candidates for the mayor of Klaipėda that we need to revisit the territorial planning law, allowing separate general plans for significant projects independent of the cities. Currently, only the Port General Plan and the Klaipėda City General Plan have this provision, which restricts the remaining 95% of the city's area based on 5% occupied by the Port GP Moreover, the pollution and health impacts of these activities remain unaddressed. Changing the legal basis is essential to make progress with the Port General Plan Unfortunately, I'm pessimistic that the issues with the Klaipėda City General Plan will be resolved in this Council term.
Looking back at the previous government's term, what do you think were some of their strengths and weaknesses in addressing urban issues in the city?
My answer will be simple, I, without any negatives, have nothing to say. Just after finishing the term, the Council was very pleased: we approved the general plan for Klaipėda. And I will say simply, it is not beneficial for Klaipėda, its residents, and has no urbanistic perspective.
This term made a tremendous mistake regarding the development concept of Klaipėda when, out of the second option - the development of the central and southern par ts of the city - somehow the fourth option emerged with maximum port expansion. Almost all Council members raised their hands because they found the maximum expansion of a polluting port with 3.2 times greater cargo and transportation pollution, noise pollution, pollution, and mortality acceptable. That's our entire perspective, so what "strong" sides of the politicians who have left can be seen and evaluated?
What changes or improvements would you like to see from the new mayor and the city council in addressing urban challenges in the city?
In the wake of the elections, I would be amazed if after 100 days mayor invited architects and remembered what challenges our city faced, what urban issues he had heard from us. He wouldn't just talk about the lack of parking spaces in the southern par t, but would actually start developing those squares. We should be talking about the vision for the entire city, about the strategy, about the current pollution of the port, about the conversion of the port area. If he star ted a dialogue on these topics, asked for help in outlining some guidelines, and inquired where to star t - I would be the first to come forward. I would sit as long as necessary, I would travel if needed. When there is a goal, when there is a vision, one doesn't spare their time. I understand that the majority of us work to make a living, we have families, loans, apar tments - the everyday life that "devours" endless amounts of time and money. But when we talk about the vision of urban development, ultimately - about the pollution of the Baltic Sea, about the fate of the Lithuanian coast and the entire recreational industry - nothing should be spared.
So, my dream is like this, and I don't think it's impossible. But how can we activate that issue? The national general plan won't do it, but we could make a move with the Klaipėda general plan. The burden of pollution won't lift and disappear on its own. It won't happen in a year or two, but if we had a vision that, for example, in 20 years, 10 km out of those 15 km from the port would already be par t of the city of Klaipėda, can you imagine what a celebration it would be in Klaipėda?
In the city of Klaipeda, there are real architectural and urban problems, even issues. There are reasons to furrow brows and shrug shoulders. Let's work on it.
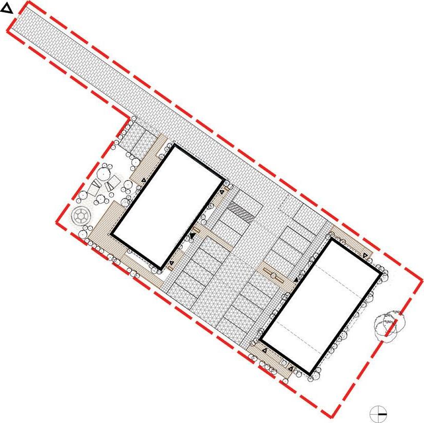
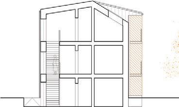
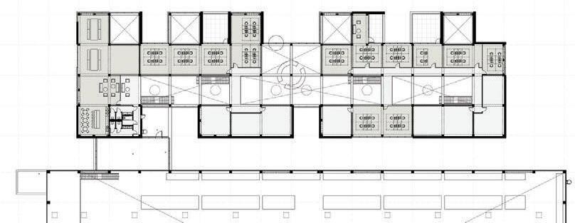
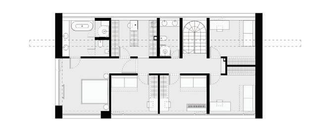
rajono dalies, tarp Gluosnių gatvės ir Danės upės, planavimo. Planuodami teritoriją ir ypač viešąsias erdves, pirmiausia siekėme, kad krantinė būtų gyva ir aktyvi bet kuriuo paros metu, patogiai pasiekiama tiek iš Senamiesčio, tiek ir aplinkinių Malūnų rajono teritorijų. Teritorijos centre, remdamiesi istorine medžiaga, numatėme vidinę alėją su vaizdu į planuojamą atstatyti Jono bažnyčią ir patogiais pėsčiųjų bei dviračių takais, vedančiais į Senamiestį. Istorinis vietos charakteris padiktavo ir pastatų architektūrą. Palei Danės upę jų išraiška yra tarsi šiuolaikinė pramoninių uosto sandėlių interpretacija, o ties Gluosnių gatve formuojamas kvartalinis užstatymas su gausiai apželdintais kiemais, primenančiais anksčiau čia plytėjusius sodus. Siekėme, kad net gyvenamojoje Malūnų rajono dalyje pastatai būtų daugiafunkciai. Patraukliose vietose, prie pagrindinių gatvių ar viešųjų erdvių, numatyta galimybė įsikurti smulkiai komercijai –restoranams, parduotuvėms, kirpykloms ir panašiai, kad gyventojai daugelį jiems reikalingų paslaugų galėtų rasti tiesiog kaimynystėje, – taip mieste atsirastų gyvybė ir būtų išvengta nereikalingo ir taršaus važinėjimo po skirtingus rajonus. Taip pat labai svarbus aiškus viešųjų ir privačių erdvių atskyrimas. Privačios erdvės būtų saugios ir prižiūrimos jų šeimininkų, o viešosios erdvės – gyvos ir skatinančios bendravimą tarp skirtingų socialinių grupių.
Eriadas, Tech Zity, Švyturys BHouse ir Idėjos miestui iniciatyva - suburti išskirtinėje
Klaipėdos miesto vietoje įsikūrusius ir besikuriančius gyventojus, verslus, kultūros ir meno projektus į bendruomenę ir atrasti tai, kas ją jungia
Rajono pavadinimas – Malūnai – tai bendras visos bendruomenės, susirinkusios aptarti rajono ateities gaires, kūr ybinis produktas. Būtent šis pavadinimas buvo išsirinktas kaip plačiausiai apimantis visą rajono geografiją, architektūrą, skirtingas veiklas ir istorinius sluoksnius. Kitais žodžiais, labiausiai telkiantis skirtingus požiūrius ir atskleidžiantis, kad bet kurios miesto dalies plėtra nėra tik architektūriniai projektai, o daug daugiau.
Pagrindinis siekis – kurti atvirą rajoną, pilną kūr ybinės energijos ir bendradarbiavimo. Ši miesto vieta yra puiki terpė Klaipėdos, kaip 15 minučių miesto, idėjai plėtoti. Pradžioje reikia labai nedaug – sukurti galimybę gyventojams pėsčiomis pasiekti daugelį jiems reikalingų vietų. Formuoti gyvą miestą, kuriame sumažėja poreikis naudotis automobiliais, o kartu sprendžiamos transporto kamščių ir taršos problemos. Tokiam tikslui pasiekti rajonas turi būti gana tankus – tiek gyventojų skaičiumi, tiek įsikūrusias verslais. Būtent gyventojų šioje miesto dalyje labiausiai trūksta, todėl džiaugiamės, kartu su „Eriadas“ galėdami prisidėti prie centrinės
Tikime, jog tokio dydžio ir svarbos projektus tiesiog privalo dar yti didelės komandos. Kuo daugiau architektų su skirtinga patirtimi, požiūriu ir kūr ybinėmis idėjomis prisideda prie koncepcijos kūrimo, tuo turtingesnis ir įdomesnis rezultatas pasiekiamas. Klaipėdos architektai labai sėkmingai įsiliejo į bendrą mūsų komandą ir praturtino projektą miesto dvasios pajautimu. Ir, svarbiausia, tai yra tik nedidelė dalis Malūnų rajoną kuriančios bendruomenės – prie rajono kūrimo savaip prisiliečia kiekvienas, kuriam tai rūpi. Džiaugiamės, galėdami prie to prisidėti, ir nekantraujame apsilankyti atgimusiame Malūnų rajone.
Žvilgsniai / Views 16
Malūnai District is a unique urban development initiative initiated by real estate development companies "Eriadas" and "Tech Zity" and organized by professionals from "Idejos Miestui" ("Ideas for the City"). This location in Klaipėda is remarkable for its interesting history, the banks of the Danė River, remnants of industrial heritage, the Malūnas Park, and the adjacent Old Town atmosphere. However, despite having such distinctive features, it currently lacks the most important element - identity It is a territory of indescribable character situated between the historic part of the city and the new districts. But we believe that this ambitious initiative will be able to turn its shortcomings into advantages. Existing, developing, and future fragments will be connected to form a new entity that reflects the values of the community that resides here, and the place, lacking a distinct visual and character, will change unrecognizably.
The name of the district, "Malūnai," is a collective product of the entire community that gathered to discuss the future guidelines of the district. This name was chosen because it most comprehensively encompasses the geography, architecture, diverse activities, and historical layers of the entire district. In other words, it gathers various perspectives and reveals that the development of any part of the city is not only about architectural projects but much more.
The main goal is to create an open district full of creative energy and collaboration. This urban area provides an excellent environment for developing Klaipėda as a "15-minute city" concept. At the beginning, very little is needed - creating the possibility for residents to reach many places they need on foot. The aim is to shape a lively city where the need for car usage decreases, while simultaneously addressing the problems of traffic congestion and pollution. To achieve this goal, the district needs to be sufficiently dense in terms of both population and established businesses. It is precisely the lack of residents in this part of the city that is most felt, so we are pleased to be able to contribute, together with "Eriadas," to the planning of the central part of the district, between Gluosnių Street and the
When planning the territory, especially public spaces, our primar y focus was to ensure that the waterfront is vibrant and active at any time of the day, easily accessible from both the Old Town and the surrounding areas of Malūnai District. In the center of the territory, based on historical material, we have envisioned an internal alley with a view of the planned reconstruction of the Jonas Church and convenient pedestrian and bicycle paths leading to the Old Town. The historical character of the place also influenced the architecture of the buildings. Along the Danė River, their expression resembles a modern interpretation of industrial port warehouses, while a block structure with abundantly green courtyards, reminiscent of former gardens, is formed along Gluosnių Street. We aimed for the buildings in the residential part of Malūnai District to be multifunctional. In attractive locations, along the main streets or public spaces, there is the possibility of establishing small-scale commercial activities such as restaurants, shops, hair salons, etc., so that residents can find many of the ser vices they need right in their neighborhood. This way, life would emerge in the city, and unnecessary and polluting travels across different districts would be avoided. Clear separation between public and private spaces is also crucial. Private spaces would be safe and maintained by their owners, while public spaces would be lively and foster interaction among different social groups. We believe that projects of this scale and importance must be carried out by large teams. The more architects with different experiences, perspectives, and creative ideas contribute to the development of the concept, the richer and more interesting the result becomes. Klaipėda's architects have successfully integrated into our collective team and enriched the project with the spirit of the city And most importantly, this is only a small part of the community that creates Malūnai District - everyone who cares about it contributes in their own way to the district's development. We are delighted to be able to contribute to this process and look forward to visiting the revitalized Malūnai District.
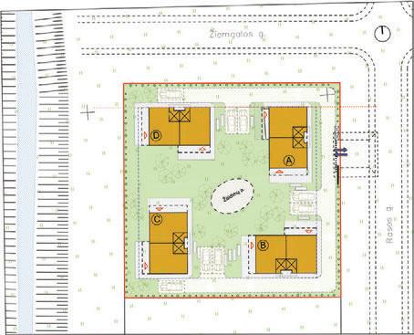
Projekto pavadinimas / Project name:
Kuršių vartai
Naujojo sodo g. 3, Klaipėda
Andrius Keizikas, Arnas Deltuva, Gintaras Čaikauskas, Viktoras Čeika, Jokūbas Augutis
Projektavimo įmonė / Office:
MB „Devyni plius” (www.devyniplius.lt), UAB „Architektūros linija” (www.architekturoslinija.lt)
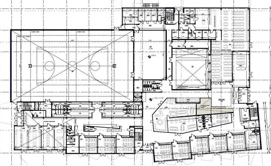
Projektuojamos krantinės su administraciniu pastatu yra Klaipėdos valstybinio jūsų uosto akvatorijoje, ribojamos Danės upės, Kuršių marių ir Naujojo Sodo gatvės. Teritorija yra vystomo Mėmelio miesto tąsa šiaurės vakarų kr yptimi ir vartai į Kuršių marias, formuojama plečiant krantinės nr. 22 ilgį pietų ir plotį vakarų kryptimis.
Apžvelgiant nagrinėjamą teritoriją platesniame kontekste, projektuojamas objektas taps Klaipėdos miesto panoramos, silueto, išklotinės dalimi. Taps r yškiausia dominante stebint Klaipėdą iš įvairių lokacijų Kuršių nerijoje ir iš Kuršių marių, esamos architektūros aukštybinių pastatų bei atstatomų istorinių objektų kontekste.
Tai galimybė užtikrinti integralų, daugialypį, daugiafunkcį traukos centrą, gyvybingą visą parą ir ištisus metus. Tai ne vien miesto vartai į jūrą, bet ir jūros vartai į miestą.
The planned quays, along with an administrative building, are situated in the water area of Klaipėda State Port, bordered by the Danė river, Curonian Lagoon, and Naujojo Sodo street. This location is an extension of „Memelio miestas“ development and ser ves as a gateway to the Curonian Lagoon. When considering the broader context of the area, the new building will become an integral par t of the skyline, panoramas and waterfront of Klaipėda. It will become a landmark when obser ving Klaipėda from various vantage points on the Curonian Spit and from the Curonian Lagoon, amidst the existing high-rise buildings of architectural significance. This presents an exceptional opportunity to create a cohesive, versatile, and polyfunctional focal point that remains vibrant throughout the day and year, becoming not only a gateway from the city to the sea but also a gateway from the sea to the city.
Adresas
Naujojo sodo g. 3, Klaipėda
Architektai /
Algimantas Neniškis, Gilma Teodora Gylytė, Andrė Baldišiūtė, Sabina Grincevičiūtė, Emilija Deksnytė, Solveiga Buoželytė, Milda Grabauskaitė, Laura Gaudutytė
Vienoje patraukliausių Klaipėdos miesto vietų – tarp miesto centro ir vandens – projektuojamas naujas Kruizų terminalas ir Klaipėdos jūrų uosto direkcijos administracijos pastatas su automobilių saugykla.
Ši vieta ilgus metus buvo uždara uosto ekvatorijos erdvė, kurios atvėrimas kėlė ir kelia lankytojų bei gyventojų susidomėjimą ir smalsumą Todėl projektuojamas ikoniškas uosto administracijos pastatas ir siūloma sukur ti viešąją erdvę – uosto parką, kuris reprezentuotų miestą jo svečiams, kartu ir miesto gyventojams būtų pasivaikščiojimo, saulės palydėjimo ir įvairių renginių erdvė, galinti virsti pagrindine miesto scena.
In one of the most attractive places in the city of Klaipėdabetween the city center and the waterfront - a new Cruise Terminal is and an administrative building with a car storage facility is designed.
An iconic building of the port administration is being designed to create a landmark which represents the city to guests coming by waterways, additionally creating the surrounding urban public space –An urban port park. It provides an important element for city residents as a space for walks, sunbathing and events of various sizes. This place has been a closed area of the port equator for many years, the opening of which has aroused the interest and curiosity of visitors and residents.
Projekto pavadinimas / Project name:
Naujojo Sodo g. 3, Klaipėda
Petras Džervus (Urbanistinė architektūra);
Aidas Barzda, Tautvydas Vileikis, Tomas Umbrasas (YCL)
Projektavimo įmonė / Office:
MB „Urbanistinė architektūra” (www.urbanistinearchitektura.lt),
UAB „YCL” (www.ycl.lt), UAB „Kelprojektas”, MB „Kordonas”
Krantinės diktuoja marinistinę pastato idėją – UOLA, matomas aiškus kranto riboženklis, kartu džiugus kelionės pabaigos simbolis.
KVJUD reikmėms projektuojamas dviejų dalių kompleksas –dengta antžeminė automobilių aikštelė ir prišlietas administracinis pastatas. Stačiakampio plano stilobatas atitinkamose vietose nuleistas iki žemės rampomis ir laiptais, užtikrinant pėsčiųjų jungtis. Kar tu su aplinkos kalvelėmis ir mažąja architektūra formuojama stilizuota uolėto kranto topografija.
Uolos idėja atskleidžiama pagrindinio tūrio architektūrine raiška: aiški stačiakampio gretasienio forma vietomis nuskelta, nugludinta ir šiurkšti. Konstrukciškai logišką pastato karkasą juosia ritmiška stiklo fasado struktūra. Ant jos montuojamos kylančio arba besileidžiančio rašto lamelės suteikia faktūriškumo ir dinamikos.
The architectural concept is a maritime theme resembling a ROCK, a clearly visible boundary mark and a joyous symbol of the end of a journey. The building to ser ve the needs of Klaipėda Port authority is composed of two volumes – a covered parking lot and an adjacent administrative building. A rectangular stylobate is designed to meet the ground in certain places which feature ramps and stairs that provide seamless pedestrian connections. A new topography resembling a rocky shore is created with an undulating landscape and urban furniture. The concept of a rock is reflected in the architectural expression of the main building as a regular rectangular volume with chipped, polished and rough areas covered by a rhythmic glass façade with alternating lamella patterns that provide a dynamic expression.
I vieta Iterum
Projekto pavadinimas / Project name:
Adresas / Address:
Savanorių a. 3A, Panevėžys
Architektai / Architects:
Petras Džervus, Tomas Medzelas, Gabrielė Kairytė
Projektavimo įmonė / Office:
MB „Urbanistinė architektūra” (www.urbanistinearchitektura.lt)
Sklypas – istoriniame miesto centre, detaliuoju planu suplanuotoje teritorijoje. Pirmieji du pastato aukštai skiriami socialinėms paslaugoms teikti ir administracijos darbo vietoms įrengti, likusiuose aukštuose įrengiami būstai savivaldybės darbuotojams. Pietinėje sklypo dalyje pastatas jungiamas su esamu keturių aukštų pastatu. Šiaurinė sklypo dalis neužstatoma, formuojamas atviras viešas pasažas tarp Savanorių ir Laisvės aikščių.
Projektuojamo pastato architektūrinė idėja – integralus šiuolaikinis pastatas, atiduodantis duoklę istoriniam kontekstui. Bendra pastato architektonika sprendžiama modernios klasikinės klinkerio plytų apdailos fasadais, nereguliariu langų ritmu, tūriniais stoglangiais.
Patalpų interjerai lakoniški, modernūs, šviesių monochrominių atspalvių, su ryškesniais natūralių medžiagų akcentais.
The site is located in the historical centre of the city governed by detailed plan regulations. The first two floors of the building are dedicated to the provision of social ser vices and administrative workplaces, while the remaining floors accommodate housing for municipal employees. In the southern section of the plot, the building is connected to an existing four-storey building. The northern par t of the plot remains undeveloped, creating an open public passage between Savanorių and Laisvės squares. The idea of the new building combines an integral modern building with a respectful nod to the historical context. The overall design features a modern yet classic clinker brick facade, an irregular rhythm of windows and volumetric skylights. The interior spaces are minimalistic and contemporary with light monochromatic shades and vibrant natural material accents.
Sklypo planas Pirmo aukšto planas Trečio aukšto planasI vieta
Projekto pavadinimas / Project name:
GAMT ON
Adresas / Address:
Bajorų kelias 12, Vilnius
Architektai / Architects:
Laimonas Bogušas, Petras Džervus, Tomas Medzelas, Gabrielė Kairytė
Projektavimo įmonė / Office:
MB „Urbanistinė architektūra” (www.urbanistinearchitektura.lt)
Gamton atgręžta, intensyvios natūralios gamtos apsupta mokykla, į mišką žvelgiančių klasių erdvės, erdvios lauko klasių terasos, išplečiančios klasių erdves, ugdymui naudojamos žaliosios sklypo erdvės
pagrindiniai reikšminiai koncepcijos žodžiai.
Mokyklos pastatas projektuojamas šiaurės r ytinėje sklypo dalyje, šalia esamų gatvių, taip suformuojant nuo urbanistinio gaudesio apsaugotą centrinę ir pietinę sklypo dalis, kuriose kuriamas mokyklos gyvenimas. Pastatas erdviomis laiptuotomis terasomis atsiveria į kertinę sklypo esamybę – gausiai apželdintą pietinę dalį. Rekreacinio įvaizdžio pastatas, užtikrinantis emociškai ir fiziškai saugią bei efektyvią mokymosi, edukacijos erdvę.
Sklypo teritorija dalijama į funkcines zonas (mokyklos pastato, sporto aikštyno, apželdintos dalies ir sporto aikštyno).
A school nestled amidst abundant greenery with classrooms overlooking the forest, spacious terraces of outdoor classes, expanding classrooms and the use of green areas for educational purposes as the main keywords of the concept idea. The school building is designed in the northeastern par t of the plot, next to the existing streets, thus protecting the central and southern par ts of the plot from urban noise and creating spaces for school life. The building opens with spacious stepped terraces towards the main existing feature - lushly planted southern par t of the site. A building with a recreational ambiance, which ensures an emotionally and physically safe and efficient learning and education space. The plot is divided into distinct functional zones, including the school building, sports field, green areas and a sports ground located in the southern section of the plot.
Archicechas
KONKURSAS
STATE FORESTRY OFFICE ADMINISTRATIVE BUILDING OPEN ARCHITECTURAL COMPETITION
Projekto pavadinimas / Project name:
Erčios
Adresas / Address:
Trakų g. 1, Pylimai, Elektrėnų r. sav.
Architektai / Architects:
Andrius Skiezgelas, Algimantas Rybelis, Vika Pranaitytė-Bareckė
Projektavimo įmonė / Office:
UAB „Archicechas” (www.archicechas.lt)
Vizualizacijos / Visualisations:
Vilius Žeimys
Antro aukšto planas
VMU būstinės architektūrinė idėja – siekiant išsaugoti kuo daugiau brandžių ir vertingų medžių, simbolinėje ERČIO JE projektuojamas kompaktiškas trijų aukštų tūris, kurio forma padiktuota optimalaus funkcinės programos išdėstymo supančioje gamtinėje aplinkoje. Pastatas planuojamas O formos principu, sukuriant maksimalius vizualinius r yšius su esamu pušynu. Pastato centrinėje dalyje kuriamas erdvus holas su įspūdingu stikliniu stoglangiu natūraliai šviesai. Virš holo erdvės formuojamas 20 x 20 m kiemelis susikaupimui, meditacijai gryname ore. Pasirinkta lanksti 3 x 3 m ašių sistema, suteikianti beveik neribotas galimybes keisti ir papildyti organišką pastato struktūrą, atliepiant besikeičiančius poreikius.
Išorės lankytojų pastatas – skaidrus tūris, tarsi išimtas iš VMU pastato tūrio ir įkomponuotas gretimoje ERČIOJE, įgilinant apie 1 m.
The architectural concept behind the VMU headquarters revolves around the preservation of mature and valuable trees as a compact three-story volume designed in the symbolic shape of ERČIA carefully integrating the functional program within the surrounding natural environment. The building is designed as an O-shaped layout, maximising visual connections with the existing pine forest. The central par t of the building is a spacious hall with an impressive glass skylight and a 20x20 metre outside courtyard for concentration and meditation above the hall space. A flexible structural system arranged on a 3x3 metre grid provides almost unlimited possibilities to adapt and expand the organic structure of the building to meet evolving needs.The visitor building – a transparent volume appearing as if it was taken from the main headquarter volume –is placed in a nearby ERČIA recessed by 1 metre into the ground.
Adresas / Address:
Taikos pr. 70, Klaipėda
Architektai / Architects:
Donatas Baltrušaitis, Agnė Dailidaitė, Milda Pacevičiūtė, Augustas Makrickas
Projektavimo įmonė / Office:
MB „Bauland” (www.bauland.lt), Xwhy
Užsakovas / Client:
Klaipėdos miesto savivaldybės administracija
Plotas / Area:
11 800 m2
Sklypo plotas / Site area:
25 500 m2
RŪMAI“
Kultūros centro „Žvejų rūmai“ modernizavimo koncepcija apima šio kultūros centro veiklos modernizavimo ir pastato erdvių pritaikymo galimybes. Projekto procesas buvo įtraukus – surengtos tr ys kūr ybinės dirbtuvės, kurių metu buvo pristatomos ir vertinamos siūlomos idėjos.
Keliami klausimai: kokį identitetą kultūros centras „Žvejų rūmai“ nori įgyti ateityje? Koks stipriausias šio kultūros centro potencialas ir kurios funkcinės veiklos yra jam svarbiausios?
Modernizavimo koncepcija siūlo apmąstyti kultūros centro misiją, ambiciją ir viziją pritaikant jį šiuolaikinėms reikmėms. Detalizuojama alternatyva siūlo modernizuoti esamą pastatą, įveiklinti stogą, atverti rūsio aukštą ir sukur ti naują priestato tūrį, suformuojant „Žvejų rūmų“ vidinį kiemą lauko renginiams.
The project proposes an architectural concept for modernisation of Žvejų Rūmai Cultural Centre. The concept includes three different modernisation scenarios for the complex while adapting the building's spaces to new needs. What kind of cultural centre does Žvejų Rūmai want to be in the future? What is the strongest potential of this cultural centre and which functional activities are the most important? The modernisation concept rethinks Žvejų Rūmai Cultural Centre's mission, ambition, and vision The chosen renovation scenario proposes to modernise the existing building, activate the roof, open the basement floor, and create a new extension volume forming the inner courtyard of the complex for outdoor events. The project process was inclusivethree creative workshops were held, during which the proposed ideas were presented and evaluated.
Adresas / Address:
Jaunystės g. 20, Klaipėda
Architektai / Architects:
Stanislovas Lukšas, Kristina Jurkutė, Rolandas Rakevičius
Projektavimo įmonė / Office:
UAB „Archko” (www.archko.lt)
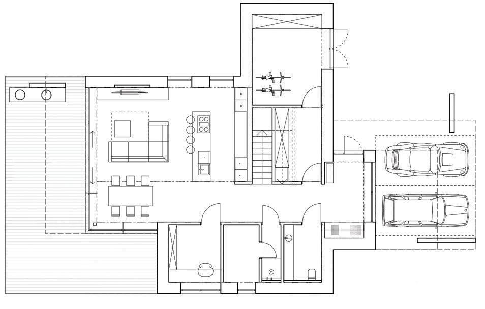
Projektuojamas vienaukštis vieno buto gyvenamasis namas su vienu miegamuoju, svetaine ir pagalbinėmis patalpomis.
Įvažiavimas į sklypą paliekamas esamas, iš Jaunystės gatvės.
Pastatas yra Paupio dvaro sodybos ir ligoninės pastato komplekso, vad. Bachmano dvaru (244), kultūros paveldo teritorijoje, ir pats yra kultūros vertybė – Kalvės pastatas (32567).
Saugomos esamos autentiškos sienos. Naujos sienos įrengiamos iš gipso kartono konstrukcijų, išorinės naujos sienos įrengiamos iš stiklo, nauja stogo dalis (nepaveldinė) – monolitinio gelžbetonio.
A single-apar tment, single-story house with one bedroom, a living room, and additional facilities is currently being designed. The plot is accessed from Jaunystė Street. The building is an integral par t of the Paupio manor homestead and hospital building complex, named Bachman manor (244) preservation area. It holds significant cultural heritage value as a Forge (32567). Existing original walls are preserved with an addition of new par titions and an outer structure with a concrete roof and glazed facades.
Adresas / Address:
Tremtinių g. 13, Palanga
Architektai / Architects:
Tomas Jakovlevas, Augustas Urbonas
Projektavimo įmonė / Office:
UAB „Archipoint LT” (www.archipoint.lt)
Architektūrinių sprendinių tikslas – sukur ti pastatus, išlaikant bendrą architektūrinę stilistiką, derinant prie gretimų sklypų užstatymo, kuriant mastelio, tūrio ir erdvių santykių vientisumą Numatoma pastatų modernios ir tradicinės architektūros išraiškos samplaika, parenkant modernias detales – karnizo užleidimus, paslėptus lietvamzdžius, vitrininius langus. Fasadų išraiška saikinga, deranti prie konteksto. Projektuojamų pastatų sienų apdaila – degintos pušies dailylentės, kurių spalva ar tima tradicinėms Žemaitijos regiono spalvoms. Dvišlaičių stogų danga: fibrocementinės plokštės, deginto molio čerpių spalvos. Pastatai projektuojami, atsižvelgiant į Kunigiškių teritorijos, Palangos miesto bendrajame plane pažymėtos kaip K6 ir K9 kvartalai, architektūrinėsurbanistinės sistemos ir kraštovaizdžio tvarkymo specialųjį planą.
168 m2 ir 163 m2
Plotas / Area: Tūris / Volume: Sklypo plotas / Site area:
845 m3 ir 822 m3 1 779 m2
The architectural idea is to design buildings with a unified architectural style in harmony with existing buildings on adjacent plots, creating unity of scale, volume, and spatial relations. A mix of modern and traditional architectural expression is planned, using modern details - eaves drops, hidden downspouts, and large windows. The expression of the facades is moderate, matching the context. The facades of the planned buildings are clad with burnt pine boards, matching the traditional colours of the Samogitia region. The roofs are clad with fibrecement roof tiles in the colour of burnt clay tiles. The decoration of the building was selected according to "Kunigiškiu territories, marked as K6 and K9 quar ters in the general plan of the city of Palanga, architecturalurban system and landscape management special plan".
NAMAS PRIE UPĖS
HOUSE BY THE RIVER
Adresas / Address: Plotas / Area: Tūris / Volume: Sklypo plotas / Site area:
Žuvų g. 10, Šilutė
Jurgis Jurevičius, Rolandas Šarapajevas
UAB „Architektūros namai” (www.architekturosnamai.lt)
Architektai / Architects: 220 m2 1 200 m3 736 m2
Sklypo planas
Išlaikant aplinkos mastelį, gyvenamasis namas padalintas į dvi panašios išraiškos tūrio formas su vieno aukšto jungiamuoju pastatu. Tūriai naudojami skir tingoms funkcijoms: miegamasis, gyvenamasis ir SPA. Medžiagos: molio čerpės ir stiklas. Namo langai orientuoti į svarbiausią objektą – upę.
Antro aukšto planas
NAMAS KURŠIŲ MARIŲ PAKRANTĖJE
Adresas / Address:
Svencelės g. 66, Svencelė, Klaipėdos r. sav.
Augustė Bujokaitė, Giedrius Bujokas
Architektai / Architects: Plotas / Area: Tūris / Volume: Sklypo plotas / Site area:
UAB „TS Projects” (www.tsprojects.lt)
Pirmo aukšto planas Mansardinio aukšto planas
Gyvenamasis namas – vieno aukšto su mansarda, skir tas šešių asmenų šeimai. Pirmame aukšte numatyta erdvi svetainės ir vir tuvės zona ir patogiam šeimos gyvenimui reikalingos pagalbinės patalpos.
The modern residential house is designed in the village of Svencelė, on the eastern coast of the Curonian Lagoon The architectural solutions of the building were chosen, taking into account the surrounding natural elements and the landscape. To maximise the integration of nature into the house, windows are positioned towards the Curonian Lagoon and the forest on the opposite side.
A combination of two different facade finishing materials and colours was selected, highlighting the volumetric design of the house. Light grey polished concrete slabs and brown weathered metal panels are used for decoration.
The single-storey with an attic, designed to accommodate a family of six. The ground floor features a spacious living room and kitchen area, along with auxiliary facilities essential for a comfortable family life.
Klaipėdos architektūra 2022 / Klaipėda architecture 2022 35
Architektai / Architects:
Augustė Bujokaitė, Giedrius Bujokas
Projektavimo įmonė / Office:
Gyvenamasis namas su ūkiniu pastatu yra Šilutės miesto istorinėje dalyje, vakarinėje senojo turgaus aikštės dalyje, kurioje, remiantis istoriniais duomenimis, žvejai tiesiai iš valčių pardavinėdavo žuvis.
Atsižvelgiant į greta esančius gamtinius elementus, gyvenamasis namas sklype orientuotas lygiagrečiai Šyšos upės vagos. Pratęsiamas teritorijai būdingas sodybinis užstatymo tipas.
Siekiant išlaikyti teritorijos vientisumą, statinių architektūrinė ir spalvinė raiška parinkta atsižvelgiant į greta stovinčius bei Šilutės miesto istorinėje dalyje esančius statinius. Gyvenamasis namas – vieno aukšto su mansarda, ūkinis pastatas – vieno aukšto su pastoge. Pastatų fasadai simetriški, parinkta pilkos spalvos klinkerio plytelių ir molio raudonumo čerpių stogo apdaila.
The residential house with an outbuilding is situated in the historical par t of the town Šilute, in the old market square. According to historical records, fishermen used to sell fish directly from their boats in this area.
Taking into consideration the surrounding natural elements, the residential house on the plot is oriented parallel to the Šyša river. The homestead-style construction, typical for the area, is extended. To preserve the integrity of the surroundings, the architectural design of the buildings was chosen in harmony with the structures found in the historical par t of Šilutė. The residential house is planned to have one storey with an attic, while the outbuilding will be a single-storey structure with a shed. The facades of the buildings are symmetrical, adorned with grey clinker bricks and clay-red roof tiles for decoration.
Adresas / Address:
Švyturio g. 1, Šturmai, Šilutės r. sav.
Giedrius Bujokas, Augustė Bujokaitė
Projektavimo įmonė / Office:
UAB „TS Projects” (www.tsprojects.lt)
600 m2
/
Projektuojami statiniai / Projected buildings:
Pirmo aukšto planas
Remiantis istoriniais šaltiniais, analizuojamame sklype yra buvusi istorinė Muižės kaimo gyvenvietė. Teritorijoje, esančioje r ytinėje Kuršių marių pakrantėje, stovėjo Muižės dvaras su 8 priklausiniais, kurie sovietmečiu buvo apleisti ir ilgainiui sunyko. Siekiant atkurti autentišką dvaro sodybą ir jos statinių vizualinę išraišką bei išdėstymą sklype, buvo atlikta išlikusios istorinės ikonografinės ir kartografinės medžiagos analizė.
Pagrindinio sodybos statinio – Muižės dvaro – apdailai naudojamos tradicinės apdailos medžiagos, fasadai tinkuoti, puošti langinėmis ir dekoratyviais mediniais elementais, stogas dengtas molio čerpėmis. Dvaro priklausiniams taip pat naudojamos tradicinės apdailos medžiagos: klinkerio plytos, medinės dailylentės, molio čerpės.
According to historical sources, there was a former historical settlement of Muižė village on the plot. The Muižė manor, along with eight outbuildings, was situated on the eastern shore of the Curonian Lagoon. They were abandoned during the Soviet era and eventually fell into disrepair. An analysis of the sur viving historical iconographic and cartographic materials was carried out to restore the manor house and recreate the visual expression and arrangement of the outbuildings. Traditional finishing materials are utilised for the decoration of the main building, Muižė manor. The facades are plastered and adorned with shutters and decorative wooden elements, while the roof is covered with clay tiles. Similarly, traditional facade decoration materials such as clinker bricks, wooden panelling, and clay tiles have been employed for the outbuildings.
Adresas / Address:
Vytauto g. 1, Priekulė I, Klaipėdos r. sav.
Architektai / Architects:
Jurgita Burbienė, Laura Čivilienė, Gedas Lučinskas, PV: Indrė Auškelė
Projektavimo įmonė / Office:
UAB „NT projektavimas” (www.ntprojektavimas.lt)
Objektas gamtinėje aplinkoje, nedidelių tūrių, fasadai puošti organiškomis apdailos medžiagomis ir spalviniais sprendimais. Gyvenamasis namas susideda iš dviejų taisyklingų stačiakampio plano tūrių, sujungtų trapecine veranda. Siekiant suformuoti dvi atskiras zonas, jungtis numatyta pleišto formos, pabrėžiant pastato tūrių savarankiškumą / individualumą. Vidinis kiemas su terasomis orientuotas į vandens telkinį kiemo viduje, siekiant pabrėžti ir išr yškinti objekto ir gamtos ryšį.
An architectural project of small volumes with organic facade materials and a harmonious colour scheme is set in a natural environment. The house is designed as a composition of two rectangular volumes in plan joined by an irregular veranda. To create distinct zones, the connection is cleverly formed as a wedge, accentuating the individuality and independence of each building volume. The inner courtyard, with terraces, is oriented towards a pond, accentuating the connection between building and nature.
Adresas / Address:
Marių g. 6A, Ventė, Šilutės r. sav.
Architektai / Architects:
Jurgita Burbienė, Laura Čivilienė, Gedas Lučinskas, PV: Indrė Auškelė
Projektavimo įmonė / Office:
UAB „NT projektavimas” (www.ntprojektavimas.lt)
Suprojektuotas vieno buto gyvenamasis namas ir pagalbinio ūkio paskir ties pastatas išskirtinėje Lietuvos vietovėje, šalia Kuršių marių. Objektas organiškai įsilieja į natūralų gamtinį kraštovaizdį. Vizuali pastatų išraiška orientuota į Nemuno deltos pastatams būdingą architektūrą – tūriai optimalūs, tradicinių apdailos medžiagų ir proporcijų. Suprojektuotas vieno buto gyvenamasis namas yra vieno aukšto, turi mansardinį aukštą. Šalia gyvenamojo pastato suprojektuotas ūkinis pastatas, padalintas į du tūrius: viename ūkinė patalpa, skir ta daiktams ir ūkio reikmenims laikyti, o kitame – poilsio zona su pirtimi.
A single family house and outhouse are designed in a unique place near the Curronian lagoon. The design seamlessly integrates the structures within the surrounding natural landscape. The visual expression of the buildings draws inspiration from the distinctive architecture of the Nemunas delta region, featuring optimal volumes, traditional materials and proportions. The single family house is a one storey building with an attic. An outbuilding is planned adjacent to the main house. It is divided into two volumes: one ser ving as a utility room for storage, while the other offers a dedicated recreational area with a sauna.
Adresas / Address:
Architektai / Architects:
Edgaras Neniškis, Arūnas Liola, Greta Vasiliauskaitė
Projektavimo įmonė / Office:
Antro aukšto
Projektuojamas namas, reaguojantis į antropogeninį ir gamtinį kontekstą: atliepiantis esamo užstatymo masteliškumą ir siekiantis darniai įsilieti į ar timą gamtinę aplinką – pušyną. Sukur ta struktūruota tūrinė kompozicija savaime formuoja skir tingas erdvines zonas sklype –pagrindinę terasą pietuose, r ytinį kiemelį, įėjimo erdvę. Dėl pušynuose stokojamos saulės šviesos pagrindinis siekis – jos sugaudyti kuo daugiau ir įsileisti vidun Tam suprojektuotas namą juosiantis „šviesos žiedas“ – viršlangių sistema, leidžianti stebėti saulės judėjimą per parą, pušų svyravimą vėjyje 360 laipsnių kampu. Sukuriamas tarsi levituojančio antrojo aukšto motyvas, šią atskirtį pabrėžiant ir kontrastuojančiomis medžiagomis – pirmajame aukšte naudojama skelto akmens apdaila, tuo tarpu antrajame aukšte pastato medinė apdaila susilieja su pušų kamienais.
The design of the house responds to the man-made and natural context, especially the scale of surrounding buildings with an aim of harmoniously blending into the nearby natural environment - a pine forest. The structured volumetric composition forms different spatial zones on the plot - a terrace in the south, an eastern courtyard and an entrance space. Due to the lack of sunlight from the pine trees the design aims to catch as much sunlight as possible. The "ring of light" surrounding the house is designed to obser ve the movement of the sun during the day, the swaying of the pine trees in the wind at a 360-degree angle. The motif of a levitating second floor is created by emphasising this separation and adding contrasting materials - the first floor uses a split stone finish, while the second floor features a wooden finish.
Adresas / Address:
Architektai / Architects:
Edgaras Neniškis, Žilvinas Urbas
Projektavimo įmonė / Office:
UAB „Arches” (www.arches.lt)
Didelės šeimos namas turi visiems jos nariams pasiūlyti individualias erdves, kartu atverti vaizdus į pušynus, surinkti visus pro medžius besiskverbiančius saulės spinduliukus. Tokie uždaviniai ir nulėmė namo architektūrinę išraišką ir struktūrinę logiką. Pulsuojantys stačiakampiai tūriai, didelėmis stiklinėmis akimis žvelgia į aplinką. Judėjimą par yškina vertikali pilkšvo smėlio spalvos plytų tekstūra. Šeima mėgsta būti ne tik viduje, bet ir kieme, todėl namas turi ir pridengti, ir pamaitinti – tam numatytas vir tuvės tęsinys į išorę. Siekiant tirpdyti ribas tarp išorės ir vidaus, interjero medžiagos, jų koloritas tęsia fasadų temas, o autoriniai šviestuvai – tai savotiški lietuviški sodai, pamatyti naujai.
290 m2
1 293 m3
Plotas / Area: Tūris / Volume: Sklypo plotas / Site area:
1 096 m2
The house of a large family must offer individual spaces to all its members, at the same time open up views of the pine forests, and collect all the sunlight penetrating through the trees. Such tasks determined the architectural expression and structural logic of the house. Pulsating rectangular volumes, looking at the environment with large glass eyes. The movement is stressed by the vertical texture of the grey-beige bricks. The family likes to be not only inside but also in the yard, so the house has to cover and accommodate - for this, the extension of the kitchen to the outside is provided. In order to dissolve the boundaries between the outside and the inside, the colour of the interior materials continues the themes of the facades.
Adresas / Address:
Girulių pl. 13, Klaipėda
Architektai / Architects:
Edgaras Neniškis, Žilvinas Urbas, Rūsna Vaineikytė-Neniškienė
Projektavimo įmonė / Office:
UAB „Arches” (www.arches.lt)
Pajūris – tai ne tik paplūdimys, kopos, bet ir uostas, laivai, konteineriai. Gyvenantieji prie jūros ir prie jos dirbantieji nuolat susiduria su gamtos ir žmogaus sąveikomis. Pastatas apima uoste aptinkamų elementų interpretacijas. Nors ir neturi technogeninio funkcinio elemento, tačiau primena į paplūdimį atnešto, smėlyje pustomo jūrinio krovininio konteinerio motyvą. Erdvinė struktūra kieta, racionali ir primenanti konteinerio modulį, tačiau apdaila ar tima gamtai –naudojamas smėlio spalvos akmuo, lyg vandens paviršius raibuliuojantis varis. Pastatas reaguoja į pušyną, ažūrinės konstrukcijos tarsi pratęsia tūrio logiką, kieme suformuotos skirtingos terasos.
Plotas / Area:
293 m2
Tūris / Volume: Sklypo plotas / Site area:
1 100 m3
1 026 m2
The seaside is not only a beach, dunes, but also a port, ships, containers. Those who live near the sea and work with it are constantly faced with interactions between nature and man. The building combines interpretations of elements found in the port. Although it does not have a technogenic functional element, it is reminiscent of the motif of a sea freight container brought to the beach and blown up in the sand. Although the spatial structure is solid, rational and reminiscent of a container module in its logic, the finish is close to nature - sand-coloured stone is used, with copper reminding ripples on the sur face of the water. The building responds to the pine forest, the openwork structures seem to extend the logic of the volume, different terraces are formed in the yard.
Sklypo planas Pirmo aukšto planasAdresas / Address:
Girulių pl. 13, Klaipėda
Architektai / Architects:
Edgaras Neniškis, Arūnas Liola, Žilvinas Urbas, Greta Vasiliauskaitė
Projektavimo įmonė / Office:
UAB „Arches” (www.arches.lt)
Šis pastatas – užfiksuota pušyno erdvės inversija, su savotiškais medžio kamienų įspaudais. Tūris teka tarp medžių, formuodamas savotiškus kiemelius aplink, kur kiekvienas atlieka atskirą funkciją: vienas tampa įeigos erdve, kitas – pusr yčių ir miško stebėjimo erdve, trečias – pagrindiniu šeimos kiemu. Vidaus erdvės maksimaliai sujungtos, teka kaip ir tūris. Ypač trūkstama šviesa pušyne įleidžiama visomis įmanomomis kr yptimis – per sienas, stogus. Fasadų tekstūra dar labiau pabrėžia įsiliejimo tarp medžių idėją – jie dengiami pušų žievę primenančiomis japoniškos keramikos plokštelėmis.
296 m2
1 100 m3
Plotas / Area: Tūris / Volume: Sklypo plotas / Site area:
965 m2
This building is a captured inversion of the space of a pine forest, with peculiar imprints of tree trunks. The volume flows between the trees, creating enclosed spaces with separate functions: one becomes the entrance space, another the breakfast and forest obser ving space, the third the main family courtyard. The interior spaces are maximally connected, flowing, just like the volume. The scarce sunlight in the pine forest is captured through various openings in walls and roof. The texture of the facades fur ther emphasises the idea of blending in with the trees. They are clad with Japanese ceramic panels resembling pine bark.
Girulių pl. 13, Klaipėda
Edgaras Neniškis, Andrius Uogintas
Projektavimo įmonė / Office:
UAB „Arches” (www.arches.lt)
Vizualizacijos / Visualisations:
Karolina Masalskaitė
Pagrindinė projektuojamų pastatų idėja – aliuzija į miške vienas ant kito sustatytus apsamanojusius akmenis. Vienas ant kito gulintys tūriai
ledyno palikti granito rieduliai. Jų santūri architektūrinė išraiška, pagyvinta akmens juostomis, kuria šešėliavimą, kontrastuoja su vertikaliomis pušų linijomis. Santūrios išraiškos pastatas tampa skaitomas ir matomas. Tai gyvenamųjų dvibučių grupė, kurioje butai suprojektuoti siekiant sukur ti maksimalų privatumą – pirmajame aukšte numatytos terasos, antrajame – stoginės terasos ir erdvūs balkonai.
Tūrių išdėstymą lėmė pušys, be to, konsolių formavimas tapo dar viena priemone reaguoti į medžius.
The main idea of the designed buildings is an allusion to mossy rocks stacked on top of each other in the forest. Volumes lying on top of each other are granite pucks left by the glacier. Their restrained architectural expression is enlivened by stone bands that create shading and contrast with the vertical lines of pine trees. In this way, a building with a restrained expression becomes readable and visible This is a group of residential duplexes, in which the apar tments are designed to create maximum privacy with terraces on the first floor, roof terraces, and spacious balconies on the second floor. The arrangement of the volumes was determined by the pine trees. The design of the cantilevers became another means of responding to the trees.
Tauro 11-oji g. 13, Klaipėda
Architektė / Architect:
Aurelija Krasauskaitė
Projektavimo įmonė / Office:
MB „Kadatada”
Vizualizacijos / Visualisations:
Martynas Akulevičius
Plotas / Area: Tūris / Volume: Sklypo plotas / Site area:
Adresas / Address: 185 m2 990 m3 1 020 m2
Vienbutis gyvenamasis namas yra skir tas keturių asmenų šeimai.
Pastatą sudaro du lygiagretūs skir tingo aukščio stačiakampiai tūriai.
Pagalbinės patalpos išdėstytos arčiau gatvės, gyvenamieji kambariai ir bendroje erdvėje esanti vir tuvė-valgomasis ir svetainė orientuoti pietvakarių kr yptimi, į vidinę sklypo dalį. Per langus atsivers nuostabus vaizdas į slėnį.
A single-family house was designed for a family of four. The building is composed of two parallel squares, each with a different height. The auxiliar y rooms are situated along the street to minimise noise and ensure privacy inside. The private rooms and the kitchendining-living area are oriented towards the southwest side of the site to offer expansive views of the valley.
Adresas / Address:
Ąžuolijos g. 21B, Samališkė, Klaipėdos r. sav.
Architektė / Architect:
Aurelija Krasauskaitė
Projektavimo įmonė / Office:
MB „Kadatada”
Vizualizacijos / Visualisations:
Martynas Akulevičius
Vienbutis gyvenamasis namas suprojektuotas L formos plano, su plokščiuoju stogu. Namo tūris suskaidytas į du skir tingo aukščio stačiakampius tūrius. Gyvenamajame name suprojektuota bendroje erdvėje esanti vir tuvė ir valgomasis su svetaine, gyvenamieji kambariai ir kitos patalpos. Fasadų apdailai naudojamas šviesiai pilko atspalvio apdailos plytų mūras, derinamas su profiliuotų aliuminio lakštų apdaila.
A single-family house with a separate garage is located in Samališkės village The house is designed in the shape of the letter L. The higher par t of the house consists of a spacious kitchen, dining room, and living room, while the lower par t houses all private rooms and other auxiliary rooms. The exterior of the house is made up of two materialslight grey bricks and dark grey aluminium cladding panels.
Adresas / Address:
Kadagių g., Klaipėda
Architektai / Architects:
Aistė Tarutytė, Rokas Masaitis
Projektavimo įmonė / Office:
UAB „MAK GROUP” (www.makgroup.eu)
Vizualizacijos / Visualisations:
Adham Badr
Šio projekto tikslas buvo prisitaikyti prie jau egzistuojančio išraiškingo reljefo ir panaudoti šiuos sklypo privalumus architektūroje. Pastato forma buvo padalinta į du tūrius: gyvenamąjį bloką, kuris suprojektuotas aukščiau, gatvės lygyje, ir miegamųjų – žemiau, prisitaikant prie esamo šlaito. Pastatui lengvumo suteikia ne tik formos, bet ir pasirinktos šviesios apdailos medžiagos. Atitvarinės lauko sienos mūrijamos specialiu būdu, išgaunant ažūriškumą, kuris apsaugo gyvenamąją erdvę nuo tiesioginės saulės, kartu užtikrinama, kad šviesa patektų į namo vidų.
The aim of the project was to exploit the existing terrain and adapt the house to the topography of the site. The architectural concept was to divide the building into two volumes of the living zone and the bedroom unit. The volumes are joined together in the centre of the building, connecting the interior circulation of the house and architecturally 'embracing' each other with a roof slab The bedroom unit's volume follows the slope and is designed on the lower ground level, while the living zone remains on the street level. It is raised on slender columns which create a sense of lightness to the shape. We used light bricks for the facade and breeze bricks for terrace par titions, which provide privacy while allowing sunlight to pass through.
Adresas / Address:
Pasimatymų g. Ginduliai, Klaipėdos r. sav.
Architektai / Architects:
Lukas Mikulskas, Rokas Masaitis, Akvilė Petraitytė-Petrauskaitė (interjeras)
Projektavimo įmonė / Office:
UAB „MAK GROUP” (www.makgroup.eu)
/ Visualisations:
Patogus šiuolaikinės šeimos gyvenamasis namas su didele terasa pastato centre. Pagrindinė projekto ašis, padiktavusi tiek planinius, tiek pastato padėties sklype sprendimus, buvo terasa. Šeimos pomėgis daug laiko leisti lauke ir noras turėti privačią ir vizualiai didelę neužstatytą sklypo dalį pastūmėjo sudėlioti pastato planą aplink terasą.
Daugiaplanis skir tingų gylių fasadas ir paaukštinta svetainės dalis sukuria išskirtinį pastato tūrį. Fasadų apdailai naudojamos modernios medžiagos – betonas, akmuo ir rūdintas plienas.
A comfortable modern family house with a large patio in the centre of the building. The main axis of the project, which dictated the planning and the location of the building on the plot, was the patio. The family's love of spending a lot of time outdoors and the desire to have a private and visually open par t of the plot influenced the layout of the building around the patio. The multi-faceted facade of varying depths and the elevated space of the living room create an exceptional volume of the building. Modern materials, such as concrete, stone, and corten steel, are chosen for the facade.
Adresas / Address:
Lagbuvos g. 48, Klaipėda
Architektai / Architects:
Lukas Mikulskas, Rokas Masaitis
Projektavimo įmonė / Office:
UAB „MAK GROUP” (www.makgroup.eu)
Vizualizacijos / Visualisations:
Adham Badr
Namas kalne – patogiam šiuolaikiškos šeimos gyvenimui kartu su gamta.
Pastatas suprojektuotas taip, kad gyvenamosios zonos būtų orientuotos į vidinį kiemą, iš kurio atsiveria slėnio panorama, o priekinis fasadas, besiribojantis su gatve, – uždaras.
Projekte daug dėmesio skir ta erdvėms, kuriose šeima galėtų įgyvendinti savo hobius ir poreikius – restauruoti retroautomobilius, turėtų patalpas vir tualiai realybei simuliuoti. Tamsaus aliuminio, betono ir stiklo fasado apdailos junginys sukuria solidų ir vientisą namo tūrį.
House on the hill Nr. 1 designed for a comfortable life of a modern family with a connection to nature. The building is designed so that the living areas are oriented towards the inner courtyard, from which opens up to a panorama of the valley, while the front facade facing the street is enclosed. The project focused on spaces for satisfying family hobbies - retro car restoration and vir tual reality simulation rooms. The combination of dark metal, concrete and glass facade creates a sturdy and seamless house volume.
Adresas / Address:
Lagbuvos g. 46, Klaipėda
Architektai / Architects:
Lukas Mikulskas, Rokas Masaitis
Projektavimo įmonė / Office:
UAB „MAK GROUP” (www.makgroup.eu)
Vizualizacijos / Visualisations:
Adham Badr
Namas kalne – tarp miesto ir gamtos.
Pastatas orientuotas taip, kad esantieji jame nuolat mėgautųsi supančios natūralios gamtos ir miesto vaizdais. Viso namo fasadas –tarsi didelė, vientisa terasa, susiliejanti su slėniu ir tolumoje atsiveriančia Klaipėdos miesto panorama. Namo profilis – vienas didelis, vietomis perregimas, atviromis erdvėmis besijungiantis stačiakampis tūris, leidžiantis slėniui susilieti su namo interjeru, o uždari pastato šonai sukuria privatumo jausmą.
House on a hill to enjoy incredible views of nature and the city. The house has an extensive balcony terrace to always feel connected to the valley, the sunrise, the night, the distant city, and the changing landscape. It is an open and exposed box on one of its sides, allowing a direct relationship with the surroundings. It is mostly closed on its rear and side facades to protect the privacy of the domestic space.
Adresas / Address:
Maironio g. 21B, Palanga
Architektai / Architects:
Lukas Mikulskas, Rokas Masaitis
Projektavimo įmonė / Office:
UAB „MAK GROUP” (www.makgroup.eu)
Vizualizacijos / Visualisations:
Adham Badr
Plotas / Area:
2 x 160 m2
Tūris / Volume:
1 740 m3
Sklypo plotas / Site area:
600 m2
Projektas kur tas ant sąlyginai nedidelio žemės ploto, tačiau užduotis ambicinga – du atskiri atostogų namai, kurie iš išorės turėtų atrodyti kaip vienas. Autoriaus mintis buvo sukur ti tradicinės architektūros pastatą atsižvelgiant į pajūrio stilių, sulieti jį su vietine aplinka ir kartu išlaikyti šiuolaikiškumo liniją bei akcentuoti akį traukiančius, naujai interpretuotus tradicinės architektūros fasado elementus. Fasadui naudotas trijų ar timų apdailos medžiagų junginys –molio čerpės, varis ir medis.
A duplex house in Palanga was a challenging project as it was on a relatively small plot compared to the project task – two independently functioning family's summer homes, which from the outside should look like one solid piece. The architectural idea is to create a traditionally shaped house to match the surrounding rural sea and forest resort town architectural style, but at the same time have bold modern architectural elements and exciting facade materials – a complementing arrangement of clay roof tiles, copper and wood.
Adresas / Address:
Tauro 18-oji g., Klaipėda
Architektai / Architects:
Gintarė Kabalinė, Andrius Serapinas, Andrius Pakulis, Vitalijus Rudokas
Projektavimo įmonė / Office:
MB „Studija „Kopa”” (www.kopaarchitects.lt)
Vizualizacijos / Visualisations:
Vitalijus Rudokas, Justina Čepanauskaitė
Plotas / Area:
186 m2
Tūris / Volume:
1 010 m3
Sklypo plotas / Site area:
920 m2
Šalia miško ir upelio esančiame nuožulnaus reljefo sklype suprojektuotas gyvenamasis namas atsiveria į gražiausius supančius vaizdus ir atriboja privačias erdves nuo gatvės.
Pastatas sudar ytas iš dviejų tūrių, aiškiai atskiriant bendras gyvenamąsias ir privačias erdves. Pagrindinė pirmojo aukšto erdvė, reaguojant į reljefą, atskiriama skir tingais grindų lygiais, o terasiniu langu atsiveria į medžių foną. Iš pagrindinio miegamojo atsiveria kita vertinga perspektyva į miškelio pusę ir įrėmina dar vieną gamtos paveikslą.
Persisukę tūriai formuoja skir tingas lauko erdves – didelė terasa ant stogo su puikiais vaizdais ir dengta pirmojo aukšto lauko erdvė, kuri pereina į laisvą privatų kiemą, besitęsiantį iki pat miškelio.
Dviejų aukštų tūrio apdaila – degintos medienos dailylentės, tuo tarpu pirmojo aukšto tūriui buvo pasirinkta minimali betono plokščių apdaila, pabrėžianti aiškią formą ir tarsi laikanti antrąjį aukštą.
A single family house is designed on a sloping plot next to a forest and a stream, providing stunning views of the beautiful surroundings and creating a separation between private spaces and the street.
The building is composed of two distinct volumes with emphasis on shared living areas and private ones. The main ground floor is divided into different levels to accommodate the uneven terrain and features expansive windows that open up to the forest. The master bedroom also offers a scenic perspective, framing another captivating view of nature. The rotated volumes create various outdoor spaces, including a large roof terrace with magnificent views and a covered outdoor area that transitions into a private courtyard stretching towards the woods. The two-storey volume is clad with burnt wood, while the single-storey volume is covered with a minimal concrete slab finish, accentuating its clean form while providing support to the upper floor.
Adresas / Address:
Plytų g. 46, Palanga
Architektai / Architects:
Simonas Norkus, Ignas Lesauskas, Mindaugas Dainius
Projektavimo įmonė / Office:
MB „Studija „nytt”” (www.nytt.lt), UAB „Baltijos regiono projektai” (www.baltijosprojektai.lt)
Plotas / Area:
250 m2
Vieno buto gyvenamasis namas suprojektuotas Palangos centrinėje dalyje, netoliese botanikos parko, greta saugomo pušyno. Atsižvelgiant į kontekstą ir vertingus medžius, pastatas tampa tarsi natūralus barjeras nuo gatvės ir suformuoja uždarą vidinį kiemą.
Pastato architektūrinis charakteris atsispindi per terasinius šlaitinius stogus, su jų pagalba patalpos gauna dar daugiau natūralios šviesos, o statinys įsilieja tarp medžių siluetų. Planinėje struktūroje visas pirmas aukštas yra numatomas šeimos gyvenimui su bendromis erdvėmis, antras aukštas – ramesnei zonai, miegamiesiems.
Fasadų sprendinys buvo inspiruotas taip pat šalia esančio miško tur tingos žalumos, buvo parinktos natūralaus molio glazūruotos plokštės. Sklypo teritorija tvarkoma minimaliai, o patys brandžiausi medžiai paliekami, siekiant išlaikyti kuo natūralesnį kraštovaizdį.
A single family house is designed in the heart of Palanga, situated near the botanical park and adjacent to a protected pine forest. The design considered the surrounding context and the presence of valuable trees, the building is a natural barrier from the street with a secluded courtyard. The architectural character of the house is expressed through its terraced sloping roofs, which not only fill the rooms with natural light but also blends the building with the surrounding trees. The ground floor is dedicated to family living with communal spaces, while the second floor provides a tranquil zone, accommodating the bedrooms. The façade draws inspiration from the lush greenery of the nearby forest and is clad with glazed clay tiles. The landscape is designed with minimal interventions and all the mature trees are preserved to keep the environment as natural as possible.
Studija nytt + Baltijos regiono projektai
DOUBLE APARTMENT HOUSE WITH ADMINISTRATIVE FACILITIES
Adresas / Address:
Klaipedos pl.49, Palanga
Architektai / Architects:
Valdemar Pavlovski, Ignas Lesauskas, Simonas Norkus, Mindaugas Dainius
Projektavimo įmonė / Office:
MB „Studija „nytt”” (www.nytt.lt), UAB „Baltijos regiono projektai” (www.baltijosprojektai.lt)
Plotas / Area:
290 m2
Dvibutis gyvenamasis namas suprojektuotas tankiai užstatytame Palangos rajone, apsuptas gyvenamųjų ir komercinių pastatų. Teritorijoje vyrauja įvairios paskir ties pastatai, vasaromis būna gana intensyvus eismas, nes pastatas yra šalia vienos svarbiausių miesto arterijų.
Kuriant pastato koncepciją buvo siekiama reaguoti į esamų pastatų šlaitinius stogus, tačiau į visa tai žiūrėti moderniai. Šoniniai fasadai yra nuožulnūs, padengti žalios skardos apdaila, kuri suteikia daugiau gyvybės supančioje aplinkoje ir susilieja su sklype esančia žaluma.
Pirmasis pastato aukštas skir tas erdvioms biurų patalpoms ir komercijai su skaidriomis pertvaromis, o antrasis ir mansardos aukštai skirti dviem gyvenamiesiems apar tamentams. Patalpos turi atskirus įėjimus ir atskirą infrastruktūrą, formuojant pėsčiųjų ir automobilių srautus nuo Klaipėdos plento.
A semi detached house is designed in a densely developed area of Palanga, surrounded by a mix of residential and commercial buildings. The area is characterised by a diversity of buildings, and during the summer months it experiences considerable traffic due to its proximity to one of the city's busiest thoroughfares. The goal of the design was to respond to the sloping roofs of the surrounding buildings while incorporating a modern aesthetic. The side facades feature sloping angles and are clad with vibrant green tin cladding, infusing vitality into the surrounding environment and blending harmoniously with the lush vegetation on the plot. The ground floor of the building is dedicated to spacious offices and commercial premises, with transparent par titions. The second and attic floors are designed as separate apar tments, each with its own entrance and infrastructure with a flow of pedestrians and vehicles from the nearby Klaipėda road.
Adresas / Address:
Skautų g. 23, Klaipėda
Architektai / Architects:
Olga Voišnis, Gediminas Kirdeikis, Dovilė Razgaitienė
Projektavimo įmonė / Office:
Very Good Architecture Company (www.vgac.lt)
Plotas / Area:
214 m2
Tūris / Volume:
1 052 m3
Sklypo plotas / Site area:
814 m2
Very Good Architecture Company
VGP 34
VGP 34
Projektuojamas or togonalios kompozicijos pastatas suskaido tūrį į mažesnius elementus, kurie tarpusavyje jungiami į bendrą tektoninę pastato struktūros visumą. Miegamieji kambariai ir pagalbinės paskir ties patalpos orientuojamos į skir tingas pasaulio puses – sukuriami vizualiniai ryšiai su aplinka. Taikant mažąją architektūrą, fasado medžiagiškumą ir kompoziciją, šiame projekte pabrėžiama vertikalė, pastatas įsilieja į supantį kraštovaizdį, jo neužgožia ir jame nedominuoja. Fasadui naudojamos tamsių atspalvių natūralios medžiagos – klinkerinės plytos ir natūralaus vario skarda – koloritas artimas gamtinei kvartalo aplinkai.
The design object - a residential house consists of multiple architectural elements arranged by following or thogonal tectonic composition principles. The bedrooms, together with supplementary spaces, are oriented towards all four cardinal directions thus creating visual connections to the whole surrounding environment as well as inviting a variety of lighting conditions into the interior of the building. Through the use of materiality as well as the scale of the elements, the verticality of the assembly is accentuated. The house does not try to dominate the surrounding environment but rather inherits its colour palette through the use of natural copper paired with dark brick materials.
Adresas / Address:
Bangpūčio g. 11, Klaipėda
Architektai / Architects:
Mantas Daukšys, Edmundas Pilvelis, Inga Daukšienė
Projektavimo įmonė / Office:
UAB „Vakarų siluetas” (www.vsarchitektai.lt)
Plotas / Area:
234 m2 ir 67 m2
Tūris / Volume:
1 349 m3 ir 359 m3
Sklypo plotas / Site area:
1 272 m2
Namas šlaite suprojektuotas pabrėžiant reljefo unikalumą. Danės slėnio šlaite atveriami vaizdai į vakarus terasomis, balkonais, eksploatuojamais stogais. Suplanuotas tankus užstatymas aplinkui pasiūlė kur ti privatumo užuovėjas sklypo viduje Vertikaliu fasadų skaidymu pabrėžiamas reljefo unikalumas. Šviesia tinko apdaila, užuomina į klasikinę vilą, bus papuošti miestovaizdžio reginiai iš tolimų apžvalgos taškų.
The house on the slope is designed emphasising the uniqueness of the terrain with terraces and balconies offering uninterrupted views towards Danė river valley. A dense surrounding development dictated the creation of sheltered private spaces inside the plot. The vertical division of the facades emphasises the uniqueness of the terrain. A light plaster finish asa nod to a classic villa will be visible from distant vantage points in the valley.
Adresas / Address:
Šventosios g. 29G, Palanga
Architektai / Architects:
Mantas Daukšys, Edmundas Pilvelis, Inga Daukšienė
Projektavimo įmonė / Office:
UAB „Vakarų siluetas” (www.vsarchitektai.lt)
Plotas / Area:
4 x 112 m2
Tūris / Volume:
4 x 546 m3
Sklypo plotas / Site area:
3 802 m2
Aštuonių poromis sublokuotų poilsio namelių kompleksas suprojektuotas vaizdingame Šventosios upės vingyje Nameliai skir ti vasaros poilsiui. Išdėstymo sklype planu atkartoja banguotą upės trajektoriją. Užstatymo išdėstymas laužyta linija pabrėžia miestiškojo kraštovaizdžio geometrines ašis. Stogo nuolydis pietų kr yptimi ištęstas saulės moduliams įrengti ir atskirų poilsinių individualumui pabrėžti. Apdaila – termomedienos lentos, stogas – valcuota skarda.
The complex of eight semi-detached holiday cottages is designed in a picturesque bend of Šventoji river. The silhouette and layout of the cottages for summer recreation echoes the undulating trajectory of the river. The layout of the building in a broken line emphasises the geometric axes of the urban landscape. The slope of the roof is extended in the south direction to install solar modules and to emphasise the individuality of the holiday homes. Thermal wood boards ar used for facades and rolled tin for roofs.
Adresas / Address:
Žiemgalos g. 6, Palanga
Architektas / Architect:
Vytautas Grykšas
Vizualizacijos / Visualisations:
Justinas Venskus
Plotas / Area:
144 m2
Tūris / Volume:
862 m3
Sklypo plotas / Site area:
2000 m2
Butų skaičius / Number of apartments:
8
Gana tipiškas pajūrio regione vykstančios plėtros pavyzdys, kurį buvo mėginta apipavidalinti kiek kitokiais principais. Keturi atskiri dvibučių pastatų tūriai nustumiami maksimaliai į sklypo kampus, siekiant sklype suformuoti bendrą rekreacinę erdvę. Pastatų pagrindinių fasadų orientaciją, galimų skir tingų įėjimų į butus pasirinkimą, automobilių statymo vietų išdėstymą suponuoja noras turėti kuo didesnį privatumą. Tūrių formos identiškos, bet skiriasi planinė struktūra, veidrodinio planavimo projekcijos ir apdailos medžiagos. Buvo siekta, kad gyventojai kuo mažiau „tobulintų“ architektūrą vėlesniame pastatų naudojimo etape, todėl suprojektuotos konsolės ties terasomis. Numatyti sandėliukai kiekvieno pastato tūr yje dviračiams ir lauko baldams. Suformuotos specialios nišos inžineriniams agregatams.
This architectural project exemplifies the coastal region's development while embracing a distinctive approach. Four separate volumes of two-apartment buildings are strategically positioned in the corners of the plot, forming a shared recreational space within. Privacy is prioritised through careful building orientation, diverse entrance scenarios, and car parking arrangements. The building volumes are of identical shapes with unique floor plans, mirrored projections, and varied façade materials. Thoughtful design includes terraces covered with consoles, easily accessible storage areas for bicycles and outdoor furniture, and specialised niches for engineering units to prevent the urge of future residents to perfect the existing architecture.
VIEŠBUTIS IR DAUGIABUTIS ŠVENTOJOJE HOTEL AND APARTMENT BUILDING IN ŠVENTOJI
Address:
Šviesos g. 1, Palanga
Martynas Akulevičius
Adresas Plotas / Area: Tūris / Volume: Sklypo plotas / Site area:
Projektavimo įmonė / Office: MB „Erdvės architektūra” (www.erdvesarchitektura.lt)
UAB „Turto plėtra”
Pirmo aukšto planas
Kompleksą sudaro du pastatai – viešbutis ir daugiabutis namas.
Pastatai vienas kito atžvilgiu išdėstyti statmenai, suformuojant privačią erdvę kieme, kuriame suprojektuota vaikų žaidimų aikštelė, baseinas ir automobilių stovėjimo aikštelė. Kiekvienas numeris / butas suprojektuotas kaip atskiras dviejų aukštų blokas su privačia terasa.
Blokai jungiami per vieno aukšto pagalbinę – techninę – patalpą.
Pastatai dvišlaičiais asimetriniais stogais. Fasadų apdailai naudojamos tamsiai pilkos spalvos fibrocementinės plokštelės, išsikišusių stogų vidinėms plokštumoms ir pagalbinių patalpų fasadams naudojama dalylenčių apkala.
Adresas / Address:
Marių g., Svencelė, Klaipėdos r. sav.
Architektai / Architects:
Andrė Baldišiūtė, Algimantas Neniškis, Gilma Teodora Gylytė, Sabina Grincevičiūtė, Marija Steponavičiūtė, Gediminas Aismontas, Edvinas Skiestenis, Milda Jusaitė, Milda Grabauskaitė, Emilija Martinkevič, Emilija Deksnytė
Projektavimo įmonė / Office:
UAB „DO architects” (www.doarchitects.lt)
„Svencelės“ kanalo namai puikiai tinka aktyviam šiuolaikiniam gyvenimo būdui. Butus galima pasiekti bendrais lauko takeliais, kuriuose gyventojai taip pat gali susitikti su kaimynais, palikti banglentes ir pakabinti džiovinti hidrokostiumus. Šios prieigos naikina socialinius barjerus, suteikdamos visiems vienodą prieigą prie kanalų, prie kurių pastatyti namai. Patys apar tamentai – tai funkcionalūs vieno lygio studijos ir vieno miegamojo kambariai, taip pat dviejų aukštų dviejų miegamųjų apar tamentai. Kiekvienas butas turi privačią terasą arba balkoną – vietą, kur galima atsipalaiduoti ir stebėti saulėlydį virš kanalų po ilgos dienos, praleistos ant bangų.
Užsakovas / Client: UAB „Kopa vilkui”
Plotas / Area: Sklypo plotas / Site area:
25 -60 m2
3 500 m2
The Canal homes at Svencelė Marių st., are perfect for an active modern lifestyle. The apar tments are reached via shared outdoor walkways, where residents can meet their neighbours, leave their surfboards and hang theirs wetsuits out to dr y. These access ways eliminate social barriers, allowing equal access for everyone to the canals along which the homes are built. The apar tments themselves are a mix of functional single level studio and one bedroom layouts, as well as two bedroom apar tments over two levels. Each apar tment has its own private terrace or balcony, a place to unwind and watch the sun set over the canals after a long day out in the waves.
Adresas / Address:
Kuršių g. 27, Kintai, Šilutės r. sav.
Architektas / Architect:
Gytautas Mikeliūnas
Projektavimo įmonė / Office:
UAB „Inžinerinė statyba ir projektavimas”
Rekonstruojami Kintų miestelio centrinėje dalyje esami pastatai: daugiabutis gyvenamasis namas ir pagalbinio ūkio paskirties pastatas.
Įvertinus blogą esamą daugiabučio gyvenamojo namo konstrukcinę būklę, rekonstravimo metu išplečiama jo užstatymo zona, didinamas jo aukštingumas. Greta jo esančio pagalbinio ūkio paskir ties konstrukcija po rekonstravimo išlaikoma esama.
Rekonstruojant daugiabutį gyvenamąjį namą ir pagalbinio ūkio paskirties pastatą, jų fasaduose atkartojami esamo (rekonstruojamo) daugiabučio gyvenamojo namo fasadų elementai bei medžiagiškumas, būdingi ir Kintų miestelio architektūrai: abiejų pastatų fasadai ir tūrių formos planuojami klasikinės architektūros, sienos – iš vertikaliai montuojamų natūralaus medžio dvigubo kalimo lentų, stogai – iš molio spalvos keraminių čerpių dangos, langai – baltos spalvos rėmais.
A residential building and an outbuilding in the central par t of the town of Kintai are being reconstructed. Considering the poor structural condition of the apar tment building, the reconstruction aims to expand its construction area and increase its height. The original structure of the outhouse is preserved during the reconstruction. The facades of both the residential and the outhouse building echo the façade elements and materiality of the existing apar tment building and are characteristic of the architecture in Kintai. Drawing inspiration from vernacular architecture, the walls will be clad in vertically installed double forged wood boards, the roof covered in clay-coloured ceramic tiles and whiteframed windows.
ADMINISTRACINĖS PASKIRTIES PASTATAS SU GYVENAMOSIOMIS PATALPOMIS
OFFICE BUILDING WITH RESIDENTIAL FACILITIES
Adresas / Address: Plotas / Area: Tūris / Volume: Sklypo plotas / Site area:
Tilžės g. 42, Klaipėda
Algirdas Stripinis, Tomas Vasilkevičius, Lina Simutytė
UAB „Uostamiesčio projektas” (www.uparchitektai.lt)
Architektai / Architects: 630 m2 2 790 m3 900 m2
Sklypo planas
An administrative building with residential units is being designed in a location specified in the detailed plan - the northern par t of the plot, closer to Tilžės street. The new structure is deliberately set back from the construction boundary and aligned with the imaginar y building line of Tilžės street, thus maintaining consistent distances from the neighbouring buildings to the street. The 4-storey building is designed to be of a similar size to the adjacent house on Tilžės street. The first and second floors are dedicated for administrative purposes, while the third and fourth floors for four apar tments. The first floor offices have direct access from the street while the second floor offices and apar tments share a common staircase accessible from the courtyard. The average size of each apartment is around 75 square metres.
Klaipėdos architektūra 2022 / Klaipėda architecture 2022 71
DAUGIABUČIO GYVENAMOJO NAMO REKONSTRAVIMAS
APARTMENT BUILDING RECONSTRUCTION
Turgaus g. 10, Priekulė, Klaipėdos r. sav.
Stanislovas Lukšas, Rolandas Rakevičius
Projektavimo įmonė / Office:
Adresas / Address: Plotas / Area: Tūris / Volume: Sklypo plotas / Site area:
UAB „Archko” (www.archko.lt)
Sklypo planas
Įvažiavimas į sklypą projektuojamas iš Turgaus gatvės. Sklypuose įrengiama automobilių stovėjimo vietos, vaikų žaidimo aikštelė ir servitutinis takas pėstiesiems. Automobilių stovėjimo aikštelės, automobilių įvažiavimas ir pėsčiųjų takai klojami betoninių trinkelių danga. Vaikų žaidimo aikštelės įrengiamos ant vejos, tik sūpynių ar suoliukų zonose įrengiama smulkios skaldos arba gumos danga.
Pastatas projektuojamas trijų aukštų, su šlaitiniu stogu. Pastatų fasadų apdailai naudojamos klinkerinės plytos ir skarda. Stogas aptaisomas čerpėmis.
Pastato fasadų apdailai būtų naudojamos dvi pagrindinės spalvos: rudos plytos ir čerpės, o visi kiti pastato elementai tamsiai pilki (grafito).
Projektuojamame pastate numatoma 12 butų. Pastatas projektuojamas dviejų laiptinių.
Parking spaces, a children's playground and a public pedestrian pathway are designed on the site with the main entrance from Turgaus street. Concrete pavers are used as the main paving material. Children's playground is planned on a grassy patch of the plot, with only the sections containing swings or benches being covered in fine crushed stone or rubber. The building is a three floor design with a pitched roof. The facades will be clad in clinker bricks and tin The roof will be covered with clay tiles. The main colours chosen for the building's facades are brown brick and natural clay. All other elements of the building are finished in a dark grey (graphite) shade The planned building has twelve apar tments with two staircases.
Projektai / Projects 72
Adresas / Address:
S. Dariaus ir S. Girėno g. 57 ir 59, Palanga
Architektas / Architect:
Rolandas Rakevičius
Projektavimo įmonė / Office:
MB „Architektorius” (www.architektorius.lt)
1 pastato antro aukšto planas
2 pastato antro aukšto planas
Projektuojami gyvenamosios paskirties daugiabučiai pastatai.
Įvažiavimas į sklypus projektuojamas iš S Dariaus ir S Girėno gatvės. Sklypuose įrengiamos automobilių stovėjimo, vaikų žaidimo ir ramaus poilsio aikštelės. Automobilių stovėjimo aikštelės ir pėsčiųjų takai klojami betoninių trinkelių danga.
Pastatai projektuojami trijų aukštų su šlaitiniais stogais. Pastatų fasadų apdailai naudojama vėdinamų fasadų sistema ir tinkas. Stogas aptaisomas čerpėmis arba šiferiu su čerpių imitacija. Fasadų apdailai naudojami tinkas ir medis arba fasadinės plokštės su medžio imitacija.
Pastato fasadų apdailai naudojamos dvi pagrindinės spalvos: šviesiai pilkas tinkas ir sendintas medis. Visi likę pastato elementai tamsiai pilki (grafitas) – langų ir durų rėmai ir t. t.
The architectural project entails the construction of new residential apar tment buildings. The entrance to the plot is planned from S Darius and S.Girėnas street. The plots will have parking spaces, children's play areas and recreational spaces with concrete pavers as pavining.
The buildings are three stories high with pitched roofs. The facades will be dressed with a ventilated facade system and plaster. The roof will be covered with tiles or tile imitation slate panels. Facade will be covered in plaster, wood, or wood-like facade panels with two main colours of light grey plaster and weathered wood. All other elements of the building, including window and door frames, will be finished in a dark grey (graphite) shade.
Adresas / Address:
Vilties tak. 9, Palanga
Architektai / Architects:
Petras Džervus, Tomas Medzelas, Gabrielė Kairytė
Projektavimo įmonė / Office:
MB „Urbanistinė architektūra” (www.urbanistinearchitektura.lt)
Plotas / Area:
620 m2
Tūris / Volume:
2 429 m3
Sklypo plotas / Site area:
1 466 m2
Pirmo aukšto planas
Antro aukšto planas
Trečio aukšto planas
Pastatas projektuojamas stačiakampio plano, šlaitiniu stogu, dviejų laiptinių.
Patalpos – įvairaus dydžio poilsio (numeriai) – vieno, dviejų ir trijų kambarių.
Šiaurės vakarų fasadas projektuojamas su balkonais antrajame ir trečiajame aukštuose, pirmajame aukšte numatomos terasos.
Fasadų apdaila – pluoštinio cemento plokštės su mediniais dekoro elementais. Stogo danga – valcuotas plienas, šviesiai pilkos spalvos.
The building design features a rectangular plan with a sloping roof and two staircases with recreational premises varying in size from one to three rooms.
The northwest facade is dotted with balconies on the second and third floors and terraces are planned on the first floor.The facades are designed with fibre cement panels and decorative wooden elements. The roof is covered with rolled steel in a light grey colour.
Adresas / Address:
Klaipėdos g. 7, Klaipėda
Architektai / Architects:
Stanislovas Lukšas, Kristina Jurkutė
Projektavimo įmonė / Office:
UAB „Archko” (www.archko.lt)
Vizualizacijos / Visualisations:
Rolandas Rakevičius
Užsakovas / Client:
UAB „K Investment Group”
Plotas / Area:
490 m2 ir 295 m2
Tūris / Volume:
2 346 m3 ir 1 700 m3
Sklypo plotas / Site area:
5 168 m2
Į sklypą patenkama iš Klaipėdos gatvės. Sklype projektuojami du pastatai, kuriuose numatomi 22 numeriai.
Projektuojami pastatai žemesni ir mažesnio tūrio nei netoliese esantis dvaro pastatas, be to, jis yra ganėtinai tankiai apaugusioje teritorijoje. Projektuojamą pastatą ir dvaro pastatą skiria naujas dvaro priestatas. Šlaitinių stogų architektūrinis sprendimas neužgožia esamo dvaro pastato. Pagrindinė dvaro apžvalga yra nuo Klaipėdos gatvės, iš kur projektuojami pastatai stovi atokiau nuo dvaro pastato.
Pastatų sienos naujai mūrijamos iš keraminių blokelių, apšiltinamos polistirolu ir apdailinamos tinku. Stogas medinių gegnių, perdengimas apšiltintas mineraline vata, stogo danga – čerpės.
The plot is accessed from Klaipėda street. Two buildings are designed on the plot, accommodating a total of 22 premises. The buildings are lower and smaller in volume compared to the adjacent manor building and set amidst lush vegetation. The pitched roof design does not overshadow the existing manor.The new buildings are positioned away from the manor building, allowing an unobstructed view of the manor from Klaipėda street. The walls are constructed using ceramic blocks insulated with polystyrene and finished with decorative plaster. The roof is from wooden rafters and mineral wool insulation and covered with roof tiles.
Adresas / Address:
Purvynės g. 81, Neringa
Architektai / Architects:
Eglė Buikaitė, Adomas Šablevičius, Gintautas Vieversys, Eglė Žemaitytė
Projektavimo įmonė / Office:
UAB „G.A.L. architektai” (www.galarchitektai.lt)
Vizualizacijos / Visualisations:
Studio 3DG
Užsakovas / Client: UAB „Inreal” grupė
Buvęs sandėlis rekonstruojamas į du poilsio paskir ties pastatus. Statinių architektūra tikslingai derinama prie anksčiau projektuoto „Marių vėtrungių“ kvartalo, tuo siekiant suteikti Pur vynės g. naują, šiuolaikišką, bet Kuršių nerijos tradicinių sodybų ir vilų įkvėptą architektūrinį veidą. Naudojamos vyraujančios šiame krašte fasadinės apdailos medžiagos – apkalimas medinėmis lentelėmis, tašais, molio čerpės stoge, pastatų viršūnės puošiamos tradiciniais, tačiau modernią formą įgavusiais lėkiais. Sklypas glaudžiai sąveikauja su greta esančiu mišku, todėl terasų, balkonų ir didelių langų sprendiniais išlaikomas artimas žmogaus ir gamtos r yšys. Įdomi detalė, kad šiame projekte numatytas gyvenamasis būstas statomas ne tik žmonėms, bet ir šioje Neringos vietoje gyvenantiems šikšnosparniams.
Former warehouse is being reconstructed into two recreational buildings. Architecture of new structures is purposefully combined with previously designed "Marių vėtrungės" quar ter, hereby aiming to give Pur vynės street a new modern architectural face inspired by the traditional Curonian Spit homesteads and villas. Facade materials are used prevailing in this region - wooden board and tile cladding, clay tile roofing, top of the buildings are decorated with traditional, but modernised and laconic shapes. Site intimately interacts with nearby forest creating close connection between man and nature through terraces, balconies and large windows. An interesting fact - residential housing in this project is built not only for people, but also for the bats that live in this part of Neringa.
Adresas / Address:
Purvynės g. 73, Neringa
Architektai / Architects:
Adomas Šablevičius, Eglė Žemaitytė, Polina Kalugina
Projektavimo įmonė / Office:
UAB „G.A.L. architektai” (www.galarchitektai.lt)
Projektuojant poilsio namus, laikomasi šiai teritorijai būdingo besiformuojančio charakterio tiek pastatų forma ir proporcijomis, tiek medžiagiškumu ir spalviniais sprendimais. Pastatas pasislinkusiais tūriais kuriamas neblaškant aplinkos, vengiant papildomų spalvų, laikantis tvarkingo ir ramaus išdėstymo, atsižvelgiant ir derinant prie esamos Pur vynės gatvės kr ypties. Pasitelkiant skir tingų storių ir gylių apkalą mediena, pirmojo aukšto langų žaliuzes, kuriamas vizualiai netriukšmingo, bet dinamiško fasado vaizdas.
The main goal of the design was to preserve the distinctive features of the area in the form, proportions, materials, and colours of the buildings. The design incorporates shifted volumes blending into the environment, avoiding excessive colours and maintaining a clean and tranquil layout in keeping with the existing axis of Pur vynės street. The facade achieves a visually serene yet dynamic appearance through the use of wooden cladding of varying thickness and depth, as well as window blinds.
Adresas / Address:
Purvynės g. 77 ir 81A, Neringa
Architektai / Architects:
Adomas Šablevičius, Polina Kalugina, Eglė Žemaitytė, Gintautas Vieversys
Projektavimo įmonė / Office:
UAB „G.A.L. architektai” (www.galarchitektai.lt)
Purvynės gatvė – buvusi šiaurinės Nidos dalies komunalinė zona su pramoninio pobūdžio, daugiausia plokščiastogiais, statiniais. Atnaujinant teritoriją, siekta suteikti jai naują ir šiuolaikišką, bet Neringos architektūrai būdingą charakterį. Baltų silikatinių plytų statiniai keičiami natūralios medienos, molio čerpių apdailos tūriais. Sąmoningai nuspręsta nedažyti fasadų, kad bėgant laikui natūraliai kintanti medinių fasadų išvaizda leistų statiniams dar labiau įsilieti į esamą gamtinę aplinką.
Purvynės street is a former communal area with industrial character and mainly flat-roofed buildings in northern par t of Nida. Conversion of this area was aimed to give it a new and modern character, but maintaining the soul of local architecture in Neringa. White silicate brick structures are replaced by natural wood and clay tiled volumes. It was deliberately decided not to paint facades any colour, so that the constantly changing appearance of naturally wooden facades would allow buildings to blend into existing foresty environment over time.
Adresas / Address:
Bangų g. 22, Klaipėda
Architektai / Architects:
Edmundas Andrijauskas, Laimonas Grauslys, Aivaras Janulaitis
Projektavimo įmonė / Office:
UAB „Andrijausko architektų biuras” (www.partneriai.com)
Užsakovas / Client:
UAB „Gaudesta”
Plotas / Area:
4 998 m2
Tūris / Volume:
23 130 m3
Sklypo plotas / Site area:
4 607 m2
Planuojamas daugiabutis gyvenamasis namas Klaipėdoje, Bangų gatvėje. Pastato struktūra susideda iš dviejų pagrindinių tūrių, kurie formuoja vidinį kiemą Pastato struktūra auga nuo Bangų gatvės link kvartalo gilumos į pietinę sklypo pusę Augančio pastato aukščiausias korpusas kartu su Bangų g. 24 pastatu taps akcentais, formuojančiais kitoje gatvės pusėje numatytos aikštės išklotinę. Pirmame aukšte numatomos komercinės paskir ties patalpos, kurios padės įveiklinti naujai projektuojamą gatvelę ir aikštę.
A new apar tment building is planned in Bangų Street, Klaipėda. The building is designed as two volumes forming an inner courtyard. The structure of the building extends from Bangų Street towards the depth of the urban block towards the southern side of the plot. The highest part of the new building together with a building on Bangų street 24, will become focal points, contributing to the overall design of the planned square located on the opposite side of a new inner street. The ground floor will feature commercial premises that will promote new flows thus giving life to the newly designed street and square.
Adresas / Address:
Bangų g. 23, 25, 27 ir Medvalakio g. 23, 23b, Palanga
Architektai / Architects:
Tomas Jakovlevas, Augustas Urbonas
Projektavimo įmonė / Office:
UAB „Archipoint LT” (www.archipoint.lt)
Užsakovas / Client:
UAB „Depeka”
Plotas / Area:
Bangų g. 23 - 1626 m2; Bangų g. 25 - 1626 m2; Bangų g. 27 - 1183 m2; Medvalakio 23 - 1277 m2; Medvalakio 23b - 868 m2
Tūris / Volume:
Bangų g. 23 - 6683 m3; Bangų g. 25 - 6683 m3; Bangų g. 27 - 6050 m3; Medvalakio 23 - 6127 m3; Medvalakio 23b - 6545 m3
Sklypo plotas / Site area:
Bangų g. 23 - 2463 m2; Bangų g. 25 - 2463 m2; Bangų g. 27 - 2463 m2; Medvalakio 23 - 2888 m2; Medvalakio 23b - 2486 m2
Kvartalo architektūrinė idėja – rasti vardiklius, kuriančius projektuojamo kvartalo kaip vieneto identitetą, kartu darniai papildančiu besiformuojančią teritoriją.
Esama erdvė yra neurbanizuota, joje nėra užstatymo. Atsižvelgiant į galiojantį detalųjį planą, projektuojamas laisvo planavimo, iki keturių aukštų užstatymas, urbanistiškai išlaikantis kvartalo vientisumą. Planuojami keturi pastatų tipai. Tūriai skaidomi, naudojama fasadų apdailos įvairovė, užtikrinant aiškų mastelio smulkėjimą.
Teritorijos viduje planuojamas viešųjų ir privačių erdvių atskyrimas. Formuojamos žaliosios zonos, o tarp jų – skir tingų dangų takai. Kiemai suskirstomi į lokalias, jaukias erdves, kuriančias pirmojo aukšto gyventojų privatumą.
Bangų g. kvartalas tęsia Palangos m. urbanistinio audinio formavimą, kuria funkciškai aktyvią, patrauklią miesto teritoriją.
The architectural concept aims to identify common elements that create the identity of the planned urban block as a cohesive unit, while harmoniously complementing emerging development.
The site is currently undeveloped. Based on the existing detailed plan, free standing buildings with up to 4 floors are designed, maintaining the urban integrity of the block. Four types of buildings are designed, with differentiated volumes and a variety of facade finishes, ensuring a clear breakdown of scale.
The layout of the development incorporates the separation of public and private spaces. Green areas are interspersed among pathways of different sur faces. The courtyards are divided into localized spaces, providing privacy for residents on the ground floor.
The "Wave" quar ter contributes to the urban fabric of Palanga, forming a functionally vibrant and attractive urban area.
Adresas / Address:
Senvagės g. 3, Klaipėda
Architektai / Architects:
Vaida Ona Atienė, Ramūnas Atas, Lukas Atas
Projektavimo įmonė / Office:
UAB „A Team Projects” (www.ateamprojects.lt)
Užsakovas / Client:
UAB „Danės Krantas”
Plotas / Area:
970 m2 - 1 295 m2
Tūris / Volume:
4 530 m3 - 5 919 m3
Sklypo plotas / Site area:
58 789 m2
Sklype projektuojami trijų keturių aukštų daugiabučiai gyvenamieji pastatai yra dviejų, trijų sujungtų stačiakampio formos tūrių su plokščiuoju stogu. Projektuojamos vaikų žaidimų, sporto, ramaus poilsio aikštelės ir visa reikalinga mažoji architektūra (dviračių stovai, suoliukai, šiukšlių dėžės, lauko šviestuvai). Pastatuose projektuojami erdvūs butai su įstiklintomis lodžijomis. Architektūriniai pastatų sprendiniai suprojektuoti išlaikant bendrą architektūrinę stilistiką sklype ir gretimoje teritorijoje. Fasadų apdailai naudojamos tradicinės medžiagos: plytos, tinkas.
Residential buildings at Senvagės st. 3 Klaipėda, are located in the northern par t of the city. The building complex is composed of three – four storey connected rectangular volumes with flat roofs. The site includes a children's playgrounds, sports fields, quiet rest areas and all the necessary small architecture (bicycle racks, benches, trash cans, outdoor lights). The buildings have spacious apar tments with generous glazed loggias. The architectural solutions of the buildings are designed to maintain a cohesive architectural style throughout the site and the surrounding area.Traditional materials such as bricks and plaster are used for facade decoration.
Studija nytt + 2L architektai
PALANGA YOUTH CENTER
Adresas / Address:
Vytauto g. 110, Palanga
Architektai / Architects:
Ignas Lesauskas, Simonas Norkus, Donatas Laucius
Projektavimo įmonė / Office:
MB „Studija „nytt”” (www.nytt.lt), UAB „2L architektai” (www.2larchitects.lt)
Užsakovas / Client:
Palangos miesto savivaldybės administracija
Plotas / Area:
250 m2
Jaunimo centras šiuo metu yra statomas Palangos miesto centrinėje dalyje, ties Jūratės ir Vytauto gatvių sankryža. Projektuojant pastatą buvo daug diskutuota apie atvirumą ir jaunimo integravimą.
Jaunimo centro pagrindinis architektūrinis akcentas yra atviras amfiteatras, kuris vasaros sezonu leis organizuoti nedidelės apimties kultūrinius renginius ar užsiėmimus gr yname ore ir kurs naują viešą erdvę kurorto jaunimui ir svečiams.
Pirmasis aukštas skiriamas administracijai, su pagalbinėmis patalpomis, taip pat numatoma salė su tarpaukštine erdve ir kavine su lauko terasa. Rūsio struktūrą sudaro pagalbinės patalpos ir renginių erdvė, kuri tiesiogiai jungiasi su amfiteatru.
Atsižvelgiant į supančią gamtinę aplinką – pušynus, smėlį, kopas ir jūrą, fasadui parinktos pušies termomedienos dailylentės.
A youth centre is currently under construction in the heart of Palanga, at the intersection of Jūrates and Vytautas streets. Throughout the design process, there was a lot of discussion about openness and youth integration. The main architectural highlight of the youth centre is an open amphitheatre, which will allow organizing small-scale cultural events or activities outside during summer, and will create a new public space for the resort's youth and guests. The first floor is dedicated to the administration with auxiliar y rooms, as well as a hall with a mezzanine space and a cafe with an outdoor terrace. The basement structure consists of auxiliar y rooms and an event space, which directly connects to the amphitheatre In keeping with the surrounding natural environment: pine forests, sand, dunes and the sea, thermal wood panelling was chosen for the facade.
GYDYMO PASKIRTIES PASTATO REKONSTRAVIMAS
/ Address:
Žemaitės al. 1, Kretinga
Stanislovas Lukšas, Rolandas Rakevičius
Projektavimo įmonė / Office:
Adresas Priestato plotas / Extensiosn area: Priestato tūris / Extension volume: Sklypo plotas / Site area:
UAB „Archko” (www.archko.lt)
Sklypo planas
Prie esamo trijų aukštų ligoninės pastato pristatomas priestatas.
Priestatas projektuojamas stačiakampio plano, 1 aukšto, 6 m aukščio. Pagrindiniai įėjimai į priestatą numatomi pietinėje pastato dalyje. Įvažiavimas į pastatą ir išvažiavimas iš jo numatomas vakarinėje pastato dalyje. Pastato tūrio apdaila fasado plokštumose skaidoma į stiklinę, tinkuotą ir skardos. Jungties su esamu pastatu apdaila bus tinkas. Įėjimai į pastatus bus puošti pilkos skardos stogeliais. Stiklinėje priestato dalyje numatyti kabinetai. Greitosios pagalbos automobiliams įvažiuoti bus pritaikytas tinkuotas tūris su skaidriais pakeliamais vartais.
Fasadų apdailai numatoma: tamsiai pilkas metalas, tamsiai rudas ir smėlio spalvos tinkas bei veidrodinis, melsvo atspindžio stiklas.
An extension is planned for the existing three-story hospital building. The extension features a rectangular plan, one floor, and a height of 6 metres. The primar y entrances to the extension are situated on the southern side of the building, while the entr y-exit passage is located on the western side. The volume of the building is divided into façade planes of glass, plaster, and tin finishes. The connection with the existing building is designed with plaster finishing. The entrances are highlighted with grey tin decorations and feature well-developed canopies above them. Cabinets are arranged in the glass section of the extension. The ambulance passage is accentuated by plastered volumes with transparent lift-up gates.
The facades are planned with dark grey metal elements, dark brown and beige for plaster, and mirrored glass with a bluish tint.
Projektai / Projects 90
Adresas / Address:
J. Basanavičiaus g. 45, Palanga
Architektai / Architects:
Osvaldas Jankauskas
Projektavimo įmonė / Office:
UAB „TS Projects” (www.tsprojects.lt)
Užsakovas / Client: UAB „Šachmatinė“
Lankomiausioje Palangos miesto Basanavičiaus gatvėje numatytas visuomeninės paskir ties pastato remontas. Projekte planuojama jo paskir tį keisti iš poilsio į maitinimo, taip pat keisti patalpų plano sprendinius.
Pastato fasadų apdaila, atsižvelgiant į supančią gamtinę aplinką, numatoma iš medinių dailylenčių, stogo apdaila – valcuotos skardos. Projektuojami dideli langai, kuriuose atsispindi greta augantys medžiai, tuo vizualiai sumažinant pastato tūrį.
The renovation of a public building is planned in Palanga, on the most visited Basanavičius street. The project involves converting the building from a recreational facility to a catering establishment and implementing new room layout solutions. The building's façades are altered to harmonise with the surrounding natural environment. Wooden panelling is planned for the façades, and rolled tin sheets for the roof. Large windows and cur tain walls will reflect the nearby trees, visually reducing the building's volume.
Adresas / Address:
Nemuno g. 8, Klaipėda
Architektai / Architects:
Andrius Laurinaitis, Gerda Antanaitytė, Aurimas Baužys
Projektavimo įmonė / Office:
Altitudės (www.altitudes.lt), UAB „Projektų rengimo centras”
Užsakovas / Client:
AB „Smiltynės perkėla”
Plotas / Area:
2 441 m2
Tūris / Volume:
14 067 m3
Sklypo plotas / Site area:
20 411 m2
Naujas AB „Smiltynės perkėla” pastatas – tiltas, pakilęs virš žemės paviršiaus, atveriantis vaizdus į Kuršių neriją laukiantiems kelionės keltu. Pastato tūris formuojamas iš dviejų korpusų, sujungtų tiltu, po kuriuo transportas patenka į keltus.
Pagrindinės pastato funkcinės grupės - keleivių laukimo erdvės, administracinės patalpos, keltų remonto dirbtuvės su joms aptarnauti skirtomis patalpomis bei laivų išlydėjimo terasos su kavine bei konferencijų sale.
Itin svarbus teritorijos sutvarkymo elementas - naujai kuriamos viešosios erdvės. Krantinėje formuojamos rekreacinės salos su lauko terasomis, želdiniais, skir tingo intensyvumo apšvietimu, infrastruktūra dviratininkams. Išnaudojant tvarkomos teritorijos lokaciją, siekiama plėsti pakankamai ribotą priėjimą prie Kuršių marių ir prisidėti prie kokybiškų miesto rekreacinių erdvių kūrimo.
The new building of "Smiltynė Ferry Terminal" is a bridge that rises above the ground sur face, offering views of the Curonian Spit to travelers waiting for the ferry. The volume of the building is formed by two bodies connected by a bridge, under which transportation enters the ferries.
The main functional groups of the building include passenger waiting areas, administrative rooms, ferry maintenance workshops with dedicated facilities, and ship depar ture terraces with a café and conference halls.
An important element of the territory is the creation of new public spaces. Recreational islands with outdoor terraces, green areas, different lighting, and infrastructure for cyclists are being formed on the waterfront. By utilizing the location of the organized territory, the aim is to expand the limited access to the Curonian Sea and contribute to the development of high-quality recreational areas in the city.
Taikos pr. 61, Klaipėda
Architektai / Architects:
Rytis Čimkus, Maksimas Zacharovas, Austėja Pauliukevičiūtė, Paulius Latakas, Rytas Rutkauskas, Viktorija Blažienė, Tomas Drungilas, Darius Overlingas
Projektavimo įmonė / Office:
MB „2L Architects” (www.2larchitektai.lt), UAB „Ryčio Čimkaus studija” (Balt-A) (www.balt-a.lt)
Užsakovas / Client: UAB „Taikos turtas”
Plotas / Area: Tūris / Volume: Sklypo plotas / Site area:
Adresas / Address: 3 528 m2 39 229 m3 93 579 m2
Pastate numatomas prekybos plotas, techninės, buitinės ir administracinės patalpos vienam nuomininkui, turinčiam atskirą koncepciją. Naujai statomo pastato fasado kompozicija paremta greta esančio prekybos centro koncepcija ir kompozicija, vizualiai suskaidant pastatą ir sukuriant naują akcentinį tūrį, išsikišantį iš bendros fasado linijos, stiklo vitrinomis pabrėžiant jo dominavimą. Pastato sienos projektuojamos iš daugiasluoksnių skydų, fasadams numatomos rūdinto plieno plokštės ir lamelės.
Ties pagrindiniais pėsčiųjų takais siekiama pasitikti ir vesti lankytoją jaukiai apželdintais takais, integruotais automobilių stovėjimo aikštelėje, – formuojami želdynai su medžiais, apšvietimu, numatomi suoleliai poilsiui.
The building provides a retail area, technical, domestic, and administrative premises for one tenant with a separate concept. The composition of the façade of the newly constructed building is based on the concept and composition of the adjacent shopping centre, visually dividing the building and creating a new accent volume protruding from the general façade line and emphasising its dominance with the help of a curtain wall. The walls of the building are designed from sandwich panels with façades of coreten steel panels and lamella.
The main main footpaths are designed to welcome and guide the visitor along pleasantly planted paths integrated in the car park along with greenery with trees, lighting, and benches for rest.
SANDĖLIAVIMO PASKIRTIES PASTATAS
Address:
Tilžės g. 82, Klaipėda
Algirdas Stripinis, Tomas Vasilkevičius, Lina Simutytė
Architektai / Architects: Plotas / Area: Tūris / Volume: Sklypo plotas / Site area:
UAB „Uostamiesčio projektas” (www.uparchitektai.lt)
Sklypo planas
Sandėliavimo paskir ties pastatas projektuojamas vakarinėje
Tilžės g. 82 sklypo dalyje Pagrindiniai įėjimai į pastatą projektuojami šiaurės r ytų, šiaurės vakarų ir pietryčių pastato pusėse. Vartai į sandėliavimo patalpas numatomi iš pastato šiaurės vakarų ir pietryčių pusių.
Vienoje pastato dalyje, pirmajame aukšte, projektuojami sandėliai, kitoje pastato dalyje, pirmajame aukšte ir antresolėje, numatytos administracinės patalpos su zonomis personalui: persirengimo vietomis ir vir tuvėlėmis. Administracinė pastato dalis orientuojama į Tilžės gatvę. Pagrindinis fasadas dengiamas stiklo vitrinomis, dekoruojamas aliuminio lamelėmis, kirsto tinklo elementais.
A warehouse building is being designed in the western par t of Tilžės street 82 plot. The main entrances to the building are designed on the northeast, northwest and southeast sides of the building. The gates to the storage spaces are provided from the north-west and south-east facades of the building. The building is divided into two sections: one dedicated to warehouses on the ground floor, and the other comprising administrative rooms on both the ground floor and mezzanine level with designated spaces for staff, such as changing rooms and kitchenettes. The administrative par t of the building is facing Tilžės street. The main facade is clad with a cur tain wall decorated with aluminium lamellas and metal mesh elements.
Klaipėdos architektūra 2022 / Klaipėda architecture 2022 95
Adresas / Address:
Simpsono g. 17, Palanga
Architektai / Architects:
Liuda Bartkienė, Miglė Paužaitė, Jūratė Usanova, Snieguolė Stripinienė, Algirdas Stripinis
Projektavimo įmonė / Office:
UAB „Uostamiesčio projektas” (www.uparchitektai.lt)
Užsakovas / Client:
UAB „Icont“
Kadangi Palangos kurorte vyrauja skir tingos išraiškos ir tūrių pastatai, tarp kurių gana dideli plotai pilni medžių, buvo pasirinktas ne perimetrinio užstatymo tipas. Viešbutis projektuojamas įtrauktas į sklypo gilumą, paliekant erdvę prieš pastatą. Čia projektuojamas dekoratyvinis baseinas, kuriame numatomas akcentas - skulptūra. Baseinas projektuojamas su persiliejančiu bortu palei pėsčiųjų taką kuris vizualiai panaikina krašto ribą.
Siekiant kontekstualumo ir tęsiant kurortinės architektūros tradiciją Palangoje, projektuojamas viešbutis, kuris terasų ir balkonų dydžiu pabrėžia kurortinį pastato charakterį. Žaismingumo suteikia numatomi apželdinti visžaliais augalais balkonai. Pastato stilistinė inspiracija - mid-century modern stilius.
Since Palanga resort has various expressions and voluminous buildings, including large areas filled with trees, a free-standing type was chosen. The hotel is designed to be included in the depth of the plot, leaving space in front of the building. Here, a decorative pool is planned, with the accent being a sculpture. The pool is designed with an overflowing edge along the pedestrian path, visually eliminating the edge of the coast.
To achieve contextual relevance and continue the architectural tradition of the resort in Palanga, a hotel is being designed, emphasizing the character of the resort building with the size of terraces and balconies. Playfulness is provided by balconies with planned greenery. The stylistic inspiration for the building is mid-century modern style.
Adresas / Address:
Prieplaukos g. 2, 4, Šventoji
Architektai / Architects:
Edgaras Neniškis, Kristina Žalytė, Artūras Mažeika, Justas Jankauskas, Žilvinas Urbas, Jonas Rimeika
Projektavimo įmonė / Office:
UAB „Arches” (www.arches.lt)
Vizualizacijos / Visualisations:
Noisy Owls
Plotas / Area:
2 298 m2 ir 3 606 m2
Tūris / Volume:
10 460 m3 ir 15 070 m3
Sklypo plotas / Site area:
2 022 m2 ir 2 860 m2
Šventoji – istorinė žvejų gyvenvietė su savo uosteliu. Joje susiformavęs specifinio mastelio užstatymas, smulkūs, greta vienas kito prisišlieję tūriai. Visa tai interpretuojama ir naujajame poilsio komplekse – tai lyg Šventosios silueto „kardiograma“, įsiterpusi tarp pušų – ne tik plane, bet ir pjūvyje. Prie uosto projektuojamas korpusas formuoja uosto užstatymo išklotinę, tai lyg horizontaliai pasukti šlaitiniai stogai, horizontalus miesto siluetas. Jo tūriškai išreikštas fasadas atspindi vandenį, laivus. Tuo tarpu pušyne suprojektuotas poilsio numerių kompleksas jautriai reaguoja į kiekvieną medį, sugeria į save aplinkos tekstūras – apdailai naudojamas anoduotas žalias cinkas, paįvairintas medinių balkonų intarpu. Tūrių suvirpėjimas leidžia formuoti uždaresnes (individualioms terasoms) ir atviresnes (lauko baseinams) erdves.
Šventoji is a historical fishers' town with its own harbour, with a specific scale of buildings and built-up area. All of this is interpreted in the new recreation complex - it is like a "cardiogram" of Šventoji's panorama, interspersed among pine trees. The building designed at the port is like horizontally turned sloped roofs, the horizontal silhouette of the city Its volumetrically expressed facade reflects the water and the ships. Meanwhile, the recreation room complex designed in a pine forest reacts sensitively to each tree, absorbing the textures of the environment - anodised green zinc is used for the finish The movement of volumes allows for the formation of more private (for individual terraces) and more public (for outdoor pools) spaces.
V4 - SPA AND HOTEL IN PALANGA
Adresas / Address:
Vytauto g. 4, Palanga
Architektai / Architects:
Tomas Grunskis, Jūratė Kindurytė, Martynas Mankus, Vaiva Žemaitytė, Ąžuolas Gražulis, Rasa Labunskaitė
Projektavimo įmonė / Office:
UAB „AEXN” (www.aexn.lt)
Plotas / Area:
7 678 m2
Tūris / Volume:
28 000 m3
Sklypo plotas / Site area:
17 718 m2
Kompleksas yra pietinėje Palangos miesto dalyje Jį sudaro: apartamentų viešbutis su SPA – keturių aukštų su mansarda ir rūsiu, šlaitiniais stogais ir penki svečių namai – trijų aukštų su mansarda, šlaitiniais stogais. Pastatų architektūra užtikrina kompozicinį pastatų ryšį, proporcijų, medžiagiškumo ir spalvinio sprendimo darną. Tūrių skaidymas ir jų mastelis derinamas prie aplinkos sodybiniam vilų morfotipui būdingų dydžių, maksimaliai prisitaikoma prie esamų medžių vietų. Architektūriniai pastato sprendiniai numatomi kompleksiškai sprendžiant fasadų kompoziciją, išlaikant vientisą architektūrinę stilistiką. Pastatų išorės apdailai naudojamos tradicinei pajūrio architektūrai būdingos statybinės medžiagos. Dominuoja natūralus medis ir klinkerio plytelių apdaila, kuri spalviškai įsilieja į gamtos visumą.
The complex is located in the southern par t of Palanga. It comprises a Spa with a hotel, a four-storey building with an attic and basement, as well as five guest houses consisting of threestorey volumes with attics. The architectural decisions ensure compositional connection, proportional coherence, materiality, and colour coordination. The division of volumes and their scale is based on the sizes of the villa morphotype, while their placement adapts to the existing areas with trees. Typical and traditional building materials for seaside architecture, such as natural wood and clinker tile finishes, are used for the exterior, blending harmoniously into the surrounding nature. The final architectural solutions maintain a seamless appearance throughout the entire complex.
Adresas / Address:
Minijos g. 181, Klaipėda
Architektai / Architects:
Laurynas Avyžius, Edvinas Stašys
Projektavimo įmonė / Office:
UAB „NEBRAU” (www.nebrau.com)
Vizualizacijos / Visualisations:
3DM Studio
Užsakovas / Client:
UAB „KTG Minija”
Rangovas / Contractor:
UAB „Aldasta”
Reprezentacinėje pusėje nuo gatvės pasitinka išskirtinės ir modernios architektūros administracinis korpusas, už jo tęsiasi sandėlio pastatas.
Administracinės paskir ties patalpas norėjome išskirti ir pabrėžti būsimos įmonės tvarų ir šiuolaikišką architektūrinį sprendinį. Laikančioji konstrukcija klijuotos medienos – kaip pareiškimas šiuolaikiškai ir tvariai sistemai. Pastatas architektūrine išraiška atskiriamas specialiai, tuo pabrėžiant jo charakterį ir kartu norint už jo paslėpti sandėlio tūrį.
Sprendiniuose pastato fasadams numatytos tr ys pagrindinės medžiagos (stiklas, betonas, metalo plokštės). Ritminis langų išdėstymas pabrėžia būdingus administracinio pastato architektūros bruožus, atsirandantys pagilėjimai suskaido fasado erdvę ir dinamiškai pagyvina ilgą plokštumą.
Exclusive and modern architecture of the administrative building extends to the warehouse building. We wanted to distinguish the administrative premises and highlight the identity of the future company as a sustainable and modern architectural solution A load-bearing structure of wood is used as a statement for a modern and sustainable system. The building is distinguished by its architectural expression, thus emphasising its character and concealing the volume of the warehouse. In the solutions, the facades of the building are divided into three main materials (glass, concrete, metal panels). The formed rhythmic arrangement of windows emphasises the characteristic architectural features of the administrative building, and the resulting indentations break up the volume of the facade and dynamically enlivens the long plane.
Adresas / Address:
Stalių g. 4, 6, Klaipėda
Architektai / Architects:
Kristina Milvidaitė-Striškienė, Snieguolė Stripinienė
Projektavimo įmonė / Office:
UAB „Uostamiesčio projektas” (www.uparchitektai.lt)
Užsakovas / Client:
UAB „Sigmaris“
Planuojami sklypai yra Vitės teritorijoje, Klaipėdos miesto istorinėje, saugomoje aplinkoje. Atlikus esamos aplinkos analizę, nustatyta, kad sklypai Stalių g. 4, 6 patenka į pažeistos urbanistinės struktūros aplinką: gatvių tinklas aplinkinėje teritorijoje išlikęs fragmentiškai, sklypų ribos pakitusios, užstatymas gerokai padidėjęs, didina teritorijoje esančio užstatymo masteliškumą. Nėra požymių, kad teritorijoje būtų bandoma atkurti buvusias urbanistines struktūras ar jų charakterį. Projektuojant administracinės paskir ties pastatus, siekiama įvertinti įvykusius pakitimus, atkurti buvusio užstatymo pobūdį, skaidant tūrius, numatant šlaitinius stogus, orientuojant pastatus galais į Stalių gatvę, parenkant natūralias apdailos medžiagas ir būdingas spalvas, tuo kuriant artimą buvusiam užstatymui charakterį.
The planned plots are situated in the Vitė area, within a protected area of Klaipėda. A thorough analysis revealed that the plots Stalių street 4 and 6 are situated in an area with a damaged urban structure. The street network in the vicinity remains fragmented, plot boundaries have changed, and there has been a significant increase in construction, altering the overall scale of the area. There have been no efforts to restore the former urban structures or preserve the character of the area. The design of the administrative buildings aims to carefully assess these changes and restore the essence of the former urban block by dividing the volumes, incorporating pitched roofs, orienting the buildings towards Stalių street with natural materials and characteristic colours. This approach aims to recreate the character of the former built-up area.
MINERAL WATER SPA COMPLEX
Adresas / Address:
Girulių pl. 11, Klaipėda
Architektai / Architects:
Edgaras Neniškis, Rolandas Liola, Arūnas Liola, Eglė Daunoraitė, Eugenijus Januškevičius, Žilvinas Urbas
Projektavimo įmonė / Office:
UAB „Arches” (www.arches.lt), UAB „Sweco” (www.sweco.lt)
Vizualizacijos / Visualisations:
Noisy Owls
Mineralinio vandens SPA kompleksas – tai pajūrio pušynuose pasislėpusi struktūra, kurios pamatiniai kompoziciniai principai remiasi siekiu išsaugoti trapią natūralią gamtinę aplinką, kur ti palankiausias dvasios poilsio sąlygas. Poilsio kompleksas susideda iš trijų pagrindinių dalių: poilsio ir vandens procedūrų centro, viešbučio, renginių ir maitinimo centro. Funkcijos išdėstytos taip, kad gyventojai ir lankytojai galėtų rinktis tarp galimybės pabūti meditacinėje vienumoje ar aktyviai socializuotis. Lauko baseinų zona pastato ir pušų saugoma nuo vėjų ir šalčio. Unikali mineralinio vandens sudėtis, jo temperatūra išnaudojami lauko ir vidaus baseinams, vonioms, kartu šildant pastatus.
The mineral water spa complex is a structure hidden in the seaside pine forest with a basic compositional principle focusing on preserving the fragile natural environment and creating the most favourable conditions for the relaxation of the human spirit. The recreation complex consists of three main par ts: a recreation and water treatment centre, a hotel and an events and catering centre. The functions are arranged in such a way that residents and visitors can choose between meditative solitude or active socialising. The outdoor pool area is protected from wind and cold by the building and pine trees. The unique composition of mineral water and its temperature are used for outdoor and indoor swimming pools, baths, and heating the buildings.
/ Address:
Kontininkų g. 6, Palanga
UAB „Grafija”’ ir UAB „Gilesta”
Berta Meironaitė, Povilas Čepaitis, Mindaugas Šutėnas, Ignas Kundreckas
MB „Fragment architektai” (www.fragment.lt)
Adresas Plotas / Area: Tūris / Volume: Sklypo plotas / Site area:
Architektai / Architects: 19 800 m2 141 032 m3 56 571 m2
Kompleksas inspiruotas supančios gamtos natūralumo. Pajūrio kopos, durpynai ir pušynai padiktavo ramų, melancholišką charakterį, derantį su rekreacine paskir timi. Šiuo projektu siekiame ne pakeisti, bet išsaugoti ir praturtinti vertingiausius vietos bruožus. Kompleksą sudaro aštuonios erdvės, įsiliejančios į trapią gamtinę aplinką. Perimetru projektuojami smulkaus mastelio poilsio namų kvartalai. Šlaitinių stogų žaismas, natūralios ir nuosaikaus kolorito apdailos medžiagos, pasikartojantys architektūriniai elementai sukuria darnią įvairovę. Tarp kvartalų formuojamos viešosios erdvės, kurios turi patogų r yšį su kūdrų parku. Teritorijos centre planuojamas natūralios augmenijos parkas su kūdromis. Šioje zonoje projektuojamas banguojančių formų viešbutis su viešosiomis paslaugomis komplekso svečiams.
The design is inspired by the beauty of the surrounding nature. The coastal dunes, peat bogs and pine forests dictated a calm, melancholic character that was in harmony with the recreational use With this project, we aim not to change, but to preserve and enrich the most valuable features of the site. The complex consists of eight spaces that blend into the fragile natural environment. Small-scale house blocks are designed around the perimeter. The play of pitched roofs, natural palette of finishing materials, repetition of architectural elements create a harmonious variety. Public spaces between the blocks have a convenient connection with the central park. A natural vegetation park is planned in the centre of the territory. An undulating hotel building with public services for guests of the complex is being designed in this area.
Adresas / Address:
Pramonės g. 14, Dirvupiai, Klaipėdos r. sav.
Architektai / Architects:
Edgaras Neniškis, Artūras Mažeika, Toma Bačiulytė
Projektavimo įmonė / Office:
UAB „Arches” (www.arches.lt), UAB „Neoforma” (www.neoforma.lt)
Vizualizacijos / Visualisations:
Karolina Masalskaitė
Užsakovas / Client:
UAB „Klaipėdos aerouostas“
Plotas / Area:
20 757 m2
Tūris / Volume:
223 810 m3
Sklypo plotas / Site area:
167,9 ha
Tai šiuolaikinių gamybos technologijų kompleksas, architektūrine išraiška siekiantis atspindėti technologiškumą ir ateities perspektyvą. Dėl Klaipėdos oro uosto gretimybių naujasis kompleksas – tarsi aliuzija į pievoje nusileidusį orlaivį iš ateities. Elipsės forma primena aptakų skraidantįjį objektą, o jį juosianti ažūrinė kolonada išlaiko tūrio geometriją, esti kaip vėjo užtvara, kurianti palankų mikroklimatą priešais pastatą. Už kolonados numatytas veidrodinis vandens baseinas, kuriame atsispindi pastatas. Tai sukuria neutralią zoną – perėjimą iš judančios greitkelio aplinkos į šiuolaikinių technologijų centrą. Komplekse numatytos administracinės patalpos, o už jų
šiuolaikinės gamybos patalpos. Apdailai naudojamos sidabrinės metalo plokštės, veidrodiškas stiklas, atspindintis aplinką taip pat, kaip ir baseinas.
It is a complex of modern production technologies, which in its architectural expression aims to reflect technology and the perspective of the future. Due to its proximity to Klaipėda airport, the new complex is like an allusion to a spacecraft from the future that landed on a meadow. Its elliptical form resembles a sleek flying object, while the openwork colonnade surrounding it maintains the geometry of the volume. Behind the colonnade, there is a mirrored pool in which the building is reflected. This creates a neutral zone - a transition from the moving highway environment to the centre of modern technology. The complex includes administrative premises, and behind them - modern production premises. Silver metal plates, mirrored glass, which reflects the environment as well as the pool, are used for the finish of the building.
HOLISTIC HUMAN DEVELOPMENT CENTER - HOLAXY
Adresas / Address:
Šiaurės pr. 24, Klaipėda
Architektai / Architects:
Romualdas Gailius, Mindaugas Savickas
Projektavimo įmonė / Office:
UAB „TAU projektai” (www.tauprojektai.lt)
Užsakovas / Client:
VšĮ Socialinių mokslų kolegija
Plotas / Area:
29 800 m2
Tūris / Volume:
154 400 m3
Sklypo plotas / Site area:
17 036 m2
Projektuojamas daugiafunkcis pastatas skir tas mokymuisi, darbui, rekreacijai, kūr ybai ir socializacijai visuomeninės paskir ties sklype Šiaurės pr. 24, Klaipėdoje.
Pastato tūris vientisas, formuojamas atsižvelgiant į urbanistines kompozicines konteksto ašis ir veiksnius. Tūrinėmis ir erdvinėmis priemonėmis kuriamas tėkmės, begalybės įspūdis.
Siekiant paaiškinti vidinę erdvinę pastato struktūrą, pasitelkiama DNR jungčių alegorija. Aukštų jungtys dėstomos organiškai, sukeičiant vieną su kita, kas lemia vidinių erdvių sampyną, peršviečiamumą. Erdvių sampyna siekiama skatinti netikėtus r yšius tarp funkcijų, komunikaciją tarp skir tingų erdvių naudotojų. Nėra vienos baigtinės erdvės, siūlomos viešosios erdvės konceptualiai neturi nei pradžios, nei pabaigos, kuriamas begalinio tekėjimo, judėjimo įspūdis – gyvastis.
The designed multi-functional building is intended for learning, work, recreation, creativity, and socialisation on a plot for public land use at Šiaurės pr 24, Klaipėda. The volume of the building is integral, formed considering the urban compositional axes and factors of the context. Volumetric and spatial means create the impression of flow and infinity. The allegor y of DNA connections is used to explain the internal spatial structure. Interior connections are arranged organically, intertwining with one another, which leads to translucency of internal spaces. Interweaving of spaces aims to encourage unexpected connections between functions, communication between users of spaces. There is no single finite space; proposed public spaces conceptually have neither a beginning nor an end. The impression of an endless flow and movement is created – LIFE.
Adresas / Address:
Turgaus g., Priekulė, Klaipėdos r. sav.
Architektas / Architect:
Aurimas Baužys
Projektavimo įmonė / Office:
MB „Altitudės”
Užsakovas / Client:
Klaipėdos rajono savivaldybės administracija
Sklypo plotas / Site area:
2 150 m2
Priekulės miestelyje projektuojama nauja jauki viešoji erdvė susidedanti iš dviejų išreikštų dalių – skvero bei sodo. Skveras su fontanu projektuojamas kaip griežtas stačiakampis, sutampantis su buvusios istorinės didžiosios turgaus aikštės riba. Išlikusiame senų obelų sode formuoja pasivaikščiojimo alėja ir takas su suoliukais bei sūpynių paviljonu. Palei Turgaus gatvę priešais gyvenamąjį namą projektuojama tvora ir gausus apželdinimas – gyvatvorės ir pieva, atskiriančios viešą ir privačią erdves. Taip sukuriamos tr ys skir tingo charakterio erdvės interpretuojančios istorinių miestelių viešųjų ir privačių erdvių kodą.
A new and cosy public space - a small square and a garden –was designed in the town of Priekulė. A square with a fountain takes a rectangular shape marking the edge of the former historic great market square. An alley and a winding footpath with benches and a folly with swings is designed in an old fruit tree garden. A fence with lush greenery – hedges and a naturalistic grassland – are designed along Turgaus street in front of an existing apar tment building to create a clear line between public and private space. Three spaces with distinctive characters interpret the private and public space character of a small historic town.
Adresas / Address:
Architektai / Architects:
Giedrius Bujokas, Augustė Bujokaitė
Projektavimo įmonė / Office:
UAB „TS Projects” (www.tsprojects.lt)
Užsakovas / Client:
Šilutės rajono savivaldybės administracija
Sklypo plotas / Site area:
87 800 m2
Šilutės miesto r ytinėje dalyje numatyta esamų civilinių kapinių plėtra ir infrastruktūros įrengimas. Siekiant darniai prijungti naują dalį prie esamos, formuojamos transporto ir pėsčiųjų judėjimo trasų jungtys.
Naujai įrengiamoje 8,78 ha ploto teritorijoje numatomi skir tingi žmonių palaikų laidojimo būdai, vietos ir principai. Numatoma vieta 7 tūkstančiams kapų su apribojimais ir antkapiais, 3 000 urnų laidojimo vietų, 50 kolumbariumų ir 1 500 laidojimo vietų urnoms juose bei neriboto talpumo 2 200 m2 ploto pelenų barstymo vieta. Taip pat numatoma kapinių teritoriją apsodinti želdiniais, įrengti transporto stovėjimo aikštelę, kapinių reprezentacinę erdvę ir vietą monumentams.
Preliminariais skaičiavimais, išplėtus naująsias civilines kapines, vietos laidojimui užteks ne mažiau kaip 30 metų.
In the eastern par t of the town Šilutė, plans are underway to expand the municipal cemetery and install new infrastructure. Transport and pedestrian routes will be established to seamlessly connect the new extension with the existing cemetery. The newly designated area, covering 8.78 hectares, will accommodate various burial methods, sites, and principles. There will be provision for 7,000 graves with restrictions and headstones, 3,000 urn burial places, 50 columbaria with a capacity for 1,500 urns, and an additional 22-acre area for scattering ashes. The cemetery grounds will also be planted with greenery, and have designated spaces for car parking, a representative area, and monuments will be included in the plans. Based on preliminary estimates, the expansion of the new municipal cemetery will ensure local burial needs for at least 30 years.
Adresas / Address:
Herkaus Manto g. 84, Klaipėda
Architektai / Architects:
Laimonas Bogušas, Tomas Medzelas
Projektavimo įmonė / Office:
MB „Urbanistinė architektūra” (www.urbanistinearchitektura.lt)
Skulptorius / Sculptor:
Algirdas Bosas
Užsakovas / Client: Klaipėdos universitetas
Skulptūrinė kompozicija Klaipėdos universiteto pastatų komplekso teritorijoje, skirta Alfonso Žalio atminimo įamžinimui.
Kompoziciją sudarančios dalys – pagrindinė granito kolona su portretiniu biustu ant granitinės bazės, frontalinė granito stela su pagrindiniu tekstu, natūralaus šviesiai pilko tašyto akmens grindinio parteris. Skulptūrinė kompozicija orientuojama pietų kr yptimi, tuo užtikrinant tiek pagarbią kompozicijos įamžinamam asmeniui prieigą bei ekspoziciją, tiek pačios kompozicijos, ypač portretinio biusto, apšvietimą ir matomumą istorinių Klaipėdos universiteto pastatų teritorijoje.
Granito steloje, atgręžtoje į esamą taką, komponuojamas pagrindinis tekstas. Ant biusto kolonos – esminės A. Žalio gyvenimo datos. Steloje virš centrinio užrašo komponuojamas Lietuvos valstybės simbolis – paauksuotas Vytis.
A sculptural composition dedicated to the memory of Alfonsas Žalys in the Klaipėda University building complex. The composition comprises several elements, including a prominent granite column with a portrait bust placed on a sturdy granite base, a frontal granite stele featuring the main text, and a par terre with natural light grey hewn stone paving. Positioned towards the south, the sculptural composition ensures respectful access and visibility for the person commemorated, while also considering the lighting and exposure of the composition itself, par ticularly the portrait bust, amidst the historical buildings of Klaipėda University. The main text, engraved on a granite stele, faces the existing pathway. The essential dates of A. Žalys life are inscribed on the column supporting the bust. Above the central inscription on the stele, the gilded Vytis, symbolising the state of Lithuania, takes its rightful place.
L. Rėzos g. 1C, Juodkrantė
Snieguolė Stripinienė, Lina Simutytė
Projektavimo įmonė / Office:
UAB „Uostamiesčio projektas” (www.uparchitektai.lt)
Projekto sprendiniais siekiama pakeisti esamą pastatą į kilnojamuosius daiktus – modulius, pritaikant juos visuomenės poreikiams: kavinės, t. y. maitinimo, ir mini golfo, t. y. sporto.
Projektuojamus kilnojamuosius daiktus sudaro: uždari vienšlaičiai moduliai, kurių bendras užimamas plotas siekia 49 m2. Moduliuose numatomos pagalbinės patalpos, maisto gaminimo patalpa ir mini golfo inventoriaus išdavimo patalpa, taip pat vienšlaitė pastogė nuo lietaus pasislėpti, joje – sėdimos vietos lankytojams. Uždarus modulius ir pastogę jungia pergolė, suteikianti viešojo maitinimo funkciją poilsio sezonu. Fasaduose numatoma medinių lentelių danga, formuojama iš atskirų modulių.
The project's main objective is to repurpose the existing building into versatile movable modules providing the public with a café and a mini-golf facility. The modules are designed with a single pitch roof occupying a total area of 49 square metres. Inside there will be utility rooms, a cooking area, and a dedicated space for storing mini-golf equipment along with a single pitched rain shelter with comfortable seating. A pergola connects the modules and the shelter. Additionally, wooden tables formed from individual modules will be arranged to create a communal dining area, ensuring a delightful dining experience during holiday seasons.
Architektų biuras G. Natkevičius ir partneriai
SINGLE FAMILY HOUSE
Adresas / Address:
Litorinos g., Klaipėda
Architektai / Architects:
Paulius Narauskas, Adomas Rimšelis, Gintautas Natkevičius, projekto vadovas Lauras Ruseckas
Projektavimo įmonė / Office:
UAB „Architektų biuras G. Natkevičius ir partneriai” (www.natkevicius.lt)
Konstruktoriai / Constructors:
Mindaugas Kasiulevičius, Aurimas Seilius
Namas pastatytas Klaipėdoje, prie Baltijos jūros. Namo architektūrinę idėją inspiravo pati vietovė, kuri yra buvusi kopa, šiuo metu apaugusi mišku, daugiausia pušimis. Todėl norėta sukur ti fasadą, primenantį pušies žievę, kad pastato sienos ir stogas atrodytų tarsi pušies tošies žvyneliai.
Namo forma – tolima užuomina dvišlaičių žvejų namukų, kurie senais laikais būdavo dekoruojami pjaustytų žirgelių detalėmis. Tad atkartojant žvejų namus, vietoje tų žirgelių į fasadą iškišamas didžiulis plieninis lietvamzdis, kuris interpretuotinas kaip moderni šių laikų detalė, perteikianti žuvėdros sparnų nuotaiką, aliuziją.
The house is constructed in Klaipėda by the Baltic Sea. The architectural idea of the house was inspired by the surrounding area, which is a former dune now covered in a forest primarily consisting of pine trees. Therefore, the aim was to create a facade that resembles the texture of pine bark, with the walls and roof of the building resembling the scales of a pine tree's bark.
The shape of the house subtly alludes to the traditional gabled houses of fishermen, which in the old days were traditionally decorated with elements of car ved horses. In the modern interpretation of the fisherman's house, a large steel downspout instead of horses juts out from the facade, symbolizing the wings of a seagull.
Adresas / Address:
Eglių g., Palanga
Architektas / Architect:
Lauras Ruseckas
Projektavimo įmonė / Office:
UAB „Neoforma” (www.neoforma.lt)
Nuotraukos / Photographs:
Arimantas Knašas
Užsakovas / Client:
UAB „Vitalda”
Rangovas / Contractor:
UAB „Elpekas”
/ Area: Tūris / Volume:
Vieno buto blokuoti gyvenamieji namai pastatyti Palangoje, Eglių gatvėje, už 4,7 km nuo Palangos miesto centro. Iki Baltijos jūros – apie 900 m. Rytinėje pusėje gyvenamųjų namų kvartalas ribojasi su miškais. Vieno buto gyvenamieji namai sublokuoti išilginėmis sienomis. Pirmajame aukšte įrengta vir tuvė, WC ir svetainė. Namo centre, palipimui į antrą aukštą įrengta laiptinė. Kraštiniuose namuose antrajame aukšte įrengta po tris miegamuosius kambarius, viduriniuose – po du miegamuosius. Pastatų fasadų apdaila iš skalūno plytelių.
The new blocked houses are constructed on Eglių Street in Palanga, located approximately 4.7 km from the city centre and 900 metres from the Baltic sea. The eastern side of the residential complex is bordered by a forest. The houses are blocked together along their longer sides. The first floor has a kitchen, living room and a toilet and a centrally placed staircase. There are three bedrooms in the side houses, and 2 bedrooms in the middle ones. The facades are clad in slate tiles.
Adresas / Address:
Svencelė, Klaipėdos r. sav.
Architektai / Architects:
Andrė Baldišiūtė, Algimantas Neniškis, Gilma Teodora Gylytė, Sabina Grincevičiūtė, Kasparas Žiliukas, Milda Grabauskaitė, Emilija Martinkevič, Emilija Deksnytė
Uostas – išskirtinė vieta Svencelės teritorijoje. Mažųjų laivų uosto įrengimas paskatins aktyvią vandens turizmo plėtrą Klaipėdos regione – tai atitinka Klaipėdos rajono strateginius plėtros planus. Įgyvendinus projektą, Svencelės uostas integruosis į kitų prieplaukų ir uostų bei lankomų turistinių objektų tinklą Kuršių mariose. Uosto teritorija sujungs naująsias kanalų sistemas su mariomis. Uostas yra skir tas praplaukiantiems laivams ir lankytojams, jame suplanuota apie 50–70 vietų skirtingų tipų laivams.
Teritorijai vystantis, numatomas tolesnis gyvenvietės augimas, uosto centre projektuojamas daugiafunkcis objektas – jachtklubo pastatas (statytojas UAB „Kopa vilkui“). Objektas programuojamas tapti dar viena uostą papildančia dalimi su įvairiomis funkcijomis, aplink kurį virtų gyvenimas ištisus metus.
Užsakovas / Client: UAB „Kopa vilkui” ir UAB „Svencelės sala”
Svencele Dunes uostas Nuotraukos / Photographs:
Uosto plotas / Port area: Sklypo plotas / Site area:
3 000 m2
3 500 m2
The harbour is a unique place in the territory of Svencele. The development of the small boat harbour will stimulate the active development of water tourism in the Klaipėda region, which is in line with the strategic development plans of the region. The project will integrate Svencelė into the network of other harbours in the Curonian Lagoon. The harbour area will connect the new canal system to the lagoon. The port is designed for visiting ships, with a capacity for moring 50-70 different types of boats. The development of the area is expected to lead to fur ther growth of the settlement and a multifunctional facility in the centre of the harbour - a yacht club building (built by JSC Kopa Vilkui). The object is programmed to become another par t of the harbour with a variety of functions and vibrant life all year round.
Adresas / Address:
Sauseriai, Salantų Regioninis parkas
Architektai / Architects:
Andrė Baldišiūtė, Vadim Babij, Milda Grabauskaitė, Kasparas Žiliukas, Sabina Grincevičiūtė, Gilma Teodora Gylytė, Algimantas Neniškis
Projektavimo įmonė / Office:
UAB „DO architects” (www.doarchitects.lt)
Plotas / Area:
785 m2
Sklypo plotas / Site area:
12 ha
Sauseriai – tai moderniai interpretuota tradicinė lietuviška sodyba, įsikūrusi labai vaizdingoje Salantų regioninio parko teritorijoje. Nors Sauseriai sudar yti iš tipinių, tokiose sodybose įprastų pastatų tipų, naudojant tradicines šiai vietovei architektūrines formas ir tūrius, eksperimentuojama su netikėtais medžiagų deriniais: šiaudiniais stogais, neapdoroto betono sienomis, dideliais panoraminiais langais.
Sauseriai is a modern interpretation of a traditional Lithuanian homestead, located in a very picturesque area of Salantai Regional park. While consisting of vernacular building types, that are common in samogitian homesteads, and using traditional for this area architectural forms and volumes, Sauseriai experiments with unexpected materials combinations: thatched roofs, raw concrete walls, large panoramic windows.
Adresas / Address:
Nendrių g. 5, Svencelė, Klaipėdos r. sav.
Architektai / Architects:
Mykolas Svirskis, Dalia Puodžiūtė, Jonas Karalius, Reda Pazdrazdytė, Aivaras Kamas, Tomas Tumynas, Algirdas Sabaliauskas
Projektavimo įmonė / Office:
Svirskis (www.svirskis.com)
Nuotraukos / Photographs:
Aistė Rakauskaitė, Mykolas Svirskis
Plotas / Area:
360 m2
Tūris / Volume:
1 800 m3
Sklypo plotas / Site area:
2 000 m2
Tai unikalus projektas, slepiantis intriguojančias ir įdomias istorijas. Tikriausiai tai Lietuvoje vienas pirmųjų statinių, kuriame taikyta senoji japonų Shou Sugi Ban medžio apdirbimo technika, kai deginamas lentos paviršius anglėja ir apsaugo statinį nuo išorinių aplinkos veiksnių.
Tuo metu Lietuvoje dar niekas tokios produkcijos negamino, tad teko patiems ieškoti techninių sprendimų ir rasti, kas galėtų paruošti lentas. Prie Kretingos radome gyvenantį stalių, kuris sutiko padėti.
Dar įdomiau už apdailą – šio sprendimo atsiradimo priešistorė. Statinys vadinasi „Feniksas“, nes buvo suprojektuotas ir pastatytas du kartus. Pirmas statinys prieš pat užbaigiant sudegė Tad įprasmindami objektą, nusprendėme jį visą padengti stambiomis deginto medžio lentomis, tarsi sudegusią pliauską – gaisro simbolį.
This is a unique project that hides intriguing stories. It is likely one of the first structures in Lithuania that utilised the old Japanese Shou Sugi Ban wood processing technique. When the sur face of the wood is burned, it becomes charcoal-like and protects the structure from external environmental factors.
At that time, no one in Lithuania was producing such products, so we had to search for technical solutions ourselves and find someone who could prepare the boards. We found a carpenter near Kretinga. Even more interesting is the backstory of how this solution came about. The structure is called Phoenix because it was designed and built twice. The first time it was constructed, the entire structure burned down.
So, to give it meaning, we covered the entire house in large burnt wood boards, resembling a simple burnt-out plank - a symbol of past fire.
Adresas / Address:
Volungių g. 11, Toleikiai, Klaipėdos r. sav.
Architektai / Architects:
Tomas Grunskis, Jūratė Kindurytė
Projektavimo įmonė / Office:
UAB „AEXN” (www.aexn.lt)
Fotografas / Photographer:
Norbert Tukaj
Plotas / Area:
311 m2
Tūris / Volume:
17 663 m3
Sklypo plotas / Site area:
16 551 m2
Kompleksas yra skir tingų vietų ir erdvių ženkliška visuma, susidedanti iš krematoriumo ir planuojamo kolumbariumų parko. Visas kompleksas yra skir tas įsisąmoninto lėtojo gyvenimo alternatyvai kaip prieštara kasdienio gyvenimo greičiui, kuris turi sulėtėti, kai žmogus susiduria su amžinybės patirtimis. Viso komplekso galutinis taškas –krematoriumo pastatas, sukur tas atkartojant pilkapio ir ant jo užklotos baltos drobulės metaforas, pagal kurias pastato tūris ir jo prieigos erdvės atribojamos žemės pylimais, o paties pastato lenktas stogo paviršius primena ritualinį apklotą, išsigaubiantį pagal uždengto kūno paviršių. Šiame epicentre yra komplekso emocinės iškrovos ir ramios transformacijos vieta, pavaldi kitam – amžinajam – laikui ir patirčiai.
The crematorium is located on a flat sur face – in a field by the forest. The mass concept of the design is a rather sensitive manner –it represents a shallow hill rising from the sur face. The crematorium is designed with a metaphor of a burial mound covered with white linen. The volume of the building and its access spaces are separated by embankments of the surrounding landscape. The structure of the roof is reminiscent of a ritual blanket that covers the architectural volume and blends it into the surrounding ground. The crematorium building is visible from a distant perspective and becomes the epicentre of the ritual. It calmly invites and releases those who arrive. It is a place of emotional discharge and a quiet transformation subordinate to the eternal time and the experience of eternity.
Uostamiesčio projektas
Adresas / Address:
Nidos-Smiltynės pl. 27, Neringa
Algirdas Stripinis
Architektas / Architect: Plotas / Area: Tūris / Volume: Sklypo plotas / Site area:
UAB „Uostamiesčio projektas” (www.uparchitektai.lt)
Kuršių nerijos nacionalinio parko teritorija įpareigoja ieškoti specifinių sprendimų deriniantis prie unikalios gamtinės aplinkos bei tradicinio užstatymo. Preilos gelbėjimo stoties kaiminystėje buvęs, santykinai didelis, žvejų sandėlio tūris pertvarkytas į rekreacinės/ poilsio paskir ties pastatą, jį susiaurinant, įrengiant dvišlaitį stogą, šiaurinį fasadą skaidant vertikaliais intarpais - priar tinant statinį prie Kuršių nerijos gyvenvietėms būdingų pastatų proporcijų, mastelio ir ritmo. Derinantis prie gamtinės aplinkos: rusvų žemės/ kopų atspalvių, besiribojančio pušyno- apdailai panaudota deginta mediena, stiklas, grafitinės spalvos čerpių danga
The territory of the Curonian Spit National Park requires seeking specific solutions that are in line with the unique natural environment and traditional development. The relatively large volume of the former fishing warehouse has been transformed into a recreational building by narrowing it down, installing a gable roof, and dividing facade with vertical intervals to bring the structure closer to the proportions, scale, and rhythm of the typical Curonian Spit settlements. Adapting to the natural environment, burnt wood, glass, and a graphite-colored roof covering made of shingles have been used for finishing, harmonizing with the shades of grayish land/dunes and the adjacent pine forest.
Adresas / Address:
Smiltynės g. 2, Klaipėda
Architektai / Architects:
Stanislovas Lukšas, Kristina Jurkutė
Projektavimo įmonė / Office:
UAB „Archko” (www.archko.lt)
Nuotraukos / Photographs:
Miglė Paužaitė
Užsakovas / Client:
Lietuvos jūrų muziejus
Rangovas / Contractor:
Pagrindinė architektūrinė idėja – „tarsi pasivaikščiojimas kopose“. Takas prasideda už delfinariumo ir vingiuoja, kol pasiekia mišką, kopas ir jūrą. Pastatams suteikiama plastiška forma, tiek plane, tiek erdvėje, apželdinti stogai tarsi žalios pajūrio kopų viršūnės. Stogams apželdinti būtų naudojama pajūrio zonai, kopoms būdinga augmenija, supažindinant su ja lankytojus. Siekiant vizualiai sumažinti užstatymą, didžioji dalis jo numatoma požeminiame aukšte, virš žemės paliekant vieno aukšto plastiškų formų pastatų fragmentus. Pagrindinis lankytojų takas vingiuoja žemės lygyje, nuo kurio atsiveria vaizdas į žemiau esančius ruonių baseinus. Einant taku yra galimybė patekti į Baltijos jūros reabilitacijos centro erdves, apžvelgti paukščius baseinuose, ateityje, įgyvendinus visus etapus, galiausiai pasiekti mišką ir jūrą.
The main architectural idea is "a walk in the dunes". The trail starts behind the dolphinarium and meanders its way towards the forest, dunes and the sea. The buildings are designed with fluid forms, their green roofs resemble the lush greenery atop the coastal dunes with native vegetation introducing visitors to the surrounding environment.
To minimise the visual impact of the new building, a big par t of it is planned as an underground level. The primar y visitor pathway follows the natural contours at ground level, offering views of the seal pools below.
As visitors traverse the path, they have the opportunity to explore the facilities of the Baltic sea rehabilitation centre, obser ve seabirds in the basins and when all construction phases will be complete reach the forest and sea.
Adresas / Address:
Liepų g. 83, Klaipėda
Architektai / Architects:
Julė Bajorūnaitė, Justina Radzevič, Indrė Ankudavičienė
Projektavimo įmonė / Office:
UAB „2L Architects” (www.2larchitektai.lt)
Nuotraukos / Photographs:
Norbert Tukaj
Užsakovas / Client:
UAB „Verslo uosto centras“
Rangovas / Contractor:
UAB „Lighthouse contracting”
Koncentruotoje Baltic Tech Park teritorijoje atsiras kritinė masė kurtis inovacijoms – komplekse įsikursiantys studentai, verslininkai, novatoriai galės keistis mintimis, iš karto tikrinti idėjas, dar ydami prototipus ar vystydami verslus. Projektuodami jau antrąjį šio komplekso pastatą, kūrėme konkrečių technologijų mokymuisi pritaikytas erdves ir auditorijas. Fasadų medžiagos ir estetinė raiška skatina kur ti atsižvelgiant į kontekstą – tiek bendrą Klaipėdos, tiek komplekso. Pastatui lengvumo suteikia pirmojo aukšto peršviečiamumas, dėl kurio antrasis pastato aukštas tarsi sklendžia ore.
A critical mass for creating innovations will emerge in the concentrated Baltic Tech Park territory. Students, entrepreneurs and innovators will be able to exchange their thoughts, immediately test their ideas by making prototypes or developing businesses. When designing the second building of this complex, we created spaces and auditoriums specifically adapted for learning certain technologies. The materials and aesthetic expression of the facades are created taking into account the context.The see-through qualities of the first floor elevate solid volume of the second floor creating an impression of floating on air.
Adresas / Address:
Purvynės g. 55, Neringa
Architektai / Architects:
Adomas Šablevičius, Eglė Buikaitė, Gintautas Vieversys, Eglė Žemaitytė
Projektavimo įmonė / Office:
UAB „G.A.L. architektai” (www.galarchitektai.lt)
Nuotraukos / Photographs:
Arimantas Knašas
Užsakovas / Client:
UAB „Inreal” grupė
Rangovas / Contractor:
Komandos dvasia
Urbanistinių pauzių ir funkcijų įvairovės sudarkytoje Pur vynės gatvėje kuriamas nusiraminimas. Poilsio pastatais formuojamos gatvės ir miško išklotinės, tarpuose paliekant plyšius, kurie kviečia į kiemus ir atveria pušyno vaizdus. Pirmoji išklotinė antropogeniškai santūri, antroji – išlaisvėjusi, atkartojanti natūralią gamtos liniją.
Šlaitiniai stogai, medinė dekoratyvi vertikalių elementų fasado apdaila – šiuolaikiška tradicinės Neringos architektūros interpretacija su šiam kraštui būdingais statinio elementais – lėkiais, langinėmis.
The aim was to create tranquillity in a Pur vynės Street, that is interrupted by variety of functions. The positioning of recreational buildings was carefully selected, considering the layout of the street and the surrounding forest, creating gaps between the structures that invite visitors into the courtyard while offering stunning views of the pine forest. The first row of buildings follows a more controlled design, while the second row is more loosely arranged, mimicking the natural line of a grove. Pitched roofs and wooden vertical elements of the facade are used as modern interpretations of traditional architecture in Neringa, incorporating elements that are characteristic of this region.
Adresas / Address:
Mokyklos g. 79, Palanga
Architektas / Architect:
Lauras Ruseckas
Projektavimo įmonė / Office:
UAB „Neoforma” (www.neoforma.lt)
Užsakovas / Client:
UAB „Pajūrio vilos”
Rangovas
UAB „Ivro”
Rekonstruotas 1985 metų nebaigtos statybos pastatas. Pastate išlaikyta koridorinė sistema. Perplanuotos vidaus patalpos. Visi poilsio kambariai įrengti su balkonais. Pastato fasadas iš tinkuojamosios termoizoliacinės sistemos. Balkonų plieninės tvorelės su vilnijančios bangos motyvu.
Poilsiautojams lauke įrengta poilsio zona su baseinu ir aktyvesnio poilsio zona su žaidimų bei treniruoklių aikštelėmis.
The project is a reconstruction of an unfinished building star ted in 1985. The interior of the building was remodelled while keeping the original corridor system. All holiday apar tments have balconies with metal railings decorated with a swirling wave motif. The façade of the building is a plastered thermal insulation system. Residents can enjoy a recreation area with an outdoor pool or an active area with playgrounds and fitness areas.
Archko
Adresas / Address:
Varpų g. 3, Klaipėda
Architektai / Architects:
Stanislovas Lukšas, Kristina Jurkutė, Rolandas Rakevičius
Projektavimo įmonė / Office:
UAB „Archko” (www.archko.lt)
/ Photographs:
Mokyklos pastatas, pastatytas 1998 metais pagal tipinį sovietinio laikotarpio projektą, niekada nebuvo rekonstruotas.
Išorinės sienos šiltinamos iš lauko akmens vata, įrengiama ventiliuojamo fasado sistema. Fasadų apdailai naudojamos įvairių atspalvių fasadinės plokštės. Išorės fasadai monochrominės spalvos, vidaus fasadai (kieme) – šiltos spalvos (oranžinė ir žalia). Langai pagal galimybę paliekami esami. Įrengiamos naujos išorinės palangės, apskardinimo elementai, metalinės kopėčios ant stogo.
Cokolis šiltinamas ir aptaisomas tamsiai pilkomis klinkerio plytelėmis. Aplink pastatą įrengiama nuogrinda. Pastato pagrindiniai įėjimai pritaikomi žmonėms su negalia.
The school building, constructed in 1998 based on a typical design from the Soviet period, has remained unaltered since then. The external walls are insulated with stone wool, and a ventilated facade system with a variety of facade panels in different shades. The exterior facades have a monochrome colour scheme, while the interior courtyard facades feature warm colours such as orange and green. Majority of the existing windows are left unchanged with new external windowsills, flashing elements. New metal ladders on the roof are planned.
The plinth is insulated and decorated with dark grey clinker tiles. The main entrances of the building are made accessible for individuals with disabilities
NTH projektai
PREKYBOS PASKIRTIES PASTATAI SU SANDĖLIAVIMO IR ADMINISTRACINĖMIS PATALPOMIS
/
Jūrininkų pr. 27A, 33, Klaipėda
Tomas Žiulys
Projektavimo įmonė / Office:
Adresas / Address: Plotas / Area: Tūris / Volume: Sklypo plotas / Site area:
Miglė Paužaitė
A. Griciaus autotransporto įmonė UAB
„Amola”
Pastatai plane suprojektuoti stačiakampio formos, sudar yti iš skir tingo aukščio ir dydžio tūrių – trijų aukštų pastato dalis, prie Taikos pr. ir Jūrininkų pr. sankryžos (lygiagrečiai prospektams) ir vieno aukšto pastato dalis už trijų aukštų pastato, žemės sklypo gilumoje, suformuojant vidinį, pusiau uždarą kiemą Pagrindinio – trijų aukštų – pastato dalies tūriai išdėstyti kampu, aiškių ir tiesių formų, fasadai orientuoti lygiagrečiai prospektų ašims. Pastatų tūriai – paprasti ir nekomplikuoti, tai sąlygojo užduotis ir sklypų situacija – sklypai plane yra lygių stačiakampio formų. Pastatų dalys funkciškai susijusios. Pastatuose vykdoma įvairi komercinė-ūkinė veikla (prekybos, administracinė, sandėliavimo).
The buildings are designed as rectangular shapes, consisting of different height and size volumes – a three-storey volume along Taikos and Jūrininkų street corner and a single storey volume at the back together forming a semi closed courtyard. The main volume is composed of two volumes forming a corner with clear and straight forms with facades oriented to the axes of the streets. The volumes are simple and straightforward, driven by the plot's flat rectangular layout and project requirements. These functionally interconnected par ts buildings serve various commercial and administrative purposes, including trade, administration, and storage activities.
Stogo langų valdymas balsu ar mygtuko paspaudimu
VELUX išleido į rinką išmaniesiems namams skir tą produktą, kad pernelyg daug laiko patalpose praleidžianti karta būtų sveikesnė. Nuo šiol būstų savininkai galės balsu uždar yti ar atidaryti stogo langus, kad jų gyvenamoji aplinka būtų sveikesnė. Pasaulinės stogo langų rinkos lyderis VELUX pradeda prekiauti produktu „VELUX ACTIVE with NETATMO“. Tai pirmasis toks savaiminio diegimo (angl. plug and play) sprendimas, skirtas jutikliais paremtu nuotoliniu stogo langų, užuolaidėlių ir žaliuzių valdymu.
Mokslinių tyrimų duomenimis, mes neįtikėtinai daug laiko praleidžiame patalpose ir dažnai pamirštame išvėdinti namus. Tačiau nuo šiol, jei namuose per karšta ar per šalta, jei oras juose darosi pernelyg drėgnas ar nemalonaus kvapo, naujoji išmanioji VELUX sistema automatiškai išvėdins kambarius.
Norint daugiau komforto, pakaks valdymo balsu asistentės „Siri“ paprašyti pagalbos, nes tai pirmoji išmanioji stogo langų sistema, kurią galima prijungti prie „Apple HomeKit“ programos. Naudojant balso komandas ar mobiliąją programėlę „Home“, stogo langus bus galima uždaryti ar atidaryti net nesant namuose.
Jutikliais paremtas automatinis valdymas
Bendradarbiaujant su prancūzų įmone NETATMO ir taikant naujausią išmaniaisiais jutikliais paremtą technologiją, buvo sukur ta sistema „VELUX ACTIVE with NETATMO“, kuri galvoja ir veikia už vartotoją. Išmanieji jutikliai matuoja temperatūrą, drėgnį ir CO2 koncentraciją namuose bei aktyvuoja tinklų sietuvą, kad atsidarytų ar užsidar ytų stogo langai ir patalpų mikroklimatas pagerėtų.
Patalpų mikroklimato kokybė yra labai svarbi sveikatai ir gerai savijautai. Oras, kuriuo kvėpuojame, yra toks pat svarbus, kaip ir maistas, kurį valgome, ar vanduo, kurį geriame. Suaugęs žmogus įkvepia apie 15 tūkst. litrų oro kiekvieną dieną ir praleidžia iki 90 proc. savo laiko uždarose patalpose. Sveikas namų mikroklimatas, kurį užtikrina naujasis VELUX sprendimas išmaniesiems namams, yra kur kas daugiau nei elementarus patogumas.
Išmaniųjų namų įrenginys iš anksto užprogramuotas taip, kad prireikus stogo langai automatiškai atsidarytų ir įleistų šviežio oro į namus. Įrenginys taip pat apsaugo namus nuo įkaitimo, iniciatyviai uždarydamas išorines žaliuzes ir markizes.
VELUX ACTIVE darniai veikia su mobiliąja valdymo programėle „iOS“ ir „Android“ sistemoms. Todėl vos keliais išmaniojo telefono palytėjimais galima valdyti ir stebėti langus per programėles „Apple Home“ ar VELUX ACTIVE.
Sistema „VELUX ACTIVE with NETATMO“ sujungia dvi puikias technologijas: aukštos kokybės stogo langus VELUX ir NETATMO patirtį, kuriant paprastus bei naudingus produktus ir programėles. Automatizuojant stogo langų atidarymą, uždar ymą bei uždengimą užuolaidėlėmis, galima smarkiai pakeisti situaciją ir patalpų mikroklimatą pagerinti taip, kad naudotojams nereikėtų sukti dėl to sau galvos. Sukūrėme jutikliais paremtą sprendimą, kuris yra ne tik patikimas ir paprastai naudojamas, bet ir prisideda prie geros naudotojų savijautos. Sveikata ir gera savijauta išmaniuosiuose namuose
Išmaniųjų namų sprendimų, kai elektros įrenginiai prijungiami prie interneto, rinka klesti. Numatoma, kad pasauliniu mastu iki 2022 metų išmaniųjų namų rinka augs maždaug iki 53,45 milijardų dolerių (Statista, 2018). Išmaniųjų namų technologijos suteikia galimybę tokius namų ūkio prietaisus kaip šaldytuvai, šaldikliai, skalbyklės, džiovyklės, kavos virimo aparatai ar virduliai valdyti per programėles ir reguliuoti juos automatiškai.
Išmanieji namai ir toliau išlieka svarbi vartotojų tendencija. Tikimasi, kad per ar timiausius ketverius metus ji taps vyraujanti. Skaitmenizuodami stogo langų valdymą, kai automatiškai gerinama patalpų mikroklimato kokybė, pridedame dar vieną dimensiją išmaniesiems namams – sveikatą ir gerą savijautą, kartu pakeldami inovacijas šioje srityje į naują lygmenį.
www.velux.lt
Nuolat bendradarbiaujame su klientais, kurdami ir bandydami naujus, tvarius gaminius ir sprendimus.
www.paroc.lt
Leidinį iš dalies finansuoja / Publication is part funded by
Partneriai / Partners
Rėmėjai / Sponsors