12 Claybrook Drive, Plymouth

Page 1

12 Claybrook Drive, Plymouth

Welcome To

It is tough to find a piece of land as ready to build as this property. With a foundation, well and septic system already in place you will just need to bring your framing plans. In a beautifully quiet cul-de-sac neighborhood, this property places you just minutes from all the convenience Plymouth has to offer. From all the shops and restaurants main street has to offer to the shopping and services offered on Tenney Mountain Highway you have it all at your fingertips. Let’s not forget the small college town of Plymouth is positioned perfectly at the foothills of the White mountains giving you easy access to all the skiing, hiking, biking and rock climbing the region has to offer and just above the Lakes of central NH for the boating, kayaking and fishing you desire. This property was designed to build a 2200 square foot cape with a walk out basement in law suite on the 42’x36’ foundation plus an attached 2 car garage. The septic system was designed and built for a proposed 4-bedroom home at the time with a 1500 gallon septic tank. Take this opportunity to make your house plans come to life using the work someone has already completed for you!

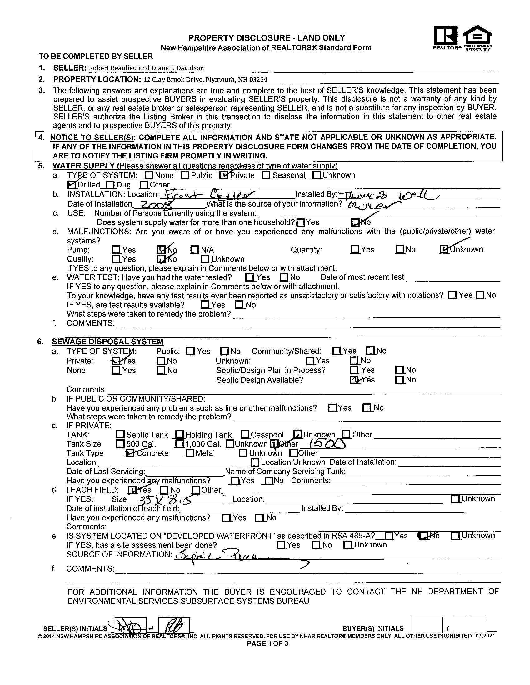
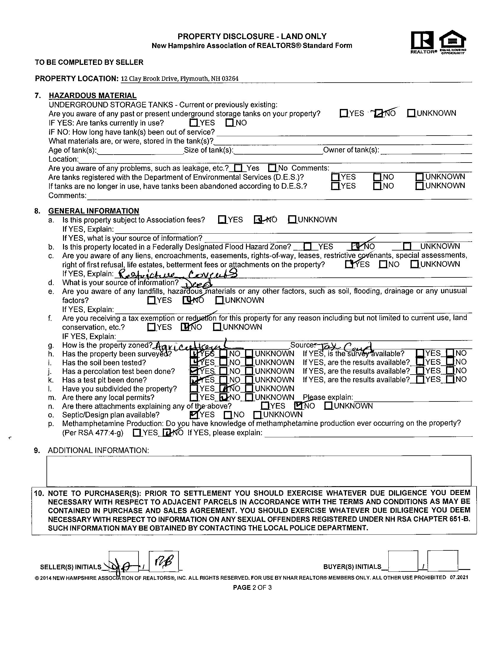
12 Claybrook Drive
Minutes to down town Plymouth NH, Speare Memorial Hospital and Plymouth State University

A quick drive to multiple ski areas

Cool off in the Pemi River a few minutes away

Drilled well, Septic system with 1500 gallon tank, and foundation already in place.

Compass is a licensed real estate broker in Massachusetts and Compass Real Estate is a licensed real estate brokerage firm in New Hampshire, Maine, and Vermont and each abides by Equal Housing Opportunity laws. All material presented herein is intended for informational purposes only. Information is compiled from sources deemed reliable but is subject to errors, omissions, changes in price, condition, sale, or withdrawal without notice. Photos may be virtually staged or digitally enhanced and may not reflect actual property conditions. Cassie Stokes Realtor® M: 603.851.8901 cassie@lakeliferealty.net Lake Life Realty 87 Whittier Hwy Moultonborough, NH 03254 603-403-5944

Assessment Field Card

Town of Plymouth, New Hampshire

Building Exterior Details

Building Type: Year Built: Grade: Frame Type: Living Units: Building Condition: Roof Cover: Roof Type: Exterior Wall Type: Pool:

False

Building Area

Finished Area: Basement Area: Garage Area: Detached Garage: Basement Garage:

sqft

sqft

sqft sqft

sqft

LAND

Parcel Information

Address: Map-Lot: Patriot Account #: Owner: Co-Owner: Mailing Address:

CLAY BROOK DR 217-021-000-000-0000 895 BEAULIEU, ROBERT DAVISON, DIANA J. PO BOX 835

PLYMOUTH, NH 03264

General Information

Total Acres: Land Use Code: Neighborhood Code: Owner Occupied: Condo Name: Condo Unit: Zone: Utility Code 1: Utility Code 2: Utility Code 3:

Ownership History

Sale Date: Sale Price: Nal Description: Grantor (Seller): Book/Page:

7/19/2007

FAMILY BEAULIEU, ROBERT, 3429-0505

Building Interior Assessed Value

No. Total Rooms: No. Bedrooms: No. Full Baths: No. Half Baths: Bath Rating: No. Kitchens: Kitchen Rating: Building Framing: Interior Wall Type: Fireplaces: Solar Hot Water: Central Vac: Floor Type: Heat Type: Heat Fuel: Percent A/C:

Assessed Yard Value:

Land Value:

Bldg Value:

Assessed Value:

Spec. Feat./Yard Items

(Value)

VACNT
0 NA NA
1.87 130 N A NONE
0
0
0
0
$ 0
0 0 0 0 0 0 False False 0
Assessed
Assessed
Total
Item 1: Item 2: Item 3: Item 4: $ 14000 $ 49600 $0 $63600 Description
($) ($) ($) ($) Property Information - Plymouth, NH 6/10/2022 www.cai-tech.com Data shown on this report is provided for planning and informational purposes only. The municipality and CAI Technologies are not responsible for any use for other purposes or misuse or misrepresentation of this report. Page 1 of 2
Property Information - Plymouth, NH 6/10/2022 www.cai-tech.com Data shown on this report is provided for planning and informational purposes only. The municipality and CAI Technologies are not responsible for any use for other purposes or misuse or misrepresentation of this report. Page 2 of 2

Plymouth

Invoice Number:

Description: Tax Bill

ID: 217-021-000

Owner: BEAULIEU, ROBERT

Address: CLAY BROOK DR

Date: 5/13/2022

Date: 7/6/2022

Date: 7/6/2022

Interest Days: 0

Paid: N/A

By: N/A

Tax Office 6/10/2022 Information
140661
Property
Bill
Due
Interest
Last
Paid
Bill Amount: $970.00 Interest: $0.00 Costs: $0.00 Total: $970.00 Payments: $0.00 Balance Due: $970.00 Details Description Date Tax Year Period Amount Tax Bill 5/13/2022 2022 1 $970.00

Turn static files into dynamic content formats.

Create a flipbook
Issuu converts static files into: digital portfolios, online yearbooks, online catalogs, digital photo albums and more. Sign up and create your flipbook.