Lake Flato Libraries

Page 1

SELECT LIBRARY WORK

LIBRARY EXPERTISE

We believe public libraries are vital to the success of communities through their work nurturing imagination, promoting lifelong learning, and enriching community-based services. Lake|Flato’s collaborative approach leverages a holistic partnership to create a convergence of design, creativity, education, civic engagement, and sustainability. One of the most powerful aspects of building and space design is the opportunity to improve the health and well-being of people. Grounded in the human experience, our designs seek to create enduring experiences that foster a sense of joy and connection.

As community destinations, libraries provide a wide variety of services that support education, entrepreneurship, community outreach, student service, tutoring, student success and more. Layering on recent advancements in technology, communication, and flexible learning environments, we find ourselves at an incredible juncture for re-imagining what a library can be. No longer simply a repository of volumes, libraries have become a destination for experiential learning, collaboration and knowledge acquisition through a myriad of technologies and experiences.

Dixon Water Foundation Josey Pavilion | Decatur, TX

AUSTIN CENTRAL LIBRARY

AUSTIN, TEXAS

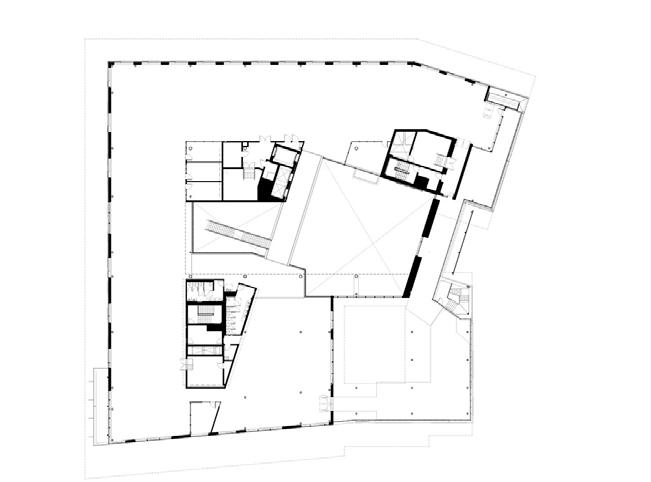
Overlooking Shoal Creek and Lady Bird Lake, the LEED Platinum Austin Central Library is a building shaped by light and designed to respond to the context of its place. Aspiring to be the most daylit public library in the nation, the heart of the building is the six-story atrium, which provides daylight for more than 80% of regularly occupied spaces. The unique rooftop butterfly garden and reading porches, inspired by Texans’ love for the outdoors, draw visitors to connect with nature. Serving as the western portal to downtown, the library is a technologicallyrich, innovative community hub which establishes a culturallysensitive, major civic presence and community gathering space in the heart of downtown.

Lake|Flato - Shepley Bulfinch joint venture project size

198,000 sq. ft. recognition

2020 AIA Committee on the Environment Top Ten Award

2018 AIA/ALA Library Building Award

2018 ALA/IIDA Library Interior Design Award

2018 AIA Austin Design Award with Sustainability Commendation

2018 American Public Works Assoc. TX Chapter Proj. of the Year

2018 Architizer A+ Awards Special Mention

2018 Concrete Reinforcing Steel Institute HONORS Award

2018 ULI Austin Best Project Design Award

2018 Austin Green Awards Project of the Year

2018 Finalist for the International Federation of Library Association's Public Library of the Year Award

2018 Excellence in Structural Engineering Awards from the National Council of Structural Engineers Assoc.

2018 Texas Outstanding Civil Engineering Achievement Award

2018 Named one of the World's Greatest Places by Time Magazine

2018 Top Innovator Award from Urban Libraries Council

2nd Level 1st Level 3rd Level 4th Level 5th Level 6th Level

The library serves as a model for sustainable resource use and library efficiency while promoting visceral connections to collections, history, culture, and place.

The heart of the library is the six-story atrium, which provides daylight for more than 80% of regularly occupied spaces.

The facility is based on flexible, blended spaces including indoor collections and reading rooms, outdoor reading porches, maker spaces, a technology center, café, bookstore, 350-seat event center, art gallery, outdoor dining, demonstration kitchen and rooftop garden.

MEDINA COMMUNITY LIBRARY

RODNEY CAMP PAVILION

MEDINA, TEXAS

The Medina Community Library Meeting Hall is an approximately 4,000 square-foot all-purpose community gathering/meeting space addition to the Medina Community Library. Intended to become the “new living room” for the Medina community, the building accommodates a wide range of uses and events. The building has been designed as three meeting halls in one. Two individual meeting spaces are separated by a central circulation hall, and when necessary the walls of the hall can be completely opened up to combine these two meeting spaces into one large meeting space.

The existing library will be supported through the new Meeting Hall’s sustainable goals. A PV array on the roof of the new addition will provide energy for both the new meeting hall and the existing library. Rainwater collected from the roof will be used to irrigate the community gardens surrounding the project. An energy monitor display will act as a visual educational tool, helping to provide other opportunities for promoting and expanding knowledge-based learning far beyond mere printed text.

The varying sizes of the three meeting hall spaces allows the building to provide the appropriately sized space for any event without incurring excessive energy use in unnecessary space—especially since small group meeting space is the most common need.

CEDAR PARK, TEXAS CITY OF CEDAR PARK LIBRARY

Located in the heart of the City’s mixed-use Bell District, the new Cedar Park Library will be a premier civic destination convenient to all those it serves. The Library was designed to leverage the natural features of the site—mature trees, summer breezes and orientation to capture daylight. The concept revolves around the porch as a welcoming threshold between the city and the park—a place that celebrates and encourages community, civic engagement, and an appreciation for reading and learning.

The 2-story building features an iconic sculptural roof and is broken into two main wings. The North Wing houses the young adult collection, teen areas, public-facing maker spaces, classrooms and a large revenue-generating event room. The South Wing houses the adult collection and quiet reading rooms. Areas throughout both wings will include museum quality interactive exhibits. The glass lobby and second floor screened porch nestles between both and connects users to outdoor space including a courtyard, children’s outdoor play area, a pedestrian paseo, and the Backyard green space beyond.

sustainability

Tracking LEED Silver Certified

BEE CAVE, TEXAS BEE CAVE PUBLIC LIBRARY

The new Bee Cave Library is being designed to serve as a community hub for the City of Bee Cave, a hub for innovation, and a cornerstone of the community’s cultural life. The Design team has focused on going beyond the blueprint of a traditional library creating a haven for learning, collaboration, and growth

The new public library space will include offices for administrative use, a separate work area for technical services, checkout desks on both floors, reference desks on both floors, floor and shelf space for over 45,000 books and laptop docking work stations. There will also be family restrooms on all floors, public access meeting rooms, a large public conference room, outdoor and indoor book returns, a family play area and reading room, a separate teen program area, a quiet reading room, individual study rooms, usable outdoor spaces for reading or working and a unique play feature for children.

BEFORE AFTER

UNIVERSITY OF TEXAS HARRY RANSOM HUMANITIES RESEARCH LIBRARY

AUSTIN, TEXAS

The humanities research library and museum is considered one of the world’s finest cultural archives and is a welcoming presence at the southwest edge of campus.

The complex renovation integrated large glass expanses into the forbidding stone facade to brighten the interior by day and act as giant lighted beacons at night. The ground floor public spaces, formerly hidden behind the windowless facade, are now visible and used for exhibitions and events. The new street-level presence created a connection between indoors and out through large expanses of glass extroverting the collections, programs and energy of the facility, also allowing the building and the collection to interact with the campus.

The renovation also posed the challenge of dust and vibration during construction requiring careful management of the construction sequence to protect the priceless archives. Several phased moves of the tenant within the building were required to allow access by the contractor to the spaces to be renovated. This phasing was programmed into the construction sequence at predetermined intervals so that the tenant could prepare in advance for the anticipated move and have a minimum of work disruption and downtime. HVAC upgrades for the entire building to conform to campus standards for efficiency and infrastructure interface were also accommodated simultaneous with all other work. All of the phased moves were affected without incident.

SIERRA NEVADA COLLEGE PRIM LIBRARY

INCLINE VILLAGE, NEVADA

Exposed heavy timber construction and layered natural wood interiors reflect the forested location of this liberal arts college near the shores of Lake Tahoe. Nestled into its site the building conveys the sense of shelter associated with the forest.

Inside the library, a large reading occupies the main level, with an ascending stair up to the floors of book stacks, mimicking the familiar act of climbing the slopes in this mountainous region. Reading alcoves and study lofts perched above the book stacks take advantage of the voluminous, light-filled reading room. The three floors and two mezzanines also contain classrooms, meeting rooms, offices, exhibit space, and a café.

recognition

2007 AIA Nevada Design Award

2006 AIA San Antonio Merit Award

GREAT NORTHWEST LIBRARY

SAN ANTONIO, TEXAS

This branch library for the City of San Antonio is located in a rural suburban area where the open flat south Texas plain meets the tree covered limestone rich hill country. Located on a main intersection of wide streets, Lake|Flato faced the entrance of the library away from the road, toward the heart of the neighborhood to ensure a sense of community. Simple, indigenous building forms were used to reinforce the direct no-nonsense nature of the library. The bookstack areas, which are generally quieter, are in the low, limestone clad “pods,” while high, vaulted roofs with clerestory windows denote zones of public activity. The interior of the building expresses its industrial roots with exposed steel framing, plywood panels, wood trusses, metal roof decks, exposed mechanical ducts and utilitarian light fixtures.

recognition

1997 AIA/ALA Award of Excellence

1997 Texas Society of Architects Honor Award

1995 AIA San Antonio Honor Award

Flake Lato, Annual Office River Retreat
CREATING ENVIRONMENTS THAT ENRICH COMMUNITIES AND NURTURE LIFE

FIRM OVERVIEW

Established in 1984, Lake|Flato designs buildings that respond to the culture and climate of each unique place. We believe in creating environments that enrich communities and nurture life through our work. In collaboration with our clients, Lake|Flato creates buildings that are tactile and modern, environmentally responsible and authentic, artful and crafted.

The firm’s designs evolve from an appreciation for the pragmatic solutions of vernacular architecture, the honesty of modernism and the context of our rich and varied landscape. By employing sustainable strategies in a wide variety of building types and scales, the firm designs architecture that conserves energy and natural resources while creating high-performance buildings and healthy built environments for the building’s occupants.

With a staff of 150 professionals, Lake|Flato is guided by fifteen partners who create teams that lead each project from beginning to completion. A collaborative process within the office fully engages clients and subconsultants and creates a place in which ideas can flourish. Comprehensive and inclusive design reviews generate fresh ideas and firm-wide ownership of the work.

Lake|Flato has received wide critical acclaim. We were recognized by ARCHITECT Magazine as the top firm overall in the 2019 ARCHITECT 50, the American Institute of Architects honored us with its prestigious Firm of the Year Award in 2004, and Lake|Flato was the first architecture firm to earn a Texas Medal of Arts in 2009. Fifteen Lake|Flato projects have received the national AIA Committee on the Environment Top Ten Award, the highest recognition for sustainable design. Fast Company recently named us one of the “Ten Most Innovative Architecture Firms in the World” and the LOCUS Foundation honored Lake|Flato with a Global Award for Sustainable Architecture, recognizing our architectural approach to addressing the needs of society. As architects, teachers, environmental stewards and community advocates, we strive to elevate the public’s appreciation of architecture and foster the education of the next generation of architects.

RECOGNITION

Lake|Flato has been recognized with more than 300 international, national and regional awards and featured in over 100 books and 250 publications.

FIRM AWARDS

AIA GOLD MEDAL AWARD

AIA ARCHITECTURE FIRM AWARD

ARCHITECT 50, TOP U.S. FIRMS - #1 OVERALL 2019

AIA COTE TOP TEN PROJECT LEGACY AWARD

LOCUS FOUNDATION GLOBAL AWARD FOR SUSTAINABLE ARCHITECTURE

COOPER HEWITT NATIONAL DESIGN AWARD

FINALIST

INTERIOR DESIGN MAGAZINE HALL OF FAME

FAST COMPANY TEN MOST INNOVATIVE ARCHITECTURE FIRMS IN THE WORLD

TEXAS MEDAL OF HONOR

TEXAS SOCIETY OF ARCHITECTS/AIA TEXAS FIRM OF THE YEAR AWARD

TEXAS SOCIETY OF ARCHITECTS O’NEIL FORD MEDAL FOR DESIGN ACHIEVEMENT

THE ARCHITECTURE LEAGUE OF NEW YORK

EMERGING VOICES AWARD

TILT-UP CONCRETE ASSOCIATION IRVING J. GILL

PROGRESSIVE ARCHITECT AWARD

BUILDER’S CHOICE CUSTOM HOME MARVIN HALL OF FAME FOR DESIGN EXCELLENCE

INTERNATIONAL

ARCHITIZER A+ AWARD

Alamo Beer Brewery (Honorable Mention)

Austin Central Library (Honorable Mention)

Bridge House

Clinton Corners Residence

Confluence Park

Dixon Water Foundation Josey Pavilion

House Zero

Marine Education Center at GCRL

ARCHDAILY TOP 100 PROJECTS IN THE WORLD

ASU Health Services Building

Dixon Water Foundation Josey Pavilion

AMERICA BY DESIGN: ARCHITECTURE SEASON ONE WINNER

Marine Education Center at GCRL

CONGRESS FOR NEW URBANISM GLOBAL CHARTER AWARD

Pearl Brewery Redevelopment

Montgomery Park Master Plan

CHICAGO ATHENAEUM AMERICAN ARCHITECTURE AWARD

Aegean Pool House

Confluence Park

Dixon Water Foundation Josey Pavilion

Hotel Magdalena

Ishawooa Mesa Ranch

Knox College Whitcomb Art Center

Marine Education Center at GCRL

The Holdsworth Center

INTERNATIONAL DOWNTOWN ALLIANCE AWARD OF DISTINCTION

Main Plaza

FAST COMPANY MOST INNOVATIVE ARCHITECTURE OF 2022: FINALIST - SPACES & PLACES

House Zero

FUTURE HOUSE AWARDS: MOST INNOVATIVE HOUSE OF THE YEAR

House Zero

METROPOLIS PLANET POSITIVE AWARD HONOREE

Confluence Park

STEPHEN R. KELLERT BIOPHILIC DESIGN AWARD

Dixon Water Foundation Josey Pavilion

TIME MAGAZINE: WORLD’S GREATEST PLACES

Austin Central Library

TIME MAGAZINE BEST INVENTION IN DESIGN

House Zero

ULI INSTITUTE GLOBAL AWARDS FOR EXCELLENCE

Pearl Brewery Redevelopment

1221 Broadway Redevelopment (finalist)

Livestrong Foundation Headquarters (finalist)

WOOD DESIGN & BUILDING AWARD

Marine Education Center at GCRL

NATIONAL

AIA HONOR AWARD

Armstrong Oil & Gas Headquarters

Carraro Residence

Confluence Park

Hill Country Jacal

Hog Pen Creek Residence

Lasater Residence

Marine Education Center at GCRL

Pearl Brewery & Full Goods Warehouse

World Birding Center

AIA COMMITTEE ON THE ENVIRONMENT (COTE) TOP

TEN AWARD

Austin Central Library

ASU Health Services Building

ASU Polytechnic Academic District

Confluence Park

Dixon Water Foundation Josey Pavilion

Georgia Tech Krone Engineered Biosystems Building

Government Canyon Visitor Education Center

HEB Mueller Market

Livestrong Foundation Headquarters

Knox College Whitcomb Art Center

Marine Education Center at GCRL

Pearl Brewery Redevelopment

Shangri La Nature Center

UTHSC School of Nursing

World Birding Center

AIA/ALA LIBRARY BUILDING AWARD

Austin Central Library

Great Northwest Branch Library

ALA/IIDA LIBRARY INTERIOR DESIGN AWARD

Austin Central Library

AIA COMMITTEE ON ARCHITECTURE FOR EDUCATION FACILITY DESIGN AWARD

ASU Polytechnic Academic District

Carver Academy

Cranbrook Kingswood Girls Middle School

Francis Parker School

Indian Springs School

Knox College Whitcomb Art Center

St. John’s College Levan Hall

AIA HOUSING AWARD

1221 Broadway

Blue Lake Retreat

Hog Pen Creek Residence

Lake Tahoe Residence

Lake Austin Residence

AIA/HUD COMMUNITY BUILDING BY DESIGN

Carver Academy

AMERICAN INSTITUTE OF STEEL CONSTRUCTION

DESIGN AWARD

Armstrong Oil & Gas Headquarters

ASU Polytechnic Academic District

Cutting Horse Ranch

Government Canyon Visitor Center

Triple-S Steel Supply Company

ARCHITECT’S NEWSPAPER BEST OF DESIGN

AWARD IN INFRASTRUCTURE

Confluence Park

BUILDER’S CHOICE, DESIGN & PLANNING AWARD

1221 Broadway Redevelopment

Hacienda JaJa

House Zero

LC Ranch

Story Pool House

CONCRETE REINFORCING STEEL INSTITUTE

HONORS AWARD

Austin Central Library

DEZEEN’S TOP 10 ARCHITECTURE PROJECTS OF 2022

House Zero

DEZEEN AWARD RURAL HOUSE OF THE YEAR

Marfa Ranch

ECOHOME AWARD

Hacienda JaJa

ECOSTRUCTURE EVERGREEN AWARD

Full Goods Warehouse

HOSPITALITY DESIGN AWARDS FINALISTLIFESTYLE HOTEL

Canopy Hotel San Antonio

INSTITUTE FOR SUSTAINABLE LABORATORIES AWARD

Universities at Shady Grove Biomedical Sciences & Engineering Education Facility

INTERIOR DESIGN BEST OF YEAR DESIGN AWARDCHAIN HOTEL

Canopy Hotel San Antonio

NATIONAL BUILDING OF AMERICA AWARD

Naples Botanical Garden Visitor Center

NCSEA EXCELLENCE IN STRUCTURAL ENGINEERING AWARDS

Austin Central Library

NORTH AMERICAN COPPER IN ARCHITECTURE AWARD

University of Denver Career Achievement Center

RESIDENTIAL ARCHITECT DESIGN AWARD

1221 Broadway Redevelopment

Broadford Farm Pavilion

Dog Team Too Loft & Studio

Hacienda JaJa

LC Ranch

RESIDENTIAL DESIGN ARCHITECTURE AWARD

Verde Creek Ranch

Aegean Pool House

Courtyard House

U.S. WOODWORKS WOOD DESIGN AWARD

Dixon Water Foundation Josey Pavilion

DU Burwell Center for Career Achievement

Friends Meetinghouse

LSU Hilltop Arboretum

Hotel Magdalena

Museum of Fine Arts, Houston Blaffer Foundation

Center for Conservation

Soto Building

TILT-UP CONCRETE ASSOCIATION ACHIEVEMENT AWARD

Confluence Park

VGXI Headquarters + Biomanufacturing Facility

TILT-UP CONCRETE ASSOCIATION EXCELLENCE AWARD

VGXI Headquarters + Biomanufacturing Facility

SCUP EXCELLENCE IN ARCHITECTURE AWARD

Knox College Whitcomb Art Center

Universities at Shady Grove Biomedical Sciences & Engineering Education Facility

URBAN LIBRARIES COUNCIL TOP INNOVATOR

AWARD

Austin Central Library

REGIONAL

AIA ARIZONA DESIGN AWARD

ASU Health Services Building

AIA ALBUQUERQUE DESIGN AWARD

New Mexico School for the Arts

AIA AUSTIN DESIGN AWARD

Austin Central Library (Sustainability Commendation)

Blue Lake Retreat

Hotel Magdalena

The Holdsworth Center

Witte Museum & Mays Family Center

AIA BIRMINGHAM DESIGN AWARD

Indian Springs School

AIA CALIFORNIA DESIGN AWARD

Francis Parker School

AIA COLORADO DESIGN AWARD

Armstrong Oil & Gas Headquarters

DU Burwell Center for Career Achievement

AIA DENVER DESIGN AWARD

Armstrong Oil & Gas Headquarters

AIA GEORGIA DESIGN AWARD

Georgia Tech Engineered Biosystems Building

Georgia Tech West Village Commons

AIA GREENVILLE DESIGN AWARD

VGXI Headquarters + Biomanufacturing Facility

AIA GULF STATES DESIGN AWARD

Marine Education Center at GCRL

AIA HOUSTON DESIGN AWARD

Vibrant Fairview

UTHSC School of Nursing

AIA INDIANA DESIGN AWARD

Prindle Institute for Ethics

AIA KANSAS CITY DESIGN AWARD

UTHSC School of Nursing

AIA KENTUCKY DESIGN AWARD

Sayre School

AIA MARYLAND JURY CITATION FOR INSTITUTIONAL ARCHITECTURE

Universities at Shady Grove Biomedical Sciences & Engineering Education Facility

AIA MARYLAND VISION AWARD

Universities at Shady Grove Biomedical Sciences & Engineering Education Facility

AIA MISSISSIPPI DESIGN AWARD

Marine Education Center at GCRL

AIA NEVADA DESIGN AWARD

Prim Library

Horizon House

AIA NEW MEXICO MERIT AWARD

New Mexico School for the Arts

AIA NORTH CAROLINA DESIGN AWARD

VGXI Headquarters + Biomanufacturing Facility

AIA SAN ANTONIO DESIGN AWARD

1221 Broadway Redevelopment

Aegean Pool House

Agudas Achim Synagogue

Air Barns

Alamo Beer Brewery

Armstrong Oil & Gas Headquarters

ASU Health Services Building

ASU Polytechnic Academic District

AT&T Center

Bartlit Residence

Big Bend Fossil Discovery Exhibit

Blue Lake Retreat

Bluffview Porch House

Bluffview Residence

Bridge House

Briscoe Western Art Museum

Broadford Farm Pavilion

Brown Residence

Carraro Residence

Carver Academy

Chandler Ranch House

Cibolo Nature Center

Clinton Corners Residence

Confluence Park

Courtyard House

Cranbrook Kingswood Middle School

Dixon Water Foundation Josey Pavilion

Cross Timbers Ranch

Cutting Horse Ranch

Dallas Arboretum

DePauw University, Prindle Institute for Ethics

Desert House

Dixon Water Foundation Josey Pavilion

LEADERSHIP IN ENERGY & ENVIRONMENT

Lake|Flato believes that architecture and sustainability are inseparable, and that buildings should be beautiful and affordable while promoting healthy living. With these goals in mind, we help our clients understand the necessity and attainability of a sustainable approach to design.

Since the firm’s inception close to 40 years ago, environmental concerns have been integral to our design approach.

NATIONAL AIA COMMITTEE ON THE ENVIRONMENT TOP TEN GREEN PROJECTS

Fifteen Lake|Flato-designed projects have received national AIA COTE

Top Ten Green Awards, The American Institute of Architects’ highest honor for excellence in sustainable design.

INCLUSIVE COLLABORATION

Our Integrated Design Process is a key driver for advancing sustainable design, environmental resiliency and social equity outcomes. This generative process creates meaning and momentum at the very start of a project, driving results that have led to various design performance milestones, including Lake|Flato receiving 15 AIA COTE Top Ten awards, more than any other architecture firm. These award-winning projects are located across the country and include various projects, from naturebased education centers to large-scale civic and urban transformation s.

DESIGN INNOVATION

Lake|Flato is constantly seeking new and innovative ways to advance building and human performance. The design of the 3D-printed House Zero, for instance, pushes the boundaries of traditional home building methods – revealing innovative ways to provide shelter in the wasteprone home building industry. Another instance of Lake|Flato applying new and evolving technology to elevate sustainable design is the firm’s expertise with mass timber. With more than 15 mass timber projects in progress or completed, Lake|Flato’s commitment to mass timber construction is a carbon-fighting strategy that celebrates the timeless qualities of beauty, nature, and craft.

EQUITY, DIVERSITY & INCLUSION

LIVING BUILDING CHALLENGE

The clients and communities we serve are some of the most progressive and diverse in the industry. We expect no less of ourselves as we strive to create an inclusive atmosphere in our practice and in our collaborations. Attaining rigorous B Corp certification and participating in the International Living Future Institute’s JUST program is an extension of our commitment to equity, diversity and inclusion. Both programs provide transparent, internationally recognized frameworks for assessing and improving how we operate through an equity lens. By holding ourselves accountable to these high standards of verification and transparency, we aspire to serve as a model for other firms.

Knox College Whitcomb Art Center 2023 Confluence Park 2023 Austin Central Library 2020 Marine Education Center 2020 Georgia Tech Krone Engineered Biosystems Building 2018 Dixon Water Foundation Josey Pavilion 2016 H-E-B Mueller Market 2016 ASU Health & Wellness Center 2014 Pearl Brewery / Full Goods Warehouse 2013 ASU Polytechnic Academic District 2012 Livestrong Foundation Headquarters 2011 Shangri La Nature Center 2009 Government Canyon 2007 World Birding Center 2006 UTHSC School of Nursing 2006
Dixon Water Foundation Josey Pavilion Mesquite House Lake County Environmental Education Center – (Tracking Certification)
TRINITY UNIVERSITY BUSINESS & HUMANITIES DISTRICT + DICKE HALL | SAN ANTONIO, TX
311 Third Street San Antonio, Texas 78205 www.lakeflato.com 210.227.3335

Turn static files into dynamic content formats.

Create a flipbook
Issuu converts static files into: digital portfolios, online yearbooks, online catalogs, digital photo albums and more. Sign up and create your flipbook.
Lake Flato Libraries by Lake Flato Architects - Issuu