

PORTFOLIO ARCHITECTURE
KRIYA CHOPRA
CHOPRA ARCHITECT

AMITY UNIVERSITY, NOIDA
| B.ARCH | 2019-2024 |
PRESENTATION CONVENT SCHOOL
| HIGH SCHOOL | 2017|
INTERIOR DESIGNING
| DIPLOMA | 2023-2024
A C A D E
M I C E X P E R I E N C E
| Semester-I Micro House |
| Semester-II Artist's Residence |
| Semester-III Yoga Retreat |
| Semester-IV Exhibition Center |
| Semester-V Mixed-Use Development |
| Semester-VI Multi-specialty Hospital|
| Semester-VII Group-Housing |
| Semester-VIII Architectural Training |
| Semester-IX Urban Development |
| Semester-X Thesis|
W O R K S H O P S
| Innovation in Materials, techniques, technology and Understanding the Built Environment. |
| Climate Actions and Advocacy for Climate Resilient Cities. |
| Lighting as a Design Element by Ar. Ashish Bahal |
| How to Achieve Sustainability in Architecture by Kaarwan. |


+91 9599722996
choprakriya01@gmail.com
A B O U T M E

52,Shastri Park Street no.-2, Chander Nagar, 110051
As an aspiring Architect, I am eager to merge my academic insights with real-world experiences. My strengths in critical thinking, creativity, adaptability, and collaborative leadership position me to contribute effectively and thrive Architecture has given me a certain level of power and unmatched responsibility to make life easier and happier for people. I believe that a 'layered intervention' in design is necessary to create such powerful spaces that can affect people.
E X P E
R
I E
N C E S
P R O F E S S I O N A L T R A I N I N G
JAN 2023 – MAY 2023
ASID CONSULTANTS – DELHI
JUNE 2023 – JULY 2023
M3M REAL ESTATE, GUGUGRAM
F R E E L A N C E
• Documentation of DDA Park, Geeta Colony
• Documentation of DDA Park, Shahdara
• Interior designing for residence in New Delhi
• Interior designing for Penthouse, Mussoorie
• Research on Brutalist Architecture &It’s Contribution in Contemporary Time
• Research on Role Of Lighting and Materials in Meditation Centers
T E C H N I C A L S K I L L S
• Autodesk AutoCAD
• Autodesk Revit
• Google Sketchup
• Photoshop
• Enscape
• Research
• Architectural Writing
• Conceptualization
• Leadership O T H E R S K I L L S

THESIS PROJECT
Site Area- 7.27 Acres
Meditation retreats serve as sanctuaries where individuals can escape the hustle and bustle of daily life, seeking solace, balance, and rejuvenation.The Siddhi Sanctuary aims to create such a space by integrating the ancient concepts ofYin-Yang and Chakras into its architectural design, fostering an environment of holistic healing and serenity.
SIDDHI SANCTUARY – MEDITATION REREAT
Sonipat












PROJECT 01

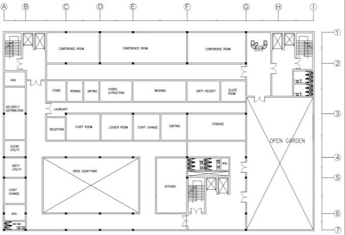
HOSPITAL
Omicron sector, Greater Noida
Site Area- 14598 sqm (3.6 Acres)
The intent of the project was to design a 100-bedded multi-specialty hospital which provides an atmosphere of Healing and comfort to all its occupants.The requisites were engagement at all levels, integration of flexible spaces, consideration of efficiency, safety and security.

The site is situated around residential apartments making it perfect site for hospital

Road width around the site, being a road of 15M, is best to provide main entrance, while other entrance is from service lane

The building is kept low heighted from the front that is the windward direction to allow wind circulation and generate view.


Sun path and major wind direction for the Site. Ideal orientation of building to avoid strong west sun, also to get maximum ventilation

Majority of the noise is from main road
✓The site is situated around residential apartments making it the perfect site for a hospital.
✓The site has road connectivity from all four sides.
✓ The site is closely situated to market, which is unhygienic for the patients.
✓ Site is placed centrally thus being a main point for the residents around.
✓ The Hospital con also odd as a landmark for the people living around.
✓ Close proximity of residential areas may be a reason for heavy traffic around the site making problematic for the patients VERTICAL
ZONING
• Cores and functions planned to making problematic for the patients segregate public and doctor/patient movement
• Emergency, ICU, OT are connected vertically
Central courtyard breaks the large mass and brings light and ventilation




Major part of the building is oriented along the E-W axis to reduce heat

Thick green belt around the site

GROUND FLOOR PLAN

EMERGENCY DEPARTMENT (500SQM)
RECEPTION & PHARMACY OUT PATIENT DEPARTEMENT
SECOND FLOOR PLAN

SINGLE BED SHARING ROOM DOUBLE BED SHARING ROOM REHAB GARDEN
FOURTH FLOOR PLAN

GENERAL WARDS CSSD
MATERNITY WARDS
FIRST FLOOR PLAN

SINGLE BED SHARING ROOM DIAGONSTIC DEPARTMENT OUT PATIENT DEPARTEMENT
THIRD FLOOR PLAN

INTENSIVE CARE UNIT OPERATION THEATER BLOOD BANK
FIFTH FLOOR PLAN

ADMINISTRATION AREA ROOF TOP GARDEN SERVICES





IN-SITU SLUM REDEVELOPMENT
To design high density, low income zoning urban center and redeveloping slum by creating affordable housing.To establish suitable physical and temporal linkages to surrounding neighborhoods and its associated urban infrastructure.
ABOUT THE SITE
Samaypurbadli is an urban village in North Delhi prominently located with NH-1 |GT Karnal Road| on other side Badli Railway station and Samaypur Badli metro station on the other.
The area is dominated by industries and a local material catering to the nearby areas, with the railway underbridge the area is well connected to Rohini sub city. The area was declared an extensive industrial area after the SamaypurVillage land has been consolidated in 1953-1954.
The case site is 12 acres in size with access from main bawand road which connects to the Delhi Panipat expressway. it also connects to sector and sector 19 through 87 road and B3 road. Site is mainly surrounded by housing colonies, institutional area and industrial area.
OBJECTIVE
The objective of the slum redevelopment is to provide affordable housing to the people living in the slum and make a remenueration area for public to visit and establish connectivity with existing land use.



CIRCULATION AND TRAFFIC GENERATOR OWNERSHIP
DESIGN HIGHLIGHTS
• Provided designated entry and exit in site so that it coordinates with the railway station, to maintain the footfall density.
• Enhancing the mixed-use character along the transit corridors.
• Rehabilitation housing for the affected slum people.
• Improving the quality of the public realm by providing public plazas for different types of activities.
• Providing Auto and e-rickshaw stand to maintain the traffic.
• Seamless connectivity between all the transit modes.


HOUSING PROJECT
Site area- 10.5 Acres
Shriniwaspuri, Delhi
BUILDING UNITS
• Instead of the green area being defined by the towers.
• The towers define the green area Placement of blocks along the green corridor
• Views for all apartments
• Separation of pedestrian and vehicular areas
• Direct green access to all residents in all towers
AMENITIES

• All amenities are scattered through out the site creating a unified and a connected green corridor for the residents
• The ground floor of the buildings to be used as lobbies and amenities
• Amenities placed towards theWalking path will cross the various green corridor amenities available in the housing society
• Commercial area is situated along
TYPE-1 HIGH INCOME GROUP
• UNIT AREA- 187 SQM
• SERVANT ROOM – 17 SQM
• TOTAL NO. OFTOWERS- 03
• NO. OF FLOORS- 13
• NO. OF LIFTS- 02
• CLUSTER AREA/FLOOR- 500 SQM
• UNITS PER FLOOR- 02
• TOTAL UNITS IN 3 TOWERS- 78


CLUSTER PLAN

TYPE-2 MEDIUM INCOME GROUP
• UNIT AREAS- 2BHK-110 SQM
• 3BHK-150 SQM
• TOTAL NO. OFTOWERS- 04
• NO. OF FLOORS- 17







• NO. OF LIFTS- 02
• CLUSTER AREA/FLOOR629 SQM
• UNITS PER FLOOR- 08
• TOTAL UNITS IN 4 TOWERS- 272

TYPE-3 EWS & LOW INCOME GROUP
• UNIT AREAS
✓ EWS UNIT-36 SQM
✓ LIG UNIT-62 SQM
• TOTAL NO. OFTOWERS- 04
• NO. OF FLOORS- 17
• NO. OF LIFTS- 02
• CLUSTER AREA/FLOOR- 516 SQM
• UNITS PER FLOOR- 08


EXHIBITION CENTER
Dwarka, Delhi
Site Area- 93,789.56 sqm (23.17 Acres) Brief-The Exhibition Industry has not grown in tandem with the economic expansion and urban development of Delhi. Therefore the aim was to design large exhibition center attracting new investment sand boost existing economic activity in the region. Aesthetically pleasing design of large span structure which could provide long spans for exhibition halls.

The Site lies in Dwarka Sector 25, a sub-city located in South West Delhi district in India
The idea was conceived based on the need to provide an ideal space for a range of large scale events including Public exhibition area, café, etc.


The site is accessible from 45 m wide UER-II (Urban Extension road) connecting Nh 1,8 and 10 and service roads 18m wide


The ‘Fibonacci Series’, from which the golden ratio has been derived, can be represented in the form of Spiral. It exists in the nature in form of sea shells and petal arrangement in flowers.

FLOOR PLAN


WORKING DRAWINGS

FLOOR PLANS


KITCHEN DETAILS
