Kruti Patel_Architectural Portfolio

Page 1

The Historic Broadway Theatre District holds a very special place in the hearts of generations of Angelenos. The area evokes the time at and before the Golden Age of Hollywood better than any area of the city. The area is a true cultural hub, with hundreds of thousands of people visiting annually to enjoy hospitality, art, entertainment, and a truly unique, urban pedestrian experience in the heart of DLTA. A unique place where the past and the present create a fascinating and inspirational landscape for urban dwellers.

The Site is located where the buildings have intricately profiled decorative terra-cotta building facades, thus challenging any new development to reinterpret these facades in a contemporary manner in terms of massing, facade design and materials. The ground floor of all these buildings have a clear datum defining the base from top of the buildings.

RESPONSIBILITIES:

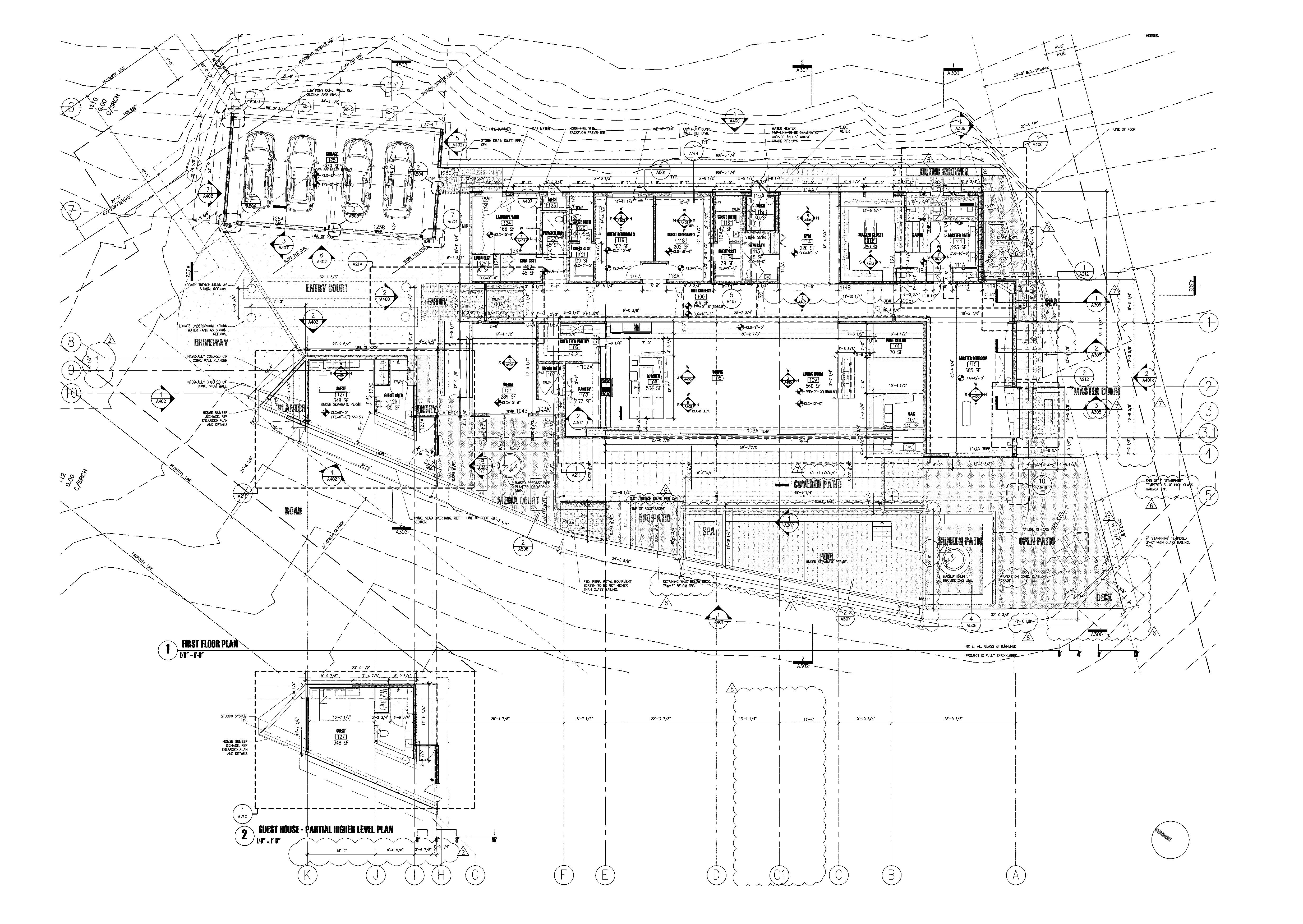
1. Played critical role in the design and development of 680 units with complete responsibility of coordination with Interior, MEP, Structural, Fire consultants.

2. Developed detailed floor plans, sections, elevations, RCPs and 3D visualizations ensuring efficient use of space and user experience with ADA accessibility, life safety and fire safety requirements for public spaces and private residences.

3. Conducted thorough research on local building codes, zoning regulations, and construction materials for the vibrant urban context of downtown LA.

4. Created facade system sheets with exterior details to document enclosure assemblies.

5. Mentored and supervised two designer interns, assigning tasks in drafting, research, 3D modeling, coordination, and providing Markups for their professional development.

© 2023 SOLOMON CORDWELL BUENZ SITE PLAN WITH LANDSCAPE SURROUNDING AREA © 2023 SOLOMON CORDWELL BUENZ COAST TO COAST | 222 W 2ND ST LOS ANGELES CA 2023_ BROADWAY HISTORIC THEATER DISTRICT © 2023 SOLOMON CORDWELL BUENZ COAST TO COAST 222 W 2ND ST LOS ANGELES CA 2023_0113
© 2023 SOLOMON CORDWELL BUENZ COAST TO COAST 222 W 2ND ST LOS ANGELES CA 2023_0113 © 2023 SOLOMON CORDWELL BUENZ COAST TO COAST 222 W 2ND ST LOS ANGELES CA 2023_0113 BROADWAY HISTORIC THEATER DISTRICT © 2023 SOLOMON CORDWELL BUENZ COAST TO COAST 222 W 2ND ST LOS ANGELES CA 2023_0113 SITE PLAN
INSPIRATION:
ENTITLED DESIGN
BROADWAY HISTORIC THEATER DISTRICT SURROUNDING AREA

STRUCTURAL CHALLENGES AND SOLUTIONS:

The building on top of the Metro portal proved to be a structural challenges. Due to the site being in the earthquake zone, the part of the building on top of the metro portal had to confirm to seismic zone risk category 3 structural requirenments. This resulted in the building split into 2 parts - the tower structure conforming to seismic zone risk category 2 and podium structure conforming to seismic zone risk category 3, separated by a 30 inches wide expansion joint.

METRO PLATFORM

SECTIONAL VIEW SHOWING INTERFACE BETWEEN THE BUILDING AND THE METRO ENTRANCE

STRUCTURAL CHALLENGES AND SOLUTIONS:

The building on top of the Metro portal proved to be a structural challenge. Due to the site being in the earthquake zone, the part of the building on top of the metro portal had to confirm to seismic zone risk category 3 structural requirements. This resulted in the building split into 2 parts - the tower structure conforming to seismic zone risk category 2 and the podium structure conforming to seismic zone risk category 3, separated by a 30 inches wide expansion joint.

R.C.C. TOWER STRUCTURE: SEISMIC ZONE RISK CATEGORY 2

PODIUM STEEL STRUCTURE OVER METRO: SEISMIC ZONE RISK CATEGORY 3

STRUCTURAL TRANSFER

TRANSFER COLUMNS METRO ENTRANCE

METRO STRUCTURAL TRANSFER BEAM

METRO PLATFORM

Drawn By: Checked By: Project Number: Sheet Number: S100 Author Checker 221503 DRAWING THEME See below for complete Structural rawing list Dwg Series and Theme S100's 3D VIEWS, GENERAL NOTES, LEGEND, LANDSCAPE LOADING DIAGRAM S200's PLANS S300's COLUMNS SCHEDULES S400's SHEARWALL SCHEDULES S500's ELEVATIONS S600's SECTIONS AND DETAILS S700's LOADING DIAGRAMS S800's SPECIALTY DRAWINGS DRAWING LIST Dwg Title Current Revision Current Revision Description Current Revision Date S100 TITLE SHEET 85% CD Set IFC Review05.26.2023 S101 GENERAL NOTES 85% CD Set IFC Review05.26.2023 S102 GENERAL NOTES 85% CD Set IFC Review05.26.2023 S103 GENERAL NOTES 85% CD Set IFC Review05.26.2023 S111 LEGENDS AND ABBREVIATIONS 85% CD Set IFC Review05.26.2023 S121 SCHEDULES 85% CD Set IFC Review05.26.2023 S122 SCHEDULES 85% CD Set IFC Review05.26.2023 S201.1PILE LAYOUT LEVEL B1 85% CD Set IFC Review05.26.2023 S201.2CONCRETE OUTLINE LEVEL B1 85% CD Set IFC Review05.26.2023 S201.3REINFORCING LEVEL B1 G 85% CD Set IFC Review05.26.2023 S201.4STIRRUP PLAN LEVEL B1 85% CD Set IFC Review05.26.2023 S202.1CONCRETE OUTLINE LEVEL 01 85% CD Set IFC Review05.26.2023 S202.2REINFORCING LEVEL 01 G 85% CD Set IFC Review05.26.2023SOUTH EAST PERSPECTIVE
EXPANSION JOINT SECTIONAL VIEW SHOWING INTERFACE BETWEEN THE BUILDING AND THE METRO ENTRANCE
EXECUTION
VIEW
SHOWING METRO ENTRANCE BELOW THE PODIUM
286.50 Level 02 30' - 0" 2 3 6 8 11 12 Level 031 Mezzanine 18' - 0" 10 9 5 4 7 A3.33 A3.32 -MTL-WD-MTL-MTL-GL-01 --ST-01 -MTL-Level 01 Level 02 30' - 0" F D B A 40' - 8" Level 04 51' - 4" Mezzanine 18' - 0" E C ---MTL-04 -MTL-01 -WD-01 -MTL-03 A3.33 Drawn By:Checked By: Project Number: Sheet Number: 2022 Solomon Cordwell Buenz 08.31.2022 09.30.2022 75% DESIGN DEVELOPMENT SET 50% DESIGN DEVELOPMENT SET PERMIT SET - 100% DD 11.11.2022 25% CD SET 01.16.2023 50% CD SET 02.24.202385% CD SET - IFC REVIEW 05.26.2023 ENLARGED ELEVATIONS - GROUND LEVEL MTA 222 W. 2nd St. Los Angeles CA 222 W 2ND A3.13 JGu MjM 2021052 SCALE: 1/4" 1'-0" 2 ENLARGED WEST ELEVATION -GROUND LEVEL FACADE SCALE: 1/4" 1'-0" 1 ENLARGED ELEVATION -MTA SOUTH SIDE SEE 1/A3.14 NODATE DESCRIPTION

1

The Scale, proportions and facade of the building take inspiration from the surrounding buildings in the historic district of downtown Los Angeles. The project borrows and reinterprets the historic buildings intricate facades with offset grid of the facade, and the overall building mass is broken into three volumes to more closely match surrounding building proportions. The site’s biggest constraint is the presence of a metro station and entrance at the corner broadway and 2nd Street, This is addressed by locating the point tower opposite to the metro station and the entrance at the corner of Broadway and 2nd Street. This is addressed by locating the point tower opposite to the metro station along Spring Street, Keeping the tower structure clear of the station and the largest mass away from the more sensative historic corridor on Broadway. The taller volumes have a vertical expression while the podium is expressed horizontally to fit in nicely with the closest neightboring buildings. Balconies were added during design development of the building as a result of the Covid pandamic.

OVERALL PLAN -L53 (FACADE TYPES)

DN UP UP DN CORRIDOR SUPPLY SHAFT STAIR 1 STAIR 2 A3.02 1 A3.02 2 STAIR 1 VEST. STA VES TOWER ELEVATOR LOBBY 5300 5301 LIBRARY LOUNGE 5303 STORAGE 5323 W/C 5324 CORRIDOR 5325 OPEN LOUNGE 5302 7' 0" 3' - 7" 3' - 6" 1' 6" 3' 6" 2' 6" 1' - 6" 3' 6" 3' 6" 2' 6" 1' 6" 3' 6" 3' 6" 2' 6" 3' 6" 3' 6" 1' - 6" 2' 6" 1' 6" 3' - 6" 3' - 6" 2' - 6" 3' 6" 3' - 6" 1' 8'6" 2'6" 8'6" 2' 6" 8'6" 2'6" 8'6" 2'6" 8'6" 2'6" 8'6" 2'6" 8'6" 2'6" 13'4" 2'6" 122'2" ELEVATOR A FSAE ELEVATOR D FSAE 3' 6" 1'6" 3'6" 2'6" 3'6" 1'6" 3'6" 2' 6" 3' 6" 1'6" 3'6" 2'6" 3'6" 1'6" 3'6" 2'6" 3' 6" 3'6" 1'6" 2'6" 6' 6" 6'6" 6'6" 2'6" 0" 15'10" 2% SLOPE 2% SLOPE 117' 4" ELEVATOR B ELEVATOR C SCALE:
DESIGN OF TOWER:
FACADE AT ENLARGED UPPER Z FACADE AT COLONNADE AND PODIUM LEVEL 53 FLOOR PLAN Level 47 499' - 10" Level 48 511' - 6" Level 49 523' - 2" Level 50 534' - 10" Level 51 546' - 6" Level 47 499' - 10" Level 48 511' - 6" Level 49 523' - 2" Level 50 534' - 10" Level 51 546' - 6" Level 47 499' - 10" Level 48 511' - 6" Level 49 523' - 2" Level 50 534' - 10" Level 51 546' - 6" Level 41 429' - 6" Level 42 441' - 6" Level 43 453' - 2" 1 K Level 24 263' - 10" Level 25 274' - 10" Level 26 284' - 6" Level 27 294' - 2" L T Level 41 429' - 6" Level 42 441' - 6" Level 43 453' - 2" S SCALE: 1/4" = 1'-0" 2 Section 1 SCALE: 1/4" = 1'-0" 3 Section 11 SCALE: 1/4" = 1'-0" 4 Section 12 EXTRUDED MTL PANEL_TYPICAL SECTION - AT TOWER BALCONY
FACADE AT CROWN
SYSTEM 3D AT MTL PANEL M Level 18 205' - 10" Level 19 215' - 6" Level 20 225' - 2" N 10 A4.11 12 A4.11 A4.11 A4.11 A4.11 THRU SLAB DUCT LOCATION THRU SLAB DUCT LOCATION -GL-01 E-MTL-01 E-MTL-02 -GL-04 -GL-02 E-MTL-02 M 1 N 10 A4.11 12 A4.11 9 A4.11 7 A4.11 1' 2' 6" 6" 3' 6" 6" 3' 6" 1' 6" 6" THRU - SLAB DUCT LOCATION Drawn By:Checked By: Project Number: Sheet Number: © 2022 Solomon Cordwell Buenz 06.24.2022 08.31.2022 09.30.2022 75% DESIGN DEVELOPMENT SET 50% DESIGN DEVELOPMENT SET 100% SCHEMATIC DESIGN SET PERMIT SET - 100% DD 11.11.2022 25% CD SET 01.16.2023 50% CD SET 02.24.2023 65% CD SET 03.24.2023 75% CD SET - IFT 04.21.2023 85% CD SET - IFC REVIEW 05.26.2023 FACADE SYSTEM 222 W. 2nd St. Los Angeles CA 222 W 2ND A4.11 Author Checker 2021052 SCALE: 1/2" = 1'-0" 6 TOWER -ENLARGED WINDOW WALL SYSTEM ELEVATION_1 SCALE: 1/2" = 1'-0" 5 TOWER -PLAN @ WINDOW WALL SYSTEM_1 NODATE DESCRIPTION M N 10 A4.11 12 A4.11 9 A4.11 7 A4.11 1' 6" 6" 3' 6" 6" 2' 6" 6" 3' 6" 6" THRU - SLAB DUCT LOCATION Level 18 205' - 10" Level 19 215' - 6" Level 20 225' - 2" 9' 8" 9' 8" 9' 0" 9' 0" 1' 6" A4.21 A4.21 A4.21 Level 18 205' - 10" Level 19 215' - 6" Level 20 225' - 2" 1 9' 8" 9' 8" 9' 0" 9' 0" A4.22 A4.22 A4.22 SCALE: 1/2" 1'-0" 6 TOWER -ENLARGED WINDOW WALL SYSTEM ELEVATION_1 SCALE: 1/2" 1'-0" 5 TOWER -PLAN @ WINDOW WALL SYSTEM_1 SCALE: 1/2" 1'-0" 12 SECTION A SCALE: 1/2" 1'-0" 10 SECTION B SCALE: 1/2" = 1'-0" 9 SECTION C SCALE: 1/2" = 1'-0" 7 SECTION D SCALE: 3" 1'-0" 1 SYSTEM 3D @ SPANDRE SCALE: 3" 1'-0" 4 SYSTEM 3D @ MTL PANEL Copy 1 T SLAB DIM PT 1/2" 1/4" 11 1/4" DIM PT TYPICAL 7" 7" 6" 12 2400 MANUAL SINGLE ROLLER WINDOW SHADE T SLAB DIM PT 1/2" 1/4" 11 1/4" DIM PT TYPICAL 7" ELEVATED CONCRETE SLAB, SSD 8" DIM PT T SLAB TYPICAL 11 1/4" 1/4" 1/2" 1' 4 3/4" DIM PT 1/8" POST-TENSIONED CONCRETE03 3860 SLAB DIM PT 1' 1/4" 1/2" 1/4" 1/2" DIM PT TYPICAL 1 1/2" 3/8" 3" 1 3/4" 3 1/4" ELEVATED CONCRETE SLAB, SSD 8" 12 2400 MANUAL SINGLE ROLLER WINDOW SHADE IN-SLAB DUCT DIM PT TYPICAL 0' 7" DIM PT DIM PT TYPICAL 7" 12 2400 MANUAL SINGLE ROLLER WINDOW SHADE DIM PT SLAB 11 1/4" DIM PT ELEVATED CONCRETE DECK, SSD 8" 12 2400 MANUAL SINGLE ROLLER WINDOW SHADE DIM PT SLAB DIM PT TYPICAL 7" 3" 3/4" 1/4" IN-SLAB DUCT 12 2400 MANUAL SINGLE ROLLER WINDOW SHADE ELEVATED CONCRETE SLAB, SSD 8" SCALE: 3" 1'-0" 4 TOWER -WINDOW WALL@ MTL PANEL SCALE: 3" 1'-0" 5 TOWER -WINDOW WALL@ MTL PANEL_MID SCALE: 3" 1'-0" 6 TOWER -WINDOW WALL@ MTL PANEL_UPPER SCALE: 3" = 1'-0" 1 TOWER -WINDOW WALL @ JULIET BALCONY SILL SCALE: 3" = 1'-0" 3 TOWER -WINDOW WALL @ JULIET BALCONY HEAD SCALE: 3" 1'-0" 7 TOWER -WINDOW WALL @ SLAB SCALE: 3" 1'-0" 8 TOWER -WINDOW WALL @ SHADOW BOX SCALE: 3" 1'-0" 2 TOWER -WW -JULIET BALCONY SILL @ SHADOW BOX T SLAB DIM PT DIM PT TYPICAL 7" 7" 6" 12 2400 MANUAL SINGLE ROLLER WINDOW SHADE T SLAB DIM PT 1/2" 1/4" 11 1/4" DIM PT TYPICAL 7" ELEVATED CONCRETE SLAB, SSD 8" DIM PT T SLAB TYPICAL 11 1/4" 1/4" 1/2" 1' 3/4" DIM PT 1/8" POST-TENSIONED CONCRETE03 3860 SLAB DIM PT 1' 5 1/4" 1/2" 1/4" 8 1/2" DIM PT TYPICAL 1/2" 3/8" 3" 3/4" 1/4" ELEVATED CONCRETE SLAB, SSD 8" 12 2400 MANUAL SINGLE RO WINDOW SHADE IN-SLAB DUCT DIM PT TYPICAL 0' 7" DIM PT DIM PT TYPICAL 7" 12 2400 MANUAL SINGLE ROLLER WINDOW SHADE DIM PT SLAB 11 1/4" DIM PT ELEVATED CONCRETE DECK, SSD 8" 12 2400 MANUAL SINGLE ROLLER WINDOW SHADE DIM PT SLAB DIM PT TYPICAL 7" 3" 1 3/4" 3 1/4" IN-SLAB DUCT 12 2400 MANUAL SINGLE WINDOW SHAD ELEVATED CONCRETE SLAB, SSD 8" SCALE: 3" 1'-0" 4 TOWER -WINDOW WALL@ MTL PANEL SCALE: 3" 1'-0" 5 TOWER -WINDOW WALL@ MTL PANEL_MID SCALE: 3" 1'-0" 6 TOWER -WINDOW WALL@ MTL PANEL_UPPER SCALE: 3" = 1'-0" 1 TOWER -WINDOW WALL @ JULIET BALCONY SILL SCALE: 3" = 1'-0" 3 TOWER -WINDOW WALL @ JULIET BALCONY HEAD SCALE: 3" 1'-0" 7 TOWER -WINDOW WALL @ SLAB SCALE: 3" 1'-0" 8 TOWER -WINDOW WALL @ SHADOW BOX SCALE: 3" 1'-0" 2 TOWER -WW -JULIET BALCONY SILL @ SHADOW BOX M N 10 A4.11 12 A4.11 A4.11 7 A4.11 A4.11 THRU SLAB DUCT LOCATION THRU SLAB DUCT LOCATION -GL-01 -MTL-01 -MTL-02 -GL-04 -GL-02 -MTL-02 M N Level 18 205' - 10" Level 19 215' - 6" Level 20 225' - 2" 1 9' 8" 9' 8" 9' 0" A4.21 A4.21 1 Level 18 205' - 10" Level 19 215' - 6" Level 20 225' - 2" 1 9' 8" 9' 8" 9' 0" 9' 0" 08 4400 SHADOW BOX A4.21 A4.21 1 SCALE: 1/2" = 1'-0" 6 TOWER -ENLARGED WINDOW WALL SYSTEM ELEVATION_1 SCALE: 1/2" = 1'-0" 12 SECTION A SCALE: 1/2" = 1'-0" 9 SECTION C M Level 18 205' - 10" Level 19 215' - 6" Level 20 225' - 2" N 10 A4.11 12 A4.11 9 A4.11 7 A4.11 5 A4.11 THRU SLAB DUCT LOCATION THRU SLAB DUCT LOCATION E-GL-01 -MTL-01 -MTL-02 E-GL-04 E-GL-02 -MTL-02 M 1 N 10 A4.11 12 A4.11 9 A4.11 A4.11 1' 6" 6" 3' 6" 6" 1' 2' 6" 6" 3' 6" 6" THRU - SLAB DUCT LOCATION Drawn By:Checked By: Project Number: © 2022 Solomon Cordwell Buenz 06.24.2022 08.31.2022 09.30.2022 75% DESIGN DEVELOPMENT SET 50% DESIGN DEVELOPMENT SET 100% SCHEMATIC DESIGN SET PERMIT SET - 100% DD 11.11.2022 25% CD SET 01.16.2023 50% CD SET 02.24.2023 65% CD SET 03.24.2023 75% CD SET - IFT 04.21.2023 85% CD SET - IFC REVIEW 05.26.2023 FACADE SYSTEM 222 W. 2nd St. Los Angeles CA 222 W 2ND Author Checker 2021052 SCALE: 1/2" 1'-0" 6 TOWER -ENLARGED WINDOW WALL SYSTEM ELEVATION_1 SCALE: 1/2" 1'-0" 5 TOWER -PLAN @ WINDOW WALL SYSTEM_1 SCALE: 3" 1'-0" 1 SYSTEM 3D @ SPANDREL Copy 1 SCALE: 3" 1'-0" 4 SYSTEM 3D @ MTL PANEL Copy 1 NODATE DESCRIPTION M Level 18 205' - 10" Level 19 215' - 6" Level 20 225' - 2" N 10 A4.11 12 A4.11 A4.11 7 A4.11 A4.11 THRU SLAB LOCATION THRU SLAB LOCATION -GL-01 -MTL-01 -MTL-02 -GL-04 -GL-02 -MTL-02 M 1 N 10 A4.11 12 A4.11 9 A4.11 7 A4.11 1' 6" 6" 6" 2' 6" 6" 3' 1' 6" 6" THRU - SLAB DUCT LOCATION Drawn By:Checked By: Project Number: © 2022 Solomon Cordwell Buenz 06.24.2022 08.31.2022 09.30.2022 75% DESIGN DEVELOPMENT SET 50% DESIGN DEVELOPMENT SET 100% SCHEMATIC DESIGN SET PERMIT SET - 100% DD 11.11.2022 25% CD SET 01.16.2023 50% CD SET 02.24.2023 65% CD SET 03.24.2023 75% CD SET - IFT 04.21.2023 85% CD SET - IFC REVIEW 05.26.2023 FACADE SYSTEM 222 W. St. Los Angeles CA 222 W 2ND Author Checker 2021052 SCALE: 1/2" = 1'-0" 6 TOWER -ENLARGED WINDOW WALL SYSTEM ELEVATION_1 SCALE: 1/2" = 1'-0" 5 TOWER -PLAN @ WINDOW WALL SYSTEM_1 SCALE: 3" 1'-0" 1 SYSTEM 3D @ SPANDREL Copy 1 SCALE: 3" 1'-0" 4 SYSTEM 3D @ MTL PANEL Copy 1 NODATE DESCRIPTION M Level 18 205' - 10" Level 19 215' - 6" Level 20 225' - 2" N 10 A4.11 12 A4.11 A4.11 A4.11 A4.11 THRU SLAB DUCT LOCATION THRU SLAB DUCT LOCATION -GL-01 E-MTL-01 E-MTL-02 -GL-04 -GL-02 E-MTL-02 M 1 N 10 A4.11 12 A4.11 9 A4.11 7 A4.11 1' 2' 6" 6" 3' 6" 6" 3' 6" 1' 6" 6" THRU - SLAB DUCT LOCATION Drawn By:Checked By: Project Number: Sheet Number: © 2022 Solomon Cordwell Buenz 06.24.2022 08.31.2022 09.30.2022 75% DESIGN DEVELOPMENT SET 50% DESIGN DEVELOPMENT SET 100% SCHEMATIC DESIGN SET PERMIT SET - 100% DD 11.11.2022 25% CD SET 01.16.2023 50% CD SET 02.24.2023 65% CD SET 03.24.2023 75% CD SET IFT 04.21.2023 - IFC REVIEW FACADE SYSTEM 222 W. 2nd St. Los Angeles CA 222 W 2ND A4.11 Author Checker 2021052 SCALE: 1/2" = 1'-0" 6 TOWER -ENLARGED WINDOW WALL SYSTEM ELEVATION_1 SCALE: 1/2" = 1'-0" 5 TOWER -PLAN @ WINDOW WALL SYSTEM_1 SCALE: 3" 1'-0" 1 SYSTEM 3D @ SPANDREL Copy 1 SCALE: 3" = 1'-0" 4 SYSTEM 3D @ MTL PANEL Copy 1 NODATE DESCRIPTION Level 47 499' - 10" Level 48 511' - 6" Level 49 523' - 2" Level 50 534' - 10" Level 51 546' - 6" 2 Level 24 263' - 10" Level 25 274' - 10" Level 26 284' - 6" Level 27 294' - 2" 1 06.24.2022 08.31.2022 09.30.2022 75% DESIGN DEVELOPMENT SET 50% DESIGN DEVELOPMENT SET 100% SCHEMATIC DESIGN SET PERMIT SET - 100% DD 11.11.2022 25% CD SET 01.16.2023 50% CD SET 02.24.2023 65% CD SET 03.24.2023 75% CD SET - IFT 04.21.2023 85% CD SET - IFC REVIEW 05.26.2023 222 W 2ND SCALE: 1/4" = 1'-0" 1 Section 10 NODATE DESCRIPTION SYSTEM 3D AT SPANDREL

INSPIRATION:

Situation on the Boise River Greenbelt, our site draws inspiration from the environmental connector of the city, the winding river. Commited to embracing and enriching the fabric of this unique and diverse neighborhood, the architectural language responds to the industrial character of the Lusk District at the southern facades. Gentle sloping at roof line and folding angles of the exterior maximize views of the Boise Foothills beyond.

DESIGN:

One of the driving factors and challenges of the project was the site’s proximity to the Boise River. Being below the flood plain, it was crucial to incorporate steps, ramps, and raised terraces, while activating the Lusk and the West Royal boulevard streetscapes with retail frontage and unique character.

Reading as two masses of contrasting character on the exterior, the interior provides two gracious courtyards for communal green space and a rooftop sky deck where residents can enjoy sweeping views of the downtown Boise skyline and scenic mountains beyond.

FRONTAGE: RIVER FRONTAGE:
URBAN
DESIGN MEETING 917 S LUSK ST BOISE, IDAHO CA VENTURES 06.24.2021 16
A 1 2 BREAKING DOWN THE BLOCK SLIDING BARS CONCEPT PROMINENT CORNERS - BRIDGING RIVER TO STREET S. LUSK ST. W. ROYAL BLVD. BOISE RIVER S. LUSK ST. W. ROYAL BLVD. BOISE RIVER © 2021 SOLOMON CORDWELL BUENZ DESIGN MEETING | 917 S LUSK ST | BOISE, IDAHO CA VENTURES 06.24.2021 17 CONCEPTUAL
B 1 2 BREAKING DOWN THE BLOCK STREET LEVEL VS. UPPER CONCEPT | WINDING RIVER - A FLOWING BUILDING WRAP S. LUSK ST. W. ROYAL BLVD. BOISE RIVER S. LUSK ST. W. ROYAL BLVD. BOISE RIVER 1
CONCEPTUAL DESIGN MASSING STUDY OPTION -
DESIGN MASSING STUDY OPTION -

2BR-B1.2 -2 BEDROOM UNIT PLAN @ WEST FIREWALL 2

1C 5BR-D1A -TYPICAL 5 BEDROOM 'TYPE A' UNIT PLAN

1A 5BR-D1 -TYPICAL 5 BEDROOM UNIT PLAN

54"x60" 5'0" 4 3/4" 3' 0" 2' 0" 7 5/8" 5' 0" 6' 6 5/8" 15' 7/16" CLEAR 15' 10 3/16" 2' 6 1/4" 4 1/8" 6 1/4" 4 1/8" 3' 1" 3/4" 1 1/4" 5' 6" 6 3/4" 4' 5/8" 5/8" 3' 1 1/4" D.3 D.5 D.7 D.6A LIVING/SLEEPING KITCHEN W/D CL BATH 5 A6.25 14'3" 5 1/4" 15'4 1/4" / 1 A6.23 D1VB W1XD W-VB W-VB D1XB W-VA W-VA W-VA W-WB W-VB E-FC-01 W1 W3 24'2 1/4" CLEAR UF9 UF3 UF6 UF7 UF8 UF10 UF19 1/8" 4" W-VA W-WB W-VB D1WB D1VB W1WD W-VB 1' 6" 25'3 1/8" TYP. Drawn By:Checked By: Project Number: Sheet Number: © 2021 Solomon Cordwell Buenz ENLARGED UNIT PLANS - STUDIO UNITS 917 S LUSK ST BOISE, ID 83706 UNCOMMON BOISE | STUDENT LIVING A6.10 TM MP/TS 2021024 SCALE: 1/4" = 1'-0"
ST-S1
SCALE: 1/4" = 1'-0" 2A ST-S1.1 -STUDIO UNIT PLAN
ENTRY) 54"x60" 54"x60" 9' 3 1/2" 11' 2 3/4" 9' 3 1/2" 30' 7 1/4" 31' 5" 6'7 1/2" 5'0" 3/4" 5' 6" 3' 1" 3' 1" 5' 6" 3 3/4" 3 3/4" 6'7 1/2" 5'0" 3' 4" BATH BATH CLOSET CLOSET BEDROOM BEDROOM LIVING D.3 D.6 D.2 D.2 D.3 D.7 11' 5 1/2" KITCHEN / 1 A6.23 / 5 A6.25 / 5 A6.25 W-VB W-XB W1WD W-WB W-VB W-VB D1WB W-XB W-VA W-VB W-VB W-VB 11' 5 1/2" 24' 2 1/4" W/D FCU UF15 UF8 UF2 UF6 UF7 UF8 UF9 UF9 UF10 UF10 UF19 W-VB 3' 3/16" W-VB W-VB 3 3/4" 2' 2" 2' 8 5/8" 3' 2" 3' 4 7/8" 3 3/4" W-VA W2WD W-VA W-VA W-WB W-VA 2' 10" 8' 7/8" E-FC-01 3' 0 1/8" 3' 2" 2' 8 1/2" 3' 0 5/8" 3' 1 1/4" 2'4" 3' 2 3/4" 2' 1/8" 5' 9 3/4" W-VB W-VB D1XB D1WB D1VB D1XB D1VB 3' 1" W-VB D11 1' 6" 25' 3 1/8" TYP. 10" BEDROOM CLOSET BATH 3 A6.25 D2VB W1WD 9' 3 1/2" W1WD 1' 6" 5'0" 10' 11 3/8" 6'7 1/2" 2' 8 1/4" 5' 10 5/8" 2' 7 3/4" 3' 2" 3' 1 7/8" W-VB W-VB D.2 D.7 D.3 W-VB W-VB W-VB W-WB W-VB UF8 UF9 UF10 16. TYPICAL UNIT DOOR SCHEDULE: SEE CA VENTURES STUDENT LIVING DESIGN DIRECTIVE DATED MAY 2021, SECTION 4.0 PAGE 26. 17. COMMON AREA DOOR SCHEDULE: SEE CA VENTURES STUDENT LIVING DESIGN DIRECTIVE DATED MAY 2021, SECTION 4.1 PAGE 27. 18. KEYING SCHEDULE: SEE CA VENTURES STUDENT LIVING DESIGN DIRECTIVE DATED MAY 2021, SECTION 4.2 PAGE 28 19. TYPICAL ROOF MEMBRANE DETAILS: SEE SHEET A4.51 20. TYPICAL MEMBRANE DETAILS FOR OCCUPIED ROOF AREAS AT FLOOR 2 AND 5: SEE SHEET A4.60 AND A4.61. 21. TYPICAL ACOUSTIC ISOLATION AND WALL BACKING DETAILS: SEE SHEET A8.07 Drawn By:Checked By: Project Number: Sheet Number: © 2021 Solomon Cordwell Buenz ENLARGED UNIT PLANS - 2 BEDROOM UNITS 917 S LUSK ST BOISE, ID 83706 UNCOMMON BOISE | STUDENT LIVING A6.12 TM MP/TS 2021024 SCALE: 1/4" = 1'-0" 1A 2BR-B1 -TYPICAL 2 BEDROOM UNIT PLAN SCALE: 1/4" = 1'-0" 2A 2BR-B1.1 -2 BEDROOM UNIT PLAN @ WEST FIREWALL SCALE: 1/4" = 1'-0"
NO.DATE DESCRIPTION 511/19/2021ISSUED FOR DESIGN DEVELOPMENT 601/12/2022ISSUED FOR GMP 904/01/2022ISSUED FOR BUILDING PERMIT 54"x60" 54"x60" MAINTENANC TRASH ROOM CLOSETS, MD OTHER TYPIC 16. TYPICAL UN VENTURES ST DIRECTIVE DA PAGE 26. 17. COMMON AR VENTURES ST DIRECTIVE DA PAGE 27. 18. KEYING SCH STUDENT LIV MAY 2021, SE 19. TYPICAL RO SHEET A4.51 20. TYPICAL ME OCCUPIED RO SEE SHEET A 21. TYPICAL AC BACKING DET 9565° BEDROOM CL BATH 4 A6.25 D1VB W1XD W2 D1VB 1' 6" 1 A0.21 WT1 W2WD W1 W1 W1 W1 SUN SHADE CANOPY BELOW LIVING ROOM BEDROOM 1 BEDROOM 2 BEDROOM 3 BEDROOM 4 CL CL CL CL W/D FCU KITCHEN BATH BATH BATH BATH 11' 4 15/16" 8' 10" 8' 10" 9' 1/4" 8' - 8" 9' 8" 5' 0" 3' 1" 5'6" 3' 0" 3' 7 1/2" 1' 7 3/4" 3' 4" 3' 1/4" 6' 4 1/2" 5' 4" 3' 1 1/4" 3' 1 1/4" 3' 4" 51' 8 7/16" 52' 5 1/16" 24' 0 1/4" 0" 5' 6" 3' 4" 3' 4" 5' - 6" 2' 0" 6' 8" 6' 1" 6' 1" 5' 11" 10'3 1/4" 4'0 1/2" 5' 4" D.2 D.12 D.3 D.3 D.5 D.5 D.3 D.2 D.2 D.12 D.2 D.3 / 2 A6.23 1 A6.25 / 1 A6.25 1 A6.25 4 A6.25 W-VB W-VB W-VB W-VB D1XB W1WD W-VB W-VB W-VB W-VB W-VB W-VB W-VB W-VB W-VB W-VA W-VB W-VB W-VB W-VB UF6 UF4 UF9 UF8 UF8 UF9 UF8 UF9 UF8 UF9 UF10 UF10 UF10 UF10 UF19 UF2 UF7 3' 7" 4' 10 3/8" 6' 2" 11' 2" 4 5/8" 2' 0" 4' 10" 5' 0 1/2" 2' 8 1/4" 11 7/8" 2' 0" 3' 1" 6' 5 1/2" 5' 0" 2" D1VB W-VB W-VB W-VB W-VB W-VB W-VB W-VB W-VA W-VA W-VB E-MT-02 W-VA E-MT-02 W-VB F-BA W-VB W-VB W-WB W-VB W-VB W1XD 1' 6" T. 1' 9 3/4" 1'9 3/4" 1'9 3/4" R1 R7 R11 R5R5 R7 R11 R4 R4 R4 R4 R1 R1 R7 R5 R11 R1 R7 R11 R5 EQ EQ EQ EQ EQ EQ EQ EQ EQ EQ EQ EQ EQ EQ EQ EQ EQ EQ EQ EQ EQ EQ EQ EQ EQ EQ 1'10" 1' 8 1/4" 1' 9" 1' 6 7/8" EQ EQ EQ EQ EQ EQ WT1 WT1 WT1 WT1 T2 Drawn By:C Project Number: Sheet Number: © 2021 Solomon Co ENLARG PLANS UNITS 917 S LUSK BOISE, ID 8 UNCOM STUDEN TM SCALE: 1/4" = 1'-0" 1A 4BR-C1.2 -4 BEDROOM UNIT PLAN @ ANGLED DEMISING WALL ROOM UNIT
SCALE: 1/4" = 1'-0" 2A 4BR-C2
SCALE: 1/4" = 1'-0" 3A 4BR-C3 -4 BEDROOM UNIT PLAN @ NORTHEAST CORNER OOM UNIT RCP @ NORTHEAST CORNER NO.DATE 309/24/2021IS 511/19/2021IS 601/12/2022IS 904/01/2022IS 54"x60" 54"x60" 24'2 5/16" BEDROOM 1 BEDROOM 2 BEDROOM 3 BEDROOM 4 BEDROOM 5 BATH BATH BATH BATH BATH CL CL CL CL CL W/D KITCHEN FCU W2 W4 W2 W2 W2 W1 LIVING 5'0" 8' 1 9/16" 8' 8 13/16" 10' 10 1/2" 8' 10" 2' 0" 8' 10" 9' 11 3/4" 8' 9 1/2" 60' 5 1/16" 61' 2 1/8" 8' 8" 1' 9 1/4" 3' 4" 3' 1 1/4" 5' 4" 3' 1 1/4" 2' 11 3/4" 3' 4" 3' 1 1/4" 3' 4" 27' 10 3/4" 3' 4" 5' 6" 5' 6" 3' 4" 3' 4" 3'1" 6'6" 3'7" D.3 D.2 D.2 D.12 D.3 D.5 D.5 D.3 D.2 D.12 D.3 D.2 D.2 D.3 5' 0" / 2 A6.23 10' 3 1/4" / 2 A6.25 1 A6.25 1 A6.25 / 1 A6.25 4 A6.25 D.5 D.5 D.11 CL D.5 5' 0" W2WD W-VB W-VB W-VB W-VB W-VB W-VB W1WD W-VB W-VB W-VB W-VB W-VB W-VB W-VB W-VB W-VB W-VB W-VB W-VB D1VB UF8 UF6 UF4 UF9 UF9 UF8 UF8 UF9 UF8 UF9 UF8 UF9 UF10 UF10 UF10 UF10 UF10 UF19 UF2 UF7 UF10 UF10 UF10 3' 1/4" 6' 2" 6' 7 3/4" 4' 10 7/8" 2' - 5 1/2" 6' 4" 2' 0 3/4" 2' 8 1/4" 4'10" 5'0" 5' 11" 6' 1" 10' 2 3/4" 1' 6 1/2" 1'0" 3' 4 1/2" 3' 0 1/4" 4 5/8" 6'5 1/2" 3' 1" 1'0" 12'6 1/4" 2' 0" 3/8" 5' 11" 6' 4" W1WD W1XD W1WD W1XD W-VB D2VD W-VA 2'0 5/8" 2' 0" D1VB E-FC-01 7'10 1/2" 11 1/2" E-FC-01 W-VB W-VB W-VA W-VA W-VA W-VA W-VB W-VA W-VB W-VB W-VB W-VB W-VA W-VA W-VB W-VB W-VB W-VB W-VB W-VB W-VB S2KB W2VD W2WD W-VA W-VA W-VB W-VB E-FC-01 E-FC-01 1' - 6" 1 A0.21 1' 9 3/4" 1' 9 3/4" EQ EQ EQ EQ EQ EQ EQ EQ EQ EQ EQ EQ EQ EQ R4 R4 R7 R11 R11 R7 R5 R11 R7 R1 R1 R1 R1 R7 R5 R11 EQ EQ 1' 10" EQ EQ EQ EQ EQ EQ 1'9" 1'9" 1'9" EQ EQ EQ EQ EQ EQ WT1 WT1 WT1 WT1 1'0 1/16" 7' 8 1/4" BEDROOM BATH CL W2 D.3A 8' - 8 13/16" D.2A D.2A 10' 9 1/2" 9' 0" 8' 7" 10' 1 3/4" A6.27 2 2' 0" 2 A6.27 BEDROOM 2 BEDROOM 3 BEDROOM 4 BEDROOM 5 BATH BATH BATH BATH CL CL KITCHEN LIVING CL CL / 4 A6.23 / 1 A6.25 / 1 A6.25 / 1 A6.25 5' 0" 6'7 1/2" 8' 3 5/8" 3' 1" 3' 1/4" 5' 4" 3' 1 1/4" 6' 5 3/4" 3' 1 1/4" 3' 6" D.5 D.13 D.3A D.13 D.3A D.5 D.5 D.5 D.2A D.5 D.12 D.12 W D 3' 6" 4' 3/4" 6' 5 3/4" 17' 3 1/4" 12' 8 1/8" 3' 7 3/4" D.2A D.3A UF9 UF6 UF4 UF8 UF9 UF8 UF9 UF8 UF9 UF8 UF9 UF10 UF10 UF10 UF10 UF10 UF19 UF2 UF7 UF8 3' 6" 8' 9 1/2" 2" 8' 9 1/2" 1' 9 1/4" 3' 0" 3' 7 1/2" 5' 0" 3'1" 5' 6 5/8" 8' 7 5/8" 3' 10 5/8" 4' 10 7/8" 2' 1 3/4" 6' 3" 3' 1 1/4" 5' 4" 10'3 5/16" 3'7" 9' - 6 3/4" 1 3/4" 6' 1" 6' 1" 3' 6" 4' 2 5/8" 2' 10" 3' 8 7/8" 6' 4" 2' 0" 4' 10 9/16" 5'0" 6'5 1/2" 24' 2 13/16" 2' 8 7/8" 3' 1 1/4" 3' 1" 6' - 3 1/2" 6' 10 3/16" 3' 11 5/16" 4' 3 11/16" 4' 5/8" 60' 9 15/16" 2' 0" 7' 9" 10'3 5/16" 13' 6 1/4" 5'0" 6' 8" 17' 1 9/16" 6'5 1/2" 2'8 1/4" 23'1 1/8" 13'8 3/8" W-VA W-VA W-VA W2WD W2WD E-FC-01 E-FC-01 E-FC-01 E-FC-01 D1V WD2V D1V W1XD W1WD W1WD W1XD W-XB W1WD W-VB W-VB W-VB W-VB W-VB W-VB W-VB W-VB W-VB W-VB W-VB W-VB W-VB W-VB W-VA W-VA W-VB W-WB W-VB W-VB W-VB W-VB W-VB W-VB W-VB W-VB W-VB W-VB W-VB W-VB W-VB W-VB W-VB W-VB W-VB W-VB W-VB 1' 6" SCALE:1/4" = 1'-0"
M UNIT RCP SCALE:1/4" = 1'-0"
1A
-TYPICAL STUDIO UNIT PLAN
(SIDE
3A
RCP @ ANGLED DEMISING WALL
-TYPICAL 4 BEDROOM CORNER UNIT PLAN 4 BEDROOM CORNER UNIT RCP
SCALE: 1/4" = 1'-0" 2A @

UNIT METRICS:

Area Summary (Gross Building) UNITS BY UNIT TYPE LevelUnit TypeCountCAV Area Type Area 1BR1BA LEVEL 21BR1BA4RESIDENTIAL AREA2047 SF LEVEL 31BR1BA5RESIDENTIAL AREA2543 SF LEVEL 41BR1BA5RESIDENTIAL AREA2543 SF LEVEL 51BR1BA5RESIDENTIAL AREA2542 SF 1BR1BA: 19 9675 SF 2BR2BA LEVEL 22BR2BA9RESIDENTIAL AREA7234 SF LEVEL 32BR2BA10RESIDENTIAL AREA8059 SF LEVEL 42BR2BA12RESIDENTIAL AREA9647 SF LEVEL 52BR2BA12RESIDENTIAL AREA9644 SF 2BR2BA: 43 34583 SF 4BR4BA LEVEL 24BR4BA15RESIDENTIAL AREA19642 SF LEVEL 34BR4BA18RESIDENTIAL AREA23538 SF LEVEL 44BR4BA18RESIDENTIAL AREA23550 SF LEVEL 54BR4BA17RESIDENTIAL AREA22198 SF 4BR4BA: 68 88928 SF 5BR5BA LEVEL 25BR5BA6RESIDENTIAL AREA16175 SF LEVEL 35BR5BA6RESIDENTIAL AREA9332 SF LEVEL 45BR5BA5RESIDENTIAL AREA7746 SF LEVEL 55BR5BA5RESIDENTIAL AREA7754 SF 5BR5BA: 22 41007 SF ST LEVEL 2ST 7RESIDENTIAL AREA2857 SF LEVEL 3ST 7RESIDENTIAL AREA2866 SF LEVEL 4ST 7RESIDENTIAL AREA2865 SF LEVEL 5ST 7RESIDENTIAL AREA2864 SF ST: 28 11452 SF Grand total: 180 185646 SF Area Summary (Gross Building) UNITS - BY LEVEL LevelUnit TypeCountCAV Area Type Area LEVEL 2 LEVEL 21BR1BA4RESIDENTIAL AREA2047 SF LEVEL 22BR2BA9RESIDENTIAL AREA7234 SF LEVEL 24BR4BA15RESIDENTIAL AREA19642 SF LEVEL 25BR5BA6RESIDENTIAL AREA16175 SF LEVEL 2ST 7RESIDENTIAL AREA2857 SF LEVEL 2: 41 47955 SF LEVEL 3 LEVEL 31BR1BA5RESIDENTIAL AREA2543 SF LEVEL 32BR2BA10RESIDENTIAL AREA8059 SF LEVEL 34BR4BA18RESIDENTIAL AREA23538 SF LEVEL 35BR5BA6RESIDENTIAL AREA9332 SF LEVEL 3ST 7RESIDENTIAL AREA2866 SF LEVEL 3: 46 46338 SF LEVEL 4 LEVEL 41BR1BA5RESIDENTIAL AREA2543 SF LEVEL 42BR2BA12RESIDENTIAL AREA9647 SF LEVEL 44BR4BA18RESIDENTIAL
LEVEL
SF LEVEL
7RESIDENTIAL AREA2865 SF LEVEL 4: 47 46351 SF LEVEL
LEVEL
SF LEVEL
LEVEL
SF LEVEL
SF LEVEL
AREA2864 SF LEVEL 5: 46 45002 SF Grand total: 180 185646 SF Area Summary (Gross Building) UNITS BY UNIT TYPE LevelUnit TypeCountCAV Area Type Area 1BR1BA LEVEL 21BR1BA4RESIDENTIAL AREA2047 SF LEVEL 31BR1BA5RESIDENTIAL AREA2543 SF LEVEL 41BR1BA5RESIDENTIAL AREA2543 SF LEVEL 51BR1BA5RESIDENTIAL AREA2542 SF 1BR1BA: 19 9675 SF 2BR2BA LEVEL 22BR2BA9RESIDENTIAL AREA7234 SF LEVEL 32BR2BA10RESIDENTIAL AREA8059 SF LEVEL 42BR2BA12RESIDENTIAL AREA9647 SF LEVEL 52BR2BA12RESIDENTIAL AREA9644 SF 2BR2BA: 43 34583 SF 4BR4BA LEVEL 24BR4BA15RESIDENTIAL AREA19642 SF LEVEL 34BR4BA18RESIDENTIAL AREA23538 SF LEVEL 44BR4BA18RESIDENTIAL AREA23550 SF LEVEL 54BR4BA17RESIDENTIAL AREA22198 SF 4BR4BA: 68 88928 SF 5BR5BA LEVEL 25BR5BA6RESIDENTIAL AREA16175 SF LEVEL 35BR5BA6RESIDENTIAL AREA9332 SF LEVEL 45BR5BA5RESIDENTIAL AREA7746 SF LEVEL 55BR5BA5RESIDENTIAL AREA7754 SF 5BR5BA: 22 41007 SF ST LEVEL 2ST 7RESIDENTIAL AREA2857 SF LEVEL 3ST 7RESIDENTIAL AREA2866 SF LEVEL 4ST 7RESIDENTIAL AREA2865 SF LEVEL 5ST 7RESIDENTIAL AREA2864 SF ST: 28 11452 SF Grand total: 180 185646 SF Area Summary (Gross Building) UNITS - BY LEVEL LevelUnit TypeCountCAV Area Type Area LEVEL 2 LEVEL 21BR1BA4RESIDENTIAL AREA2047 SF LEVEL 22BR2BA9RESIDENTIAL AREA7234 SF LEVEL 24BR4BA15RESIDENTIAL AREA19642 SF LEVEL 25BR5BA6RESIDENTIAL AREA16175 SF LEVEL 2ST 7RESIDENTIAL AREA2857 SF LEVEL 2: 41 47955 SF LEVEL 3 LEVEL 31BR1BA5RESIDENTIAL AREA2543 SF LEVEL 32BR2BA10RESIDENTIAL AREA8059 SF LEVEL 34BR4BA18RESIDENTIAL AREA23538 SF LEVEL 35BR5BA6RESIDENTIAL AREA9332 SF LEVEL 3ST 7RESIDENTIAL AREA2866 SF LEVEL 3: 46 46338 SF LEVEL 4 LEVEL 41BR1BA5RESIDENTIAL AREA2543 SF LEVEL 42BR2BA12RESIDENTIAL AREA9647 SF LEVEL 44BR4BA18RESIDENTIAL AREA23550 SF LEVEL 45BR5BA5RESIDENTIAL AREA7746 SF LEVEL 4ST 7RESIDENTIAL AREA2865 SF LEVEL 4: 47 46351 SF LEVEL 5 LEVEL 51BR1BA5RESIDENTIAL AREA2542 SF LEVEL 52BR2BA12RESIDENTIAL AREA9644 SF LEVEL 54BR4BA17RESIDENTIAL AREA22198 SF LEVEL 55BR5BA5RESIDENTIAL AREA7754 SF LEVEL 5ST 7RESIDENTIAL AREA2864 SF LEVEL 5: 46 45002 SF Grand total: 180 185646 SF Studio 28 units (15%) 1 Bedroom 19 units (10%) 2 Bedroom 43 units (24%) 4 Bedroom 68 units (37%) 5 Bedroom 22 units (12%) 90 units (50%) 90 units (50%)
AREA23550 SF
45BR5BA5RESIDENTIAL AREA7746
4ST
5
51BR1BA5RESIDENTIAL AREA2542
52BR2BA12RESIDENTIAL AREA9644 SF
54BR4BA17RESIDENTIAL AREA22198
55BR5BA5RESIDENTIAL AREA7754
5ST 7RESIDENTIAL

EXECUTION:

Responding to the neighborhood’s need to activate the street with a vibrant pedestrian experience, elements such as glass storefronts for retail frontage, sunshades and a playful palette of industrial materials are introduced.

Corrugated metal panels and roll-up doors represent the character of the existing neighborhood structures.

With a wood framed construction over a concrete podium, the predominant exterior cladding system, fiber cement panels, enables us to provide contrasting colors and textures. Embracing the “light vs. dark” schemes, varying applications of perforated metal screen along the building’s base allows for free air ventilation for the ground level parking garage.

RESPONSIBILITIES:

1. Developed full documantation set of Schematic Design, Design Development, Construction Documents, from initial conceptual sketches to the approved permit documents.

2. Incorporated revisions to addendum documents, IFC set and Plan check comments to ensure codes and regulation complience.

3. Collaborated closely with university administrators and students to ensure project alignment with specific needs of the student community and prepared presentations of rezone planning application, City Council Hearing and Neighborhood meeting.

4. Prepared Area Matrix, Open Space Calculations, Egress, Occupancy, Fire Seperation Diagrams, Accessibility Plans, Exterior material matrix and Schedules.

5. Created Interior Partition type details, Exterior wall types, Interior wood framing Head and Base details, Fire Wall and Fire resistance rating details.

6. Successfully navigated and responded to Request for Information (RFI) and Submittals during the construction administration phase, ensuring smooth project progression and utilizing Newforma for efficient project management.

LOBBY LEVEL EL: 100' - 0" T/ ROOF EL: 156' - 8" L.P. LEVEL 2 EL: 114' - 0" ESTABLISHED GRADE EL: 96' - 6 1/4" LEVEL 3 EL: 125' - 0" LEVEL 4 EL: 135' - 0" LEVEL 5 EL: 145' - 0" PARKING LEVEL EL: 99' - 0" MAXIMUM HEIGHT OF COPING EL: 161' - 6 1/4" L.P. T/ PLATE @ LEVEL 5 EL: 153' - 10" L.P. BASE FLOOD ELEVATION EL: 97' - 10 3/4" 4' 10 1/4" 2' 10" 8' 10" 10' 0" 10' 0" 11' 0" 14' 0" 3' 5 3/4" 8 7/8" 2' 2" 7' 10" 2' 2" 7' 10" 2' 2" 3' 0" 5'10" 2' 2" 14' 0" A4.10 A4.10 Sim A4.30 Sim A4.30 Sim A4.20 Sim A4.20 Sim A4.30 Sim A4.20 Sim A4.20 Sim A4.30 Sim A4.20 Sim A4.20 Sim 4BR-C2 U201 4BR-C2 U301 4BR-C2 U401 4BR-C2 U501 CONTINUOUS CONCRETE FOOTING, SEE STRUCTURAL DWGS FOUNDATION AND FOOTING BEYOND, SEE STRUCTURAL DWGS LOBBY LEVEL EL: 100' - 0" T/ ROOF EL: 156' - 8" L.P. LEVEL 2 EL: 114' - 0" ESTABLISHED GRADE EL: 96' - 6 1/4" LEVEL 3 EL: 125' - 0" LEVEL 4 EL: 135' - 0" LEVEL 5 EL: 145' - 0" PARKING LEVEL EL: 99' - 0" MAXIMUM HEIGHT OF COPING EL: 161' - 6 1/4" L.P. T/ PLATE @ LEVEL 5 EL: 153' - 10" L.P. BASE FLOOD ELEVATION EL: 97' - 10 3/4" 4' 10 1/4" 2' 10" 8' 10" 10' 0" 10' 0" 11' 0" 14' 0" 3' 5 3/4" CONTINUOUS CONCRETE FOOTING, SEE STRUCTURAL DWGS FOUNDATION AND FOOTING BEYOND, SEE STRUCTURAL DWGS Drawn By:Checked By: Project Number: Sheet © 2021 Solomon Cordwell Buenz EXTERIOR WALL SECTIONS 917 S LUSK ST BOISE, ID 83706 UNCOMMON BOISE | STUDENT LIVING A3.30 BB MP/TS 2021024 NO.DATE DESCRIPTION 511/19/2021ISSUED FOR DESIGN DEVELOPMENT 601/12/2022ISSUED FOR GMP 904/01/2022ISSUED FOR BUILDING PERMIT LOBBY LEVEL EL: 100' - 0" T/ ROOF EL: 156' - 8" L.P. LEVEL 2 EL: 114' - 0" ESTABLISHED GRADE EL: 96' - 6 1/4" LEVEL 3 EL: 125' - 0" LEVEL 4 EL: 135' - 0" LEVEL 5 EL: 145' - 0" PARKING LEVEL EL: 99' - 0" T/ PLATE @ LEVEL 5 EL: 153' - 10" L.P. BASE FLOOD ELEVATION EL: 97' - 10 3/4" 4' 10 1/4" 2' 10" 8' 10" 10' 0" 10' 0" 11' 0" 14'0" 3' 5 3/4" 2' 2" 7' 10" 2' 2" 7' 10" 2' 2" 3' 0" 5' 10" 2' 2" 14'0" A4.10 Sim A4.30 Sim A4.30 Sim A4.20 Sim A4.20 Sim A4.30 Sim A4.20 Sim A4.20 Sim A4.30 Sim A4.20 Sim A4.20 Sim 4BR-C2 U201 4BR-C2 U301 4BR-C2 U401 4BR-C2 U501 CONTINUOUS CONCRETE FOOTING, SEE STRUCTURAL DWGS FOUNDATION AND FOOTING BEYOND, SEE STRUCTURAL DWGS LOBBY LEVEL EL: 100' - 0" T/ ROOF EL: 156' - 8" L.P. LEVEL 2 EL: 114' - 0" ESTABLISHED GRADE EL: 96' - 6 1/4" LEVEL 3 EL: 125' - 0" LEVEL 4 EL: 135' - 0" LEVEL 5 EL: 145' - 0" PARKING LEVEL EL: 99' - 0" T/ PLATE @ LEVEL 5 EL: 153' - 10" L.P. BASE FLOOD ELEVATION EL: 97' - 10 3/4" 4'10 1/4" 2' 10" 8' 10" 10' 0" 10' 0" 11' 0" 14'0" 3' 5 3/4" CONTINUOUS CONCRETE FOOTING, SEE STRUCTURAL DWGS FOUNDATION AND FOOTING BEYOND, SEE STRUCTURAL DWGS Drawn By:Checked By: Project Number: Sheet Number: © 2021 Solomon Cordwell Buenz EXTERIOR WALL SECTIONS 917 S LUSK ST BOISE, ID 83706 UNCOMMON BOISE | STUDENT LIVING A3.30 BB MP/TS 2021024 SCALE:3/8" = 1'-0" 1 EXTERIOR WALL SECTION -EAST -EAST NO.DATE DESCRIPTION 511/19/2021ISSUED FOR DESIGN DEVELOPMENT 601/12/2022ISSUED FOR GMP 904/01/2022ISSUED FOR BUILDING PERMIT ALIGN LEVEL 3,4,&5 T.O. GYPCRETE LEVEL 3-5, TYP. T.O. GYPCRETE ALIGN LEVEL 4 T.O. PLATE LEVEL 5 T.O. GYPCRETE ROOF T.O. PLYWOOD LEVEL 5 T.O. PLATE ROOF T.O. PLATE PARAPET T.O. PLATE PARAPET T.O. PLATE 1' 6" 3/4" 1/2" 5/8" 1/2" E-FC-01 A8.06 E-FC-01 A8.06 FA-14 A8.05 07 2726 HIGH TEMP VAPOR PERMEABLE SELF ADHERED SHEET AIR BARRIER 07 4646 FIBER CEMENT TRIM 07 9200 SEALANT AND BACKER ROD-JS 1/2" E-FC-01 A8.06 E-FC-01 A8.06 FA-14 A8.05 07 2726 HIGH TEMP VAPOR PERMEABLE SELF ADHERED SHEET AIR BARRIER 07 4646 FIBER CEMENT TRIM 07 9200 SEALANT AND BACKER ROD-JS PROVIDE CONTINUOUS SOLID BLOCKING BETWEEN TOP CHORDS OF TRUSSES RA-13 A8.05 1/2" 6" E-FC-03 A8.06 E-FC-01 A8.06 07 2726 HIGH TEMP VAPOR PERMEABLE SELF ADHERED SHEET AIR BARRIER 07 4646 FIBER CEMENT TRIM 07 9200 SEALANT AND BACKER ROD-JS E-FC-02 A8.06 E-FC-01 A8.06 1/2" RA-11 A8.05 07 2726 HIGH TEMP VAPOR PERMEABLE SELF ADHERED SHEET AIR BARRIER 07 4646 FIBER CEMENT TRIM 07 9200 SEALANT AND BACKER ROD-JS 07 2100 CLOSED-CELL POLYURETHANE FOAM INSULATION - SPRAYED 06 1053 WOOD BLOCKING 1' 0" 07 2100 CLOSED-CELL POLYURETHANE FOAM INSULATION - SPRAYE WOOD BLOCKING 06 1053 WOOD BLOCKING 06 1053 EXTERIOR EXTERIOR TERRACE SIDE E-FC-03 A8.06 FURRING STRIP 07 4646 FIBER CEMENT PANELS PER MANF. RECS PAN HEAD FASTENERS SPACED PER MANF RECS. PER MANF. RECS 07 5400 SINGLE PLY MEMBRANE ROOFING - SPMR 6" MIN, 32" MAX 11" 1 1/2" 4 3/4" 3/4" 3" MIN, 6" MAX 3 3/4" 1 4 SLOPE 07 7100 E-MTL-07 SHEET ALUMINUM COPING - RS 3 1/4" MIN, 12" MAX 6 1/4" 07 5400 SINGLE PLY MEMBRANE ROOFING - SPMR 06 1053 WOOD BLOCKING 07 9200 SEALANT AND BACKER ROD-JS 07 7100 E-MTL-07 SHEET ALUMINUM COPING - RS 1/4" MIN, 12" MAX 6 1/4" 07 6500 STAINLESS STEEL END DAM-FF 07 9200 SEALANT AND BACKER ROD-JS 07 9200 SEALANT AND BACKER ROD-JS 08 4212 THERMALLY BROKEN ALUMINUM STOREFRONT SYSTEM 07 6500 FLEXIBLE FLASHING SILL FLASHING FOR TYPICAL LAYOUT SEE 15 A4.83 S O TAT E O F I DAH LICENSE D A RCHITECT CHRISTOPHER T. PEMBERTON AR-986387 DATE SIGNATURE SCALE: 3" 1'-0" 2 FIB. CEM. PANEL WALL AT PARA. FLOOR TRUSS SCALE: 3" 1'-0" 3 FIB. CEM. PANEL WALL AT PERP. FLOOR TRUSS SCALE:3" = 1'-0" FIB. CEM. PANEL AT TERRACE PARAPET SCALE: 3" = 1'-0" 4 FIB. CEM PANEL WALL AT ROOF -LOW POINT HIGH POINT SCALE: 3" = 1'-0" 7 FIB CEM PANEL PARAPET TERRACE COPING G NO.DATE DESCRIPTION 511/19/2021ISSUED FOR DESIGN DEVELOPMENT 601/12/2022ISSUED FOR GMP 904/01/2022ISSUED FOR BUILDING PERMIT E-CON-01 INTERIOR E-CON-02 @ 12" @ 18" VAR 6", 12 E-CON-03 @ 6" E-CON-04 @ 24" E-CON-05 @ 30" E-CON-06 @ 8" MT. PANEL -GROUND LEVEL SCALE: 3" = 1'-0" E-MT-01 INTERIOR GYPSUM BOARD 09 2900 COLD FORMED METAL FRAMING 05 4000 @ 6" Metal Stud 5/8" VARIES 6", 4" 5/8" EXTERIOR INTERIOR E-VB-03 SELF ADHERED SHEET MEMBRANE AIR BARRIER 07 2727 E-VB-05 SELF ADHERED SHEET MEMBRANE FLASHING 07 2727 EXTERIOR GYPSUM SHEATHING 06 1600 COLD FORMED METAL Z GIRT 05 4000 NOTE: NOT SHOWN IS GALVANIZED STEEL THROUGH-WALL FLASHING AT EVERY FLOOR LEVEL 07 2100 FIBERGLASS BATT INSULATIONUNFACED R-21 07 2600 CONTINUOUS MIL VAPOR RETARDER 07 4214 SHEET METAL WALL PANEL RIBBED METAL PANEL -1HR SCALE: 3" = 1'-0" E-MT-02 IBC Table 721.1(2) Item # 16-1.3 5/8" 1/2" 1/2" EXTERIOR INTERIOR 09 2900 GYPSUM BOARD 06 1600 GLASS-MAT GYPSUM SHEATHING 07 2726 FACTORY INTEGRATED AIR AND WATER RESISTIVE BARRIER 07 4214 SHEET METAL WALL PANEL VERTICAL GIRT 07 4214 SHEET METAL WALL PANEL NOTE: NOT SHOWN IS GALVANIZED STEEL THROUGH-WALL FLASHING AT EVERY FLOOR LEVEL 07 2100 FIBERGLASS BATT INSULATIONUNFACED R-21 07 2600 CONTINUOUS 6 MIL VAPOR RETARDER FIBER CEMENT PANEL -1HR SCALE: 3" 1'-0" E-FC-01 INTERIOR IBC Table 721.1(2) Item # 16-1.3 5 1/2" EXTERIOR 09 2900 GYPSUM BOARD 07 2726 FACTORY INTEGRATED AIR AND WATER RESISTIVE BARRIER 1/2" 07 4646 FIBER CEMENT PANELS PER MANF. RECS PAN HEAD FASTENERS SPACED PER MANF RECS. 06 1000 WOOD STUD FRAMING 07 4646 3/4" TREATED WOOD FURRING STRIP 07 4646 FIBER CEMENT TRIM 07 6500 EPDM FLASHING NOTE: NOT SHOWN IS THROUGH-WALL FLASHING AT EVERY FLOOR LEVEL 07 2100 FIBERGLASS BATT INSULATIONUNFACED R-21 07 2600 CONTINUOUS 6 MIL VAPOR RETARDER 06 1600 GLASS-MAT GYPSUM SHEATHING FIBER CEMENT PANEL-ROOF SCALE: 3" 1'-0" E-FC-02 5 1/2" EXTERIOR INTERIOR 06 1600 GLASS-MAT GYPSUM SHEATHING 07 2726 FACTORY INTEGRATED AIR AND WATER RESISTIVE BARRIER 1/2" 07 4646 FIBER CEMENT PANELS PER MANF. RECS PAN HEAD FASTENERS SPACED PER MANF RECS. 07 5400 SINGLE PLY MEMBRANE ROOFING - SPMR 06 1000 WOOD STUD FRAMING IBC Table 721.1(2) Item # 16-1.3 07 4646 3/4" TREATED WOOD FURRING STRIP 07 4646 FIBER CEMENT TRIM 07 6500 EPDM FLASHING NOTE: NOT SHOWN IS THROUGH-WALL FLASHING AT EVERY FLOOR LEVEL 07 2100 FIBERGLASS BATT INSULATIONUNFACED R-21 06 1600 GLASS-MAT GYPSUM SHEATHING FIBER CEMENT PANEL-TERRACE SCALE: 3" 1'-0" E-FC-03 IBC Table 721.1(2) Item # 16-1.3 EXTERIOR 07 4646 FIBER CEMENT PANELS 07 6500 EPDM FLASHING TERRACE FIBER CEMENT PANEL SCALE: 3" 1'-0" E-FC-04 NON-RATED EXTERIOR PAN HEAD FASTENERS SPACED PER MANF RECS. INTERIOR 2" 6" 09 2900 GYPSUM BOARD 06 1600 GLASS-MAT GYPSUM SHEATHING 07 2100 XPS FOAM BOARD INSULATIONEXTERIOR WALL 07 2726 VAPOR PERMEABLE SELF ADHERED SHEET AIR BARRIER 1/2" 07 4646 FIBER CEMENT PANELS 07 4646 FIBER CEMENT TRIM 07 6500 EPDM FLASHING NOTE: NOT SHOWN IS THROUGH-WALL FLASHING AT EVERY FLOOR LEVEL 07 2100 FIBERGLASS BATT INSULATIONUNFACED R-21 07 2600 CONTINUOUS 6 MIL VAPOR RETARDER E-FC-05 GARAGE UNCONDITIONED SPACE SCALE: 3" = 1'-0" E-MT-01 METAL PANEL -1HR @ ROOF 03 IBC Table 721.1(2) Item # 16-1.3 1/2" EXTERIOR ROOF 06 1600 GLASS-MAT GYPSUM SHEATHING 07 2100 FIBERGLASS BATT INSULATIONUNFACED 06 1600 GLASS-MAT GYPSUM SHEATHING 07 2726 FACTORY INTEGRATED AIR AND WATER RESISTIVE BARRIER 07 4214 SHEET METAL WALL PANEL VERTICAL GIRT 07 4214 SHEET METAL WALL PANEL 07 5400 SINGLE PLY MEMBRANE ROOFING - SPMR R-21 NOTE: NOT SHOWN IS GALVANIZED STEEL THROUGH-WALL FLASHING AT EVERY FLOOR LEVEL METAL PANEL - GROUND LEVEL SCALE: 3" = 1'-0" E-MT-01 INTERIOR GYPSUM BOARD 09 2900 @ 6" Metal Stud -Unconditioned Spaces EXTERIOR GARAGE UNCONDITION SPACE NOTE: NOT SHOWN IS GALVANIZED STEEL THROUGH-WALL FLASHING AT EVERY FLOOR LEVEL PAINTED CMU SCALE: 3" = 1'-0" E-CM-01 EXTERIOR INTERIOR 04 2200 CMU CONCRETE WATER REPELLENT 07 1900 FIBER CEMENT PANEL -CMU SCALE: 3" = 1'-0" E-CM-02 EXTERIOR INTERIOR 04 2200 CMU 1/2" 07 4646 FIBER CEMENT PANELS PER MANF. RECS PAN HEAD FASTENERS SPACED PER MANF RECS. 07 4646 3/4" TREATED WOOD FURRING STRIP 07 4646 FIBER CEMENT TRIM 07 6500 EPDM FLASHING 07 2726 VAPOR PERMEABLE SELF ADHERED SHEET AIR BARRIER METAL PANEL -CMU SCALE: 3" = 1'-0" E-CM-03 INTERIOR 04 2200 CMU 07 4214 SHEET METAL WALL PANEL VERTICAL GIRT 07 4214 SHEET METAL WALL PANEL 07 2726 VAPOR PERMEABLE SELF ADHERED SHEET AIR BARRIER PARKING GARAGEGROUND LEVEL SCALE: 3" = 1'-0" E-GP-01 COLD FORMED METAL FRAMING 05 4000 @ 6" Metal Stud 1/2" VARIES 6", 4" 5/8" EXTERIOR INTERIOR GARAGE UNCONDITIONED SPACE 06 1600 GLASS-MAT GYPSUM SHEATHING 06 1600 GLASS-MAT GYPSUM SHEATHING PARKING GARAGEGROUND LEVEL SCALE: 3" = 1'-0" E-GP-02 INTERIOR GYPSUM BOARD 09 2900 COLD FORMED METAL FRAMING 05 4000 @ 6" Metal Stud 5/8" VARIES 6", 4" 5/8" EXTERIOR INTERIOR EXTERIOR GYPSUM SHEATHING 06 1600 ELEVATOR WALL AT ROOF SCALE: 3" = 1'-0" E-EL-01 ELEVATOR SHAFT ROOF IBC Table 721.1(2) Item # 16-1.3 E INTERIOR E E E E E MT. PANEL -GROUND LEVEL SCALE: 3" = 1'-0" E-MT-01 INTERIOR GYPSUM BOARD 09 2900 COLD FORMED METAL FRAMING 05 4000 @ 6" Metal Stud 5/8" VARIES 6", 4" 5/8" EXTERIOR INTERIOR E-VB-03 SELF ADHERED SHEET MEMBRANE AIR BARRIER 07 2727 E-VB-05 SELF ADHERED SHEET MEMBRANE FLASHING 07 2727 EXTERIOR GYPSUM SHEATHING 06 1600 COLD FORMED METAL Z GIRT 05 4000 NOTE: NOT SHOWN IS GALVANIZED STEEL THROUGH-WALL FLASHING AT EVERY FLOOR LEVEL 07 2100 FIBERGLASS BATT INSULATIONUNFACED R-21 07 2600 CONTINUOUS 6 MIL VAPOR RETARDER 07 4214 SHEET METAL WALL PANEL RIBBED METAL PANEL -1HR SCALE: 3" = 1'-0" E-MT-02 IBC Table 721.1(2) Item # 16-1.3 5/8" 1/2" 1/2" EXTERIOR INTERIOR 09 2900 GYPSUM BOARD 06 1600 GLASS-MAT GYPSUM SHEATHING 07 2726 FACTORY INTEGRATED AIR AND WATER RESISTIVE BARRIER 07 4214 SHEET METAL WALL PANEL VERTICAL GIRT 07 4214 SHEET METAL WALL PANEL NOTE: NOT SHOWN IS GALVANIZED STEEL THROUGH-WALL FLASHING AT EVERY FLOOR LEVEL 07 2100 FIBERGLASS BATT INSULATIONUNFACED R-21 07 2600 CONTINUOUS MIL VAPOR RETARDER FIBER CEMENT PANEL -1HR SCALE: 3" = 1'-0" E-FC-01 INTERIOR IBC Table 721.1(2) Item 16-1.3 1/2" EXTERIOR 09 2900 GYPSUM BOARD 07 2726 FACTORY INTEGRATED AIR AND WATER RESISTIVE BARRIER 1/2" 07 4646 FIBER CEMENT PANELS PER MANF. RECS PAN HEAD FASTENERS SPACED PER MANF RECS. 06 1000 WOOD STUD FRAMING 07 4646 3/4" TREATED WOOD FURRING STRIP 07 4646 FIBER CEMENT TRIM 07 6500 EPDM FLASHING NOTE: NOT SHOWN IS THROUGH-WALL FLASHING AT EVERY FLOOR LEVEL 07 2100 FIBERGLASS BATT INSULATIONUNFACED R-21 07 2600 CONTINUOUS 6 MIL VAPOR RETARDER 06 1600 GLASS-MAT GYPSUM SHEATHING FIBER CEMENT PANEL-ROOF SCALE: 3" = 1'-0" E-FC-02 1/2" EXTERIOR INTERIOR 06 1600 GLASS-MAT GYPSUM SHEATHING 07 2726 FACTORY INTEGRATED AIR AND WATER RESISTIVE BARRIER 1/2" 07 4646 FIBER CEMENT PANELS PER MANF. RECS PAN HEAD FASTENERS SPACED PER MANF RECS. 07 5400 SINGLE PLY MEMBRANE ROOFING - SPMR 06 1000 WOOD STUD FRAMING IBC Table 721.1(2) Item 16-1.3 07 4646 3/4" TREATED WOOD FURRING STRIP 07 4646 FIBER CEMENT TRIM 07 6500 EPDM FLASHING NOTE: NOT SHOWN IS THROUGH-WALL FLASHING AT EVERY FLOOR LEVEL 07 2100 FIBERGLASS BATT INSULATIONUNFACED R-21 06 1600 GLASS-MAT GYPSUM SHEATHING FIBER CEMENT PANEL-TERRACE SCALE: 3" = 1'-0" E-FC-03 IBC Table 721.1(2) Item # 16-1.3 EXTERIOR 07 4646 FIBER CEMENT PANELS 07 6500 EPDM FLASHING TERRACE FIBER CEMENT PANEL SCALE: 3" = 1'-0" E-FC-04 NON-RATED EXTERIOR PAN HEAD FASTENERS SPACED PER MANF RECS. INTERIOR 2" 6" 09 2900 GYPSUM BOARD 06 1600 GLASS-MAT GYPSUM SHEATHING 07 2100 XPS FOAM BOARD INSULATIONEXTERIOR WALL 07 2726 VAPOR PERMEABLE SELF ADHERED SHEET AIR BARRIER 1/2" 07 4646 FIBER CEMENT PANELS 07 4646 FIBER CEMENT TRIM 07 6500 EPDM FLASHING NOTE: NOT SHOWN IS THROUGH-WALL FLASHING AT EVERY FLOOR LEVEL 07 2100 FIBERGLASS BATT INSULATIONUNFACED R-21 07 2600 CONTINUOUS 6 MIL VAPOR RETARDER SCALE: 3" = 1'-0" E-MT-01 METAL PANEL -1HR @ ROOF 03 IBC Table 721.1(2) Item # 16-1.3 1/2" EXTERIOR ROOF 06 1600 GLASS-MAT GYPSUM SHEATHING 07 2100 FIBERGLASS BATT INSULATIONUNFACED 06 1600 GLASS-MAT GYPSUM SHEATHING 07 2726 FACTORY INTEGRATED AIR AND WATER RESISTIVE BARRIER 07 4214 SHEET METAL WALL PANEL VERTICAL GIRT 07 4214 SHEET METAL WALL PANEL 07 5400 SINGLE PLY MEMBRANE ROOFING - SPMR R-21 NOTE: NOT SHOWN IS GALVANIZED STEEL THROUGH-WALL FLASHING AT EVERY FLOOR LEVEL METAL PANEL - GROUND LEVEL SCALE: 3" = 1'-0" E-MT-01 INTERIOR GYPSUM BOARD 09 2900 @ 6" Metal Stud -Unconditioned Spaces EXTERIOR GARAGE UNCONDITION SPACE NOTE: NOT SHOWN IS GALVANIZED STEEL THROUGH-WALL FLASHING AT EVERY FLOOR LEVEL PAINTED CMU SCALE: 3" = 1'-0" E-CM-01 EXTERIOR INTERIOR 04 2200 CMU CONCRETE WATER REPELLENT 07 1900 FIBER CEMENT PANEL -CMU SCALE: 3" = 1'-0" E-CM-02 EXTERIOR INTERIOR 04 2200 CMU 1/2" 07 4646 FIBER CEMENT PANELS PER MANF. RECS PAN HEAD FASTENERS SPACED PER MANF RECS. 07 4646 3/4" TREATED WOOD FURRING STRIP 07 4646 FIBER CEMENT TRIM 07 6500 EPDM FLASHING 07 2726 VAPOR PERMEABLE SELF ADHERED SHEET AIR BARRIER METAL PANEL -CMU SCALE: 3" = 1'-0" E-CM-03 INTERIOR 04 2200 CMU 07 4214 SHEET METAL WALL PANEL VERTICAL GIRT 07 4214 SHEET METAL WALL PANEL 07 2726 VAPOR PERMEABLE SELF ADHERED SHEET AIR BARRIER PARKING GARAGEGROUND LEVEL SCALE: 3" = 1'-0" E-GP-01 COLD FORMED METAL FRAMING 05 4000 @ 6" Metal Stud 1/2" VARIES 6", 4" 5/8" EXTERIOR INTERIOR GARAGE UNCONDITIONED SPACE 06 1600 GLASS-MAT GYPSUM SHEATHING 06 1600 GLASS-MAT GYPSUM SHEATHING PARKING GARAGEGROUND LEVEL SCALE: 3" = 1'-0" E-GP-02 INTERIOR GYPSUM BOARD 09 2900 COLD FORMED METAL FRAMING 05 4000 @ 6" Metal Stud 5/8" VARIES 6", 4" 5/8" EXTERIOR INTERIOR EXTERIOR GYPSUM SHEATHING 06 1600 ELEVATOR WALL AT ROOF SCALE: 3" = 1'-0" E-EL-01 ELEVATOR SHAFT ROOF IBC Table 721.1(2) Item # 16-1.3

PROFESSIONAL EXPERIENCE EDUCATION

Solomon Cordwell Buenz, San Francisco.

Designer Technical 1 | June 2021 - June 2023

- Played a pivotal role in complete architectural design and project development lifecycle of a 700,000 SF, 56-story highrise multifamily residential tower (222 West 2nd Street, LA), from initial concept to the approved construction permit documents.

- Developed detailed floor plans, sections, elevations, and 3D visualizations for 680 units, ensuring efficient use of space and user experience with ADA accessibility, life safety and fire safety requirements for public spaces and private residences.

- Conducted thorough research on local building codes, zoning regulations, and construction materials for the vibrant urban context of downtown LA and Boise, Idaho.

- Collaboratively designed a student housing project of 180-unit mixed use commercial and apartment building with retail and site improvements on a 2.063-acre site located at 917 South Lusk Street, Idaho.

- Collaborated closely with university administrators and students to ensure project alignment with specific needs of the student community and prepared presentations of rezone planning application, City - Council Hearing and Neighborhood meeting.

Successfully navigated and responded to Request for Information (RFI) and Submittals, ensuring smooth project progression using Newforma.

- Collaborated with a team to successfully execute masterplan of Center for Global Engagement (Pomona College) showcasing strong teamwork and coordination skills.

- Established coordination methods to address technical/design issues and ensure seamless integration of structural, MEP, and building systems, while maintaining effective communication with the design team and consultants.

- Mentored and supervised two designer interns, assigning tasks in drafting, research, 3D modeling, coordination, and providing feedback for their professional development.

Amit Upadhye Architects, Arizona.

Architectural Internship | May 2020 -July 2020

- Supported the architectural team in the development of design concepts for Residential and vacation homes, including creating architectural drawings, renderings, and 3D models using Revit and Enscape.

- Conducted site visits and gathered information for the analysis of site conditions and contextual factors for design projects.

- Participated in design discussions and meetings, offering creative input and contributing to the generation of ideas and solutions.

JMA

Design Collaborative, India.

Junior Architect | Jan 2018 - Jan 2019

- As a lead Architect, Spearheaded a team of architects in the design and execution of over 5 large-scale projects, consistently delivering on time and within budget.

- Implemented innovative architectural technologies and design strategies, while maintaining the highest standards of quality.

- Developed efficient space planning and layout solutions, optimizing living spaces, and amenities to foster a vibrant and conducive community environment.

ASU The Design School, Arizona.

Graduate Teaching Assistant, Design Fundamentals II Dec 2020 - May 2021

- Provided guidance, critical feedback, and detailed presentations to 40 students, teaching fundamental design principles through 1:1 discussions.

- Developed critical thinking, drawing, and making skills essential to the design process.

- Evolved an awareness and understanding of relationships between the design disciplines of architecture, landscape architecture, and interior design.

Arizona State University , Arizona.

Master Of Architecture | Aug 2019 - May 2021

Vadodara Design Academy, India.

Bachelor Of Architecture | Aug 2012 - May 2018

Licensed Architect in India.

Council of Architectural Registration Boards Certification (NCARB)

Council of Architecture - India | Credential ID CA/2019/105482 Of Architecture

CREDENTIAL SKILLS

TECHNICAL : Revit, Autocad, Archicad, Rhinoceros 3D, Sketchup, Lumion, Enscape, InDesign, Illustrator, Photoshop, Affinity Suite, Bluebeam, Newforma, MS office, 3D Printing, Laser cutting, Hand drawing, Model making, Sketching

PERSONAL : Leadership , Problem Solving, Critical Thinking, Strategic Planning, Responsible, Team Player, Detail Oriented, Enthusiastic, Dedicated.

“ THE LAP HOUSE” - AMIT UPADHYE ARCHITECTS

Developed structural details, wall sections and building sections in 2D & 3D for the final publication.

PUBLICATION AWARDS

Buckminster Fuller Challenge 2016 - Winner “CHHAT” Architecture Design Competition

Third position in Office Training | May 2018

Second position in Design Thesis Studio | Nov 2017

Vadodara old city presentation published in Times of India & News on World Heritage Day | April 2016

Third position in Green Design studio| May 2016

Second position in Building Construction | May 2013

REFERENCES

Tim Stevens - tim.stevens@scb.com

Principal at Solomon Cordwell Buenz.

Matt Bens - matt.bens@scb.com

Principal at Solomon Cordwell Buenz.

Matt Pietras - matt.pietras@scb.com

Associate Principal at Solomon Cordwell Buenz.

Max Underwood - max.underwood@asu.edu

President’s professor at Arizona State University.

Elena Rocchi - Elena.Rocchi@asu.edu

Program Head & Clinical Associate Professor at Arizona State University.

Amit Upadhye - Amit.Upadhye@asu.edu

Principal Architect at Amit Upadhye Architects and Faculty Assoc KNX at Arizona State University.

Turn static files into dynamic content formats.

Create a flipbook
Issuu converts static files into: digital portfolios, online yearbooks, online catalogs, digital photo albums and more. Sign up and create your flipbook.