Informe Técnico Sustentatorio – sede Callao

Page 1


PROPIETARIO: KOMATSU MITSUI MAQUINARIAS PERU S.A

SERVICIO: INSTRUMENTO DE GESTIÓN AMBIENTAL – INFORME TECNICO SUSTENTATORIO REV. : A

DESCRIPCIÓN: IMPLEMENTACIÓN DE UN NUEVO DINAMÓMETRO EN LA PLANTA CALLAO PÁG. : 2 DE 76

INFORME TÉCNICO SUSTENTATORIO DEL PROYECTO: IMPLEMENTACIÓN DE UN NUEVO

DINAMÓMETRO DE LA PLANTA CALLAO

SUSCRIPCIÓN

Suscriben el presente estudio:

Por la empresa Proponente “Komatsu Mitsui - Maquinarias Perú S.A.”

Por la empresa Consultora Ambiental “Green Planet Strategies & Solutions E.I.R.L.”

Sergio Luis Espinoza Ruffner Representante Legal

Nombres y Apellidos

Lucía Alejandra Chirinos Cornejo

Laura Mercedes Vásquez Mejía Representante Legal

Profesional que suscribe el presente estudio:

Profesión

N° de Registro en Colegio Profesional del Perú1

Ing. Ambiental y de Recursos Naturales CIP N° 165218

Participación

Firma y sello

1El Certificado de Habilitación del profesional se adjunta en el anexo N° 1

Capítulos: 1, 2 y 3

CONTENIDO

1.5

2.1 Descripción del Área de Influencia del proyecto con los componentes del proyecto, aprobado con su IGA, acompañado de un mapa y/o plano.

2.2 Descripción de las actividades y componentes del proyecto que sería modificado, ampliado o a implementar una

2.3

CAPÍTULO 3: PROYECTO DE MODIFICACIÓN,

O

3.4

3.5

3.7

3.8

SERVICIO: INSTRUMENTO DE GESTIÓN AMBIENTAL – INFORME TECNICO SUSTENTATORIO REV. : A

DESCRIPCIÓN: IMPLEMENTACIÓN DE UN NUEVO DINAMÓMETRO EN LA PLANTA CALLAO PÁG. : 4 DE 76

3.9 Presentar información actualizada de los componentes ambientales a ser impactados por la modificación, ampliación o una mejora tecnológica (indicar la fuente de información primaria o secundaria)

3.10 Identificación y evaluación de impactos ambientales

3.11 Interpretación de las matrices ambientales

57

57

67

3.12 Implementación de los planes o programas de manejo ambiental, que conlleven para cada uno de los impactos identificados en la modificación, ampliación o mejora tecnológica, así como las medidas y acciones de seguimiento y control (monitoreo). ........................................................................................70

3.13 Actualización del programa de monitoreo (componente, frecuencia, ubicación, parámetros y norma a cumplir)

3.14 Plan de Minimización y Manejo de Residuos Sólidos

83

83

3.15 Actualización del plan de contingencias para el proyecto de modificación, ampliación o una mejora tecnológica...............................................................................................................................................83

3.16 Plan de cierre a nivel conceptual de las actividades y componentes a modificar, ampliar o a implementar una mejora tecnológica 83

3.17 Conclusiones del ITS 84

ÍNDICE DE ANEXOS

Anexo Nº 1. Documentos de la consultora

Anexo Nº 2. Documentos de la Empresa Proponente

Anexo Nº 3. Planos de la instalación

Anexo Nº 4. Resolución de aprobación

Anexo Nº 5. Plan de Minimización y Manejo de Residuos Sólidos

Anexo Nº 6 Plan de contingencia

Anexo Nº 7 Participación Ciudadana

PROPIETARIO: KOMATSU MITSUI MAQUINARIAS PERU S.A

SERVICIO: INSTRUMENTO DE GESTIÓN AMBIENTAL – INFORME TECNICO SUSTENTATORIO REV. : A

DESCRIPCIÓN: IMPLEMENTACIÓN DE UN NUEVO DINAMÓMETRO EN LA PLANTA CALLAO PÁG. : 5 DE 76

1 CAPITULO I: DESCRIPCIÓN DEL PROYECTO

1.1 Nombre del Proyecto

Informe Técnico Sustentatorio (ITS) del proyecto: “Implementación de un nuevo dinamómetro” en la Planta Callao

1.2 Nombre del Titular o Proponente (Persona Natural o Jurídica)

El predio en estudio se encuentra a nombre de la empresa Komatsu Mitsui Maquinarias Perú S.A. inscrito mediante la Partida Registral N° 02015552 en la Zona Registral N° IX – Sede Lima Actualmente, la razón social denominada como KOMATSU - MITSUI MAQUINARIAS PERU S.A.

Los documentos referidos a este ítem se encuentran en el Anexo N° 02: Documentos de la Empresa

Proponente. A continuación, se presenta un resumen de los datos generales de la empresa proponente.

Tabla 1-1: Datos de la Empresa proponente

Razón Social

Komatsu Mitsui Maquinarias Perú S.A.

RUC 20302241598

Dirección Fiscal Av. Argentina 4453, distrito y provincia constitucional del Callao.

Ubicación del proyecto Av. Argentina 4453, distrito y provincia constitucional del Callao

Actividad Económica CIIU Rev. 4

1.3 Representante Legal

Principal CIIU 4659: Venta por mayor de otros tipos de maquinaria y equipo Secundaria 1-4520: Mantenimiento y reparación de vehículos automotores Secundaria 2-7730: Alquiler

Komatsu - Mitsui Maquinarias Perú S.A. (en adelante KMMP), está debidamente representada por su apoderado el Sr. Sergio Luis Espinoza Ruffner, identificado con Documento Nacional de Identidad N° 43986671, según se indica la Vigencia Poder del Registro de Personas Jurídicas de la Oficina Registral de Lima (Anexo N° 02: Documentos de la Empresa Proponente).

1.4 Datos de la Consultora (profesionales)

La consultora encargada de realizar el presente Informe Técnico Sustentatorio (ITS) es GREEN PLANET STRATEGIES & SOLUTIONS E.I.R.L., empresa debidamente autorizada por la Dirección General de Asuntos Ambientales, del Ministerio de la Producción – PRODUCE, para la elaboración de Estudios de Impacto Ambiental, mediante R.D. 00319-2022-PRODUCE-DGAAMI

En la tabla que se muestra a continuación se brindan los datos de la consultora. Los documentos referidos a este ítem se encuentran en el Anexo N° 01: Registro de la Consultora.

PROPIETARIO: KOMATSU MITSUI MAQUINARIAS

SERVICIO: INSTRUMENTO DE GESTIÓN AMBIENTAL – INFORME TECNICO SUSTENTATORIO REV. : A

DESCRIPCIÓN: IMPLEMENTACIÓN DE UN NUEVO DINAMÓMETRO EN LA PLANTA CALLAO PÁG. : 6 DE 76

Tabla 1-2: Datos de la Consultora

Razón Social Green Planet Strategies & Solutions E.I.R.L.

RUC 20601342325

Resolución emitida por PRODUCE R.D. 319-2022-PRODUCE-DGAAMI

Dirección legal

Av. Vía Colectora Residencial Mz. I Lote. 8 A.H. Juan Pablo II (piso 1), distrito Villa María del Triunfo, provincia y departamento de Lima.

Representante Legal Laura Mercedes Vásquez Mejía

DNI 43483096

Teléfono / e-mail 989713988 / comercial@greepsys.com

1.5 Ubicación (geográfica y política)

Ubicación Geográfica

El proyecto será realizado adentro de las instalaciones de KMMP, ubicado en Av. Argentina N° 4453, distrito y provincia constitucional del Callao, en adelante Planta Callao, que cuenta con un área de 36 656,71 m2 . En el Anexo N° 03 se presenta el plano de ubicación del área del proyecto respectiva.

Tabla 1-3: Ubicación geográfica de la Planta Callao

Ubicación Política

PROPIETARIO: KOMATSU MITSUI MAQUINARIAS PERU S.A

SERVICIO: INSTRUMENTO DE GESTIÓN AMBIENTAL – INFORME TECNICO SUSTENTATORIO REV. : A

DESCRIPCIÓN: IMPLEMENTACIÓN DE UN NUEVO DINAMÓMETRO EN LA PLANTA CALLAO PÁG. : 7 DE 76

Políticamente la planta Callo se ubica en el distrito y provincia constitucional del Callao Sus límites son:

➢ Por el norte: Av. Sayón, AA.HH. Real Felipe, Pevisa Auto Parts S.A.C

➢ Por el sur: Av. Argentina, Urb. Tarapacá y Olva Courier S.A.C.

➢ Por el oeste: La Colonial Fabrica de hilos S.A. y Grifo Primax

➢ Por el este: la Av. Elmer Faucett, Fábrica Eberhardt y Alicorp S.A.

Tabla 1-4: Ubicación geográfica del área del proyecto

Fuente: Komatsu Mitsui Maquinarias Perú S.A. - Google Earth (2024)

1.6 Marco Legal

PROPIETARIO: KOMATSU MITSUI MAQUINARIAS PERU

SERVICIO: INSTRUMENTO DE GESTIÓN AMBIENTAL – INFORME TECNICO SUSTENTATORIO REV. : A

DESCRIPCIÓN: IMPLEMENTACIÓN DE UN NUEVO DINAMÓMETRO EN LA PLANTA CALLAO PÁG. : 8 DE 76

El marco legal aplicable para el Informe Técnico Sustentatorio (ITS), está conformado por un compendio de normas legales que regulan los asuntos ambientales de la actividad de producción en el Perú. Estas normas incluyen regulaciones nacionales y sectoriales para la protección y conservación de los recursos naturales, estándares de calidad ambiental, regulación de procedimientos, entre otros. Las normas incluidas en el presente capítulo, son aquellas que resultan aplicables al desarrollo de las actividades propuestas, al momento de la presentación del Informe Técnico Sustentatorio En la tabla que se muestra a continuación, se presentan las normas legales aplicables al presente Informe Técnico Sustentatorio.

Tabla 1-5: Legislación Ambiental Aplicable

Constitución Política del Perú

Código Penal – Título XIII (D.L. N° 635), modificado en algunos artículos por la Ley que Modifica Diversos Artículos del Código Penal y de la Ley General del Ambiente (Ley N° 29263).

Ley Marco para el Crecimiento de la Inversión Privada (D.L. N° 757 derogado parcialmente)

Ley Nº 28611, Ley General del Ambiente, y sus modificatorias

Ley Nº 28245, Ley Marco del Sistema Nacional de Gestión Ambiental, y modificatoria

Decreto Supremo N° 008-2005-PCM, Reglamento de la Ley Marco del Sistema Nacional de Gestión Ambiental

Ley Nº 27446, Ley del Sistema Nacional de Evaluación del Impacto Ambiental y modificatoria

Poder Ejecutivo

Poder Ejecutivo

Poder Ejecutivo

Poder Legislativo

Poder Ejecutivo

Poder Ejecutivo/PCM

Poder Legislativo

Decreto Supremo Nº 019-2009-MINAM, Reglamento del Sistema Nacional de Evaluación del Impacto Ambiental MINAM

Decreto Supremo N° 054-2013-PCM, Aprueban disposiciones especiales para ejecución de procedimientos administrativos Poder Ejecutivo/PCM

Decreto Supremo N° 017-2015-PRODUCE, Aprueban Reglamento de Gestión Ambiental para la Industria Manufacturera y Comercio Interno; y modificatoria. PRODUCE

Decreto Supremo N° 014-2022-PRODUCE -Aprueban Reglamento de participación ciudadana en la gestión ambiental de la Industria Manufacturera y Comercio Interno PRODUCE

Decreto Supremo N° 012-2024-PRODUCE - Modificación del Reglamento de Gestión Ambiental para la Industria Manufacturera y Comercio Interno, y el Reglamento de Participación Ciudadana en la Gestión Ambiental de la Industria Manufacturera y Comercio Interno.

PRODUCE

Decreto Supremo N° 011-2017-MINAM - Aprueban Estándares de Calidad Ambiental (ECA) para Suelo MINAM

Suelo

SERVICIO: INSTRUMENTO DE GESTIÓN AMBIENTAL – INFORME TECNICO SUSTENTATORIO REV. : A

DESCRIPCIÓN: IMPLEMENTACIÓN DE UN NUEVO DINAMÓMETRO EN LA PLANTA CALLAO PÁG. : 9 DE 76

Residuos Sólidos

Decreto Legislativo N° 1278, Ley de Gestión Integral de Residuos Sólidos, MINAM

Decreto Supremo Nº 014-2017-MINAM, Reglamento de la Ley de Gestión Integral de Residuos Sólidos (D.S. N° 014-2017-MINAM)

Decreto Supremo Nº 001-2022-MINAM, Decreto Supremo que modifica el Reglamento del Decreto Legislativo Nº 1278, Decreto Legislativo que aprueba la Ley de Gestión Integral de Residuos Sólidos, aprobado mediante Decreto Supremo Nº 014-2017-MINAM, y el Reglamento de la Ley Nº 29419, Ley que regula la actividad de los recicladores, aprobado mediante Decreto Supremo Nº 005-2010-MINAM

Decreto Supremo N° 002-2022-VIVIENDA, Aprueban Reglamento de Gestión y Manejo de Residuos Sólidos de la Construcción y Demolición

Elaboración: Green Planet Strategies & Solutions E.I.R.L

1.7 Antecedentes

MINAM

MINAM

VIVIENDA

La empresa KOMATSU MITSUI MAQUINARIAS PERÚ S.A. es propietaria de la planta Callao ubicada Av. Argentina N° 4453, distrito y provincia constitucional del Callao Según la CIIU 4659 Rev. 4, tiene como actividad principal la Venta por mayor de otros tipos de maquinarias y equipos.

KMMP-Planta Callao cuenta con un instrumento de gestión ambiental primigenio Diagnóstico Ambiental Preliminar (DAP) aprobado mediante OFICIO N° 3846-2012-PRODUCE/DVMYPE-I/DGI-DAAI

En el año 2017 KMMP-Planta Callao presenta un Informe Técnico Sustentatorio (ITS) del proyecto “Ampliación de Planta Taller Machine Shop”, el cual fue aprobado mediante R.D. N° 276-2017PRODUCE/DVMYPE-I/DGAAMI.

En el año 2018, KMMP-Planta Callao cumple en presentar su Informe de Identificación de Sitios Contaminados (IISC), evaluado de acuerdo al informe Nº 00000018-2020-PRODUCE/DEAM-cmirandac.

Mediante Oficio N° 793-2020-PRODUCE/DGAAMI, el cual concluye que, al no identificarse la existencia de sitios contaminados, no corresponde pasar a la fase de caracterización.

En el año 2022 KMMP-Planta Callao presentó un Informe Técnico Sustentatorio (ITS) del proyecto “Implementación del nuevo Taller KRCP en la Planta Callao de Komatsu Mitsui” aprobado mediante Resolución Directoral N° 00093-2023-PRODUCE/DGAAMI.

Asimismo, en el mismo año 2023 KMMP-Planta Callao presenta un Informe Técnico Sustentatorio (ITS) del proyecto “Master Plan Infraestructura: Ampliaciones y Remodelaciones Planta Callao”, el cual fue aprobado mediante Resolución Directoral N° 00699-2023-PRODUCE/DGAAM.

SERVICIO: INSTRUMENTO DE GESTIÓN AMBIENTAL – INFORME TECNICO SUSTENTATORIO REV. : A

DESCRIPCIÓN: IMPLEMENTACIÓN DE UN NUEVO DINAMÓMETRO EN LA PLANTA CALLAO PÁG. : 10 DE 76

2 CARACTERÍSTICAS DEL PROYECTO CON IGA APROBADO

2.1 GENERALIDADES

Descripción del Área de Influencia del proyecto con los componentes del proyecto, aprobado con su IGA, acompañado de un mapa y/o plano.

En el presente capítulo se realiza la descripción de las características actuales del área de estudio, con la finalidad de evaluar los posibles impactos en el medio físico, biológico y socio-económico-cultural; para ello se ha tomado como referencia:

• Las características de la zona, enfocándose en la dirección del viento.

• Censo Nacional realizado en el año 2017 por el INEI (Instituto Nacional de Estadística en los Censos Nacionales), el XII de Población, VII de Vivienda y III de Comunidades Indígenas.

2.2

ÁREA DE INFLUENCIA AMBIENTAL

Área de Influencia Ambiental

A través del presente ITS se propone mantener el Área de Influencia Ambiental establecida en el Diagnóstico Ambiental Preliminar (DAP) de la Planta Callao (aprobada mediante Oficio Nº 3846-2012PRODUCE/DVMYPE-I/DGI-DAAI), debido a que se considera que el proyecto no generará impactos ambientales negativos adicionales a los ya declarados anteriormente.

Área de Influencia Directa (AID)

El área de influencia directa, es un elipsoide que circunscribe a la planta cuyo radio mayor mide 0,39 km en dirección Nor Este (NE) y cuenta con un área de 0,48 km2 , comprende por el oeste desde las instalaciones de La Colonial Fábrica de Hilos S.A., por el este hasta parte de la fábrica Alicorp S.A., por el norte hasta la calle Yungay, por el sur hasta la calle Agua Santa.

Área de Influencia Indirecta (AII)

El área de influencia indirecta, es un elipsoide que circunscribe a la planta Callao y al AID, cuyo radio mayor mide 0,45 km en dirección Este Nor Este (ENE) y cuenta con un área de 0,64 km2 , siendo los límites por el norte la calle Piura, por el oeste la empresa Innova Andina S.A., por el este Alicorp S.A., por el sur la calle Pisagua.

PROPIETARIO: KOMATSU MITSUI MAQUINARIAS PERU S.A

SERVICIO: INSTRUMENTO DE GESTIÓN AMBIENTAL – INFORME TECNICO SUSTENTATORIO REV. : A

DESCRIPCIÓN: IMPLEMENTACIÓN DE UN NUEVO DINAMÓMETRO EN LA PLANTA CALLAO PÁG. : 11 DE 76

Tabla 2-1: Área de Influencia Ambiental de la Planta Callao

Descripción

Área de Influencia Directa (AID)

Área de Influencia Indirecta (AII)

0,45 km 0,39 km

Leyenda

km2

km2

Fuente: Diagnóstico Ambiental Preliminar (DAP) aprobado mediante Oficio Nº 03846-2012-PRODUCE/DVMYPE-I/DGI-DAAI.

Cabe señalar que para el presente estudio se consideró los mismos componentes ambientales (Física, Biológica y Social) tomados en cuenta en el DAP de la Planta Callao, sin embargo, la información considerada de cada uno de estos componentes es actualizada a la fecha de elaboración del presente ITS

2.3 MEDIO FÍSICO

En este ítem se presentan las características actuales de las áreas de influencia de la planta Callao, considerando que el presente ITS es parte de la mencionada planta. Esta caracterización comprende aspectos relacionados a las condiciones atmosféricas (clima), a la topografía del área (geología, geomorfología y caracterización de suelos), red hídrica (hidrología), entre otros.

PROPIETARIO: KOMATSU MITSUI MAQUINARIAS PERU S.A

SERVICIO: INSTRUMENTO DE GESTIÓN AMBIENTAL – INFORME TECNICO SUSTENTATORIO REV. : A

DESCRIPCIÓN: IMPLEMENTACIÓN DE UN NUEVO DINAMÓMETRO EN LA PLANTA CALLAO PÁG. : 12 DE 76

2.3.1 Climatología y Meteorología

➢ Clasificación Climática

El distrito del Callao se encuentra asentado a una altitud media de 7 m.s.n.m.; según la clasificación

climática de Thornthwaite presenta clima del tipo, E[d] B’1H3 caracterizado por ser un clima semi cálido, desértico, con deficiencia de lluvia en todas las estaciones, con humedad relativa calificada como húmedo. Su precipitación anual es menor a 16 mm.

El clima de la zona está condicionado e influenciado por la configuración topográfica de la zona, el paso de sistemas frontales de baja presión atmosférica y los sistemas de vientos locales como brisa de montaña y de laderas.

LEYENDA

Descripción

Árido, semicálido y húmedo, con deficiencia de lluvias en todas las estaciones

Semiseco, templado y húmedo, con otoño e invierno y primavera seca

Semiseco, semifrío y húmedo, con otoño e invierno y primavera seca

Lluvioso, semifrígido y húmedo, con invierno seco

Codificación

E(d) B´1 H3

C(o,i,p) B´2 H3

C(o,i,p) B´3 H3

B(i) D´ H3

Presencia de nieve Nieve

Fuente: Mapa de clasificación climática del Departamento de Lima. Laboratorio de Sistemas de Información Geográfica –

Tabla 2-2: Mapa de clasificación climática
SENAMHI
KMMP – Planta Callao

PROPIETARIO: KOMATSU MITSUI MAQUINARIAS PERU S.A

SERVICIO: INSTRUMENTO DE GESTIÓN AMBIENTAL – INFORME TECNICO SUSTENTATORIO REV. : A

DESCRIPCIÓN: IMPLEMENTACIÓN DE UN NUEVO DINAMÓMETRO EN LA PLANTA CALLAO PÁG. : 13 DE 76

➢ Características Meteorológicas

Los datos de temperatura fueron obtenidos de la estación meteorológica “Campo de Marte”, la cual es de tipo convencional, ubicada en el distrito de Jesús María y administrada por el Servicio Nacional de Meteorología e Hidrología (SENAMHI). El periodo considerado para la presente evaluación está comprendido entre los años 2019 – 2023

Según lo expuesto en el párrafo anterior, se consideró elegir la Estación meteorológica “Campo de Marte”, la misma que se encuentra a una distancia de 6,58 Km de la planta Callao. En la siguiente tabla se presenta la ubicación y características de la estación meteorológica a utilizar.

Tabla 2-3: Ubicación de la estación meteorológica

Nombre

Este (x) Norte (y)

Altitud (z) Periodo de registro

Campo de Marte 277594,5 8664799,6 133 m.s.n.m. 2019-2023

Fuente: Servicio Nacional de Meteorología e Hidrología del Perú – SENAMHI

Datum: WGS84 / Zona: 18 L

Figura 2-1: Ubicación de la estación meteorológica

Fuente: Google Earth, 2022

6,58 km

➢ Temperatura

PROPIETARIO: KOMATSU

SERVICIO: INSTRUMENTO DE GESTIÓN AMBIENTAL – INFORME TECNICO SUSTENTATORIO REV. : A

DESCRIPCIÓN: IMPLEMENTACIÓN DE UN NUEVO DINAMÓMETRO EN LA PLANTA CALLAO PÁG. : 14 DE 76

El periodo considerado para la presente evaluación está comprendido entre los años 2019 – 2023, donde se observa que la temperatura durante los últimos cinco años está claramente diferenciada: en época de invierno (junio a agosto), donde se registraron temperaturas de hasta 14,61° C (agosto, 2022) y en la época de verano (diciembre a marzo), donde se registró una temperatura máxima de 25,0° C (febrero 2019).

Tabla 2-4:Temperaturas promedio (°C)

Fuente: Estación Campo de Marte - Servicio Nacional de Meteorología e Hidrología del Perú (SENAMHI)

Elaboración: Green Planet Strategies & Solutions E.I.R.L.

➢ Humedad relativa

El valor de la humedad relativa, indica el grado de “saturación” de humedad del aire atmosférico, el cual esta fundamentalmente relacionado a la temperatura del aire.

Para la evaluación de la humedad relativa se tomaron como referencia los datos registrados en la estación meteorológica Campo de Marte de SENAMHI, cuyo promedio de humedad en los cinco años se encuentra entre 82,4 % y 83,9% conforme se muestra en el cuadro siguiente.

Tabla 2-5: Humedad Relativa Promedio (%)

Fuente: Servicio Nacional de Meteorología e Hidrología del Perú - SENAMHI

Elaboración: Green Planet Strategies & Solutions E.I.R.L.

➢ Vientos

Los datos que se consideraron son los proporcionados por la estación meteorológica “Campo de Marte”, perteneciente al Servicio Nacional de Meteorología e Hidrología (SENAMHI), donde se demuestra que los vientos provienen del Sur Suroeste con velocidades promedio de 1,26 a 2,2 m/s; correspondiendo, según la escala de Beaufort, a calma y ventolina.

Tabla 2-6: Dirección predominante y velocidad media del viento

Fuente: Servicio Nacional de Meteorología e Hidrología del Perú – SENAMHI Elaboración: Green Planet Strategies & Solutions E.I.R.L.

PROPIETARIO: KOMATSU MITSUI MAQUINARIAS

SERVICIO: INSTRUMENTO DE GESTIÓN AMBIENTAL – INFORME TECNICO SUSTENTATORIO REV. : A

DESCRIPCIÓN: IMPLEMENTACIÓN DE UN NUEVO DINAMÓMETRO EN LA PLANTA CALLAO PÁG. : 16 DE 76

Figura 2-2: Rosa de Vientos

Fuente: Servicio Nacional de Meteorología e Hidrología del Perú – SENAMHI Elaboración: Green Planet Strategies & Solutions E.I.R.L.

2.3.2 Geología

Según el Boletín Nº 43, Geología de los Cuadrángulos de Lima, Lurín, Chancay y Chosica y la Carta Geológica 24I - Chancay, la unidad estratigráfica presente en la zona en donde se la planta en evaluación y su entorno es:

• Depósito aluvial (Qr-al)

Presencia de conglomerado inconsolidado de matriz limo-arenosa, siendo frecuente observar la ocurrencia de capas lenticulares de arcillas. Los materiales de cobertura ocupan mayores extensiones y están representados por depósitos marinos, eólicos y aluviales. Los depósitos marinos y eólicos se distribuyen en la zona de litoral, están constituidos por granos de arena media a gruesa, y mantienen condiciones inestables por la escasa consistencia, y por el contenido de sales. La roca de basamento está representada por rocas ígneas (plutónicas y volcánicas) y sedimentarias, las rocas ígneas se presentan como grandes cuerpos plutónicos constituidos por granodiorita, tonalita y dioritas y conformando las elevaciones que bordean la ciudad de Lima.

PROPIETARIO: KOMATSU MITSUI MAQUINARIAS

SERVICIO: INSTRUMENTO DE GESTIÓN AMBIENTAL – INFORME TECNICO SUSTENTATORIO REV. : A

DESCRIPCIÓN: IMPLEMENTACIÓN DE UN NUEVO DINAMÓMETRO EN LA PLANTA CALLAO PÁG. : 17 DE 76

Figura 2-3: Geología del área de estudio

Fuente: Gobierno Regional del Callao – Microzonificación Ecológica Económica (2011)

2.3.3 Geomorfología

Los rasgos geomorfológicos del área de estudio son el resultado de procesos tectónicos y plutónicos sobreimpuestos por el proceso de geodinámica, que han modelado el rango morfoestructural de la región. De acuerdo al mapa de unidades geomorfológicas del Gobierno Regional del Callao, la provincia constitucional del Callao, está constituido por nueve (09) unidades geomorfológicas: Playa Rectas (P-r), Playas de Bahía (P-b), Playas de Puntas y Peñascos (P-pp), Islas e Islotes (I), Zona de Erosión e Inundaciones (Ze-I), Terrazas Marinas con Cobertura Eólica (Tm-Ce), Valles y Quebradas (V-q), Planicies Onduladas con Cobertura Eólica (Po-Ce) y Colinas (Cb y Ca).

El área donde se sitúa la KMMP-Planta Callao, se encuentra en ambiente continental, dentro de una unidad geomorfológica de “Valles y Quebradas” (V-q), con un tipo de relieve caracterizado por valles y quebradas y con una descripción que engloba las áreas de los conos deyectivos de los ríos Rímac y Chillón; así como la porción de las terrazas cultivadas y las áreas urbanas de Lima y Callao.

➢ Valles y Quebradas

Esta unidad geomorfológica comprende las quebradas afluentes al río Rímac, que permanecen secas la mayor parte del año, discurriendo agua solo en épocas de fuertes precipitaciones en el sector andino y especialmente asociados al Fenómeno del Niño; debido a ello presentan un clima

KMMP – Planta Callao

PROPIETARIO: KOMATSU MITSUI MAQUINARIAS

SERVICIO: INSTRUMENTO DE GESTIÓN AMBIENTAL – INFORME TECNICO SUSTENTATORIO REV. : A

DESCRIPCIÓN: IMPLEMENTACIÓN DE UN NUEVO DINAMÓMETRO EN LA PLANTA CALLAO PÁG. : 18 DE 76 seco, con piso cubierto por depósitos coluviales y materiales de poco transporte, provenientes de las estribaciones de la Cordillera Occidental.

Figura 2-4: Geomorfología de la zona de estudio

Fuente: Gobierno Regional del Callao – Microzonificación Ecológica Económica (2011)

2.3.4 Suelos

Según el estudio de Microzonificación sísmica de La Punta y el Callao realizado en el año 1995 El perfil estratigráfico que caracteriza a la zona en donde se encuentra la planta Callao de KMMP está formado por suelos blandos que alcanzan en promedio una profundidad de 10 m, llegando hasta los 15 m cerca de la desembocadura del río Rímac, hacia el norte.

Los materiales que conforman los estratos blandos son principalmente suelos limo-arcillosos de baja plasticidad, arenas limosas y presentan intercalaciones de turbas o eventualmente suelos plásticos, hasta encontrar la grava arenosa del cono deyectivo del rímac.

KMMP – Planta Callao

Fuente: Centro Peruano de Japonés de Investigaciones Sísmicas y Mitigación de Desastres – CISMID.

Actualmente KMMP ha desarrollado el Informe de Fase de Identificación de Sitios Contaminados para su Planta Callao mediante el cual se concluyó que no es necesario continuar con la Fase de Caracterización de Sitios Contaminados, debido a que no se ha determinado la presencia de sitios contaminados. El Informe de Fase de Identificación de Sitios Contaminados fue aprobado mediante Oficio N° 783-2023PRODUCE/DGAAMI

2.3.5 Hidrografía

El área metropolitana conformada por las provincias de Lima y Callao, es considerada como una sola desde el punto de vista de aguas superficiales, ya que ambos forman parte de las cuencas de los ríos Chillón y Rímac, y las actividades que se desarrollan río arriba repercuten en el territorio del Callao. La temporalidad de los ríos Chillón y Rímac hace que solo en la estación de verano presenten caudales mayores, en los otros meses los ríos están totalmente secos debido principalmente al uso de agua en su recorrido.

➢ Aguas superficiales

Es escasa la disponibilidad superficial de agua, existe una distribución temporal e irregular frente a la continua y creciente necesidad del agua, no solo para el uso de la población del Callao, si no para los usos de actividades agrícolas, energéticas e industriales, etc. La extensión total de la Provincia Constitucional del Callao, abarca en gran medida la parte final de los valles del río Rímac y Chillón, y si

KMMP-Planta Callao

PROPIETARIO: KOMATSU MITSUI MAQUINARIAS PERU S.A

SERVICIO: INSTRUMENTO DE GESTIÓN AMBIENTAL – INFORME TECNICO SUSTENTATORIO REV. : A

DESCRIPCIÓN: IMPLEMENTACIÓN DE UN NUEVO DINAMÓMETRO EN LA PLANTA CALLAO PÁG. : 20 DE 76

consideramos desde el punto de vista hidrológico ello compromete a las dos cuencas en su totalidad. Los usuarios directos y principales de estos ríos incluyendo las aguas subterráneas son la población del Callao y sus distritos. El río Chillón y el río Rímac constituyen importantes fuentes de recursos hídricos que abastecen a la Provincia Constitucional del Callao; sin embargo, también constituyen fuentes de contaminación marina del litoral del Callao, tanto por el tipo de carga orgánica, inorgánica y microbiana que arrastran sus aguas. Los análisis de aguas superficiales se basan principalmente en la distribución de caudales en las cuencas de estudio regidas por el año hidrológico. El año hidrológico se inicia el 1 de septiembre de cada año y culmina el 31 de agosto del siguiente año. En este ciclo hidrológico de 12 meses, los mayores caudales se presentan generalmente entre diciembre y abril, debido al aporte de precipitaciones estacionales. Entre mayo a noviembre el río Rímac recibe los aportes del sistema regulado, es decir, las aguas almacenadas por un conjunto de 19 lagunas, el embalse de Yuracmayo y el agua disponible del río Chillón, para el suministro de agua potable a la población de Callao y Lima. Como aguas superficiales, también se incluyen a los afloramientos que se presentan en la zona del Callao, específicamente en la zona de Taboada, así como, de la zona de los humedales de Ventanilla (Norte del Callao).

En el gráfico siguiente se presenta la distancia de La Planta Callao de KMMP a los cuerpos de agua superficial.

Figura 2-6: Distancia entre la Planta Callao - KMMP y los cuerpos de agua superficial cercanos

Fuente: Google Earth

Elaboración: Green Planet Strategies & Solutions E.I.R.L.

Distancia entre la Planta Callao - KMMP al río Rímac: 0, 70 km
Distancia entre la Planta Callao - KMMP al océano Pacífico: 4,7 km
(2024).
Planta Callao - KMMP

➢ Aguas Subterráneas

PROPIETARIO: KOMATSU MITSUI MAQUINARIAS PERU S.A

SERVICIO: INSTRUMENTO DE GESTIÓN AMBIENTAL – INFORME TECNICO SUSTENTATORIO REV. : A

DESCRIPCIÓN: IMPLEMENTACIÓN DE UN NUEVO DINAMÓMETRO EN LA PLANTA CALLAO PÁG. : 21 DE 76

Las aguas subterráneas de la Provincia Constitucional del Callao, proviene básicamente de los ríos Chillón y Rímac. La zona de Puerto Nuevo, la Base Naval y el distrito de La Punta, presentan un nivel de napa freática de aproximadamente 5 metros. Las afloraciones más representativas se aprecian en la zona de Taboadita, cercano al lugar de Santa Colonia. En los distritos restantes la profundidad de la napa freática varía de 5 a 50 m.

Para los acuíferos del Rímac y del Chillón, las principales fuentes de alimentación de la napa son las filtraciones que se producen a través del lecho de los ríos Rímac y Chillón, las subcorrientes subterráneas provenientes de las partes altas, los canales y áreas que aún se encuentran bajo riego; a esto se suma las pérdidas por fugas en los sistemas de distribución en las áreas urbanas, dada la reducción de las áreas bajo riego por el progresivo cambio de uso de las tierras – de agrícola a urbano – las fuentes de recarga vienen disminuyendo significativamente (Fuente: Microzonificación Ecológica Económica (ZEE) de la Provincia Constitucional del Callao, Gobierno Regional del Callao, 2011).

Según el mapa de Hidroisoipsas, en el área en donde se encuentra la planta evaluada, el nivel del agua subterránea se encuentra entre los 10 a 20 metros de profundidad, con dirección de las aguas subterráneas de este a oeste.

Figura 2-7: Mapa de la profundidad de las aguas subterráneas

Fuente: Actualización de la Microzonificación Ecológica Económica de la Provincia Constitucional del Callao. 2011).

Planta Callao - KMMP

2.3.6 Riesgo sísmico

PROPIETARIO: KOMATSU MITSUI MAQUINARIAS PERU S.A

SERVICIO: INSTRUMENTO DE GESTIÓN AMBIENTAL – INFORME TECNICO SUSTENTATORIO REV. : A

DESCRIPCIÓN: IMPLEMENTACIÓN DE UN NUEVO DINAMÓMETRO EN LA PLANTA CALLAO PÁG. : 22 DE 76

De acuerdo al Nuevo Mapa de Zonificación Sísmica del Perú, según la nueva Norma Sismo Resistente (NTE E-030) y del Mapa de Distribución de Máximas Intensidades Sísmicas observadas en el Perú, presentado por Alva Hurtado (1984), el cual se basó en isosistas de sismos peruanos y datos de intensidades puntuales de sismos históricos y sismos recientes; se concluye que el área ocupada por la Planta Callao de KMMP está dentro de la Zona de alta sismicidad (Zona 3), existiendo la posibilidad de que ocurran sismos de intensidades tan considerables como VIII y IX en la escala Mercalli Modificada.

Figura 2-8: Mapa de Zonificación Sísmica del área de estudio

Fuente: Instituto Geofísico del Perú

2.3.7 Monitoreo Ambiental

KMMP - Planta Callao, actualizó su programa de monitoreo ambiental de acuerdo al último instrumento de gestión ambiental complementario presentado denominado ITS del proyecto “Implementación del Nuevo Taller de Módulos KRCP en la Planta Callao”, aprobado mediante R.D. N° 00093-2023PRODUCE/ DGAAMI En ese sentido se presentan los monitoreos efectuados en el año 2023 y 2024

Planta Callao - KMMP

PROPIETARIO: KOMATSU MITSUI MAQUINARIAS PERU S.A

SERVICIO: INSTRUMENTO DE GESTIÓN AMBIENTAL – INFORME TECNICO SUSTENTATORIO REV. : A

DESCRIPCIÓN: IMPLEMENTACIÓN DE UN NUEVO DINAMÓMETRO EN LA PLANTA CALLAO PÁG. : 23 DE 76

En la tabla que se muestra a continuación, se presenta la ubicación de las estaciones de monitoreo ambiental y los parámetros correspondiente al programa actualizado

Tabla 2-7: Programa de Monitoreo ambiental Actualizado

Componente ambiental Estación de monitoreo

CA-01

Calidad de Aire

Parámetros meteorológicos

Ruido Ambiental

CA-02

EM-01

RA-01

RA-02

RA-03

RA-04

Coordenadas UTM

N: 8 667 291

E: 0 271 318

N: 8 667 384

E: 0 271 276

N: 8 667 291

E: 0 271 318

N: 8 667 291

E: 0 271 318

N: 8 667 291

E: 0 271 318

N: 8 667 291

E: 0 271 318

N: 8 667 291

E: 0 271 318

Parámetros a monitorear Norma de comparación

CO, NO2 D S. N° 003-2017-MINAM

Dirección y velocidad de viento, humedad relativa y temperatura -

Presión sonora (dB (A) Zona Industrial – Horario diurno) D S N° 085-2003-PCM

Fuente: Informe N° 00000032-2023-PRODUCE/DEAM-hriega (Ver Anexo Nº 03)

Calidad de Aire

Los valores del monitoreo de calidad de aire provienen de dos (02) estaciones de control, los resultados que se muestran en la siguiente tabla, corresponden a los últimos dos (02) informes de monitoreo presentados a la autoridad competente.

Tabla 2-8: Resultados del monitoreo ambiental de la calidad de aire de la planta Callao

Parámetro

DESCRIPCIÓN:

Dióxido de Nitrógeno (NO2)

Fuente: Informes de Monitoreo de KMMP-Planta Callao

Monitoreo de los Parámetros Meteorológicos

Los valores de los Parámetros meteorológicos provienen de la estación de monitoreo EM-01, los resultados que se muestran en la siguiente tabla, corresponde a los últimos dos (02) informes de monitoreo presentados a la autoridad competente.

Tabla 2-9: Resultados del monitoreo de los parámetros meteorológicos de la Planta Callao Parámetro

Dirección predominante del viento (º)

Fuente: Informes de Monitoreo de KMMP-Planta Callao

Ruido Ambiental

Los resultados que se muestran en la siguiente tabla, corresponden a los informes de monitoreo anual de los años 2023 y 2024 presentados a la autoridad competente para el parámetro de ruido ambiental

SERVICIO: INSTRUMENTO DE GESTIÓN AMBIENTAL – INFORME TECNICO SUSTENTATORIO REV. : A

DESCRIPCIÓN: IMPLEMENTACIÓN DE UN NUEVO DINAMÓMETRO EN LA PLANTA CALLAO PÁG. : 25 DE 76

Tabla 2-10: Resultados del monitoreo de ruido Ambiental de la Planta Callao

Parámetro Punto de Monitoreo

Ruido Diurno dB (A)

Fuente: Informes de Monitoreo de KMMP-Planta Callao

2.4 MEDIO BIOLÓGICO

2.4.1 Zonas de vida

De acuerdo con el Mapa Ecológico del Perú elaborado por la ONERN (1976) y la Guía Explicativa del Mapa Ecológico del Perú – INRENA (1995); el área en donde se ubica la planta Callao de KMMP se emplaza en la Zona de Vida: Desierto Desecado Subtropical (dd-S), se distribuye en la franja latitudinal subtropical. El relieve topográfico es plano a ligeramente ondulado, variando a abrupto, en los cerros aislados o en la cordillera antigua de la costa. El escenario edáfico está representado por suelos de textura variable, entre ligeros a finos, con cementaciones salinas, cálcicas o gíspsicas (yeso). La vegetación no existe o es muy escasa, apareciendo halófitas distribuidas en pequeñas manchas verdes dentro del extenso y monótono arenal grisáceo eólico. Esta zona se considera de clima variado, templado, húmedo y con alta nubosidad en el invierno con precipitaciones escazas que se producen generalmente en forma de garúas o lloviznas que están casi siempre por debajo de 500 mm/anual. El ecosistema de la zona ha sufrido modificaciones de importancia por acción del hombre, encontrándose hoy en un área urbanizada. En tal sentido, la flora y fauna silvestre en dicha zona es escasa y de reducida importancia ecológica y económica.

PROPIETARIO: KOMATSU MITSUI MAQUINARIAS

SERVICIO: INSTRUMENTO DE GESTIÓN AMBIENTAL – INFORME TECNICO SUSTENTATORIO REV. : A

DESCRIPCIÓN: IMPLEMENTACIÓN DE UN NUEVO DINAMÓMETRO EN LA PLANTA CALLAO PÁG. : 26 DE 76

Figura 2-9: Zonas de vida

Fuente: Mapa Ecológico del Perú (ONERN)

2.4.2 Flora

La metodología empleada para el reconocimiento de la flora y fauna presente en el área de estudio fue la de Observación Directa, para ello se consideraron los siguientes criterios:

• En la etapa pre-gabinete, se evaluó el Área de Influencia Ambiental (AIA) mediante información general recopilada, con ello se decidió utilizar la metodología de Observación Directa, debido a que la zona donde se emplaza el AI se encuentra intervenida por la presencia de industrias, zona residencial y zona especial.

• En la etapa de campo, se realizó el reconocimiento general del AIA de la Planta Callao, en períodos de observación concentrados en la mañana y en la tarde se realizó la identificación de la flora y fauna presente, y se pasó a realizar un registro fotográfico de las mismas.

• En la etapa de gabinete, se recopiló la información obtenida en campo y con apoyo del equipo profesional se procedió con la identificación y descripción de la flora y fauna encontrada

Flora

En el interior de la Planta Callao se pueden encontrar especies vegetales ornamentales introducidas por KMMP, entre estas encontramos Tradescantia pallida, Thuja sp., Cupressus s.p., Schefflera sp., entre

Planta Callao - KMMP

PROPIETARIO: KOMATSU MITSUI MAQUINARIAS PERU S.A

SERVICIO: INSTRUMENTO DE GESTIÓN AMBIENTAL – INFORME TECNICO SUSTENTATORIO REV. : A

DESCRIPCIÓN: IMPLEMENTACIÓN DE UN NUEVO DINAMÓMETRO EN LA PLANTA CALLAO PÁG. : 27 DE 76 otras. En la parte externa del predio se pudieron identificar especies ornamentales como la Ficus benjamina, Yucca gloriosa, Washingtonia filifera, Delonix regia, entre otras (ver Tabla 2.18).

Dentro del AIA no se han identificado especies de flora que estén dentro de la lista de categorización de especies amenazadas de Flora silvestre publicado mediante D.S. N° 043-2006-AG.

Tabla 2-11: Especies de flora identificadas

Identificación de especies de flora

Flora identificada al interior del predio

Tradescantia pallida
Pelargonium hortorum Chrysalidocarpus Lutescens
Cupressus sp.
Hibiscus rosa-sinensis Werneria nubigena
Senecio sp.
Senecio sp. Lantana sp. Delosperma cooperi

PROPIETARIO: KOMATSU MITSUI MAQUINARIAS PERU S.A

SERVICIO: INSTRUMENTO DE GESTIÓN AMBIENTAL – INFORME TECNICO SUSTENTATORIO REV. : A

DESCRIPCIÓN: IMPLEMENTACIÓN DE UN NUEVO DINAMÓMETRO EN LA PLANTA CALLAO PÁG. : 28 DE 76

Schefflera sp.

Identificación de especies de flora

Rosa sp. Thuja sp. Flora identificada al exterior del predio

Hibiscus rosa-sinensis

Yucca gloriosa Ficus benjamina

Pelargonium hortorum Washingtonia filifera Delonix regia

Fuente: Informe Técnico Sustentatorio (ITS) 2023 “Master Plan Infraestructura Ampliaciones y Remodelaciones Planta Callao” aprobado mediante Informe N° 000000120-2023-PRODUCE/DEAM-umarins

2.4.3 Fauna

En el área donde se encuentra la Planta Callao de KMMP, no se evidenció ninguna especie que se encuentre dentro del D.S. N° 004-2014-MINAGRI “Actualización de la lista de clasificación y categorización de las especies amenazadas de fauna silvestre legalmente protegidas”. Al ser una zona industrial, en los alrededores del local, tampoco se identificaron especies de fauna. En la Tabla que se muestra a continuación, se describe la fauna presente en la zona de estudio.

PROPIETARIO: KOMATSU MITSUI MAQUINARIAS PERU S.A

SERVICIO: INSTRUMENTO DE GESTIÓN AMBIENTAL – INFORME TECNICO SUSTENTATORIO REV. : A

DESCRIPCIÓN: IMPLEMENTACIÓN DE UN NUEVO DINAMÓMETRO EN LA PLANTA CALLAO PÁG. : 29 DE 76

Tabla 2-12: Clasificación Taxonómica de la fauna identificada

Reino Subreino División Clase Subclase Orden Suborden Familia Género Especie Nombre común

Animalia Chordata Ave Columbiformes Columbidae Columba Columba livia Paloma

Animalia Chordata Ave Columbiformes Columbidae Zenaida Zenaida meloda Cuculi

Fuente: Informe Técnico Sustentatorio (ITS) 2023 “Master Plan Infraestructura Ampliaciones y Remodelaciones Planta Callao” aprobado mediante Informe N° 000000120-2023-PRODUCE/DEAM-umarins

2.5 AMBIENTE SOCIO, ECONÓMICO Y CULTURAL

Se ha revisado comparativa y analíticamente documentos que proporcionen información estadística oficial elaborada por instituciones del estado y otras instituciones civiles acerca de los principales indicadores en temas de población, vivienda, servicios básicos, entre otros. La información de este documento de fuentes secundarias es vigente. Sin embargo, hay que considerar que está basado en el censo nacional realizado por el INEI en el año 2017 el cual se considera un referente de sustento técnico válido para estos fines.

2.5.1

Población

De acuerdo Censos Nacionales 2017: XII de Población, VII de Vivienda y III de Comunidades Indígenas del Instituto Nacional de Estadística e Informática (INEI), la población del distrito de Callao presenta una población de 479 418 personas.

La población por sexo en el distrito del Callao, está compuesta por 237 152 hombres, los que representan el 49,47%; entre tanto las mujeres alcanzan un numero de 242 266, lo que representa el 50,53% del total distrital. En el siguiente cuadro se presenta el número de personas, según su sexo, que habitan en el distrito de Callao.

Tabla 2-13: Población total del distrito de Callao

Indígenas

Elaboración: Green Planet Strategies & Solutions E.I.R.L.

El ordenamiento de la población según grupos de edades quinquenales nos muestra que los grupos de mayor significancia se concentran entre los primeros años de vida, el inicio de la juventud, y la juventud (0 a 24 años), siendo el grupo comprendido entre los 20 a 24 años el más relevante, registrando un 8,73 %

PROPIETARIO: KOMATSU MITSUI MAQUINARIAS

SERVICIO: INSTRUMENTO DE GESTIÓN AMBIENTAL – INFORME TECNICO SUSTENTATORIO REV. : A

DESCRIPCIÓN: IMPLEMENTACIÓN DE UN NUEVO DINAMÓMETRO EN LA PLANTA CALLAO PÁG. : 30 DE 76 (41 857 personas). Este perfil que presenta el distrito del Callao, le otorga la característica de ser una base de recambio generacional sostenida en las poblaciones jóvenes.

Por otro lado, el grupo de edades que representa a las poblaciones adultas es medianamente significativo, registrando el grupo que se ubica entre los 30 y 34 años, un 8,18 % (39 204 personas) para el distrito del Callao. El grupo poblacional con menor representación es el que se ubica entre las edades de 95 a más, alcanzando el 0,06 %.

Tabla 2-14: Población según grupos de edad quinquenales

Edad en grupos quinquenales

De 0 a 4 años 35 989 7,51

De 5 a 9 años 37 443 7,81

De 10 a 14 años

De 15 a 19 años

De 20 a 24 años

De 25 a 29 años 40 630 8,47

De 30 a 34 años 39 204 8,18

De 35 a 39 años 38 005 7,93

De 40 a 44 años 34 495 7,20

De 45 a 49 años 28 599 5,97

De 50 a 54 años 25 095 5,23

De 55 a 59 años 22 746 4,74

De 60 a 64 años 20 396 4,25

De 65 a 69 años 16 440 3,43

De 70 a 74 años 11 483 2,40

De 75 a 79 años 7 472 1,56

De 80 a 84 años 4 959 1,03

De 85 a 89 años 2 736 0,57

De 90 a 94 años 1 062 0,22

De 95 a más 296 0,06

Fuente: INEI Censo 2017: XII de Población, VII de Vivienda y III de Comunidades Indígenas

Elaboración: Green Planet Strategies & Solutions E.I.R.L.

2.5.2 Viviendas

En el distrito de Callao, según los datos del INEI del Censo XII de población, VII de vivienda y III de Comunidades Indígenas del año 2017, se halla un total de 119 397 viviendas, las cuales se dividen de la siguiente manera: 76,04 % (90 789) casas independientes, 18,20 % (21 726) departamentos en edificios,

PROPIETARIO: KOMATSU MITSUI

SERVICIO: INSTRUMENTO DE GESTIÓN AMBIENTAL – INFORME TECNICO SUSTENTATORIO REV. : A

DESCRIPCIÓN: IMPLEMENTACIÓN DE UN NUEVO DINAMÓMETRO EN LA PLANTA CALLAO PÁG. : 31 DE 76

3,32 % (3 967) vivienda en quinta, 1,80 % (2 153) vivienda en casa vecindad, 0,16 % (188) viviendas improvisadas, 0,18 % (209) local no destinado para habitación humana, 0,00 % (1) otro tipo de vivienda particular, 0,30 % (364) viviendas colectivas.

Tabla 2-15: Viviendas particulares y población según tipo de vivienda

en quinta

Vivienda en casa de vecindad (Callejón, solar o corralón)

Vivienda Improvisada

no destinado para habitación humana

Fuente: Censo Nacional 2017: XI Censo de Población y VI Censo de Vivienda. INEI. Lima

Elaboración: Green Planet Strategies & Solutions E.I.R.L.

En relación a la condición jurídica sobre la vivienda, se observa que la mayor parte de los pobladores son propietarios de su vivienda - con título de propiedad, representando un 44.9%; seguido por las viviendas alquiladas con un 26.3%; y las viviendas propias sin título de propiedad con un 20.6%. Finalmente, en menor porcentaje, encontramos a las viviendas cuya tenencia es cedida, con un 8.1%, y viviendas con tenencia de otra forma están en el valor de 0.2%.

En el siguiente cuadro, se presenta el número de casos de las viviendas según la tenencia:

Fuente: Censo Nacional 2017: XI Censo de Población y VI Censo de Vivienda. INEI. Lima

Tabla 2-16: Tenencia de vivienda – la vivienda que ocupa

2.5.3 Servicios Básicos

SERVICIO: INSTRUMENTO DE GESTIÓN AMBIENTAL – INFORME TECNICO SUSTENTATORIO REV. : A

DESCRIPCIÓN: IMPLEMENTACIÓN DE UN NUEVO DINAMÓMETRO EN LA PLANTA CALLAO PÁG. : 32 DE 76

➢ Agua: Para el distrito de Callao, el sistema de abastecimiento de agua es prestado por el “Servicio de Agua Potable y Alcantarillado de Lima (SEDAPAL)” con el 86,86 % (93 344) de la red pública dentro de la vivienda, 10,60 % (11 390) fuera de la vivienda, pero dentro de la edificación, 0,72 % (773) con pilón de uso público, etc. los cuales se pueden apreciar en el cuadro que se muestra a continuación.

Tabla 2-17: Cantidad de viviendas por tipo de abastecimiento de agua

Abastecimiento de agua en la vivienda

Red pública dentro de la vivienda (agua potable)

93 344 86,86

Red pública fuera de la vivienda, pero dentro de la edificación (Agua Potable) 11 390 10,60

Pilón o pileta de uso público (Agua potable) 773 0,72

Camión-cisterna u otro similar

Río, acequia, lago, laguna

1,12

0,44

Pozo (agua subterránea) 2 0,00

0,14

0,13

Fuente: Censo Nacional 2017: XI Censo de Población y VI Censo de Vivienda. INEI. Lima

Elaboración: Green Planet Strategies & Solutions E.I.R.

➢ Energía eléctrica: En el distrito de Callao el 99,33 % (106 752) de las viviendas, disponen de alumbrado eléctrico por red pública, mientras que el 0,67 % (719) de las viviendas no disponen de alumbrado eléctrico por red pública. En el siguiente cuadro se presenta el número de casos de las viviendas en el distrito de Callao que cuenta con el servicio.

Tabla 2-18: Cantidad de viviendas por disponibilidad de alumbrado eléctrico

La vivienda tiene alumbrado eléctrico por red

Si tiene alumbrado eléctrico

No tiene alumbrado eléctrico

Fuente: Censo Nacional 2017: XI Censo de Población y VI Censo de Vivienda. INEI. Lima

Elaboración: Green Planet Strategies & Solutions E.I.R.

➢ Servicios higiénicos: En el distrito del Callao, el 87,43 % (93 962) de la población distrital cuenta con una red pública de desagüe dentro de la vivienda; el 10,81 % (11 617) de la población cuenta con red pública de desagüe fuera de la vivienda pero dentro de la edificación; el 0,36 % (387) de la población cuenta con pozo séptico; el 0,13 % (138 personas) de la

PROPIETARIO: KOMATSU MITSUI MAQUINARIAS

SERVICIO: INSTRUMENTO DE GESTIÓN AMBIENTAL – INFORME TECNICO SUSTENTATORIO REV. : A

DESCRIPCIÓN: IMPLEMENTACIÓN DE UN NUEVO DINAMÓMETRO EN LA PLANTA CALLAO PÁG. : 33 DE 76 población cuenta con letrinas; el 0,68 % (736) cuenta con ciego o negro; el 0,17 % (183) de la población utiliza, río, acequia, o canal; el 0,09 % (92) cuenta utiliza el campo abierto, y 0,33 % (356) tiene otro tipo de servicios higiénicos. En el siguiente cuadro se presenta el número de casos de las viviendas en el distrito del Callao, que cuenta con servicios higiénicos:

Tabla 2-19: Servicios higiénicos a nivel distrital

Servicio Higiénico que tiene la vivienda

Red pública de desagüe dentro de la vivienda

Red pública de desagüe fuera de la vivienda, pero dentro de la edificación 11 617 10,81

Pozo séptico, tanque séptico o biodigestor

0,36

Letrina (con tratamiento) 138 0,13

Pozo ciego o negro

Río, acequia, canal o similar

Campo abierto o al aire libre

0,68

y VI Censo de Vivienda. INEI. Lima

Elaboración: Green Planet Strategies & Solutions E.I.R

➢ Salud: Según la Organización Mundial de la Salud (OMS), “la salud es un estado de completo bienestar físico, mental y social, y no solamente la ausencia de afecciones o enfermedades”. En el Perú, a finales de la década de los sesenta se instituye la universalidad de los derechos ciudadanos en la constitución política del país, reconociéndose el acceso a los servicios de salud como uno de los principales derechos fundamentales, sin embargo el panorama actual refiere que aún existe un considerable porcentaje de la población carente de cobertura de algún tipo de seguro de salud, siendo esto un factor que se sumaría a las deficiencias en cuanto a la existencia de establecimientos adecuadamente equipados y a la carencia de personal médico en diferentes zonas del país

El panorama de la salud para Provincia Constitucional del Callao, las personas que se encuentran fuera de los servicios de aseguramiento de salud, conforma un porcentaje menor, con un 22,9 % de la población total. Por otro lado, las personas que se encuentran aseguradas a través del Seguro Integral de Salud (SIS), son el 27,6 % de la población total.

Tabla 2-20: Población afiliada a seguros de salud

Población afiliada a seguros de salud

Soló ESSALUD 191 752 40,00

Soló Seguro Integral de Salud (SIS)

130 762 27,28

Fuente: Censo Nacional 2017: XI Censo de Población

Población afiliada a seguros de salud

Sin Seguro 109 411 22,9

Afiliado al seguro privado de salud 24 990 5,21

Afiliado al seguro de las fuerzas armadas 15 041 3,14

Otros Seguros

Elaboración: Green Planet Strategies & Solutions E.I.R.L.

➢ Educación: La educación es uno de los derechos principales de toda persona, porque se constituye en una herramienta para el logro del bienestar personal y social. Nuestro país como parte de la comunidad mundial, que hizo suya la preocupación por lograr las metas en relación al acceso de educación, especialmente los niños y niñas, ejecutó diversos programas educativos en pos de lograr objetivos nacionales para la reducción del analfabetismo y acceso a la educación. Por ello, la importancia de contar con un sistema educativo equitativo y eficiente, como uno de los principales dinamizadores del desarrollo del país, ha sido reconocida a través de diversas iniciativas de reformas, presentadas por el Consejo Nacional de Educación, el Consejo Nacional de Competitividad, el Plan Nacional de Educación para todos. (Ministerio de Educación, 2015).

En este sentido, entre los años 2002 al 2005, hubo avances en la política social educativa, habiéndose mostrado ligeras mejoras en algunos indicadores, tales como la tasa de deserción escolar. Sin embargo, diversas investigaciones señalan que dos de los problemas más importantes continúan siendo la inequidad en el acceso a los servicios educativos la que se refleja en las zonas rurales, es decir la oferta educativa se concentra en las áreas urbanas. Por ejemplo, Benavides y Rodríguez, señalan que a pesar de que la cobertura a nivel de educación primaria llega al 96,1%, esta se reduce hasta 85% en educación secundaria, y baja inclusive hasta el 62% en educación inicial; peor aún, diferenciando por severidad de pobreza, se aprecia que la cobertura en educación inicial es aún crítica en el caso de la pobreza extrema, llegando apenas al 43%.2

El analfabetismo es una condición de exclusión que no sólo limita el acceso al conocimiento, sino que dificulta el ejercicio pleno de la ciudadanía. Según el Censo Nacional del 2017, en el distrito de Callao, el 93,23 % (174 891) de la población si sabe leer y escribir, y el 6,77 % (12 706) de la población no sabe leer y escribir, es decir, son considerados analfabetos.

2 Benavides, Martín y Rodríguez, José (2006). Informe de Progreso educativo Perú 2006. Políticas de Educación Básica 2006 –2011, PREAL, GRADE, Ica.

Fuente: Censo Nacional 2017: XI Censo de Población y VI Censo de Vivienda. INEI. Lima

PROPIETARIO: KOMATSU MITSUI MAQUINARIAS PERU S.A

SERVICIO: INSTRUMENTO DE GESTIÓN AMBIENTAL – INFORME TECNICO SUSTENTATORIO REV. : A

DESCRIPCIÓN: IMPLEMENTACIÓN DE UN NUEVO DINAMÓMETRO EN LA PLANTA CALLAO PÁG. : 35 DE 76

En el siguiente cuadro se presente el número de casos de la población analfabeta en el distrito de Callao:

Tabla 2-21: Población Analfabeta a nivel distrital

Sabe leer y escribir

Si sabe leer y escribir

No sabe leer y escribir

Callao

Casos %

174 891 93,23

12 706 6,77

187 597 100,00

Fuente: Censo Nacional 2017: XI Censo de Población y VI Censo de Vivienda. INEI. Lima

Elaboración: Green Planet Strategies & Solutions E.I.R.L.

De acuerdo al Censo Nacional del 2017, el 41,35 % (77 567) de los habitantes del distrito de Callao han culminado sus estudios secundarios, el 17,84 % (33 474) de la población cuentan con nivel primario alcanzado, el 4,66 % de la población cuenta con nivel inicial alcanzado, y el 3,09 % (5 806) de la población no tiene un nivel educativo alcanzado. La educación superior no universitaria completa alcanza un porcentaje de 8,45 % (15 845), y la superior no universitaria incompleta, un 6,00 %. Por otro lado, la educación de tipo superior incompleta alcanza un porcentaje de 7,61 % (14 273) y la de tipo superior completa alcanza un porcentaje de 9,82 %. En el siguiente cuadro se presenta el número de casos de la población del distrito de Santa Anita según el nivel educativo alcanzado:

Tabla 2-22: Nivel educativo a nivel distrital

Nivel educativo

Fuente: Censo Nacional 2017: XI Censo de Población y VI Censo de Vivienda. INEI. Lima
Elaboración: Green Planet Strategies & Solutions
L.

2.5.4

SERVICIO: INSTRUMENTO DE GESTIÓN AMBIENTAL – INFORME TECNICO SUSTENTATORIO REV. : A

DESCRIPCIÓN: IMPLEMENTACIÓN DE UN NUEVO DINAMÓMETRO EN LA PLANTA CALLAO PÁG. : 36 DE 76

Aspecto económico

En el distrito de Callao la población económicamente activa es 177 152 (100%) de los cuales, el 21,6% (38 224) se dedica a la actividad de “Comercio, reparación de vehículos”, el 13,2% (23 311) a la actividad de “Trasporte, almacenamiento y comunicaciones”, el 12% (21 298) se dedica a la actividad en industrias manufactureras, el 10,2% (18 077) a la actividad de “Actividades inmobiliarias, empresariales y alquileres”.

Tabla 2-23: Población Económicamente Activa (PEA) según sexo y rama de actividad económica

Población económicamente activa por distrito y rama económica

Fuente: Censo Nacional 2017: XI Censo de Población y VI Censo de Vivienda. INEI. Lima Elaboración: Green Planet Strategies & Solutions E I.R L.

Participación ciudadana

➢ Introducción

PROPIETARIO: KOMATSU MITSUI MAQUINARIAS

SERVICIO: INSTRUMENTO DE GESTIÓN AMBIENTAL – INFORME TECNICO SUSTENTATORIO REV. : A

DESCRIPCIÓN: IMPLEMENTACIÓN DE UN NUEVO DINAMÓMETRO EN LA PLANTA CALLAO PÁG. : 37 DE 76

Se desarrolló la Participación Ciudadana de acuerdo a lo establecido en el Reglamento de Participación Ciudadana en la Gestión ambiental de la Industria Manufacturera y Comercio Interno, y su modificatoria aprobada mediante D.S. Nº 012-2024-PRODUCE

El propósito de la Participación Ciudadana fue recabar de manera física las opiniones, observaciones y/o aportes de la población del Área de Influencia Ambiental del proyecto, con la finalidad de tomarlas en cuenta durante las diferentes etapas del proyecto.

➢ Mecanismos de Participación Ciudadana

Se informó y se difundió el desarrollo del Informe Técnico Sustentatorio del proyecto mediante los mecanismos siguientes:

Publicación en el diario “XXXXX”

La realización del Informe Técnico Sustentatorio, fue comunicado a la población a través de la publicación de un aviso informativo, divulgado el día XX de noviembre del 2024 en el diario local “XXX”. En dicha publicación se detallaron también los datos de la empresa y se dio a conocer a la población que el estudio preliminar podría ser descargado a través de un link de descarga que la empresa proporcionó (https://www.XXXX).

Tabla 2-24: Publicación en el diario “XXXXX”

Elaboración: Green Planet Strategies & Solutions E.I.R.L. Ver Anexo N° 07, Publicación de la participación Ciudadana

PROPIETARIO: KOMATSU MITSUI MAQUINARIAS

SERVICIO: INSTRUMENTO DE GESTIÓN AMBIENTAL – INFORME TECNICO SUSTENTATORIO REV. : A

DESCRIPCIÓN: IMPLEMENTACIÓN DE UN NUEVO DINAMÓMETRO EN LA PLANTA CALLAO PÁG. : 38 DE 76

Tabla 2-25: Imagen de la publicación en el enlace web

Elaboración: Green Planet Strategies & Solutions E.I.R.L.

Cartel informativo

Para difundir de manera completa la realización del Informe Técnico Sustentatorio a los pobladores locales, se procedió a colocar por un periodo de 10 días hábiles, un cartel informativo en la fachada principal del predio que da vista a la vía pública, este se encuentra ubicado en Av. Argentina 4453, distrito y provincia constitucional del Callao Dicho cartel tiene por medidas 1,8 m. de alto por 2,5 m de largo, ello se puede evidenciar en la boleta de impresión adjuntada en el Anexo Nº 07. El cartel se colocó el día XX de diciembre del 2024 y fue retirado el día XX de diciembre del 2024

Buzón de sugerencias

Para recibir observaciones, comentarios y aportes al Informe Técnico Sustentatorio se instaló un buzón de sugerencia el día XX de noviembre del 2024 y se mantuvo en su lugar por un periodo de 10 días hábiles, posterior a ese plazo se aperturó con la finalidad de recabar los aportes brindados por la población, finalmente el buzón fue sellado y retirado contando con una representante de la Notaria XXX, y el Sr. XXXXXX, en representación del titular de la actividad. El acta de apertura y sellado del buzón se presenta en el Anexo Nº 07. Mecanismo de participación ciudadana.

Cabe indicar que durante los 10 días hábiles no se recibieron aportes y/o comentarios en el buzón de sugerencia, esto se evidencia en el acta notarial que se adjunta en el Anexo 07.

PROPIETARIO: KOMATSU MITSUI MAQUINARIAS PERU S.A

SERVICIO: INSTRUMENTO DE GESTIÓN AMBIENTAL – INFORME TECNICO SUSTENTATORIO REV. : A

DESCRIPCIÓN: IMPLEMENTACIÓN DE UN NUEVO DINAMÓMETRO EN LA PLANTA CALLAO PÁG. : 39 DE 76

Tabla 2-26: Buzón de sugerencias instalado con vista a la vía pública (Av. Argentina)

PROPIETARIO:

SERVICIO: INSTRUMENTO DE GESTIÓN AMBIENTAL – INFORME TECNICO SUSTENTATORIO REV. : A

DESCRIPCIÓN: IMPLEMENTACIÓN DE UN NUEVO DINAMÓMETRO EN LA PLANTA CALLAO PÁG. : 40 DE 76

Versión impresa del documento

A fin de difundir el contenido del ITS a los actores involucrados y/o población en general del área de influencia del proyecto, se imprimió un ejemplar preliminar del Informe Técnico Sustentatorio y se dispuso en la zona de garita de la Planta Callao. Este ejemplar se encuentra en ese sitio desde el día XX de noviembre del 2024.

Tabla 2-27: Imágenes de implementación del ejemplar impreso

2.6 Descripción de las actividades y componentes del proyecto que sería modificado, ampliado o a implementar una mejora tecnológica (Aprobado en su IGA)

El proyecto presentado a través del presente Informe Técnico Sustentatorio (ITS) incluye lo siguiente:

➢ Implementación de un nuevo dinamómetro

2.7 Descripción del proceso productivo (aprobado con IGA)

La planta Callao cuenta con diferentes Instrumentos de Gestión Ambiental los cuales se encuentran aprobados a la fecha.

PROPIETARIO: KOMATSU MITSUI MAQUINARIAS PERU S.A

SERVICIO: INSTRUMENTO DE GESTIÓN AMBIENTAL – INFORME TECNICO SUSTENTATORIO REV. : A

DESCRIPCIÓN: IMPLEMENTACIÓN DE UN NUEVO DINAMÓMETRO EN LA PLANTA CALLAO PÁG. : 41 DE 76

Tabla 2-28 Relación de estudios aprobados previamente

Actividad declarada

Venta por mayor de otros tipos de maquinarias y equipos

Ampliación de Planta Taller Machine Shop

Informe de Identificación de Sitios Contaminados (IISC)

Implementación del nuevo Taller KRCP en la Planta Callao de Komatsu Mitsui

Master Plan Infraestructura: Ampliaciones y Remodelaciones Planta Callao

Etapa de Operación - Proceso productivo

Resolución / oficio de aprobación

Oficio N° 3846-2012PRODUCE/DVMYPE-I/DGI-DAAI

R.D. N° 276-2017PRODUCE/DVMYPE-I/DGAAMI

Oficio N° 793-2020PRODUCE/DGAAMI

Resolución Directoral N° 000932023-PRODUCE/DGAAMI

Resolución Directoral N° 006992023-PRODUCE/DGAAM

Estudio ambiental / Año de aprobación

Diagnóstico Ambiental Preliminar (DAP) / 2012

Informe Técnico Sustentatorio (ITS) / 2017

Informe de Identificación de Sitios Contaminados (IISC) /2020

Informe Técnico Sustentatorio (ITS) / 2023

Informe Técnico Sustentatorio (ITS) / 2023

Como parte de este ITS “Implementación de un nuevo dinamómetro en la Planta Callao” se precisa que no se modificarán las actividades o procesos actuales. En ese sentido se a continuación, se describen las actividades declaradas en su IGA primigenio (DAP) y sus IGAs complementarios de la Planta Callao:

a) Mantenimiento y Reparación de componentes

• Recepción: Se recepcionan los componentes de los clientes, ingresando unidades de transporte, se efectúa la maniobra de descarga y se disponen en las áreas de almacenamiento temporal hasta programar su reparación.

• Lavado: Luego de la inspección preliminar en el taller, los componentes son lavados en los lavaderos que se encuentran al inicio de los talleres, donde se hace uso de limpiadores, solventes y agua, generándose efluentes con contenidos de lubricantes, residuos de grasa, petróleo, limpiadores, barro, entre otros, los cuales pasan por un sistema de canaletas a la poza de retención de efluente industrial.

• Mantenimiento y reparación: Luego de ser lavados, los componentes se envían al taller de componentes donde son desarmados en piezas, evaluados, embalados y almacenados temporalmente hasta la confirmación del cliente para la realización del servicio, posterior a ello se inicia el proceso de reparación y/o mantenimiento, en algunos casos las piezas se envían a los talleres de machine shop y/o soldadura para su recuperación, en otros pasan a las líneas de mantenimiento, luego de ello las piezas, junto con los repuestos solicitados y servicios de terceros externos recepcionados, ingresan al proceso de armado para obtener el componente reparado. Ambos talleres cuentan con herramientas y equipos especializados para el diagnóstico

PROPIETARIO: KOMATSU MITSUI MAQUINARIAS

SERVICIO: INSTRUMENTO DE GESTIÓN AMBIENTAL – INFORME TECNICO SUSTENTATORIO REV. : A

DESCRIPCIÓN: IMPLEMENTACIÓN DE UN NUEVO DINAMÓMETRO EN LA PLANTA CALLAO PÁG. : 42 DE 76 y reparación, generándose como principales residuos en esta operación, chatarra, paños y envases contaminados con hidrocarburos, residuos de aceites y grasas, entre otros. Una vez culminado las reparaciones de los componentes, estos son sometidos a pruebas de operatividad.

• Prueba de operatividad: Esta operación consiste en evaluar el componente durante su funcionamiento, analizando diferentes parámetros que reflejen las óptimas condiciones del componente o algún desperfecto, además se realizan pruebas del sistema eléctrico.

• Almacenamiento y despacho de componentes: Posterior a la reparación y/o mantenimiento, los componentes son pintados en la cabina para tales fines, luego son embalados, para finalmente ser despachados en unidades de transporte, caso contrario los componentes son almacenados temporalmente hasta la confirmación del despacho.

Figura 2-10: Diagrama de flujo de las actividades de Mantenimiento y Reparación de Componentes

Fuente: KMMP – Planta Callao

b) Mantenimiento y Reparación y Prueba de Motores

• Recepción: Los motores pueden llegar directamente del cliente, así como también de las áreas internas como la zona de módulos.

• Lavado: Luego de la inspección preliminar en el taller, los motores son lavados en los lavaderos que se encuentran al inicio de los talleres, donde se hace uso de los limpiadores, solventes y agua, generándose efluentes con contenido de lubricantes, residuos de grasa, petróleo,

PROPIETARIO: KOMATSU MITSUI MAQUINARIAS PERU

SERVICIO: INSTRUMENTO DE GESTIÓN AMBIENTAL – INFORME TECNICO SUSTENTATORIO REV. : A

DESCRIPCIÓN: IMPLEMENTACIÓN DE UN NUEVO DINAMÓMETRO EN LA PLANTA CALLAO PÁG. : 43 DE 76 limpiadores, barro, entre otros, los cuales pasan por un sistema de canaletas a la poza de retención de efluente industrial.

• Reparación y/o mantenimiento de motores: En esta actividad se evalúan y diagnostican las fallas y se corrigen los desperfectos. Luego de ser lavados, los motores se envían al taller de motores donde son desarmados en piezas, evaluados, embalados y almacenados temporalmente hasta la confirmación del cliente para la realización del servicio, posterior a ello se inicia el proceso de reparación y/o mantenimiento, en algunos casos las piezas se envían al taller de machine shop para su recuperación, luego de ello las piezas, junto con los repuestos solicitados y servicios de terceros externos recepcionados, ingresan al proceso de armado para obtener el motor reparado. El taller de motores cuenta con herramientas y equipos especializados para el diagnóstico y reparación, además se realiza el mantenimiento de los motores, cambio de piezas o de componentes de los motores; cuyas operaciones generan como residuos, chatarra, paños absorbentes contaminados, residuos de aceites y grasas; luego el motor es derivado al área de dinamómetro (pruebas de desempeño).

• Prueba de Desempeño de motores: Esta prueba de simulación tiene la función de medir todos los parámetros posibles a fin de determinar el desempeño de torque y potencia del motor, así como sus condiciones de operatividad mediante un sistema de mando y haciendo uso de un software especializados que permite efectuar una evaluación general y un diagnóstico real del motor. Para esta operación se emplea un dinamómetro, que es un cuarto donde se prueba el motor, considerando variables de torque y potencia. Luego de conectar todos los dispositivos y sensores, mangueras, entre otros al motor se hace el arranque del motor, hasta que el motor se caliente y luego se procede con la prueba de torque y potencia, normalmente por un periodo de dos (02) a cuatro (04) horas aproximadamente Dentro del dinamómetro al motor se le instala un tubo de escape y durante la prueba, los gases de combustión emitidos por el motor son succionados por un extractor y dirigidos hacia dos (02) chimeneas por cada uno de los dinamómetros.

• Pintado: Luego de haber pasado la prueba de motor, se dispone a pintarlo en un ambiente cerrado y diseñado para tal fin, cabe resaltar que el personal encargado de dicha actividad hace uso de los equipos de protección personal (respirador de doble filtro, guantes y zapatos de seguridad), provistos por la empresa, generándose en dicha actividad papeles y cartones impregnados con pintura, frascos de pintura, entre otros

• Almacenamiento y despacho de motores: Los motores son embalados teniendo como soporte bases metálicas, las mismas con las que fueron recepcionados, posteriormente son trasladados al área de almacenamiento temporal, hasta darse la orden de despacho o gestionar la entrega con el área solicitante.

PROPIETARIO: KOMATSU MITSUI MAQUINARIAS PERU

SERVICIO: INSTRUMENTO DE GESTIÓN AMBIENTAL – INFORME TECNICO SUSTENTATORIO REV. : A

DESCRIPCIÓN: IMPLEMENTACIÓN DE UN NUEVO DINAMÓMETRO EN LA PLANTA CALLAO PÁG. : 44 DE 76

Figura 2-11: Diagrama de flujo de las actividades de Mantenimiento, Reparación y Prueba de Motores

Fuente: KMMP – Planta Callao

c) Descripción de las actividades en el Taller de Módulos

Desarmado y Evaluación de los Componentes: Se realizará la programación de trabajos de acuerdo a la llegada de componentes y se deberá comunicar el desarmado según las prioridades del caso para el ingreso de componentes al taller de módulos. Luego, se procederá a la asignación de los trabajos a los técnicos, por lo que se trasladarán los componentes para la inspección inicial, donde se determinará si se requiere de lavado primario y/o secundario, asimismo se realizará la evaluación técnica para determinar si aplica los ensayos no destructivos (NDT), separando e identificando las partes y piezas, por lo que se evaluará la solicitud de un servicio de tercero. Asimismo, se deberá embalar las partes y piezas para su posterior almacenamiento, finalmente se deberá generar el informe técnico final.

Armado de Componentes: Se realizará la programación semanal para el armado de los componentes, por lo que se realizará la gestión de servicio de terceros y repuestos, lo que conlleva a la asignación de trabajos y coordinaciones del traslado de los componentes al taller para proceder al armado. Luego se

PROPIETARIO: KOMATSU MITSUI MAQUINARIAS PERU

SERVICIO: INSTRUMENTO DE GESTIÓN AMBIENTAL – INFORME TECNICO SUSTENTATORIO REV. : A

DESCRIPCIÓN: IMPLEMENTACIÓN DE UN NUEVO DINAMÓMETRO EN LA PLANTA CALLAO PÁG. : 45 DE 76

realizan las pruebas según corresponda y se realiza el embalado de los componentes para la inspección final donde si el producto no es conforme se indicará en observaciones y se volverá a inspeccionar, mientras que si el producto es conforme se deberá generar el informe técnico final.

Prueba de Componentes: Se realizan las pruebas a los componentes según corresponda, esto conlleva a elaborar un informe y/o completar los resultados dentro del informe final, si los parámetros no están dentro del estándar se genera un producto no conforme y se gestiona el reproceso; mientras que, si los parámetros se encuentran dentro del estándar, se procede a dar conformidad a la prueba y se coordina el traslado del componente a la zona de pintado, en caso amerite el pintado.

Desarmado y Evaluación de Componentes

Armado de Componentes

Prueba de Componentes

Figura 2-12: Diagrama de flujo del Taller de Módulos
Fuente: KMMP – Planta Callao

SERVICIO: INSTRUMENTO DE GESTIÓN AMBIENTAL – INFORME TECNICO SUSTENTATORIO

DESCRIPCIÓN: IMPLEMENTACIÓN DE UN NUEVO DINAMÓMETRO EN LA PLANTA CALLAO

2-13: Diagrama de flujo del Desarmado y Evaluación de Componentes

REV. : A

PÁG. : 46 DE 76

Figura
Fuente: KMMP – Planta Callao

PROPIETARIO: KOMATSU - MITSUI MAQUINARIAS PERU S.A

SERVICIO: INSTRUMENTO DE GESTIÓN AMBIENTAL – INFORME TECNICO SUSTENTATORIO REV. : A

DESCRIPCIÓN: IMPLEMENTACIÓN DE UN NUEVO DINAMÓMETRO EN LA PLANTA CALLAO

PÁG. : 47 DE 76

Figura 2-14: Diagrama de flujo de Armado de Componentes
Fuente: KMMP – Planta Callao

SERVICIO: INSTRUMENTO DE GESTIÓN AMBIENTAL – INFORME TECNICO SUSTENTATORIO REV. : A

DESCRIPCIÓN: IMPLEMENTACIÓN DE UN NUEVO DINAMÓMETRO EN LA PLANTA CALLAO PÁG. : 48 DE 76

Figura 2-15: Diagrama de flujo de Prueba de Componentes

Fuente: KMMP – Planta Callao

d) Actividades desarrolladas en el Taller Machine Shop

• Pintura: se realiza un recubrimiento con pintura epóxica de los componentes terminados en el taller.

• Soldadura: se usa en el proceso de reconstrucción y unión de piezas, los procesos más comunes son la soldadura por arco eléctrico; manual (SMAW) y con alimentador (GMAW).

• Metalizado: Proyección a gran velocidad de material a alta temperatura, se realiza una impregnación mecánica del material de aporte sobre la pieza que se desea recuperar.

• Mecanizado: Proceso de fabricación o recuperación por medio del arranque de viruta sobre una pieza metálica.

• Pulido: Proceso de acabado final de los vástagos de cilindros por medio de una faja giratoria a altas revoluciones.

SERVICIO: INSTRUMENTO DE GESTIÓN AMBIENTAL – INFORME TECNICO SUSTENTATORIO REV. : A

DESCRIPCIÓN: IMPLEMENTACIÓN DE UN NUEVO DINAMÓMETRO EN LA PLANTA CALLAO PÁG. : 49 DE 76

3 PROYECTO DE MODIFICACIÓN, AMPLIACIÓN O UNA MEJORA

TECNOLÓGICA MEDIANTE EL ITS

3.1 Objetivo del ITS

Contar con un mejor abastecimiento para las pruebas de motores con características diferentes que ingresen a la Planta Callao

3.2 Justificación

La ejecución del proyecto prevé la generación de impactos ambientales no significativos y se encuentra enmarcado en los supuestos de ampliación, debido a la implementación de un nuevo dinamómetro

Por otro lado, de acuerdo a lo dispuesto en el numeral 48.1 del Reglamento de Gestión Ambiental para la Industria Manufacturera y Comercio Interno, modificado mediante el D.S. 012-2024-PRODUCE: “Cuando el titular de un proyecto de inversión en ejecución o de una actividad en curso, que cuenta con instrumento de gestión ambiental aprobado, decide modificar componentes o hacer cambios o ampliaciones sobre los que no se prevea la generación de impactos ambientales significativos, pudiendo ser estas mejoras tecnológicas en las operaciones u otro tipo de modificaciones con impactos ambientales potenciales no significativos, está obligado a elaborar un Informe Técnico Sustentatorio (ITS) justificando estar en dichos supuestos ante la autoridad competente antes de su implementación.”

La implementación del nuevo dinamómetro no modificará la capacidad productiva o de servicios de la Planta Callao, ni busca incrementar el consumo de insumos o materiales utilizados actualmente en el predio

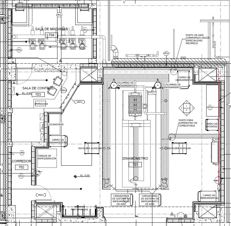
3.3 Generalidades

El proyecto comprende la implementación de un nuevo dinamómetro en un área contigua al espacio donde se ubican los dinamómetros ya existentes en Planta Callao. El proyecto también comprende la implementación de un área de control administrativa y un área de soporte técnico (equipos complementarios)

La implementación del proyecto comprende lo siguiente:

➢ Etapa de construcción: Esta etapa contempla básicamente las actividades de:

✓ Obras civiles

✓ Obras electromecánicas

✓ Obras sanitarias

✓ Acabados y terminaciones

PROPIETARIO: KOMATSU MITSUI MAQUINARIAS PERU S.A

SERVICIO: INSTRUMENTO DE GESTIÓN AMBIENTAL – INFORME TECNICO SUSTENTATORIO REV. : A

DESCRIPCIÓN: IMPLEMENTACIÓN DE UN NUEVO DINAMÓMETRO EN LA PLANTA CALLAO PÁG. : 50 DE 76

➢ Etapa de operación: Esta etapa contempla básicamente la operación del nuevo dinamómetro

Estado y características del área a utilizar

Tabla 3-1 Ubicación del dinamómetro

Fuente: KMMP-Planta Callao

Implementación nuevo dinamómetro

SERVICIO: INSTRUMENTO DE GESTIÓN AMBIENTAL – INFORME TECNICO SUSTENTATORIO REV. : A

DESCRIPCIÓN:

3.4 Justificar en que supuesto se encuentra el proyecto (modificación, ampliación o una mejora tecnológica)

El proyecto de “Implementación de un nuevo dinamómetro” en la Planta Callao” se encuentra bajo los siguientes supuestos:

- Ampliación: El proyecto contempla la implementación de nuevo dinamómetro en un área contigua al espacio donde se ubican los dinamómetros ya existentes en Planta Callao

3.5 Descripción de las actividades y componentes que propone el ITS

La etapa de construcción y/o habilitación contempla las actividades de tipo civil y mecánico-eléctrico, en la siguiente tabla se describen las actividades principales a realizarse

Tabla 3-2: Etapa de construcción y/o instalación

Construcción Implementación de un nuevo dinamómetro

Obras civiles

Obras electromecánicas

Obras sanitarias

Acabados y terminaciones

Implementación de un nuevo dinamómetro

Obras civiles

- Demolición de estructura existente.

- Excavaciones y cimentaciones.

- Tabiquería y divisiones internas

- Instalación de tuberías y canalizaciones

- Instalación de equipos de iluminación y tableros

- Instalación de tuberías

- Instalación de aparatos sanitarios.

- Instalación de los acabados

- Montaje de equipos.

Se realizará la desconexión y retiro de todas las instalaciones existentes, para luego proceder con la demolición de las estructuras existentes, donde se emplazará la nueva edificación.

Posteriormente se realizará la excavación masiva para la ejecución de la cisterna enterrada, hasta una profundidad de alrededor de 3.50 metros, para luego ejecutar la losa y muros de contención de la cisterna hasta el nivel +/-0.00.

Luego, se procede a ejecutar las cimentaciones de los muros perimetrales de las cabinas de prueba, control y sala de bombas, para posteriormente ejecutar las placas, columnas y losas del sistema aporticado, para finalmente concluir con la ejecución de la tabiquería de cierre perimetral y divisiones internas de las cabinas de control y sala de bombas.

Obras electromecánicas

PROPIETARIO: KOMATSU MITSUI MAQUINARIAS PERU

SERVICIO: INSTRUMENTO DE GESTIÓN AMBIENTAL – INFORME TECNICO SUSTENTATORIO REV. : A

DESCRIPCIÓN: IMPLEMENTACIÓN DE UN NUEVO DINAMÓMETRO EN LA PLANTA CALLAO PÁG. : 52 DE 76

Se instalarán todas las tuberías y canalizaciones de los sistemas electromecánicos ya que las líneas principales van embebidas dentro de la estructura de casco del nuevo edificio.

Una vez culminado el casco estructural u obra gruesa, se procede a realizar el cableado de todos los puntos eléctricos (salidas para los puntos de luz, tomacorrientes e interruptores), así como el tendido de bandejas eléctricas y ubicación de tableros eléctricos principales dentro de los cuartos técnicos del nuevo edificio.

Finalmente, luego de la ejecución de acabados de los distintos niveles, las obras electromecánicas culminarán con la instalación de los equipos de iluminación en general, sistema de ventilación forzada, detectores y cámaras, para terminar con el montaje de equipos de prueba de motores como son el dinamómetro y torre de enfriamiento.

Obras sanitarias

Se instalarán todas las tuberías que conformaban el sistema sanitario, para que estas queden también embebidas dentro de la estructura principal de cada nivel

Una vez culminado el casco estructural u obra gruesa, se procede a realizar la instalación de las cajas de válvulas de corte y posteriormente el montaje de bombas de agua de impulsión.

Acabados y terminaciones

Instalación de los acabados, como son los paneles acústicos, pintura, carpintería (puertas y ventanas) y señalética de evacuación.

Etapa de Operación del proyecto

El nuevo dinamómetro tendrá la misma función que los que actualmente se encuentran instalados en planta. Es decir, se utilizará para las pruebas de nuevos tipos de motores.

3.6 Plano que propone el ITS

El desarrollo del proyecto a instalarse en el interior del predio, no prevé cambiar la naturaleza de los procesos realizados en la Planta Callao En el Anexo N° 03 se presenta el plano de distribución actual de la planta, además del plano incluyendo los componentes proyectados objeto del presente informe.

PROPIETARIO: KOMATSU MITSUI MAQUINARIAS

SERVICIO: INSTRUMENTO DE GESTIÓN AMBIENTAL – INFORME TECNICO SUSTENTATORIO REV. : A

DESCRIPCIÓN: IMPLEMENTACIÓN DE UN NUEVO DINAMÓMETRO EN LA PLANTA CALLAO PÁG. : 53 DE 76

3.7 Recursos e insumos a requerir para implementar el ITS

3.7.1 Para la etapa de construcción

➢ Recursos e insumos

Para la etapa de construcción y/o instalación se emplearán diferentes materias primas, materiales y/o insumos, los mismos que se presentan a continuación:

Tabla 3-3: Recursos e insumos a emplear - etapa de construcción

Equipo / área

Tipo

Insumos

Implementación del Dinamómetro

Equipos

Fuente: KMMP-Planta Callao

➢ Tipo y cantidad de energía

Descripción

Cantidad

Madera para encofrado 1 200 m2

Fierro de construcción 30 000 kg

Concreto

Estructura metálica

Pintura

400 m3

900 kg

350 m2

Equipamiento 1 und

Retro excavadora 1 und Volquetes 2 und

Mixer de concreto 2 und Grúa (15 Tn) 1 und

Se estima que, para el uso de equipos y maquinarias durante la ejecución de las obras, se tendrá un consumo aproximado de 40 Kw-H/mes

➢ Tipo y cantidad de agua

Durante la etapa de construcción, el consumo de agua corresponde al uso doméstico debido al uso de los servicios higiénicos del personal de obra Se estimo un consumo aproximado de 5 m3/mes

➢ Consumo de combustible

Durante la etapa de construcción del proyecto no se utilizará algún tipo de combustible

➢ Fuerza Laboral

Durante la etapa de construcción del proyecto se emplearán 50 trabajadores en un turno de trabajo: de lunes a viernes de 7.30 am a 5.30 pm, y sábados de 7.30 am a 1.00 pm

➢ Generación de residuos

PROPIETARIO: KOMATSU MITSUI MAQUINARIAS PERU S.A

SERVICIO: INSTRUMENTO DE GESTIÓN AMBIENTAL – INFORME TECNICO SUSTENTATORIO REV. : A

DESCRIPCIÓN: IMPLEMENTACIÓN DE UN NUEVO DINAMÓMETRO EN LA PLANTA CALLAO PÁG. : 54 DE 76

Los Residuos Peligrosos y No Peligrosos que se generarán como parte de la etapa de construcción del proyecto, serán dispuestos a través de una EO-RS debidamente registrada ante la autoridad competente (MINAM); para el almacenamiento de los residuos se hará uso de los almacenes de residuos sólidos presente en el predio, de acuerdo a lo establecido en el Plan de Minimización y Manejo de Residuos

Sólidos (Ver anexo N° 05).

Tabla 3-4: Tipo de residuos a ser generados - etapa de construcción

Tipo de residuo

Desmonte (tierras, restos de demolición de base) No Peligroso 500 m3 Mediante una EO-RS

Metales Chatarra (alambre, clavos, fierros) No Peligroso 100 kg Mediante una EO-RS

Fuente: Komatsu Mitsui Maquinarias Perú S.A.

➢ Generación de efluentes

Durante la etapa de construcción, no se generarán efluentes industriales, los efluentes a generarse por el presente proyecto corresponden a aguas residuales domésticas, que vendrán del uso de los servicios higiénicos con los que cuenta la planta, las descargas serán derivadas a la poza de almacenamiento de aguas residuales domésticas para luego ser derivadas a la red de alcantarillado de la planta

➢ Emisiones atmosféricas (material particulado y gases de combustión)

Durante la etapa de construcción, se generará material particulado como consecuencia de las obras civiles, sin embargo, se debe tener en consideración que las obras civiles serán realizadas en un corto periodo de tiempo. Los gases de combustión serán generados como consecuencia del ingreso de vehículos a las instalaciones de la planta trayendo consigo los materiales, equipos y/o maquinaria, para este caso se verificará que los vehículos se encuentren en perfecto estado y cuenten con sus certificados de Inspección Técnica Vehicular.

3.7.2 Para la etapa de operación

➢ Recursos e insumos

Para la etapa de operación se seguirán empleando las mismas materias primas, insumos y/o materiales utilizados actualmente en la planta callao, se presentan los insumos a utilizar por equipo y/o área.

Tabla 3-5: Recursos e insumos a emplear - etapa de operación

Equipo / área Material / insumos Cantidad

Instalación de un nuevo dinamómetro

Fuente: Komatsu Mitsui Maquinarias Perú S.A.

6 m3/mes

➢ Productos terminados

PROPIETARIO: KOMATSU MITSUI MAQUINARIAS PERU S.A

SERVICIO: INSTRUMENTO DE GESTIÓN AMBIENTAL – INFORME TECNICO SUSTENTATORIO REV. : A

DESCRIPCIÓN: IMPLEMENTACIÓN DE UN NUEVO DINAMÓMETRO EN LA PLANTA CALLAO PÁG. : 55 DE 76

Durante la etapa de operación no se modificará la cantidad de los productos terminados que se tienen actualmente en la Planta Callao.

➢ Tipo y cantidad de energía

En la tabla que se muestra a continuación, se observa el consumo actual de energía eléctrica y el consumo proyectado que se utilizará para la etapa de operación del proyecto.

Tabla 3-6: Consumo de energía - etapa de operación

Descripción

eléctrica

Cantidad consumida actual Kw-H/mes (Sin ITS) *

Cantidad estimada a consumir en el proyecto

Porcentaje de variación con

* De acuerdo a lo declarado en el ITS del proyecto “Master Plan Infraestructura: ampliaciones y remodelaciones Planta Callao”

Fuente: Komatsu Mitsui Maquinarias Perú S.A

➢ Tipo y cantidad de agua

Se prevé el consumo de agua durante el funcionamiento del dinamómetro a razón de 46,33 m3 anuales (3,86 m3/mes)

➢ Consumo de combustible

El funcionamiento del nuevo dinamómetro prevé el empleo de diésel durante la prueba de motores

Tabla 3-7: Consumo de combustible – etapa de operación

Descripción

* De acuerdo a lo declarado en el ITS del proyecto “Master Plan Infraestructura: ampliaciones y remodelaciones Planta Callao”

Fuente: Komatsu Mitsui Maquinarias Perú S.A.

➢ Fuerza Laboral

Durante la etapa de operación no se prevé variar la cantidad de personal que labora actualmente en la Planta Callao.

➢ Equipos a instalar

Adicional a la instalación del dinamómetro, para la etapa de operación del proyecto se prevé implementar una torre de enfriamiento que permitirá recircular el agua durante el funcionamiento del dinamómetro.

Tabla 3-8: Relación de equipos a implementar durante la operación del proyecto

Equipo Marca / Modelo Otras características

Dinamómetro Power Test / H36

Torre de enfriamiento Evapcop / AX-12

Fuente: Komatsu Mitsui Maquinarias Perú S.A.

➢ Generación de residuos

PROPIETARIO: KOMATSU MITSUI MAQUINARIAS PERU S.A

SERVICIO: INSTRUMENTO DE GESTIÓN AMBIENTAL – INFORME TECNICO SUSTENTATORIO REV. : A

DESCRIPCIÓN: IMPLEMENTACIÓN DE UN NUEVO DINAMÓMETRO EN LA PLANTA CALLAO PÁG. : 56 DE 76

Los residuos peligrosos y no peligrosos que se generarán como parte de la etapa de operación del proyecto, serán dispuestos a través de una EO-RS debidamente registrada ante la autoridad competente (MINAM); para el almacenamiento de los residuos se hará uso de los almacenes de residuos sólidos presente en el predio, así mismo, durante la etapa de operación del proyecto se verificará la implementación del Plan de Minimización y Manejo de Residuos Sólidos (Ver Anexo N° 05).

Tabla 3-9: Tipo de residuos a ser generados - etapa de operación

Tipo de Residuo

Trapos y materiales utilizados para limpieza

Tipo de residuos

Cantidad aproximada*

Peligrosos 200 kg/mes

Disposición final

Mediante una EO-RS

* Cantidad estimada que puede variar en función a las necesidades de operación del dinamómetro.

Fuente: Komatsu Mitsui Maquinarias Perú S.A.

➢ Generación de efluentes

Los efluentes a generarse por la operación del presente ITS corresponden a aguas residuales domésticas, que vendrán del uso de los servicios higiénicos con los que cuenta la planta, las descargas serán derivadas a la red de alcantarillado de la planta

3.8 Presentar un cronograma de ejecución y el costo del proyecto

3.8.1 Cronograma de ejecución del proyecto

Se estima que la ejecución del proyecto tomará un tiempo aproximado de 04 meses. En la Tabla siguiente se presenta el cronograma de ejecución del proyecto; asimismo, se indica que la vida útil del proyecto será de aproximadamente 20 años

Tabla 3-10: Cronograma de la etapa de construcción del proyecto

Etapas / Actividades

Obras civiles

Año 2024

Mes 1 Mes 2 Mes 3 Mes 4

Demolición de estructura existente X

Excavaciones y cimentaciones X X

Tabiquería y divisiones internas X

Obras electromecánicas

Instalación de tuberías y canalizaciones X X

Instalación de equipos de iluminación y tableros X X

Obras sanitarias

Instalación de tuberías X X

Instalación de aparatos sanitarios X X

SERVICIO: INSTRUMENTO DE GESTIÓN AMBIENTAL – INFORME TECNICO SUSTENTATORIO REV. : A

DESCRIPCIÓN: IMPLEMENTACIÓN DE UN NUEVO DINAMÓMETRO EN LA PLANTA CALLAO PÁG. : 57 DE 76

Etapas / Actividades

Acabados y terminaciones

Año 2024 Mes 1 Mes 2 Mes 3 Mes 4

Instalación de los acabados X X

Montaje de equipos X

Fuente: KMMP-Planta Callao

Costo del proyecto

En el siguiente cuadro se presenta el costo aproximado de la ejecución del proyecto, el cual es de S/ 4 620 000,00.

3-11: Costos del proyecto

Etapa/Actividades Costo (S/.)

Instalación de un nuevo dinamómetro

Obras civiles 500 000

Obras mecánicas 4 000 000

Obras eléctricas

Fuente: KMMP-Planta Callao

3.9 Presentar información actualizada de los componentes ambientales a ser impactados por la modificación, ampliación o una mejora tecnológica (indicar la fuente de información primaria o secundaria)

Los componentes socio ambientales son el conjunto de elementos del medio físico (aire, agua, suelo, relieve, etc.), biológico (fauna, vegetación) y del medio social (relaciones sociales, actividades económicas, etc ), susceptibles a cambios, positivos o negativos, como consecuencia de la ejecución de un proyecto

Se precisa que, para la implementación y operación del proyecto, los componentes ambientales no serán impactados negativamente debido a que esta zona ya se encuentra intervenida por industrias, comercios y zonas urbanas, asimismo, porque el proyecto se realizará dentro de la Planta Callao.

3.10 Identificación y evaluación de impactos ambientales

Producto del desarrollo de las actividades de la actividad en curso, se prevé la generación de impactos que podrían afectar al medio, ya sea de manera negativa o positiva, por lo cual, se llevará a cabo una identificación y evaluación de los impactos que se vienen manifestando o que podrían manifestarse, con la finalidad de diseñar e implementar las medidas de manejo para prevenir, mitigar y/o corregir dichos impactos.

Tabla

PROPIETARIO: KOMATSU MITSUI MAQUINARIAS PERU S.A

SERVICIO: INSTRUMENTO DE GESTIÓN AMBIENTAL – INFORME TECNICO SUSTENTATORIO REV. : A

DESCRIPCIÓN: IMPLEMENTACIÓN DE UN NUEVO DINAMÓMETRO EN LA PLANTA CALLAO PÁG. : 58 DE 76

Para dicho fin, se ha considerado como metodología de identificación y evaluación de los impactos la propuesta por Vicente Conesa-Fernández, en su obra titulada “Guía Metodológica para la Evaluación del Impacto Ambiental” (2010), permitiendo identificar y calificar, de manera cualitativa, los impactos por la ejecución de las actividades en curso en su medio circundante. Dicha herramienta facilitará la visualización global e identificación de todas las posibles modificaciones introducidas al sistema actual (medio) por la ejecución de las actividades en curso.

Los impactos ambientales serán evaluados de acuerdo con su condición de directo o indirecto, de corto, mediano o largo plazo, si estos presentan condiciones de acumulación o no y si presentan sinergia o no entre ellos. Asimismo, en la selección de actividades o acciones, se optará por aquellas que tienen incidencia sobre los diversos componentes o factores ambientales. Del mismo modo, en lo concerniente a elementos ambientales se optará por aquellos de mayor relevancia ambiental, en relación con la sensibilidad ambiental del área, considerando la información obtenida de la línea base ambiental.

Luego de identificados los impactos ambientales, sobre la base del análisis de interacción entre las actividades de la actividad en curso y los componentes ambientales del área de influencia, se construyó una matriz de importancia de impactos ambientales, que permitirá obtener una valorización cualitativa de los impactos. En esta matriz se colocaron los impactos ambientales identificados en filas y los atributos ambientales de evaluación en las columnas. Esta matriz mide el impacto en base al grado de manifestación del efecto que quedará reflejado en la Importancia del Impacto Ambiental, correspondiente a la metodología de CONESA, 20103 .

3.10.1 Identificación de las actividades del proyecto

En esta sección se identifica las actividades que podrían generar un impacto sobre el ambiente. Estas actividades podrían ser las fuentes de impactos ambientales y sociales, y han sido identificadas para las etapas de construcción, operación y cierre

En el cuadro siguiente se presenta las actividades que se han identificado como posibles fuentes de impactos asociados a las etapas de construcción, operación y abandono de la actividad, sin embargo, más adelante en la matriz de identificación de impactos, se hace una evaluación a fin de determinar si efectivamente estas actividades tendrán impactos sobre algún componente ambiental.

3 Conesa, V. Guía Metodológica para la Evaluación del Impacto Ambiental, 2010. Cuarta Edición. Editorial Mundi-Prensa

Etapa

Construcción

Operación

Cierre

KOMATSU

SERVICIO: INSTRUMENTO DE GESTIÓN AMBIENTAL – INFORME TECNICO SUSTENTATORIO REV. : A

DESCRIPCIÓN: IMPLEMENTACIÓN DE UN NUEVO DINAMÓMETRO EN LA PLANTA CALLAO PÁG. : 59 DE 76

Tabla 3-12: Identificación de las actividades

Actividades

❖ Obras civiles

❖ Obras electromecánicas

❖ Obras sanitarias

❖ Acabados y terminaciones

❖ Mantenimiento de los equipos instalados

❖ Mantenimiento y limpieza de áreas

❖ Desmontaje y retiro de estructuras y equipos

❖ Limpieza del sitio

3.10.2 Identificación de los aspectos ambientales de las actividades

La siguiente lista, contiene los aspectos ambientales que podrían ser consecuencias de las actividades en las etapas de construcción, operación y cierre ya descritas.

Tabla 3-13: Aspectos ambientales de la actividad

Etapa del proyecto Aspectos ambientales

❖ Generación de ruido.

❖ Generación de residuos.

Construcción

Operación

Cierre

❖ Generación de material particulado

❖ Generación de emisiones por fuente móviles.

❖ Generación de ruido.

❖ Generación de residuos

❖ Generación de ruido.

❖ Generación de residuos.

❖ Generación de material particulado.

❖ Generación de emisiones por fuente móviles.

3.10.3 Identificación de los factores y componentes ambientales

Se identificaron los componentes ambientales que podrían ser afectados por la ejecución de la actividad en las fases de construcción, operación y cierre. Para realizar dicha identificación se consideró la información de la línea base ambiental. La identificación de los impactos potenciales estuvo vinculada con el estado actual, calidad y otras características de estos componentes. Los componentes evaluados a considerarse en el análisis de impactos se muestran en la siguiente tabla.

Tabla 3-14: Tabla de identificación de componentes ambientales

Calidad

Calidad del suelo

Medio socio-económico Económico Empleo

PROPIETARIO: KOMATSU MITSUI MAQUINARIAS PERU

SERVICIO: INSTRUMENTO DE GESTIÓN AMBIENTAL – INFORME TECNICO SUSTENTATORIO REV. : A

DESCRIPCIÓN: IMPLEMENTACIÓN DE UN NUEVO DINAMÓMETRO EN LA PLANTA CALLAO PÁG. : 60 DE 76

3.10.4 Metodología de identificación y evaluación de impactos ambientales

La identificación de los impactos ambientales está basada en la correlación que se realiza entre las actividades del proyecto y los efectos del mismo sobre los componentes ambientales, es decir la relación causa – efecto, existente.

La evaluación de los impactos ambientales consiste en un análisis matricial, el cual permitirá evaluar la importancia de los principales impactos ambientales identificados, la importancia se evaluará de acuerdo a criterios de indicadores tales como: carácter, intensidad, extensión, etc.

La identificación y evaluación de los impactos ambientales, permitirá establecer de manera oportuna las medidas y acciones necesarias, que deberán ser consideradas en el Plan de Manejo Ambiental, de forma que permita evitar y/o atenuar las implicancias ambientales negativas, garantizando la conservación del entorno.

- Metodología para la identificación de impactos ambientales

Posterior a haber identificado a cada una de las actividades y componentes ambientales con los que podrían interactuar, estos se ubican en una Matriz de doble entrada; los factores ambientales se colocan en las filas y los componentes de la actividad se colocan en las columnas. La intersección de los componentes de la actividad y los componentes ambientales, en la matriz de doble entrada, nos determinará un posible impacto ambiental.

En la identificación de impactos ambientales se considerará las actividades del proyecto que tengan incidencia probable y significativa sobre los factores ambientales.

Cabe resaltar que, en el presente estudio, los impactos ambientales son determinados según evaluación teórica y/o por experiencia del equipo evaluador.

En el siguiente cuadro presentamos el modelo de la matriz de identificación de impactos ambientales; más adelante se presenta la matriz desarrollada.

Tabla 3-15: Modelo de la matriz de identificación de impactos ambientales

Actividades del proyecto

Componentes ambientales

Etapa de construcción Etapa de operación Etapa de cierre

Obras civiles Mantenimiento Desmontaje

Impacto ambiental negativo (-1) / Impacto ambiental positivo (+1)

Fuente: Guía metodológica para la evaluación de impacto ambiental”, Vicente Conesa Fernández – Vitora 4ta. Edición (2010).

PROPIETARIO: KOMATSU MITSUI MAQUINARIAS PERU

SERVICIO: INSTRUMENTO DE GESTIÓN AMBIENTAL – INFORME TECNICO SUSTENTATORIO REV. : A

DESCRIPCIÓN: IMPLEMENTACIÓN DE UN NUEVO DINAMÓMETRO EN LA PLANTA CALLAO PÁG. : 61 DE 76

- Metodología para la evaluación de impactos Ambientales

Una vez realizada la identificación de las actividades generadoras de impactos ambientales y los componentes ambientales que podrían ser afectados durante la etapa de construcción, operación y cierre del proyecto se procede a evaluar la importancia y/o significancia de los impactos ambientales.

Para la evaluación de los posibles impactos ambientales, se consideró la Guía metodológica para la evaluación del impacto ambiental, de Vicente Conesa Fernández-Vitora 4ta edición (2010). Esta metodología presenta una información integrada de los impactos sobre el medio ambiente, que, una vez introducida en un modelo numérico de valoración, culminará en la determinación del impacto final.

En la matriz de evaluación de impactos se considera la valoración de una serie de atributos propios de los impactos ambientales para luego a través de una aplicación de la fórmula propuesta en la metodología, se obtenga el valor del impacto denominándose “Importancia del Impacto”, que refiere a la importancia del impacto ambiental del accionar de una actividad sobre un componente ambiental. Los atributos de los impactos ambientales considerados en la metodología aplicada son: naturaleza, intensidad, extensión, momento, persistencia, reversibilidad, sinergia, acumulación, efecto, periodicidad, y recuperabilidad; a continuación, se describe cada uno de los atributos:

• Naturaleza (N): El signo del impacto hace referencia a la naturaleza del impacto, Si es beneficioso, el signo será positivo y se indica como “+1”, si es perjudicial, el signo será negativo y se indica como: “-1”

• Intensidad (I): Grado de incidencia de la acción sobre el factor, en el ámbito específico que actúa

• Extensión (EX): Área de influencia teórica del impacto en relación con el entorno del proyecto, expresado en relación al porcentaje del área de influencia, en que se manifiesta el impacto

• Momento (MO): Tiempo que transcurre entre la aparición de la acción y el comienzo del efecto sobre el factor considerado

• Persistencia (PE): Tiempo supuesto de permanencia del efecto desde su aparición y, a partir del cual el factor ambiental afectado retornaría a las condiciones iniciales previas a la acción por medios naturales, o mediante la introducción de medidas correctoras.

• Reversibilidad (RV): Posibilidad de retorno, en el tiempo, del factor ambiental por medios naturales a las condiciones que tenía antes de la ocurrencia de la acción.

• Sinergia (SI): Contempla el reforzamiento de dos o más impactos simples

• Acumulación (AC): Incremento de la manifestación de un impacto cuando persiste reiteradamente la acción que lo genera

SERVICIO: INSTRUMENTO DE GESTIÓN AMBIENTAL – INFORME TECNICO SUSTENTATORIO REV. : A

DESCRIPCIÓN: IMPLEMENTACIÓN DE UN NUEVO DINAMÓMETRO EN LA PLANTA CALLAO PÁG. : 62 DE 76

• Efecto (EF): Manifestación del efecto sobre un factor como consecuencia de una acción

• Periodicidad (PR): Regularidad de manifestación del impacto

• Recuperabilidad (RB): Posibilidad de reconstrucción, total o parcial, del factor afectado como consecuencia del proyecto, es decir, la posibilidad de retornar a las condiciones iníciales previas a la actuación, por medio de la intervención humana (introducción de medidas correctoras)

Los atributos se valoran cruzando una actividad con el componente ambiental, que se estima se verá impactado, Los valores de los atributos se presentan en la tabla siguiente:

Tabla 3-16: Criterios de valoración asignados a los impactos ambientales

(N)

(I)

(EX)

de

Sinergia (SI)

Potencia de la manifestación Sin sinergismo (simple) 1

Recuperabilidad (RB) Reconstrucción por medios humanos

(PR)

moderado 2

a corto plazo 2

Recuperable a medio plazo 3 Reversibilidad (RV)

a largo plazo 4

sustituible y compensable 4

por medios naturales

plazo 1

plazo 2

plazo 3 Irrecuperable 8

Fuente: Guía Metodológica para la Evaluación del Impacto Ambiental – Vicente Conesa Fernandez-Vitora 4ta Edición (2010)

4

PROPIETARIO: KOMATSU MITSUI MAQUINARIAS

SERVICIO: INSTRUMENTO DE GESTIÓN AMBIENTAL – INFORME TECNICO SUSTENTATORIO REV. : A

DESCRIPCIÓN: IMPLEMENTACIÓN DE UN NUEVO DINAMÓMETRO EN LA PLANTA CALLAO PÁG. : 63 DE 76

Determinación de la importancia de cada impacto

El nivel de importancia de un impacto está orientado a jerarquizar la relevancia de los efectos ambientales analizados. Se define como un valor que mide la importancia del impacto ambiental de una interacción entre el accionar de una actividad y un componente ambiental. Es el resultado de la formulación que integra todos los atributos propios de los impactos ambientales.

La formulación para determinar el Índice de Importancia es:

En donde:

II = Importancia del impacto

N = Naturaleza del impacto

I = Intensidad del impacto

EX = Extensión del impacto

MO = Momento

PE = Persistencia

Jerarquización de los Impacto Ambientales

RV = Reversibilidad

SI = Sinergia

AC = Acumulación

EF = Efecto

PR = Periodicidad

RB = Recuperabilidad

En concordancia a la clasificación del riesgo ambiental establecido en el art. N°4 del D.L. 1394, decreto legislativo que fortalece el funcionamiento de las autoridades competentes en el marco del sistema nacional de evaluación del impacto ambiental, el cual clasifica el riesgo ambiental en Leve, Moderado y Alto, se ha establecido el siguiente cuadro.

Tabla 3-17: Significancia de los impactos ambientales

Nivel de Importancia

Fuente referencial: Guía Metodológica para la Evaluación del Impacto Ambiental – Vicente Conesa Fernandez-Vitora 4ta Edición (2010). Cabe indicar que indicar que la metodología de evaluación propuesta por Vicente Conesa ha sido adecuada a efectos del presente estudio con la finalidad de evaluar los impactos en base a la significancia. II= N (3I + 2EX + MO + PE +

del Impacto Ambiental

PROPIETARIO: KOMATSU MITSUI MAQUINARIAS PERU

SERVICIO: INSTRUMENTO DE GESTIÓN AMBIENTAL – INFORME TECNICO SUSTENTATORIO REV. : A

DESCRIPCIÓN: IMPLEMENTACIÓN DE UN NUEVO DINAMÓMETRO EN LA PLANTA CALLAO PÁG. : 64 DE 76

Desarrollo de la matriz de Identificación y Evaluación de Impactos Ambientales

Para la elaboración de la matriz de identificación de impactos ambientales se procedió, como paso previo, a reconocer a aquellas actividades del proyecto, cuyo desarrollo pudieran ocasionar mayores impactos ambientales

Una vez identificadas las actividades críticas; y teniendo en cuenta los componentes ambientales a impactar, se procedió a la elaboración de la matriz de identificación de impactos ambientales, teniendo como base la matriz de identificación de impactos ambientales, se procedió a la correspondiente evaluación de los mismos a través de la matriz de evaluación de impactos ambientales

INSTRUCCIONES:

PROPIETARIO: KOMATSU MITSUI MAQUINARIAS PERU S.A.

SERVICIO: INSTRUMENTO DE GESTIÓN AMBIENTAL – INFORME TECNICO SUSTENTATORIO REV. : A

DESCRIPCIÓN: IMPLEMENTACIÓN DE UN NUEVO DINAMÓMETRO DE LA PLANTA CALLAO

Tabla 3-18: Matriz de identificación de impactos ambientales

1° Identificar todas las actividades cuyos aspectos ambientales pudieran ocasionar mayores impactos.

2° Identificar todos los medios / factores ambientales, al igual que sus componentes y elementos.

3° Bajo cada una de las actividades propuestas, marcar una “- 1” o "+ 1" en la intercepción con cada uno de los componentes en caso el posible impacto sea negativo o positivo respectivamente.

CONTRUCCIÓN

PÁG. : 65 DE 76

OBRAS CIVILES OBRAS ELECTROMECÁNICAS OBRAS SANITARIAS ACABADOS Y TERMINACIONES

OPERACIÓN Y MANTENIMIENTO CIERRE

Calidad de aire Alteración de la calidad del aire por generación de material particulado y gases

Demolición de estructuras existentes

Excavaciones y cimentaciones

Tabiquería y divisiones internas

Instalación de tuberías y cana lizaciones

Instalación de equipos de iluminación y tableros

Instalación de tuberías

Instalación de aparatos sanit arios

Instalación d e acabados

Montaje de equipos

Mantenimiento de equipos instalado s

Mantenimiento y limpieza de áreas

Desmontaje y retiro de estructuras y equipos

Limpieza del sitio MEDIO COMPONENTE AMBIENTAL FACTOR AMBIENTAL IMPACTOS

Calidad de suelo

Elaboración: Green Planet Strategies & Solutions E.I.R.L.

INSTRUCCIONES

DESCRIPCIÓN:IMPLEMENTACIÓNDEUNNUEVODINAMÓMETRODELAPLANTACALLAO

1° Identificar todas las actividades cuyos aspectos ambientales pudieran ocasionar mayores impactos.

2° Valorar los criterios asignados a los impactos ambientales generados por la actividad de acuerdo a los 11 criterios indicados

Tabla3-19:Matrizdeevaluacióndeimpactosambientales

CRITERIOS

CONSTRUCCIÓN

Demolición de estructura existente

Obras civiles

Obras electromecánicas

Excavaciones y cimentaciones

Tabiquería y divisiones internas

Instalación de tuberías y canalizaciones

Instalación de eq. de iluminación y tableros

Instalación de tuberías

Obras sanitarias

Instalación de aparatos sanitarios

Acabados y terminaciones

OPERACIÓN Y MANTENIMIENTO

CIERRE

Instalación de acabados

y limpieza de áreas

y limpieza de áreas

Desmontaje y retiro de estructuras y equipos Cierre de actividades

Limpieza del sitio

Elaboración: Green Planet Strategies & Solutions E.I.R.L

PROPIETARIO: KOMATSU MITSUI MAQUINARIAS

SERVICIO: INSTRUMENTO DE GESTIÓN AMBIENTAL – INFORME TECNICO SUSTENTATORIO REV. : A

DESCRIPCIÓN: IMPLEMENTACIÓN DE UN NUEVO DINAMÓMETRO DE LA PLANTA CALLAO PÁG. : 67 DE 76

3.11 Interpretación de las matrices ambientales

Etapa de Construcción

Alteración de la calidad del aire por generación de material particulado

Como parte de las actividades en las obras civiles se prevé un incremento en la concentración de material particulado. No obstante, se considera que el impacto generado por estas actividades es categorizado como impacto negativo como No significativo debido a:

➢ Las zonas de desplazamiento de los vehículos hacia el área del proyecto están asfaltadas

➢ Todas las áreas de intervención del proyecto se encuentran en el interior de la Planta Callao.

➢ Las actividades relacionadas a las obras civiles se realizarán en un corto tiempo en las áreas donde se instalará el proyecto.

➢ El área del proyecto será delimitada con cobertura metálica para evitar en mayor proporción la dispersión del material particulado

➢ Las zonas de tránsito de los vehículos en el interior de la Planta Callao tienen como límite de velocidad los 15 Km/h.

Alteración de la calidad del aire por generación de emisiones gaseosas

Las unidades que trasladarán los materiales y equipos para las actividades de construcción dentro del predio emitirán emisiones gaseosas debido a su funcionamiento, sin embargo, se prevé que tengan un nivel de importancia No Significativo, debido a que:

➢ Las actividades relacionadas a las obras civiles se realizarán en un corto tiempo en las áreas donde se instalará el proyecto

➢ El funcionamiento de las maquinarias a utilizar para las actividades de las obras civiles y obras mecánicas serán en áreas puntuales

➢ Los vehículos que trasladen los equipos hacia la planta deberán contar con certificados de mantenimiento continuo y/o CITV que evidencien su buena operatividad

Alteración de la calidad de aire por el incremento del nivel de ruido

En todas las actividades a realizarse durante la etapa de construcción, se prevé un incremento en los niveles de presión sonora, debido al tránsito de unidades vehiculares y uso de maquinarias. No obstante, se debe tener en cuenta que las vías por donde se transportarán los vehículos están asfaltadas y son vías internas de la Planta Callao (donde se tiene un límite de velocidad establecido de 15 Km/h), permitiendo un tránsito controlado. En este sentido, el impacto que pudieran producir estas actividades es de naturaleza negativa, con nivel de importancia No Significativo, ello debido a que:

Alteración de la calidad de suelo por inadecuado manejo de residuos sólidos

PROPIETARIO: KOMATSU MITSUI MAQUINARIAS

SERVICIO: INSTRUMENTO DE GESTIÓN AMBIENTAL – INFORME TECNICO SUSTENTATORIO REV. : A

DESCRIPCIÓN: IMPLEMENTACIÓN DE UN NUEVO DINAMÓMETRO DE LA PLANTA CALLAO PÁG. : 68 DE 76

Las actividades de construcción, comprenden acciones que generarán residuos sólidos no peligrosos y peligrosos El impacto que estas actividades generan, han sido calificados con un nivel de importancia No significativo, de naturaleza negativa, puesto que:

➢ Los residuos serán acopiados según sus características en los diferentes frentes de trabajo.

➢ Disposición de residuos sólidos mediante una EO-RS debidamente autorizada por el MINAM

➢ Se brindará capacitación al personal de obra sobre el adecuada manejo y gestión de residuos sólidos

Etapa de Operación

Alteración de la calidad de suelo por inadecuado manejo de residuos sólidos

Este impacto es consideró como No significativo debido a que actualmente la empresa cuenta con un Plan de Minimización y Manejo de Residuos Sólidos (PMMRS) el cual viene siendo implementado adecuadamente en toda la planta. Una vez puesto en operación el proyecto el PMMRS será de aplicación para el mismo.

Etapa de Cierre

Alteración de la calidad del aire por generación de emisiones gaseosas

La calidad del aire se verá afectada por la generación de emisiones gaseosas durante las actividades de desmontaje y traslado de equipos y maquinarias, actividades que se realizarán de manera puntual. Cabe resaltar que todos los vehículos que ingresarán a la Planta Callao para el retiro de equipos desmantelados contarán con su respectiva con certificados de mantenimiento y/o CITV que evidencien su buena operatividad, a fin de evitar un mal funcionamiento de las unidades, teniendo en cuenta lo previamente mencionado, se califica este impacto como negativo no significativo

Alteración de la calidad del aire por generación de material particulado

La calidad de aire se verá afectada por la generación de material particulado durante las actividades de desmontaje y retiro de maquinarias y equipos, las mismas que se realizarán de manera puntual, sin embargo, para evitar la generación de polvo se realizará la humectación de las zonas con mínimas cantidades de agua Teniendo en cuenta lo previamente mencionado, se califica este impacto como negativo no significativo

Alteración de la calidad sonora por el incremento del nivel de ruido

En la actividad de desmontaje y traslado de equipos y maquinarias conllevará al uso de unidades vehiculares que podrían generar el aumento de los niveles de ruido que causará molestias al entorno situado dentro del área de influencia ambiental; sin embargo, se debe tener en cuenta que los trabajos en esta etapa, se realizarán durante un periodo corto y actualmente existen señaléticas en el interior de

PROPIETARIO: KOMATSU MITSUI MAQUINARIAS

SERVICIO: INSTRUMENTO DE GESTIÓN AMBIENTAL – INFORME TECNICO SUSTENTATORIO REV. : A

DESCRIPCIÓN: IMPLEMENTACIÓN DE UN NUEVO DINAMÓMETRO DE LA PLANTA CALLAO PÁG. : 69 DE 76

Planta donde se indica un límite máximo de velocidad Debido a los criterios evaluados se califica este impacto como negativo no significativo

Alteración de la calidad de suelo por inadecuado manejo de residuos sólidos

Este impacto será consecuencia de la actividad de desmontaje y retiro de equipos y maquinarias, generando residuos por los materiales y restos en desuso que se obtengan y que no signifiquen un valor económico para su propietario Los residuos serán dispuestos adecuadamente mediante una EO-RS debidamente autorizada, además de que la generación de este tipo de residuos es temporal en la etapa de cierre Debido a los criterios evaluados se califica este impacto como negativo no significativo

Comparación de los impactos identificados en el Instrumento de Gestión Ambiental aprobado con los identificados en el ITS

Luego de evaluar los impactos ambientales que ocasionarían la construcción, operación y cierre del proyecto, se concluye que el presente ITS, no traerá mayores perjuicios al medio ambiente en todas sus etapas. Los impactos generados, producto de la ejecución del proyecto, son similares a los generados en la actividad actual de la empresa en el predio ya que, la puesta en marcha del proyecto, no prevé el incremento de nuevos procesos productivos ni de ampliación de la capacidad productiva de la planta, sino que el mismo está basado en la aplicación de mejoras tecnológicas en las líneas de proceso y la ampliación de áreas de naturaleza similar a las ya instaladas en la Planta Callao

La comparación de impactos ambientales, relacionados al proyecto y a los estudios ambientales antes aprobados que mencionaron inicialmente las actividades a mejorar como parte del presente ITS, se presenta en la tabla siguiente:

De la evaluación realizada en el DAP de la Planta Callao, se identificaron los siguientes impactos ambientales: Generación de residuos sólidos producto de las operaciones llevadas a cabo en todas las etapas del proceso.

✓ Emisión de gases y partículas del área de dinamómetros, donde se realiza la prueba de operatividad de motores de alta, media y baja potencia.

✓ Identificación de Riesgos por Agentes Físicos y Químicos (MSDS) a consecuencia de la materia prima e insumos adquiridos.

✓ Ruido, en las actividades llevadas a cabo en las áreas de prueba de operatividad de maquinarias, dinamómetros y talleres.

De la evaluación realizada en el ITS propuesto, se identificaron los siguientes impactos ambientales: Etapa de Construcción

✓ Alteración a la calidad del aire por generación de emisiones gaseosas.

✓ Alteración a la calidad del aire por generación de material particulado

✓ Alteración a la calidad sonora por el incremento del nivel de ruido.

✓ Alteración a la calidad de suelo por inadecuado manejo de residuos sólidos. Etapa de Operación

✓ Alteración de la calidad de suelo por inadecuado manejo

Tabla 3-20: Comparación de impactos ambientales

SERVICIO: INSTRUMENTO DE GESTIÓN AMBIENTAL – INFORME TECNICO SUSTENTATORIO REV. : A

DESCRIPCIÓN: IMPLEMENTACIÓN DE UN NUEVO DINAMÓMETRO DE LA PLANTA CALLAO PÁG. : 70 DE 76

Diagnóstico Ambiental Preliminar (DAP) ITS propuesto de residuos sólidos.

Elaboración: Green Planet Strategies & Solutions E.I.R.L.

3.12 Implementación de los planes o programas de manejo ambiental, que conlleven para cada uno de los impactos identificados en la modificación, ampliación o mejora tecnológica, así como las medidas y acciones de seguimiento y control (monitoreo)

El plan de manejo ambiental está basado en los siguientes lineamientos:

➢ El compromiso de la empresa para minimizar los impactos negativos y posibles riesgos ocasionados por sus actividades a implementar.

➢ Establecer procedimientos para garantizar un desarrollo armónico entre sus actividades y el medio ambiente

➢ Desarrollo de las operaciones de acuerdo a la normativa ambiental vigente y normas técnicas

Tabla 3-21: Medidas de prevención y mitigación propuestas – Etapa de construcción

Etapa de construcción

Factor ambiental Fuentes impactantes

Demolición de estructura existente

Excavaciones y cimentaciones

Tabiquería y divisiones internas

Instalación de tuberías y canalizaciones

Calidad de aire

Suelo

Instalación de equipos de iluminación y tableros

Instalación de tuberías

Instalación de aparatos sanitarios

Instalación de los acabados

Montaje de equipos

Demolición de estructura existente

Excavaciones y cimentaciones

Calificación propuesta Medida ambiental propuesta

Impacto negativo no significativo

Impacto negativo no significativo

Impacto negativo no significativo

Impacto negativo no significativo

Impacto negativo no significativo

Impacto negativo no significativo

Impacto negativo no significativo

Impacto negativo no significativo

Impacto negativo no significativo

Impacto negativo no significativo

Impacto negativo no significativo

El perímetro donde se ejecutarán los trabajos civiles, serán cercados con una cobertura metálica

Se verificará que los vehículos y equipos que se utilicen durante la etapa de construcción cuenten con certificados de mantenimiento y/o CITV que evidencien su buena operatividad

Los residuos serán acopiados según sus características en los diferentes frentes de trabajo.

Disposición de residuos sólidos mediante una EO-RS debidamente autorizada por el

SERVICIO: INSTRUMENTO DE GESTIÓN AMBIENTAL – INFORME TECNICO SUSTENTATORIO REV. : A

DESCRIPCIÓN: IMPLEMENTACIÓN DE UN NUEVO DINAMÓMETRO DE LA PLANTA CALLAO PÁG. : 71 DE 76

Etapa de construcción

Factor ambiental Fuentes impactantes

Tabiquería y divisiones internas

Instalación de tuberías y canalizaciones

Instalación de equipos de iluminación y tableros

Instalación de tuberías

Instalación de aparatos sanitarios

Instalación de acabados

Elaboración: Green Planet Strategies & Solutions E.I.R.L

Calificación propuesta

Impacto negativo no significativo

Impacto negativo no significativo

Impacto negativo no significativo

Impacto negativo no significativo

Impacto negativo no significativo

Impacto negativo no significativo

Medida ambiental propuesta

MINAM. Brindar capacitación y/o charlas al personal contratista sobre la gestión y manejo de los residuos sólidos

Tabla 3-22: Medidas de prevención y mitigación propuestas – Etapa de operación

Etapa de operación

Factor ambiental Fuentes impactantes

Mantenimiento de los equipos instalados

Mantenimiento y limpieza de áreas

Elaboración: Green Planet Strategies & Solutions E.I.R.L.

Calificación propuesta Medida ambiental propuesta

Impacto negativo no significativo

Impacto negativo no significativo

Disposición temporal de residuos en las áreas de almacenamiento de residuos sólidos con las que cuenta la Planta Callao actualmente.

Disposición de residuos sólidos mediante una EO-RS debidamente autorizada por el MINAM

Suelo

KOMATSU

SERVICIO: INSTRUMENTO DE GESTIÓN AMBIENTAL – INFORME TECNICO SUSTENTATORIO REV. : A

DESCRIPCIÓN: IMPLEMENTACIÓN DE UN NUEVO DINAMÓMETRO DE LA PLANTA CALLAO PÁG. : 72 DE 76

Tabla 3-23: Medidas de prevención y mitigación propuestas – Etapa de cierre

Etapa de cierre

Factor ambiental Fuentes impactantes Calificación propuesta Medida ambiental propuesta

Se verificará que los vehículos y equipos que se utilicen durante la etapa de construcción cuenten con certificados de mantenimiento y/o CITV que evidencien su buena operatividad.

Calidad de aire

Desmontaje y retiro de estructuras y equipos

Impacto negativo no significativo

Los residuos serán acopiados según sus características en los diferentes frentes de trabajo.

Disposición de residuos sólidos mediante una EO-RS debidamente autorizada por el MINAM

Los residuos serán acopiados según sus características en los diferentes frentes de trabajo

Disposición de residuos sólidos mediante una EO-RS debidamente autorizada por el MINAM

Elaboración: Green Planet Strategies & Solutions E.I.R.L.

Suelo Limpieza del sitio Impacto negativo

Fuente impactante

Todas las actividades de la etapa de construcción

Funcionamiento del equipo y limpieza de áreas

KOMATSU

SERVICIO: INSTRUMENTO DE GESTIÓN AMBIENTAL – INFORME TECNICO SUSTENTATORIO REV. : A

DESCRIPCIÓN: IMPLEMENTACIÓN DE UN NUEVO DINAMÓMETRO DE LA PLANTA CALLAO PÁG. : 73 DE 76

Tabla 3-24: Cronograma de implementación de las nuevas medidas y presupuesto como parte del ITS

Alternativa específica o tipo de medida a implementar P, M o C

Etapa de construcción

El perímetro donde se ejecutarán los trabajos civiles será delimitado con cobertura metálica.

Se verificará que los vehículos y equipos que se utilicen durante la etapa de construcción cuenten con certificados de mantenimiento y/o CITV que evidencien su buena operatividad.

Los residuos serán acopiados según sus características en los diferentes frentes de trabajo

Disposición de residuos sólidos mediante una EO-RS debidamente autorizada por el MINAM.

Brindar capacitación y/o charlas al personal contratista sobre la gestión y manejo de los residuos sólidos.

Etapa de operación

Los residuos serán acopiados según sus características en los diferentes frentes de trabajo

Disposición de residuos sólidos mediante una EO-RS debidamente autorizada por el MINAM.

Elaboración: Green Planet Strategies & Solutions E.I.R.L.

PROPIETARIO: KOMATSU MITSUI MAQUINARIAS

SERVICIO: INSTRUMENTO DE GESTIÓN AMBIENTAL – INFORME TECNICO SUSTENTATORIO REV. : A

DESCRIPCIÓN: IMPLEMENTACIÓN DE UN NUEVO DINAMÓMETRO DE LA PLANTA CALLAO PÁG. : 83 DE 76

3.13 Actualización del programa de monitoreo (componente, frecuencia, ubicación, parámetros y norma a cumplir)

Programa de Monitoreo Ambiental

En la etapa de construcción no se contemplará monitoreos ambientales, así mismo tampoco se considerarán agregar nuevos puntos de monitoreo en la etapa de operación debido a que el proyecto se encuentra dentro del área operativa de la Planta Callao

3.14 Plan de Minimización y Manejo de Residuos Sólidos

Teniendo en cuenta que el proyecto se realizará al interior de la Planta Callao, se utilizará el Plan de Minimización y Manejo de Residuos Sólidos actual de la misma, el cual se presenta en el Anexo Nº 05.

3.15 Actualización del plan de contingencias para el proyecto de modificación, ampliación o una mejora tecnológica

Teniendo en cuenta que el proyecto se instalará al interior de la Planta Callao, se utilizará el Plan de Contingencia con el que cuenta KMMP-Planta Callao., el cual se presenta en el Anexo Nº 06.

3.16 Plan de cierre a nivel conceptual de las actividades y componentes a modificar, ampliar o a implementar una mejora tecnológica

El Plan de cierre expone las acciones que se deben realizar una vez finalizada la etapa de operación del proyecto (incluye la ocurrencia de alguna situación que lo amerite), de manera que el entorno intervenido recupere el estado en que se encontraba sin la implementación de la actividad.

Las medidas presentadas en el presente Plan serán específicas para cada uno de los componentes del proyecto y corresponde a la empresa contratista y al Titular la supervisión de las actividades.

Objetivos

El objetivo principal del plan de cierre es proteger el ambiente frente a los posibles impactos que pudieran presentarse cuando dejen de operar los componentes del proyecto. Además, se contemplará, entre otras medidas, la protección o remoción, según sea el caso, de infraestructura (cimentaciones, estructuras metálicas), así como la eliminación de instalaciones eléctricas.

Actividades de Cierre

Están orientados a regular las actividades que se han de realizar una vez finalizada la etapa de operación-mantenimiento de la actividad. Entre los procedimientos generales que se han de seguir para la ejecución del Plan de cierre, se pueden mencionar los siguientes:

PROPIETARIO: KOMATSU MITSUI MAQUINARIAS

SERVICIO: INSTRUMENTO DE GESTIÓN AMBIENTAL – INFORME TECNICO SUSTENTATORIO REV. : A

DESCRIPCIÓN: IMPLEMENTACIÓN DE UN NUEVO DINAMÓMETRO DE LA PLANTA CALLAO PÁG. : 84 DE 76

• Establecer las tareas que se requieran para retirar las instalaciones, protegiendo el ambiente, la salud y seguridad humana durante la ejecución de dichas tareas.

• Las herramientas, equipos y/o maquinaria que serán empleados en las actividades del proceso de cierre, estarán en buen estado de operación con el fin de prevenir mayores niveles de ruido y posibles fugas de combustibles u otros elementos

• Se realizará un inventario de todos los equipos, accesorios y materiales presente en el área del proyecto

Delimitación del área de trabajo

Las actividades en esta etapa se realizarán progresivamente, de acuerdo al cronograma establecido con la contratista de obra. Las áreas de trabajo donde se implemente el Plan de cierre serán señalizadas y delimitadas, prohibiéndose el paso de personal ajeno a estas actividades, como una medida de precaución para evitar accidentes.

Remoción de materiales y limpieza del sitio

Las áreas serán limpiadas y los residuos sólidos serán dispuestos temporalmente en un área especialmente acondicionada para posteriormente ser trasladados por una EO-RS debidamente registrada ante el MINAM. Estas actividades serán realizadas por la contratista, bajo la supervisión y responsabilidad de Komatsu Mitsui Maquinaria Perú S.A. Una vez finalizado el traslado de residuos y materiales peligrosos, los contratistas presentarán a Komatsu Mitsui Maquinaria Perú S.A , un reporte de la cantidad, tipo y lugar de disposición final de estos materiales.

Respecto a las estructuras, infraestructuras y obras civiles de la planta, luego del desmantelamiento de los equipos, se procederá con la remoción y demolición de los materiales, los que serán transportados para su disposición final, según disponga Komatsu Mitsui Maquinaria Perú S.A En el caso de la demolición de las obras civiles, los desmontes serán apilados y acondicionados para posteriormente ser trasladados por la Empresa Operadora de Residuos Sólidos (EO-RS) autorizada por el MINAM, para su disposición final.

3.17 Conclusiones del ITS

Como resultado de la evaluación ambiental del Proyecto “Implementación del dinamómetro”, se concluye lo siguiente:

“El proyecto es ambientalmente viable, puesto que en las etapas evaluadas no se generarán impactos ambientales negativos significativos, cumpliendo de esta manera con la normativa ambiental vigente”,

Este resultado se sustenta a su vez en las conclusiones específicas siguientes:

SERVICIO: INSTRUMENTO DE GESTIÓN AMBIENTAL – INFORME TECNICO SUSTENTATORIO REV. : A

DESCRIPCIÓN: IMPLEMENTACIÓN DE UN NUEVO DINAMÓMETRO DE LA PLANTA CALLAO PÁG. : 85 DE 76

1) Todos los impactos negativos identificados califican como No significativos. Cabe indicar que los impactos ambientales provenientes de la etapa de construcción serán temporales y sus efectos será revertidos una vez se den por culminadas estás actividades.

2) En la etapa de operación los impactos califican como negativos No significativos, debido a que sus actividades son puntuales y serán controladas, Así mismo, los impactos serán manejados a través del plan de manejo ambiental existente y propuesto (para esta actividad).

Turn static files into dynamic content formats.

Create a flipbook
Issuu converts static files into: digital portfolios, online yearbooks, online catalogs, digital photo albums and more. Sign up and create your flipbook.