

![]()



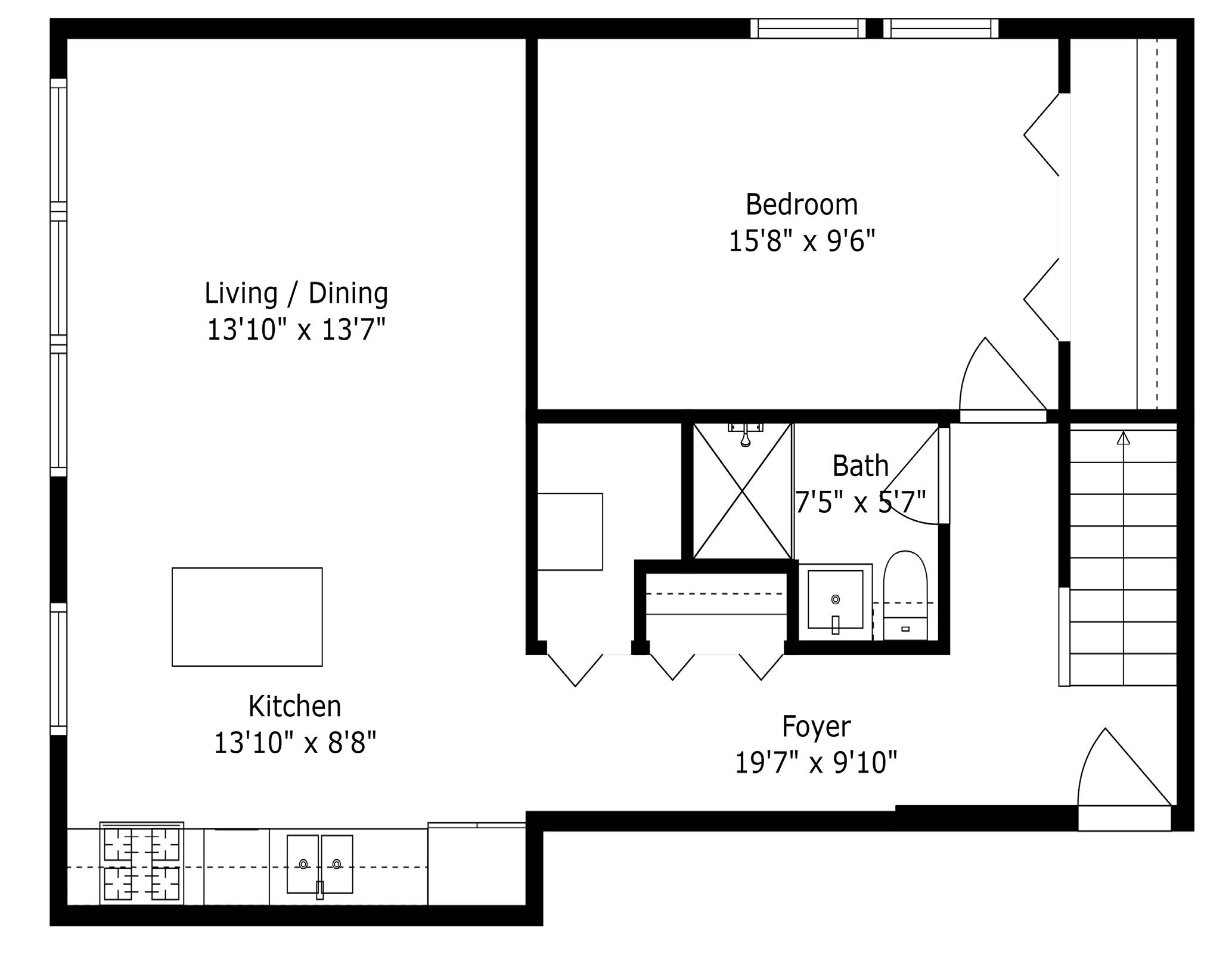
1ST FLOOR

2ND FLOOR




















Bucktown is thought to have been named for the large number of goats that were raised there during the 19th century. First settled by Polish immigrants and later Germans, Bucktown today is a trendy neighborhood that is primarily residential with a mix of single family homes, new high-rises and industrial loft spaces. The neighborhood’s rough boundaries are the Kennedy Expressway on the east, Bloomingdale Avenue on the south, Western Avenue on the west and Fullerton Avenue on the north.
Commuters can either drive on the Kennedy Expressway (I-94), or take the CTA Blue Line from the Western-O’hare stop. There are also many buses that will take you close to the city center.
Located within minutes of Wicker Park and Damen Street, Bucktown has a variety of shopping boutiques from which to choose. Restaurants, art galleries and nightlife options are plentiful in Bucktown and the surrounding area.


Pulaski International School of Chicago is now an authorized International Baccalaureate (IB) Primary Years Programme IB World School. IB World Schools share a common philosophy—a commitment to improve the teaching and learning of a diverse and inclusive community of students by delivering challenging, high quality programmes of international education that share a powerful vision. The International Baccalaureate aims to develop inquiring, knowledgeable and caring young people who help to create a better and more peaceful world through intercultural understanding and respect.
1434 W. Division St. Chicago, IL 60642
773-383-1434 nnms.org
www.pulaskischool.org

Our school was founded on an educational philosophy developed 100 years ago by Dr. Maria Montessori, an Italian physician and education innovator. Through a scientific approach, she developed a method based on human development from birth to maturity – a unique combination of philosophy, psychology, educational theory, materials and methods. Today, Dr. Montessori’s approach is more relevant now than ever. A Montessori education develops the whole child to become an engaged learner and thinker for life. Taking our lead from Dr. Montessori, we believe independent thinking, self-sufficiency and creative problem solving will prepare our students for the complicated, demanding world ahead. Teacher:Student Ratio 1:16


