2136 Lyndale Brochure

Page 1

2136 W. LYNDALE WWW.LYNDALELUXURY.COM

Welcome to 2136 Lyndale, the epitome of luxury in Bucktown. Here you will find a very unique home for the market place. Exceptional construction, thoughtfulness and attention to detail is evident the moment you approach the building. The development is two lots combined affording extra wide floor plans built with constructional attentiveness one doesn’t see every day. You’ll appreciate the quiet serenity of your unit due to the brick-on-block construction plus the commercial grade windows and doors. Not only does 2136 Lyndale enjoy superior craftsmanship, it’s dripping in luxurious details, finishes and selections. Your kitchen is equipped with top of line Miele appliances and gleaming quartz countertops, adjacent to the living and dining areas for a modern open floor plan. Kick off your shoes after a long day and enjoy the massive spa master bathroom complete with a soaking tub and heated floors. These units will not disappoint.

Oversized 48’ x 100’ lot Brick on block construction

Insulation:

• Exterior Walls: closed cell, 1” thickness, R value 13

• Demising Walls, Ceilings/Floors: Blown cellulose with netting, 4” thickness, R value 38

• Bathroom/Mechanical Walls: un Faced Batt, 4” thickness, R value 11

• Roof: Blown cellulose with netting , 4” thickness, R value 49

All brick 2-car garage

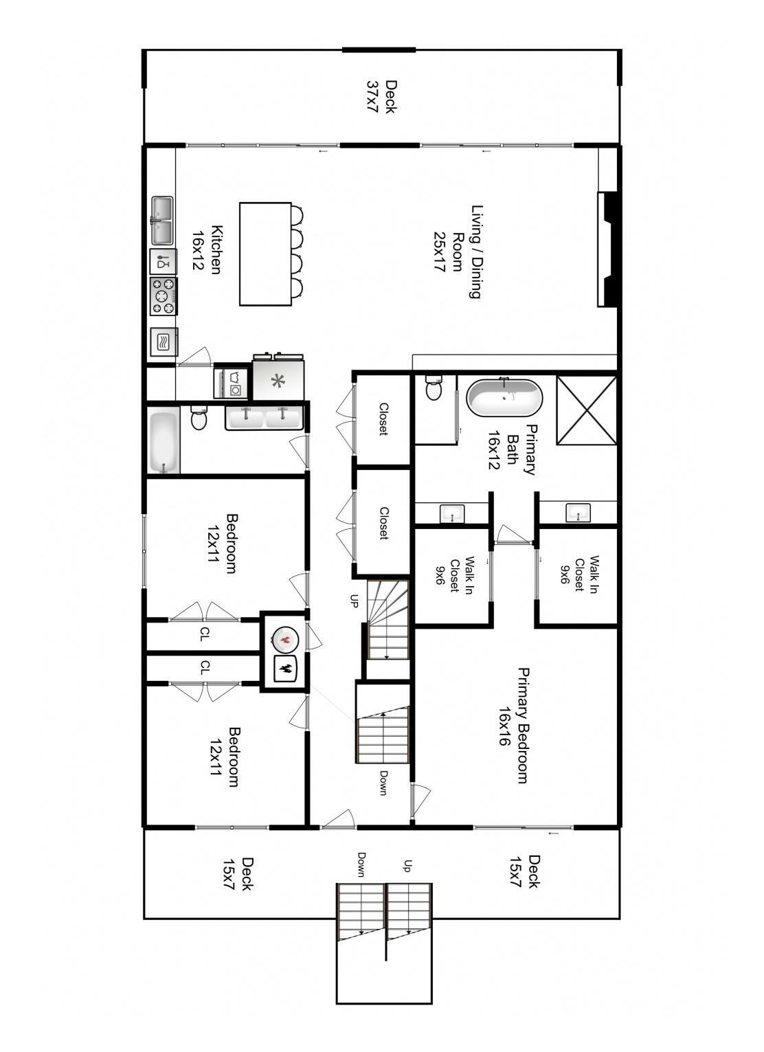
Full floor simplex spanning 40’ wide

3 bedroom; 2.5 baths

Private roof deck with interior access

40’ front terrace and 40’ rear terrace

WWW.LYNDALELUXURY.COM
SPECS SUBJECT TO CHANGE
SPECS SUBJECT TO CHANGE
SPECS SUBJECT TO CHANGE
SPECS SUBJECT TO CHANGE

BEDROOM 2

BEDROOM 3

MAIN LEVEL

MAIN LEVEL

2136 WEST LYNDALE

ROOF DECK

P r e s e n t e d b y K l o p a s S t r a t t o n T e a m B H H S C h i c a g o 9 8 0 N . M i c h i g a n 7 t h F l o o r C h i c a g o I L 6 0 6 1 1 D i r e c t P h o n e : 3 1 2 9 2 7 0 3 3 4 M o b i l e P h o n e : 3 1 2 . 4 1 5 . 1 5 5 1 E m a i l : k s t e a m s h o w i n g s @ k o e n i g r u b l o f f . c o m 2 1 3 6 W e s t L y n d a l e S t r e e t R o o f D e c k 2 o f 2

One of Chicago’s creative epicenters lies just outside downtown Chicago in Wicker Park and Bucktown. These synonymous neighborhoods are famous for live music and nightlife, chef-driven restaurants and countless art galleries — many housed within the Flat Iron Arts Building. If you have an acute knowledge of craft cocktails or an affinity for coffee, plus want to sift through records or thrifted threads, there’s no better area to sip and shop in the country.

BUCK TOWN

The area has become a prevailing influence on Chicago’s Michelin-rated, James Beard Award-winning dining scene, boasting some of the city’s most sought after tables. Wicker Park and Bucktown are also known for their palate pleasing nightcaps, like renowned brewery Piece and mixology tour de force The Violet Hour.

Along North, Division, Milwaukee and Damen Avenues, you will find an unbelievable blend of vintage shops amid independently-owned boutiques touting fashions for both men and women, and luxury home goods and beauty products. On the same blocks are nationally-recognized names in fashion, and a mix of major retail chains that have also set up shop to satisfy the on-trend crowds.

NEIGHBORHOOD
WWW.LYNDALELUXURY.COM

Prepared By: KlopasStratton Team

sklopas@KoenigRubloff.com

Locations Near: 2136 W. Lyndale

Coffee Shops

Red June Cafe

2020 N Leavitt St, Chicago, IL 60647

0.32 miles

Ipsento Coffee House

2035 N Western Ave, Chicago, IL 60647

0.42 miles

Starbucks 1920 N Milwaukee Ave, Chicago, IL 60647

0.55 miles

Dunkin' Donuts

2247 N Milwaukee Ave, Chicago, IL 60647

0.67 miles

HalfWit Coffee Roasters 3431 W Fullerton Ave, Chicago, IL 60647

0.84 miles

Red Beard Coffee Traders Chicago, IL 60622

0.88 miles

La Colombe Torrefaction 1552 N Damen Ave, Chicago, IL 60622 0.92 miles

Starbucks 1700 West Diversey Parkway, Chicago, IL 60614

1.06 miles

Starbucks 2159 W Belmont Ave, Chicago, IL 60618

1.15 miles

New Wave Coffee 3103 W Logan Blvd, Chicago, IL 60647

Map data ©2018 Google

Showing:

Coffee Shops

Restaurants

CTA

Grocery

Health Clubs Library

Metra

Movie Theatre

Place of Worship

Post Office

Dog Parks

Drug Stores

Target

Hardware Store

The Map Room 1949 N Hoyne Ave, Chicago, IL 60647

0.37 miles

Starbucks 2566B North Elston Ave, Chicago, IL 60614

0.48 miles

Dunkin' Donuts

2565 W Fullerton Ave, Chicago, IL 60647

0.57 miles

Dunkin Donuts 1651 N Western Ave, Chicago, IL 60647

0.82 miles

Fairgrounds Coffee and Tea 1620 N Milwaukee, Chicago, IL 60647 0.86 miles

Starbucks 1588 N Milwaukee Ave, Chicago, IL 60622 0.89 miles

Gaslight Coffee Roasters 2385 N Milwaukee Ave, Chicago, IL 60647 0.95 miles

Starbucks 1245 W. Fullerton Ave., Chicago, IL 60614 1.11 miles

Floriole Cafe & Bakery 1220 W Webster Ave, Chicago, IL 60614 1.16 miles

Starbucks 1157 W Wrightwood, Chicago, IL 60614

Starbucks 2101 W Armitage Ave, Chicago, IL 60647 0.37 miles

Starbucks 1730 W Fullerton Avenue, Chicago, IL 60614 0.52 miles

Ipsento 606 1813 N Milwaukee Ave, Chicago, IL 60647 0.6 miles

Cafe Mustache 2313 N Milwaukee Ave, Chicago, IL 60647 0.83 miles

Starbucks 2543 N California Ave, Chicago, IL 60647 0.88 miles

Stan's Donuts & Coffee 1560 N Damen Ave, Chicago, IL 60622 0.92 miles

The Wormhole Coffee 1462 N Milwaukee Ave, Chicago, IL 60622 1.06 miles

Dunkin Donuts 3000 N Ashland Ave, Chicago, IL 60657 1.14 miles

Dunkin' Donuts 1982 N Clybourn Ave, Chicago, IL 60614 1.25 miles

Starbucks 1701 W Division St, Chicago, IL 60622

Map Satellite
Terms of Use

0.99 miles

Grocery

Fresh Thyme Farmers Market 2500 N Elston Ave, Chicago, IL 60647

0.28 miles

JuiceRx 1880 N Damen Ave, Chicago, IL 60647

0.51 miles

Aldi 1753 N Milwaukee Ave, Chicago, IL 60647

0.65 miles

Olivia's Market 2014 W Wabansia Ave, Chicago, IL 60647

0.75 miles

Mango Market Chicago, IL

1.04 miles

Cermak Produce

2750 W North Ave, Chicago, IL 60647

1.12 miles

Health Clubs

Midtown Athletic Club

2020 W Fullerton Ave, Chicago, IL 60647

0.23 miles

XSport Fitness

2310 W Logan Blvd, Chicago, IL 60647

0.56 miles

Orange Theory Fitness Logan Square

2251 N Milwaukee Ave, Chicago, IL 60647

0.68 miles

CorePower Yoga

1704 N Milwaukee Ave, Chicago, IL 60647

0.71 miles

lululemon athletica

1627 N Damen Ave, Chicago, IL 60647

0.83 miles

AIR Aerial Fitness

2217 N Clybourn Ave, Chicago, IL 60614

0.87 miles

Eb & Flow Yoga Studio

1834 W North Ave, Chicago, IL 60622

0.93 miles

Planet Fitness

2719 N California, Chicago, IL 60647

0.99 miles

Orange Theory Fitness

1634 W North Ave, Chicago, IL 60622

1.07 miles

CrossFit Chicago

Chicago, IL  1.1 miles

Fresh Marketplace 2134 N Western Ave, Chicago, IL 60647

0.33 miles

ALDI 2600 N Clybourn Ave, Chicago, IL 60614

0.54 miles

Mariano's Fresh Market 2112 N Ashland Ave, Chicago, IL 60614

0.66 miles

Go Grocer 2060 W North Ave, Chicago, IL 60647

0.86 miles

Jewel­Osco 2940 N Ashland Ave, Chicago, IL 60657

1.05 miles

Damen Food & Liquor 1956 W School St, Chicago, IL 60657

1.3 miles

Windy City Fieldhouse 2367 W Logan Blvd, Chicago, IL 60647

0.46 miles

Zen Yoga Garage

1845 N Milwaukee Ave, Chicago, IL 60647

0.56 miles

Paramount Personal Training

2624 W Armitage Ave Apt 1E, Chicago, IL 60647

0.7 miles

The Dailey Method

1714 N Damen Ave, Chicago, IL 60647

0.71 miles

Bucktown Athletic Club 2040 W North Ave, Chicago, IL 60647

0.86 miles

Webster Place Athletic Club

1455 W Webster Ave, Chicago, IL 60614

0.88 miles

Pure Barre Bucktown 1837 W North Ave, Chicago, IL 60622

0.94 miles

iLoveKickboxing ­ Chicago 1720 W North Ave, Chicago, IL 60622

1.01 miles

Full Psycle 2121 N Clybourn Ave, Chicago, IL 60614

1.08 miles

club pilates lincoln park Chicago, IL  1.15 miles

Grisel & Junior's 2200 W Armitage Ave, Chicago, IL 60647 0.35 miles

Farmer's Pride Produce & Market 2110 N Milwaukee Ave, Chicago, IL 60647

0.58 miles

Clybourn Market 2807 N Clybourn Ave, Chicago, IL 60618 0.71 miles

FoodSmart 2901 W Armitage Ave, Chicago, IL 60647

0.99 miles

Treasure Island Foods 2121 N Clybourn Ave, Chicago, IL 60614 1.05 miles

Yogaview Elston 2211 N Elston Ave, Chicago, IL 60614 0.5 miles

CrossFit Logan by Atlas Performance 2080 N Milwaukee Ave, Chicago, IL 60647

0.56 miles

Prenatal fit 1937 W Diversey Pkwy, Chicago, IL 60614

0.7 miles

Rockwell Barbell 2861 N Clybourn Ave, Chicago, IL 60618

0.76 miles

Bucktown Fitness Club 2100 W North Ave, Chicago, IL 60647

0.86 miles

Anytime Fitness 2412 W North Ave, Chicago, IL 60647 0.91 miles

Shred415 2156 N Clybourn Ave, Chicago, IL 60614 0.98 miles

Lakeshore Sport & Fitness 1320 W Fullerton Ave, Chicago, IL 60614

1.07 miles

Shred415 1444 N Milwaukee Ave, Chicago, IL 60622 1.09 miles

Mirepoix Yoga Chicago, IL 60622

1.3 miles

Logan Square Library

3030 W Fullerton Ave, Chicago, IL 60647 0.44 miles

Bucktown Library

Chicago, IL 60622

0.76 miles

Alternative Press Center

2040 N Milwaukee Ave, Chicago, IL 60647 0.53 miles

Wicker Park ­ Bucktown Library Chicago, IL  0.88 miles

Chicago Public Library 1701 N Milwaukee Ave, Chicago, IL 60647 0.73 miles

Chicago Public Library 3030 W Fullerton Ave, Chicago, IL 60647 1.14 miles

Library

Dog Parks

Hobo Hill The Alley, Chicago, IL 60647

0.05 miles

Dog Sitting Chicago, IL  0.54 miles

Churchill Field Dog Park 1825 N Damen Ave, Chicago, IL 60647

0.64 miles

Wabansia Dog Park 2200 W Wabansia, Chicago, IL 60654

0.71 miles

Chi Che Wang Park 1762 W Diversey Pkwy, Chicago, IL 60657 0.85 miles

Hamlin Dog Park 3035 N Hoyne Ave, Chicago, IL 60618 0.92 miles

Bark Park 1841 W Wellington Ave, Chicago, IL 60657

0.95 miles

Western Ave Dog Run Chicago, IL 60622

1.07 miles

Wicker Dog Park

1425 N Damen Ave, Chicago, IL 60622

1.12 miles

Zoom Room Chicago

3055 N Ashland Ave, Chicago, IL 60657

1.22 miles

Drug Stores

MinuteClinic 2656 N Elston Ave, Chicago, IL 60647

0.45 miles

Jewel­Osco Pharmacy

2550 N Clybourn Ave, Chicago, IL 60614

0.49 miles

Mariano's Pharmacy

2112 N Ashland Ave, Chicago, IL 60614 0.66 miles

Walgreens 1601 N Milwaukee Ave, Chicago, IL 60647 0.85 miles

Jewel­Osco 2940 N Ashland Ave, Chicago, IL 60657

1.05 miles

J Discount Pharmacy

1344 N Western Ave, Chicago, IL 60622

1.19 miles

walgeeens Chicago, IL 60618

1.27 miles

Walgreens 3110 W Armitage Ave, Chicago, IL 60647

1.3 miles

Logan Square Dog Park 2526 N Western Ave, Chicago, IL 60647

0.48 miles

Damen Dog Park Chicago, IL 60622

0.61 miles

Dogs Day Inn

1719 W Wrightwood Ave, Chicago, IL 60614

0.66 miles

The Old Convent Chicago, IL  0.75 miles

1827 North Marshfield Chicago, IL  0.86 miles

Walsh Dog Park 1722 N. Ashland Ave., Chicago, IL 60614 0.92 miles

Chewie's Chicago, IL 60614 1 miles

Doggie Paddle 1430 W Willow St, Chicago, IL 60642

1.1 miles

The Golden Palace

2733 N Southport Ave, Chicago, IL 60614

1.13 miles

Best Friends Pet Care

1628 N Elston Ave, Chicago, IL 60642

1.25 miles

Jewel­Osco 2550 N Clybourn Ave, Chicago, IL 60614

0.49 miles

CVS/pharmacy

2053 N Milwaukee Ave, Chicago, IL 60647 0.52 miles

CVS/pharmacy

2815 N Western Ave, Chicago, IL 60618 0.74 miles

Walgreens 2440 W North Ave, Chicago, IL 60647 0.92 miles

Jewel­Osco Pharmacy

2940 N Ashland Ave, Chicago, IL 60657

1.05 miles

Walgreens

1372 N Milwaukee Ave, Chicago, IL 60622

1.22 miles

Walgreens 1649 W Belmont Ave, Chicago, IL 60657

1.28 miles

Shayna's Lofted Lair Chicago, IL  0.51 miles

Medill Avenue Canine Exercise Facility 2600 w medill ave, Chicago, IL 60647 0.63 miles

Eric's Dog Services 2310 W Diversey Ave, Chicago, IL 60647 0.69 miles

Regal Lofts Dog Park 1735 W Diversey Pkwy, Chicago, IL 60614 0.75 miles

ChicagoDogPads 2524 N Mozart St, Chicago, IL 60647 0.88 miles

Walsh Park 1700 Marshfield Ave, Chicago, IL  0.93 miles

Wrightwood doggie park Chicago, IL  1.02 miles

Call of the Wild School for Dogs 3027 N Rockwell St, Chicago, IL 60618 1.1 miles

Belle's Rooftop Bosworth Ave., Chicago, IL 60642

1.2 miles

Kankers Kavern Chicago, IL  1.27 miles

Walgreens 2001 N Milwaukee Ave, Chicago, IL 60647 0.49 miles

Forever Young 2094 N Milwaukee Ave, Chicago, IL 60647, Chicago, IL 60647 0.56 miles

Walgreens 1520 W Fullerton Ave, Chicago, IL 60614 0.8 miles

Walgreens 2744 N California Ave, Chicago, IL 60647 1.03 miles

jdiscount 1344 N Western Ave, Chicago, IL 60622

1.06 miles

Barry's Drugs Milwaukee Ave, Chicago, IL 60622

1.23 miles

Jewel­Osco Pharmacy 1341 N Paulina St, Chicago, IL 60622

1.29 miles

Target
SCHOOLS WWW.LYNDALELUXURY.COM

PULASKI SCHOOL

2230 W. McLean Chicago, IL 60647

773.534.4391

www.pulaskischool.org

Pulaski International School of Chicago is now an authorized International Baccalaureate (IB) Primary Years Programme IB World School. IB World Schools share a common philosophy—a commitment to improve the teaching and learning of a diverse and inclusive community of students by delivering challenging, high quality programmes of international education that share a powerful vision. The International Baccalaureate aims to develop inquiring, knowledgeable and caring young people who help to create a better and more peaceful world through intercultural understanding and respect. To this end the organization works with schools, governments and international organizations to develop challenging programmes of international education and rigorous assessment. These programmes encourage students across the world to become active, compassionate and lifelong learners who understand that other people, with their differences, can also be right.

CPS School Standing School Grades # of Students 1+ PK K-8 909

ST. MARY OF THE ANGELS

1810 N. Hermitage

Chicago, IL 60622

773-486-0119

sma-school.org

Our Mission: To receive each child as unique gift, collaborating with parents to cultivate the intellectual, moral and spiritual talents of each child, enabling the child to direct his emotions as a respectful son or daughter, a generous and loyal friend and a responsible high school student who has the courage to live his Catholic faith among peers in service to God, family and country.

We achieve this by: An education approach based on the Maryland Charter; A challenging academic curriculum enriched by extracurricular activites; Seminars and classes that inspire parents to exemplify the character they seek for their children; A safe and secure environment, under the Virgin Mary’s protection, in which good moral habits and Christian virtues are exemplified.

#
15:1 PK-8 235
Student to Faculty Ratio School Grades
of Students

CICS BUCKTOWN

2235 N. Hamilton Ave. Chicago, IL 60647

773.645.3321

http://www.cicsbucktown.org/

CICS Bucktown boasts an energetic learning environment, fueled by over 600 eager learners, many of whom travel great distances to school each day! Our talented teaching staff is dedicated to meeting the needs of every student through effective implementation of a finely tuned blended learning model. Technology is a critical component of our culture of learning; every classroom promotes the use of 21st century learning skills and critical thinking to solve problems.

Based on the Common Core State Standards for reading and math, Next Generation Science Standards, and a robust writing curriculum, learning at CICS Bucktown is rigorous and prepares our students for the best high schools in the city. With consistent growth in reading, math, and science on NWEA MAP testing across grade levels, over 30% of graduating eighth graders have been accepted to Chicago’s Selective Enrollment High Schools over the past four years.

CPS School Standing School Grades # of Students 1 PK K-8 697
© BHH Affiliates, LLC. An independently operated subsidiary of HomeServices of America, Inc., a Berkshire Hathaway affiliate, and a franchisee of BHH Affiliates,LLC. Berkshire Hathaway HomeServices and the Berkshire Hathaway HomeServices symbol are registered service marks of HomeServices of America, Inc.® Equal Housing Opportunity. Sophia Klopas 312.927.0334 sklopas@bhhschicago.com Jason Stratton 312.415.1551 jstratton@bhhschicago.com KlopasStratton.com

Turn static files into dynamic content formats.

Create a flipbook
Issuu converts static files into: digital portfolios, online yearbooks, online catalogs, digital photo albums and more. Sign up and create your flipbook.
2136 Lyndale Brochure by KlopasStratton Team - Issuu