



![]()




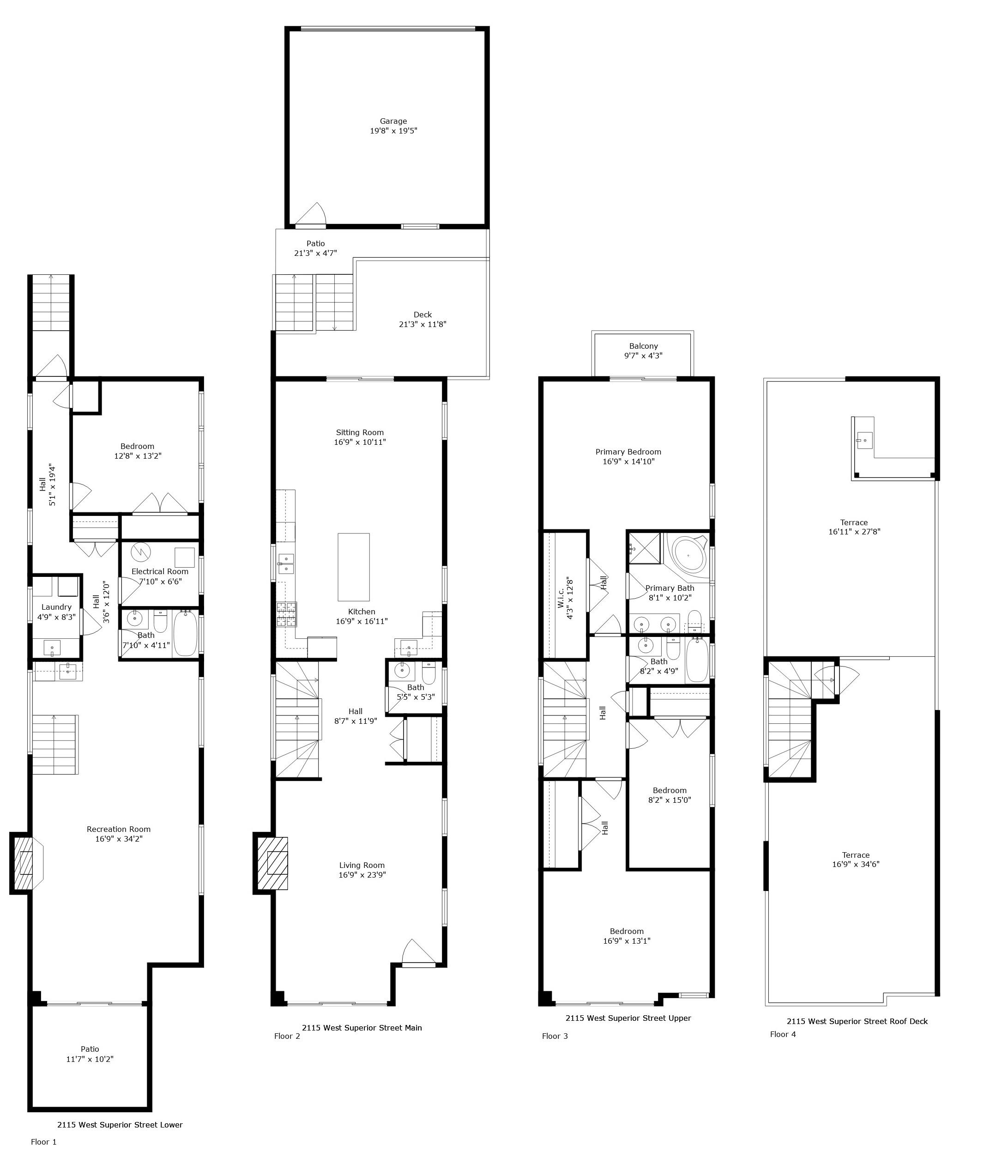
Welcome to 2115 Superior, a meticulously maintained, single-owner home located in the highly sought-after Mitchell School District. Never rented and thoughtfully cared for throughout the years, this residence offers an exceptional opportunity in the heart of West Town. Perfectly positioned just steps from Chicago Avenue, the home is surrounded by everything the neighborhood is known for-vibrant dining, boutique shopping, parks, convenient transportation, and everyday essentials.
Inside, the home offers generous living space filled with natural light from all four exposures, creating a bright and airy feel throughout. Large, wellproportioned bedrooms provide comfort and flexibility, ideal for today’s lifestyle. Recent updates include newly sanded floors, fresh paint throughout, and updated lighting, giving the home a crisp, move-in-ready feel. The kitchen was tastefully remodeled in 2020, blending modern style with functionality. Appliances, originally from 2006, have been consistently maintained, with beverage coolers replaced in 2019.
Enjoy summer days and evenings on the expansive third-floor rooftop deck, offering beautiful city views and the perfect setting for entertaining or relaxing above it all. Significant updates add peace of mind, including resealing of the concrete block (October 2024, with the west side resealed in July 2025). The air compressor was replaced in August 2019, and both HVAC systems have been extensively rebuilt within the past five years by Miron Heating and Cooling, including burners, blowers, heat exchangers, and control boards. The hot water heater was replaced in 2012. 2115 Superior is a rare find combining pride of ownership, thoughtful updates, and an unbeatable West Town location.


















