




![]()





Ing Khao Valley is a high-quality development of luxury villas, located inside of a picturesque mountain valley at Sa Kaeo in Khao Thong district, Krabi, Thailand.
The area was chosen because of the undeniable natural beauty of the surroundings, seclusion, and with fast road connections to beach areas, shopping and the airport. Ing Khao Valley offers three- and four-bedroom villas of a very high build quality and with an attention to detail, quite literally from the ground up, and expertly engineered from the foundations to the finish.
Ing Khao Valley is one of the few developments in Thailand to offer a full 5-year construction warranty on each property, including the swimming pool.
Land sizes start at an impressive 555 sq.m, to 1,600 sq.m. The villa interiors are professionally designed with select, quality materials offering a stylish, practical and comfortable experience for many years.
Ing Khao Valley is located at the foot of a towering 300-meter-high mountain in Sa Kaeo, Khao Thong, Krabi. The development enjoys a 360º mountain view and is an enjoyable natural wonder in all weather.
Nearby Sa Kaeo cave is coveted as the deepest underwater cave in South-East Asia at over 200-meters deep, and is regularly visited by tourists and divers from all over the world. Because of Sa Kaeo’s beautiful scenery, several popular Hollywood movies have been filmed in the immediate area.
A recent upgrade to the main highway allows fast connections to attractions and other areas of Krabi, including Ao Nang, Krabi Town, Central Shopping Mall and Krabi Airport.





Total Villas: 16
Three Bedroom: 12
Four Bedroom: 4
Road Width: 8 - 10m
Total Project Area: 16,200 sq.m






3 Bedroom Villa
Ing Khao Valley’s signature villa with three full-size bedrooms, 9-meter swimming pool, outside kitchen and a sunken pool lounge


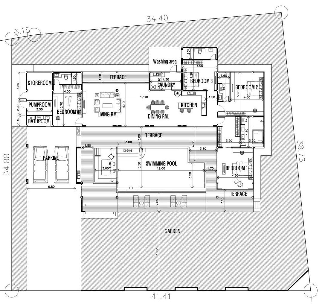
Our larger, 4 bedroom villa design, features a longer 12m pool, larger living areas and greater storage spaces. All bedrooms feature an en-suite bathroom and the whole property follows Ing Khao Valley’s signature styling.

Living Space: 390 sq.m
Land Space: 1,400 sq.m - 1,600 sq.m
The villa interiors at Ing Khao Valley are designed and implemented by a renowned Bangkok interior designer, who has used a neutral color palette with elegant use of dark and light tones to create exciting and enjoyable living spaces in every room. A diverse use of materials, including solid wood, ceramic, metal and granite is used to give a high-quality feel and good function to each space. Each bedroom of the villa enjoys its own unique and elegant design theme. Our craftsmen work onsite and spend up to 2 months on each villa to ensure a high-quality finish and feel.









Khun Suwapol Phusenpong (Mr Pom), is a well-known figure and property developer in Krabi. Originally from Nakhon Si Thammarat, Khun Pom originally moved to Bangkok seeking a career in hospitality, before falling in love with Krabi province and making it his home for the past 35 years.
Mr Pom has developed hundreds of properties in several projects around the province, and single handedly responsible for the start of upmarket villa development in Ao Nang in the early 2000’s. His most notable achievements are Cholada Hill, The Unique and The Best Ao Nang Villas.
Ing Khao Valley represents a paradigm shift in villa development for Mr Pom, with a focus on higher build and material quality, and where Mr Pom strives for “nothing but the best”!




