Skip to main content

EA1~EA4 PORTFOLIO(1)

Page 1

P O O
R T F L
WU-Yi-Chen
2022
O
I
1999/10/03 About me Piano ART CAT library thinking social le bai laugh cafe meseum river bank room kitchen concert hall (B&B) classical music literature cooking Jane Austen インフェルノ ニュー・マイ・ノーマル 僕のこと 青と夏 ProPose Japanese homemade badminton exercise swimming Mr.s green apple strolling be alone w r i t ting 0975089249 kittyic18@gmail.com 407360063@gms.tku.edu.tw becca_676767 6F-2,No.240,Aikou 3rd St,Zhubei City,Hsinchu County,Taiwan(R.O.C.) art gallery

Education background

2016~2018 National Hsinchu Girls' Senior High School

2018~ Department of Architecture - Tamkang University

Skill

problem solving/creative thinking

logical thinking/human scale team player/team leader

architecture planning/environmental design

S0ftwares

AutoCAD/illstrator/photoshop

Rhino/Sketchup/Revit/Enscape

C o
EA4-Setember~November Micro Ecology EA4-November~January EA4-February~June Street life: living quality X walking quality Micro Cò s agach EA2-April~June co-housing Rhythm proportion Aechitecture at zero competition G irl's sanc t uary com p etitio n Soft city/walkable city 01 page: 01~06 02 page: 07~12 03 page: 13~18 04 page: 19~24
n t e n t s
Other EA1-EA3 EA3-April~July “She” innovation working space Slow Flowing co-working space EA2-February~April Hidden clading kiosk EA2-Setember~November 05 page: 25~30 06 page: 31~34 07 page: 35~42 08 page: 43~48

01

Micro Còsagach

Slit

All corner can be a starting point of a new story,or to continue an old story.

Identity

Emotional

sense of belongings finding comfort in life's simple pleasure

Cosag Vitality spread to land drop by drop.

I start to define what”Micro Còsagach”means.My micro is about activities,secret base and emotion.It will be three to five people’s activities,pocket space or stable emotion.And Còsagach includes slit,cave or hole and còsagach.

I gave these three concepts new definitions.Slit means”To see a world in a grain of sand, And a heaven in a wild flower.”You walk on a normal path or just walk casually.If you don’t notice the thing surrounding you,you might ignore something beautiful.

Cave or hole means “All corners can be a starting point of a new story,or a following part of an old story.”Girls meet each other and become good friends in these “caves”.They feel sense of belonging in each cave.There are three kinds of spaces,the first one is the spaces under the stairs,a small hole being hided,and protruded window sill.

Còsagach means “Vitality spread to land drop by drop.”Things take place in all secret spaces,and these spaces are full of lots of different memories.

healthcare nourishing
sense of belonging grows with respect and dignity
wounds
confidence is
believe
self-assurance fulfill her potential shelter food education open progressive Girl's
Family Respect Mental Health Safety 01
are healed
built trust themselves
others
sanctuar y
The topic is’’ Micro Còsagach’’ ,by this project,I hope I can provide the new living environment for the girl in Iraq.This new living environment can give the girls there sense of belonging and security.And Micro Còsagach means finding simple happiness in one’s life.
Cave/Hole
To see a world in a grain of sand, And a heaven in a wild flower.
EA4-Setember~Novenber
Girl's sanctuary competition

Site

Green area

1.rift valley

As for the plant program,ac-

2.path

3.between massses

cording to each resident's needs,I will divide remaining green fields into several tranquil forest areas,the backyard areas highly related to life,the garden area connecting with the city and the bank area close to Tigris river.

15,000m2 plot, situated in a green agricultural/rural area on the eastern bank of the Tigris river Slit (big scale) forest river bank path city yard city garden
site
electronic mall
high school for girls good morals grocery store
commercial
green/crop main road N
residential education
02
tigris

micro ecology under the river path under stairs under the pavilion under trees

Slit(small scale)

There are many Micro Còsagach design.For silt, there is the continuous opening space just like a rift valley.And activity is above it.Next,I will introduce some interesting experience for these spaces.At first,it’s micro ecology.The water collects in the groove of attract other animals gathering together in this space.

There are functions about walking,entertainment and gathering in the big stairs with irregular shapes.Girls can chat on the stairs and learn with friends under the trees.

Micro Còsagach
N
Cosag
Cave/Hole school to library to Mecca
back yard grand staircase pocket space balcony dining hall
extended slad
03

There is a public route connecting city and coconut trees.Through seperating and compressing the mass, differences between levels and the intervention of the plants, it will make the original big square become small areas for gathering. Using different materials in slits or different plants as transformation, it can make this route occur unexpected activities.

the path of wind main entrance library parking-lot sport hall office central kitchen TV room social space residential area Community classroom school study social residential education community
working
04
Program diagram

There are many interactions and gatherings in each Micro Còsagach in the base.Girls can find their best friends,recogonize self values and gain the sense of belonging toward this community. These small spaces bring more happiness to the girl there and fill thier loney heart with delight. “Micro Còsagach”makes them grow up in the enviroment filled with love and care.

05
06

EA4-Setember~Novenber

Aechitecture at zero competition

Micro Ecology

site analysis

air quality improve lower the temperature

rainwater collecting

at Zero

1 Social spaces: Lobby,meeting room and shared kitchen located at south west corner.

2.Single: One bedroom dormitories on the corner of social spaces(lobby,meeting room,shared kitchen),offer more chance to comminicate with other people.

3. Activity area: First floor do not have enough spaces to activity. In order to make sure they have public outdoor socizl spaces,put main activity area on the second floor,as a activity belt,connect entrance and basketball court. Design four main activity :dining hall,park,playground and auditorium of basketball court.

Physical environment:

1.Wind: Masses are separated.Leave the path of wind for making wind stay longer in the site.

2.Tree: Planting trees in front of masses to flit air and provide privacy.

3.Fire zoning: Leave sidewalk or parking-lot all around.

4. The axis of units: To decrease influence of sun form the west,the axis of units will be west to east.

5.Water design: Between massses.

Site plan strategy

Functional division

activity area

activity area public space

1 bedroom 2,3 bedroom

water and wind strategy

2F activity area sidewalk grass yard

fire zoning

mass water

road sidewalk parking basketball court

Rainwater flows down from the sloping roof to the ditches on the ground, and the water is collected from these ditches to the yin well, in addition to being provided to the community for grey water recycling, it is also a special water feature and activity appearance.Usually when there is no rain, these ditches and grass pits are used by children to play or as safe passages for small creatures, and after the rain, they are filled with water, which looks like several small lakes on the ground, forming a special landscape of this community. Children play between these small lakes, and unlike the games on sunny days, water offers children more interaction possibilities.The gathering places of the adults surround the water, giving the illusion of gathering on the water, and these ditches also form the boundaries of nature and regulate the interior of the house.

02 Architecture
basketball court dining deck shared kitchen lobby pocket social space park/playground auditorium /park
07

Imagine a house in this neighborhood, the wind enters from the low window and leaves from the high window, and there is natural ventilation and lighting inside. Rainwater flows along the edges of the eaves to ditches on the ground, people sit on both sides of the ditch and watch the falling raindrops chat, and people inside work listening to natural music. Native tree species are planted around the area, and air enters the room through the filtering of trees and water.Children play between these water margins. The water on the roof accumulates over time and slowly grows grass, attracting birds to gather and forming another ecological circle.

08
water permeable pavement grass N
basketball cour t
kitchen) up 09
Site plan
lobby entrance meeting room (shared

Residential units concept Units concept

Units (3 Bedroom +2 beroom)

Units (1 Bedroom)

Kitchen Balcony Living room
kitchen living room back yard
up up up up up
up
1 bedroom: make more chance to meet each other casually.
up up up
up up up
N front yard entrance 10

Energy efficency and ecology on the project

Through water storage device,planting,window form and the path of wind to create microclimate on the site.Not only could let living spaces more comfortable,but also offer micro ecosphere for little creatures.

Deep eaves

Decreasing excessive sunlight enter to inner spaces.Keep indoors comfortable.

winter sun 65°

summer sun 17°

Wind will enter inner spaces from lower window and go out through

Landscape pond

As a gathrting space in sunny provide special watering view after raining. Also, it can be a naturer playground for children.

sewer pump processer
energy use
electric end use
pump
Annual
Annual
11

Biology channel

Extend micro ecology into residental area,not only in the public space.For example, ditch in sunny day can be the aisle as the safe way to pass for little creatures,after raining,water pillup up ditch,as different landscape.

Design gentle sloped wall or use nature material on the surface,let little creature such as snails can climb it,and go to second floor or third floor.

wall gentle sloped

wall gentle sloped escape ramp

Little creatures can have safe way live in this community with people. Human and little creature can see each other,but they will not disturb each other's living spaces. They live harmonious together,creating countless micro ecology.

Monthy heating loads

Energy analysis result Custom solar south elevation north elevation east elevation west elevation
Energy optimization
Solar energy
stair
escape ramp moving passage wildlife safe passage
12

Street life: living quality X walking quality

This decentralization of services has become known as the 15-minute city, where you can do your job, go to school, see your doctor, and be entertained all within a 15-minute radius of where you live.

la ville du quart d'heure

The concept of “la ville du quart d’heure” is one in which daily urban necessities are within a 15-minute reach on foot or by bike. Work, home, shops, entertainment, education and healthcare.

Street life: living quality X walking quality

=15 minutes cities (zoning,block,activity) X walkable city(network,block,flowing)

People return to the community life from the city, so the street becomes important. In addition to the simple function of crossing, it is more likely to become a new social stronghold.

If walkability and health was indeed related, Dr Sakar's team expected to find a higher rate of hypertension in areas of lower walkability.

03
EA4-February~June
Street life (living quality x walking quality) Influencing factors research issue design part Block Rule Reason Site Zone Render Check Network achieve method all city living circle community living quality moving quality Structure Health reason Walkable city Economic Social Power Street lifewalking and biking 15 Minutes cities Case study-Paris Current ranking Social equity ranking Current ranking V.S Social equity ranking residential area station green area WalkUPs, Education & GDP per Capita WALKUP(Walkable urban place) Walkability network zone block building typology road social space green area 5 mins living circle main program 10 mins living circle main program 15 mins living circle main program rail track Type A: residential and commercial area Type B: residential area Type C: commercial area moving and living living circle height and density a. enclosure(big) a. enclosure l.one big mass) ll.3 seperated mass) l.every floor ll.every three floor lll.serveral seperated mass) b. open space c. axis/direction d. inside street a. one-way retreat b. two-way retreat c. clusters of buildinds and towers c. separate b. enclosure(small) II.road layer,zoning III.walk quality I.open space(activity,living quality) II.road layer,identifiable III.living quality I.environment(sun,wind) II.road layer,living quality III.walking quality I.environment(sun,wind) design part 2 certain economic base demographic and ethnic characteristics rapidly expansive ground traffic system situation block regional division zone 1 zone 2 zone 3 main strategy analysis node urban Green Corridor new nodes greeen area network zone 1 zone 2 zone 3 city green corrider zone site plan zone 2 zone 3 city green corrider living quality walking quality zone boundries
13

Walkability: aproper reason,safe,comfortable,interesting

1. Accessibility to public services: Percentage of urban population within 1 km of public institutions such as health care and education, which are best within walking distance for children and the elderly.

2. Accessibility of mass transportation: the percentage of the city population that can reach the mass transport system within 10 minutes (about 500 meters), and can reach various destinations without having to drive out.

3. Block distribution: smaller scale, denser block planning, more suitable for walking and daily purchase.

4. Population density: per kilometer, the more densely populated the city, the more it needs friendly walking space.

5. Car-free space: living within 100 meters sidewalks, squares

green ara analysis

Park layers

Conclusion:Important parks are left behind, and other green spaces are rearranged.

Network

Mass transit:is only set on major roads.

The entrance to the university campus is also the entrance to the alternative road.

Node: More than two kinds of transportation pass by, and there are important urban spaces around.

There are planned bicycles and sidewalks.

It is close to the transport hub and is ecologically rich, with squares with occasional

A shortcut to the green belt, with rivers flowing through

Parks with special features are more popular. Such as: fitness equipment, shuttle,

Bicycle rental area, close to the university campus. You can rent bicycles from the station to ride here.

Historical monuments, parks, and river junctions are where holiday crowds enter.

The junction of schools, parks, and rivers. Busy place during school hours.

Connecting the green belt, on the axis of the station, on the corner of the important park. It is also the entrance to the green belt.

The park that Zhubei people like to go to on holidays is the most popular park. There are often activities, markets and performances.

The edge of the high-speed rail station is the node of regional division, and the west is the biomedical park.

To the south is a residential area.

The end of the transition area, connecting the residential areas on the east and west sides, is also the entrance of the green belt.

N important green area
15m 8m 27m 30m 40m 17m 26m 25m 50m main road station bus bus stop bike borrow node bike Problem all area:3.09m² all area:3.09m²
massive Area (average) Number Average distance (between) Type Crowd
green coverage ratio:44% all green area:1.8km² 0.5km² nature plaza shortcut playground 1 4 3 59 126m 69m 32m 0.037km² 39865m² 562340m² 14078m² 2449m² 0.013km² 0.002km² bike jog walk soccor walk baseball relax activity exercise picnic exercise social social walk relax specific funtion sidewalk relax
small 50%
14

15

Zone 1 0.98km²

Functional and convenient living circle

Some roads provide quick access to stations and green spaces, there are also open spaces in the blocks to improve walkability, and the scale of the atrium is controlled within the size of a small park, which is a more socially friendly

Soft city Playing in courtyard enclosure: safty,quiet,comfort

Work-

Human scale

1.smaller dimensions

2.smaller spaces

3.no higher than six stories

Zone 2 0.26km²

Commercial office life circlecommercial, office area

There are large open green spaces, measured retreats in response to open spaces, and there are many indoor streets and colonnades connecting the green spaces with the squares.

Soft city

Walking on vertical

Retails extend to streets.

winter sun

Roof garden. Playing music on windowsill.

Planting on balcony.

RelaxSay hello to neighborhood on balcony.

summer sun

Kids are playing along staircases.

Kids are playing in the courtyard.

Parents can watch their kids playing.

Having a short conversation on terrace.

First floor have a inner path to go to courtyard.

Social while waiting for

Diversity of built form

1.balance of building component parts:ground floor,middle,and top

2.visual variation

Zone 3 1km²

Create a variety of open spaces on both sides of the waterfront, the expression of each atrium is different, the two sides of the waterfront are hiking areas, and the way of connecting the green space is not so direct, but a bit of adventure, there are multiple entrances in the block, which greatly improves the walkability.4. Place a program ex suitable for rest around the street

Diversity of outdoor spaces

1.different kind of public outdoor spaces.

2.different typologies of space that respond to different needs and activities,from the very general to the most specific.

3.hybrid spaces that connect inside and out

4.public spaces as places for mobility.

Soft city

Ground floor,middle,and top visual variation

Kids play on the lobby stories.

The stepped façade can guide the wind to the high-rise building, and at the same time reduce the wind speed, so that people in the high-rise building can also feel the comfortable wind.

residential Green terrace. Walking outdoor.

winter sun

summer sun

Relaxing outdoor spaces between works.

Inner streets.

On the way back to home pass by retail,not only increase walking interest but finish daily life goods.

Commuters turned from bus stops and bicycle stations to walking, and walked into offices through outdoor stairs.

working spaces working spaces

Conspicuous staircases and vertical streets on the façade promote health while commuting to work.

Retail Retail

Different type’s public spaces.

Holiday markets, shows, events take place, where people stop and socialize.

Inner streets Plaza Street in block Colonnade

Living and working with nature

The top floor reteats to let people in the courtyard enjoy sunshine.

winter sun

summer sun

Water and trees can decrease temperature and fliter air.

working spaces

working spaces residential residential residential residential

Obviouly stairs to the second floor.

People dating,relaxing,walking,biking.......beside river bank.

Enjoying sunshine or walk in shadow.

The furniture of the retail store extends to the car-free area.People inside the shop can communicate with outside

A A’
Evening pub activity
to the
extends
river bank.Street artist,music,and vendors.
Bicycles can park at any time to buy things. Retail Retail
River Greenland Life Circle-Residential area, mixed residential and commercial area

Node connected rule-Partition discussion

station and main road school and station and main road staion and bus stop and main road

Block size arrangement -special rule

station green area bus stop/bike school

rule 1: The light rail station connects to major roads and bus stops.

station and main road

rule 1: Traffic nodes connect major roads.

rule 2: The school is connected to the main road, the road added by rule 1.

rule 3: traffic nodes connected to each other.

1. First retreat 10m around the station

2. In addition to the indoor tandem corridor, the open space also has a walkway for shelter from rain and shade.

The heart of the city is the station, and the road extends outward. There are circular moving lines that integrate the extended roads. In addition, there are straight roads connecting all the important urban spaces.

1. When encountering green space, there are measured bodies around, forming a pocket park

2. There is a 7m walkway on the back of the measuring body

3. There is an indoor channel in the middle that can be connected to the green space in series

1. When encountering a school, the surrounding blocks within 300m are enclosed to isolate noise.

2. Adopt different types of enclosures according to the density.

station green area

1. The bicycle station is on the street corner, attracting attention and a variety of transportation options

2. The body is retracted, and there is a terrace on the second floor

3. There is a small square of 10m x 10m on the corner of the street.

4. Place a program ex suitable for rest around the street corner: cafes, restaurants

1. First retreat 15~20m around the station

2. Set aside passages within the block

3. There is an aerial walkway connection between the measuring bodies, and there is also a semi-outdoor corridor on the ground floor.

Hiking area planning

1. Measure the body along the river

2. There is green space on the convex bank of the river

rule 1: rule 2 :river bank special plan: Combining commercial/integration into residential, becoming a part of life, the road is planned along the river.

n e w r o a d mai n road tandem road education station bus stop

21m (road)

1. There are auxiliary buildings on the edge of the green space, with retail stores and restaurants.

2. The flyover connects the green space and the roof platform to bring activities into the building

History

21m(road) 10m 15m(river)

3. The second floor of the body facing the river bank retreats by 3~5m

4. The top floor retreats 3m

1. There is a 10m*10m corner square on the street corner facing the historic site

2. The second and third floors retreat 4~6m

r
d
n e w
o a
green area water commercial and residential area 360m 253m 442m 308m 338m
15~20m
16

City green corrider

Purpose: To provide a path for out-of-towners or residents to quickly get to know the area. Connecting stations, monuments, and rivers. with low body Mainly, creating a human scale, facing the river, the second floor retreats into a terrace.

Main Strategy - Network

3. Plan circular moving lines to connect important urban nodes.

City green corrider planning

1. boundry

1. Use green space, the area surrounded by rivers

2. The surrounding blocks are controlled at 80m*80m

2.height below 10m (3 floors)

Low body, human scale activities.

3.seperated masses

1. The distance between the measuring bodies is far (15~20 meters), and the long side does not exceed 30 meters.

2. The long side faces the south side

4.river and green area

Zone boundries

The main external roads are connected to the most important transportation hubs.

Set aside a hiking area of about 4 kilometers and plan a cycling route.

It retains the properties of both regions at the same time. Gradually approach the characteristics of another area.

When encountering rivers and green spaces, retreat 6m

Plan circular moving lines to connect important urban nodes.

65 education station green area water history old zhubei business district Hsinchu downtone
green corrider
road 5 mins living circle 10 mins living circle 15 mins living circle
1.new main road 2.city
3.circlr
all area:2.24km² N history green river new road station bus bus stop bike borrow bike 1.
External main roads, connecting the most important transportation hubs.
2. Set aside a hiking area of about 4 kilometers and plan a cycling route.
N 8m 10m 30m 15m 30m
30m15m
education station green area water history zone 1 zone 2 zone 3
N zone 1 zone 2 zone 3
1~2 blocks distance education station green area water history 1. zone 1 and zone 2 enclosure enclosure business stair retreat stair retreat open spaces 2. zone 2 and zone 3 3. zone 1 and zone 3
17

Under the background of the epidemic, people return to the community from the city, the scope of the living circle is reduced, and the street no longer only has the function of crossing, but becomes a kind of diversity and tolerance social place. Advocate walking and cycling to complete all daily needs, and integrate healthy actions into life; convenient and tight public transportation network,Increase the opportunities for residents to experience the city on foot; the flowing green brings opportunities for people to stroll; the pedestrian area on the waterfront becomes a new leisure place.

Located in the Hsinchu-Zhubei High-speed Railway Special Zone, it explores the shortcomings of the city under the rapid development and rethinks the quality of life. Follow the walk of Copenhagen.It also maintains walkability in high-density areas, and people can reach the outdoors in a short time, becoming a respite from home or office breaks.Through the transformation of the pedestrian city, residents can better understand the place and enjoy life.

r=800m(10 mins)

There are public transport stops within 10 minutes, allowing people to have other alternatives to move when they are tired from walking. The more and denser the stations, the higher the traffic

population:2657 ~3626peolple density:44283person/km²~60433person/km²

average height:48m(12 floors)

population:5222~7126peolple density:65275person/km²~89075person/km²

average height:40m(10 floors)

floor areas:125350m²

living areas:62675m²

37.3m²~50.9m²(per person) population:1231 ~1680peolple density:8019 person/km²~13402 person/km²

18

Rhythm

proportion

co-housing castle in the sky

This proposal is for those who wish to have a slow life. Carrying a heavy bag, head down to the hall.

Avoid the chatting neighbors and go to the second floor. People who share a studio focus on the work at hand. As the sun sets in the west, the gurgling sound of water can be heard outside the door, and it follows the sound. Like the water from the sky falling on the stone slabs,dropped to the bottom of the lake ten feet below. Rattan surface sprang from the stone crevice,stepping up the stone steps, going around the grass, pushing away the leaves,say hello to the neighbors who are sitting on the platform.Open the door,The corner is your own room, open the sliding door to the balcony,birdsong, water sounds, and human voices all become the background,only a large blue sky came into view.

04
EA2-April~June
co-working lobby entrance toilet meeting room parking lot room 3 room 3 room 1 room 1 room 1 room 2 room 2 room 3 terrace terrace room 1 room 2 room 1 semi-outdoor semi-outdoor semi-outdoor office storage room
diagram 19
People walking fast in the busy city, how long did theynot slowing down carefully to appreciate the delicate aesthetics of life?
Bubbles

Mass

Pocket space Slit

big pocket

subtraction

mass arrangement Yongkang Street

Site plan

Site: Yongkang Street

Area of base: 1000m2

Construction rate:60% Total floor area:600m2

small pocket addition

slit between street between buildings bright dark

lobby co-working semi-outdoor house terrace balcony

+
Shi-Da Chiang Kai-shek Memorial Hall Daan Park
20
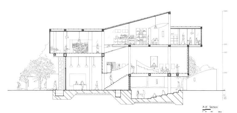
Light shadow guidance Suggestive focus omni-directional Section 21

floor

stair

wall

glass

entrance

roof

change the mass’dense and scale, create the sequence that people eoaming in there can feel the rythm.

balcony

semi-outdoor mass balustrade

public space (dining room,kitchen,living) family room

entrance dining room aisle aisle family room

shift
22

Unlike other commercialized and popular business districts in Taipei, Yongkang Commercial District pays great attention to the quality of life and extends this awareness to the community. Many residents have a hobby of planting and planting, walking in such a tree-lined alley makes people feel quiet, and the sense of ceremony before the merchant enters the door also increases the texture of life.

1F plan
2F plan 3F plan 4F plan
23

As roaming on a secret amazing place.

Through the height difference and proportion change to reshape my perception of the sense of serenity and the sense of ceremony of coming home, in the public area part, the people at work feel the almost sacred sense of tranquility, the use of split-level and furniture arrangement to create spaces for different groups to use, so that people also have a sense of privacy in the public space. The interior of the residential unit also distinguishes the use of different spaces by the difference height , which can not only create their own independent space, but also increase the field of view and expand the sense of space in the room. The end of the flow is a personal room, which also leads directly from the inside of the room to the courtyard and outdoors, creating another entrance that makes the front yard and backyard.

In addition to the spatial configuration and circulation planning, the sense of tranquility and relaxation is given to people, and the use of stone as elevation on the material adds a sense of naturalness. It is hoped that the residents of this community can feel the healing brought by natural elements, and while maintaining their own privacy, there is also a community space to share and communicate with others.

24

Slow Flowing

co-working space

In this busy city, I wished for a little more of an extension of the green belt. Use water and plants to create some relatively quiet environments.

Working happily with nature.

The base is located at the junction of Huashan Cultural and Creative Park, Huashan Grassland and Sanchuang Life Park, as an area connecting three different natures, it is necessary to be able to match the original environment and introduce crowds from three directions. In recent years, people's work patterns have begun to change, and the nomadic work mode of cafes has become a trend, and traditional offices are no longer in line with demand, resulting in shared offices.

05
water green belt vertical flow horizontal flow entrance parking-lot lobby outdoor performance Hall entrance Multifunctional exhibition hall co-working space breastfeeding room office storage bicycle toilet toilet
diagram EA2-February~April 25
Bubbles

Site plan Huashan 1914 Creative Park

Area of base: 1000m2

Construction rate:30%

Total floor area:600m2

Flowing

sun wind mass scale water walking
26

Space seqence

I hope to provide a relatively simple, tranquil environmental quality for a noisy environment. Meeting the basic needs of nomadic work, people can also be more productive in natural environments, and the transition between work and leisure is also very easy, and it is only a matter of walking to the terrace to reach the outdoor green space. The furniture decoration can provide the work needs of people with different working habits.

The curved walls of the exterior extend all the way indoors, guiding people all the way up, with slopes and stairs of different flight widths, giving people a rhythm of walking, like a walk. A shared office is not just about sharing physical workspaces, building equipment, and furniture with other people, but also about being able to share and coexist with the environment and the city, creating a more friendly and comfortable urban space.

27

1F plan

2F plan

Use the cloud wall to guide the space, so that the movement first meanders, The sound of running water was faintly heard from afar. Through the layers of curved walls, a stone wall trickles into the room The tall, narrow hall leads the second floor there are balconies for individual work.

3F plan

28

Section

Turning upwards, there is an open office. People can work at any corner at any time, If you want to rest, you can also walk to the semi-outdoor balcony,Looking at the surrounding trees, listening to the sound of water, temporarily forgetting the fatigue of work, You can also make yourself a cup of coffee and chat with someone you just happen to meet. With this kind of slow flow, Give yourself a chance to breathe and let nature heal your body and mind.

29
mass lighting flow site opening part twinkle personal space meeting room lobby gleam hint linear sparkle glow hint wall mass sight flow Layer 30

Hidden clading

kiosk

Purpose: The "slowness" of the café itself is interesting to the slowness of walking in the zoo. Slowly walk into an indoor space, and then slowly lead to the entrance of the bird park through a faint guide.

whole zoo flow Aviary folw

1F plan

The trees in the middle flowerbed block most of the view, and the penguin house is more attractive, So that fewer tourists arrive at the bird park, so I would like to make a station to the kiosk of the bird park. The hidden wrapping net of the bird park itself is its unique nature, combined with the above two points, Choose the most suitable location in

Site: Taipei Zoo-Aviary

Area of base: 100m2

Construction rate:30%

Total floor area:30m2

06
EA2-Setember~November 31

extend invisable clading tension cover

Surrounded by trees covered with buildings, Walk up the wooden staircase, Give people the illusion of stepping in the air. The lens mirror is constantly reflecting, Make people walk into the room unconsciously. Inside, it's like being surrounded by thick greenery outside the room. And with a cup of just warm curry, To visitors to and from the zoo, An opportunity to slow down and relax.

Roof plan

assemble
contrast limit
32
33

Mirrors can reflect objects, giving the enclosed space the illusion of enlargement. Through the reflection of different dimensions, angles, and numbers of mirrors, people cannot distinguish between indoor and outdoor boundaries. In the process of reflection, their own mirror image and afterimage will also appear on different mirrors together, at this time people will have the illusion of the second layer of time and space, the actual location of the person becomes quite ambiguous, and the soft medium blocks a certain amount of sight and sound, forming a hidden other time and space.

Elevation

34

Turn static files into dynamic content formats.

Create a flipbook