




![]()





LOCATION | PORUR, CHENNAI SITE AREA | 3ACRE

OBJECTIVE
HIGH-RISE BUILDING THAT COMBINES AESTHETIC APPEAL WITH FUNCTIONAL EFFICIENCY, PROVIDING A LANDMARK STRUCTURE THAT ENHANCES THE URBAN FABRIC AND SKYLINE OF THE CITY.
TO CREATE A SUSTAINABLE AND ENVIRONMENTALLY CONSCIOUS HIGH-RISE, INCORPORATING INNOVATIVE GREEN BUILDING TECHNOLOGIES AND STRATEGIES TO MINIMIZE ENERGY CONSUMPTION, REDUCE CARBON FOOTPRINT, AND PROMOTE OCCUPANT WELL-BEING
LINEAR SYMMETRY FORMSHAPINGRECTANGULARFORMFINAL FORM
CONCEPT
EVOLUTION OF FORM
TO DESIGN A VISUALLY STRIKING ARCHITECTURAL FORM BY UTILIZING A RECTANGULAR SHAPE AND STRATEGICALLY INCORPORATING VOIDS WITHIN IT, CREATING AN INTRIGUING INTERPLAY OF SOLID AND EMPTY SPACES.
TO INTEGRATE THE FINAL FORM INTO A LINEAR CORRIDOR, ENHANCING THE SPATIAL EXPERIENCE AND CREATING A HARMONIOUS VISUAL CONNECTION BETWEEN THE ARCHITECTURAL ELEMENT AND ITS SURROUNDING ENVIRONMENT.


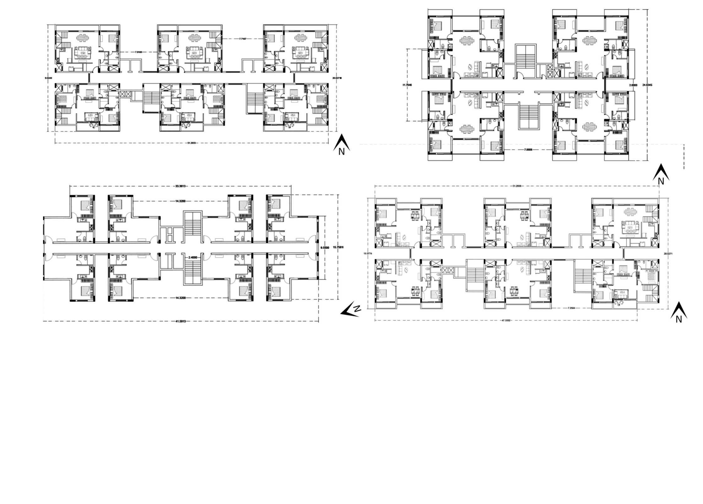
FLOOR PLAN





LOCATION |IRUMBULIYUR, CHENNAI SITE AREA |17200SQM

TO ESTABLISH A STATE-OF-THE-ART MULTI-SPECIALTY HOSPITAL THAT DELIVERS EXCEPTIONAL HEALTHCARE SERVICES ACROSS A WIDE RANGE OF MEDICAL DISCIPLINES, ENSURING THE HIGHEST STANDARD OF PATIENT CARE, COMFORT, AN SAFETY.
TO INTEGRATE ADVANCED MEDICAL TECHNOLOGIES AND EQUIPMENT INTO THE HOSPITAL’S INFRASTRUCTURE, EN ABLING ACCURATE DIAGNOSIS, EFFICIENT TREATMENT, AND IMPROVED PATIENT OUTCOMES.
THE DESIGN CONCEPT IS BASED ON GEOMETRIC SHAPES, SPECIFICALLY THE BINDING OF RECTANGULAR SHAPES, TO CREATE MORE VOID SPACE AND ACHIEVE NATURAL LIGHT AND VENTILATION IN THE DESIGN PROJECTS.


3RD FLOOR




LOCATION |PATTINAPAKKAM, CHENNAI
SITE AREA | 3ACRE

OBJECTIVE
TO DESIGN A TAMIL CULTURAL CENTRE THAT SERVES AS A VIBRANT HUB FOR THE PRESERVATION, PROMOTION, AND CELEBRATION OF TAMIL CULTURE, HERITAGE, AND ARTS.
TO CREATE A SPACE THAT SHOWCASES THE RICHNESS AND DIVERSITY OF TAMIL TRADITIONS THROUGH EXHIBITIONS, PERFORMANCES, WORKSHOPS, AND EDUCATIONAL PROGRAMS, FOSTERING CULTURAL UNDERSTANDING AND APPRECIATION AMONG VISITORS OF ALL BACKGROUNDS.
CONCEPT
THIS CONCEPT IS BASED ON THE 5 ELEMENTS OF NATURE TO LINK WITH THE HUMAN HAND SIGN AND THE INTERLINKED LINES ARE THE BASIS FOR CREATING THE BLOCK. THE LINES ARE THE ROAD TO CONNECT THE BLOCKS.



(EDUCATIONAL & WORKSHOP) GROUND FLOOR
(LIBRARY) GROUND FLOOR
AUDITORIUM FLOOR PLAN


(MUSEUM) GROUND FLOOR



URBAN SPONGE
MARSHLAND
LOCATION |
SHOLLINGANALLUR, CHENNAI





SCOPE OF WORK
WORKING DRAWING
SECTION
ELEVATION
MODEL
RENDER

SCOPE OF WORK
WORKING DRAWING
3D MODEL
RENDER





RESIDENCE
SCOPE OF WORK
WORKING DRAWING
INTERIOR RENDER





















SCOPE OF WORK
ELECTRICAL LAYOUT
PLUMBING LAYOUT
RENDER










BLENDER , SKECTHES & SITE WORK




















