Undergraduate Architecture portfolio

Page 1

LANDSCAPE 01
“The light keeps on shining”

Observation drawings of the location/site preceding design intervention.

Fietas ,Johannesburg

Concept development leading to final design proposal.

,Johannesburg
Fietas

Master Plan of uKukhanya

Residential accomodation

Proposal

Fietas ,Johannesburg

“Tranquality”

The arrival

APB Bunting campus , Johannesburg
02

The concept was a personal reflection to show how my journey with my studies has not been linear leading to the arrival

APB Bunting campus , Johannesburg

APB Bunting campus , Johannesburg

Final proposed site model with context

APB Bunting campus , Johannesburg

“Reimagining the forgotten”

Group project with interior design student

03

The Concept,‘‘Work and Play”.

The idea of redesigning spaces that have been forgotten into lively spaces in this case ,an Exhibition stand for creative minds.

To deconsctruct and reconstruct taken from the idea of

APB Bunting campus , Johannesburg

The idea of sustainabily,power of the building being supplied by kinetic movement.

APB Bunting campus , Johannesburg

APB Bunting campus , Johannesburg

Planning of the Exhibition stand

Final 3D model of work and play

APB Bunting campus , Johannesburg

A series of reaserching exististing projects

04
‘‘Innovating creativity’’

Tower of Light’’

University of Witwatersrand

‘‘The
Research conducted and model making of the tower

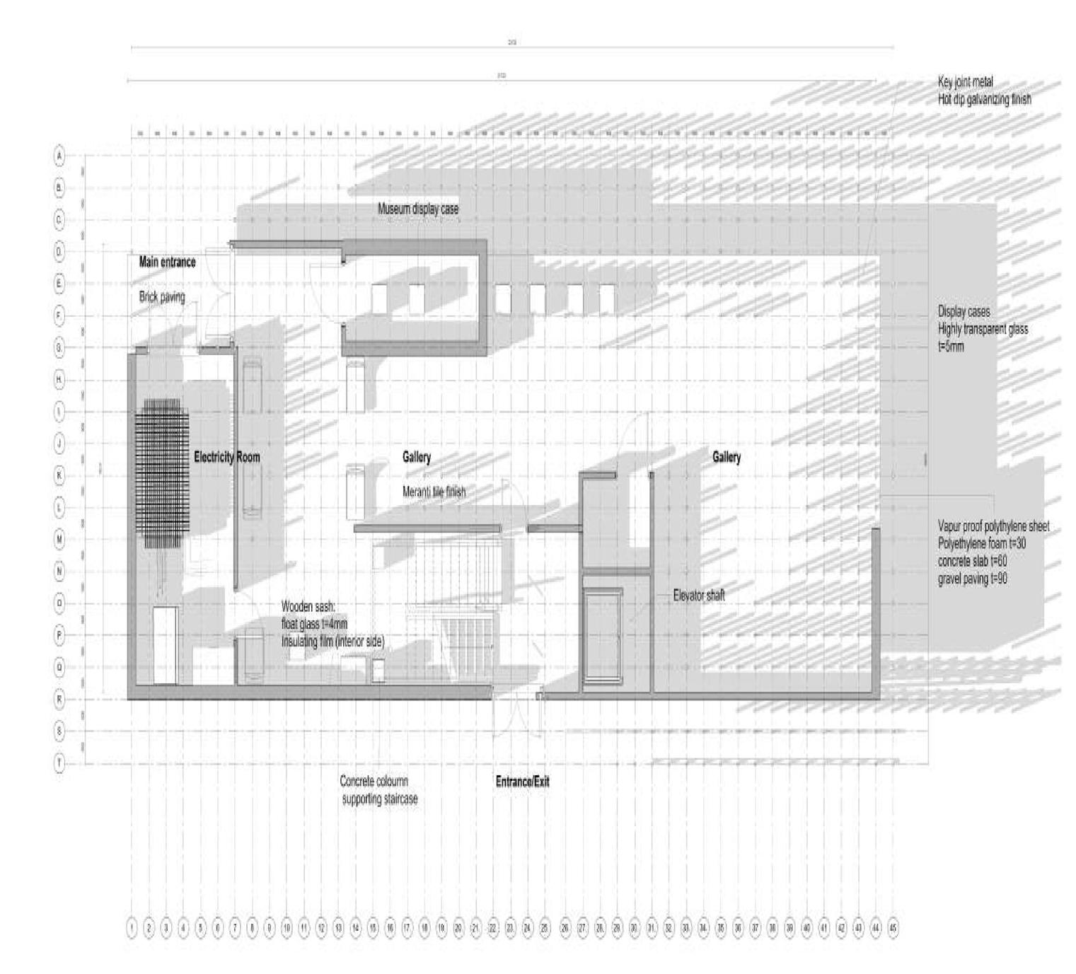
“GC Prostho Museum’’

Rendered strip section

Kasugai-shi,Japan

Ground floor plan

“Ilizwe Lamaphupho’’

05

Turn static files into dynamic content formats.

Create a flipbook
Issuu converts static files into: digital portfolios, online yearbooks, online catalogs, digital photo albums and more. Sign up and create your flipbook.