作品集

Page 1

Mail : ken571550@gmail.com

Ted :0903-627638

2022-2023

YI-CHENG
Portfolio
Asia University Interior Design 王繹誠

Personal Portfolin

Contents
團隊 日本八幡平飯店重造
新共居 多元大學生宿舍 書店設計 : 輕舟書店 綠園道住宅設計
Sequence 個人
TSID

Add : Changhua Taiwan

Mail : ken571550@gmail.com

Ted :0903-627638

從小就對創作感到興趣,尤其是建築與室內設計方面,後來有幸就讀秀水高工建 築科並慢慢開始了解建築與室內設計相關的行業,後來在探索中特別對室內設計 充滿興趣,在升大學後便選擇室內設計這個科系,了解到做設計時所需的美學素 養以及視覺上的引導都是非常重要的。其中也多次與同學以及學長姐們有合作的 經驗,能適應團體生活,也願意學習新的事物,希望有更多的學習機會。

Education

Professional license

Skill

Personal Portfolin Porfiles
國立秀水高工 建築科 亞洲大學 室內設計系 Illustrator Indesign Photoshop Sketchup AutoCAD PowerPoint Word Excel 測量技術士 丙級
新共居 多元大學生宿舍 學生競圖
Experience 日本飯店室內設計實習計畫 TSID

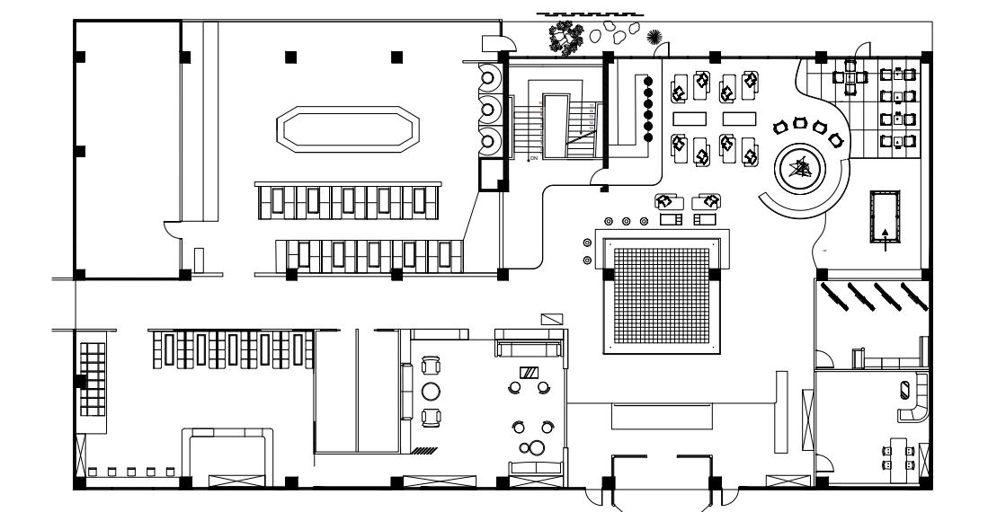
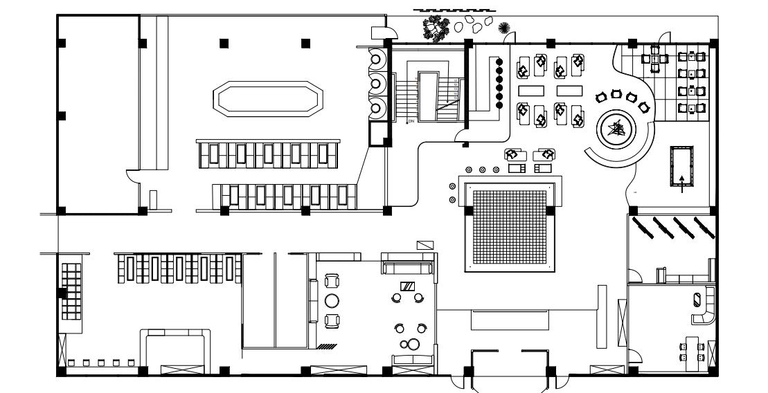
輕舟書店

設計時間:2023/5

借舟即船為概念,將書喻為載體,上下層分別分 為乘載人及引導人們前進的空間,在引領人們昂 揚在書海的同時,營造出舒適愜意的氛圍。

利用風格與材料和二樓的空間形成對比,營造出 乘載人與引導的兩種空間

輕舟書店
「書」為儲 存知識的載 體,人們透 過書了解前 人的智慧以 及人生經歷

1F空間介紹

1樓樓層主要以販賣商品及書本為主 ,整體更偏向於空間上的引 導,利用近景、遠景的手法將人的視線引導至後方的區域 ,並利 用大面積的採光,讓光線聚集於一處。

輕舟書店 平面1F
空間裡使用了白油漆 、橡木 和砂岩板做為 色彩上的核心 ,再以 橡木做主要的空間區 隔 ,而砂岩板除了是 環保材質外,更具有 防滑、防潮、吸音的 效果,替整體空間打 下基礎。
橡木 砂岩板 人造白橡木

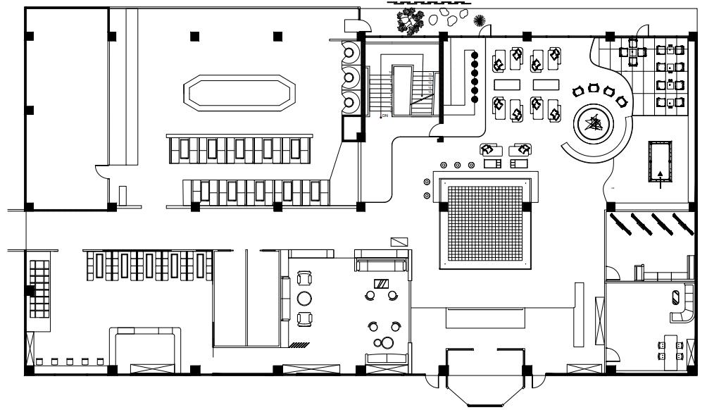
平面2F

2F空間介紹

相對於1樓,2樓的材質使用橡木,讓1樓與2

樓空間性質形成差異。而2樓是屬於閱讀以及多 功能使用的空間,1樓則是做動線上與視覺上的 引導,整體採取較直覺式的動線設計

輕舟書店
輕舟書店 手做模型 2F剖面圖
2F剖面圖

以「人」為本

設計時間:2022/10

位置位於台中市南區南門路86-3號,坐落於興大路旁

住宅空間 以「人」為本 以人為本 住宅空間

男主人

48歲,家庭主夫;喜歡看電影、收集公仔

46歲;服務業、常用筆電做廣告設計,平時喜歡喝下午茶、 做瑜伽、靜坐等。

9歲,小學,喜歡玩桌遊。

本基地西南方具有中投公路銜接至國3交流道、 北方為建成路3段,南方中潭公路、而大眾運 輸以基地西方南門路公車站和西方捷運站、高 鐵站為主。

業主設定 以人為本
女主人
男孩
基地分析
70歲,喜歡閱讀和泡茶 爺爺
平面圖 以人為本
以人為本 手做模型
短向剖面圖
長向剖面圖

客製化朝陽飯店太陽性質,將陽光帶入空

間內,

並且結合八幡平當地居民創造出獨有的染 布工藝“夢蒸染”,是大地賞賜溫泉之禮,

促成我們想將這些天然、自然的地理型態 融入到室內設計中。

此次改造不僅是為了使其室內外煥然一

新,更重要的是來自各地慕名而來的旅客

能透過此次設計感受到什麼,

是遠離城市喧囂後一解憂愁的餘韻,抑或

是徐徐餘煙昇華人與人之間的距離,

希望透過此次改造設計讓旅客們體會到八 幡平朝陽飯店的壯麗之美。

理念 朝陽飯店
設計理念

主要路徑為基地前方道路 同時也是上下山必經之路。

主要道路 主要路徑為基地前方道路 車流與人流 視覺主軸
基地
人流為背包客、團體旅客、冬天會有長住的
朝陽飯店 基
車流為自駕旅客、公車、接駁車。
主視覺方向為西北及東南邊
地 分 析
客源分析 朝陽飯店 原有房型 家庭旅遊 旅遊團體 背包客 原有房型 左 洋室 中 和洋室 右 和室 空間分布

大地賞賜,得以從地核中萃取出溫泉之禮,促使人們獲得紓壓管道。 於千禧之年,壓力之大下,脫離城市喧囂、3C束縛,透過享受溫泉去洗 淨忙碌、拉近彼此距離。

夢 蒸 染

夢蒸染為八幡平特有文化,將絞布上賦予染料,經由地熱蒸爐加熱產出,成品如山 形雲彩般, 碰撞漸層要素,使其成品如山形般,暈染出層層堆疊的視覺饗宴。

朝陽飯店 概念圖
溫泉
山形代表蔓延的山路在每 個轉角都可以遇到不同的 事物與風景,柳暗花明又一 村。
山形

多功能空間

此處為多功能空間 ,此空間在看見時已經失去原先存在的意義了,原先開始設計時,我們只是想將 夢蒸染 的特色與此空間做搭配以及展示 夢蒸染 這個商品,但在之後與支配人做完討論後,我們了解到他想將此地 做成一個多功能空間使用,那麼此空間以較暗沈的木材做為空間的主色,除了可以當一個閱讀空間以外,也 可以當作休息、會議以及用餐的空間使用。而從走廊到門口的位置,可以看到斜角度的格柵,除了以山形作 為創作思考以外,我們也想讓經過的人在格柵的視覺上有所變化。

朝陽飯店 多功能空間
朝陽飯店 餐廳

重生

將廢棄房屋重新改造

創造出善待各種人士的綠色建築

設計時間:2023/4

疫情有如災難般突然爆發,在一個後疫情的時代,人們更應 該靠著人與人之間相互扶持的力量去渡過最後的一道難關。

大學就像是社會的一個縮影,宿舍更是人與人間最直接的交 流場域,在兼顧身障及性別平等的環境裡,人們更應該注重 於社會上的交際與「家」的本質 ,也想透過廢棄房屋重造喚

回土地該有的生命力。

TSID
重生
TSID

1F大廳空間

大廳面臨著西曬的問題 ,在為了增加空間的採光在西側大量使用了 32毫米的3層玻璃鋁框窗口,在提供採光的同時並提供了隔熱的效 果,而在玻璃窗口的位置增加了植栽去阻隔大量陽光進入室內,並為 空間提供被動式冷卻的效果。

而格柵天花板則使用了PareauLux氣候天花板,PareauLux氣候天 花板由細網狀膨脹金屬元件組成,其上焊接有銅管磨床。根據房間是 否需要冷卻或加熱,系統提供冷水或熱水。熱交換是在輻射和對流相 結合的基礎上進行的,為全空氣或對流系統(如風扇對流器或分體式 裝置)提供了一種更令人愉悅且侵入性更小的替代方案,在這些系統 中,能量傳遞僅通過空氣進行。在這種情況下,空氣供應取決於對新 鮮空氣的需求,而不是所需的冷卻能力,這意味著空氣循環比對流系 統低,氣流的風險最小。可以按房間或控制區域設置溫度。

TSID 重生

2F 4人宿舍空間 2F空間為四人居住空間,一進門可以看到格柵做玄關的區隔,讓住戶不會一進門 就一覽 整個空間 ,私人空間以日式風為空間基礎,房型為和洋式

動的空間分開,讓使用者不會互相打擾。

,我們將休息空間與閱讀或走

Thanks for watching

Turn static files into dynamic content formats.

Create a flipbook
Issuu converts static files into: digital portfolios, online yearbooks, online catalogs, digital photo albums and more. Sign up and create your flipbook.