BIM Portfolio 2023

Page 1

PORTFOLIO

SELECTED WORKS 2023

Contact

8056296243

kaavyaavenkatesan@gmail.com

Chennnai, Tamil Nadu

Skills

• AutoCAD

• Sketchup

• Autodesk Revit

• Autodesk Insight

• Autodesk Naviswork

• Autodesk 360

• Lumion

• Enscape

• Adobe Photoshop

• Adobe Indesign

Languages

• Tamil

• Telugu

Kavya V

5th year Architecture

Student

About me

The interaction between science and nature is one of the aspects of architecture that I appreciate the most. In every design that I’ve worked on over the last four years, I’ve made it a point to balance harmony between theoretical, environmental, functional factors while also addressing the needs of the built environment.

It is not only the architectural design part which fascinates me, but also all the other knowledge that an architect needs to acquire in order to perform as one.

Education

• 12 th grade ( 2019 }

Bharath Senior Secondary, Adyar

• B.Arch ( 2019 - 2024 )

Anand School of Architecture

Courses

• Advanced Revit workshop - Kaarwan

• BIM in Revit - Karwaan

• English

• Advanced Course in Sketchup - Udemy

• Sustainable Architecture - NPTEL

CONTENTS

- Falling water

• Architecture

• Documentation

• Schedule & Estimation

• Solar Study

• Energy optimisation

• Clash Detection

- Massing Environment

- Facade Develpoment

- Custom Families

F A L L I N G W A T E R

- Le Corbusier
01

FLOOR PLANS

Autodesk Revit

Ground Floor Plan

Servant room Terrace -Servant room Terrace
First Floor Plan

FLOOR PLANS

Autodesk Revit

Room Legend

Bathroom

Hall

Study

Terrace

Second Floor Plan

Room Legend

Bathroom

Bridge Drawing room

Guest room

Hall

Room Legend

Bathroom

Bridge Drawing room

Guest room

Hall

Master bedroom

Terrace

-

ELEVATION

Autodesk Revit

West Elevation

South Elevation

Autodesk Revit

Detail 1

Section - B - B’

First Level Second Level 4.00 m Parapet Wall 0.9 m Curtain Window 1.75 m Window Sill Level 0.9 m 0.15 m RCC Floor
SECTION

Curtain window

Window Sill Level 0.9 m

Planter Box

Baluster

Staircase

Riser - 0.3 m

Tread - 0.4 m

Landing Depth 0.05 m

4.00 m

Parapet Wall 0.9 m

First Level 1.20 m

Ground Level 0.00 m

Foundation 1 -1.00 m

2
Detail
Section - A - A’

RENDERS

Enscape & Photoshop

SCHEDULING AND ESTIMATION

Autodesk Revit & Microsoft Excel

Name Count Door Anotation Width Height Finish Frame Material 1 1.24 2.6 Glass Aluminium 1 1.25 2.6 Glass Aluminium 2 1.35 2.6 Glass Aluminium 1 1.46 2.6 Glass Aluminium 1 1.48 2.6 Glass Aluminium 1 1.55 2.6 Glass Aluminium 1 2.3 2.6 Glass Aluminium Count 1 0.62 2.6 Glass Aluminium 1 0.73 2.6 Glass Aluminium Count 1 0.75 2.03 Glass Aluminium 1 1.5 2.1 Glass Aluminium 1 2 2.03 Glass Aluminium Count 1 0.8 2.1 Glass Aluminium 2 0.9 2.1 Glass Aluminium Count Toilet flush door 1 D5 0.6 2.1 Glass Aluminium Count Grand total 17 1 3 3 Door Schedule D3 D2 D4 8 2 Curtain double door Curtain single door Double glass door Single glass door D1

ESTIMATION

Panel Schedule

Name Finish Width Height Area Count Total Cost Glass 0.20 m 0.18 m 0.03 m² 1 10.45 Glass 0.20 m 0.43 m 0.08 m² 1 25.37 Glass 0.20 m 0.45 m 0.09 m² 15 26.86 Count Glass 0.30 m 0.48 m 0.14 m² 1 42.75 Glass 0.30 m 0.55 m 0.17 m² 1 49.5 Glass 0.30 m 0.53 m 0.16 m² 1 47.25 Glass 0.30 m 1.65 m 0.49 m² 1 146.03 Glass 0.30 m 0.35 m 0.15 m² 3 44.63 Glass 0.30 m 0.38 m 0.16 m² 1 47.81 Glass 0.30 m 0.45 m 0.19 m² 1 57.38 Glass 0.30 m 0.43 m 0.18 m² 1 54.19 Glass 0.30 m 0.48 m 0.20 m² 1 61.28 Glass 0.30 m 0.63 m 0.27 m² 1 80.63 Glass 0.30 m 0.65 m 0.28 m² 2 83.85 Count Glass 0.45 m 0.18 m 0.08 m² 1 23.6 Glass 0.45 m 0.43 m 0.19 m² 1 57.31 Glass 0.45 m 0.45 m 0.20 m² 15 60.68 Count Glass 0.50 m 0.48 m 0.22 m² 1 64.84 Glass 0.50 m 0.63 m 0.28 m² 1 85.31 Glass 0.50 m 0.65 m 0.30 m² 2 88.73 Aluminium 0.50 m 1.14 m 0.67 m² 1 201.44 Glass 0.50 m 1.37 m 0.81 m² 1 242.26 Count Glass 0.60 m 0.48 m 0.28 m² 1 85.13 Glass 0.60 m 0.65 m 0.39 m² 1 116.49 Glass 0.60 m 0.43 m 0.25 m² 1 76.17 Glass 0.60 m 0.51 m 0.32 m² 1 96.08 Glass 0.60 m 0.53 m 0.34 m² 1 100.8 Glass 0.60 m 0.51 m 0.32 m² 1 96.08 17 14 17 6 Glazing Panel Glazing Panel Glazing Panel Glazing Panel Glazing Panel 0.50 m 0.60 m
0.45 m 0.30 m 0.20 m Glass 0.60 m 0.51 m 0.34 m² 2 102.94 Glass 0.60 m 0.53 m 0.36 m² 1 108 Count 9 Glazing Panel 0.70 m

SCHEDULING AND ESTIMATION

Autodesk Revit & Microsoft Excel Glass 0.90 m 0.80 m 0.72 m² 1 216 Glass 0.90 m 0.48 m 0.46 m² 1 137.37 Glass 0.90 m 0.65 m 0.63 m² 1 187.98 Glass 0.90 m 0.43 m 0.41 m² 1 122.91 Glass 0.90 m 2.35 m 2.29 m² 1 686.17 Glass 0.90 m 2.35 m 2.29 m² 1 686.17 Count Glass 1.00 m 0.46 m 0.47 m² 1 140.99 Glass 1.00 m 1.65 m 1.69 m² 1 505.73 Glass 1.00 m 0.61 m 0.62 m² 1 185.43 Glass 1.00 m 0.49 m 0.50 m² 1 148.65 Glass 1.00 m 1.65 m 1.73 m² 1 518.1 Glass 1.00 m 0.53 m 0.60 m² 1 178.81 Glass 1.00 m 0.55 m 0.62 m² 1 187.33 Glass 1.00 m 0.48 m 0.54 m² 1 161.78 Glass 1.00 m 0.53 m 0.61 m² 2 182.75 Glass 1.00 m 0.55 m 0.64 m² 2 191.46 Glass 1.00 m 0.48 m 0.55 m² 2 165.35 Count Glass 1.20 m 0.48 m 0.57 m² 1 171 Glass 1.20 m 0.63 m 0.75 m² 1 225 Glass 1.20 m 0.65 m 0.78 m² 2 234 Glass 1.20 m 0.51 m 0.69 m² 2 206.64 Glass 1.20 m 0.53 m 0.72 m² 1 216.8 Glass 1.20 m 1.65 m 2.27 m² 2 680.63 14 6 Glazing Panel Glazing Panel 1.20 m 1.00 m Glazing Panel Count Glass 1.40 m 1.65 m 2.31 m² 1 693 Glass 1.40 m 1.65 m 2.31 m² 1 693 Glass 1.40 m 1.65 m 2.31 m² 1 693 Glass 1.40 m 2.55 m 3.58 m² 1 1075.24 Glass 1.40 m 0.18 m 0.26 m² 1 77.7 Glass 1.40 m 0.43 m 0.63 m² 1 188.71 Glass 1.40 m 0.45 m 0.67 m² 15 199.81 Count Glass 2.50 m 0.48 m 1.28 m² 1 382.61 Glass 2.50 m 0.63 m 1.68 m² 1 503.44 Glass 2.50 m 0.65 m 1.75 m² 2 523.58 Count Grand total 125 4 21 9 Glazing Panel Glazing Panel 1.40 m 2.50 m

ESTIMATION

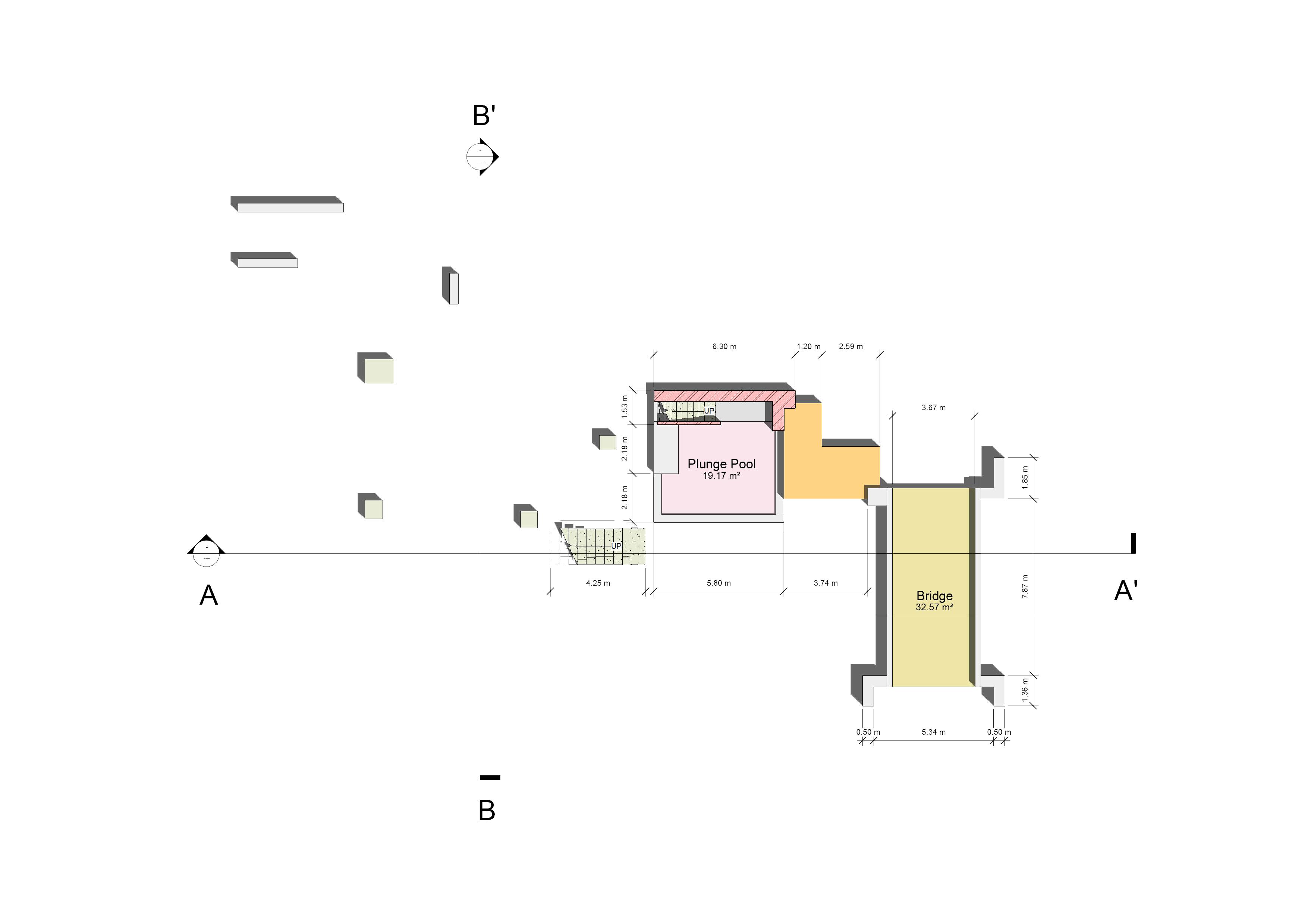
Level Name Area Count Perimeter Ground Level Plunge Pool 19.17 m² 1 18.53 m Count Terrace 17.62 m² 1 16.94 m Living Room 116.91 m² 1 62.21 m Entry 5.18 m² 1 9.50 m Terrace 31.29 m² 1 33.36 m Kitchen 19.19 m² 1 19.17 m Servant room 9.03 m² 1 12.95 m Porch 6.84 m² 1 10.70 m Bridge 32.57 m² 1 25.09 m Coats 3.83 m² 1 9.13 m Pool Bed 9.46 m² 1 13.90 m Count Master bedroom 21.93 m² 1 21.12 m Drawing room 19.61 m² 1 18.39 m Terrace 46.56 m² 1 31.52 m Terrace 21.95 m² 1 21.41 m Bathroom 6.62 m² 1 11.92 m Guest room 14.84 m² 1 15.70 m Bathroom 7.40 m² 1 12.78 m Bathroom 3.81 m² 1 7.81 m Hall 33.36 m² 1 37.42 m Bridge 10.27 m² 1 15.08 m Terrace 54.06 m² 1 30.10 m Count Study 19.38 m² 1 18.36 m Terrace 34.01 m² 1 33.11 m Bathroom 5.80 m² 1 11.25 m Hall 14.59 m² 1 18.54 m Count Grand total 26 Room
1 10 4 11 First Level Second Level Third Level
Schedule
7:48 PM 9:52 AM 7:48 PM June 19 4:52 AM 9:52 AM W S E N September 30 June 1 10:00 AM 10:00 AM 7:38 PM 4:54 AM 10:00 AM W S E N
SOLAR STUDY Autodesk Revit & Video editor
One day Analysis Three months Analysis
July 31 June 1 10:00 AM 10:00 AM 7:38 PM 4:54 AM 10:00 AM W S E N December 31 June 1 10:00 AM 10:00 AM 7:38 PM 4:54 AM 10:00 AM W S E N
One month Analysis Six months Analysis

ENERGY OPTIMISATION

Autodesk Insight

CLASH DETECTION

Autodesk Naviswork

M

A

S S I N G E N V I R O N M E N T

- LEESA SOHO

02

LEESA SOHO

Autodesk Revit & Enscape

1 st Floor Plan

24 th Floor Plan 48 th Floor Plan

RENDERS

Enscape

E D E V E L O P M E N T

- KUGGEN
F A C A D
03

KUGGEN

Autodesk Revit & Enscape

Adaptive Family Interface

Aerial view
O- SLIDING DOOR
L
04
EQ EQ Width 1995 Exterior Cavity Length 1010 Cavity Width 120 EQ EQ SLIDING DOOR Autodesk Revit Closed Custom
Ref. Level 0 Door Width 1000 Door Height 2100 EQ EQ EQ EQ Frame Width 100 Frame Width 100 Frame Width 100 Frame Width 100 30 200
Opened Opened
Half
Custom Families
Kavya V 8056296243
kaavyaavenkatesan@gmail.com

Turn static files into dynamic content formats.

Create a flipbook
Issuu converts static files into: digital portfolios, online yearbooks, online catalogs, digital photo albums and more. Sign up and create your flipbook.