Skip to main content

KATETAYLOR

Page 1

KATE TAYLOR

Portfolio
Interior Architecture & Design
Restaurant Workplace College Thesis CD Retail 2 1
Elementary School
Orange
University
Dame Bridge
Bridge
Burgeon
Green
Next
Notre
Lily Candle
table of contents
Healthcare Hotel Bar Lounge Blue Camas Speech&Therapy Center Take a way Others Extras Hotel ADA Bathroom Building Construction Hagia Openning Library 10 11 12 9 Public Space Residential Library 8 7 table of contents

Nardugan Design Studio

Project Narrative Interior & Graphic Design Firm

Nardugan Design Studio, located in Detroit, MI, is a leading interior design and graphic branding agency specializing in retail, educational, commercial, hospitality and workplace design. Firm is located Detroit, MI.

DETROIT, MI

1

Concept Development

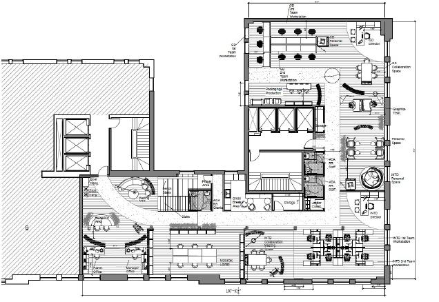
The design solution for Nardugan Design Studio addresses its core values of collaboration, communication, sustainability, comfort, unity, and equality. These values Nardugan Design Studio follows a clan corporate and adhocracy culture. Steelcase furniture systems work to integrate teams and assist in creating collaborative and innovative workplaces and spaces.

Eco-System of Zones: An Ecosystem of workplace designed to suited and evolve over time optimizing real estate while fostering higher levels of employee engagement.

HOPE-CULTURAL-CARE

NARDUGAN FEAST
WISHES FOREVER SOCIAL RESPONSIBILITY
LONGEVITY INNOVATION
BRANCH

Ecosystem of Zones

Eco-System of Zones: An Ecosystem of workplace designed to suited and evolve over time optimizin real estate while fosterin higher leves of employee engagement

Social Zone Learning Zone Resource Zone Private Zone Collaborative Zone
OPEN TO BELOW OPEN TO BELOW Bench Stairs 49'-3 88'-9" 21'-11" 4'-0" 5'-0" 30'-4" 62'-4" 10'-0" 5'-6" 30'-3 6'-7" 13'-5" 5'-0" 18'-8 14'-11 3'-0" 100'-10" 5'-0 4'-8 5'-8 FINISHED FLOOR PLAN - 4TH FLOOR SCALE: 3/32 0 10 15 20 N A2 OPEN TO BELOW OPEN TO BELOW Bench Stairs 4'-0" 5'-0" 25'-3 62'-4" 10'-0" 5'-6" 5'-3" 8'-8" 6'-7" 13'-5" 5'-0" 18'-8 14'-11 3'-0" 3'-0" 100'-10" 5'-0 4'-8 5'-1 FINISHED FLOOR PLAN - 4TH FLOOR SCALE: 3/32 0 10 15 20 N A2 FINISHED FLOOR PLAN - 3RD FLOOR SCALE: Ø5'-0" 4'-0" 3'-0" 4'-0" 7'-3" 9'-5 5'-6 5'-0 5'-6" 5'-0" 5'-6 4'-3" Ø5'-0" 2'-10" 8'-4" 9'-11 6'-6" Ø5'-0" 45'-5" 4'-11 6'-11" 7'-8 3/32 0 10 15 20 N A1 FINISHED FLOOR PLAN - 3RD FLOOR SCALE: Ø5'-0" 9'-5 6'-2 5'-6 5'-6" 5'-6 4'-3" Ø5'-0" 9'-11 45'-5" 6'-11" 4'-0" 3/32 0 10 15 20 N A1 Keys of 3rd & 4th Floor 1 Reception 2 Waiting Area 3 Admin Office 4 Manager Office 5 Materials Library 6 INTD. Collab. Meeting Space 7 INTD. 1.th Team Workstation 8 INTD. 2.th Team Workstation 9 INTD. Director Office 10 INTD. Personal Spaces 11 Social Area 9 10 11 12 13 14 15 16 17 18 19 25 1 2 3 4 6 7 8 26 27 28 12 Graphic Tech. Space 13 GD. Collab. Meeting Space 14 GD. Director Office 15 GD. Personal Space 16 GD. 1th Team Workstation 17 GD. 2nd Team Workstation 18 GD. 3 rd Team Workstation 19 Packaging & Production Area 20 ADA Restroom for Staff 21 ADA Restroom for Staff 22 Janitor Room 5 20 21 22 24 23 23 Walking Storage 24 Mini Cafeteria 25 Prayer Room 26 ADA Restroom for Customer 27 Stairs for 4th Floor 28 Social Area stair benches 29 Well-Being Room/ Private Space 30 Mini Cafeteria for 2nd floor 31 Lunch Area 32 Human Resources 33 President Office 29 30 31 32 33 34 35 36 37 38 39 40 41 42 34 Small Meeting Room 35 Electric Closet 36 Server Room 37 Large Meeting Room 38 ADA Restroom for Staff 39 ADA Restroom for Staff 40 Elevators 41 Stairs 42 Outdoor Social Area

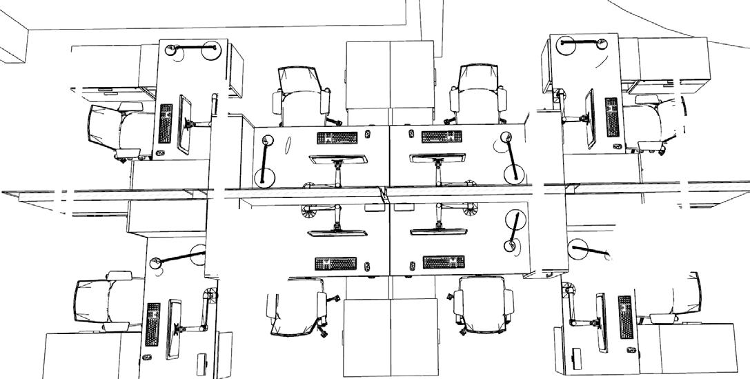
DesignersWorkstations

Steelcase Desk configuration provides designers their own personal space while being able to collaborate with each other. Open meeting-learning space helps to them communicated with each other.

Material Library

Social Spaces

Collaborative Space PersonalSpaces

Learning Spaces

Furniture & Materials

Reception, Waiting, Lunch, Small Break Area

Manager, Admin, Director, Human Resource, Principal Offices Outdoor

Workstations FF&E

• • • • • • • • • • • • • • • • • • • • • • • • • • • • • • • • • • • • • •
Collaborative
Privacy FF&E • • • • • • • • • • • • • • • • • • • • • • • • • • •
FF&E
FF&E
Area,

Project Narrative

Evoking the senses, sound waves are the music, stars are the light and orange is the smell. Green Orange, located between the Mediterranean Sea and the Aegean Sea. Is adjacent to the ancient Knidos Peninsula, in Datca, Turkiye. The building area of the restaurant is kind of a hidden heaven and a quiet place for relaxing.

2
Mediterranean-Vegan Restaurant
Greeen Orange

Concept Development

This design concept for the is inspired by the orange’s every life cycle in shape and form, such as seed flowers leaves and fruit. Inspired by elements of biophilic design, the use of organic and sustainable materials is used in both the interior and exterior design solutions. Motifs, patterns, and re other elements that add interest and life to the space, with textured walls, decorative lighting fixtures, wood toned wall panels and regional artwork.

MATERIALS MOOD

Bubble & Blocking Diagram of Zones

`
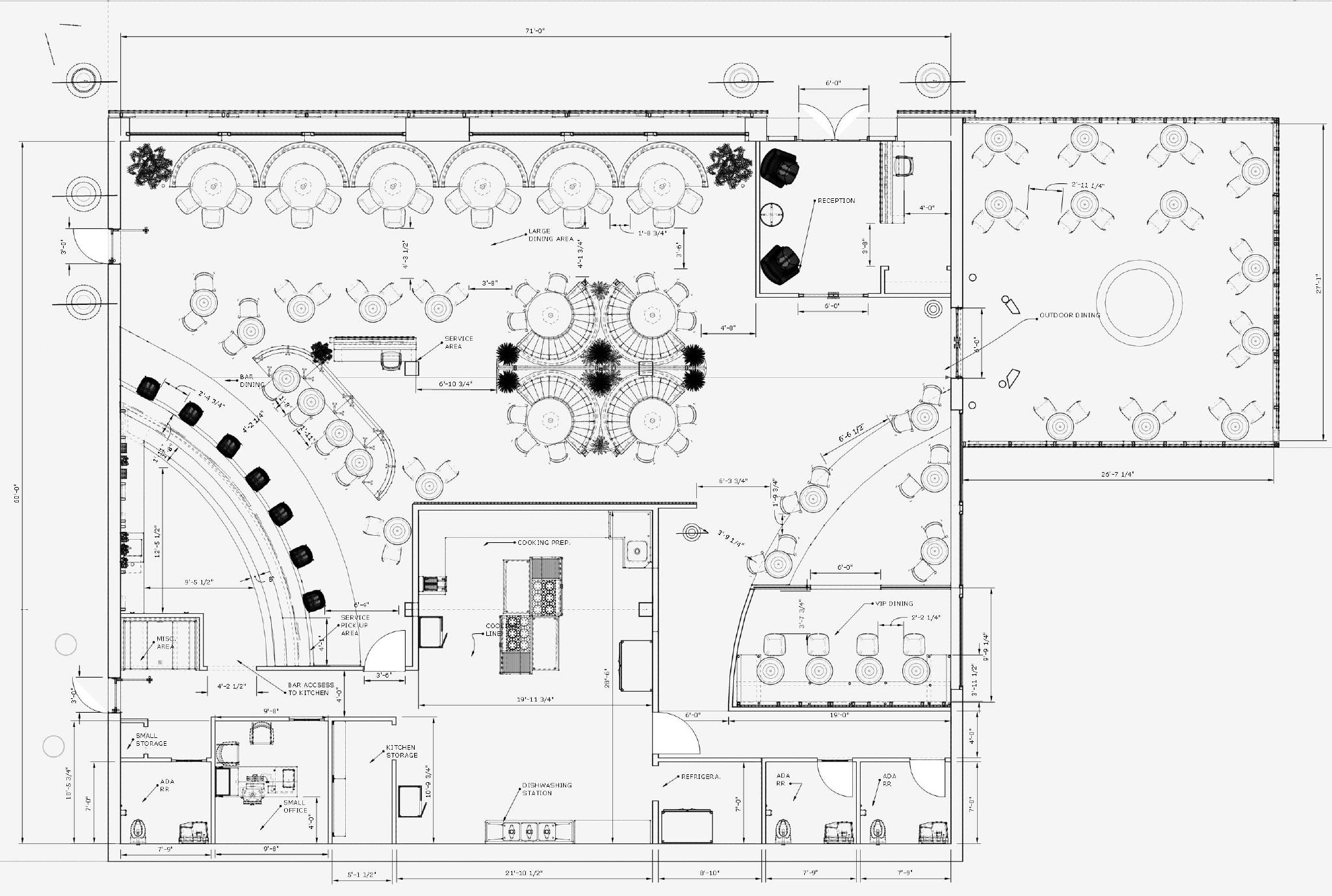
Outdoor Seating StaffKitchen Indoor Seating Bar Seating Reception Restroom
of Floor Plan 1 Main Entrance 2 Reception 3 Coat Closet 4 Wating Area 5 Big Dining Area (6-8 seatings) 6 Small Dinings(for 2 people) 7 Service Table 8 Bar Dining 9 Bar 10 Small Table(for 2 people) 11 VIP Dining 12 ADA Restroom for Staff 13 ADA Restroom for Staff 14 Outdoor Exit(2) 15 Ourdoor Seating 16 Exit (3) 17 Cooking Prep. 18 Cooking Line 19 Dishwashing Station 20 Kitchen Storage 21 Walking Refrigerator 22 Service Door 23 Service Door 24 Bar Service Door(Kitchen) 25 Staff Break Seating 26 Staff Closet 27 Staff RR (ADA) 28 Office 29 Exit( for Staff) 1 9 10 11 12 13 14 15 16 17 18 19 25 2 3 4 6 7 8 26 27 29 28 5 20 21 22 24 23 OPEN TO BELOW OPEN TO BELOW StairsBench 4'-0" 2'-6" 5'-0" 16'-4" 30'-4" 62'-4" 8'-8" 8'-2" 4'-0 4'-10" 6'-7" 11'-4" 13'-5" 5'-0 18'-8 14'-11 3'-0" 3'-0 100'-10" 5'-0 FINISHED FLOOR PLAN4TH FLOOR SCALE: 3/32 5 0 10 15 20 N A2 OPEN TO BELOW OPEN TO BELOW Bench Stairs 49'-3 21'-11" 4'-0" 5'-0" 30'-4" 62'-4" 10'-0" 12'-10" 28'-2" 30'-3 8'-8" 6'-7" 13'-5" 5'-0 5'-0" 18'-8 14'-11 3'-0" 100'-10" 5'-0 4'-8 5'-1 FINISHED FLOOR PLAN - 4TH FLOOR SCALE: 3/32 5 10 15 20 N A2 FINISHED FLOOR PLAN - 3RD FLOOR SCALE: 6'-2 5'-0" 9'-11 6'-11" 3/32 0 A1
Keys

Indoor Dining

Indoor Dining & Bar & Bar Lounge
Dining
Outdoor

Furnitures & Millwork

Three different custom millwork bench systems

Mutoo furniture (chairs- tables- lighting fixtures)

Acouistic wall and ceiling panels

(Ply-Boo wall&ceiling bamboo acuistic panel)

Fire- Rated & Sustainable Textile(Designtex )

Custom Millwork Bench System

Custom Millwork Bench System

• • • • • • • • • • • • • • • • • • • • • • • • • • • • • • • • • • • • • • • • • • • • • • • • • • • • • • • • • • • • • • • • • • • • • • • • • • • • • • • • • • • • • • • • • • • • • • • • • • • • • • • • • • • • • • • • • • • • • • • • • • • • • • • • • • • • • • • • • • • • • • • • • • • • • • • • • • • • • • • • • • • • • • • • •
Custom Millwork Service Table& Reception Custom Millwork Bench System

Notre Dame Bridge

Art History - Bridge

Project Narrative

The Notre Dame Bridge Project is inspired by the iconic Notre Dame Cathedral in Paris, France. Its pointed arches, rib vaulting ceiling, coppery shade highlighted groin vaults, flying buttresses supporting the upper walls of nave, are architectural elements that inspire awe and wonder. The beautiful rose windows complement Notre Dame Bridge with a symmetrical balance between both axes.The use of a vivid white color palette ensures that the bridge will stand out from the surrounding landscape.

3

Concept Development

The design solution for the Notre Dame Bridge takes historical inspirations from different time periods such as Gothic, Hellenistic and Renaissance architecture. As a public place the bridge completely communicates with people through its design and structure. This space is for everyone to visit, spending time sitting, running, walking or fishing.

Copper MetalExisting Metal Structure MetalExisting Metal Stone Wall

Bridge Vievs

As visitors walk by the groin vaults, they create movement. When a viewer looks up, they see the movement on the ceiling of the bridge and the reflection of water.

Bridge Perspective Views

The site is landscaped to provide a social area for picnicking, walking, fishing, running or relaxing for all ages. This project is built by using SketchUp and InDesign software.

Project Narrative

This educational design project uses elements of biophilic design to provide students with an environment that improves learning skills, increases attention and memory, and enhances creativity, as it lowers stress levels. The project solution is inspired by, and the integration of, a majority of the WELL-building standards. The use of natural color scheme, acoustic materials, natural light, sustainable, non-toxic and recycle materials.

• Location

• Performing Art School

• 60 Locust Avenue Berkeley Heights NJ 07922

• Total Building 11.177 sf

Burgeon Elementary School

Thesis- Healthier Public Elementary School designing by Biophia

4

Research & Guidelines

• 6 Guidelines for Biophilic School Project

• - Floor plan based on biophilia, the design will be organic lines.

• - Use of nature imagery, natural shape, form and patterns for furniture choice will help to improve attention and memory.

• -Classrooms with view of nature and natural light so it will provide to enhance student’s creativity with connection to the outside world.

• - The use of colors and elements with earthy colors provides calm to the students.

• - Use of plants and water helps to lower stress levels and mental health risks.

• - Use of sustainable, non-toxic, materials provides physical and mental wellbeing

CLIENT INFORMATION

Jackson Hinkle (born September 1999) is an American political commentator and social media influencer,[1] who hosts the political show The Dive with Jackson Hinkle. He is activist human rights defenders and environmental activist.

CONCEPT- BURGEON SUN-SHADOW STUDY

• Transportations, Bus, Train, Streets,

• Walking, Bicycle, Restaurants

• The building area surrounding by small trees and buildings

Concept Development

CONCEPT- BURGEON

Custom Bookshelves with Benches PLANT BASE IMAGENERY

CustomBookshelves for Classrooms PLANT BASE IMAGENERY

Custom - Wall Decor PLANT BASE IMAGENERY

Biophilic FURNITURE

MATERIAL PALETTE

Sustainable & Organic MATERIALS

Acouistic Wall Partition Wall&Ceiling Panels SOUND Plants NOURISHMENT

Sensory Wall Mater. MIND

Dome Skylights & Organic Imagenary Window NATURAL LIGHT

Bubbletube-Waterfountain WATER

1st Grade Classroom LunchKitchen Students RR Offi.RR, Hallways Indoor Playground Admin Area Special Ed. Classroom KG Classroom
Main Entrance/ Exit Vestibule Exit 3 rd Exit Business Office Indoor Play Ground First Grade classroom 2 First Grade classroom 3 First Grade classroom 1 Kindergarten classroom 1 Kindergarten classroom 2 Kindergarten classroom Library/ Conference R. Secretaries Principal Office Guidance Counselor Office speci. aid class. Server Room Electr.Closet Sensory Room Boys Restroom Girls RR Janitor R. Lunch Area Staff RR Walking Ref. FW Drinking Fountain Admin RR. Kitchen Teachers Room Drinking Fountain Nurse R. Corridor Corridor Corridor Corridor Corridor Lobby ADA RR ADA RR ADA RR Reading Corner Reading Corner Reading Corner Slide Rock Wall Security Desk FLOOR PLAN SCALE:1/8"=1'-0" 1 NORTH FLOOR A100 DRAWING DATE PROJECT NO SCALE DRAWNby REVIEWED SHEET NO ProjectLocation 60Locust Berkeley NJ USA SPACE NO AREA SHEET TITLE HEREBY VERTFY OR UNDER UNIVERSITY 0' 1/8" = 1'-0" 5' 10' 20' 30' BIOPHIILIC ELEMENTARY SCHOOL 99'-8 5/8" 112'-13/4"
Demolition Plan & Ecosystem of Zone
of Floor Plan 1 Main Entrance-Vestibule 2 Secretary Office 3 Lobby- Security Desk 4 Bussiness Office 5 Principal Office 6 Admin ADA RR 7 Entrance Door(Edu. Area) 8 Entrance Double Door(Edu. Area) 9 Guidance Counselor Office 10 Staff ADA RR 11 Nurse Office 12 Electric Closet/ Server Room 13 Library 14 Exit(2) 15 Lunch Area 16 Small Kitchen 17 KG Classroom 1 with ADA RR 18 KG Classroom 2 with ADA RR 19 KG Classroom 2 with ADA RR 20 Special. Edu. Classroom with Sensory Room 21 Indoor Playground 22 Exit(3) 23 Teacher Lounge 24 Boys ADA RR 25 Girls ADA RR 26 Janitor Room 27 First Grade 3 28 First Grade 2 29 First Grade 1 1 9 10 11 12 13 14 15 16 17 18 19 25 2 3 4 6 7 8 26 27 29 28 5 20 21 22 24 23 Main Entrance/ Exit Vestibule Exit 2 3 rd Exit Business Office Indoor Play Ground First Grade classroom 2 First Grade classroom 3 First Grade classroom 1 Kindergarten classroom 1 Kindergarten classroom 2 Kindergarten classroom 3 Library/ Conference R. Secretaries Principal Office Guidance Counselor Office speci. aid class. Server Room Electr.Closet Sensory Room Boys Restroom Girls RR Janitor R. Lunch Area Staff RR Walking Ref. FW Drinking Fountain Admin RR. Kitchen Teachers Room Drinking Fountain Nurse R. Corridor Corridor Corridor Corridor Corridor Lobby ADA RR ADA RR ADA RR Reading Corner Reading Corner Reading Corner Slide Rock Wall Security Desk FLOOR PLAN SCALE:1/8"=1'-0" 1 NORTH 0' 1/8" = 1'-0" 5' 10' 20' 30' 99'-8 5/8" 112'-13/4"
Keys

ENTRANCE, CORRIDORS, CLASSROOMS, LUNCH AREA, INDOORPLAY AREA, LIBRARY

ALL SPACES OF THE BUILDING

ALL CLASSROOMS AND OFFICES OF THE BUILDING RESTROOMS RESTROOMS

(BOH AND "UNSEEN" AREAS ONLY)

EMI BOH RETURN @ ACT CEILINGS

SPEAKER S 2'x2' ARMSTRONG ACOUSTIC CEILING GRID RESTROOM SCONCE

EXIT DOORS&EXIT TRAVEL SIGN

CLASSROOMS, CORRIDORS, HALLWAYS, LUNCH AND INDOOR PLAY AREA

CLASSROOMS, CORRIDORS, HALLWAYS, LUNCH AND INDOOR PLAY AREA

Exit 2 3 rd Exit First Grade classroom 2 First Grade classroom 3 First Grade classroom 1 Library/ Conference R. Principal Office Corridor Corridor Lobby ADA RR ADA RR CT-9 CT-9 CT-9 CT-9 CT-9 CT-9 CT-9 CT-9 CT-9 CT-9 CT-9 CT-9 CT-9 CT-9 CT-9 CT-14 CT-14 CT-14 CT-14 CT-9 CT-14 CT-14 CT-9 ADA RR CT-9 CT-14 F5 F5 F5 F5 F5 F5 CT-9 113 LIBRARY/CONF. 24X24.ACT. 10'-0"AFF 113 LIBRARY/CONF. GYP. 12'-0" AFF 116 ELECT/SERVER GYP. BD. 8' AFF 117 G. COUNSELER ACT. 8' AFF 118 PRINCIPAL OFF. ACT. 8' AFF 119 BUSINESS OFF. ACT. 8' AFF 120 SECRETARIES OFF ACT. 8' AFF VESTIBULE ACT. 8' AFF 100 FG CLASSROOM ACT. 8' AFF 100 FG CLASSROOM GYP. BD. 12' AFF 101 FG CLASSROOM ACT. 8' AFF 101 FG CLASSROOM GYP. BD. 12' AFF 102 FG CLASSROOM ACT. 8' AFF 102 FG CLASSROOM GYP. BD. 12' AFF 108 KG CLASSROOM 24X24.ACT. 8'-0"AFF 108 KG CLASSROOM GYP. 12'-0" AFF 107 KG CLASSROOM 24X24.ACT. 8'-0"AFF 107 KG CLASSROOM GYP. 12'-0" AFF 106 KG CLASSROOM 24X24.ACT.8'-0"AFF 106 KG CLASSROOM GYP. 12'-0" AFF 104 INDOOR PLAY. ACT. 12' AFF 109 TEACHERSROOM ACT. 10' AFF 105 SPEC.ED.C.ROOM ACT. 10' AFF 100 CORRIDOR GYP. 10'-0" AFF ADMIN HALL ACT. 8' AFF EDUC.HALL ACT. 8' AFF 103 LUNCHAREA ACT. 12' AFF 102 CORRIDOR ACT. 10' AFF CA CA CA CA CA CA CA CA CA CA CA CA CA CA CA CA CA CA CA CA CA CA CA CA CA SP SP SP SP SP SP SP SP SP SP SP SP SP EMI EMI EMI EMI EMI EMI EMI EMI EMI S S S SP SP SP SP SP SP SP SP SP SP SP SP SP SP SP SP SP SP SP SP SP SP SP SP SP SP SP SP SP SP SP SP SP SP SP SP SP SP SP SP SP SP SP SP SP SP SP SP SP SP SP SP SP SP SP SP SP SP SP SP SP SP SP SP SP SP SP SP SP SP SP SP SP SP SP SP SP SP SP SP SP SP SP SP SP SP SP SP F5 F5 110BOYS RESTROOM ACT. 10' AFF 111 GIRLS RESTROOM ACT. 10' AFF 122ADMIN RESTROOM ACT. 10' AFF STAFF RESTROOM ACT. 10' AFF 115KITCHEN ACT. 8' AFF 112 JANITOR ROOM ACT. 10' AFF F5 GLASS DOME -SKYLIGHT CEILING SYMBOL XW XW XW XW XW XW XW XW XW XW GLASS DOME -SKYLIGHT GLASS DOME -SKYLIGHT GLASS DOME -SKYLIGHT CA SP F-5 CT-14 CT-9 EMI S ACT TAG SYMBOL 104 INDOOR PLAY. ACT. 10' AFF-HANG. CA SP SP SP SP SP SP SP SP CA SP SP SP SP SP SP SP SP SP 114 NURSE ROOM GYP. BD. 8' AFF F5 F5 F5 F5 F5 F5 F5 F5 F5 F5 F5 F5 F5 F5 F5 F5 F5 F5 F5 F5 F5 F5 F5 F5 F5 F5 F5 F5 F5 F5 F5 F5 F5 F5 F5 F5 F5 F5 F5 REFLECTED CEILING PLAN SCALE:1/8"=1'-0" 1 NORTH 0' 1/8" = 1'-0" 5' 10' 20' 30' 112'-15/8" 4'-33/8" 4'-0" 4'-0" 4'-17/8" 4'-0" 4'-13/8" 4'-1 1/8" 6'-0" 6'-0" 5'-101/8" 5'-71/2" 9'-5 3/4" 4'-11 1/2" 10'-01/2" 2'-111/2" 6'-0" 6'-0" 5'-11/2" 5'-53/8" 3'-05/8" 8'-0" 3 rd Exit First Grade classroom 2 First Grade classroom 3 CT-9 CT-9 F5 RESTROOM FAN/LIGHT COMBO CT-14 CT-9 CT-9 ADA RR CT-14 CLASSROOM AFF 101 FG CLASSROOM GYP. BD. 12' AFF 102 FG CLASSROOM ACT. 8' AFF 102 FG CLASSROOM GYP. BD. 12' AFF 104 INDOOR PLAY. ACT. 12' AFF 109 TEACHERSROOM ACT. 10' AFF 105 SPEC.ED.C.ROOM ACT. 10' AFF 103 LUNCHAREA ACT. 12' AFF 102 CORRIDOR ACT. 10' AFF CA CA CA CA CA CA CA CA CA EMERGENCY LIGHT (BOH AND "UNSEEN" AREAS ONLY) EMI EMI EMI BOH RETURN @ ACT CEILINGS SPEAKER S S SP SP SP SP SP SP SP SP SP SP SP SP SP SP SP SP SP SP SP SP SP SP SP SP SP SP SP SP SP SP SP SP SP SP SP SP SP SP SP SP F5 F5 2'x2' ARMSTRONG ACOUSTIC CEILING GRID RESTROOM SCONCE EXIT DOORS&EXIT TRAVEL CLASSROOMS, CORRIDORS, HALLWAYS, LUNCH AND INDOOR PLAY AREA CLASSROOMS, CORRIDORS, HALLWAYS, LUNCH AND INDOOR PLAY AREA ALL OVER THE BUILDING EXCEPT GYP. BD. LIBRARY, CLASSROOMS XC XW XW XW XW DOME -SKYLIGHT GLASS DOME -SKYLIGHT GLASS DOME -SKYLIGHT - FROOM THE FLOOR 8' WW- WALL MTD. XC- CEILING MTD. CT-14 CT-9 EMI S ACT 104 INDOOR PLAY. ACT. 10' AFF-HANG. ESSEX LED FLUSHMOUNT INDOORPLAY AREA, LIBRARY SP SP SP SP F5 F5 F5 F5 F5 F5 F5 F5 F5 F5 F5 F5 F5 F5 F5 F5 F5 F5 REFLECTED CEILING PLAN SCALE:1/8"=1'-0" 1 NORTH REFLECTED CEILING PLAN A102 DRAWING NAME : AS NOTED DATE : PAGE 2 OF 21 PROJECT NO SCALE 1/8"=1'-0" DRAWNby KateTaylor REVIEWEDby SHEET NO 2 ProjectLocation 60 Locust ave, BerkeleyHeights NJ , USA SPACE NO AREA 11.177sf SHEET TITLE KateTaylor RoxburyTownship NJ, USA HEREBY VERTFY THAT THIS DRAWING WAS PREPARED BY ME OR UNDER MY DIRECT SUPERVISION AND THAT AM A KEAN UNIVERSITY STUDENT INTERIOR DESIGNER 0' 1/8" =
5' 10' 20' 30' 5'-101/8" 5'-71/2" 9'-5 3/4" 4'-11 1/2" 10'-01/2" BIOPHIILIC ELEMENTARY SCHOOL F5 RESTROOM FAN/LIGHT COMBO CT-14 CT-9 CA
SP
LIGHT
RCP & Legend
1'-0"
SECURITY CAMERA SPRINKLER (CONCEALED)
EMERGENCY
GYP. BD. LIBRARY, CLASSROOMS
HEGHTS) XC XW
8' WW- WALL MTD. XC- CEILING MTD. CA SP F-5 CT-14 CT-9 EMI S ACT TAG SYMBOL DESCRIPTION REMARKS ESSEX LED FLUSHMOUNT LUCY LED FLUSH MOUNT CEILING LIGHT INDOORPLAY AREA, LIBRARY CORRIDORS, LUNCH AREA REFLECTED CEILING PLAN SCALE:1/8"=1'-0" 1 NORTH REFLECTED CEILING PLAN A102 DRAWING NAME AS NOTED DATE PAGE OF 21 KT artdesignstudio PROJECT NO SCALE 1/8"=1'-0" DRAWNby KateTaylor REVIEWEDby SHEET NO 2 ProjectLocation 60Locustave, BerkeleyHeights NJ USA SPACE NO AREA 11.177sf SHEET TITLE KateTaylor RoxburyTownship NJ,USA HEREBY VERTFY THAT THIS DRAWING WAS PREPARED BY ME OR UNDER MY DIRECT SUPERVISION AND THAT AM KEAN UNIVERSITY STUDENT INTERIOR DESIGNER 0' 1/8" = 1'-0" 5' 10' 20' 30' 4'-33/8" 4'-0" 4'-0" 4'-17/8" 4'-0" 4'-13/8" 4'-1 1/8" 6'-0" 6'-0" 5'-101/8" 5'-71/2" 4'-11 1/2" BIOPHIILIC ELEMENTARY SCHOOL
ALL OVER THE BUILDING EXCEPT CEILING SYMBOL LEGEND 1/8" =1'-0"
(12' FT
BOH LED LIGHT - FROOM THE FLOOR
Classroom Perspectives

Library

Lunch Area

Indoor Playground

DOME- NATURAL LIGHT

ACOUISTIC SOUND ABSORD WALL AND CEILING PANELS

& SUSTAINABLE %100 RECYBLE FLOORING

Views West Section 10' 12'-0" 8'-0" 12' 3' 1' 1' 3' 7' 3'-0" 8'-0" 1'-8 3/4" 1'-9" 7'-45/8" 13'-73/8" 114'-75/8" 121'-0" 8'-0"
Additional
Furnitures & Materials
5
Project Narrative LOCATION : Petaluma Village Premium Outlets, Petaluma CALIFORNIA | 1.050 SQFT Lily Candle Construction Documents Retail Store
A101 - NEW WORK PLAN SCALE: 1/4” =1’-0” A103 - ARCHITECTURAL POWER PLAN SCALE: 1/4” =1’-0” A104 - REFLECTED CEILING PLAN SCALE: 1/4” =1’-0” A102 - FIXTURE PLAN SCALE: 1/4” =1’-0” SERVICE SINK KT artdesignstudio PROJECT NO SCALE AS NOTED DRAWNby KT REVIEWEDby KT SHEET NO HEREBY VERTFY THAT THIS DRAWING WAS PREPARED BY ME OR UNDER MY DIRECT SUPERVISION AND THAT AM A KEAN UNIVERSITY STUDENT INTERIOR DESIGNER KATE TAYLOR S HILLSIDE AVE ROXBURY,NJ07876 100 SALES AREA GYP. BD. 101 CORRIDOR GYP. BD. 102 UNISEX RR GYP. BD. 103 STOCKROOM GYP. BD. 104 OFFICE GYP. BD. OVERALL GC TO PROVIDE FRT BLOCKING FOR BACKWRAP FIXTURE. LILY CANDLE ProjectLocation California,USA 2200 Petaluma Blvd. NPetaluma,CA. 94952 SPACENO 105 AREA 1,127SF SHEET TITLE NEW WORK PLAN A101 SERVICE SINK KT artdesignstudio PROJECT NO SCALE AS NOTED DRAWNby KT REVIEWEDby KT SHEET NO SPACENO 105 AREA 1,127SF SHEET TITLE HEREBY VERTFY THAT WAS PREPARED BY ME DIRECT SUPERVISION AND A KEAN UNIVERSITY STUDENT DESIGNER KATE TAYLOR S HILLSIDE AVE ROXBURY,NJ07876 SYMBOL DESCRIPTION REMARKS SYMBOL DESCRIPTION REMARKS 100 SALES AREA 102 STOCK ROOM 103 OFFICE 101 UNISEX RR ProjectLocation California,USA 2200 Petaluma NPetaluma,CA. ARCHITECTURAL POWER PLAN A103 SERVICE SINK KT artdesignstudio HEREBY VERTFY THAT THIS DRAWING WAS PREPARED BY ME OR UNDER MY DIRECT SUPERVISION AND THAT AM A KEAN UNIVERSITY STUDENT INTERIOR DESIGNER KATE TAYLOR S HILLSIDE AVE ROXBURY,NJ07876 TAG SYMBOL DESCRIPTION REMARKS TAG SYMBOL DESCRIPTION REMARKS F-1 F-3W F-3TW CT-15 4.5" DIA.ROUNDWHITERECESSEDLED SALESAREA-GYP.CEILINGS/SOFFITS HVAC SUPPLY AND RETURN AIR GRILLE WHITEADJ.LEDTRACKHEADON3.5"STEM SALES AREA DRYWALL CLG. ACCESS PANEL WHITE TRACK - LINE VOLTAGE ONE CIRCUIT, SURFACE-MTD. 4'LOWPROFILELINEARFLUORESCENTFIXTURE DISPLAY WINDOWS - CEILINGS BACK-OF- HOUSE AREAS FIRE SPRINKLER CONCEALED AT GYP CLGS. 100 SALES AREA GYP. BD. 12'-0" AFF 102 STOCK ROOM GYP. BD. 10'-0" AFF 103 OFFICE GYP. BD. 10'-0" AFF SP F-4 PENDANT LIGHT 101 UNISEX RR GYP. BD. 8'-0" AFF ProjectLocation California,USA 2200 Petaluma Blvd. NPetaluma,CA. 94952 SPACENO 105 AREA 1,127SF SHEET TITLE PROJECT NO SCALE AS NOTED DRAWNby KT REVIEWEDby KT SHEET NO REFLECTED CEILING PLAN A102 BACKWRAP SERVICE SINK 100 SALES AREA 101 CORRIDOR 102 UNISEX RR 103 STOCKROOM 104 OFFICE OVERALL B A C PATH B-C TRAVEL DISTANCE: 44'-1"LF PATH A-C TRAVEL DISTANCE: 58'-10"LF CASHWRAP WINDOW DISPLAY SHELF DISPLAYS ROUND DISPLAY CUSTOM SHELF B-I-C XW XW XW KT artdesignstudio PROJECT NO SCALE AS NOTED DRAWNby KT REVIEWEDby KT SHEET NO SPACENO 105 AREA 1,127 SHEET TITLE HEREBY VERTFY THAT WAS PREPARED BY ME DIRECT SUPERVISION KEAN UNIVERSITY STUDENT DESIGNER KATE TAYLOR S HILLSIDE ROXBURY,NJ ProjectLocation California,USA 2200 Petaluma NPetaluma,CA. D XW CUSTOM SHELF CUSTOM SHELF CUSTOM SHELF CUSTOM SHELF CUSTOM SHELF CUSTOM SHELF WINDOW DISPLAY CUSTOM SHELWES CUSTOM CABINET FIXTURE PLAN A104
A105 - FLOOR FINISH PLAN A106 - WALL FINISH PLAN A200. INTERIOR ELEVATION 1 SERVICE SINK KT artdesignstudio PROJECT NO SCALE AS NOTED DRAWNby KT REVIEWEDby KT SHEET NO SPACENO 105 AREA 1,127SF SHEET TITLE HEREBY VERTFY THAT THIS DRAWING WAS PREPARED BY ME OR UNDER MY DIRECT SUPERVISION AND THAT I AM A KEAN UNIVERSITY STUDENT INTERIOR DESIGNER KATE TAYLOR S HILLSIDE AVE ROXBURY,NJ07876 KEY DESCRIPTION MANUFACTURER PRODUCT NUMBER GENERAL LOCATION NOTES 100 SALES AREA 102 STOCK ROOM 103 OFFICE 101 UNISEX RR ProjectLocation California,USA 2200 Petaluma Blvd. NPetaluma,CA. 94952 CONCRETE FLOOR FLOOR FINISH PLAN A105 SERVICE SINK KT artdesignstudio PROJECT NO SCALE AS NOTED DRAWNby KT REVIEWEDby KT SHEET NO SPACENO 105 AREA 1,127 SHEET TITLE HEREBY VERTFY THAT WAS PREPARED BY ME DIRECT SUPERVISION A KEAN UNIVERSITY DESIGNER KATE TAYLOR S HILLSIDE ROXBURY, KEY DESCRIPTION MANUFACTURER PRODUCT NUMBER GENERAL LOCATION NOTES 100 SALES AREA 102 STOCK ROOM 103 OFFICE 101 UNISEX RR ProjectLocation California,USA 2200 Petaluma NPetaluma,CA. WALL FINISH CLGS WALLS WALL BASE DOOR CLGS WALLS DOOR CLGS WALLS WALL BASE DOOR CLGS WALLS-PANEL-COVER CLGS WALLS-PANEL CLGS WALLS-PANEL-COVER CLGS WALLS-PANEL-COVER CLGS WALLS-PANEL-COVER WALL FINISH PLAN A106 artdesignstudio HEREBY VERTFY WAS PREPARED DIRECT SUPERVISION A KEAN UNIVERSITY DESIGNER KATE S HILLSIDE ROXBURY, F-3TW F-4 F-3TW

NOTED

A200.2
ELEVATION 3 A200.1 INTERIOR ELEVATION 2 A200.3 INTERIOR ELEVATION 4 KT artdesignstudio
SPACE NO 105 AREA 1,127 SF SHEET TITLE I HEREBY VERTFY THAT THIS DRAWING WAS PREPARED BY ME OR UNDER MY DIRECT SUPERVISION AND THAT I AM A KEAN UNIVERSITY STUDENT INTERIOR DESIGNER KATE TAYLOR S HILLSIDE AVE ROXBURY, NJ 07876 ProjectLocation California,USA 2200 Petaluma Blvd. NPetaluma,CA. 94952 F-3TW F-4 ELEVATION 2 A200.1 F-3TW F-4 F-3TW KT artdesignstudio I HEREBY VERTFY THAT THIS WAS PREPARED BY ME OR DIRECT SUPERVISION AND A KEAN UNIVERSITY STUDENT DESIGNER KATE TAYLOR S HILLSIDE ROXBURY, NJ
F-4 F-3TW
INTERIOR
PROJECT NO SCALE AS
DRAWNby KT REVIEWEDby KT SHEET NO
F-3TW

Next University

Project Narrative

The design concept for the project was inspired by observing bat flower design. The color palette is based on reflected light with the use of yellow green, lilac and purple. A variety of furniture shapes mimic natural shapes and free-forms. The Bat flower has a shiny, bright and green leave, with an energic and dynamic feel.

• List of program requirements;

• Active Small Classroom 1 841 SF 32 Students

• Active Small Classroom 2 802 SF 30 Students

• Large Classroom 2.340 SF 120 Students

Faculty Connection Hub 762 SF 6-8 Faculty members

• In Between Spaces 1.571 SF min. 6 students

• Work Cafe 1.442 SF

6
Educational- College

Concept Development

The use of the shapes of whiskers and its blooms is mimicked in the large big chandelier, centered in the middle of the building. The color scheme supports the fresh energetic, powerful, hopeful and, successful, growth that stimulates mental activity, knowledge, concentration and joy for all students throughout the building. The furniture provided is flexible and adjustable to help students either work together or separately. The building supports an environment for active learning which includes collaborative, individual, small and large groups, open relax and closed spaces.

CONCEPT
MATERIAL PALETTE
1 Active Classroom1( 30 students) 2 Active Classroom2( 32 students) 3 Active Classroom3( 30students) 4 Large Classroom1( 60 students) 5 Large Classroom2( 60 students) 6 Faculty Connection Hub ( 608 faculty member) 7 In between Spaces ( 6 students) 8 Work Cafe (1.442 SF) 9 ADA RR Woman 10 ADA RR Men 11 Stairs (R) 12 Stairs (L) 13 Ent/ Exit 1 14 Exit2 15 Exit3 9 12 1 2 4 6 7 5 8 3 13 14 15 10 11
Keys of Floor Plan

ALTERNATIVE FURNITURE CONFIGURATION FOR LARGE CLASSROOM

Section

Collaborative Area

Small Classroom

Work Cafe

Furniture Sustainable, Ergonomic, Steelcase Furniture, Campfire lighting

7

Hagia Opening Library

Project Narrative Library

The historical building, Hagia Sophia, in Istanbul, Turkiye, here is unique in that the interior color is golden. When designing the Open Library, the design solution was strongly inspired by the Hagia Sophia, especially the use of a dome and rectangular base. The center building contains two domes and two apses. The dome shape was designed using half arches, as reflected in the Hagia Sophia’s dome’s interior patterns. The use of half arches for the dome makes the building light because the mirror arches act like windows. Overall, the building is very breathable with huge walls, high structure and without doors. S-shaped reddish sitting, is placed in the building’s nave, and creates a strong balance with the domes.

Concept Development

The library’s bookshelves are made from marble, and accented with decorative crown moldings, and a corinthian capital pattern. which is Hagia Sophia’s columns’ capital’s pattern. An outside sitting provides an additional sitting and reading area. The use of Hagia Sophia’s interior golden color for the building interior and flexible alternative benches and building’s greenish fences creates an inviting atmosphere. The building also has the ability to convert to a closed structure, with glass installed on domes and columns.

Perspectives

Project Narrative

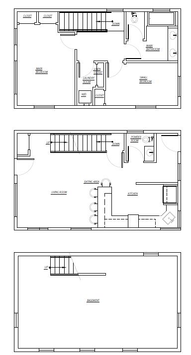
The maximum buildable area of the property is 18’ wide by 30’ long. The client requests a 2-story home to include a basement.

Requirements for Building Basement

Unfinished, but should have small, high windows for light

1st Floor Kitchen

Eating area for 4 (within kitchen or separate dining room), Living room, Powder room, Coat closet near front door

2nd Floor

Main bedroom for married couple with two (2) 3’-6” wide x 2’-0” deep (interior measurements) closets, Small bedroom for one 7-year old child with one (1) 3’-0” wide x 2’-0” deep (interior measurements) closet, Main bathroom with double sink; shower, tub, or tub/shower; and enclosed toilet room Laundry room, Linen closet

8 Building Construction

Residential

1.Unexcavated Site 6. Weatherproofing 7. Parging 08-1st Sill Plates 2. Footing 3. Foundation walls 4. Gravel Infill 5. Basement slab 09-1st Rim Joists Transition view 13-Basement Stringers 14-Basement Risers 15-Basement Treads 10-1st Floor Joists 11-1st Blocking 12-1st Floor Subfloor 16-1st Ext Frame West 17-1st Ext Frame East 18-1st Ext Frame North 19-1st Ext Frame South Transition 22-2nd Rim Joists 23-2nd Floor Joists 26-1st Stringers 27-1st Risers 28-1st Treads Transition 25-2nd Subfloor Transition 24-2nd Blocking 20-1st Interior Frame 21-Bsmt Interior Frame 29-2nd Ext Frame West Transition 36-Fly Rafters 40-Insulation Walls 41-Insulation Attic Floor 42-Insulation Roof Transition 37-Roof End Framing 38-Insulation 1st Floor 39-Insulation 2nd Floor 33-2nd Int Frame 34-Roof Structure 35-Roof Blocking 30-2nd Ext Frame East 31-2nd Ext Frame North 32-2nd Ext Frame South 43-Sheathing West 44- Sheathing North 45-Sheathing East 46-Sheathing South 47-Sheathing Roof 48- 49 House Wrap West- North 50-51 House Wrap South-East 52-Ice shield 53-54 Door&Windows Transition 55-56 Exterior Trim-Exterior Finish 57-Roof Trim 58-Roof Finish 59-Gutters

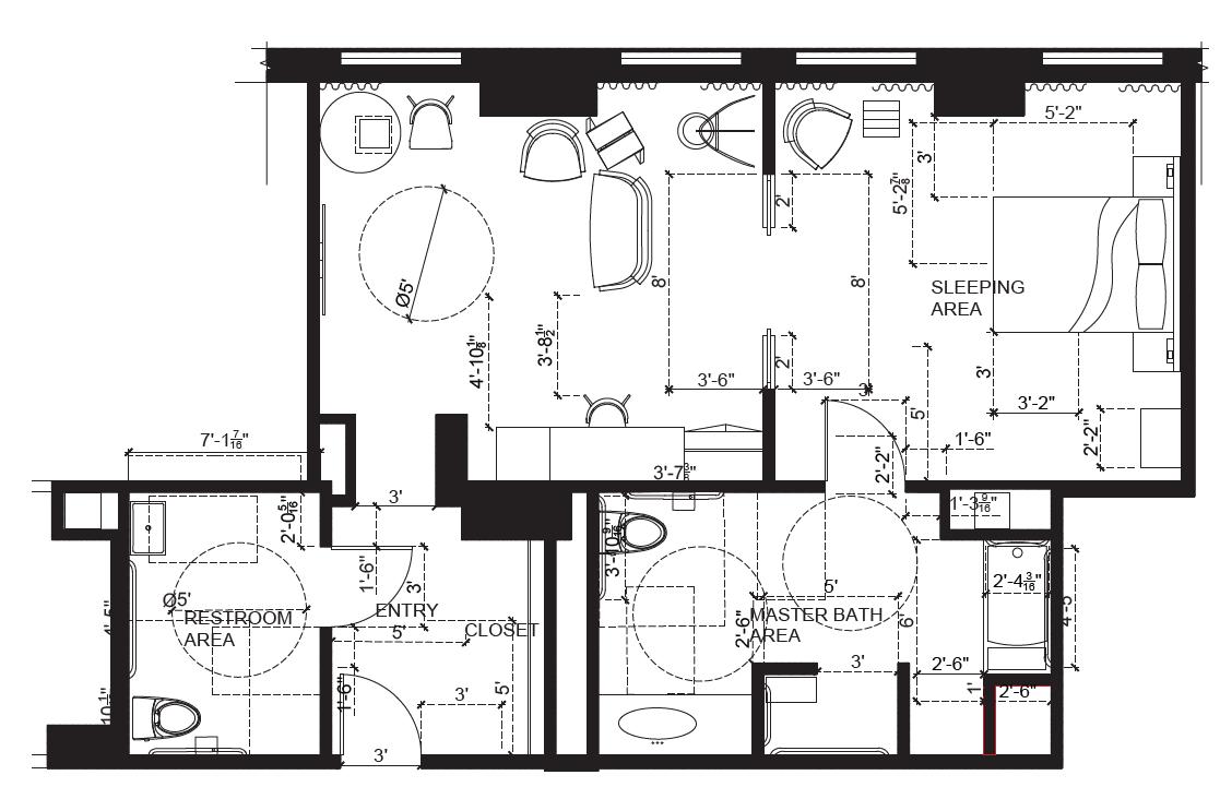
Project

The intent of this design is to achieve an accessible hotel bar that provides accessible bar counter, optional sittings, comfortable, warm, clean, friendly, and relaxing experience. It will be accomplished through the use of complementary color scheme wall and floor material with brass foot rail, black accents and light brown leather textile. Also wave pattern wall panel and blue wall covering were chosen as an inspiration of ocean by client.

• 1.050 SQ FT

12 FT CEILING HEIGHT

My client is Stephanie Gilmore (AUS). Stephanie Louise Gilmore (born 29 January 1988)[1] is an Australian professional surfer and eight-time world champion on the Women's WSL World Tour (2007, 2008, 2009, 2010, 2012, 2014, 2018, 2022). My client expectation from this project is to design accessible, friendly bar for specially for surfer

9
Bar Take a Way
Narrative Bar Lounge

Concept Development

CONCEPT

MATERIAL PALETTE

S 1 C 1 FINISH LEGEND WALL FINISHES FLOOR FINISHES BASE/TRIM FINISHES DOORS FF&E B 8 2 B E 2 E 1 E 5 E 6 E 3 E 4 CBN1 CBN1 CBN1 CBN3 CBN4 FINISH FF&E PLAN HOTEL BAR & LOUNGE SCALE : 3/16" = 1/0" N CBN1 CBN2 CBN4 CBN3 CBN1 CBN1 CBN2 CBN4 CBN3 B B 6 B 5 B B BCW W-4 NOTE: W-4 SHELF'S WALLS COVER WITH 3'X8' MIRROR MATERIAL NOTE: FS FLOATING SHELVES BETWEEN SHELVES 18" AND SHELVES X36" WIDTH FS G-1 C 1 FS FS FS FS FS WD-1 WT WD1 NOTE: WD1 4'-3.5" CUSTOM CUT LUMBER 4X9 BCW 420" 360" E 7 C T 1 S 1 C 1 FINISH LEGEND WALL FINISHES FLOOR FINISHES BASE/TRIM FINISHES DOORS FF&E B B E 2 E 1 E E E E 4 CBN1 CBN1 CBN1 CBN3 CBN4 FINISH FF&E PLAN HOTEL BAR & LOUNGE SCALE : 3/16" = 1/0" N CBN1 CBN2 CBN4 CBN3 CBN1 CBN1 CBN2 CBN4 CBN3 B 7 B B 5 B 4 B 3 BCW W-4 NOTE: W-4 SHELF'S WALLS COVER WITH 3'X8' MIRROR MATERIAL NOTE: FS FLOATING SHELVES BETWEEN SHELVES 18" AND 4 SHELVES X36" WIDTH FS G-1 C 1 FS FS FS FS FS WD-1 WT WD1 NOTE: WD1 4'-3.5" CUSTOM CUT LUMBER 4X9 BCW 420" 360" E C 2 T 1 FLOOR PLAN HOTEL BAR & LOUNGE SCALE : 3/16" = 1/0" N E 2 E 1 E 3 E 4 E 5 E 6 TRANSITION TO ADA COUNTER HEIGHT 420" 360" E 7 FLOOR PLAN HOTEL BAR & LOUNGE SCALE : 3/16" = 1/0" N E 2 E E 3 E E 5 E 6 TRANSITION TO ADA COUNTER HEIGHT 420" 360" E 7 F-3 F-2 F-1 BM F-3 NOTE AT TILE TO TERRAZZO FLOORING TO BAMBOO FLOORING TO TERRAZZO FLOORING TRANSITIONS TRANSITION EDGING UNLESS OTHERWISE NOTED. FLOOR TO WALL FINISH LEGEND WALL FINISHES FLOOR FINISHES BASE/TRIM FINISHES DOORS FF&E FS-2 FS-2 FINISH FLOOR PLAN HOTEL BAR & LOUNGE SCALE : 3/16" = 1/0" N W-1 W-3 W-1 W-3 W-1 W-1 W-3 W-1 W-3 W-1 W-3 W-1 W-3 NOTE: TRANSITION EDGING UNLESS OTHERWISE NOTED. FLOOR TO WALL BM TR NOTE: TRANSITION EDGING UNLESS OTHERWISE NOTED WALL PANEL TO WALL COVERING FS-1 CRM NOTE: CROWN MOLDING TRANSITION WALL TO CEILING PM NOTE: PANEL MOLDING TRANSITION PANEL TO WALL COVERING W-3 FINISH WALL PLAN HOTEL BAR & LOUNGE SCALE : 3/16" = 1/0" N FINISH LEGEND WALL FINISHES FLOOR FINISHES BASE/TRIM FINISHES DOORS FF&E W-4
Floor Plans
NOTE: TRANSITION EDGING UNLESS OTHERWISE NOTED. FLOOR TO WALL BM CRM NOTE: CROWN MOLDING TRANSITION WALL TO CEILING W-1 W-4 BCW W-1 CBN1 CBN2 CBN3 CBN4 FINISH LEGEND WALL FINISHES FLOOR FINISHES BASE/TRIM FINISHES DOORS FF&E BAR BACK ELEVATION 1/4" = 1/0" E1 30" 30" 3" 24" 4" 21" 12" 12" 21" 30" 30" 291 2 4" 34" 2" 144" 4" 447 16 4" 36" 4" 36" 4" 36" 4" 36" 4" 36" 4" 27" 18" 18" 18" 1 13 16 4" 42" 2" NOTE: CUSTOM WOOD TO BE PRIMED AND PAINTED IN DESIGNATED COATING. SEE SCHEDULE FOR REFERENCE FR WD1 FS E E 1 N BAR BACK PARTIAL PLAN SCALE : 1/4" = 1/0" 1 FINISH LEGEND WALL FINISHES FLOOR FINISHES BASE/TRIM FINISHES DOORS FF&E INSIDE FRONT BAR ELEVATION 1/4" = 1/0" E2 2" 32" 4" 2" 34" 6" 4" 24" 12" 24 24" 331 " 18" 5513 16 20" 12" 24" 4" 613 16 42" 2" 34" 2" N INSIDE FRONT BAR PARTIAL PLAN SCALE : 1/4" = 1/0" 2 W-2 BCW FR B-1 B-2 B-3 B-4 B-5 B-6 B-7 B-8 E 2 Elevations & Views
& Views N SIDE BAR PARTIAL PLAN SCALE : 1/4" = 1/0" 4 SIDE BAR ELEVATION 1/4" = 1/0" E4 FINISH LEGEND WALL FINISHES FLOOR FINISHES BASE/TRIM FINISHES DOORS FF&E 4" 7" 42" 2" 44" 3" 44" 0" 34" 3" 2 16 27 16 11 18" 18" 18" 18" 10" 42" BCW WD1 BM FR W-1 WD1 FS W-4 CRM 145 14" W-1 E 4 SIDE BAR ELEVATION 1/4" = 1/0" E5 FINISH LEGEND WALL FINISHES FLOOR FINISHES BASE/TRIM FINISHES DOORS FF&E SIDE BAR PARTIAL PLAN SCALE : 1/4" = 1/0" 5 N WD1 FS CRM W-1 BCW W-1 BM FR BCW W-4 WD1 231 " 3" 231 " 4" 4" 4" 7" 42" 2" 28" 2" 4" 2" 4" 34" 2" 24" 49" 18" 2 18" 2 18" 1 2 18" 1 2 277 16 16 14" E 5 N FRONT BAR PARTIAL PLAN SCALE : 1/4" = 1/0" 3 FRONT BAR ELEVATION 1/4" = 1/0" E3 FINISH LEGEND WALL FINISHES FLOOR FINISHES BASE/TRIM FINISHES DOORS FF&E 7"4" 42" 2" 2" 32" 1" 337 16 44" 3" 3" 44" 3" 44" 3" 261 " 1" 14" 6" 12" 266 16 18" BCW W-1 BM FR WD1 E 3
Elevations
36" 42" 36" 42" 36" 42" 36" 42" 63" 90" 72" WND-1 144" 360" WT BM CRM W-3 NOTE: WALL COVERING 52" WIDTH WND-1 WT WND-1 WT WND-1 WT WINDOW ELEVATION 1/4" = 1/0" E7 FINISH LEGEND WALL FINISHES FLOOR FINISHES BASE/TRIM FINISHES DOORS FF&E WINDOW PARTIAL PLAN SCALE : 1/4" = 1/0" 7 N 360" E 7 INSIDE BAR ELEVATION 1/4" = 1/0" E6 FINISH LEGEND WALL FINISHES FLOOR FINISHES BASE/TRIM FINISHES DOORS FF&E INSIDE BAR PARTIAL PLAN SCALE : 1/4" = 1/0" 6 N 34" 2" 18" 1 " 18" 1 18" 1 18" 27 16 29 16 WD1 FS CRM W-1 BCW W-4 W-2 FR BCW 4" 24" 30" 12" 30" 24" 1 3 2 12" 3 4 7" 42" 2" 133" BM E 6
Elevations & Views

Project

Narrative

Blue Camas Pediatric Language and Speech Center -Patient age group 4-11

This center is fun and inviting, yet simple in its design to keep patients and their families from getting overstimulated or frustrated. One design main goal was create a sense of wellbeing for the children as they take the a journey within the office to take their minds off the stressfulness of seeing a doctor. Children often experience social anxiety so creating a relaxing and decompressing space is an important design consideration. The center is designed with subtle patterns that can be easily recognized by children and biophilic color scheme which are color bule, brown and green.

• Location

• Berkeley Heights NJ

• Transportations, Bus, Train, Streets,

• Walking, Bicycle, Restaurants

• The building area surrounding by small trees and buildings

10 Blue Camas Pediatric Language & Speech Center

Evidence Based Design

Concept Development

CONCEPT- BLUE CAMAS

SPEAKER S S SP SP SP SP SP SP SP SP SP SP SP SP SP SP SP SP SP SP SP SP SP SP SP SP SP SP SP SP SP SP SP SP SP SP SP SP SP SP SP SP SP F5 F5

BOH RETURN @ ACT CEILINGS

2'x2'

Floor
1 Main Entrance-Vestibule 2 ADA RR 3 Waiting Area 4 Check-in 5 ADA RR for Patients 6 Supplies Storage 7 Exam 1 8 Exam 2 9 Exam 3 10 Exam 4 11 Exam 5 12 Exam 6 13 Researh Area 14 Clean Supplies Storage 15 Nurse Station 16 Check-out 17 Admin Office 18 Fax/ Copy 19 Staff ADA RR 20 Physician Room2 21 Physician Room1 22 Janitor Room 23 Prayer Room 24 Waste-Holding Closet 25 Server Room 26 Electrical Panel 27 General Storage 28 Staff Break Room 29 Multi-Purpose Room 30 Manager Office 31 Exit/ Entrance for Staff 1 9 10 11 12 13 14 15 16 17 18 19 25 2 30 31 4 6 7 8 3 27 26 29 28 5 20 21 22 24 23 3 rd Exit First Grade classroom 2 First Grade classroom 3 F5 RESTROOM FAN/LIGHT COMBO CT-14 CT-9 ADA RR CT-9 CT-14 CA SECURITY CAMERA SPRINKLER (CONCEALED) SP CLASSROOM 101 FG CLASSROOM GYP. BD. 12' AFF 102 FG CLASSROOM ACT. 8' AFF 102 FG CLASSROOM GYP. BD. 12' AFF CLASSROOM 8'-0"AFF 107 KG CLASSROOM GYP. 12'-0" AFF 106 KG CLASSROOM 24X24.ACT.8'-0"AFF 106 KG CLASSROOM GYP. 12'-0" AFF 104 INDOOR PLAY. ACT. 12' AFF 109 TEACHERSROOM ACT. 10' AFF 105 SPEC.ED.C.ROOM ACT. 10' AFF 103 LUNCHAREA ACT. 12' AFF 102 CORRIDOR ACT. 10' AFF CA CA CA CA CA CA CA CA CA CA CA EMERGENCY LIGHT (BOH AND "UNSEEN" AREAS ONLY) EMI EMI
Keys of
Plan
ARMSTRONG ACOUSTIC CEILING GRID RESTROOM SCONCE ENTRANCE, CORRIDORS, CLASSROOMS, LUNCH AREA, INDOORPLAY AREA, LIBRARY ALL SPACES OF THE BUILDING ALL CLASSROOMS AND OFFICES OF EXIT DOORS&EXIT TRAVEL CLASSROOMS, CORRIDORS, HALLWAYS, LUNCH AND INDOOR PLAY AREA CLASSROOMS, CORRIDORS, HALLWAYS, LUNCH AND INDOOR PLAY AREA ALL OVER THE BUILDING EXCEPT CEILING SYMBOL LEGEND 1/8" =1'-0" GYP. BD. LIBRARY, CLASSROOMS XC XW XW XW XW GLASS DOME -SKYLIGHT GLASS DOME -SKYLIGHT BOH LED LIGHT - FROOM THE FLOOR 8' WW- WALL MTD. XC- CEILING MTD. CA SP F-5 CT-14 CT-9 EMI S ACT TAG SYMBOL DESCRIPTION REMARKS 104 INDOOR PLAY. ACT. 10' AFF-HANG. ESSEX LED FLUSHMOUNT LUCY LED FLUSH MOUNT CEILING LIGHT INDOORPLAY AREA, LIBRARY CORRIDORS, LUNCH AREA CA SP SP SP SP SP SP F5 F5 F5 F5 F5 F5 F5 F5 F5 F5 F5 F5 F5 F5 F5 F5 F5 F5 F5 F5 F5 F5 F5 F5 REFLECTED CEILING PLAN SCALE:1/8"=1'-0" 1 NORTH REFLECTED CEILING PLAN A102 DRAWING NAME AS NOTED DATE : KT artdesignstudio PROJECT NO SCALE 1/8"=1'-0" DRAWNby KateTaylor REVIEWEDby SHEET NO 2 ProjectLocation 60 Locust ave, BerkeleyHeights NJ , USA SPACE NO AREA 11.177sf SHEET TITLE KateTaylor RoxburyTownship NJ, USA HEREBY VERTFY THAT THIS DRAWING WAS PREPARED BY ME OR UNDER MY DIRECT SUPERVISION AND THAT AM A KEAN UNIVERSITY STUDENT INTERIOR DESIGNER 0' 1/8" = 1'-0" 5' 10' 20' 30' 4'-33/8" 4'-0" 4'-0" 4'-17/8" 4'-0" 4'-13/8" 4'-1 1/8" 6'-0" 6'-0" 5'-101/8" 5'-71/2" 9'-5 3/4" 4'-11 1/2" 10'-01/2" BIOPHIILIC ELEMENTARY SCHOOL 1'-4 1/2" 1'-8 3/4" 9'-0 1/4" 1'-10 3/4" 59'-2" 8'-3 1/4" 20'-7 1/4" 23'-9" 3'-4 1/2" 3'-6" 5 1/2" 70'-1" 1'-4" 1'-3" 4'-2 1/4" 0" 1'-4" WAITING AREA N CHECK-IN CHECK-OUT ADA RR PATIENTS NURSE STATION STAFF ADA RR PRAYER ROOM VESTIBULE ADA RR Families MANAGER OFFICE MULTI-PURPOSE STAFF BREAK ROOM PHYSICIAN ROOM1 PHYSICIAN ROOM2 ELECTRIC PANEL SERVER ROOM WASTE HOLDING JANITOR ROOM EXAM 1 EXAM 2 EXAM 3 EXAM 4 EXAM 5 EXAM 6 RESEARCH AREA EXIT-ENTRANCE FOR STAFF MAIN for ENTRANCE PATIENTS CORRIDOR ADMIN. AREA FAX COPY SUPPLIES STORAGE CLEAN SUPPLIES STORAGE GENERAL STORAGE 10'-0" 12'-0" 5'-0" 10'-1 1 2 " 13'-0" 2'-0" 5'-0" 34'-118 " 5'-0" 6'-1 9 16 " 4'-3 5 16 " 5'-0" 8'-0" 9'-0" 7'-9" 7'-7 3 8 " 7'-7 5 16 " 8'-2 7 16 " 6'-9 9 16 " 3'-0" 3'-0" 3'-0" 5'-0" 10'-2 1 8 " 2'-8" 3'-0" 6'-0" 23'-9 9 16 " 22'-10 3 8 " 5'-0" 5'-0" 4'-0" 5'-0" 7'-4 5 8 " 6'-915 16 " 6'-9 3 4 " Parking Spaces Parking Spaces Parking Spaces Parking Spaces 1 / 8 " CORRIDOR 23'-3 1 4 " 5'-01 8 "
RCP 3 rd Exit First Grade classroom 2 First Grade classroom 3 First Grade classroom 1 Principal Office Corridor Corridor Lobby ADA RR ADA RR CT-9 CT-9 CT-9 CT-9 CT-9 CT-9 CT-9 CT-9 CT-9 CT-9 CT-9 CT-9 CT-9 CT-9 CT-9 CT-14 CT-14 CT-14 CT-14 CT-9 CT-14 CT-14 ADA RR CT-9 CT-14 F5 F5 F5 F5 F5 F5 CT-9 116 ELECT/SERVER GYP. BD. 8' AFF 117 G. COUNSELER ACT. 8' AFF 118 PRINCIPAL OFF. ACT. 8' AFF 119 BUSINESS OFF. ACT. 8' AFF 120 SECRETARIES OFF ACT. 8' AFF VESTIBULE ACT. 8' AFF 100 FG CLASSROOM ACT. 8' AFF 100 FG CLASSROOM GYP. BD. 12' AFF 101 FG CLASSROOM ACT. 8' AFF 101 FG CLASSROOM GYP. BD. 12' AFF 102 FG CLASSROOM ACT. 8' AFF 102 FG CLASSROOM GYP. BD. 12' AFF 104 INDOOR PLAY. ACT. 12' AFF 109 TEACHERSROOM ACT. 10' AFF 105 SPEC.ED.C.ROOM ACT. 10' AFF ADMIN HALL ACT. 8' AFF EDUC.HALL ACT. 8' AFF 103 LUNCHAREA ACT. 12' AFF 102 CORRIDOR ACT. 10' AFF CA CA CA CA CA CA CA CA CA CA CA CA CA CA CA CA CA CA CA CA CA SP SP SP SP SP SP SP SP SP SP SP SP SP EMI EMI EMI EMI EMI EMI EMI EMI S S SP SP SP SP SP SP SP SP SP SP SP SP SP SP SP SP SP SP SP SP SP SP SP SP SP SP SP SP SP SP SP SP SP SP SP SP SP SP SP SP SP SP SP SP SP SP SP SP SP SP SP SP SP SP SP SP SP SP SP SP SP SP SP SP SP SP SP SP SP SP SP SP SP SP SP SP SP SP SP SP F5 F5 110BOYS RESTROOM ACT. 10' AFF 111 GIRLS RESTROOM ACT. 10' AFF 122ADMIN RESTROOM ACT. 10' AFF STAFF RESTROOM ACT. 10' AFF 115KITCHEN ACT. 8' AFF 112 JANITOR ROOM ACT. 10' AFF F5 GLASS DOME -SKYLIGHT XW XW XW XW XW XW XW XW GLASS DOME -SKYLIGHT GLASS DOME -SKYLIGHT GLASS DOME -SKYLIGHT 104 INDOOR PLAY. ACT. 10' AFF-HANG. SP SP SP SP SP SP SP SP 114 NURSE ROOM GYP. BD. 8' AFF F5 F5 F5 F5 F5 F5 F5 F5 F5 F5 F5 F5 F5 F5 F5 F5 F5 F5 F5 F5 F5 F5 F5 F5 F5 F5 F5 REFLECTED CEILING PLAN SCALE:1/8"=1'-0" 1 NORTH 0' 1/8" = 1'-0" 5' 10' 20' 30' 5'-101/8" 5'-71/2" 9'-5 3/4" 4'-11 1/2" 10'-01/2" 2'-111/2" 6'-0" 6'-0" 5'-11/2" 5'-53/8" 3'-05/8" 8'-0" 9'-0 1/4" 1'-10 3/4" 59'-2" 8'-3 1/4" 20'-7 1/4" 23'-9" 3'-4 1/2" 3'-6" 5 1/2" 70'-1" 0" N CHECK-OUT ADA RR PATIENTS NURSE STATION STAFF ADA RR ELECTRIC PANEL EXIT-ENTRANCE FOR STAFF MAIN ENTRANCE AND EXIT FOR PATIENTS ADMIN. AREA FAX,COPY SUPPLIES STORAGE CLEAN SUPPLIES STORAGE REFLECTED CEILING PLAN 1 / 8" JANITOR ROOM ADA RR Families CHECK-IN PRAYER ROOM WASTE HOLDING REFLECTED SYMBOL LEGEND 1/8" =1'-0" TAG SYMBOL DESCRIPTION REMARKS Trim Square LED Flushmount by Maxim Lighting P Aim Pendant Light Size: Dia 18cm x H 15cm Ø 7.1″ x H 5.9″ DUBLEX OUTLET ABOVE CEILING S S Exam Rooms and Offices Light switches S Bailey LED Linear Flushmount by AFX Lighting AX2 SERIES 2" APERTURE Downlight 800 – 1500 lumens Self-Flanged 10 X AX2 A A IO LED CoviO Graze/ 12 X 48" 1 X 12" C B D P C Waiting Area Entrance Waiting Area Offices Corridors Check-In Waiting Area All Building Multi-purpose Room WAITING AREA ACP. 10'-0" AFF S P E S18 S 4 WAITING AREA ACT. 11'-0" AFF WAITING AREA ACP. 10-6"" AFF WAITING AREA ACP. 10'-0" AFF WAITING AREA ACT. 11'-0" AFF WAITING AREA ACP. 10-6"" AFF EXAM ROOM 1 ACT. 10'-0" AFF 6S S 13 S 3 S S S S S S 4 S S 2 S 9 4S 4S S S 4 S S 4 S S S EXAM ROOM 2 ACT. 10'-0" AFF EXAMROOM3 ACT. 10'-0" AFF EXAMROOM4 ACT. 10'-0" AFF EXAMROOM5 ACT. 10'-0" AFF EXAM ROOM 6 ACT. 10'-0" AFF RESEARCH TEST AREA ACT. 10'-0" AFF MANAGER OFFICE ACT. 10'-0" AFF MULTI-PURPOSE ACT. 10'-0" AFF STAFF BREAK ROOM ACT. 10'-0" AFF GENERAL STORAGE ACT. 10'-0" AFF SURVER ROOM ACT. 10'-0" AFF VESTIBULE ACP. 10'-0" AFF S5 2S S S S4 S S B B B C D A A D 8-Inch Linear LED Surface Mount Light 8 Footx2- 6x1 E PHYSICIAN ROOM1 ACT. 10'-0" AFF PHYSICIAN ROOM1 ACT. 10'-0" AFF Armstrong Ceiling WOODWORKSPanelized Linear Veneer 2x8 with 4 in panels Waiting Area E 4'-0" 4'-0" 4'-0" 4'-0" 4'-0" 2'-0" 4'-0" 5'-0" 8'-0" 8'-0" 4'-0" 4'-0" 4'-6 3 8 " 4'-0" 3'-11 9 16 " 4'-0" 2'-0" 4'-0" 4' 4'-0 5 8 " 2'-9 9 16 "

Entrance & Waiting Area Perspectives

Waiting Perspectives

Exam Room 1 Perspectives

Patient Age Group 4-7

Exam Room 4 Perspectives

Patient Age Group 7-11

Wayfinding, Ceiling & Lighting

Wayfinding, Ceiling & Lighting

Break & Office & Meeting Room

Furnitures&Materials

• Acoustic ceiling materials controls and reduces noise

• Large windows provide connection to the outdoors and reduces anxiety.

• Materials and Furniture

• LEED Certified(-low emitting )

• ASTM E84

• -Health Product Declaration

Boutique Hotel

Project Narrative

ADA Guest Room Bathroom for a Boutique Hotel

The intent of this design is to achieve an accessible bathroom that provides a elegant, clean, and relaxing experience with wood looking materials. It will be accomplished through the use of a masculine natural color scheme of LIST COLORS HERE, accented with brass Schluter, black accents and ADA accessible fixtures.

11 Hotel ADA Bathroom
Location : Datca, Turkiye

Furnitures & Finishes

COST ANALYSIS

FLOOR FINISHES: 160 SQ FT $ 1,721.00

WALL FINISHES: 462 SQ FT $ 3,937.66

BASE/TRIM FINISHES: 17 SQ FT $ 1,018.06

OVERALL TILE COST: $ 6,676

FF & E : $ 9,264.05

TOTAL : $ 15,940.05

NOTE: This cost does not include custom elements, removal, delivery, tax, and installation.

Plans
Elevations & Finishes

Photoshop, Hand Drawings, CAD Drawings

12 Extras Extras
.

CAD Drawings & Photoshop Hybrid & Greyscale Drawings

(973) 570-3892

designerkatetaylor@gmail.com

https://www.linkedin.com/in/designer-kate-taylor-

Turn static files into dynamic content formats.

Create a flipbook