DOSSIER_CATALINAMESA_SOFIABONILLA

Page 1


Azul Providenc

Catalina Mesa- Sofia Bonilla

“Se plantea una respuesta consciente y bioclimática mediante la implementación de una cubierta con un sistema de captación pluvial. Esta estrategia permitirá la recolección y gestión del agua de lluvia, . Además, el diseño de un nuevo espacio público no solo establece una conexión funcional con el aeropuerto, sino que también promueve la integración urbana, articulando el sector con la ciudad y fortaleciendo su cohesión territorial”.

ESCASEZ DE AGUA POTABLE

ESTRATEGIAS URBANAS

SISTEMA AMBIENTAL

The Peak Regional Park

Espacio de Transición (Aeropuerto Azul Providencia)

SISTEMA ESPACIO PUBLICO

Espacio publico de aproximación

SISTEMA MOVILIDAD

Vía principal

INTEGRAR

Parque Nacional Natural Old Providence McBean Lagoon

The Peak Regional Park

CONECTAR

Vía Circunvalar
Parque Nacional Natural Old Providence McBean Lagoon
Pista Aérea
Vacrcunvaa
Accesos

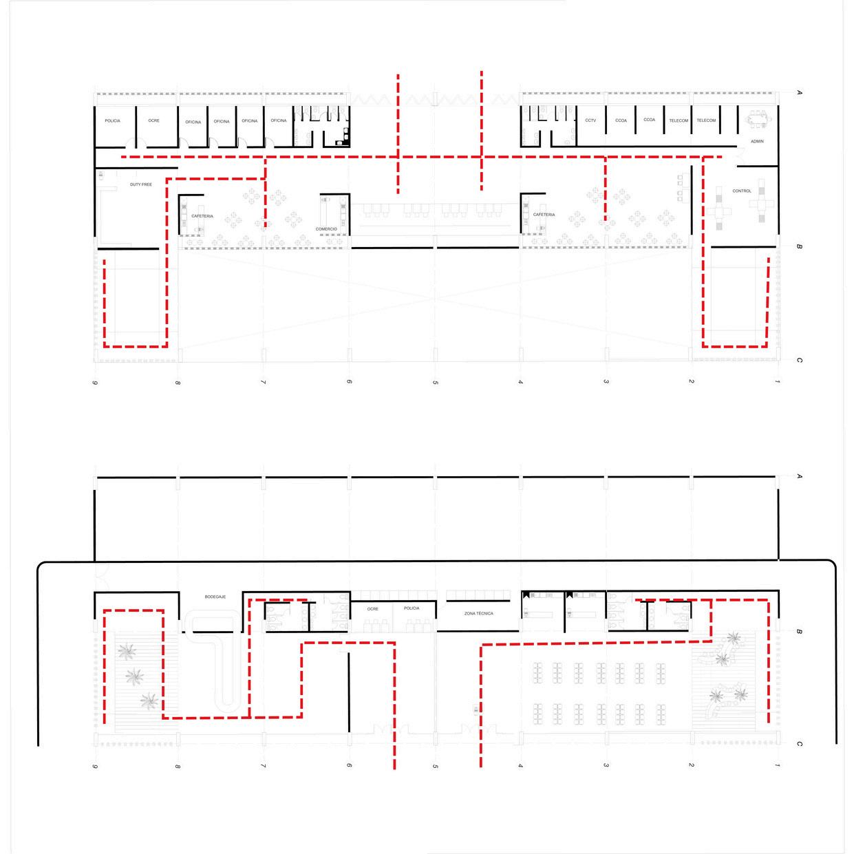
ZONIFICACION

DISTRIBUCION

Sistema funcional

CIRCULACIONES

Zona tierra
Zona aire
Zona tierra
Zona aire
Zona tierra
Zona aire

SISTEMA ESPACIAL

SISTEMA ESTRUCTURAL

cercha meta ica Pantallas de acero 1.4x 4

Modulación estructural 9x12 MODULACION

12 m

9 m

IALIDAD

Pantallas de acero

Cubierta tipo sándwich cerchas metalicas

recubrimiento en madera calados en madera

COMPONENTE

El sistema construc del aeropuerto se basa materiales sostenib que favorecen el con térmico y la durabilid La estructura mod permite flexibilidad expansión futu adaptándose a necesidades operat del aeropuerto

REFERENTE

Aeropuerto Alfonso Bonilla Aragon

SISTEMA SIMBOLICO

La cubierta, con su diseño y materiales, busca armonizar con el paisaje natural circundante, reflejando la identidad del territorio.

El uso de paneles solares y la recolección de aguas lluvias son elementos que simbolizan el compromiso con la sostenibilidad ambiental.

ESTRATEGIAS CLIMATICAS

Cubierta con paneles solares

Ventilación cruzada Voladizos sistema captación de agua

las estrategias climáticas presentadas en la imagen buscan crear un edificio que sea energéticamente eficiente, confortable y respetuoso con el medio ambiente.

Turn static files into dynamic content formats.

Create a flipbook
Issuu converts static files into: digital portfolios, online yearbooks, online catalogs, digital photo albums and more. Sign up and create your flipbook.
DOSSIER_CATALINAMESA_SOFIABONILLA by Catalina Ortiz - Issuu