Internship Portfolio (De earth) 2024

Page 1

THIS DRAWING IS THE PROPERTY OF DE EARTH ARCHITECTS.

REPRODUCING ITS CONTENTS IN ANY FORM EXCEPT FOR THE PURPOSE OF WHICH IT IS INTENDED, IS PROHIBITED.

THIS DRAWING IS NOT TO BE SCALED, STATED DIMENSIONS ARE ONLY TO BE CONSIDERED.

PROJECT
CLIENT ARCHITECTS SHEET TITLE: PROJECT NO: GROUND FLOOR PLAN REVISIONS DATE NO. NOTES
TO BE VERIFIED
PER ACTUAL
KEY PLAN ISSUED
DRAWN
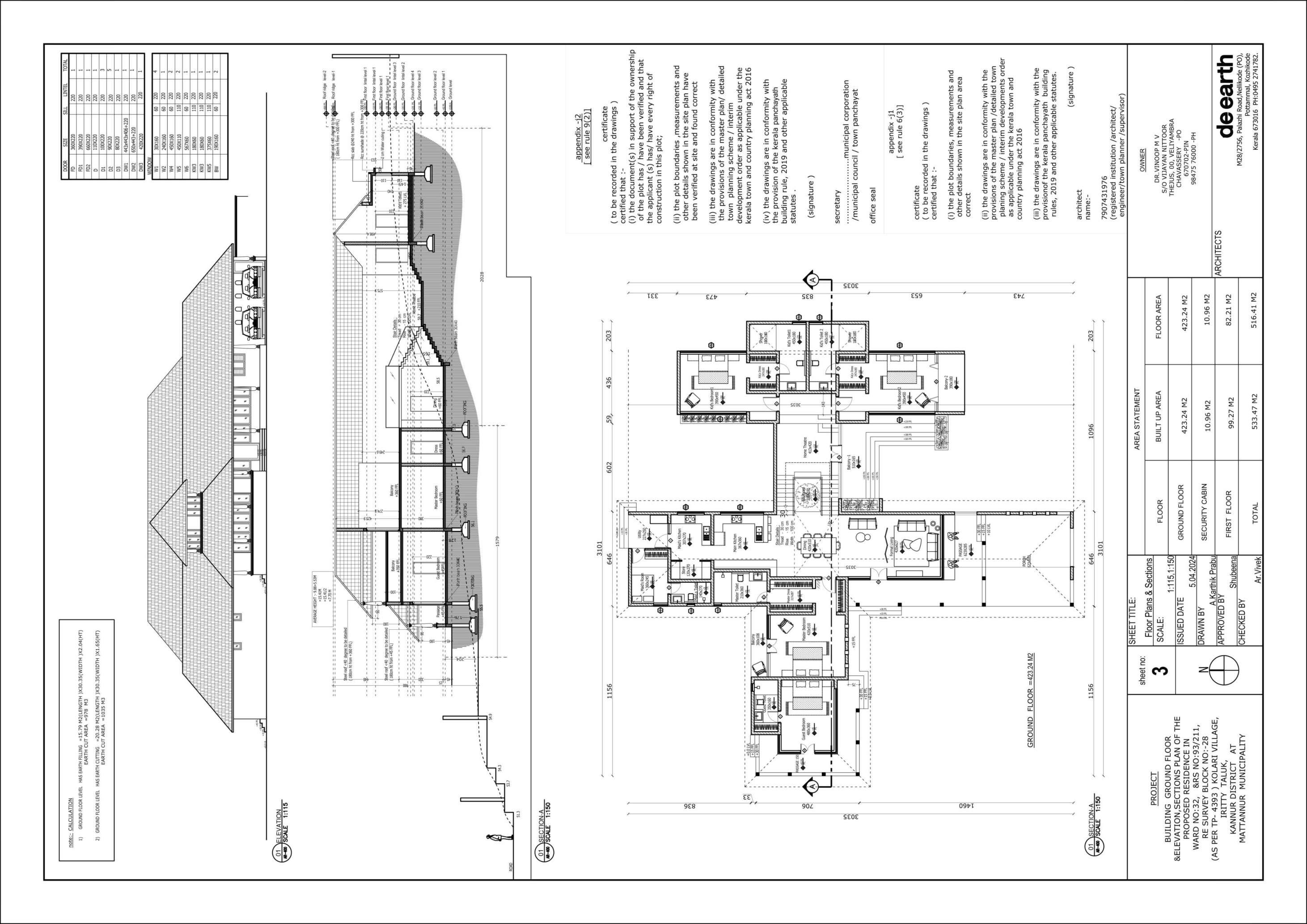
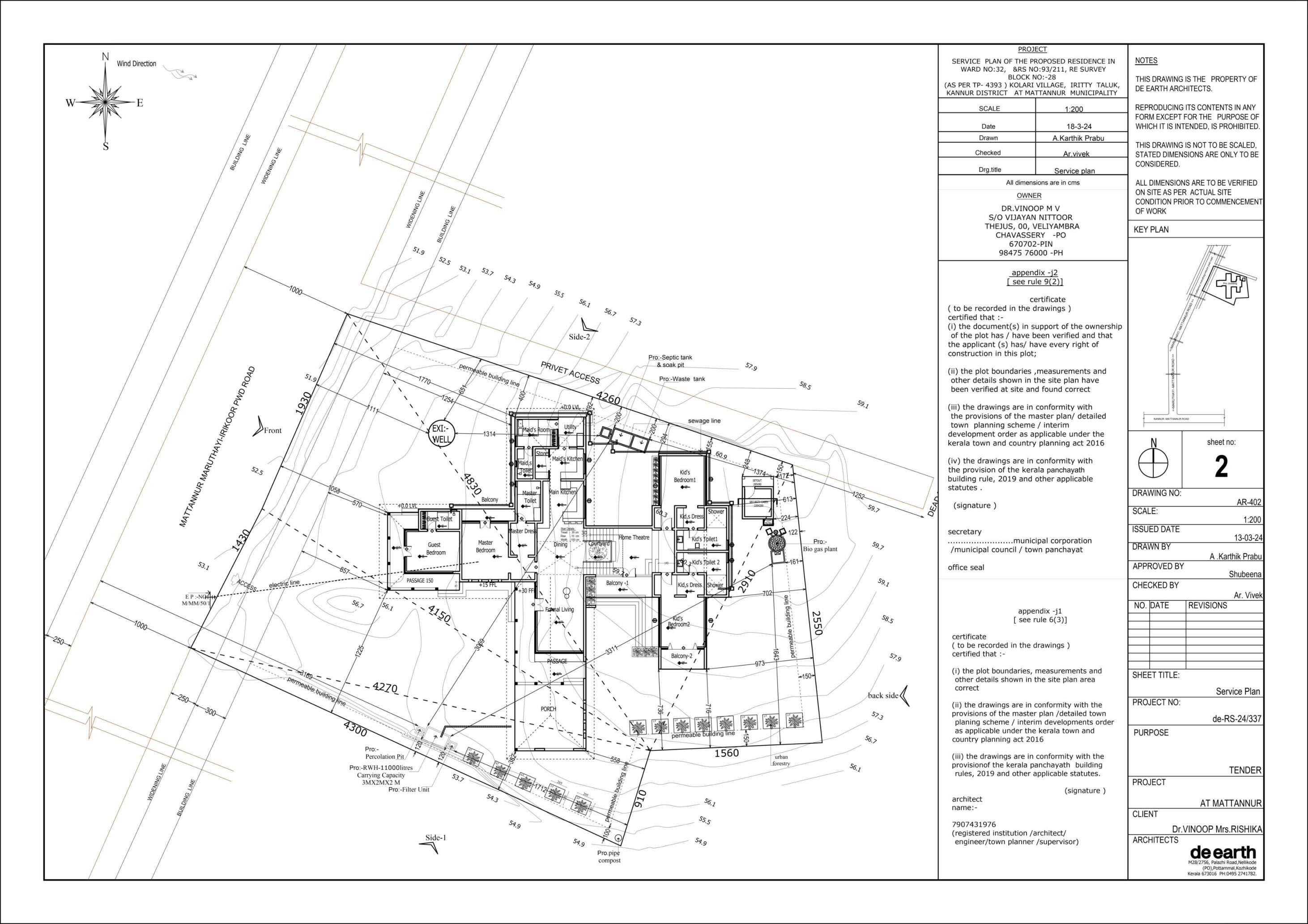
CHECK BY PURPOSE SCALE: 1:120 DRAWING NO: Mr.Rathinam &Mrs.Meena Mr.Rathinam &Mrs.Meena Residence CONSTRUCTION M28/2756, Palazhi Road,Nellikode (PO), Pottammal, Kozhikode Kerala 673016 PH:0495 2741782. KARTHIK PRABU A De-Rs-356 AR-601 3.05.2024 SUKANYA M LIVING ROOM 390X557 GUEST BEDROOM 450 X 390 DRESSING ROOM 187X200 DINING ROOM 443X557 LIBRARY CUM OFFICE 390X413 POOJA 150X200 KITCHEN 593X370 SITOUT 630X180 COURTYARD 510X557 LIFT 180X200 TOILET 360X160 PORCH 570X570 WASH AREA 200X160 TOILET 160X160 D8 D2 D8 D4 DW2 SFD4 UP UP KW1 110 W2 120 W2 120 W4 60 W5 60 V1 120 V1 120 196 23 150 23 196 23 150 23 Waste water Pit 100X225X150 VERANDAH 150X1000 UP DW3 PASSAGE 120 WIDE D6 MD D2 D6 LINTEL BEAM LINTEL BEAM pro.well SUMP TANK 250X600X1.5 fixed seater fixed seater LINTEL BEAM LINTEL BEAM D7 STORE 180X180 UTILITY 410X210 MAID’S ROOM 210X330 MAID’S TOILET 127X210 SECURITY CABIN 210X330 D5 D1 DW5 KW2 110 DW1 D1 window sill-110 window sill-110 arch lintel beam CANTILEVER BEAM UP UP window 1 sill-225 fixed seater D1 DW6 W2 120 W2 120 W2 120 15 15 15 15 98 DOOR SILL LINTEL TOTAL SIZE VENTILATOR WINDOW SFD2 MD W1 SFD3 240X240 SFD1 W2 SFD5 D2 631X2402401 410X240 240 1 1 1 390X240240 1 5240 120X240 90X240 240 30X60 180 255 120 225 19 20X30 4 W7 125X160 80 1 240 D4100X240 D5 80X240 1 1 SFD4 1 360X240 240 240 DW1 240 240 1 180X240 240 DW2 W3 464X240 1 240 1560X90 240 10 W4240X230 240 W5 60 2 60X180 240 2 60 BW1 330 240X190 50 2 240 KW1 297X130 110 1 240 KW2 210X130 110 1 240 V1 45X120 120 5 240 DW3 353X2401 240 D6120X240 2 240 SFD6 1 390X240 240 D1 7 100X240 240 D7 80X190 1 210 SFD7 390X240 1 240 DW5 330X240 1 240 DW6 310X240 1 240 W645X180 240 601 464 120 353 90 90 510 297 100 100 30 30 30 30 30 80 310 45 526 240 120 330 180 120 45 100 270 631 100 D8180X210 1 210 180 80 110 W2 120 W2 120 W2 120 W2 120 W8 125X160 80 1 240 GROUND FLOOR PLAN 01
ALL DIMENSIONS ARE
ON SITE AS
SITE CONDITION PRIOR TO COMMENCEMENT OF WORK
DATE
BY

THIS DRAWING IS THE PROPERTY OF DE EARTH ARCHITECTS.

REPRODUCING ITS CONTENTS IN ANY FORM EXCEPT FOR THE PURPOSE OF WHICH IT IS INTENDED, IS PROHIBITED.

THIS DRAWING IS NOT TO BE SCALED, STATED DIMENSIONS ARE ONLY TO BE CONSIDERED. ALL DIMENSIONS ARE TO BE VERIFIED ON SITE AS PER ACTUAL SITE CONDITION PRIOR TO COMMENCEMENT OF WORK

PROJECT
CLIENT ARCHITECTS SHEET TITLE: PROJECT NO: FIRST FLOOR PLAN REVISIONS DATE NO. NOTES
KEY PLAN ISSUED
DRAWN
CHECK
PURPOSE SCALE: 1:120 DRAWING NO: Mr.Rathinam &Mrs.Meena Mr.Rathinam &Mrs.Meena Residence CONSTRUCTION M28/2756, Palazhi Road,Nellikode (PO), Pottammal, Kozhikode Kerala 673016 PH:0495 2741782. KARTHIK PRABU A De-Rs-356 AR-602 3.05.2024 SUKANYA M TOILET 333X204 KARTHIK'S BEDROOM 410X450 DRESSING ROOM 333X200 MASTER BEDROOM 450X390 DRESSING ROOM 200X390 TOILET 160X390 WALK IN WARDROBE 207X360 TOILET 160X360 LIFT 180X200 UPPER LIVING 660X390 D1 D1 D1 D2 SFD7 SFD1 BW1 50 BW1 50 W5 60 W5 60 V1 120 V1 120 V1 120 SFD3 W3 00 SEEN BELOW Seating @ 45cm ht Seating @ 45cm ht PASSAGE 205 WIDE W7 90 DN UP W4 60 W2 120 OPEN TERRACE 410X330 D2 D2 STORE ROOM 360X180 13 SFD2 wooden piller V2 120 W2 120 W2 120 OPEN TERRACE 410X356 Slope OPEN TERRACE 240X390 DN open terrace rcc slab bottom lvl 240@60lvl Slope Slope LINTEL BEAM LINTEL BEAM LINTEL BEAM 390 45 90 100 30 30 390 240 90 100 560 60 240 125 90 45 410 60 45 240 100 60 240 60 RUKMANI'S BEDROOM 02 FIRST FLOOR PLAN W9 00 W9 00 DOOR SILL LINTEL TOTAL SIZE VENTILATOR WINDOW SFD2 MD W1 SFD3 240X240 SFD1 W2 SFD5 D2 631X240240 1 410X240 240 1 1 1 390X240 240 1 5240 120X240 90X240 240 30X60 180 255 120 225 19 20X30 4 W7 125X160 80 1 240 D4 100X240 D5 80X240 1 1 SFD4 1 360X240 240 240 DW1 240 240 1 180X240 240 DW2 W3 464X240 1 240 1 560X90 240 10 W4240X230 240 W5 60 2 60X180 240 2 60 BW1 240X190 50 2 240 KW1 297X130 110 1 240 KW2 210X130 110 1 240 V1 45X120 120 5 240 DW3 353X2401 240 D6 120X240 2 240 SFD6 1 390X240 240 D1 7 100X240 240 D7 80X190 1 210 SFD7 390X2401 240 DW5 330X240 1 240 DW6310X240 1 240 W645X180 240 60 1 D8 180X210 1 210 W9 450X240 0 1 240 W8 125X160 80 1 240
DATE
BY
BY

THIS DRAWING IS THE PROPERTY OF DE EARTH ARCHITECTS.

REPRODUCING ITS CONTENTS IN ANY FORM EXCEPT FOR THE PURPOSE OF WHICH IT IS INTENDED, IS PROHIBITED.

THIS DRAWING IS NOT TO BE SCALED, STATED DIMENSIONS ARE ONLY TO BE CONSIDERED.

PROJECT CLIENT ARCHITECTS SHEET TITLE: PROJECT NO: JOINERY DETAIL REVISIONS DATE NO. NOTES
KEY PLAN ISSUED
DRAWN
CHECK
PURPOSE SCALE: 1:20 DRAWING
QUANTITY : LOCATION : TYPE : 1 NO WOODEN DOOR,WINDOW GROUND FLOOR (MAIN DOOR) Mr.Rathinam &Mrs.Meena Mr.Rathinam &Mrs.Meena Residence CONSTRUCTION M28/2756, Palazhi Road,Nellikode (PO), Pottammal, Kozhikode Kerala 673016 PH:0495 2741782. KARTHIK PRABU A Detail A De-Rs-356 AR-604 3.05.2024 SUKANYA M inside outside 120 631 51 60 60 5 51 5 51 5 50.5 5 5 50.5 5 50.5 5 50.5 5 50.5 5 50.5 5 inside outside SECTION AA' 5 44 5 112 20 240 44 20 5 5 112 44 195 240 41.9 41.9 41.9 41.9 PLAN Brass Handle 200mm thick Laterite masonry 15mm thick Plastering 50mmx150mm thick wooden frame 50mmx25mm thick wooden shutter 50mmx100mm thick wooden frame 50mmx150mm thick wooden frame 8mm thick toughened glass 50mm thick wooden shutter 50mmx25mm thick wooden shutter 50mmx100mm thick wooden frame 5 5 50.5 50.5 5 50.5 5 50.5 5 50.5 5 50.5 5 5 51 5 51 5 51 5 30.4 41.9 A A' 42.4 43.5 103.4 103.4 MD1 (631x240 ) ELEVATION 631 4mm grove 19.4 19.4 19.4 19.4 19.4 19.4 120 18.8 18.4 18.8 19.4 Detail A 5 5 6mm fixed glass 1.5 1.4 1.5 3.4 1.9 3 3 3 3 1.2 1.2 2 .4 .4 .4 4mm grove .4 .4 wooden door shutter
ALL DIMENSIONS ARE TO BE VERIFIED ON SITE AS PER ACTUAL SITE CONDITION PRIOR TO COMMENCEMENT OF WORK
DATE
BY
BY
NO:

NOTES

THIS DRAWING IS THE PROPERTY OF DE EARTH ARCHITECTS.

REPRODUCING ITS CONTENTS IN ANY FORM EXCEPT FOR THE PURPOSE OF WHICH IT IS INTENDED, IS PROHIBITED.

THIS DRAWING IS NOT TO BE SCALED, STATED DIMENSIONS ARE ONLY TO BE CONSIDERED.

ALL DIMENSIONS ARE TO BE VERIFIED ON SITE AS PER ACTUAL SITE CONDITION PRIOR TO COMMENCEMENT OF WORK

BY

SHEET TITLE:

PROJECT NO: JOINERY DETAIL REVISIONS DATE NO.

CLIENT ARCHITECTS

PROJECT
DRAWING
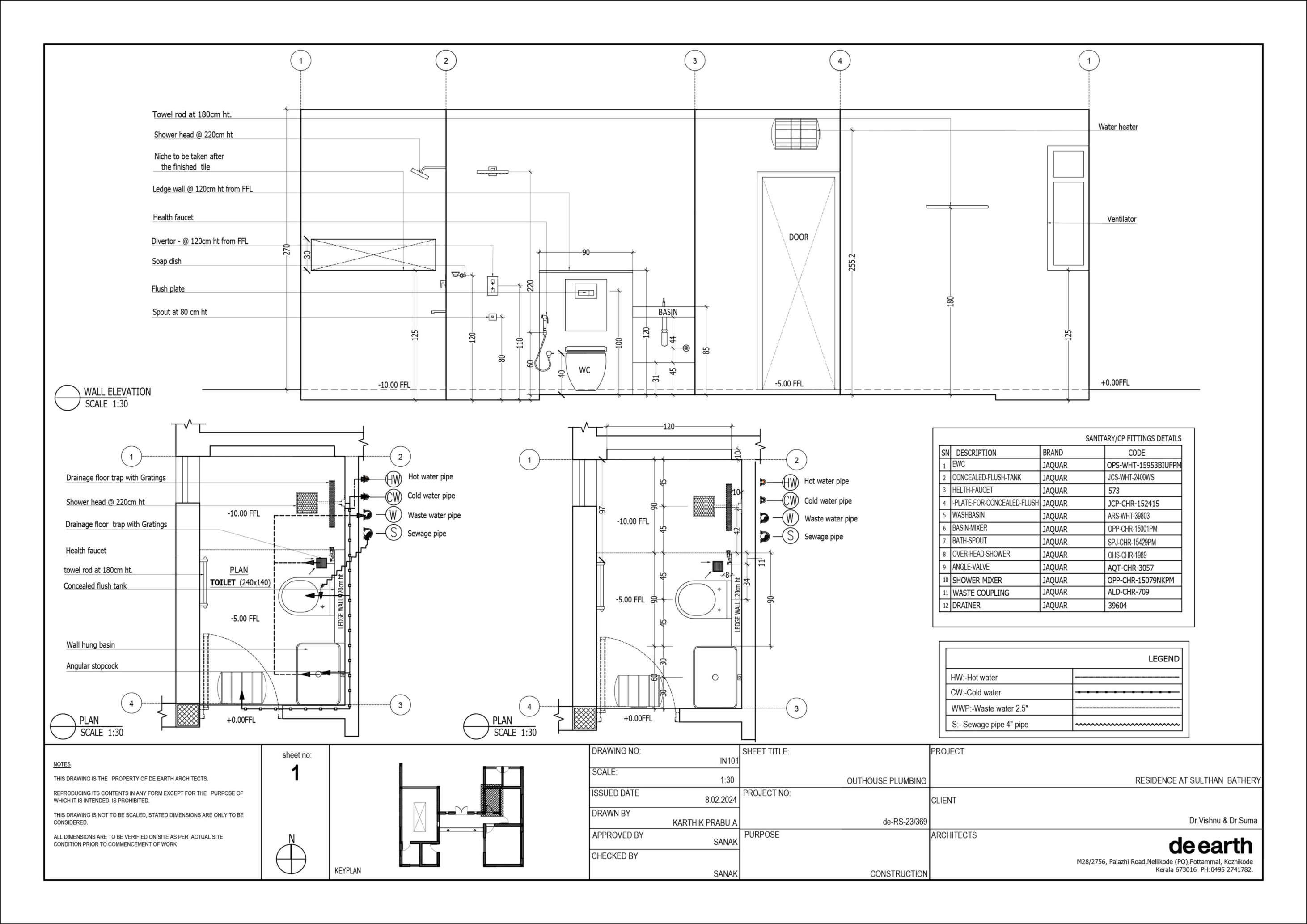
QUANTITY : LOCATION : TYPE : WOODEN DOOR, WINDOW Mr.Rathinam &Mrs.Meena Mr.Rathinam &Mrs.Meena Residence CONSTRUCTION M28/2756, Palazhi Road,Nellikode (PO), Pottammal, Kozhikode Kerala 673016 PH:0495 2741782. 1 NO GROUND FLOOR - SECURITY CABIN QUANTITY : LOCATION : TYPE : 1 NOS WOODEN DOOR ,WINDOW GROUND FLOOR- MAID ROOM KARTHIK PRABU A De-Rs-356 AR-611 3.05.2024 SUKANYA M window sill-110 inside outside 5 80 5 50 5 50mmx100mm thick wooden frame 100mmx28mm thick wooden shutter 4mm groves 240 5 80 5 50 5 50 50mmx100mm thick wooden frame 4 mm grooves 200 50 5 5 200 10mm ply wood veneer 50mmx100mm thick wooden frame 4 mm grooves inside outside 5 80 5 50 5 50mmx100mm thick wooden frame 100mmx28mm thick wooden shutter 4mm groves 240 5 80 5 50 5 50 50mmx100mm thick wooden frame 4 mm grooves 200 50 5 5 200 10mm ply wood / veneer 50mmx100mm thick wooden frame 4 mm grooves 29.4 29 29 29 window sill-110 DW6(200x240) ELEVATION DW5(200x240) ELEVATION PLAN PLAN
KEY PLAN ISSUED DATE DRAWN
CHECK BY PURPOSE SCALE: 1:20
NO:

NOTES

THIS DRAWING IS THE PROPERTY OF DE EARTH ARCHITECTS.

REPRODUCING ITS CONTENTS IN ANY FORM EXCEPT FOR THE PURPOSE OF WHICH IT IS INTENDED, IS PROHIBITED.

THIS DRAWING IS NOT TO BE SCALED, STATED DIMENSIONS ARE ONLY TO BE CONSIDERED.

SHEET TITLE:

PROJECT NO: JOINERY DETAIL REVISIONS DATE NO.

ALL DIMENSIONS ARE TO BE VERIFIED ON SITE AS PER ACTUAL SITE CONDITION PRIOR TO COMMENCEMENT OF WORK KEY PLAN ISSUED DATE DRAWN BY CHECK BY PURPOSE SCALE: 1:20 DRAWING NO:

PROJECT

CLIENT ARCHITECTS

QUANTITY : LOCATION : TYPE : Mr.Rathinam &Mrs.Meena Mr.Rathinam &Mrs.Meena Residence CONSTRUCTION M28/2756, Palazhi Road,Nellikode (PO), Pottammal, Kozhikode Kerala 673016 PH:0495 2741782. MAID TOILET QUANTITY : LOCATION : TYPE : 5 NOS TOILET 1 NOS KARTHIK PRABU A WOODEN DOORWOODEN QUANTITY : LOCATION : TYPE : WOODEN DOOR 1 NOS GROUND FLOOR EXTERIOR STAIRCASE De-Rs-356 AR-612 3.05.2024 SUKANYA M 90 D2 (90X240) 5 80 5 90 ELEVATION PLAN 240 5 80 5 90 50mmx100mm thick wooden frame 4 mm grooves 50mmx100mm thick wooden frame 100mmx28mm thick wooden shutter 10mm ply wood / veneer D5 (80X240) 80 5 70 5 80 240 50mmx100mm thick wooden frame 100mmx28mm thick wooden shutter 10mm ply wood / veneer ELEVATION 5 70 5 80 50mmx100mm thick wooden frame 4 mm grooves PLAN D4(100X240) inside outside inside outside 100 inside outside 90 5 45 45 5 240 5 45 45 5 100 50mmx100mm thick wooden frame 4 mm grooves 50mmx100mm thick wooden frame 100mmx28mm thick wooden shutter 10mm ply wood / veneer 8.8 8.8 eq eq eq 9.8 9.8 eq eq eq eq 29.4 29 29 29 29.4 29 29 29 29.4 29 29 29 ELEVATION PLAN 9.8 9.6 9.8 9.6

NOTES

THIS DRAWING IS THE PROPERTY OF DE EARTH ARCHITECTS.

REPRODUCING ITS CONTENTS IN ANY FORM EXCEPT FOR THE PURPOSE OF WHICH IT IS INTENDED, IS PROHIBITED.

THIS DRAWING IS NOT TO BE SCALED, STATED DIMENSIONS ARE ONLY TO BE CONSIDERED.

TO BE VERIFIED ON SITE
PER ACTUAL
T0 = 100 mm x 50 mm GI RHS 14 gauge T1 = 80 mm x 40 mm GI RHS 14 gauge T2 = 80 mm x 40 mm GI RHS 14 gauge T3 = 200 mm x 100 mm I Section TRUSS LAYOUT 1 REVISIONS DATE NO. SHEET TITLE: PROJECT NO: DE-RS-2022 / 354 PURPOSE AREA CALCULATION FLOOR AREA(M²) PROJECT CLIENT ARCHITECTS GROUND FLOOR TOTAL FIRST FLOOR SECOND FLOOR RESIDENCE AT CHENNAI Mr. PRABHU & Mrs. JAYA FOR CONSTRUCTION SCALE: 1:80 DRAWN BY APPROVED BY ISSUED DATE 8-03-2024 KARTHIK PRABU A DRAWING NO: AR-406 CHECKED BY M28/2756, Palazhi Road,Nellikode (PO),Pottammal,Kozhikode Kerala 673016 PH:0495 2741782. 01 29-01-2024 STRUCTURAL PLAN FOR TRUSS DESIGN SHEET NO 1 JITHIN JITHIN C C D D A A 96 96 96 96 96 96 71.3 110 110 86.8 96 96 96 89 89 89 89 89 89 89 31.1 89 89 89 89 96 96 96 96 96 96 71.3 65.7 96 704.4 168 102 78 108 102 75.7 102 78 108 102 102 102 102 323 292.8 196.8 110 168 110 196.7 292.7 323 323 96 96 85.7 110 1788 809 488 70 70 70 210 76.5 76.5 223.1 223.1 332.8 332.8 332.8 332.8 70 70 70 B B 65.7 65.7 66.9 98 98 98 98 98 92 180 180 E E T0 T1 T2 T1 T2 1948 1084.7 T0 649 381.4 12 12 T3 T3 286 97.5 129.7 191.3
ALL DIMENSIONS ARE
AS
SITE CONDITION PRIOR TO COMMENCEMENT OF WORK
NOTES
PROPERTY
EARTH ARCHITECTS.
THIS DRAWING IS THE
OF DE
NOT TO BE SCALED, STATED DIMENSIONS ARE ONLY TO
DIMENSIONS ARE TO BE VERIFIED ON SITE AS PER ACTUAL SITE CONDITION PRIOR TO COMMENCEMENT OF WORK REVISIONS DATE NO. SHEET TITLE: PROJECT NO: DE-RS-2022 / 354 PURPOSE AREA CALCULATION FLOOR AREA(M²) PROJECT CLIENT ARCHITECTS GROUND FLOOR TOTAL FIRST FLOOR SECOND FLOOR Mr. PRABHU & Mrs. JAYA FOR CONSTRUCTION SCALE: DRAWN BY APPROVED BY ISSUED DATE DRAWING NO: CHECKED BY M28/2756, Palazhi Road,Nellikode (PO),Pottammal,Kozhikode Kerala 673016 PH:0495 2741782. 01 29-01-2024 SECOND FLOOR ROOF PLAN SF ROOF PLAN 2 RESIDENCE AT CHENNAI 1:80 AR-406 SHEET NO 2 NORTH SIDE JITHIN JITHIN KARTHIK PRABU A 8-03-2024 GYM 553x420 BAR COUNTER 420x420 GARDEN TERRACE PASSAGE 150cm wide LIFT 180x190 +785.00 FFL +785.00 FFL +770.00 FFL +785.00 FFL BALCONY WATER TANK/STORE 400X200 JACUZZI DECK LEVEL F.F.L BARBEQUE / TERRACE Duct 40 x 67 VERANDAH 120cm wide Duct 45 x 60 +785.00 FFL +770.00 FFL OPEN TERRACE KITCHEN YARD +370.00 FFL 280.00 FFL +770.00 FFL +770.00 FFL +770.00 FFL +1020.00 FFL OPEN TERRACE OPEN TERRACE OPEN TERRACE OPEN TERRACE +760.00 FFL +1105.00 FFL +645.00 FFL +1015.00 FFL OPEN TERRACE T0 T1 C C D D A A B B T2 E E 66.9 98 98 98 98 98 92 180 180 T1 T2 90 90 96 96 96 96 96 96 71.3 110 110 86.8 96 96 96 89 89 89 89 89 89 89 31.1 89 89 89 89 96 96 96 96 96 96 71.3 65.7 96 704.4 168 102 78 108 102 75.7 102 78 108 102 102 102 102 323 292.8 196.8 110 168 110 196.7 292.7 323 323 96 96 85.7 110 1788 809 488 70 70 70 210 76.5 76.5 223.1 223.1 332.8 332.8 332.8 332.8 70 70 70 65.7 65.7 1948 1084.7 381.4 12 12 T3 T3 286 97.5 129.7 191.3 T0
REPRODUCING ITS CONTENTS IN ANY FORM EXCEPT FOR THE PURPOSE OF WHICH IT IS INTENDED, IS PROHIBITED. THIS DRAWING IS
BE CONSIDERED. ALL
SECTION AA 4 NORT SIDE ELEVATION 3 PROJECT CLIENT ARCHITECTS SHEET TITLE: PROJECT NO: REVISIONS DATE NO. ISSUED DATE DRAWN BY CHECKED BY PURPOSE SCALE: 1:100 DRAWING NO: sheet no: 3 DE-RS-2022 / 354 FOR CONSTRUCTION RESIDENCE AT CHENNAI Mr. PRABHU & Mrs. JAYA SIDE ELEVATION & SECTION KARTHIK PRABU A APPROVED BY NOTES THIS DRAWING IS THE PROPERTY OF DE EARTH ARCHITECTS. REPRODUCING ITS CONTENTS IN ANY FORM EXCEPT FOR THE PURPOSE OF WHICH IT IS INTENDED, IS PROHIBITED. THIS DRAWING IS NOT TO BE SCALED, STATED DIMENSIONS ARE ONLY TO BE CONSIDERED. ALL DIMENSIONS ARE TO BE VERIFIED ON SITE AS PER ACTUAL SITE CONDITION PRIOR TO COMMENCEMENT OF WORK AR-407 JITHIN M28/2756, Palazhi Road,Nellikode (PO), Pottammal, Kozhikode Kerala 673016 PH:0495 2741782. JITHIN 8-03-2024 SECURITY ROOM MAID'S ROOM LIVING SITOUT BALCONY PARTY HALL +785.00 FFL 24 25 +415.00 FFL 06 07 08 09 10 11 12 13 15 16 17 18 19 20 21 22 23 26 14 +145.00 FFL 20 50 20 220 310 120 +400.00 FFL +205.00 FFL +280.00 FFL +355.00 FFL 45 45 40 220 130 350 +45.00 FFL +45.00 FFL planter box planter box +770.00 FFL 46 STORE +30.00 FFL earth filling 140 35 35 padippura 46 210 200 65 65 65 63 40° ISMB steel support 283 272 758 593 Steel roof of 0.75"x1.5" GI box section reaper Steel roof of 0.5"x1.5" GI box section reaper. Steel of 4"x 8" GI section. Rain water gutter Steel beem with 3"X1.5" GI box section Steel beam of 4"x 8" GI section. Steel beam of 4"x 8" GI I section. 01 02 03 04 05 Roof ridge bottam lvl +1297.00 FFL Eave bottam lvl +706.00 FFL Outer wall height +1183.00 FFL Ground lvl Ground floor lvl First floor lvl Terrace floor lvl Road lvl +45.00 FFL +0.00 FFL +415.00 FFL +1110.00 FFL +785.00 FFL -30.00 FFL Second floor lvl Steel of 4"x 8" GI section. Rafter with 3"X1.5" GI box section with spacing (to be detailed) roof <40°slope 65 65 65 105 294 62 92 45 300 240 210 60 210 63 200 ISMB steel support 280 263 208 183 210 270 274 291 713 563 Steel roof of 0.75"x1.5" GI box section reaper. Rafter with 3"X1.5" GI box section with spacing (to be detailed) roof <40°slope Steel piler of 4"x 8" GI section. Steel of 4"x 8" GI I section. Steel beam of 4"x 8" GI I section. Rain water gutter Steel beem with 3"X1.5" GI box section 40° 1'' steel plate. 167 +415.00 FFL +1110.00 FFL +1323.00 FFL +785.00 FFL +45.00 FFL +0.00 FFL -30.00 FFL +1175.71 FFL Ground lvl Ground floor lvl Road lvl First floor lvl Second floor lvl Terrace floor lvl Roof ridge top lvl Eave bottam lvl 494 366
DE-RS-2022
Mr.
Mrs.
SECTIONS KARTHIK PRABU A
PROPERTY
EARTH
PROJECT CLIENT ARCHITECTS SHEET TITLE: PROJECT NO: REVISIONS DATE NO. ISSUED DATE DRAWN BY CHECKED BY PURPOSE SCALE: 1:100 DRAWING NO: sheet no: 4
/ 354 FOR CONSTRUCTION RESIDENCE AT CHENNAI
PRABHU &
JAYA
APPROVED BY NOTES THIS DRAWING IS THE
OF DE
ARCHITECTS.
PURPOSE
INTENDED,
DRAWING
NOT TO BE SCALED, STATED
ONLY TO BE
DIMENSIONS ARE TO BE VERIFIED ON SITE AS PER ACTUAL SITE CONDITION PRIOR TO COMMENCEMENT OF WORK SECTION BB 5 SECTION CC 6 SECTION DD 7 SECTION EE 8 AR-407 JITHIN M28/2756, Palazhi Road,Nellikode (PO), Pottammal, Kozhikode Kerala 673016 PH:0495 2741782. JITHIN 8-03-2024 30 OPEN TERRACE +770.00 FFL 60 233 wooden pillar DW11 Rafter with 3"X1.5" GI box section with spacing (to be detailed) roof <40°slope Steel roof of 0.75"x1.5" GI box section reaper. Steel beem with 2"X 2" GI box section Steel beem with 4"X 4" GI box section FOOD COUNTER +785.00 FFL 25 45 20 220 310 15 20 122 Second floor lvl 976.58 FFL +785.00 FFL Terrace floor lvl +1110.00 FFL 8mm MS plate Eave bottam lvl 295 40° 25 40 20 85 PARTY HALL BAR COUNTER +785.00 FFL OPEN TERRACE +1045.00 FFL Steel roof of 0.75"x1.5" GI box section reaper . Second floor lvl +785.00 FFL Outer wall plate lvl +1110.13 FFL Rafter with 3"X1.5" GI box section with spacing (to be detailed) roof <40°slope Roof ridge top lvl +1313.42 FFL 25 40 20 220 89 136 104 20 220 325 15 90 33 87 90 Rafter with 3"X1.5" GI box section Rain water gutter Steel roof of 0.5"x1.5" GI box section reaper spacing. 517 +1043.3 FFL Eave bottam lvl 133 Tie beam with 3"X1.5" GI box section +785.00 FFL 45 250 PARTY HALL 195 80 35 94 181 35 40 46 20 200 25 40 41 42 +785.00 FFL 90 15 64 45 W16 60 165 45 46 Rain water gutter Steel roof of 0.5"x1.5" GI box section reaper. Rafter with 3"X1.5" GI box section Rafter with 3"X1.5" GI box section with spacing (to be detailed) roof <40°slope OPEN TERRACE +1105.00 FFL OPEN TERRACE +1015.00 FFL Roof ridge top lvl +1312.24 FFL +1110.00 FFL 241 118 Steel beam with 3"X1.5" GI box section Terrace floor lvl +1032.97 FFL Eave bottam lvl +1180.55 FFL Eave bottam lvl Steel roof of 0.75"x1.5" GI box section reaper. 270 253 90 519 45 100 125 16 13 +1015.00 FFL OPEN TERRACE 15 25 40 25 40 Rafter with 3"X1.5" GI box section with spacing (to be detailed) roof <40°slope Steel roof of 0.75"x1.5" GI box section reaper. wall plate with 3"X1.5" GI box section Rain water gutter Steel roof of 0.5"x1.5" GI box section reaper. 116 209 Second floor lvl +785.00 FFL +1043.53 FFL Roof ridge top lvl +1313.7 FFL 133 Eave bottam lvl Tie beam with 3"X1.5" GI box section Steel beam of 3"x 6" GI I section. 45
REPRODUCING ITS CONTENTS IN ANY FORM EXCEPT FOR THE
OF WHICH IT IS
IS PROHIBITED. THIS
IS
DIMENSIONS ARE
CONSIDERED. ALL

Turn static files into dynamic content formats.

Create a flipbook
Issuu converts static files into: digital portfolios, online yearbooks, online catalogs, digital photo albums and more. Sign up and create your flipbook.