Portfolio 2024

Page 1


Anomaly / Innovation

Innovation has been our way to unlock new value and accommodate it. It might not be that necessary for a pressing purpose, but we have been all benefited as we explored its capabilities. Witnessing the anomalies in our cities nowadays, like the forgotten histories, deviated value of living, social controversies raised by the artificial intelligence, we even have greater purpose that demands innovation, to create a more sustainable, vibrant city and community, under the severe social, economic and environmental pressures.

To transform city absurdities into a sustaining system, in my point of view, an architecture and infrastructure for the future should provide people with the boundary between capability and potential need. In this portfolio, adaptable framework, which serves as the boundary, was designed base on the patterns in contextual behaviours of the stakeholders. Whilst there are things that cannot be adapted, such as the core values and their inherent relationships, the ‘innovation boundary’ provokes people to reflect on their identities and explore any other possibilities. And I believe that will be the way how architecture evolves as the city does.

The University of Hong Kong (BA Architecture) First Class Honours Dean’s Honours

Delft University of Technology (MSc Architecture) The Architectural Association (ARB/RIBA Part 3) Distinction

lkykarry@gmail.com +44 7795984683

https://karryli.cargo.site/

Education

2023

2019 - 2021

2013 - 2017

Work Experience

Sep 2022 - Present (Architect - Part II)

Li, Ka Yiu Karry

email: lkykarry@gmail.com

mobile: +44 7795984683

website: https://karryli.cargo.site/

Karry is a native of Hong Kong (British nationality), currently working as an architect at Sybarite. Her works attempt to explore the ‘innovation boundary’ to strengthen our values in societies. She is passionate in the dynamic of people, spaces and cities through drawing and design, hence rethink about our identities.

Sep 2021 - Sep 2022 (Part II)

Architectural Association School of Architecture

+Professional Practice (ARB/RIBA Part III) with DISTINCTION

Delft University of Technology

+MSc in Architecture

The University of Hong Kong

+BA in Architectural Studies with FIRST CLASS HONOURS

Sybarite - London, United Kingdom

+ Retail : Department store in Wuhan, China - stage 3 - 5 (INTERIOR)

+ Retail : Department store in Hangzhou, China - stage 2 - 4 (FACADE)

* worked closely with client, LDI, contractor, MEP, lighting, structural consultants

* 2D CAD drawing, REVIT modeling, RHINO modeling, digital presentations

* review construction drawings

Flanagan Lawrence - London, United Kingdom

+ Public space : Samovar Space, Wembley Park, London - stage 1 - 5

* worked closely with project manager, quantity surveyor, contractor, structural engineer

* 2D CAD drawing, RHINO modeling for design intent

* planning application

* on site experience

+ Stadium : Centrale del Foro Italico, Rome, Italy - stage 2

* worked closely with landscape, structural, MEP, cost consultant, tennis stadium expert

* 2D CAD drawing, REVIT modeling, RHINO modeling, digital presentations

+ Residential : CNWL, Wembley, London - stage 0 - 2

* worked closely with client, fire consultant, structural engineer

* 2D CAD drawing, REVIT modeling, digital presentations

+ Residential : Mono St Petersburg, Russia - stage 1

* worked closely with landscape consultant

* 2D CAD drawing, REVIT modeling, digital presentations

July 2018 - June 2019 (Part I)

July 2017 - June 2018 (Part I)

June - Aug 2016 (Internship)

June - July 2015 (Internship)

Bjarke Ingels Group - Copenhagen, Denmark

+ Masterplan : Tencent DNA, Shenzhen, China - stage 1

+ Retail / Residential : Le Marais, Paris, France - stage 2

+ Cultural : Tirana National Theatre, Tirana, Albania - stage 2

+ Education : Agora, Copenhagen, Denmark - stage 1

the Oval partnership - Hong Kong

+ Masterplan : Daci North, Cheng Du, China - stage 1

+ Masterplan : Pixel City, Cheng Du, China - stage 1 - 2

+ Masterplan : Meibei Hu Retreat Estate, Xian, China - stage 1

Editecture - Hong Kong

Parallel Lab - Hong Kong

Competitions & Awards

NRP Masterprize - Winner

+ by National renovation platform in the Netherlands

Virtual Revolution - Honourable Mentions

+ IDA design awards (Multimedia Category)

Autonomouse Driving- Merit Prize

+ Imagination of Driverless Car City held by Central Glass Conference Hall - Honourable Mentions

+ Copenhagen Conference Hall held by Archicontest Urban Open Space - Honourable Mentions

+ Redefining Public Space held by Central Glass

Other Experience

Life Drawing Ambassador, Sybarite

+ Promote art culture, monthly life drawing in the office Volunteer in drawing class, Artbox London

+ Assist artist with autism in drawing

Drawing Exhibition, Ztory Pop Up Gallery Hong Kong

+ Artwork ‘At the Rendezvous’ exhibited at the gallery at Central Participant of FORMGIVING, Bjarke Ingels Group

+ An exhibition of BIG’s work at the DAC in Copenhagen Participant of Vertical Fabric, the Oval partnership

+ A vertical tower exhibition in Venice Biennale 2018

Competencies

Mandarin Cantonese

Adobe Photoshop

Adobe Illustrator

Adobe InDesign

Rhinoceros

V-Ray Rendering Enscape

Physical Modelling

Grasshopper AutoCAD

Autodesk Revit

Adobe Premiere Pro

Adobe After Effects

Twinmotion Maya Unreal Engine

Year: Site: Type: Tutor:

Msc3,4 / 2020-2021 Bijlmer, NL Adaptive Reuse Nicholas Clarke

Year: Site: Type: Tutor:

Msc1 / 2019-2020 Warmond, NL Heritage Hotel Wouter Willers 12

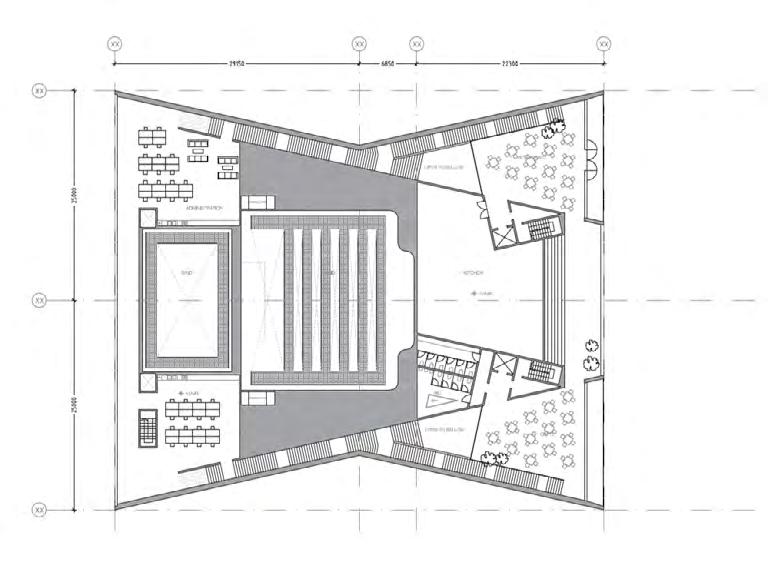
Samovar Space

The Brent Design Awards celebrates excellence in great buildings and places, within the culturally diverse borough of

This project has a strong community focus, with a People’s Choice Award and local representation on the judging panel, including young people.

+

Drawing

+ Diagrams

+ Rendering

+ Plans, Elevations and Sections

+ Details 1: 5, 1:10

+ Hand sketches with photoshop

Modelling

+ Rhino modelling

Presentation

+ Regular meetings with apprentices, consultants, contractors and clients

+ Planning application

Stage 4 and 5

+ Coordination with contractor

+ Quality check on site

+Completion

Le Marais

Tirana National Theatre

Centrale del Foro Italico

Presentation

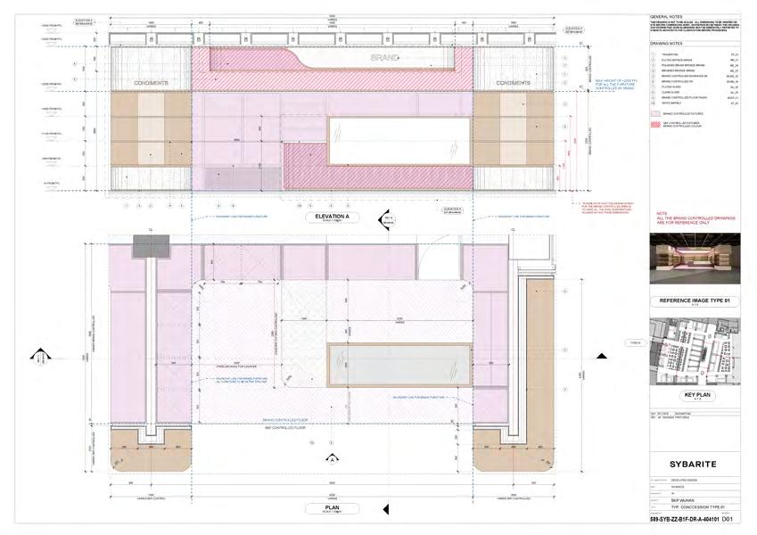
+ Meetings with consultants + Atrium and B1F Market

Interior submission package

Daci North

+ Final presentation for city mayor Year:

Drawing + Diagrams + Hand sketches with photoshop

Modelling

+ Grasshopper for building massing

+ Rhino modelling

+ Physical model for massing study

Presentation

+ Regular team meetings

+ Weekly update to Director

+ Interim presentation

Meadows Shopping Centre

Living with Commons

Mixed Use / Heritage

Year:

Studio:

Site:

Type:

University: Tutor:

Msc2 / 2020-2021

Heritage Bijlmer, NL

Adaptive Reuse TU Delft

In the interest of the ‘new heritage’, the project explores the greater potential of the existing public spaces in an 80s residential neighborhood, Bijlmerplein. A series of interventions, which were informed by the stakeholders, aim to improve the quality of public spaces and hence strengthen the heritage value of the site, while providing a vision to create a healthy sustainable public life for the post covid future.

Ultimately, the design suggests an alternative viability of those deteriorating privatized shopping malls as a better public venue to strengthen the lifespan of the post-modern architecture

In the H-buurt neighborhood, Bijlmerplein located at the centre of this area, potentially serving as the TOD. So as there will be more visitors and users, the public elements and the commons will play a more important role as the H-buurt gets further developed in the future.

Sustainable Machine

During summer, air enters the air labyrinth, then further cooled down by the geothermal heat exchange. Meanwhile, natural ventilation happens through the garden passage. The cool fresh air moves towards the courtyard and atrium. At last the warmed air is sucked up to the roof by the solar chimney and stack effect.

Huys te Warmont

Year:

Studio:

Site:

Type:

University:

Tutor:

Msc1 / 2019-2020

Heritage

Warmond, NL

Heritage Hotel

TU Delft

Wouter Willers

Innovation is the ability to see change as an opportunity. To transform heritage Huys te Warmont into a historic boutique hotel, it is taken as an opportunity for both restoration and renovation. Bridging the past to the foreseeable future, this project integrates the symbiotic historical images with the installation of sustainable machines

While its high age value and stylistic value is appreciated throughout the past transformations since 14th century, this project reconstructs the historical image which the previous architect, Salamon da Bray, intended. Even if it had never existed as such, the transformation concept is to layer those imaginary facts into the new interventions.

‘Assessed values embodied in Huys te Warmont are the basis of the heritage transformation framework.’

Undergone a series of transformation from a defensive tower in 1400 to a a house estate in 1800, its stylistic value, is significant for the current characters of Huys te Warmont. In the Golden Age and Enlightenment, there was a rise of the symbolic elements in the design which should be preserved. Regarding the urban scale, the axis of symmetry is also one of the basis of the design proposal.

‘Delineate thoughts which make my nostalgia novel...’

‘It

‘Our unshakable belief.’

‘Breathe, before suffocated.’
‘It’s spring fever. I want.’
‘Float, drown, retard.’
‘May gravity work against them.’
is ugly, so is politics.’
what they think.’
‘Question - Did I just troll Xi?’
‘Self portrait - BLM.’

‘No one dictates.’

‘Hello stranger.’

‘Not complicated.’

‘We will manage.’

‘Choose wisely.’

‘Everyone is moving on.’

‘Long day.’
‘Be banana.’
‘Met my mother.’

Turn static files into dynamic content formats.

Create a flipbook
Issuu converts static files into: digital portfolios, online yearbooks, online catalogs, digital photo albums and more. Sign up and create your flipbook.