INTERIOR DESIGN PORTFOLIO
RESUME
KARLY MATHIS
LEED GREEN ASSOCIATE
OBJECTIVE
EXPERIENCE
JUNE 2022 - PRESENT
2022 - JUNE 2022
EDUCATION
COMPUTERSKILLS
ACTIVITIES
UTC Dance Team '18-'21
of Team
at Design Shows
at
INTERN// CHATTANOOGA DESIGN STUDIO
Focus on extention of outdoordining area for a restaurantlocated in downtown Chattanooga. Heavy research in city Urban Design. Aesthetic, graphic documents for share-able information.
OCT 2021 - JUNE 2022 DANCE TEACHER// GINGER BROWN'S ACADEMY
Teaching multiple disciplines of dance to all ages and skill levels. Abilities to lead and command a room. Collaboratively teaching with other teachers to lead to the best outcomes.
AUG 2019 - MAY 2021 ACADEMIC SERVICE STUDENT// CHEPS AT UTC
Tasks as directed by faculty. Office tasks that included making copies, scanning and converting documents into online files, and organization of invoice files.
AUG 2018 - MAY 2019 ACADEMIC SERVICE STUDENT// INTERIOR DESIGN DPT AT UTC
Assistant to faculty members that included copying, shredding documents, transferring documents into digital formats and answering phone calls. Various other duties based on faculty
AWARDS needs.
JamesAveryScholarship: This scholarship was awarded to five students that showed exemplary work ethic and high scores on practice tests pertaining to gaining their NCIDQ certification. The expenses for testing to gain the NCIDQ certification has been covered. Currently working toward NCIDQ IDFX. Historic Character Award-Providedby Cornerstones Inc.: Award wastied tothe Senior Thesis project in the final semester of schooling. The award was given to the project whose virtuous design best served to recognize, preserve,
pay homage to the building's
significance.
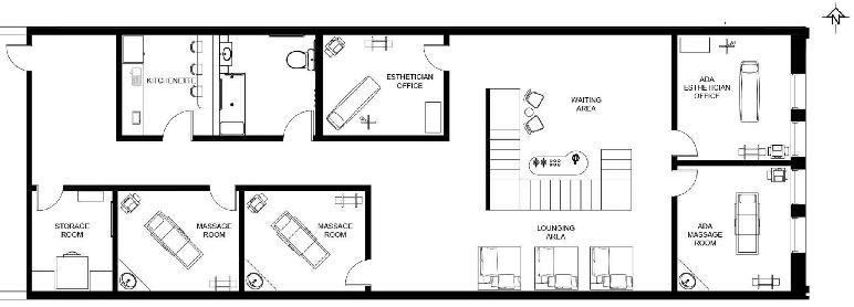
THE FLETCHER’S BATHROOM
CONTEXT // CALIFORNIA HIGH-RISE BATHROOM
FOR THE RECENTLY RELOCATED FLETCHER’S
NEEDS // AGING IN PLACE, HEALTH, SAFETY, & WELFARE
WANTS // MODERN, RELAXING, SOPHISTICATION, CLEANLINESS
DESIGN SOLUTION // GFCI UNITS, SLIDING DOORS ON CLOSET AND SHOWER, ROLL-IN SHOWER, DIMMER SWITCHES FOR EARLY MORNING
TASKS TO NOT WAKEN OTHER PARTNER, GRAB-BARS FOR TOILET AND SHOWER, SHOWER BENCH, SLIP-RESISTANT FLOORING, VERTICAL LED VANITY LIGHTS TO ELIMINATE SHADOW
COLOR PALETTE // ACHROMATIC FOR SIMPLE, MODERN LOOK
PROCESS WORK
FLOOR PLAN
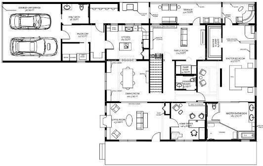
THE SHELTON’S RENOVATION HOME
CONTEXT // SOUTH LAKE TAHOE, CALIFORNIA RECENTLY INHERITED, OUT DATED HOME. IN NEED OF RENOVATION FOR THE SHELTON’S TO CREATE A NOW, VACATION HOME, AND LATER, A HOME SUITABLE FOR RETIREMENT.
NEEDS // AGING IN PLACE, MODERN, CONTEMPORARY
WANTS // EASILY MAINTAINABLE, REFLECT THEIR LOVE FOR THE OUTDOORS
DESIGN SOLUTION // MR. SHELTON FAVORS FUNCTION OVER STYLE. MRS. SHELTON PREFERS NEAUTRALS WITH A POP OF COLOR. SIMPLICITY IN FUNC TION. 1ST LEVEL DESIGNED FOR THE SHELTON’S, WHILE THE 2ND LEVEL IS DESIGNED FOR THEIR GRANDCHILDREN AND GUESTS. SPACE PLANNING FOR NOISE CONTROL WAS VERY IMPORTANT TO THE SHELTON’S SO ZONING QUIET SPACES VERSUS LOUDER SPACES WAS HIGH PRIORITY IN DESIGN.
COLOR PALETTE // EARTH TONES, HIGH CONTRAST
PROCESS WORK
1st level FLOOR PLAN
2nd level floor plan
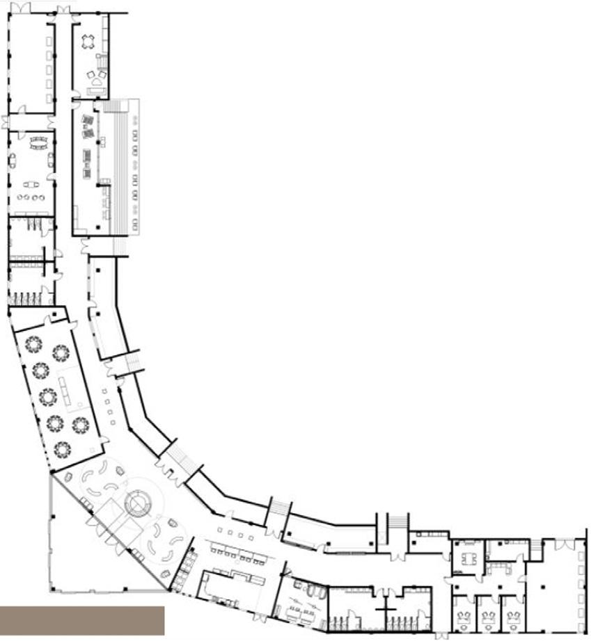
OPEN SKY SALON + SPA
CONTEXT // RENOVATION OF THE ABANDONED, 621 MARKET
ST. IN DOWNTOWN CHATTANOOGA. INCLUDED IN THE SPACE IS AN EXIT CORRIDOR ON THE 1ST LEVEL AND A STAIRCASE LEADING TO THE 2ND LEVEL.
NEEDS // EASY NAVIGATION, PRIVATE WORK SPACES, OPEN AND INVITING ENTRY, ABILITY TO SELL PRODUCTS
WANTS // RELAXING AND MODERN
DESIGN SOLUTION // WHEN ENTERING THE SPACE, THE WAITING AREAS ON THE 1ST & 2ND LEVEL INCLUDE RE FRESHMENTS AND LOUNGE SEATING. THE 2ND LEVEL WAS INTENDED FOR MORE PRIVATE, QUIET WORK, SO THE SPA AREAS CAN BE FOUND UPSTAIRS WHILE THE SALON CAN BE FOUND DOWNSTAIRS.
1st level FLOOR PLAN
COLOR PALETTE // BLUE, GOLD, BLACK, WHITE AND TONES OF WOOD FOR SOPHISTICATION AS WELL AS COMFORT.
CUSTOM BUILD SKETCHES
2ND level FLOOR PLAN
COMPLETE CREATIVE PRODUCTION STUDIO
1st level FLOOR PLAN
2ND level FLOOR PLAN
IN COLLABORATION WITH CLASSMATE, PARKER SCHILLING
RENDERINGS
CONTEXT // LOCATED IN 621 MARKET ST. OPPOSITE OF OPEN SKY SALON + SPA.
NEEDS // TOUCHDOWN SPACES, EDITING SUITES, CONFERENCE ROOMS, CASTING STUDIOS, OPEN ASSISTANT OFFICES.
WANTS // STAND OUT AGAINST OTHER PRODUCTION STUDIOS.
DESIGN SOLUTION // MINIMALISTIC DESIGN WITH A FOCUS ON NOISE CONTROL THAT INCLUDED ACOUSTIC WALL-MOUNTED HEXAGONS. WOOD PANELING INCLUDED FOR WARMTH.
COLOR PALETTE // TO GO AGAINST THE GRAIN, BLUE, PURPLE, AND PASTEL PINK WERE USED.
PATHWAY: HOUSING FOR VETERANS
IN COLLABORATION WITH CLASSMATES, AUSTIN MEMMER & MAUREEN COTTER
CONTEXT // CREATING A FACILITY IN CHATTANOOGA TO ENCOUR AGE COMFORT AND SOCIAL INTERACTION FOR VETERANS. VETERANS
LEAVE THE ARMED FORCES & COME BACK WITHOUT A SENSE TO COM MUNITY LEADING TO MENTAL HEALTH RISKS.
NEEDS // ORGANIC ENVIRONMENT THAT ENCOURAGES SOCIAL SUSTAINABILITY AND NATURAL INTERACTIONS BETWEEN RESIDENTS AND GUESTS.
WANTS // TOUCHDOWN SPACES, NEIGHBORHOOD-FEEL, NATURE IN VOLVMENT, COMMON EATERY, SPACES FOR FLEX-USE AND COLLABO RATIVE LEARNING
DESIGN SOLUTION // EXTERIORS OF STUDIOS WERE DESIGNED TO LOOK LIKE EXTERIORS OF HOMES, TOUCHDOWN SPACES THAT HOST GAMES, LARGE PLANTERS, PATHWAYS THAT CURVE ALONG FOR A NATURAL FEEL, CREATION OF FOUR SECTIONS WITHIN THE SPACE THAT CREATE MINI NEIGHBORHOODS IN THE LARGE FACILITY FOR MORE PERSONAL INTERACTION.
COLOR PALETTE // EARTH TONES, NATURAL WARM COLORS.
PROCESS WORK
THE EXPERIENCE AT ENGEL
CONTEXT // ADAPTIVE REUSE OF THE ABANDONED ENGEL STADIUM IN DOWNTOWN CHATTANOOGA KEEPING THE STADIUM’S HISTORICAL SIGNIFICANCE AT FRONT WHILE DESIGNING A SPACE FOR INCLUSIVI TY FOR ALL CHATTANOOGANS AND TRAVELLERS.
NEEDS // EXTENSIVE RESEARCH LED TO THE NEED OF A MULTI-USE SPACE THAT INCLUDE RENTABLE SPACES AND THE USE OF THE LAND SCAPE FOR BUILDING COMMUNITY.
WANTS // AN ENGAGING AND FUN FACILITY FOR THE COMMUNITY TO LEARN THE IMPORTANCE AND SIGNIFICANCE OF ENGEL STADIUM, A SPACE THAT IS INCLUSIVE TO ALL PEOPLE AND AGES
DESIGN SOLUTION // MULTIPLE, RENTABLE, EVENT SPACES FOR REV ENUE, AREAS FOR STUDENTS TO STUDY AND FACULTY OF UTC TO WORK, WATCH BOX FOR EVENTS ON THE FIELD, ENGAGEMENT IN THE BUILDING AND ON THE SITE, HISTORICAL MUSEUM, AMPLE STORAGE AND RESTROOMS, COFFEE SHOP FOR REVENUE WHEN EVENTS ARE NOT TAKING PLACE
COLOR PALETTE // NEAUTRALS WITH A POPS OF COLOR IN EACH
floor plan
THE EXPERIENCE AT ENGEL
LIL’ MAMA’S CHICAGO STYLE HOAGY
CONTEXT // LOCATED AT 818 GEORGIA AVE. THE OWNER WOULD LIKE TO EXTEND HER DINING SPACE TO THE EXTERIOR OF THE RESTAURANT SPACE ON PATTEN SQUARE.
NEEDS // FURNITURE PACKAGE WITHIN BUDGET OF THE CITY’S GRANT TO EXTEND THE DINING SPACE. LIGHT-WEIGHT MOVEABLE FURNITURE. BARRIER TO ENCLOSE SPACE WITH ALCOHOL SALES. DINING TABLES AND CHAIRS FOR EATING.
WANTS // A FUN, ENGAGING, INCLUSIVE, EXTERIOR DINING AREA FOR ADULTS AND CHILDREN. CASUAL DINING AS WELL AS LOUNGING. INSTAGRAM WORTHY SPACE. FUN COLORS.
DESIGN SOLUTION // CURVY, GROOVY PATTERNS AND TEX TURES, GREENERY, PLANTERS FOR DECOR AND BARRIER, BLACK PIECES FOR STARK CONTRAST AGAINST BRIGHT CONCRETE.
COLOR PALETTE // IN RELATION TO THE ALREADY ESTABLISHED COLOR PALETTE IN THE INTERIOR OF THE RESTAURANT. FOCUS ON HOT PINK, GREEN, BLUE, YELLOW, AND BLACK.
ADDITIONAL GRAPHICS
ADDITIONAL GRAPHICS
1 YEAR GOAL //
WHILE WORKING WITH CDS, I HAVE EXTENDED MY KNOWLEDGE OF DESIGN BEYOND INTERIORS WITH THE COMPANY BEING AN URBAN DESIGN FIRM. I FEEL AS THOUGH THIS HAS ALLOWED ME TO GAIN DIFFERENT PERSPECTIVES ON HOW DESIGN CAN ENCOMPASS A CITY AND EFFECT THOSE EXPERIENCING IT. I WOULD LIKE TO KEEP GAINING DIFFERENT PERSPECTIVES AND EXPERIENCE DESIGN THROUGH INTERIORS, BUT ALSO BEYOND. CULTURALLY, I WOULD LOVE TO EXPAND MY PERSPECTIVES OF DESIGN TO MANY CITIES AND HOPE TO TRAVEL TO ACCESS SUCH KNOWLEDGE.
5 YEAR GOAL //
I HOPE HAVE A LEADERSHIP ROLE IN A COMPANY AND HAVE GREATER KNOWLEDGE ABOUT THE BUSINESS SIDE OF DESIGN. I HOPE TO BE INVOLVED HEAVILY IN THE COMMUNITY THAT I AM IN, AND MAKING A DIFFERENCE TO THOSE THAT ARE IN THE COMMUNITY WITH ME AS WELL. i HOPE TO HAVE CROSS-TRAINING IN MANY ASPECTS OF DESIGN. aT THIS POINT IN TIME, I HOPE TO HAVE PASSED ALL NCIDQ EXAMS AND have become a leed ap.



