Architectural design_ Kunjal Soni

Page 1

PORTFOLIO

Architectural Design

KUNJAL N SONI AN ARCHITECTURAL INTERN VADODARA, GUJARAT:

Hello!! I am kunjal soni, currently the 5th year student at sardar Vallabhbhai Patel institute, Vasad and am currently seeking an architectural internship As a student am a fast learner and observent, curious and open to learn new things I like to think and create abstract concepts and relating it with the designs Through my internship period I would like to learn more about materials, how they work and technicalities behind the handeling those and I would also like to enhance my skills and to learn the different ways of architecture I would love to apply my knowledge and help grow the firm during my internship period

+919601864690 : Contact Info,
kunjalsoni2002@gmail.com :

EDUCATION :

2020-present

Bachelor In Architecture, Sardar Vallabhbhai Patel Institute, Vasad

2017-2020

Diploma In Architecture , Sigma Institute, Vadodara

SKILLS : AUTOCAD

SKETCHUP

PHOTOSHOP

ILLUSTRATOR

SKILLS : COMMUNICATION

TEAM WORK

PROBLEM SOLVING

DETAIL ORIENTED

PROCREATE

REVIT

HAND MODELING

SKETCHING

EXPERIENCE :

Internship At Genre Environment Design Under AR. Retash Desai Dec2019-march2020

AGRO-ENHANCE CENTER

01
02 WORKING-INSTITUTE CONTENTS

03 HOUSING-CHANDIGARH

04 DIPLOMA-INTERNSHIP WORK

05 MISCELLANEOUS

01 AGRO-ENHANCE CENTER

In sem 5 the studio was about the institute we had to design the institute and we were free to decide the topic of the design / project. We had to justify the need for the project and problem and its solution i selected to design an institute for the farmers as near the site there were small villages and all those villages income came from farming. But the farmers there were less exposed to the modern techniques and equipments and they also faced problem transporting and selling their products so the project agro-enhanced focused on these problems of farmers

AGRO-ENHANCE CENTER: An Institute Based On The Learnings Of The Farmers And Enhance Their Skills. The Institute Is Place Where Farmers Of Small Villages Can Learn The Modern Technologies Related To Farming And Fertilizing The Seeds And It Also Provides The Platform For The Farmers To Showcase There Skills And Also To Sell Their Products. Institute Also Provides The Financial Supports To The Farmers

AMBA KHODRA BILIDOJ DUMPADA KAGJAR BADKUWA JHABUA CITY DHARMAPURI CHAROLIPADA

Jhabua is the district mainly consist majority of the Bhills tribe. And the majority of tribals are depend on the agriculture weather in agriculture cultivations or as agriculture labour’s.

➢ The solution can be adopting the drip irrigation and other means of increasing water use efficient other can be the improved management of water resources

ISSUES FACED BY THE COMMUNITY

➢ As it was seen in the community study that all their major source of income is through farming , hunting and trading those good They also faces major issues their like water irrigation, soil irrigation, etc. as they faces many problems on daily basis work most of the time they don’t know the solution

➢ Intensive irrigation can lead to a rise in the water table, siphoning salt into the soil and the roots of plants affecting their growth .

➢ The over use of groundwater can combine with climate change – induced sea-level rise to cause salt water to penetrate coastal ground water aquifers This can damage crops and their yields and affects drinking water supplies also

➢ In many places the ability of soil to store and filter water is waning making it harder to grow crops and raise livestock . Change in weather caused by climate can accelerate land degradation .

➢ So the main focus of the programme is to make them aware about these water related problems their solutions to train them and on actual field about water irrigation and land issues, the can also learn new techniques about farming, and technologies for their betterment This can help them provide with good quality of corps and can help them learn about the water treatments can have easy access to treated water and land.

➢ Functions like work shop are their to held

and exhibit their work or

through those functions has open farmland for the parcticles and laboratories for the testing and treatments

INTAKE STUDY

THE TOTAL POPULATION OF THE JHABUA DISTRICT : 1025048

seminars
skills
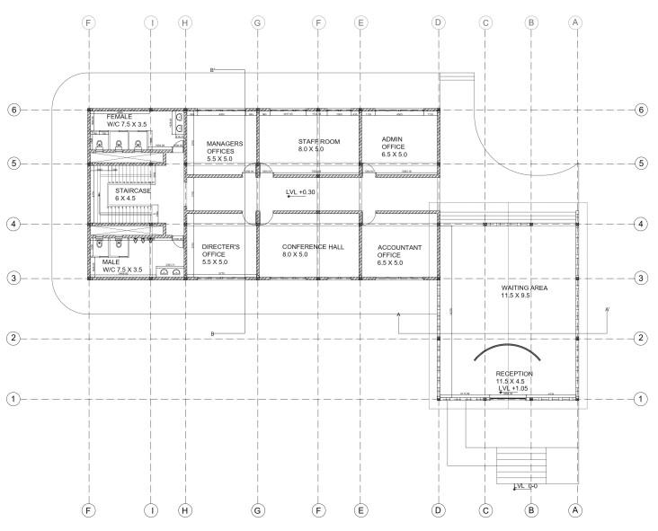
AND THE RATIO OF FARMERS IS 26.3% IS OF FARMERS RATIO sr.No Function NO.of person SQ.MT 1 Administration area 330 2 Reception 1 15 3 Waiting 15 35 4 Directors office 2 30 5 Managers office 2 220 6 HR department 7 30 7 NGO office 5 25 8 Purchase office 3 15 9 DATA room 2 10 10 Maintance office 3 15 11 Awareness centre 3 40 12 Work room/staitionary 1 10 13 Storage 10 14 Conference hall 15 45 15 Toilet 9 30 Educational area 1365 1 Staff room 12 50 2 Trainning center-landform 30 90 3 Training center- Agricult 30 95 4 Farm Lands 30 170 5 Lab- soil testing 30 70 6 Lab- water testing 30 70 7 Lab- Agriculture testing 30 65 8 Lab- seed testing 30 65 9 Workshop and Exhibition 55 50 10 classroom 30 55 11 Technology store Area 45 12 Toilets 40 Informal spaces 290 sq.mt 1 Canteen 30 80 2 Garden / Amphetheater 35 250 TOTAL 1985

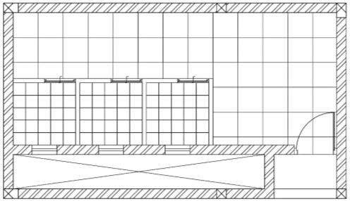
FUNCTIONS:

1. ENTRANCE PLAZA

2. RECEPTION/WAITING 3. OFFICIES 4. WORKSHOPS

5. CLASSROOM/TRAINING ROOM/EQUPMENT ROOM 6. CANTEEN 7. EXHIBITION 8. CENTRAL COURTYARD

FARMLANDS

9.
10.
11.
STORAGE
12. PARKING
10 11 12
OPEN LANDS
WATER
FOR FARMLANDS
1 2 3 4 5 6 7 8 9

CENTRAL COURTYARD

CANTEEN

RECEPTION / WAITING

SECTION A-A’ SECTION B-B’
ELEVATION VIEWS
WORKSHOP
CONFERENCE HALL OFFICE CENTRAL COURTYARD WORKSHOP

02 WORKING INSTITUTE

03 HOUSING CHANDIGARH

In Semester 7 The Studio Was About To Design The Housing. The Site Was In Chandigarh. We Had To Design Apartments For The HIG, MIG, LOW Income Families. As The Site Was Located In The Outer Sector Of The Chandigarh Sector 53 Was The Site Where Government Had Already Decided To Propose Housing So Following The Guidelines Of That Site We Were To Design Appartments

The topography map helped us to understand the different elevation foints of the site. Combining topography map with hydrology helped to identify the flow of water and the areas where the water gets stagnant due to lower elevation points. During monsoon, the areas in the lowest elevation where water gets drained and is collected creates unwanted vegetation.

Considering these are the spaces for the circulation on site of the housing

These as the living and the gathering spaces in the housing site

Considering these as the parking spaces or other open spaces in the site

The wind direction in chandigarh for summers as well monsoon is SE -NW and the wind direction in winter is NW to SE. The winter and summer wind is not desirable but monsoon wind is very much desirable due to humidity in this period .The blocks may be designed in such as fashion to allow SE-NW wind direction

Grid derive from the understanding the complex structure of the city and every sector that are coming under the city each sector has the complex grid pattern and is design in the same manner every sector has the residence area commercial area institutions and open spaces or gardens

Tower cluster
Unit 2 units Single Tower Unit
Cluster formation
1.
2.
3.
4.
5.
SITE LAYOUT : SCALE : 1:500 TOTAL BUILTUP AREA : 13500 SQMT2 1 2 3 4 5
3BHK CLUSTER 2BHK CLUSTER 1BHK CLUSTER CLUB HOUSE CENTRAL GARDEN
1.
2.
3.
4.
5.
6.
7.
8.
SECTION A-A’ FOYER LIVING ROOM KITCHEN DINNING AREA BEDROOM 1 MASTER BEDROOM BALCONY/ UTILITY
BEDROOM 2 3BHK UNIT PLAN
3BHK FRONT ELEVATION TOWER PLAN 2 1 3 4 5 6 8 7
SECTION B-B’
SECTION A-A’ SECTION B-B’ 2BHK FRONT ELEVATION 1 2 3 4 5 6 7 1. FOYER 2. LIVING ROOM 3. KITCHEN 4. DINNING 5. BALCONY/UTILITY 6. BEDROOM 7. MASTER BEDROOM 2BHK UNIT PLAN TOWER PLAN
1 2 3 4 5 6 1. FOYER 2. LIVING ROOM 3. KITCHEN 4. DINNING AREA 5. BALCONY / UTILITY 6. BEDROOM 1BHK UNIT DESIGN TOWER PLAN
A-A’
SECTION
1BHK FRONT ELEVATION
SECTION B-B’

04 DIPLOMA-INTERNSHIP WORKS

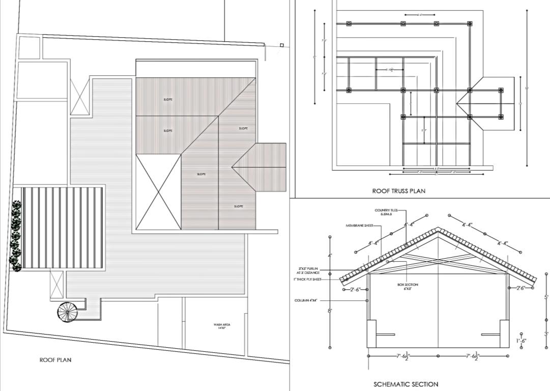
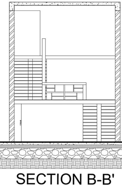
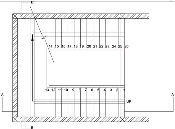
Farmhouse Design_1

Farmhouse Design_2

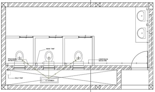
Interior designing-detailing

05 MISCELLANEOUS

Miscellaneous: Models (Abstract/ 3d Practice )

Simplicity Is The Ultimate Sophistication

Thank You

Turn static files into dynamic content formats.

Create a flipbook
Issuu converts static files into: digital portfolios, online yearbooks, online catalogs, digital photo albums and more. Sign up and create your flipbook.