
1 minute read
TINY HOME 01
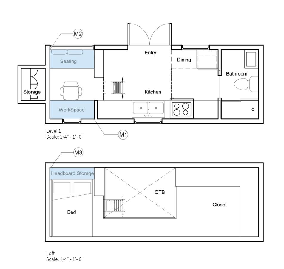
The objective of this project is to design a piece of millwork that is functional, yet aesthetically pleasing based on the style and needs of the client. The creation of the floor plan was a collaborative process, given the dimensions and frame of the tiny home. I am especially proud of my contribution of the window seat millwork labled M2 on the plan.
The client is an independent fashion designer, who values ethically sourced materials, and designs, which bring people back to nature. She requested a studio space which provides storage, table space, and comfort. Plenty of storage space, and a place to store her large collection of books, as well as areas for different projects, were required to multi-task and prevent clutter.
Advertisement
Project Type: Residential
Completed: Fall 2022
Group Project: 3 members
Software: Revit, Enscape
Millwork Design



Cottagecore is an aesthetic that celebrates simple living, particularly in the countryside. It uses natural and ethically sourced materials, and encourages a lifestyle rooted in traditional skills. It takes a modern approach through the use of modern forms and hardware, as well as incorporating technology into the space.
cottagecore inspiration images





