ENTREGA FINAL PROYECTOS 6

Page 1

PROYECTO URBANO Y ARQUITECTÓNICO SOSTENIBLE Barrio Calle Nueva – Medellín F-ARQ 24 Entrega final 2022-2 F-ARQ 24

Integrantes

F-ARQ 24
F-ARQ 24
ESQUEMAS ESPACIO PÚBLICO
F-ARQ 24
ESQUEMAS ESPACIO PÚBLICO
F-ARQ 24
ESQUEMAS ESPACIO PÚBLICO
F-ARQ 24
ESQUEMAS ESPACIO PÚBLICO
F-ARQ 24 ESQUEMAS
ESPACIO PÚBLICO

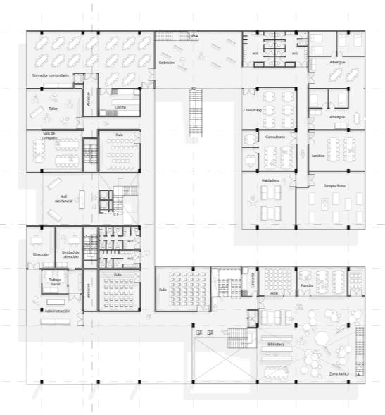
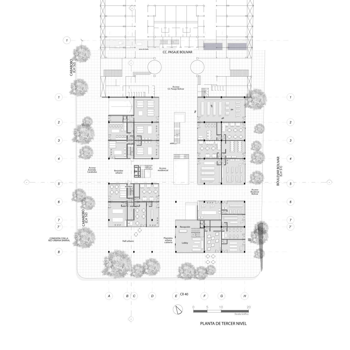
CENTRO LUDICO PEDAGOGICO y COMUNITARIO

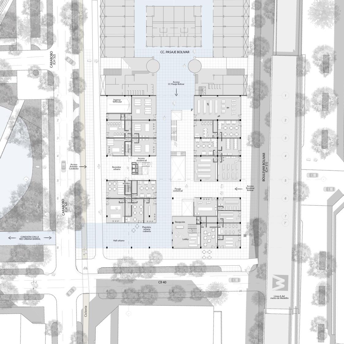
Este es un proyecto de vivienda sostenible ubicado entre los ejes comerciales de la avenida Carabobo al occidente, el Boulevard Bolívar al oriente y conectado al pasaje comercial del CC. Pasaje Bolívar al costado norte beneficiándose de la densidad comercial de la zona conectado a la red urbana barrial siendo parte del plan de renovación urbana del barrio Calle Nueva de la ciudad de Medellín

F-ARQ 24
ESQUEMAS ESPACIO PÚBLICO

Este proyecto busca principalmente:

• Elevar el índice residencial del barrio Calle Nueva por medio de 88 apartamentos de interés social.

• Brindarle al barrio ciertos servicios comunitarios y sociales en relación como complemento pedagógico y educativo al Centro de educación media ubicado al otro costado del parque

• Aprovecha su ubicación y brinda permeabilidad y conectividad en el zócalo urbano comercial con el fin de intensificar la relación económica que tiene el barrio por medio del comercio automotriz

9 20.
Barrio con protección a moradores y su derecho a la permanencia
10 20.
Barrio con protección a moradores y su derecho a la permanencia
11 20.
Barrio con protección a moradores y su derecho a la permanencia
12 20.
Barrio con protección a moradores y su derecho a la permanencia
13 20.
Barrio con protección a moradores y su derecho a la permanencia
20.
Barrio con protección a moradores y su derecho a la permanencia
15 20.
Barrio con protección a moradores y su derecho a la permanencia
16 20. Barrio
con protección a moradores y su derecho a la permanencia
17 20.
Barrio con protección a moradores y su derecho a la permanencia

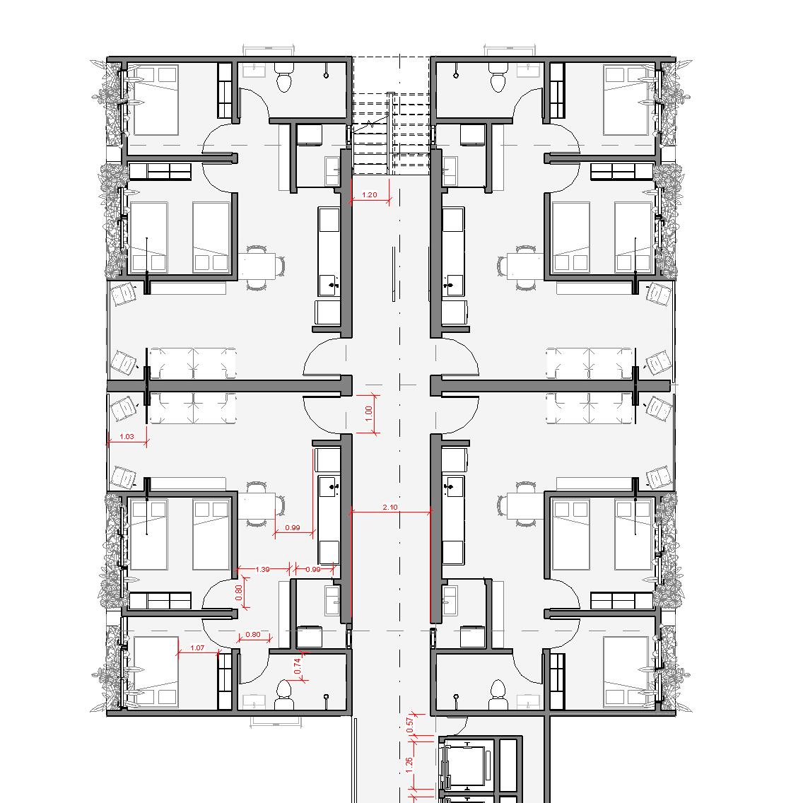
Cocina

m2

Terraza Terraza sala Living /estudio Habitación Baño 3 5m 2

18
Publicos
redes
dispositivos de
consumo
Espacios
y edificios con
y
bajo
TIPO A TIPO B Baño
Cocina
sala Habitación Habitación lavado 50

Gracias a la morfología de edificio, el sistema de iluminación pasiva es eficiente mediante la posibilidad de prolongadas fachadas de vidrio que permite la penetración de luz natural del día.

La distribución interna de los módulos de apartamentos están diseñados y orientados con el fin de recibir la iluminación del sol todo el día, los apartamentos orientado dirección las palmas recibirían los rayo del sol en horas de la mañana, por otro lado, la facha occidental recibirá la luz de hora de la tarde.

19 10. Iluminación y
los
ventilación natural en todos
espacios | |

y ventilación natural en todos los espacios

El sistema de iluminación y ventilación trabajan de forma distinta en el edificio, por un lado la torre de apartamentos se ventila por medio de la ventilación cruzada que es recibida del costado noroeste del los balcones ubicados en la los pasillos de la torre. Por otro lado el sistema de ventilación de la plataforma es por medio del aire que ingresa desde el los pisos inferiores (sótano) y liberan el aire caliente por medio de vacíos verticales de la edificación.

20 10.
Iluminación

11. Control pasivo de la radiación solar directa

El proyecto de manera estratégica se beneficia de la cobertura vegetal que la rodea en todas sus fachadas debido a esta capa biótica de protección solar y térmica, es proyecto no adiciona una pantalla artificial.

Esta misma característica se busca llevar hasta los pisos superiores, cada apartamento en fachada posee una cobertura vegetal que conforma un jardín horizontal en las fachadas longitudinal de la torre.

21
22 11. Control pasivo de la radiación solar directa ECW-50 de Exlabesa

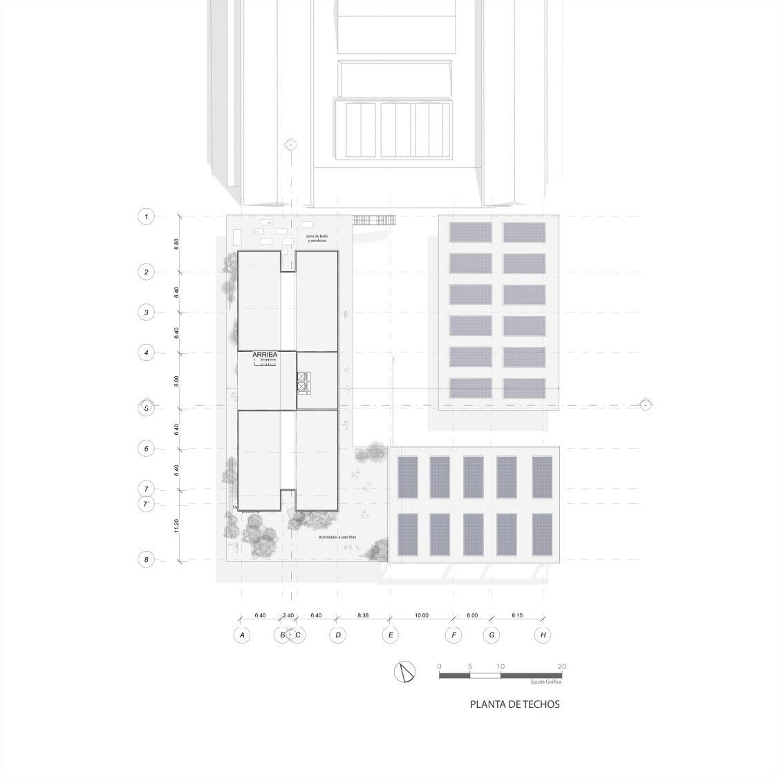
879 m2 de paneles solares en cubiertas

El proyecto busca mediante la captación,, recolección y almacenamiento de energías renovables como la energía solar ubicando en las cubiertas de la plataforma series de paneles solares que cubran el 80% de la cubierta total aprovechando su relación cenital.

Se ubican dos cuartos técnicos y almacén de baterías solares.

23 12.
Generación y consumo de energias renovables

Espacios públicos y edificios con sistema de captación, tratamiento y reutilización de aguas lluvias

Se ubican dos cuartos técnicos y almacén de baterías solares.

La pendiente de la cubierta de la torre cumple con la función de captador pluvial el cual por medio de unos tanques se almacena el agua y la fuerza de gravedad distribuye este servicio por todo el edificio

24
13,

Espacios públicos y edificos con materiales sostenibles

Concreto: estructura

Ladrillo sin revocar: Cerramiento (reciclado)

Drywall: Cerramiento interno (yeso reciclado)

15,

Aprovechamientos

• 50 m de altura

• 88 viviendas residenciales

• 11 pisos de vivienda

• 1 piso de dotación y servicio comunitario

• Zócalo comercial

Las parcelas donde se proyecta construir está edificación actualmente son de carácter netamente comerciales, comercio automotriz para ser exactos, se proyecta permitirles su estancia en el lugar haciendo uso de los locales comerciales propuestos

26 16,
Edificios de altura moderada pero con altos aprovechamientos
m2
1.310

TIPO A TIPO B

Drywall

lLos modulos residenciales permiten la flexibildad del espacioMediante las futuras modificaciones a relizar, esto es permitido a la flexibilidad y facilidad de desmantelamiento de estos 3 muros subrayados en drywall

Zona social cada 3 niveles en la torre

Eespacios públicos urbano arquitectónicos

Ubicados en la primera planta y el nivel 3

27 17, Espacios públicos y edificios flexibles

El proyecto busca desde los espacios privados la accesivilidad de personas bajo movilidad reducida mediante la modulación de ingresos minimos a 1m, de esta forma se le permite a l a accesibilidad a la toda población.

28 18, Espacios
públicos y edificios ergónomicos

Junta de dilatación

Demostración de muros pantalla

El sistema estructural combinado de pórticos y muros pantalla en ambas direcciones, le permiten al proyecto soportar momentos en ambos sentidos durante un temblor, aumentando en gran medida la estabilidad de la estructura.

29 19, Edificios con estructura sismoresistentes

Las parcelas donde se proyecta construir está edificación actualmente son de carácter netamente comerciales, comercio automotriz para ser exactos, se proyecta permitirles su estancia en el lugar haciendo uso de los locales comerciales propuestos

30 20,Protección a moradores y su derecho a ala permanencia

edificios con acessibilidad universal

Este proyecto garantiza la accesibilidad universal mediante la continuidad de nivel urbano del primer piso junto a 3 núcleos de ascensores que generan acceso a todos los espacios del edificio acompañado de una red directa de distribución espacial para facilitar su recorrido con circulaciones consideradas (no menores a un metro) para el tránsito de personas con movilidad reducida..

31 22, Espacios y

Turn static files into dynamic content formats.

Create a flipbook
Issuu converts static files into: digital portfolios, online yearbooks, online catalogs, digital photo albums and more. Sign up and create your flipbook.