

A highly motivated architect Strives for excellence, to work in an environment that will enhance my knowledge and career, seeking challenging assignments and responsibility with an opportunity for growth and career advancement.
Personal information
Birth Date : 26/9/1999
Nationality : Jordanian Nationality
Education
Bachelor degree of architectural engineering (2017 -2022)
University of Petra
GPA : 3.10 (very good)
Personal Skills
Creativity and problem-solving
Critical thinking and hard working
Time management
Communication Skills
Work Experience
- Junior Architect (march 2023 - Present)
Native Designers - Amman, Jordan
Concept Studies and Sketching.
Architectural - interior design and development
Technical drawings and details
Architectural rendering
Graphic Designing for (posters, portfolios, diagram)
Architectural translation for articles.
- Trainee (July - Oct 2021 )
Cube Architects - Amman, Jordan
Concept Studies and Sketching.
Architectural rendering
Architectural - interior design and development
Awards - Tamayouz Excellence Award - Top 100 Graduation project
- World Architecture Community Award (WA) - Winner

INSIDE-OUT MUSEUM PRIVATE VILLA
Human instinct is to admire everything that is beautiful, and everything has its own beauty, its definition is limitless, deep, and has endless horizons. We can find beauty in nature

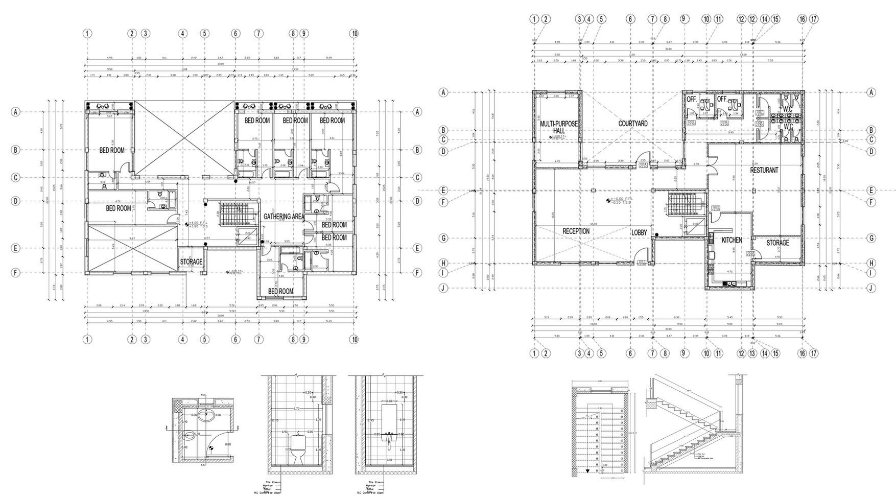
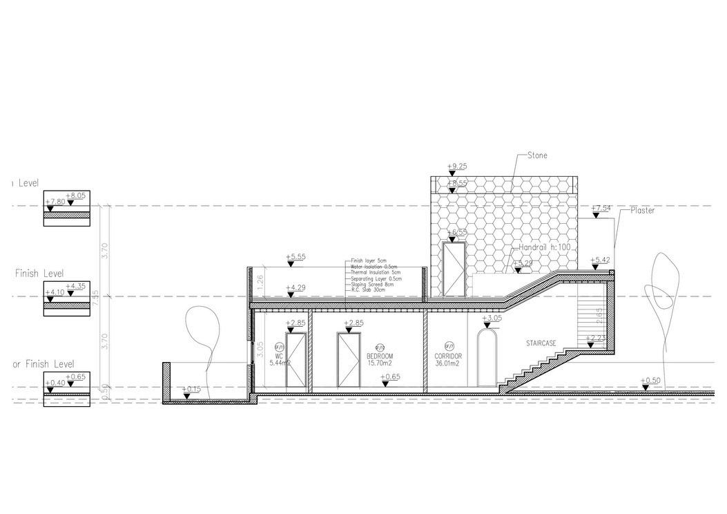
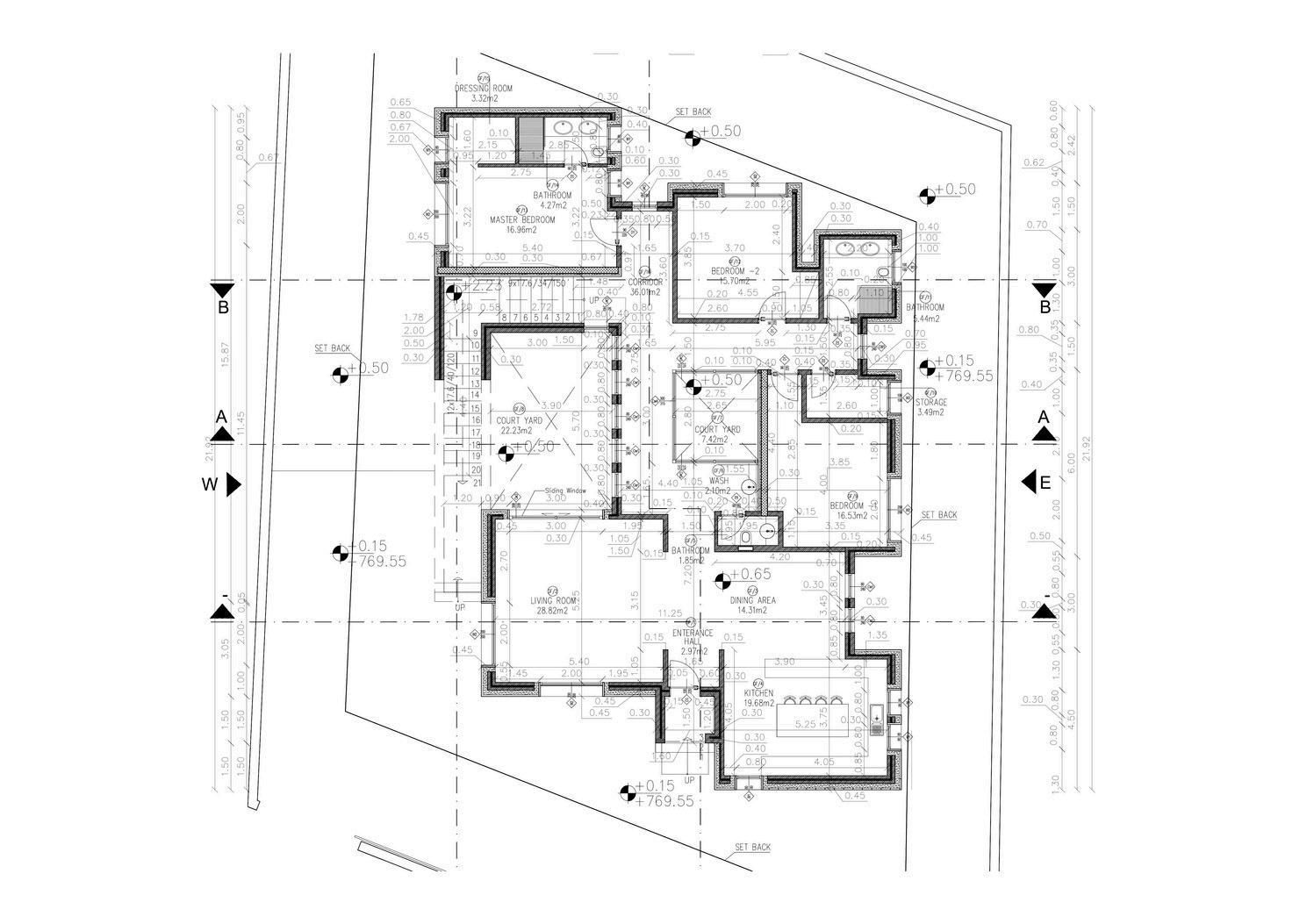
This modern villa in Dabouq, Amman, spans a basement, ground floor, first floor, and an added roof level

PRIVATE CHALETS
This modern Dead Sea chalet features open spaces and large glass facades, blending seamlessly with its surroundings.


COLLICTED WORK
Collected work is a collection of the most prominent designs and art work that were not mentioned before and divided into categories.


Human instinct is to admire everything that is beautiful, and everything has its own beauty, its definition is limitless, deep, and has endless horizons We can find beauty in nature (plants, animals, oceans, sky, stars ...etc.). And we can find beauty in things we are not expected to find beauty in it It all depends on the eye of the beholder One of these types is connected to humans
In this project, the misconception about human’s beauty definition will be corrected, receiving a hidden message in each stage


"There’s a crack in everything, that’s how the light gets in"
the statement is attributed to Japanese Philosophy (wabi-sabi) which appreciates the beauty of imperfection the main source of it is a tale that talks about a young man who was assigned to work on a garden, he cleaned it until it became perfect, but something strange happened, the young man shook a cherry blossom tree (Sakura) to let a few petals float on the ground, In his eyes, the garden became perfect when it was imperfect, showing that sometimes a little imperfection wont hurt us











A modern villa in Dabouq, Amman, spans a basement, ground floor, first floor, and an added roof level Designed with privacy in mind, it uses clean lines and selective fenestration to ensure seclusion while bringing in natural light. The new roof floor seamlessly continues the villa's modern aesthetic, offering a private terrace and green space with panoramic views, fully integrated with the villa’s existing architectural language






A 3D diagram which shows the hierarchy of the ground, first, roof floor, showing the relation between them all.





This modern Dead Sea chalet features open spaces and large glass facades, blending seamlessly with its surroundings Minimalist lines and expansive windows offer stunning sea views, while shaded terraces create cool, relaxing outdoor spaces Natural materials and a soft color palette inside reflect the tranquility of the Dead Sea.











Collected work is a collection of the most prominent designs and art work that were not mentioned before and divided into categories
Photoshop1.
Rendering 2
Working drawings 3
Freehand - Sketches 4
Photographing 5














































