Edificio mixto

Page 1

E d i f i c i o m i x t o U N V E R S D A D M A R I A N O G A L V E Z F A C U L T A D D E A R Q U I T E C T U R A D I S E Ñ O A R Q U I T E C T O N I C O 6 P R O Y E C T O E D F C I O M I X T O / A T S A R G U S J O S S E L N E A N D R E A C H A C Ó N M O N Z Ó N V C T O R A Y O L A N D A C V L M A R R O Q U Í N linkrendersfinales
CACIÓN SE La Secretaria TEXACO GASOLINERA DILAB LABORATORIO GARAL S A CLÍNICA DE
Zona 10 - Diagonal 6 y 10 calle zona 10 - Terreno de estacionamiento vehicular frente a gasolinera Texaco y frente a paso desnivel Dolores Bedoya de Molina
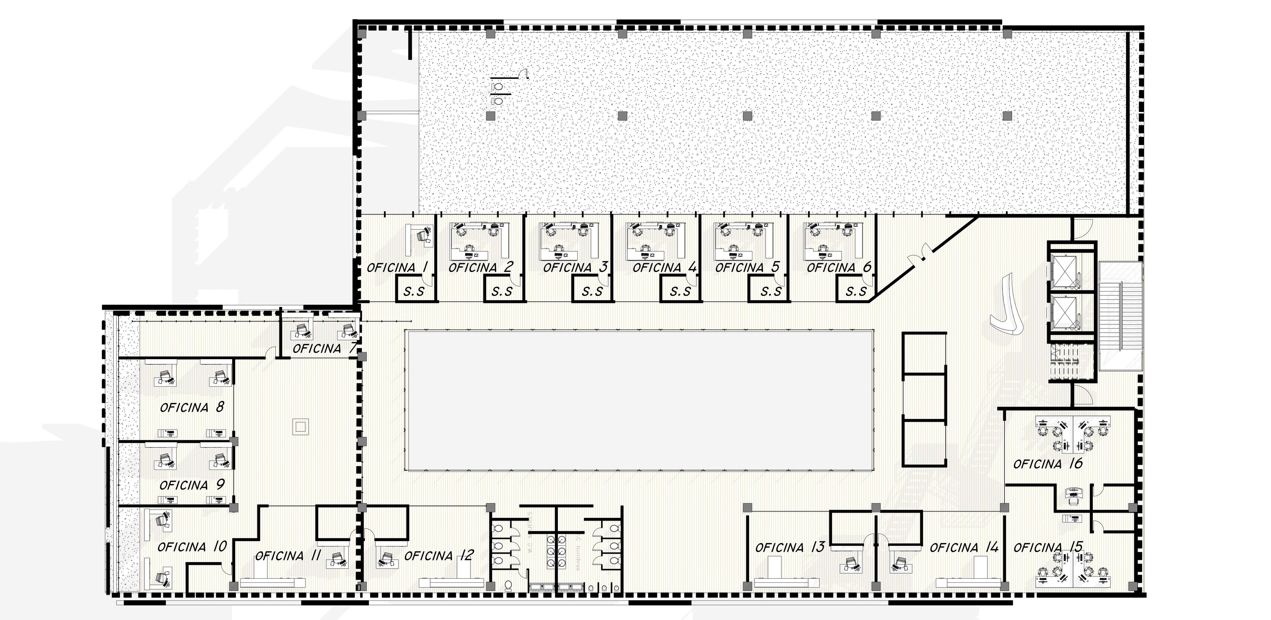
DISTR PLANTA NIVEL 2 / COMERCIO ESC 1/200 PLANTA NIVEL 1 / COMERCIO ESC 1/200 PLANTA DE CONJUNTO ÁREA RENTABLE ÁREA C RCULACIÓN 75% 15% LOCALES COMERCIALES ÁREA SERVICIO 10% ÁREA RENTABLE ÁREA C RCULACIÓN 75% 15% LOCALES COMERCIALES ÁREA SERVICIO 10% ÁREA RENTABLE ÁREA CIRCULAC ÓN 65% 25% SOTANOS ÁREA SERVICIO 10% 6 T A A V E

SC 1/200

P
P
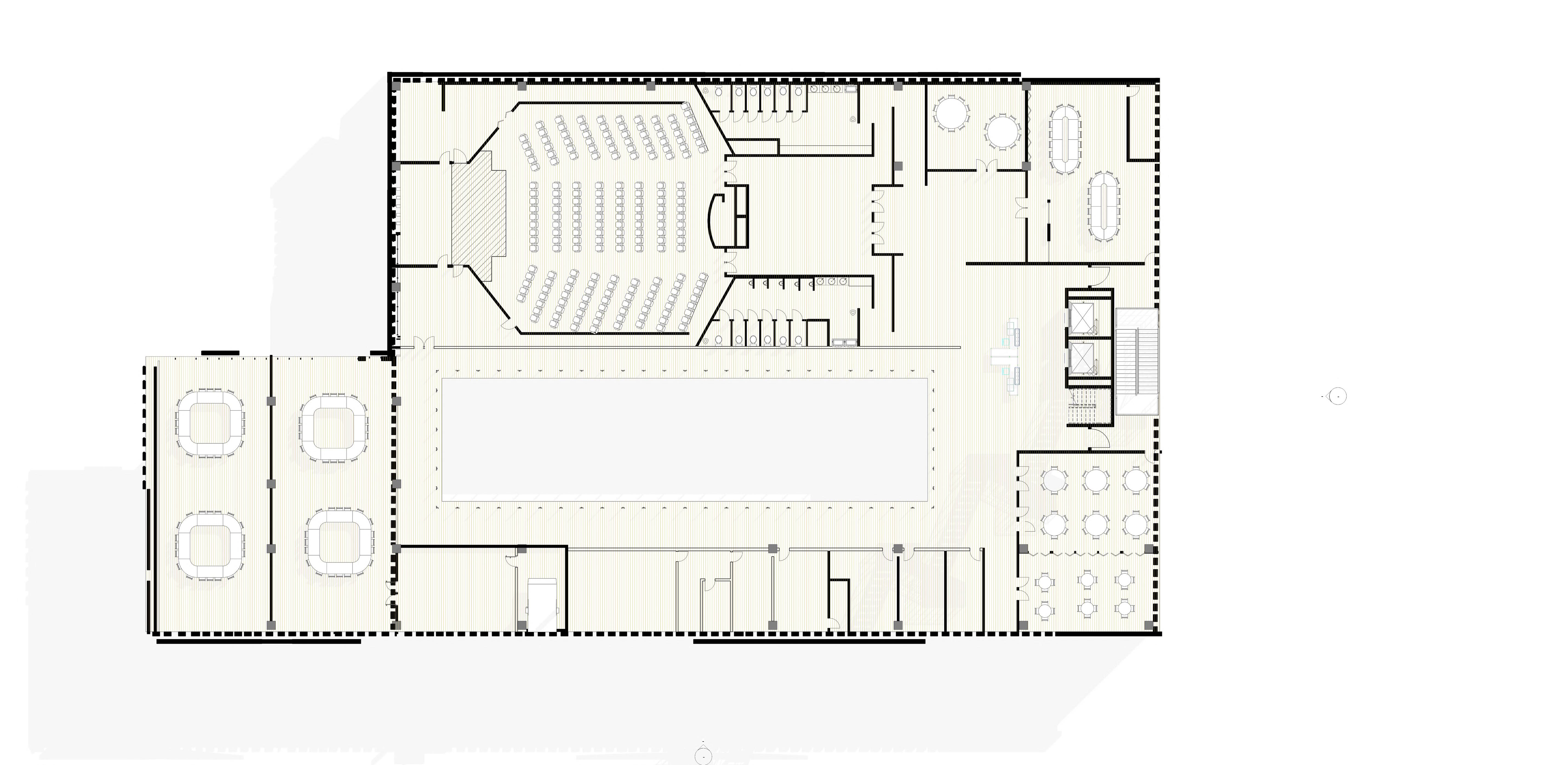
G MNASIO CENTRO PIRNCIPAL MULT MED A S S DAMAS SALON CAMERINOS CAMERINOS PLATAFORMA CENTRO DE CONTROL CENTRO MONITOREO GRADAS EMERGENCIA VESTIBULO SALON A SALON B SALON C BOD COCINA ND BODEGAS S S SERV C O /LOCKERS COCINA/ ELEVADOR CARGA BODEGAS GENERALES SERV C O ADM OF CENTRAL RECEPC ON COMEDOR/SALON COMEDOR/SALON ÁREA RENTABLE ÁREA C RCULACIÓN 75% 15% CENTRO DE CONVENCIONES ÁREA SERVICIO 10% ÁREA RENTABLE ÁREA C RCULACIÓN 75% 10% OFICINAS ÁREA SERVICIO 5% ÁREA RENTABLE ÁREA C RCULAC ÓN 90% 5% TERRAZA ÁREA SERVICIO 5% PANELES SOLARES SISTEMA CONTRAINCENDIOS USO DE CHORROS AHORRADORES DE AGUA EN INSTALACIONES INSTALACIONES ESPECIALES
- 15 SC 1/200

ELEVACIÓN NORTE

UBICACIÓN

ESC 1/200

ELEVACIÓN SUR

ELEVACIÓN OESTE

ESC 1/200

SECCIÓN TRANSVERSAL

ESC 1/200

Zona 10 - Diagonal 6 y 10 calle zona 10 - Terreno de estacionamiento vehicular frente a gasolinera Texaco y frente a paso desnivel Dolores Bedoya de Molina

ANALOGIADEDISEÑO

Este proyecto tiene la función de dar la máxima comodidad a los residentes y personal designado, con las áreas adecuadas, con la mejor calidad, promoviendo un diseño arquitectónico acorde y regulado por la municipalidad de Guatemala, fusionada con la propuesta del uso de instalaciones pertinentes para reducir los costos de energía para una arquitectura agradable al medio ambiente

ESC 1/200

SECCIÓN LONGITUDINAL

ESC 1/200

ÁREA DE TERRAZA

ÁREA DE OFICINAS

ÁREA DE CONVENCIONES

ÁREA DE COMERCIO

ÁREA DE SOTANOS

distribución de ambientes

SO NE N
ANÁLISIS DE SOLEAMIENTO Y VIENTOS PREDOMINANATES SOBRE TERRENO:
IS

detalle de union en vigas a-1

detalle de union en vigas y muro cortina solar

detalle general armado

https://i pinimg com/564x/f1/34/94/f13494f591ae230bd70785a825e064ca jpg
60% 8% 74% Materiales eco amigables Recubrimientos metálicos amigables Estructura contaminante DETALLE E MURO DE CONTENCIÓN EN VOLADIZO

Esquema de color para la marca

Esquema de color para interiores

Refleja la identidad y personalidad de nuestra marca

En cada ambiente interior se busco implementar meteriales modernos, uso de luz fria direca he indirecta, para crear un aspecto iluminado

#34567 #ef4efe9 #beae93 #FAF9F7 #000000 #E7E6E2 #8C999B #FAF9F7
PANEL METALICO SUSTENTABLE E S U N M O D O D E C O N C E B I R E L D I S E Ñ O A R Q U I T E C T Ó N I C O D E M A N E R A S O S T E N I B L E , B U S C A N D O O P T I M I Z A R R E C U R S O S N A T U R A L E S Y S I S T E M A S D E L A E D I F I C A C I Ó N , D E M A N E R A Q U E M I N I M I Z A E L I M P A C T O A M B I E N T A L D E L O S E D I F I C I O S S O B R E E L M E D I O A M B I E N T E Y S U S H A B I T A N T E S A R Q U I T E C T U R A Materiales implementados en exteriores/interiores PANEL METALICO CURVO CONCRETO PANEL YESO MARMOL BLANCO MURO CORTINA PANEL FENOLICO MALLA METALICA MUROS VERDES CUBIERTA VERDE

Turn static files into dynamic content formats.

Create a flipbook
Issuu converts static files into: digital portfolios, online yearbooks, online catalogs, digital photo albums and more. Sign up and create your flipbook.