

![]()



Kaplan Birnham Woods
- Spring, TX
Del Webb Oasis
- Winter Garden, FL
Del Webb Bexley
- Land O' Lakes, FL
Del Webb Sun City Texas
- Georgetown, TX
Del Webb Charleston at Nexton
- Summerville, SC
Del Webb Sunbridge
- St. Cloud, FL
Luxe Garage Suites Clubhouse
- The Woodlands, Texas
Chambers Creek Ranch Clubhouse
- Willis, TX
Botanica Oak Hills II
- San Antonio, TX
Botanica Dominion
- San Antonio, TX
Botanica Fredericksburg
- Fredericksburg, TX
Botanica Haven
- San Antonio, TX
ELDECO Aurum Condominiums
- New Delhi, India
The Resort Noida
- Noida, India
Schlumberger Campus
- Sugar Land, TX
SOHNA Residences
- Haryana, India
Walt Disney World Golf Club
- Lake Buena Vista, FL
HP Visitors Center
- Houston, TX
ATS Golf Meadows
- Chandigarh, India
Villa Nova Luxury Condominiums
- Gurgaon, India
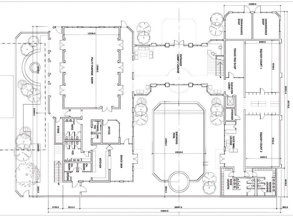
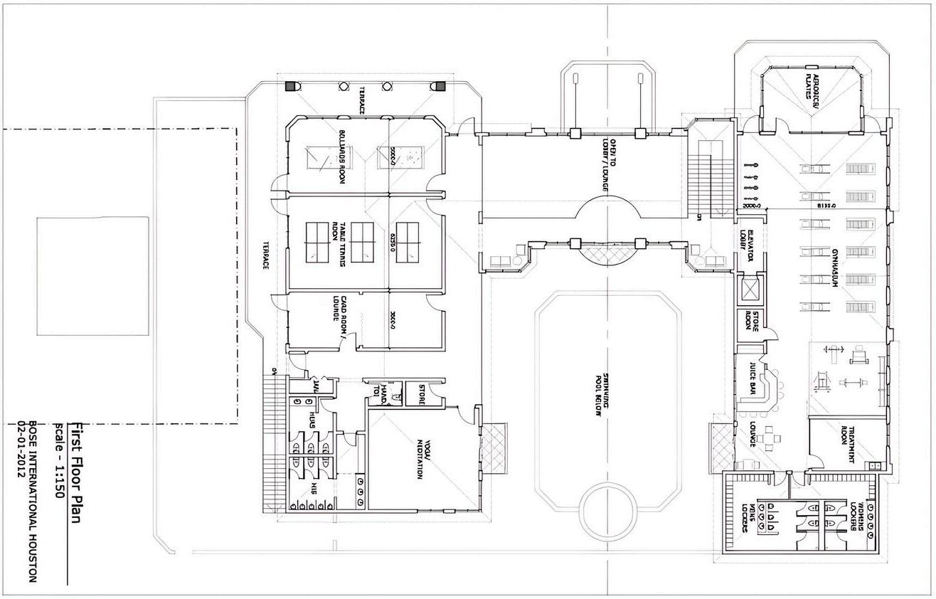
KAUST Recreation Centers
- Thuwal, Saudi Arabia


MANAGING PRINCIPAL
EDUCATION
Bachelor of Science, Architecture
Georgia Institute of Technology
CERTIFICATIONS
Registered Architect - Texas #10294
AFFILIATIONS
American Institute of Architects
LEED Accredited Professional
NCARB Member
Urban Land Institute
International Council of Shopping Centers
Warren brings more than 45 years of extensive architectural and interior design experience to the table His role involves overseeing senior design direction and managing various projects like high-rise buildings, corporate spaces, residences, mixed-use developments, and hospitality venues. Warren actively participates in the design stages from initial concepts to detailed development. Additionally, he is hands-on in managing project designers and interns daily. His expertise extends to designing and constructing large-scale urban and mixeduse town center projects.

PRINCIPAL
EDUCATION
Bachelor of Science, Architecture Central Colleges of the Philippines
CERTIFICATIONS
Associate American Institute of Architects
PROFICIENCIES
AutoCAD | Revit
Adobe Suite | Microsoft Office
SketchUp | Lumion
Enscape
With more than 35 years of experience within the architecture and design industry, Michael is involved in overseeing all project phases from design to construction Key responsibilities include coordinating with clients, consultants, and contractors, providing leadership and mentorship to junior staff, and preparing design and construction documents Prepares detailed preliminary and construction documents, ensuring clarity and accuracy Conducts site visits to gather field measurements and data, creating precise as-built drawings for comprehensive project documentation


This amenity center and leasing office creates a focal point for this Buildfor-Rent community in Spring, Texas. The facility includes a “great room” with kitchen and lounge spaces, a coworking office, fitness center, outdoor workout space, outdoor movie venue and pool deck with firepit.





The Oasis clubhouse, part of the Pulte/Del Webb 55+ communities in Orlando, showcases the "saltbox" style with spacious interiors, high ceilings, wooden finishes, and large loggias that embrace seasonal breezes and sunlight Amenities include a large pool, pickleball, tennis, and bocce courts





The Del Webb Bexley development offers 55+ homes and a large amenity center with facilities for all ages, including a ballroom, fitness center, arts and crafts rooms, and recreational areas like a pool and sports courts, all overlooking a 10-acre lake A leasing/sales office is also available in the smaller buildings



Georgetown, TX



This Hill Country project served as a second amenity center for one of the oldest communities in the Del Webb portfolio The facility was specifically designed with a focus on the arts, featuring a new stage and multipurpose room for residents' theater productions, dedicated art rooms, separate craft rooms, and, of course, a cozy niche pool.
Summerville, SC



The campus features emblematic palm trees and traditional central Carolina architecture with local metal roofs and southern porches. Outdoor amenities include a pool, tennis and pickleball courts, and a bocce ball area. Inside, there are spaces for crafts, cards, billiards, and fitness, centered around a spacious living room with beautiful wood flooring




Sunbridge, part of Pulte/Del Webb’s Florida collection near Orlando, is one of the largest facilities for residents aged 55 and over. It offers a variety of amenities, including a fitness center, community room, bar, and craft rooms. Outdoor features include a main pool, children's pool, tennis and pickleball courts, bocce, shuffleboard, a putting green, an outdoor amphitheater, and a community garden








The demand for warehouse suites is skyrocketing In response, Luxes Garage Suites aims to take advantage of this trend by providing space for classic car storage, mancaves, and premium storage solutions. Additionally, the campus features a clubhouse designed for group activities, complete with a game room, lounge, bar, and co-working/conference area.




The Phase One amenity near Willis, Texas, serves as a "Welcome Center" for new residents and will later connect to a larger facility under construction It features tennis and pickleball courts, swimming pools, and a putting green Once completed, it will link to a new golf clubhouse through breezeways.






The quadplex community in north-central San Antonio will be built on a steep site with a central creek. Its contemporary two-story clubhouse overlooks the pool deck and features modern design with biophilic principles. The spacious lobby and building layout maximize natural light Amenities will include coworking spaces, a large living room and bar, a conference center, and a dining area






The Dominion is an upscale community in northwest San Antonio, featuring spacious single-family homes and medium-density multifamily housing The clubhouse for the quadplex project includes trellised plazas, swimming pools, and pickleball courts, designed with a contemporary, biophilic approach Amenities include a tall lobby for natural light, coworking spaces, a large living room with a bar, a conference center, and a dining area, with a rooftop deck offering scenic views of the pool deck.
Fredericksburg, TX


Fredericksburg is a historic Texas town known for its charm and is surrounded by horse ranches, wineries, and live music It features a vibrant 55+ community with walkable homes and a relaxed atmosphere, including a clubhouse with lounges, a pool deck, pickleball courts, gardens, a dog park, and children's play areas.




This amenity center is thoughtfully integrated into a designed "grotto" that harmonizes with the surrounding topography and nearby units
Spanning two stories, it offers intimate views of the pool deck, fire pit, trellised summer kitchen, and outdoor activity area featuring cabanas
The clubhouse includes a leasing center, a lounge with a kitchen and bar, a spacious fitness room, and a community/conference room.





The project showcases the density of Noida, a growing suburb of New Delhi, over the past 20 years Due to high land prices and the need for underground garages, 32-story towers with small floor plates were built, featuring three luxury units per floor, including duplex/loft options. The limited floor area allows for lush greenery and gardens between towers, with amenities such as a large clubhouse, restaurant, football pitches, and a Hawaiian-style pool deck



This development includes two clubhouses with distinct amenities: the ground level features public spaces like meeting rooms and a kitchen, while the second level has game rooms, offices, and a fitness center. The design provides panoramic views of outdoor facilities, including pools, a fire pit, activity areas, a putting green, and a pavilion





A recent study proposed a newly designed amenity center for the Schlumberger Sugar Land campus, serving as the main meeting and dining hub. It will include an employee cafeteria, catering kitchen, multifunctional rooms, a fitness center with views of a reflecting pond, game rooms, a board room, a yoga lab, and various indoor lounge areas






The clubhouse design maximizes space in a highdensity housing area, winding around green spaces, ponds, and outdoor amenities like pools and tennis courts. Its fluid, curvilinear shape evokes a nautical feel, centered around a two-story "great room" that connects to a deck and gardens. Other features include a business center, fitness center, and community rooms



A new clubhouse is being built for golf course number 4 in Reedy Creek, featuring a post-modern, open-air design The layout provides a visual journey with driveways and fairway holes, while a trellis casts Mickey Mouse shadows. Inside, the grand hall displays a fresco of Dumbo and Pluto decorations, and the building aligns with the Mickey triple circle logo from the eighteenth green Amenities include a dining area with a catering kitchen, a pro shop, and lower-level lockers and service areas






The Visitor/Welcome Center at HP's northwest Houston campus acts as the main entry point, featuring security check-in and serving as a Pre-function Lobby for nearby conference rooms It includes a spacious lounge showcasing the company's history and a restaurant for employees and visitors to enjoy dining on campus.




The development features single-family and multifamily units along a winding wadi and creek. It includes an 18-hole golf course and clubhouses for golf, tennis, and family pool activities The central clubhouse offers expansive views, dining and lounge areas, club rooms, a business center, and game rooms, with a lower level for cart pick-up and drop-off.





Placed strategically in one quadrant of the densely foliated gardens of this luxury development, the facility becomes both fitness center, welcome center and community house for all visitors and residents. A small pool deck and tennis court create outdoor rooms next to the clubhouse with jungle-like views The small club is focused on dining and multipurpose rooms as each tower has its own club and pool


JDG partnered with local architects to create themed recreational centers for King Abdullah University of Science and Technology near Jeddah, Saudi Arabia. Each center includes a Yacht Club, Island Center, Sports Complex, Golf Clubhouse, Racquetball center, and Water Sports facility They offer diverse sports spaces and amenities, including exhibition areas, multipurpose rooms, dining facilities, a library, sports courts, and women-only locker rooms










281-414-2374
info@johnsondesigngroup-llc com https://www johnsondesigngroup-llc com/