Best Works Portfolio

Page 1

PORTFOLIO JOHNMARK MENDOZA PORTFOLIO JOHNMARK MENDOZA

2021 - 2023

TABLE OF CONTENTS

THE SHIFTING NARRATIVE

CASE STUDY PROJECTS

OTHER CREATIVE WORKS

ENTYPOSI
CURVIS PAVILLION
ABOUT
1 19 25 30 33 37 EREVNA 7
15 BUILDING
13
ME
SPECTARE THEATRES | THE
BRIDGES

ABOUT ME

My name is JohnMark Mendoza and I’ve lived in California all my life. For as long as eight years I’ve loved running. I am a selftaught artist, fellow lego enjoyer, a nonlinear thinker and aspiring architect.

My desire is to utilize architecture to be an extension of the environment, and allowing people to let the space breathe into them, filling them with a sense of wonder.

To create an active background that serves its community, nothing more and nothing less.

HOBBIES

I will dedicate most of my time to anything I work on if I have already set my mind to finish it, whether it be art pieces or research articles. Doing everything to the fullest.

(909)-927-9548

EXPERIENCES

When it comes to experiences and developing my leadership skills, I’ve been to Nicaragua and the Dominican Republic for missionaries and led a project on Ethiopia. I aided in the NOMAS project “building bridges” in 2023 as well.

johnmark2024@gmail.com

1
Mendoza
JohnMark
Ct., Jurupa Valley, California
11878 Amethyst
CONTACT INFO.
2
3 4

WHAT IT MEANS TO RESEARCH

MIT, as a campus, is dedicated to research in regards to the arts, sciences and other fields of intrigue.

A Christian Study Center on such a campus, should speak to that narrative of exploration and adventure.

Hence research through passive observation and active inference.

Thessalonians 5:21

“Prove all things; hold fast that which is good”.

5 EREVNA
6

MEMORIAL DRIVE

The design intentionally uses structure to emphasize the difference between the passive and active spaces within each space.

The introduced light is meant to emphasize said structures, following true to the established contrasting nature of the building.

AMES STREET
7 8
9 10

SPECTARE THEATRES

TO PRECIEVE

The main draw of these theatres or preformance halls is the compositions overall pull into the conventional common space contrasting the contemporary facades, embodying Redlands by stepping back and breathing into it.

Each theatre utilizes a different oppacity, mainly to introduce differing thresholds bringing the phenomal into the tangible.

Each threshold leads into the other with ease, creating smooth motion beginning with a caution breath in, and a relaxing exhalation after.

This is accomplished through the appearance of the human scale and specific materials used.

11
12 DR DR DR DR RR RR RR RR RR RR CAFE COSTUME WKSHP SCENE STOR. SCENE WKSHP LOADING LOBBY LOBBY STUDIO STUDIO PROS. HOUSE STAGE GR GR ADM. ADM. ADM. LB LB TB AL HARRIS AVENUE
13

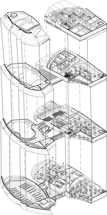
THE SHIFTING

NARRATIVE

New York City is a bustling urban metropolis, creating a space that reflects that life, but also taking inspiration from the shifting landscape as it relates to working and living. A gradient between the two states of mind.

I was tasked with creating a building for journalists and the publishing house.

Another design consideration was to design with more modern ideals in mind, as the site is adjacent to the High Line.

15 16
17
18
AXON MODEL WITH DETAILS FLOOR 1 FLOOR 4
19 LIBRARY LECTURE HALL TRAINING ROOM OFFICES RESEARCH COLLECTION ARCHIVES RR CONFERENCE ROOM PRINTING ROOM WRITING ROOM RECORDING ROOM CIRCULATION CAFE GALLERY MECHANICAL/ ELECTRICAL BEDROOM 2 BEDROOM STUDIOS 3 BEDROOM LOBBY MAIL ROOM BREAK ROOM SUPPORT/RECREATION LIBRARY LECTURE HALL TRAINING ROOM OFFICES RESEARCH COLLECTION ARCHIVES RR CONFERENCE ROOM PRINTING ROOM WRITING ROOM RECORDING ROOM CIRCULATION CAFE GALLERY MECHANICAL/ ELECTRICAL 1 BEDROOM 2 BEDROOM STUDIOS 3 BEDROOM LOBBY MAIL ROOM BREAK ROOM SUPPORT/RECREATION 20
The things based on the five senses that we like so much, all these values – that we treat people well.
-JACQUES HERZOG “ “ “

EMAIL: JOHNMARK2024@GMAIL.COM

PHONE

(909)-927-9548
NUMBER:

Turn static files into dynamic content formats.

Create a flipbook
Issuu converts static files into: digital portfolios, online yearbooks, online catalogs, digital photo albums and more. Sign up and create your flipbook.