2024/4-2025/4
/ 地點:臺中烏日區 / 規模:獨棟住宅 (地上四層)
/ 基地面積:77.11 ㎡
/ 使用分區:住三
/ 建築面積:44.81 ㎡
/ 總樓地板面積:196.22 ㎡
/ 建蔽率檢討(60℅):58.11 ℅
/ 容積率檢討(200℅):195.47 ℅
( 已取得建照興建中 )
參與階段:前期規劃 / 3D渲染 / 立面設計 / 施工圖說



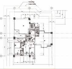
壹層平面圖 1


3

屋頂層平面圖 6 貳層平面圖 2

肆層平面圖 4 屋突層平面圖 5


東向立面圖 1

3



北向立面圖 2

4




/ 地點:臺中烏日區 / 規模:地上四層 (集合住宅)
/ 基地面積:664 ㎡
/ 使用分區:農業區建地目
/ 建築面積:397.81 ㎡
/ 總樓地板面積:1732.29 ㎡
/ 建蔽率檢討(60℅):59.91 ℅
/ 容積率檢討(180℅):174.02 ℅
( 已取得建照興建中 )
參與階段:前期規劃 / 立面設計 / 建照圖調整 / 3D渲染 / 施工圖說



壹層平面圖 1

參層平面圖 3

屋突層平面圖 5

貳層平面圖 2

肆層平面圖 4

屋頂層平面圖 6


A1-A6西向立面圖 1

A1-A6東向立面圖 2

3







/ 地點:臺中沙鹿區 / 規模:地上四層 (集合住宅)
/ 基地面積:2196.87 ㎡
/ 使用分區:第二種建築用地 / 建築面積:1072.06 ㎡
/ 總樓地板面積:4836.48 ㎡
/ 建蔽率檢討(50℅):48.8 ℅
/ 容積率檢討(150℅):148.73 ℅
( 已取得建照興建中 )
參與階段:前期規劃 / 3D渲染 / 立面設計 / 施工圖說








特1-A5西向立面圖 1

特2-A10西向立面圖 2

特3-B7西向立面圖 3

特6-B13東向立面圖 4

特2-特1南向立面圖 5

特2-A10東向立面圖 6

特3-特5南向立面圖 7

特5-B13西向立面圖 8

樓梯剖面圖(一) 1

樓梯剖面圖(三) 3

樓梯剖面圖(二) 2

樓梯剖面圖(四) 4
樓梯剖面圖(五) 5

樓梯剖面圖(六) 6









/ 地點:臺中大里區 / 規模:地上十二層 (集合住宅)
/ 基地面積:953 ㎡
/ 使用分區:甲種建築用地 / 建築面積:322.66 ㎡
/ 總樓地板面積:4739.5 ㎡
/ 建蔽率檢討(60℅):33.86 ℅
/ 容積率檢討(240℅):234.84 ℅
( 建照階段 )
參與階段:前期規劃 / 3D渲染 / 立面設計 / 部分建照圖說




地下貳層平面圖 1 地下壹層平面圖 2

壹層平面圖 3


貳層平面圖 4


東北向立面圖 1


3 西南向立面圖 2


4


/ 地點:臺中南屯區 / 規模:地上九層 (集合住宅)
/ 基地面積:807.45 ㎡
/ 使用分區:第一之一種住宅區 / 建築面積:240.09 ㎡
/ 總樓地板面積:3010.74 ㎡
/ 建蔽率檢討(50℅):29.73 ℅
/ 容積率檢討(168℅):167.89 ℅
( 已取得建照興建中 )
參與階段:前期規劃 / 立面設計 / 建照圖調整 / 3D渲染













東北向立面圖 3
西北向立面圖 2 東南向立面圖 1 西南向立面圖 4


甲梯樓梯剖面圖 1 乙梯樓梯剖面圖 2

