Joanna Arida: Architecture Portfolio 2023

Page 1

portfolio

joannaarida@hotmail.com

I am a Junior Architect who is in constant look for an opportunity to tackle challenging builds and broaden my creative and technical limits. One of the things I enjoy the most of architecture is the relationship between scientific and humanistic themes. What affects me is that the design of a building should be harmonious between theoretical, social, functional and technical characteristics and, at the same time, relate respectfully to the context. In every project I worked on I have always tried to guarantee a well-balanced treatment of any of those aspects and to tackle the need of the built environment in the most realistic and objective way. In addition, I think it is very relevant to notice how architecture works at many scales, from territory to city, from spatial issues to structural details: this underlines the link between architecture, urbanism and building science, and their mutual implementation.

My experiences so far include not only university courses, but I’ve also gained a year of work experience in Germany. I am currently employed at Turath: Architecture and Urban Design Consultants. Most of my work focuses on green adaptive reuse, historic restoration, and sustainable architecture. Work not only ignited a passion for architecture in me, but has also motivated me to further my knowledge by attending a Sustainable Energy semester at MIT and earn a LEED Green Associate.

B.Sc in Architecture, German Jordanian University
02 introduction

contents

.04 Work Experience

Kraus Architects (Germany) 2021

.10 Academic Projects

A Nomad’s Vault: Part of the Tiny House Movement (Jordan) 2023

Thesis Project/ A Walk in the Park: Senior Social Center (Jordan) 2022

Cinema in Time: Built with Urban Mining Material (Amsterdam) 2020

A Park’s Study Lounge (Jordan) 2019

.30 Artwork

03

Location Cologne, Germany

KRAUS ARCHITECTS 2021

KRAUS Architects is a firm that mostly focuses on restoration and rehabilitation. The used program in the office is Vectorworks. I was responsible for:

- Producing working drawings such as site plans, floor plans, building sections, elevations, sales plans, as well as structural layout with Vectorworks BIM technology.

- Prepared legal documents, such as contracts and construction plans, under the supervision of a licensed architect.

- Developed proficiency in creating both two- and three-dimensional construction drawings.

- Calculated surface areas and volumes for sales and construction plans.

work
04 work experience
experience
05 work experience trenkeberg kindergarten Site Plan
06 work experience Ground Floor Level First Floor Level
Southern West Elevation Section B-B
burgweiher apartments 07 work experience Basement Floor Level Ground Floor Level First Floor Level Third/Attic Floor Level
08 work experience
Street Elevation Back Elevation
09 work experience
Western Elevation Section A-A Section B-B Section C-C

Location Ajloun, Jordan

Concept

a nomad’s vault

27.8 m2 (300 sq ft)

The house is located in Ajloun in the north of Jordan, which is signi ed with its great nature and moderate weather in summer. The vernacular architecture within Jordan was used by semi or wholly nomadic cultures in response to environmental, climactic, and economic features of the Jordanian landscape. Traditional houses of Jordan are modular, built with light weight molded mud sun-dried bricks, and have vaulted roofs.

My clients are a young Jordanian couple looking to live in the North without excluding the idea that they might return to the capital city, Amman. This house reformed the idea of the traditional Jordanian houses and local, sustainable materials which embrace living a simpler, more e cient life. I want to give the past new meaning. The slabbed facade is made out of clay, while insulated by recycled plastic bottles. The sides could be opened to provide a natural method of ventilation. Dividing the house into three areas, I ensured that the rooms communicate with each other. It consists of a living area, bedroom, bathroom, kitchen, recreation space, a workspace, and dining area.

10 a nomad’s vault

The Tiny House movement celebrates the concept of simple yet resourceful living. This house is designed to re-imagine sustainability through the innovation of maximum usable space in a minimum footprint.

Mobility comes in as a vital factor, the house is not self-mobile, however, it can be treated as an extension that can be towed easily by a car or pickup truck. Even thoug, the project is based in Jordan, its design should help it adapt and settle in di erent locations.

11
site | safsaf village
a nomad’s vault

Ground Floor Level

First Floor Level

Sustainability Plan

12 a nomad’s vault
1. BM2 PV Panels 2. Vaulted Roofs 3. Natural Ventilations 4. Climate 5. LEDs Lights 5. Rainwater Reuse 6. Main Supports 7. Light Structure 8. Recycled Plastic Bottles (insulation) 9. High Performace Windows 10. Energy E cient Appliances 11. Eco CLT System 12. Rainwater Tank 13. Passive Solar Design
13 a nomad’s vault sections
Section A-A Section B-B
14 a nomad’s vault
Section C-C Section D-D
15 a nomad’s vault
renders
With the vaulted corrugated steel top and the clay’s brown hues, the house blends in with the forest’s surroundings. The glassed elevations open up the interior, thus creating a relationship with the exterior.

a walk in the park

Location Amman, Jordan Concept

Improving the life quality of aging adults by providing a social centre situated in the culturally rich, and historically relevant area of Jabal AlWeibdeh.

As a student living with her grandmother, I’ve always wondered what would happen to her if I wasn’t around. I started looking into available nursing facilities in Jordan. To my surprise, I learned that Jordan only has around 5 facilities that are near the capital city of Amman, none of which were close to the city centre. These facilities being removed from where most “active life” happened in Amman lacked the social inclusion aspect of daily life. I was concerned about the state of aging adults and my personal state if I ever decided to grow independently and retire in this country.

The project is located in the unique and buzzing Jabal AlWeibdeh, Amman. This central district is one of the few places that preserve memories of the history of Amman before its massive expansion during the 1970s. It allows for comfortable pedestrian movement rather than the automobile, its urban fabric is delicately woven, its buildings have a human scale, and its mature trees provide shade and elegant vertical accents. Jabal AlWeibdeh is a prime element of memory and will be an appealing destination to aging adults. The district would best allow aging adults to fully indulge within the lively and well-serviced community that exists there; young and old.

16 a walk in the park

SITE SELECTION & SIGNIFICANCE

LOCATION: Jabal Al Weibdeh

LAND AREA: 7050 sq m / District C

FUNCTION: Senior Cultural Center

TARGETTED AUDIENCE: Active and Inactive Senior Citizens

ABOUT THE PROJECT: My project is considered a small community for senior centers placed in front of Luzmila Hopital and stretches towards Dali Cafe. It is a reinterpretation of the old and new- finding freedom and independence within the boudaries of this small complex which is connected by a nostalgically designed «Backyard». This proposal seeks to 1) connect older adults to vital community services that help them stay healthy and independent, 2) improve the quality of life for a new generation of elderly adults without disconnecting from cultural basis, 3) foster independence, interdependence, and individuality, 4) maintain connections with the surrounding community Combat loneliness and advocate social inclusion, 5) build trust, confidence, and motivation 6) preserve cultural memory.

EXISTING BUILDINGS

RIFAI SITE & BAKER BUILDING 1:200

PLANTS LOCAL TO WEIBDEH

Ceratonia Siliqua بوﺮﺨﻟا

Ficus Nitida ﺲﻜﯿﻓ

Pinus Canariansis يرﺎﻨﻜﻟا ﺮﺑﻮﻨﺼﻟا

Iris Petrana ءادﻮﺴﻟا ﻦﺳﻮﺴﻟا

Lonicera Japonica يﺮﺑ ﻦﯿﻤﺳﺎﻳ

Bougainvillea Spectabilusﺔﻧﻮﻨﺠﻤﻟا

Arecaceae (palm

Washingtonia

Olive

STATEMENT OF HERITAGE SIGNIFICANCE

Architecture’s foundations.

ARCHITECTURAL VALUE When reaching each building, you can notice the arch shapes and stone window frames. Also with its limestone walls and ornamented tiled floors, the buildings are one of the few examples of traditional Jordanian architecture that has been conserved in Amman.

site | jabal al weibdeh 17 a walk in the park JABAL ALWEIBDEH ARCHITECTURAL ELEMENTS DIFFERENT ENGRAVINGS OF STONE Tobzeh stone ةزبط رجح Pitted stone قن رجحلا Msamsam stone مسمسم رجح Bumped stone ةبطم رجح Neat stone بتر رجح Polished stone جم رجح
JABAL
DALI HOUSE 1:200 BEIT EL HINDAWI 1:200
AL WEIBDEH
BARRIER-FREE DESIGN ﺔﺻﺎﳋﺍ ﺕﺎﺟﺎﻴﺘﺣﻻﺍ ﻱﻭﺬﻟ ﻢﻴﻤﺼﺗ
By acting as a reminder and conservation to the architecture that existed in one of the oldest areas in Amman, the buildings should be revived to be a source of information for future senior generations as a valuable document of history and an addition to Weibdeh’s educational sphere. Not only will this site but it will also enhance the value of the area.
new functions, the buildings
and
value. HISTORICAL VALUE Each of the existing buildings come with their own background stories; a beautiful added historical value to our sites. The Hindawi is one of Amman’s early 3 bay houses built in the 60s. On the other hand, Dali House (residential building built in the 80s) was turned into a post office, a school for boys, and is now an Airbnb apartment building. CULTURAL VALUE These buildings are a part of Jabal L’Weibdeh’s architectural character which areconsidered one of Amman’s
ECONOMIC VALUE Establishing
contribute into Jordan’s economy
thus add to its economic
trees) ﻞﯿﺨﻨﻟا
trees) ﻞﯿﺨﻨﻟا
(palm
Trees نﻮﺘﻳﺰﻟا ةﺮﺠﺷ Q&A Tell me little bit about Al Weibdeh and how changed throughout the years? What did like and gone? We’ve been livingin Weibdeh since 1968 We used Square away bigger house Backthen, everyone knew everyone, but after 1996 more strangers came into this neighborhood We adaptedafterwards, used sleep early but peopleare stayingup late cafes you could learn something now teach, what would be? Faten:I wouldlove learn something .I don’t know something mytime getting sick, started sitting more and more at home So hobby could fill mytime For example, cookingwould be lovely Faez:I don’t think I’d learn anything Only to spend time with my children do love though you spend your days? you fill your time with? Faez For me, grocery shop the morning, go and pray, and then back to watch .I either walk to the mosque take the usually enjoy walking preferred someone with you Otherwise, really enjoyreading. you Any type sports? believe our physical sports comes mostly from walking Where do you usually hang with your friends? Do you specifically your age? We usually go to Nafeeseh or circle Away from the noise here After certain age, start enjoying time home timeto Do you feel disconnected from younger adults teenagers? Why? Ithink we do since teenagers are much advanced with technology Therefore, the real disconnection lies with where technology in. INTERVIWER: Joanna Arida INTERVIEWEE: Faez and Faten Non-Active LOCATION: Al Weibdeh YOB: 1953 1968 Q&A Tell little bit about Al Weibdeh and how changed throughout years? you gone? My family has been Weibdeh for many years was born here in 1960 andI am now the ownerofDali and Dali House This place has been for my grandfather since 1958 Weibdeh considered oneof the oldest and famousareas in Amman used tobe quiet butit changed throughoutthe years and became commercial and touristic, many people of parkinghere you could learn something teach, what would My father used collect post stamps, I’d like to continue his collectionone day.I’d also like to learn boxing swimming stay active for languages,I wouldlike learn Spanish. However, with age, learninga language becomes and difficult need time How do you spend your days? What kind of activities do you your used be in the national football team, andI still enjoy playing sports lot.I also have an apple farm on the airport roadwhichnow changed to an olive tree farm Every and then go to visitit.Ienjoyfarming. What activates hobbies would you like do? Any type sports? Yes, am being active.I go the gym, Irun,I cycle around Al Weibdeh especially duringquarantine. My friendsandI used go play basketball but we stopped after corona Where do you usually hang out with your friends? Do you wish there was some kind center specifically for adults age? We usually go lunch everyweek But usually with my friends enjoy hikes andvisiting places like Rum, Ajloun Jerash, We enjoybeing active Do you feel disconnected from younger adults teenagers? Why? Yes do feel adisconnection. This generation differs with mannersand ethics However, they much skilled withtechnology They’re extremely initiative. While my generation INTERVIWER: Joanna Arida INTERVIEWEE: Abu Omar Active Non-Active Q&A Tell alittle bitabout Al Weibdehandhow changed throughoutthe years? Whatdid you like and gone? used work in Terra Sancta for 14 years until my children graduated.Its buildingsgive off this heritage aesthetic but with time population increased and peoplemoved out Their houseturned into cafes and restaurants enjoy that music and artentered the areaas people came from outside. Also it’sa famous for foreigners Ithinkit helps with tourism. could learn something teach, what wouldit be? enjoy teaching childrenalot and give lectures around refugees to learn more.I enjoygiving alot Life about sharingand caring used toplaythe flute but lost the talent with years Would love have teach again How do spend yourdays? What kind activities do you fill your time with? years teaching, myself extremely active person and as an Armenian joinedthe Armenianchoirandchose to get touch with myculture .I also go toalibraryalotto read German books Sometime do storytelling children. What activatesor hobbieswould like to do?Anytype of sports? honestly enjoy walking abitlazy. companion would’ve been more encouraged.I used to be PE teacher but physicality decreases with Wheredo you usually hang with your friends? Do you specifically yourage? With my friends, the activities depend my friends If she likes music, go watch concert, shelikes art,thenwe go exhibitions, sheenjoysshopping, shop really dependson the friend and whatwe feel like doing But when I’m alone, read booksand listen classical music Do you feel disconnected from younger adults teenagers? Why? Definitely there’s disconnection but technology made the gap larger.I trying my best learn everythingbut don’t think I’ll good he younger .I will stop learning though Also, sitting people younger than meand especially mygrandchildren.I am connected when toemotions. INTERVIWER: Joanna Arida INTERVIEWEE: Lily Ramian Ŷ Active Non-Active LOCATION: Sports City YOB: 1941 Whatdo you know about Al Weibdeh Whatdo you like andnot like about it? Al Weibdeh known for beingaheritagesite Amman though do visitit much.I lovehow olditis. The only thingI people come from outside, they sometimes see trash onthe sidewalks.Not sure if it’s from people living there or its visitors. If you could learn something now or teach, what wouldit be? would love learn something strange and For example, lovegreeneryand have flowers around So, plant flowers, veggiesand somewhere I’d also love learn how usethe computer to keep up with things Instead lessons, would nice to self-learn have library that goand study by myself How do you spend yourdays? What kind of activities do fill time with? housewifeand Ilike spending time at home enjoy doing things by hand, whether it’s cooking cleaningthe always myhouse istidy enjoy family timeand getveryhappy when theyvisit When get frustrated orbored, open the television or walk around thehouse But honestly, rather have walk with What activatesor hobbieswould you like do?Anytype of sports? would love dance ordoZumba for sports! also very good belly dancer It helpssince don dosports Wheredo you usually hang out with your friends? Do you wish there somekind of center specifically for adults yourage? My friends and usuallygodrink coffee together have lunch enjoythat alot. also enjoy listening music Do you feel disconnected from younger adults or teenagers? Why? No, the contrary, love interacting with them and to give themadvice.I also love making them laugh, specially my grandkids They don’t feel like their grandmother when hangout very happy Q&A INTERVIWER: Joanna Arida INTERVIEWEE: Sonia Butros Active LOCATION: Abdoun YOB: 1948

The project consists of 5 existing buildings that have been rehabilitated, 2 buildings with faulty foundations that were demolished, and one new additional building that is considered the chief construction. The buildings are connected with a park, thus creating a secure and welcoming public space for all within the neighbourhood’s block. Local native flora is maintained and used for greenery. Each of the existing buildings was examined for Heritage Significance in order to adaptively reuse them respectfully. The limestone facades were left untouched while any new additions were given a change in material, colour, or form in order to distinguish the new from the old. Local materials were used for the new additions; however, they were given new definition. All buildings intend to be completely accessible by aging adults.

As for the program, over 35 senior adults that live in various districts in Amman picked out the project's functions. The main structure is divided into two parts: a residential area and an education-oriented area. The rehabilitated structures offer different functions that meet different needs, such as 1) a film library, 2) a book library, 3) a beauty spa, 4) art studios, 5) and galleries.

18 a walk in the park
Concept Diagram Site Section

Lastly, the design of the central park maintains the descending nature of the earth. The park is divided into plazas of various levels and functions which are then connected with ramps, making the whole site completely accessible to wheelchairs. The main building is positioned on the lowest area of the land, providing the main access to the site. It is most exposed to the roads (allowing for a vehicle drop-off area) and positioned towards Jabal AlWeibdeh’s most prominent view; the archaeological site of the Citadel. All buildings can be accessed from different borders of the neighbourhood’s block while, at the same time, can also be accessed through the central connecting volume - the park - from within the block.

19 a walk in the park
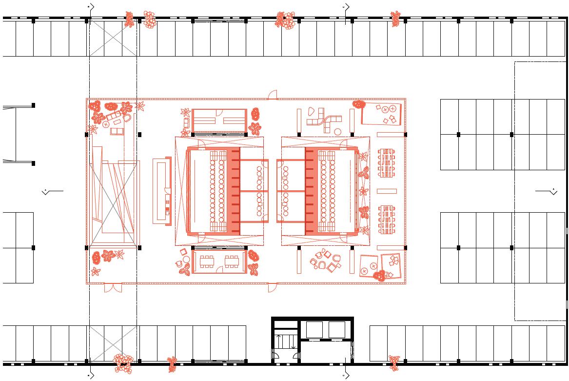
Site Plan
Basement Floor Level Second Floor Level First Floor Level Ground Floor Level Third Floor Level EXISTING NEW REMOVED 1 2 3 4 5 Supermarket Bakery Courtyard Lecture Halls Film Library -1 Auditorium 0 Computer Labs Outdoor Auditorium Book Library Beauty Spa Garden Cafe Outdoor Art Space Art Galleries Housing 8 9 10 11 12 6 7 Lecture Halls Viewing Patios Art Studios Music Studios Rooftop Restaurant 13 14 15 16 17 plans 20 a walk in the park
axonometric section of main building 21 a walk in the park
renders 22 a walk in the park
Aerial View Main New Building Courtyard
23 a walk in the park
Residential Apartment Art Exhibition Bakery Reception Renovated Book Library Front Facade Facade of Renovated Beauty Spa (Hindawi)

Location Amsterdam, Netherlands

Concept

Moving people from the outdoor reality and into the cinema’s world of fantasy by creating a path through different layers. Each layer serves a function that draws the user closer to the cinema. From an outdoor garden to a library’s lounge to the cinema, all defined by spaces that are based/divided by the parking lot s grid, users feel that they’re being enclosed more and more as they reach the cinema. Once the user reaches the core (there will be two types of cinemas present 1. A normal cinema 2. a smaller/cozier cinema where users may lie down on the floor in small groups and watch a movie on the ceiling.

Even when the spaces are centralized and layered, they all exist symbiotically and harmonically, this indicating a unity between reality and fantasy. Also, as a larger reminder of where our cinema is placed (the parking lot), the walls separating the walls from the parking lot will be of translucent recycled material.

cinema in time 24 cinema in time built with
mining
urbban
material

Geuzenvold-Slotermeer is a ghetto neighnorhood and former borough comprising some of the most western parts of the city of Amsterdam. As a borough it existed from 1990 till 2010, when it merged with the boroughs Osdorp and Slotervaart to form the new borough Amsterdam Nieuw-West.

site | amst, plein 46 25 cinema in time
26 cinema in time
Site Plan Before and After
Circulation Structural intervention
27 cinema in time Second Floor Level First Floor Level
Section B-B
A-A 28 cinema in time
Section
29 cinema in time
Cinema Section

Experimentation is the inspiration for me. I grew up with an intense passion for creativity and have constantly searched for ways to express it. Art is a form of expression which artists seek in order to release their energy through artistic materials and medium. Emotions are captured on a canvas and frozen in time as a reminder, connection, and a voice.

Art has de nitely helped me when it came to the world of architecture. Whether be it in the creative thinking process, composition, or design. Both elds, architecture and art, carry a close relationship. The idea of integration between art and architecture dates back to the very origin of the discipline, and I hope that, one day, I can also merge both together.

30 artwork pencil drawings
31 mural works
portfolio // joanna arida

Turn static files into dynamic content formats.

Create a flipbook
Issuu converts static files into: digital portfolios, online yearbooks, online catalogs, digital photo albums and more. Sign up and create your flipbook.