ARCHITECTURE DESIGN Y3 TERM 2

Page 1

Faculty Of Architecture Silpakorn University

CONTENTS

2-10

PROJECT III

- WORK PLACE

11-20

PROJECT V

- ARI CENTRE

21-22

DESIGN THINKING

- BATHANTIQUE

01 PORTFOLIO 630210035

01 WORK PLACE

@ BTS SAPHAN KHWAI PHAHONYOTHINRD KHET PHAYATHAI

SITE

Land area next to Paolo Hospital which is located on Phaholyothin Road Close to Saphan Kwai BTS station.

Land size 10,083 square meters (6.30 Rai)

04 PORTFOLIO 630210035 PROJECT III
The construction of the transition enhances the quality of the area through good wind paths.

WORK PLACE

This project begins with an area and location analysis. The neighborhood surrounding the site In the surrounding context, there are rarely tall buildings nearby that are dense, thus making the air circulation that occurs convenient. and from that user analysis Most of them live in Bangkok. which is a dense city and spent most of his time at work In which life is often spent in air-conditioned rooms and rarely has time to come out to get fresh air, therefore wanting to solve problems for users who come to mute the building.

WORK PLACE
05 PORTFOLIO 630210035 PROJECT III
06 PORTFOLIO 630210035 PROJECT III
07 PORTFOLIO 630210035 PROJECT III

Greenspacehasbeenplacedinthehallway.Whichactsasawaiting accommodationforthosewhocometowaitorasareceptionareafor employeestorelax.

08 PORTFOLIO 630210035 PROJECT III
Onthegroundsofthehallwaysurroundingthecourt,whichistheheartofthebuilding. The2ndfloorareathatservesgreenspaceofthegroundfloorandthereisacafethatis thefirstaccessandvisiblefromtheoutsideofthebuilding.
09 PORTFOLIO 630210035 PROJECT III
in the part of each floor of the office Designed for better air flow during the transition. for better hygiene.
10 PORTFOLIO 630210035 PROJECT III
View from inside the building with facade where the light will change according to each moment.

O2 ARI CENTRE

SHOPPING CENTER @ BTS ARI ,SOI PAHOLYOTHIN 6

SITE

The original land area of Villa Ari, at the Ari BTS station On the project site, size 6.53 rai (10,455 sq.m.)

Designed to engage with the city as much as possible. There is an entrance on the side to attract more people in the community to use. And give up some areas that can be used to organize events or be an area that calls for more people to use the building.

สวนสําคญของซนนคอถนนสนสแดงทจปน ตวชอมUSERทมยนนขามยงครงการรา หบทบาทพนทบางสวนเปนพนททชวยยกรดบชมชนและ ศรษฐกจในยานผานGREENSPACE เพอแลกกบการ ดงดดหผคนมาชตวอาคารมากขน อรซอยสนคานตลดนดกลปนทาง ลอกสําหรบUSERวยทํางานนยานน TRAFFICANALYSIS PEOPLETHROUGHFAREANALYSIS ตลาดนดซอยอารยแลยานรานคา g SUSTANABTYGOALOCA y URBANDEVELOP URBANDEV LEED-ND SmartLocaton Sustainablegrowth Transitacess Safeocation Neighborhood Society PublicWellness Businesssucess Greenbuildingsand Infrastructure Naturaresources Waterandenergyuse Wastemanagement CONCEPT CROSSVENTILATON NSERTONWTHGREEN SPACETOGUDE CIRCULARECONOMY SUSTAINBLTY การสรางเสนทางลมใหไหล ผาน GREENSPACE ทสรางขนเพอ สรางคณภาพใหกบพนท TRANSTON และFUNCTIONบางอยางของโครงการ หดขน แลพอชวยสรมสรางเศรษฐกจ นพนทหดขน ลมทจพดเขาสพนทตองผานตวโลตสทมความสง15ม ตวลมอาจตกทวทงพนทแตจแรงตมทเมอสงเกน15ม ลมในกรงเทพเขาทางทศตะวนออกฉยง หนอแลตวนตกแลออกฉยงใต MASS OO OCOSVENTLAON OG PACETOGUD SCOGU XTRACTTHE VOLUMEOFMASS MASS MAS PLAYTHLEEL& PENETRATONHE VOD TOOLS COURTVOD&SPACE HGHESTQUALTY SPACE COURT 13 PORTFOLIO 630210035 PROJECT V ANALYSIS CAUSE & EFFECT

sunk area in the front of the building To attract more people to use the building and to replace the circulation of the building while the building is out of service. And there is a connection area from the parking area to the building.

HallwayconnectedtoBTS. 24/03/65

Semi-outdoorspace&Zonelight-food 24/03/65

14 PORTFOLIO 630210035 PROJECT V
15 PORTFOLIO 630210035 PROJECT V
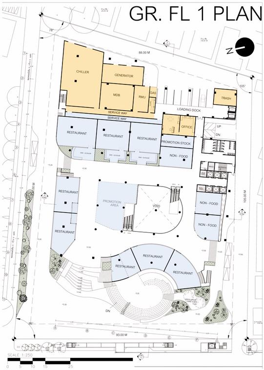
16 PORTFOLIO 630210035 PROJECT V TheupflowoftheskywalkfromtheBTSenteringthebuilding. Drillingthevoidthatservesthepromotionareaandpositioning theescalatortowalkaroundthebuilding.

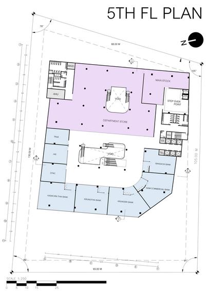
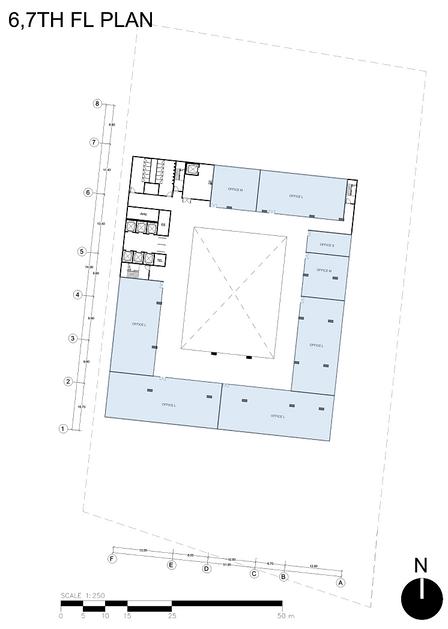
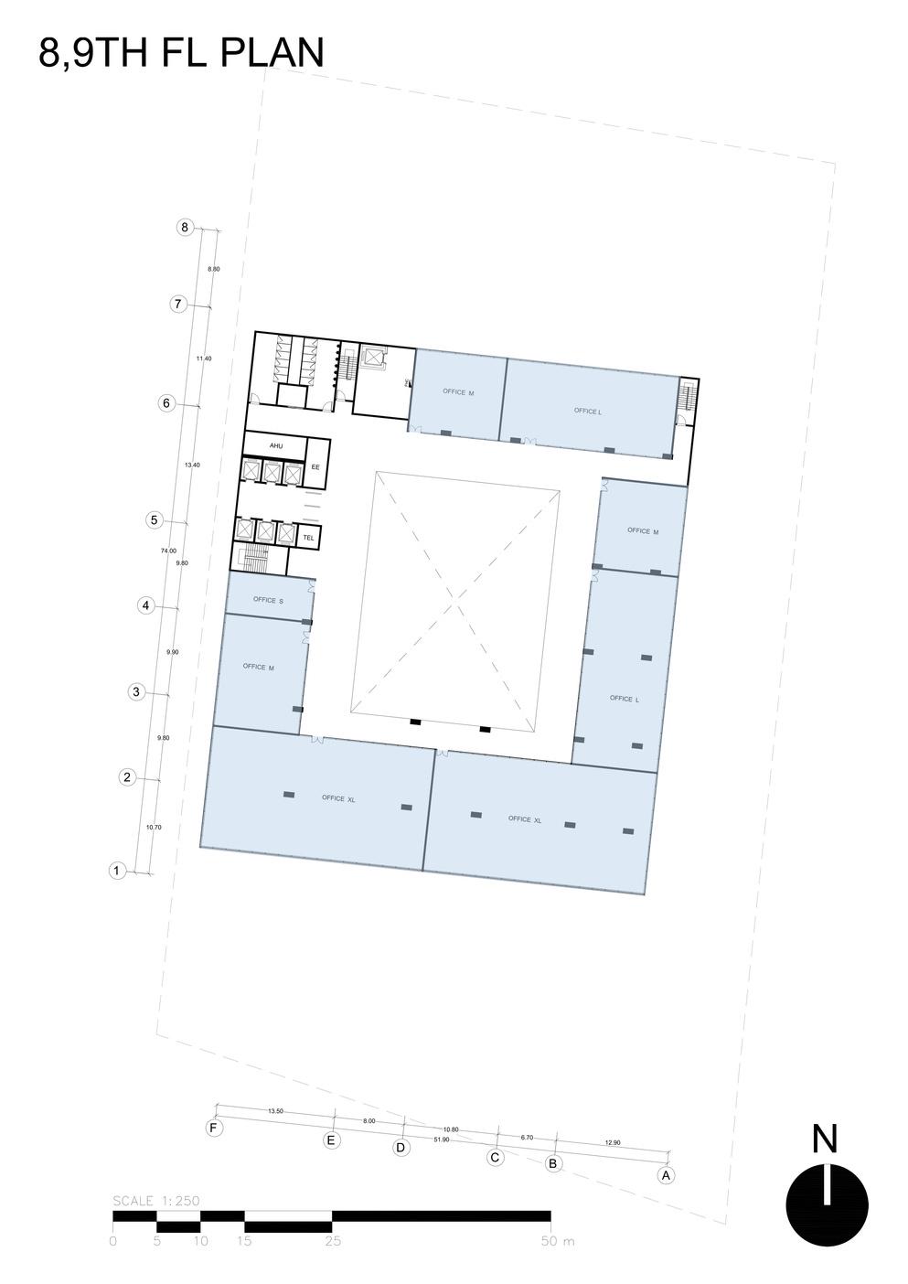
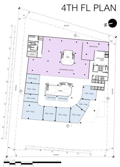
Drilling the void in the hallway with different characteristics on each floor. so that the light from the sun can reach every floor and a repositioning escalator was placed on the last floor flanking the stores.

The layout of the top floor of the building is a magnet to attract people to use the different floors. with the top floor being the food section garden and fitness

17 PORTFOLIO 630210035 PROJECT V

SECTION :

It shows a diagram of the direction of wind flow on the 1st and 2nd floors, which are semi outdoor spaces, and the direction of sunlight that affects the building on the basement floor and the promotion area hall on the 3rd floor that penetrates to the top floor so that every The floor of the building is exposed to light.

SPECIAL TIME

NIGHT TIME

People entering the project from sidewalks or BTS will walk around the exhibition area which is an open space in front before entering the building The route to reach the project when building part in The door is closed according to the regular time. Circulation will focus on people passing by. Step sunk down to the front and gain access to the 24hr supermaket.
18 PORTFOLIO 630210035 PROJECT V

Access to the project by various travel vehicles Both by bus, the bus will stop on the sidewalk in front of the project. Access by BTS will enter the sky bridge walk that connects to the 2nd floor and the drop off way of people going to the underground car park, there will be a drop off area on the side of the project.

Access to the project by foot can be accessed from the front of the site. and the community located in Soi Phaholyothin 6 The project can be accessed through a side entrance. for the opportunity to access the project easier.
19 PORTFOLIO 630210035 PROJECT V

DESIGN THINKING :

BATHANTIQUE

21 PORTFOLIO 630210035 DESIGN THINKING

Turn static files into dynamic content formats.

Create a flipbook
Issuu converts static files into: digital portfolios, online yearbooks, online catalogs, digital photo albums and more. Sign up and create your flipbook.