ARCHITECTURE DESIGN Y3 TERM 1

Page 1

PORTFOLIO

630210035 261106 การออกแบบสถาปตยกรรม 4
1-65
PEERADOL NAKAYUENYONGSUK TERM
CONTENTS 01 PORTFOLIO 630210035 3-8 PROJECT I - ARCHITECTURE SCHOOL 9-20 PROJECT II - BANGKOK ART GALLERY 21-31 DESIGN THINKING - BATHANTIQUE

PROJECT 1 :

ARCHITECTURE SCHOOL

BUILDING : LARGE

AREA : 8500M2

Thisprojectstartsfromtheanalysisofthe usermainly Takingintoaccountthe behaviorofuserswhoarearchitectural studentswhooftenhaveartevents, exhibitionsthatareinfrequentandnotvery big Theconceptofthisbuildingisthe flexibilityofspacethatcanbetransformed tohostsmallcommunityeventsinschools Aconceptdagramthatshowstheheartorthattheexhibitionroomisintendedto

1 PORTFOLIO 630210035
PROJECT I
bethecenterofthewholeshow

Analyzing the realationship of each area to the time peroid to see the flexibit\lities of space in changing sapce to create another activity

EXHIBIT ON CHANGE SOME AREAS INTO SEAT NG AREAS LECTURE CHANGE AREAS NTO WORKSHOP SPACE M A I N F U N C T I O N CHANGE AREAS INTO AUDITURIUM CLASSROOM CONNECTION OF SPACE INTO A SMALL EXHIBIT ON STUDIO CHANGE SPACE INTO ACTIVITIES CAMP 1 PORTFOLIO 630210035 SITEPLAN PROJECT I EXHIBITION พนทอเนกประสงค ทสามารถเปลยน เปนพนทกจกรรม ตางๆหรอพนทเลน กฬาได พนทจดแสดง นทรรศกาลขนาด ใหญ พนทจดแสดง นทรรศกาลขนาด ใหญทสามารถเชอม ตอกบพนทอนเพอ ขยายแหลงการ เรยนร FUNCTION NORMAL TIME EVENT EVENT (LARGE SCALE) LECTURE สามารถ ทาWORKSHOP ขนาดเลกๆหรอ สามารถเปลยน เปนหองตรวจ งานรวมได นงฟงบรรยายจด เลคเชอร สามารถเปลยน พนทใหกลายเปน พนทจดแสดงหรอ เตรยมงานได CLASSROOM หองเรยนรขนาด เลกสามารถ นงคยงานและ ทางานตรวจงาน บางเลกนอย สามารถเปลยน พนทใหกลายเปน เปนหองนทรรศกาล ขนาดเลกหรอ สามารถเปนหอง ควบคมไดSTUDIO สามารถ ทาWORKSHOP ขนาดเลกๆหรอ สามารถจด กจกรรมรบนอง ตางๆได หองเขยน แบบ,หองดรออง สามารถเปลยนพนทให กลายเปนพนทจด นทรรศกาลสาหรบ นกศกษาหรอจดแสดง ผลงานภายในชนเรยน
FUNCTION RELATIONSHIP
MAIN

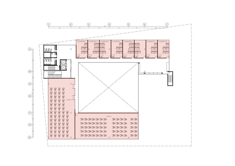
BASEMENT

SECONDFL.PLAN

1 PORTFOLIO 630210035
PROJECT I

THIRDFL.PLAN

FOURTHFL.PLAN

PROJECT I 1 PORTFOLIO 630210035

ELEVATIONA-201

PROJECT I 1 PORTFOLIO 630210035

ELEVATIONA-203

PROJECT I 1 PORTFOLIO 630210035

BACG PROJECT 2 :

BUILDING : LARGE

AREA : 9350M2

This project begins with an analysis of the area and location, neighborhood, and surrounding area of the site The surrounding area of the site is mainly a community center and most of the art events are held Therefore chose this site to build an art gallery building with the intention of giving the building a context to promote and develop the surrounding communities

EXHBITIONTEMPORARY ชวคราว)

FLEXIBLITYOFSPACE

Concept Diagram EXHIBTONPERMANENT(ถาวร The flow of external activity into the main of building Acess to various aspects Can be accessed form the main and Soi Pantachit Bangkok Art Gallery @ Hua Lamphong
2 PORTFOLIO 630210035 PROJECT II
Core main & Service 01 Fire escape 02 Main core 03 Lift service 01 02 03 Main concept & Area of joint activities Flexible space that can expand form the inside out 2 PORTFOLIO 630210035 PROJECT II
2 PORTFOLIO 630210035 PROJECT II
Bangkok Art Gallery - From the bridge in front of the project
for
2 PORTFOLIO 630210035 PROJECT II
Plaza for expansion of activities Expansion
exhibition
2 PORTFOLIO 630210035 PROJECT II

Permannat exhibition - Acessibility of sun path and interaction with the outside

2 PORTFOLIO 630210035 PROJECT II
2 PORTFOLIO 630210035 PROJECT II
Permanant exhibition - Continuous flow of the upper and lower floors with the exterior
2 PORTFOLIO 630210035 PROJECT II
Temporary exhibition - On the top floor of the building and has a dome on top of the building that is used in the story of the impact light
2 PORTFOLIO 630210035 PROJECT II
2 PORTFOLIO 630210035 PROJECT II

TYPICALSECTION

2 PORTFOLIO 630210035 PROJECT II

MODEL

2 PORTFOLIO 630210035 DESIGN THINKING

DESIGN THINKING :

Bathantique

แตละสมยมการอาบนาสาธารณะอยางไรและมจดประสงคเพออะไร อาบนาสาธารณะเรมตงแตเมอไหร อาบนาสาธารณะคออะไร ในอดตจนถงปจจบน การทาความสะอาดรางกายมไดหลายวธ แตทนยม มากทสดคอการอาบนา โดยใชนาหรอวสด อปกรณทสามารถหาไดงายใน แตละยคในการชาระสงสกปรกออกจากรางกาย ซงมนษยเปนสตวสงคม ตองการพบปะพดคยกน ทาใหมวฒนธรรมการอาบนารวมกนหรอการ รวมกลมกนทาใหเกดสถานททเรยกกนวา โรงอาบนาสาธารณะ 3 PORTFOLIO 630210035 DESIGN THINKING
ROMAN 2 BC MODERN 1453-1945 PRESENT AGES 1945-NOW GREECE 430 BC MIDDLE AGES 1485-1603 3 PORTFOLIO 630210035 DESIGN THINKING

จากการสบคนทาใหสรปไดวาโรงอาบนาสาธารณะคอสถานททมนษยมาชาระสงสกปรกออก จากรางกายรวมกนซงโรงอาบนาสาธารณะเรมตงแตสมยกรกยาวนานมาจนถงปจจบนใน แตละยคแตละทวปมความหลากหลายตามสภาพความเปนอยของมนษยแตทมความคลาย กนคอการรวมกลมเพอสรางสงคมในอดตจนเมอโลกไดมเปลยนแปลงทาใหโรงอาบนา สาธารณะกลายเปนวฒนธรรมอยางหนงทสบทอดตอกนมาและหลงเหลอใหเหนในปจจบน

3 PORTFOLIO 630210035 DESIGN THINKING

Turn static files into dynamic content formats.

Create a flipbook
Issuu converts static files into: digital portfolios, online yearbooks, online catalogs, digital photo albums and more. Sign up and create your flipbook.
ARCHITECTURE DESIGN Y3 TERM 1 by Jimmyyy - Issuu