Get on the property ladder with
Snugg Homes!
Property
Waterside is a beautiful new development in Trentham, Stoke-on-Trent. This exciting new scheme offers an elegant collection of homes.
These energy efficient properties are constructed to the highest specifications and combine traditional craftsmanship with modern interiors creating the perfect balance of aesthetics and convenience.
The different house types each have families at their heart, and offer either an open plan kitchen/dining room and lounge, a large kitchen/diner with a separate lounge, or an open plan lounge/dining room with

separate kitchen.
These stunning homes also boast French doors to the garden that flood the rooms with light.
In addition, each property benefits from a downstairs W/C, a contemporary three piece bathroom suite and well proportioned bedrooms on the first floor, as well as a landscaped garden and off-road parking.
Some of the properties also include extra storage and en-suite master bedrooms.
All this is complemented by gas central heating, smoke
detectors, stylish uPVC doors & windows and neutral decor throughout.


Meadow Lane, TRENTHAM, Stoke-on-Trent ST4 8DJ
Location
Nestled in beautiful North Staffordshire, this development is ideally located for all of county’s many world class attractions. These include theme parks, historic houses, gardens, zoos, museums, steam railways, potteries, horse racing and more miles of canal than any other Shire county.
In fact, Waterside overlooks a stunning stretch of the Trent and Merseyside canal and is perfectly placed for both business and leisure. Trentham offers buyers the best of both worlds: the quiet of the countryside and the vibrancy of the city.
Its close proximity to Stoke-on-Trent means that you can enjoy city life any time you want; browse the extensive high street shops, dine in one of the cities celebrated restaurants and try out its dynamic night life.
Or, you can explore Staffordshire’s incredible landscapes and attractions, including the award winning Trentham Gardens. So whether you like to shop, walk, hike, cycle or drive, there are plenty of beautiful places to discover in and around Trentham.
Local Amenities
The Waterside development is ideal for those who want all the convenience of modern living, close to home.
The development is only 5 minutes drive to Trentham Estate with its 725 acres of spectacular natural beauty and home to award-winning Gardens, glorious ancient Woodland, and a unique outdoor shopping village where you can at the browse the timber lodge high street and indulge yourself in the gift shops, cafes, fine dining restaurants, and quirky stores.
Whilst at the Trentham Estate you can also enjoy the vast Trentham Garden Centre, walk with 140 barbary macaques at the Monkey Forest or take a high rope adventure at Trentham Treetop Adventures.

Transport Links
In addition, Stoke-on-Trent is less than 4 miles from Waterside with its extensive range of independent stores, picturesque parks and many other services.
Buyers also have many amenities on their doorstep including an Aldi supermarket, Post Office, Pharmacy, Dental Centre, several schools and the Royal Stoke Hospital.
Waterside is well served for public transport. There are bus stops near the development that have frequent services to Hanley, Stafford, Stoke-on-Trent and all it’s surrounding areas; ensuring that all local towns and villages are accessible. In addition, Stoke-on-Trent train station is less than 4 miles away on and lies on the Stafford to Manchester branch of the West Coast Main Line. This station provides an interchange between various local services running through Cheshire, Staffordshire and Derbyshire.
This development is also close to the A50 with links to the M6 and M1 making the commute to both Manchester and Birmingham easy, and providing convenient access throughout the North West and to the South.


House Type & Floor Plan
House Type - Moresby


House Type - Moresby


House Type - Maidstone (3 bed semi-detached)
House Type & Floor Plan


House Type - Maidstone (3 bed semi-detached)


House Type - Ellerton (3 bed semi-detached/mews)
House Type & Floor Plan


House Type - (Ellerton 3 bed semi-detached/mews)


House Type & Floor Plan
House Type - Stambourne
(3 bed semi-detached/mews)

House Type - Stambourne
(3 bed semi-detached/mews)

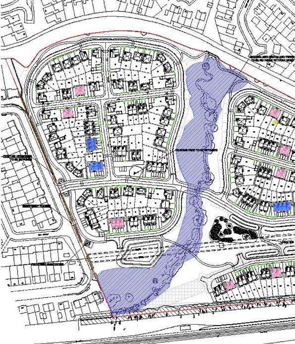
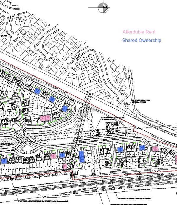
SITE PLAN


Additional Information
Eligibility Availability & pricing
Please visit our website for the most up-to-date information on availability, property prices and service charge for this development.
Rent
*The rent charge is 2.75% of the unsold equity
{example - £173,000 (OMV) x 75% (unsold equity) x 2.75% (rent charge) / divide by 12 months = £297.34 per month}
The rent calculator on our website will provide accurate rent calculations based on the plot and percentage share you wish to purchase.
Are you eligible?
All applications are subject to approval.
Any further eligibility criteria for the development is specified on our website.
Please contact us if you need any further information regarding eligibility.
* Please note: On some developments there is a limit on staircasing, which means you cannot buy 100% of the property, please refer to website for more details or check with us if you are unsure.
*For further information, please contact the Snugg Homes Team:
e: sales@snugghomes.co.uk
t: 01942 267 819
THE WATERSIDE TRENTHAM
* All images used are for illustrative purposes only; architectural details, floor plans and any dimensions listed are to be used as a guideline only. All room sizes are approximate with maximum dimensions. Furniture positioning is indicative only. Wardrobes are not included and are only there for illustration purposes. Please ask our Sales Consultants for detailed information. While every effort has been made to ensure that the information contained in this leaflet is correct, it is designed specifically as a guide and Snugg Homes reserve the right to amend the specifications as necessary and without notice. This does not constitute or form any part of contract or sale. Images are indicative only.