Skip to main content

PORTFOLIO

Page 1

RAKENNUSARKKITEHTI JENNI MYLLYNEN

BACHELOR OF CONSTRUCTION ARCHITECT

CONTENTS

CV

mystudyandworkexperience

PROJECTS

1STACADEMICYEAR2020-2021

SINGLE-FAMILYHOUSE

2NDACADEMICYEAR2021-2022

APARTMENTBUILDINGDESIGN

3THACADEMICYEAR2022-2023

PLAYSCHOOLFORFOURGROUPS

4THACADEMICYEAR2023-2024

APARTMENTBUILDINGREPAIRPLANINPAIRS

THESIS

STRENGTHENINGCOMMUNITYTHROUGHARCHITECTURE

INTERIORDESIGNIN2016

SINGLE-FAMILYHOUSE - 2016 - 135m2

RENOVATIONPLANIN2022

SINGLE-FAMILYHOUSE - 1979 - 119m2

CONTACT

phonenumber,e-mail,instagram

MasterofScience(Architecture),UniversityofOulu Durationofstudies2years,startinginautumn2024 STUDIES

BachelorofConstructionArchitect,OUAS

graduation14/12/2023 Practicalnurse,OSAO

graduation2017

the tasks of the construction and interior designer of the care homes and daycare centers business area SiklatilatOy

Buildingdesigner
WORKEXPERIENCE
2.5.-31.8.2022 2.9.-17.11.2022
C U R R I C U L U M V I T A E

29-years-old happy industry changer, Jenni Interior design and making floor plans has been my favorite hobby since I was little girl I remember drawing various floor plans in bed while waiting for sleep When I had my third child, I left my previous job as a practical nurse behind and started to pursuing my childhood dream job in architecture

ArchiCad

AutoCad

Revit

Lumion

Twinmotion

Photoshop Office365

1ST ACADEMIC YEAR 2020 - 2021

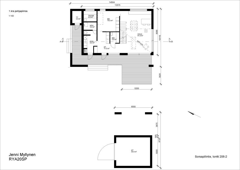
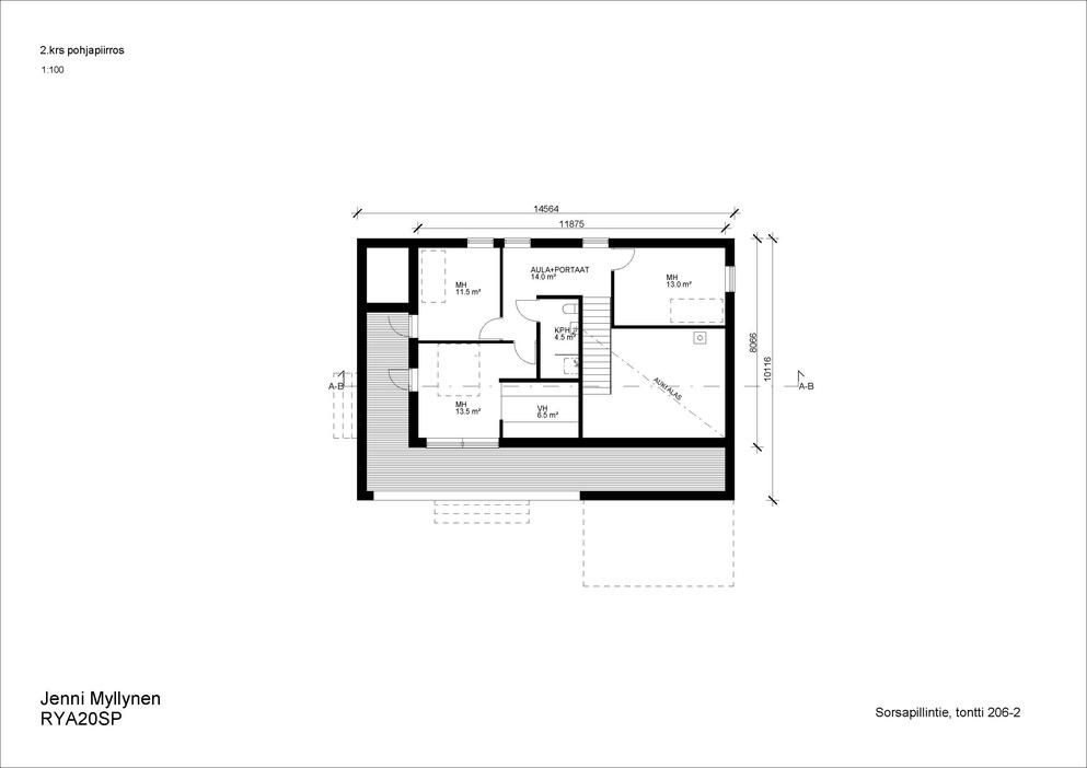
SINGLE-FAMILY HOUSE

I made the plans according to the ‘building project owner’ (classmate) wishes

In the first fall, I designed a singlefamily house in Oulu, Varpukangas.

The building project owner wanted a lot of living and storage space and light colors In addition, they wanted me to take into account the growth of the family in the design

In the design, I took into account the cardinal points and accessibility

1:100
1ST FLOORPLAN 1:100 2NDFLOORPLAN

2ND ACADEMIC YEAR 2021 - 2022

APARTMENT BUILDING DESIGN

In the second academic year, I designed an apartment building in Tuira, Oulu The housing company has common facilities, there is a sauna and a large loungewitharoofterrace

The housing company has apartments for students and the elderly as well as families There are also business premises on the first floor

The asymmetrial wall lines of the house and the roof terrace make the architecture of the facade interesting The floor plans are simple but not boring

I planned the yard area so that the stay takes place in the yard facing south and west There is also a river on the south side, so the view from the yard is wonderful

1:100
1:100 SOUTHWEST 1:100 NORTHEAST
2NDAND3RDFLOORPLAN

3TH ACADEMIC YEAR 2022 - 2023

In the fall of the third year, the task was to design a functioning daycare center that complies with the zoning regulations in Intiö, Oulu The starting point was to design functional and flexible spaces for four groups of children without forgetting the visual appearance

The group spaces are located in the middle of the building and social facilities, cleaning and laundry room and kitchen at the ends of the building.

1:20 DETAILS

B-B
A-A
A-A FLOORPLAN

In the middle of the building there is a hall that is higher than the other spaces, where you can hold children's exercise classes e g 1:50

plasteredwhite

PIECEOFFACADE
1 woodpanel,transparentoil
2 woodpanel,black 3
4 concrete,lightgray
5 paint,yellow
6 asphalt FACADEMATERIALS

1:50 A DETAILED PLAN OF THE GROUP ROOM

PLANS

4TH ACADEMIC YEAR 2023 - 2024

APARTMENT BUILDING REPAIR PLAN IN PAIRS

We planned two additional floors for the building. There will be residential apartments on the additional floors as follows: two 87m2 apartments and 73m2 and 76m2 apartments on both floors.

The main focus of the design was the design of additional floors and the repair of facades

Energy efficiency and architectural appearance were improved in the design

1:200
SITEPLAN

An elevator was added to the existing floors and additional insulation was added to the exterior walls More cage storage was added to the first floor Replacement of windows and additional insulation of the walls improved energy efficiency

1:10 BALCONY-EXTERIORWALLDETAIL 1:10 EAVESDETAIL 1:100 NEWBASEMENTFLOORPLAN 1:100 NEW2ND-4THFLOORPLAN 1:100 NEW5TH-6THFLOORPLAN

The comfort and functionality of the yard areas have been improved We also added lounge and play areas The entrance is made attractive and clear

I designed the floor plans of the new floors and made visualization images and details. All the pictures of the project I present are made by me.

THESIS

STRENGTHENING COMMUNITY THROUGH ARCHITECTURE

In my thesis, I designed a communal building for the plot of four small houses in the Oulu housing fair area In the sketching phase, I made a miniature model using self-drying clay and toothpicks

In the second draft phase, I made the plans with Archicad 26 and the visualization images with the Lumion 12 5 Student program In addition, I researched the functionality of the shared building from a life cycle perspective

1:100
FLOORPLAN

I wanted a high, bright space in the middle of the building, which functions as a hallway but also as a lounge

I placed the kitchen functions at the west end of the building, where there is also a lounge West end so that as much light as possible enters the room all year round Windows are placed on three walls In addition, light floods in from the windows at the top of the walls

VISUALIZATION COURSE

PEOPLESANDVARIEGATE

I started by opening the given image file in Photoshop I opened the images of the human figures and created a new adjustment layer according to the instructions and adjusted the saturation of the image and scaled the human figures to suit

PEOPLESANDVARIEGATE

I opened the image of the kitchen and created a black and white filter and set the exit point according to the instructions. I opened the picture of the people, copied it to the kitchen picture and scaled them to fit I used the Select and Mask tool to modify the surface and floor of the kitchen. I arranged the layers and shaded the image according to the instructions I also adjusted the color balance with the Camera Raw Filter.

OUTSIDEPERSPECTIVEVIEW

In the outdoor visualization image of the kindergarten, I changed the sky and added a human figure, to which I added a shadow I made a shadow by duplicating the human figure, setting it to one color and setting the opacity to 25% I also modeled the human figure using stretch tools Finally, I created Compose and adjusted the color balance

EDIT THE SKY AND COLOR BALANCE

I first removed the sky with the Select and mask tool and then refined the edges with the Refine Edge Brush Tool I brought the provided picture of sky and added it behind With the Dodge and Burn tool, I fine-tune the wood line, after which I still edit the image's warmth, white balance and brightness and color balance

INTERIOR DESIGN IN 2016

SINGLE-FAMILY HOUSE - 2016 - 135m2

Interior design with family needs in mind The starting point is the easy maintenance of the surfaces and the functionality of everyday life

As a red thread in the interior, light natural tones using black as a contrast

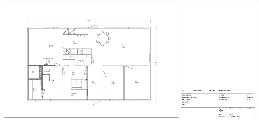
RENOVATION PLAN IN 2022

SINGLE-FAMILY HOUSE - 1979 - 119m2

I made the interior plan and changes to the floor plan according to the family's needs I have also made a yard plan and planned facade changes

From one of the bedrooms in the house, I modified the laundry room and the "children's hall", and the kitchen had to be made more functional

1:50 NEWFLOORPLAN 1:50 OLDFLOORPLAN
Kempele
jennimyl@outlookcom 0451605100 @hiekkatiella JenniMyllynen

Turn static files into dynamic content formats.

Create a flipbook
PORTFOLIO by Jenni Myllynen - Issuu