43 Maple Avenue Greenwich CT

Page 1

(646) 526 7643 JenDanzi.com Coldwell Banker Global Luxury Tamar Lurie Team Coldwell Banker Global Luxury . 66 Field Point Road . Greenwich CT 06830 Listed by: Jen Danzi Co Listed by: Ben Mickelson 4 Condominium Units. Option to Build a 2,800SF 5th Unit .95 Acres. Downtown Greenwich Offered at: $9,500,000 GREENTREE ESTATE
LOCATION LOCATION LOCATION
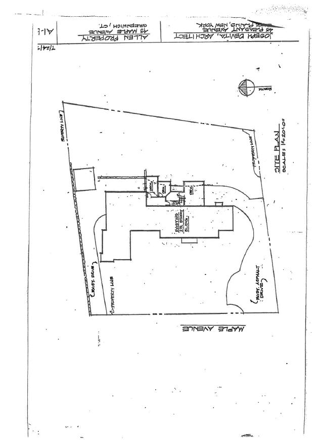
SITE PLAN
TOPO MAP
AERIAL MAP
BASE MAP

MONTHLY

UNIT PARCEL ID TAXES ZONE YR BUILT SF BED BA TAXES + INSURANCE RENT ROLL HOA LEASE EXPIRATION DATES

1 07 1681/s $ 7,972 R 20 1900 1635 2 2.1 $ 1,329 $ 5,300 $ 795 Jun 23

2 07 3051/s $ 6,865 R 20 1900 1800 2 2.1 $ 929 $ 5,800 $ 816 Jun 24

3 07 3052/s $ 10,570 R 20 1980 3274 4 4.1 $ 892 $ 8,000 $ 1571 Owner Occupied

4 07 3053/s $ 7,872 R 20 1900 2416 3 2.1 $ 960 $ 6,000 $ 1178 Jun 23 $ 4,110 $ 25,100

5 NA R 20 2023 2800 3 3.2 TBD $15,000*

* Estimated based on current market conditions

UNIT SUMMARY
UNIT 1

TAX CARD

UNIT 1
PAGE 1
UNIT 1 TAX CARD PAGE 2
UNIT 1 FLOOR PLAN
UNIT 2

TAX CARD

UNIT 2
PAGE 1

CARD

UNIT 2 TAX
PAGE 2

1st FLOOR PLAN

UNIT 2

FLOOR PLAN

UNIT 2 2nd

FLOOR PLAN

UNIT 2 3rd

LOWER LEVEL FLOOR PLAN

UNIT 2

Unit 3 is owner occupied. We do not have images or floor plans at this time for Unit 3

UNIT 3

TAX CARD

UNIT 3
PAGE 1

TAX CARD

UNIT 3
PAGE 2
UNIT 4

TAX CARD

UNIT 4
PAGE 1
UNIT 4 TAX CARD PAGE 2

1st FLOOR PLAN

UNIT 4

FLOOR PLAN

UNIT 4 2nd

LOWER LEVEL FLOOR PLAN

UNIT 4

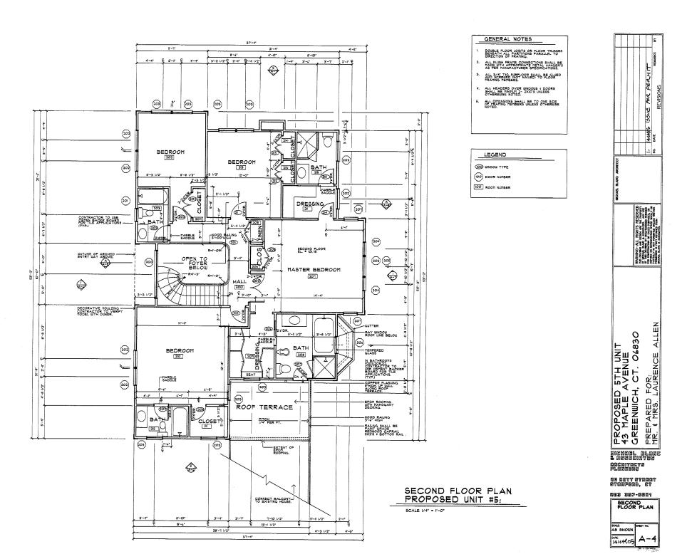
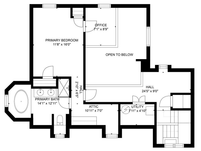
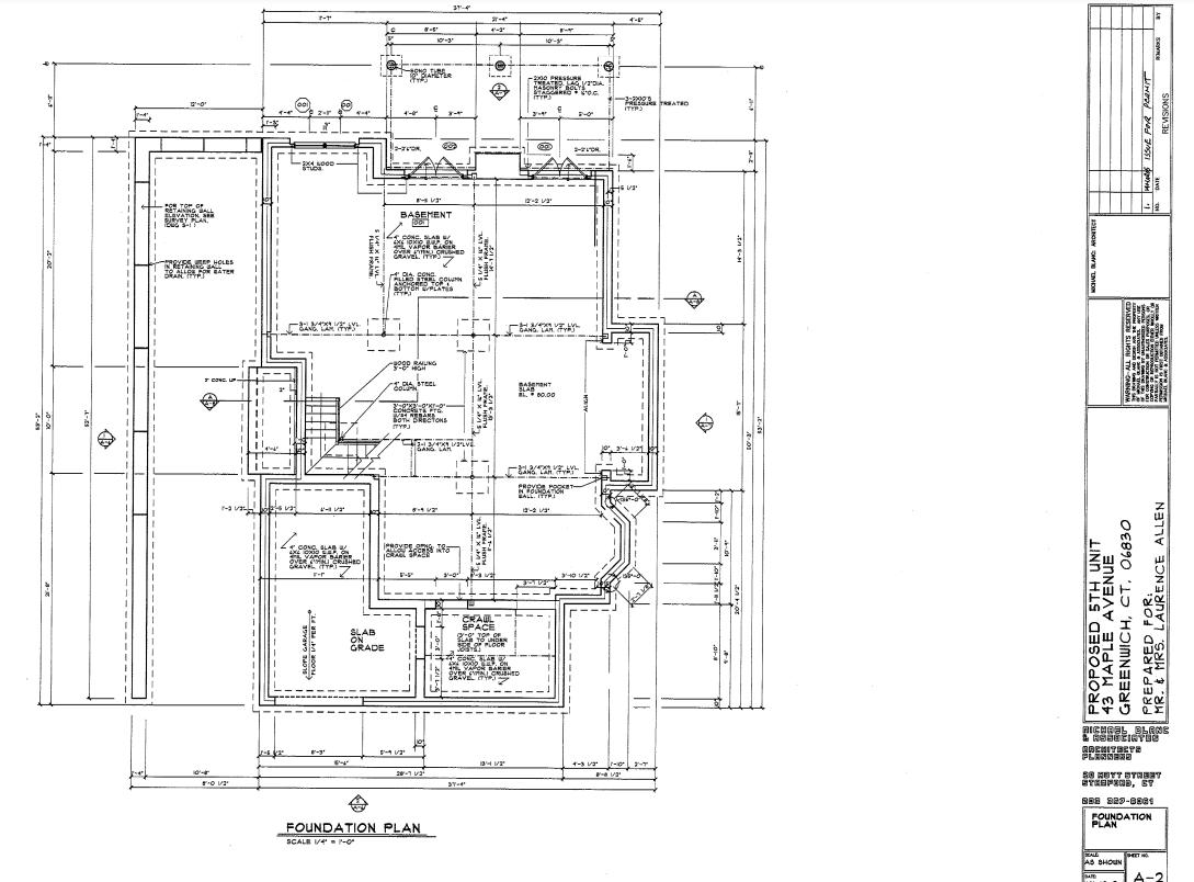
There is an option to build a 5th unit up to 2,800 SF. Following are the site plan, renderings and floor plans for a potential 5th unit.

UNIT 5

ELEVATIONS

UNIT 5

FOUNDATION PLAN

UNIT 5

1ST FLOOR PLAN

UNIT 5

2ND FLOOR PLAN

UNIT 5

Turn static files into dynamic content formats.

Create a flipbook
Issuu converts static files into: digital portfolios, online yearbooks, online catalogs, digital photo albums and more. Sign up and create your flipbook.
43 Maple Avenue Greenwich CT by JenDanzi - Issuu