Skip to main content

77 Sawmill Lane

Page 1

COUNTRY RETREAT WITH CURB APPEAL

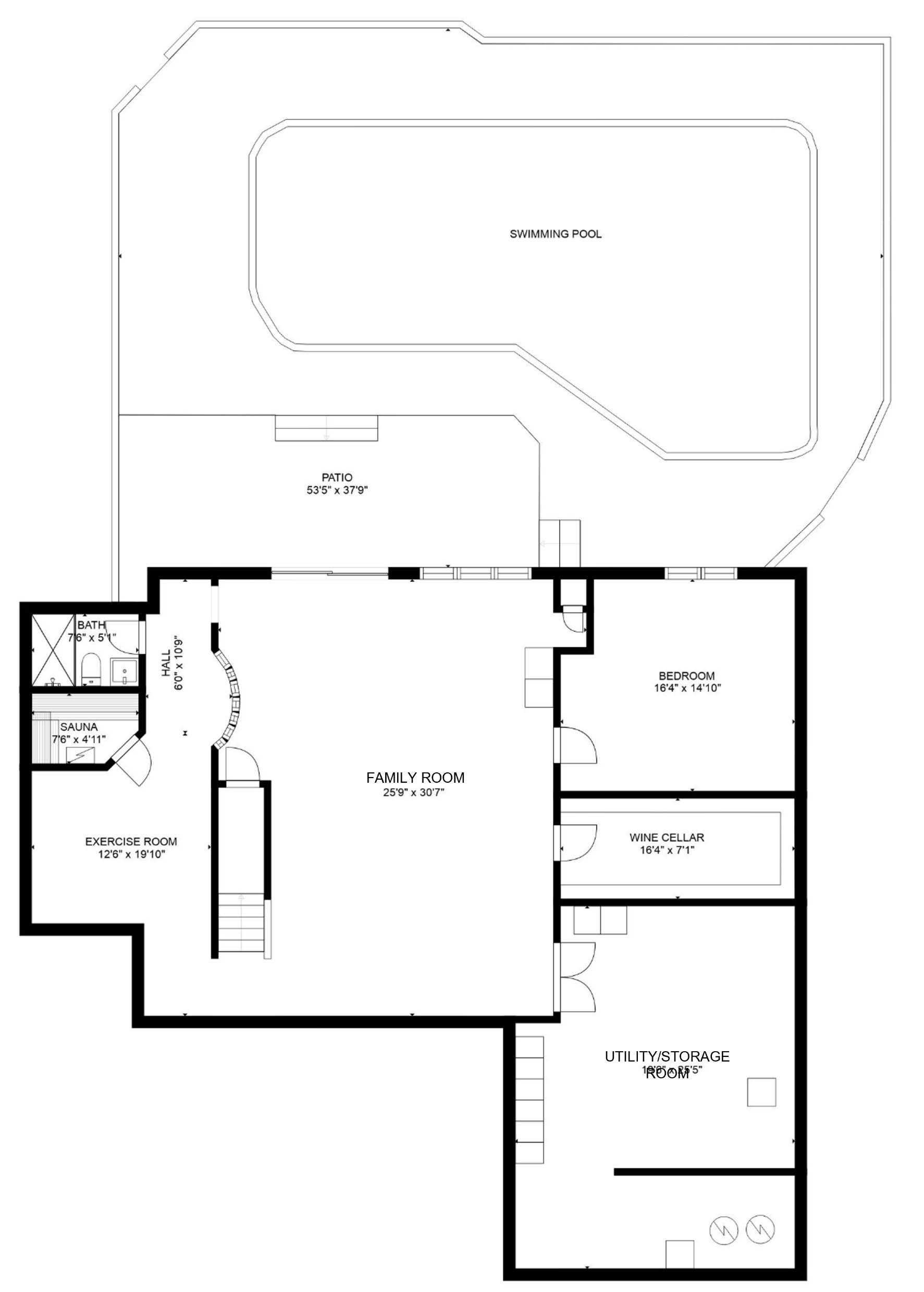
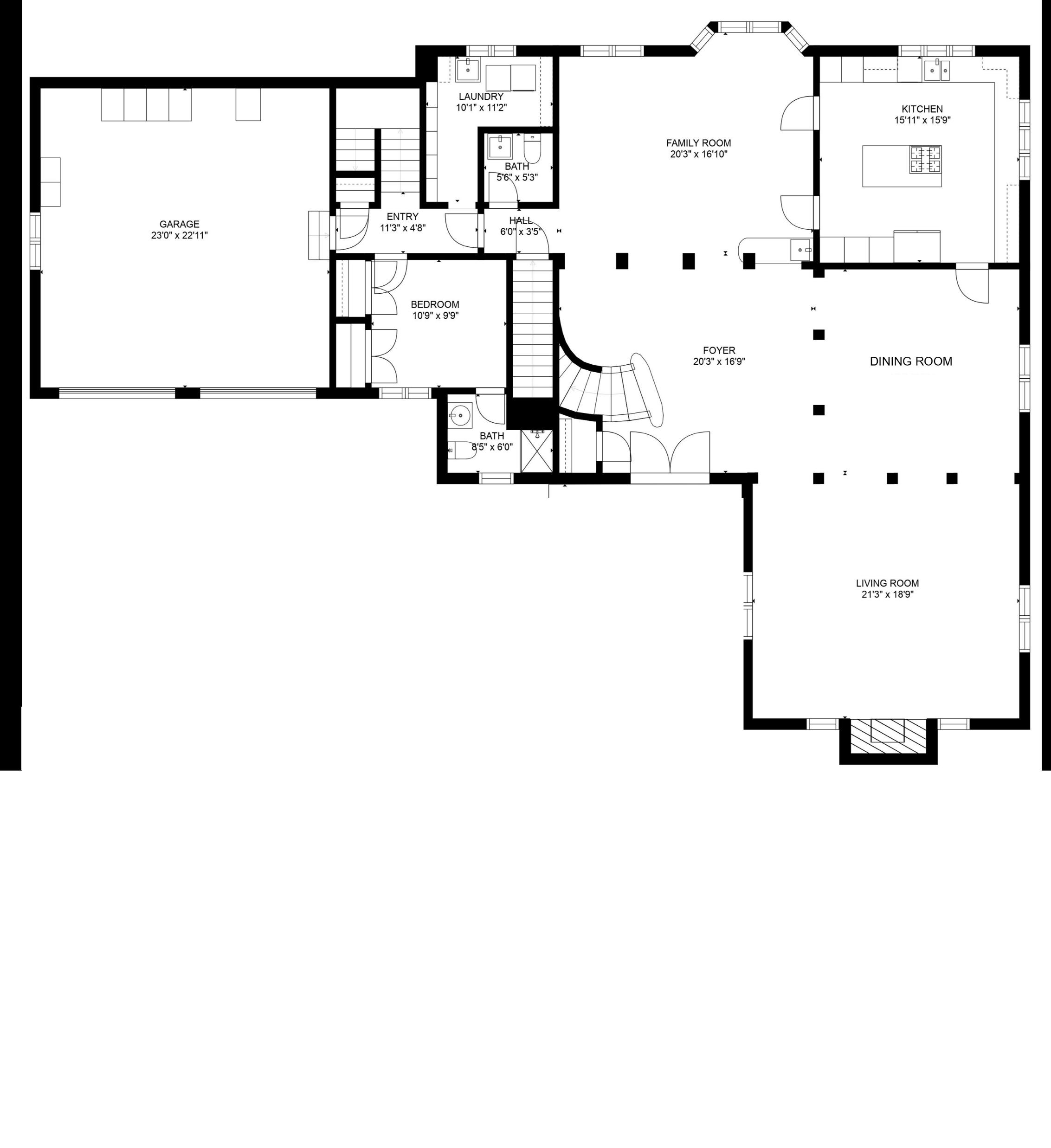
Surrounded by mature trees, lush landscaping and conservation land, this Mediterranean style home on a verdant acre offers plenty of privacy yet it’s close to town, private schools and golf clubs. Accessed by a circular driveway, the house has elegant presence with a grand double height foyer crowned by a crystal chandelier and a curved staircase leading to a gallery balcony. On the first floor, an open plan is enhanced by archways that connect the entry hall to a dining room and living room with fireplace; a well appointed kitchen leads into family room with wet bar with an ensuite bedroom down the hall across from a second staircase. Upstairs houses a primary bedroom and bath with whirlpool tub and separate shower room plus three additional bedrooms and office. Lower level primed for entertaining features a large family room, gym with sauna, wine cellar, bedroom, full bath and glass doors opening out to the pool. Open and airy, the home’s many windows create a connection to nature on this property bordering conservation land.

77 Sawmill Lane
$2,995,000

First Floor Plan

Second Floor Plan

Lower Level Floor Plan

Jen Danzi Tamar Lurie Team realestate@jendanzi.com 646.526.7643 77SawmillLane.com.com

Turn static files into dynamic content formats.

Create a flipbook