P ortfolio.

![]()

An Architecture Graduate with over three years of experience in residential, commercial, and healthcare projects. Skilled in BIM coordination, construction documentation, and navigating NZ and AU building codes, I specialise in developing detailed working drawings and managing project workflows from concept to completion. With a strong problem solving mindset, I deliver functional, high quality architectural solutions that align with both design intent and regulatory standards.
Birth:
Nationality:
Email:
Phone Number:
18/05/1997
Chilean, New Zealander
Jeffhenriquez18@gmail.com
+64 21 146 9360
2019-2021:
Victoria University of Wellington - Master of Architectural Studies (Professional)
Victoria University of Wellington - Bachelor of Architectural Studies
Newlands College, New Zealand - NCEA Level 1, 2, 3 - Excellence
3D Modeling Drafting & Scripting: Autodesk: Revit, ArchiCAD, 3ds Max and Sketchup.
Digital Image & Rendering: Adobe CC: Photoshop, Illustrator, Indesign, Lighting room, Premier Pro, Enscape, Corona, Lumion and Twinmotion.
Soft Skills : Problem solving, attention to detail, team collaboration. Construction methods, healthcare design, specification of materials.
Technical Skills : Construction documentation, BIM coordination, building code compliance.
Languages: Spanish (Fluent) English (Fluent)
October 2024 - Present
January 2022 - October 2024:
July 2021- November 2021:
March 2021 - July 2021:
Virtual Media | Wellington - 3D Architectural Visualiser
CCM Architects | Wellington - Architecture Graduate
Design Builders Ltd | Hawkes Bay - Architectural Graduate / Technician
Victoria University of Wellington - Tutor
DESIGN BUILDERS: BOLD HOUSE.
P - 6 - P 11.
15 LONG STREET, RAGLAN/ WAIKATO 2021

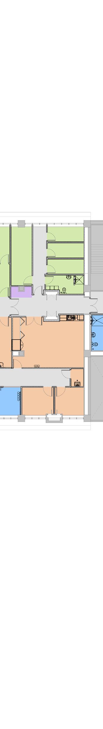
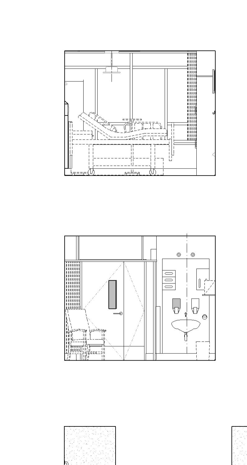
CCM ARCHITECTS: MATERNITY WARD.
P - 12 - P 19.
638 HIGH STREET, BOULCOTT, LOWER HUTT 5010
CCM ARCHITECTS: HOSPITAL RADIOLOGY.
P - 20 - P 25.
49 RIDDIFORD STREET, NEWTOWN, WELLINGTON 6021


04 05 06
BOULCOTT HOSPITAL RENOVATIONS.
P - 26 - P 31.
666 HIGH STREET, BOULCOTT, LOWER HUTT 5011

WEST COAST MENTAL HEALTH CENTER.
P - 32- P 39.
WEST COAST MHU 71 WATER WALK ROAD, GREYMOUTH



MASSEY UNIVERSITY VETERINARY.
P - 40 - P 43.
UNIVERSITY AVENUE, PALMESTON NORTH, TURITEA 4410

Responsible for 3D visualisation, detailed documentation, and compliance for this high end residential project. Developed site plans, zoning assessments, and precise window and door shop drawings to ensure construction accuracy and alignment with local building regulations.
TOOLS: EXPERIENCE:
ArchiCAD Lumion Photoshop Prelimary Design Detailed Design
SITE DATA:
TERRITORIAL AUTHORITY: NAPIER CC
COVENANTS: YES
ZONE: RURAL RESIDENTIAL
ZONE OVERLAY: YES/NO
AREA INFORMATION
EARTHQUAKE ZONE: 3
EXPOSURE ZONE: C
HOUSE GROUND FLOOR: 186 2m² GARAGE: 43 3m²
CLIMATE ZONE: 2
WIND REGION: A
HOUSE FIRST FLOOR: 69 7m² (excl stairs & vo d)
RAINFALL INTENSITY: 60-70
WIND ZONE: HIGH
TOTAL : 299 2m² (Claddings not included)
Total (incl Stairs & Void): 339 5m²
AREA INFORMATION:
COVERED ROOF: 23m² (OUTDOOR LIVING)
HOUSE GROUND FLOOR: 186.2M²
GARAGE: 43.3M²
HOUSE FIRST FLOOR: 69.7M²
STUD HEIGHTS 2455mm, 2605mm, 2755mm
(EXCL. STAIRS & VOID)
TOTAL : 299.2M²
DISCLAIMER
These plans are subject to structural Engineer and Geotechnical Engineer input Resource consent conditions have yet to be sited by Design Build Services Ltd A l informat on contained in these plans are subject to change by the above mentioned cond tions
(CLADDINGS NOT INCLUDED)
TOTAL (INCL. STAIRS & VOID): 339.5M²
COVERED ROOF: 23M²
(OUTDOOR LIVING)
STUD HEIGHTS 2455MM, 2605MM, 2755MM
FLOOR FINISHES:
POLISHED CONCRETE AREA = 77 17m²
TIMBER FLOOR = 14 35m²
CARPET AREA = 116 46m²
TILE AREA = 6m²
DRIVEWAY AREA APPROX= 75 3m²
TOTAL DECK AREA = 68 81m²
BOLD HOUSE - SITE PLAN







Selected board and batten cladding on H3.1 cavity system, over selected RAB. To be installed to manufacturer’s specifications
Selected 70mm brick cladding with raked joints over selected RAB, with 50mm cavity on 120mm rebate. To be installed to manufacturer’s specifications
Selected Colorsteel metal roofing, complete with matching angle capping to hips, ridges and barges. To be installed to manufacturer’s specifications
Selected residential window joinery installed to manufacture’s specifications 1 2 3 4
All dimensions to be confirmed on site prior to fabrication. Confirm thickness of walls and linings as jamb width will vary. Exterior joinery is shown as viewed from the out side. Size of windows have typically been specified. All windows and doors to be double glazed UNO. Tinting, Manifestations, and Opaque finishes as noted. Head, Jamb and sill flashings to be 0.55mm colorsteel. Head flashing to extend Min. 30mm past joinery, and to have stop ends.

TOOLS: EXPERIENCE:
PS3 - For Clinical User Group13/05/2024
PS3 - For Clinical User Group13/05/2024
Worked closely on the maternity ward redevelopment, documenting room data sheets, RCPs, and joinery details. Coordinated with engineers, clinical staff, and the construction team to integrate services and resolve clashes early. Attended user group meetings to translate staff feedback into spatial and operational improvements. All documentation and renders were produced using Revit and Enscape.
OF THE WHOLE OR PART OF THIS DOCUMENT CONSTITUTES AN INFRINGEMENT OF COPYRIGHT WITHOUT APPROPRIATE PERMISSION.
REPRODUCTION OF THE WHOLE OR PART OF THIS DOCUMENT CONSTITUTES AN INFRINGEMENT OF COPYRIGHT WITHOUT APPROPRIATE PERMISSION.


QS3 - For Steering Group Sign Off 13/05/2024
QS3 - For Steering Group Sign Off 13/05/2024
RS3 - For Information 16/05/2024
Revit Enscape Photoshop
RS3 - For Information 16/05/2024
Concept Prelim Prelimary Design Detailed Design
SS3 - ISSUED FOR COORDINATION 29/05/2024
SS3 - ISSUED FOR COORDINATION 29/05/2024
TS3 - ISSUED FOR COORDINATION 18/06/2024
TS3 - ISSUED FOR COORDINATION 18/06/2024


US3 - IIG REPORTING ISSUE19/06/2024 VS3
US3 - IIG REPORTING ISSUE19/06/2024 VS3 - 65% DETAILDESIGN05/07/2024























BS3 -
DS3 - ISSUED FOR COORDINATION 29/05/2024
ES3 - IIG REPORTING ISSUE19/06/2024 • Sheet Renumbered FS3 - 65% DETAILDESIGN05/07/2024











FULL HEIGHT WALL WITH 2 x 13mm GIB X-BLOCK FOR RADIATION SHIELDING UP TO 2.4m min.
TO
LEAD LINED DOOR TO EQUAL RADIATION SHEILDING OF WALLS X-RAY BARRIER WINDOW SET, LEAD GLASS IN GALVANISED FRAME
FULL HEIGHT WALL WITH 2 x 13mm GIB X-BLOCK FOR RADIATION SHIELDING UP TO 2.4m min.
FULL HEIGHT WALL WITH 2 x 13mm GIB X-BLOCK FOR RADIATION SHIELDING UP TO 2.4m min.
FULL HEIGHT WALL WITH 2 x 13mm GIB X-BLOCK FOR RADIATION SHIELDING UP TO 2.4m min.
EXTEND EXISTING UNDER SLAB PENETRATION LEAD SHIELDING TO NEW FLOOR BOX PENETRATION LOCATIONS.
FULL HEIGHT WALL WITH 2 x 13mm GIB X-BLOCK FOR RADIATION SHIELDING UP TO 2.4m min.
NOTE: REFER TO DETAILS FOR LEAD SHIELDING TO PENETRATIONS
RELOCATE EXISTING UNDER SLAB PENETRATION LEAD SHIELDING TO NEW PENETRATION LOCATIONS.
FULL HEIGHT WALL WITH 2 x 13mm GIB X-BLOCK FOR RADIATION SHIELDING UP TO 2.4m min.
ENSURE GIB X-BLOCK IS CONTINUOUS AROUND ROOM
RELOCATE EXISTING UNDER SLAB PENETRATION LEAD SHIELDING TO NEW PENETRATION LOCATIONS.
ENSURE GIB X-BLOCK IS CONTINUOUS AROUND ROOM
13mm TOUGHLINE PLASTERBOARD
13mm STANDARD PLASTERBOARD
JAMB PACKER
LEAD CORE DOOR LEAFREFER TO SPECIFICATION FOR LEAD THICKNESS, HIGH PRESSURE LAMINATE FACED WITH CONCEALED LEAD LINING AND ANODIZED AL. END CAP
2 PART COLD ROLLED GALVANIZED STEEL JAMBREFER TO SPECIFICATION FOR LEAD THICKNESS ADDITIONAL LEAD LINING
2 LAYERS OF 13mm GIB X-BLOCK
2 LAYERS OF 13mm GIB X-BLOCK
2 LAYERS OF 13mm GIB X-BLOCK X-BLOCK
2 PART COLD ROLLED
GALVANIZED STEEL JAMB WITH LEAD LINING - REFER SPECIFICATION FOR LEAD THICKNESS
LEAD SHEILD WINDOW SET IN GALVANISED FRAMEREFER SPECIFICATION FOR LEAD THICKNESS
JAMB PACKER
DOUBLE 90 x 45mm SG8 FULL HEIGHT TIMBER
POSTS 13mm STANDARD PLASTERBOARD
EXISTING TIMBER FRAMING, ADD ADDITIONAL TIMBER
SUPPORTS AS APPROPRIATE
LEAD SHEILD WINDOW SET IN GALVANISED FRAMEREFER SPECIFICATION FOR LEAD THICKNESS
2 PART COLD ROLLED GALVANIZED STEEL JAMB WITH LEAD LINING - REFER SPECIFICATION FOR LEAD THICKNESS
2 LAYERS OF 13mm GIB X-BLOCK JAMB PACKER
TYPICAL POWER & DATA OUTLETS - REFER ELECTRICAL DOCUMENTATION
LEAD SHEILD WINDOW SET IN GALVANISED FRAMEREFER SPECIFICATION FOR LEAD THICKNESS
2 PART COLD ROLLED GALVANIZED STEEL JAMB WITH LEAD LINING - REFER SPECIFICATION FOR LEAD THICKNESS
2 PART COLD ROLLED GALVANIZED STEEL JAMB DOOR SET SOLID CORE HIGH PRESSURE LAMINATE DOOR
2 LAYERS OF 13mm GIB X-BLOCK
13mm WATER RESISTANT PLASTERBOARD
90 x 45mm TIMBER FRAMING
2 LAYERS OF 13mm GIB X-BLOCK
STANDARD PLASTERBOARD
90 x 45mm TIMBER FRAMING
13mm STANDARD PLASTERBOARD
13mm TOUGHLINE PLASTERBOARD
90 x 45mm TIMBER FRAMING
REFER TO WALL TYPE SCHEDULE FOR WALL FRAMING SIZE & LININGS 90 x 45mm TIMBER FRAMING
1 PART COLD ROLLED GALVANIZED STEEL JAMB DOOR SET
SOLID CORE HIGH PRESSURE LAMINATE DOOR
LEAD CORE DOOR LEAFREFER TO SPECIFICATION FOR LEAD THICKNESS, HIGH PRESSURE LAMINATE FACED WITH CONCEALED LEAD LINING AND ANODIZED AL. END CAP
ADDITIONAL LEAD LINING
2 PART COLD ROLLED GALVANIZED STEEL JAMBREFER TO SPECIFICATION FOR LEAD THICKNESS
TYPICAL POWER & DATA OUTLETS - REFER ELECTRICAL DOCUMENTATION 365 (C.O.S.) 13mm STANDARD PLASTERBOARD 90 x 45mm TIMBER FRAMING MITEK STUD SAVER
2 LAYERS OF 13mm GIB X-BLOCK
JAMB PACKER JAMB PACKER 90 x 45mm TIMBER FRAMING
2 PART COLD ROLLED GALVANIZED STEEL JAMBREFER TO SPECIFICATION FOR LEAD THICKNESS
ADDITIONAL LEAD LINING
SCOTTY
LEAD CORE DOOR LEAFREFER TO SPECIFICATION FOR LEAD THICKNESS, HIGH PRESSURE LAMINATE FACED WITH CONCEALED LEAD LINING AND ANODIZED AL. END CAP
ELEVATION - SERVICE PANEL TO CONTROL ROOM 7 1 : 5 @ A1 2-A370
2 PART COLD ROLLED GALVANIZED STEEL JAMB WITH LEAD LINING - REFER SPECIFICATION FOR LEAD THICKNESS LEAD SHEILD WINDOW SET IN GALVANISED FRAMEREFER SPECIFICATION FOR LEAD THICKNESS 2 LAYERS OF 13mm GIB X-BLOCK JAMB PACKER DOUBLE 90 x 45mm SG8 FULL HEIGHT TIMBER POSTS 13mm STANDARD PLASTERBOARD
13mm STANDARD PLASTERBOARD
EXISTING FRAMING
DOUBLE 90 x 45mm SG8 FULL HEIGHT TIMBER POSTS
JAMB PACKER
LEAD SHEILD WINDOW SET IN GALVANISED FRAMEREFER SPECIFICATION FOR LEAD THICKNESS
2 PART COLD ROLLED GALVANIZED STEEL JAMB WITH LEAD LINING - REFER SPECIFICATION FOR LEAD THICKNESS
2 LAYERS OF 13mm GIB X-BLOCK
ELEVATION DETAIL - TYPICAL MSP TO CATH LAB 1 AND 2 10 G
DOUBLE
MAIN CONTRACTOR SHALL VERIFY ALL DIMENSIONS ON SITE BEFORE COMMENCING WORK. DO NOT SCALE OFF DRAWINGS. IF IN DOUBT ASK. THIS DRAWING SHALL BE READ IN CONJUNCTION WITH ALL RELEVANT DOCUMENTS. REPRODUCTION OF THE WHOLE OR PART OF THIS DOCUMENT CONSTITUTES AN INFRINGEMENT OF COPYRIGHT WITHOUT APPROPRIATE PERMISSION.
MITEK STUD SAVER REVISIONS
2 LAYERS OF 13mm GIB X-BLOCK
EXISTING TIMBER FRAMING, ADD ADDITIONAL TIMBER SUPPORTS AS APPROPRIATE
DOUBLE 90 x 45mm SG8 FULL HEIGHT TIMBER POSTS
JAMB PACKER
LEAD CORE DOOR LEAFREFER TO SPECIFICATION FOR LEAD THICKNESS, HIGH PRESSURE LAMINATE FACED WITH CONCEALED LEAD LINING AND ANODIZED AL. END CAP
2 PART COLD ROLLED
2 LAYERS OF 13mm GIB X-BLOCK EXISTING FRAMING
LEAD SHEILD WINDOW SET IN GALVANISED FRAMEREFER SPECIFICATION FOR LEAD THICKNESS
GALVANIZED STEEL JAMBREFER TO SPECIFICATION FOR LEAD THICKNESS ADDITIONAL LEAD LINING
2 LAYERS OF 13mm GIB X-BLOCK
2 PART COLD ROLLED GALVANIZED STEEL JAMB WITH LEAD LINING - REFER SPECIFICATION FOR LEAD THICKNESS
2 LAYERS OF 13mm GIB X-BLOCK
2 LAYERS OF 13mm GIB
G
2 PART COLD ROLLED GALVANIZED STEEL JAMB WITH LEAD LINING - REFER SPECIFICATION FOR LEAD THICKNESS LEAD SHEILD WINDOW SET IN GALVANISED FRAMEREFER SPECIFICATION FOR LEAD THICKNESS
JAMB PACKER
DOUBLE 90 x 45mm SG8 FULL HEIGHT TIMBER POSTS EXISTING PLASTERBOARD
13mm STANDARD PLASTERBOARD
EXISTING FRAMING
DOUBLE 90 x 45mm SG8 FULL HEIGHT TIMBER POSTS
JAMB PACKER
LEAD SHEILD WINDOW SET IN GALVANISED FRAMEREFER SPECIFICATION FOR LEAD THICKNESS
2 PART COLD ROLLED GALVANIZED STEEL JAMB WITH LEAD LINING - REFER SPECIFICATION FOR LEAD THICKNESS
2 LAYERS OF 13mm GIB X-BLOCK
2 LAYERS OF
ELEVATION DETAIL - SERVICE PANEL TO CONTROL ROOM 9 1 : 5 @ A1 2-A370
ELEVATION DETAIL- SERVICE PANEL TO PROCEDURE ROOM 6 1 : 5 @ A1 2-A370
24/10/2023 F FOR TENDER 17/11/2023 1 FOR CONSTRUCTION 26/05/2024
LEAD CORE DOOR LEAFREFER TO SPECIFICATION FOR LEAD THICKNESS, HIGH PRESSURE LAMINATE FACED WITH CONCEALED LEAD LINING AND ANODIZED AL. END CAP
2 PART COLD ROLLED GALVANIZED STEEL JAMBREFER TO SPECIFICATION FOR LEAD THICKNESS
JAMB PACKER JAMB PACKER 90 x 45mm TIMBER FRAMING
2 PART COLD ROLLED GALVANIZED STEEL JAMBREFER TO SPECIFICATION FOR LEAD THICKNESS
2 LAYERS OF 13mm GIB X-BLOCK ADDITIONAL LEAD LINING ADDITIONAL LEAD LINING
LEAD CORE DOOR LEAFREFER TO SPECIFICATION FOR LEAD THICKNESS, HIGH PRESSURE LAMINATE FACED WITH CONCEALED LEAD LINING AND ANODIZED AL. END CAP




Worked on the renovation of an active hospital wing, focusing on the design and documentation of the new Daystay Facility. Helped plan patient bays, improve circulation, and ensure compliance with fire and healthcare standards. Coordinated flashing details, seismic junctions, and the integration between old and new structures. Gained valuable experience working with existing building constraints, balancing technical challenges with patient-focused design.
TOOLS: EXPERIENCE:
Revit
Enscape Photoshop
Concept Prelim
Prelimary Design
Detailed Design
Tender - Building Consent Site Observation
Construction
EXTERIOR OR BUILDING SHELLNEW CONSTRUCTION
INTERIOR LAYOUT ALTERATIONS AND OR FITOUT
MINOR INTERIOR ALTERATIONS
AREA NOT AFFECTED BY DEMOLITION WORKS






















Worked on documentation and material selection for a new mental health facility, focusing on creating a calm, welcoming environment. Helped develop the exterior design using Accoya timber and contributed to interior spaces like the reception and bedrooms, using natural materials and soft colors to support patient comfort and healing.









































































































































































Designed and documented the covered entrance walkway, ensuring a clean integration of handrails, cladding, and building services. Helped resolve downpipe conflicts by coordinating a discreet drainage solution, keeping the path clear and maintaining a seamless, minimal exterior for the new facility.
TOOLS: EXPERIENCE:
Revit
Enscape
Photoshop
Concept Prelim Prelimary Design
Detailed Design
































































































































E nd.