Portfolio Stupa 7

Page 1

JEFFERSON SARIPUTRA Portofolio

315200057

Dosen Kelas: Rudy Surya, M.M., M.Ars.

Program Studi Perancangan Arsitektur

Universitas Tarumanagara

Semester Genap 2023/2024

7
Stupa
Dosen Pembimbing: Eduard Tjahjadi, Dipl. Ing T - Library

JEFFERSON SARIPUTRA

Hallo, perkenalkan nama saya Jefferson Sariputra dikenal sebagai Jefferson. Saya seorang mahasiswa arsitektur semester 7 di Universitas Tarumanagara.

Saya memilih jurusan Arsitektur karena dengan arsitektur saya dapat mempeluas pola pikir dan menemukan jati diri yang sesungguhnya. Saya tidak akan berhenti mengeksplorasi dan mencoba hal-hal baru untuk meningkatkan skill saya dalam mendesain dan menciptakan karya baru

Jeffersonsputra@gmail.com

instagram.com/jeffersonsputra

Curriculum Vitae

Education

2020 - Present Jakarta, Indonesia

Universitas Tarumanagara

Bachelor of Architecture

2017-2020

SMA Katolik Ricci 1

Senior High School

Experience

2021

Jakarta, Indonesia

Ketua Bidang Seminar HUT IMARTA - SKETSA Ke-33

Bertanggung jawab atas keberlangsungannya Seminar "Feng

Shui Pasca Pandemi: Implementasi dalam Ruang Kerja"

2020- 2021

Panitia Marketing dan Komunikasi Majalah Sketsa Edisi 36

Menjalankan program kerja dalam mempromosikan majalah sketsa dan membuat konten instagram

Skill

SketchUp

AutoCAD

Adobe Photoshop

Lumion

Enscape (Beginner)

Photogrpahy

Curriculum Vitae

C o n t e n t

Table of
01 02 03 04 05 Profil Proyek Konsep Rancangan Program Aktivitas Gubahan Massa Gambar Kerja

Profil Proyek 01

T - Library

Lokasi Luas Program

: Petojo Utara : 3750 m2 : Perpustakaan & Co - Working Space

T- Library menampilkan bangunan yang memiliki 2 tower yang menyediakan program utama perpustakaan Pemilihan program perpustakaan ialah untuk menjadikannya tempat penunjang bagi anak sekolah tingkat SD hingga SMA, pegawai kantoran sekitar tapak dan masyarakat sekitar Petojo Utara

3 T-Library | Profil Proyek
4 Jefferson / 315200057 T-Library |
Profil Proyek

02

Konsep Perancangan

Konsep bangunan ini diambil dari konteks bangunan sekitar yang memiliki massa geometri persegi dan terdapat sentuhan unsur lengkung yang membuat bangunan ini lebih terlihat modern dan fleksibel Perpustakaan ini memiliki suasana ruang yang berbeda dengan perpustakaan pada umumnya dan terdapat Ruang Terbuka Hijau yang luas dikarenakan lokasi tapak yang sangat minim dengan Ruang Hiaju

5 T-Library | Konsep Perancangan

Library as Community Holders

Perpustakaan pada zaman dahulu hanya dikunjungi oleh orang-orang yang gemar membaca buku, kurangnya minat membaca oleh kalangan masyarakat indonesia menyebabkan Indonesia berada di peringkat 62 dari 70 negara

Perpustakaan ini dibuat untuk meningkatkan minat tingkat baca yang dimulai dari kawasan Petojo Utara, sehingga tipologi yang baru membuat tempat ini menjadi pusat komunitas masyarakat sekitar tetapi masih didukung oleh pusat aktivitas utama yaitu perpustakaan

Penyediaan skate park dan tangga menciptakan area komunal yang baru pada bagian area depan bangunan. Memperlihatkan sisi welcome kepada pengunjung bangunan.

6 Jefferson / 315200057 T-Library | Konsep Perancangan

Program Aktivitas 03

Membaca Buku Working Berdiskusi Bersosialisasi

Komposisi Design

Terdapat bukaan berupa jendela yang saling berhadapan agar menciptakan cros ventilation

Menciptakan masa penghubung agar memudahkan pengunjung

Menciptakan 2 m penghubung p bangunan.

Menciptakan ruang terbuka hijau agar bangunan lebih hidup dan menambah tingkat RTH pada lingkungan tapak

Memudahkan pengunjung agar dapat mengakses ke penjuru ruang

Secondary sk perforated plate cahaya yang berlebih

7 T-Library | Program Aktivitas
Berkomunikasi Meeting Event New Makan kin
menggunakan untuk menciptakan masuk agar tidak
8 Jefferson / 315200057 T-Library | Program Aktivitas
Masa dengan fungsi program perpustakan dan Co-working space dengan penciptan suasana ruang yang baik

Peletakan masa mengikuti garis bentuk tapak dan penyesuaian dengan konteks bangunan sekitar Dan masa sudah di potong oleh GSB dan penyesuaian KDB

Masa dibentuk menjadi 2 tower, dan terdapat penghubung untuk memudahkan sirkulasi pengunjung, menciptakan cross ventilation untuk sirkulasi bangunan agar terlihat lebih hidup.

Masa dibagi sesuai dengan porsi program ruang yang akan diterapkan kepada bangunan ini serta menciptakan landscape untuk sirkulasi pejalan kaki.

Memberikan bukaan berupa jendela pada bagian luar masa agar cahaya alami dapat masuk ke dalam bangunan

04
9
T-Library | Gubahan Massa

Menambah masa bangunan yang diperuntukan sebagai program ruang pada bangunan ini

Membuat masa di push kebawah untuk menciptakan ruang dengan suasana yang berbeda dan meletakan penghijauan pada baigan atapnya Serta menciptakan sirkulasi untuk kendaraan

Penggunaan secondary skin berupa perforated plate yang berguna untuk meminimalisir cahaya alami dan ruang yang butuh privasi lebih.

Detail hasil akhir gubahan masa dan penambahan penghijauan untuk mencegah kebisingan dan menciptakan udara yang baik.

10 Jefferson / 315200057 T-Library
| Gubahan Massa
11 T-Library |
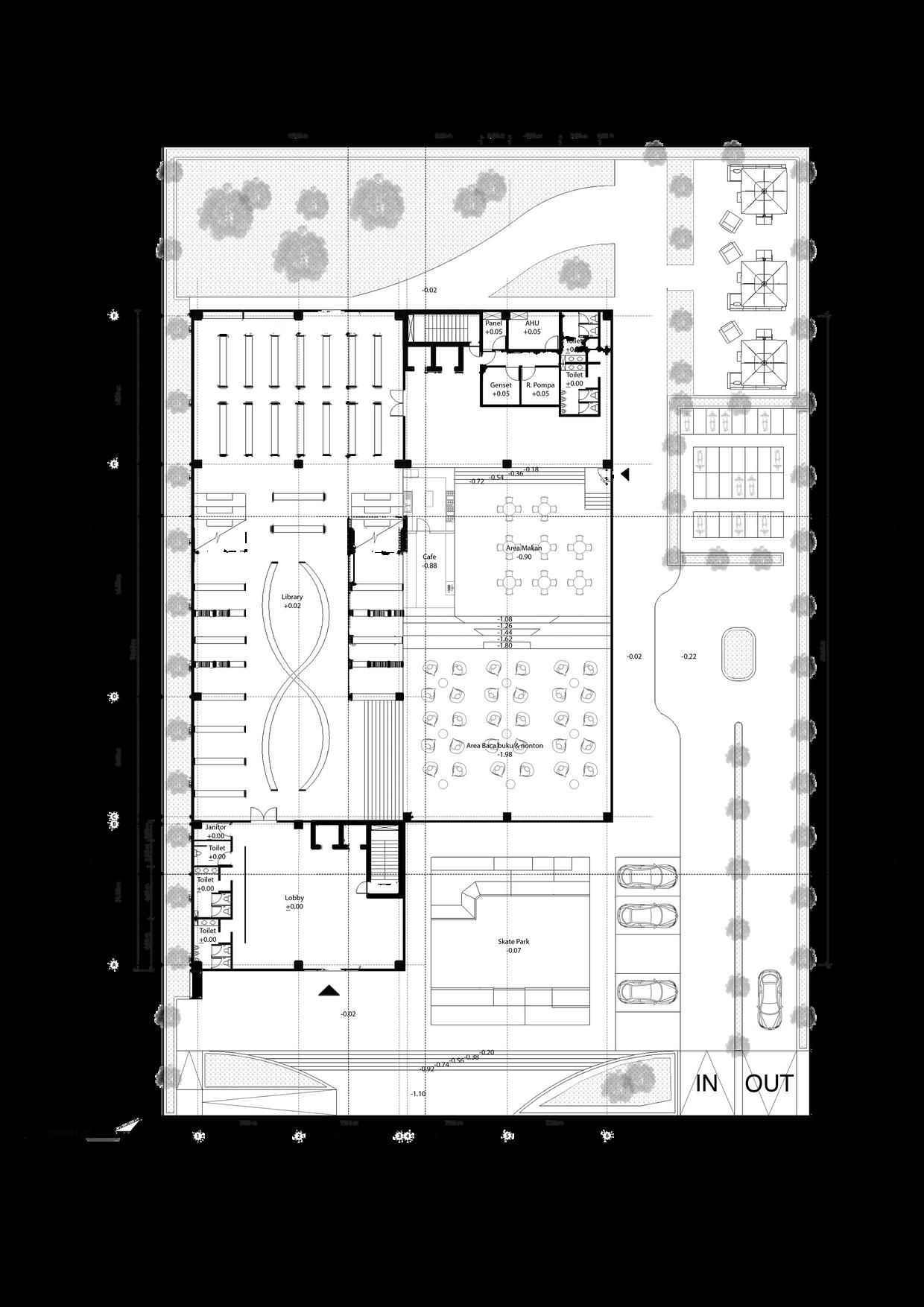
Kerja
Gambar
12 Jefferson / 315200057
T-Library | Gambar Kerja
13 Jefferson / 315200057 T-Library | Profil Proyek
14 Jefferson / 315200057
T-Library | Gambar Kerja
15 Jefferson / 315200057
T-Library | Gambar kerja
16 Jefferson / 315200057
T-Library | Gambar Kerja
17 Jefferson / 315200057
T-Library | Gambar kerja
18 Jefferson / 315200057
T-Library | Gambar Kerja
19 Jefferson / 315200057
T-Library | Gambar kerja
20 Jefferson / 315200057
T-Library | Gambar Kerja
21 Jefferson / 315200057
T-Library | Gambar Kerja
22 Jefferson / 315200057
T-Library | Gambar Kerja
23 Jefferson / 315200057
T-Library | Gambar kerja
Visualisasi Eksterior 24 T-Library |
Gambar Kerja
Visualisasi Eksterior
Jefferson / 315200057
25 T-Library | Gambar Kerja
26
|
Jefferson / 315200057
T-Library
Gambar Kerja
2023 Studio Perancangan Arsitektur 7 Scan QR Code for Animation Video T-Libary - Perpustakaan & Co - Working Space

Turn static files into dynamic content formats.

Create a flipbook
Issuu converts static files into: digital portfolios, online yearbooks, online catalogs, digital photo albums and more. Sign up and create your flipbook.