

SOUTH COMPLEX NAMING OPPORTUNITIES
The Jacksonville State University College of Health Professions and Wellness (CHPW) is a learning-centered community that provides distinctive professional undergraduate and graduate programs to prepare students to engage with global health professions, wellness, and sport environments as ethical professionals and involved, culturally sensitive, responsible citizens.
The CHPW offers six undergraduate majors:
• Nursing
• Respiratory Therapy
• Exercise Science and Wellness
• Health and Physical Education
• Sport Management and Recreation
• Public Health
Each of these majors prepares students for immediate job placement in their chosen major or to pursue a graduate degree.
The CHPW offers five graduate programs including:
• Nursing, Masters, Doctor, and Nurse Practitioner (on-line)
• Athletic Training, Masters (hybrid)
• Sport Management, Masters (on-line)
• Physical Education, Masters, 5th year (on-line)
• Public Health, Masters (hybrid)
The CHPW also offers two on-line programs for current Nurses and Respiratory Therapists who desire to pursue their bachelor’s degree:
• RN to BSN
• RRT to BS program

BUILDING (Naming) | $15M
COLLEGE of Health Professions & Wellness (Naming) | $15M
• School of Nursing | $5M
DEPARTMENTS (Naming) | $1M
• Respiratory Therapy
• Kinesiology
SOUTH COMPLEX NAMING OPPORTUNITIES
DEAN’S SUITE AND OFFICES

DEAN’S SUITE

DEAN’S SUITE OFFICE

DEAN’S CONFERENCE ROOM
The College of Health Professions and Wellness Dean’s Suite in the Jax State South Complex is a sophisticated and professional space designed to support the administrative and leadership functions of the college. This suite includes private offices for the Dean and key administrative staff, a welcoming reception area, and a conference room equipped with advanced technology for meetings and presentations. The suite is designed with modern furnishings and decor, providing a comfortable and efficient environment for staff and visitors alike. Its strategic location within the South Complex ensures seamless collaboration and communication across the College of Health Professions and Wellness.
SOUTH COMPLEX NAMING OPPORTUNITIES
CLASSROOMS

NURSING CLASSROOMS

Our state-of-the-art classrooms are designed to enhance the learning experience for our nursing and respiratory therapy students. These spacious rooms are equipped with modern technology, including high-definition projectors, interactive smartboards, and surround sound systems to ensure clear audio-visual presentations. With a focus on creating an optimal learning environment, our classrooms supports both traditional and innovative teaching methods, preparing students for success in their health profession careers.
$100K EA.
SOUTH COMPLEX NAMING OPPORTUNITIES
STUDENT COMMONS & DINING COMMON AREA

STUDENT COMMONS DINING AREA

The Student Commons is the heart of South Complex, offering a vibrant and welcoming space for students to relax, socialize, and engage in various activities. This versatile area features comfortable lounge seating, communal tables, and study nooks, catering to both group gatherings and individual study needs. Equipped with high-speed Wi-Fi, charging stations, and a variety of food and beverage options, the Commons is the perfect spot to unwind between classes.
SOUTH COMPLEX NAMING OPPORTUNITIES
TEAM ROOMS

1ST FLOOR TEAM ROOM

Our team rooms are dynamic spaces designed to foster collaboration and teamwork. Equipped with comfortable seating, conference tables, and advanced audiovisual equipment, rooms are ideal for group projects, meetings, and study sessions. These rooms feature high-speed Wi-Fi, multiple charging stations, and a whiteboard for brainstorming and planning. With their welcoming atmosphere and versatile layout, the team rooms provide an excellent environment for students to work together, exchange ideas, and achieve their academic goals.
TEAM ROOMS (3 available)
$10K EA.
SOUTH COMPLEX NAMING OPPORTUNITIES

RT LAB

RESPIRATORY THERAPY LAB

IV LAB OR LAB

SOUTH COMPLEX NAMING OPPORTUNITIES

OBSERVATION ROOM

DEBRIEFING ROOM

NURSING ARTS LAB

ATHLETIC TRAINING LAB
SOUTH COMPLEX NAMING OPPORTUNITIES
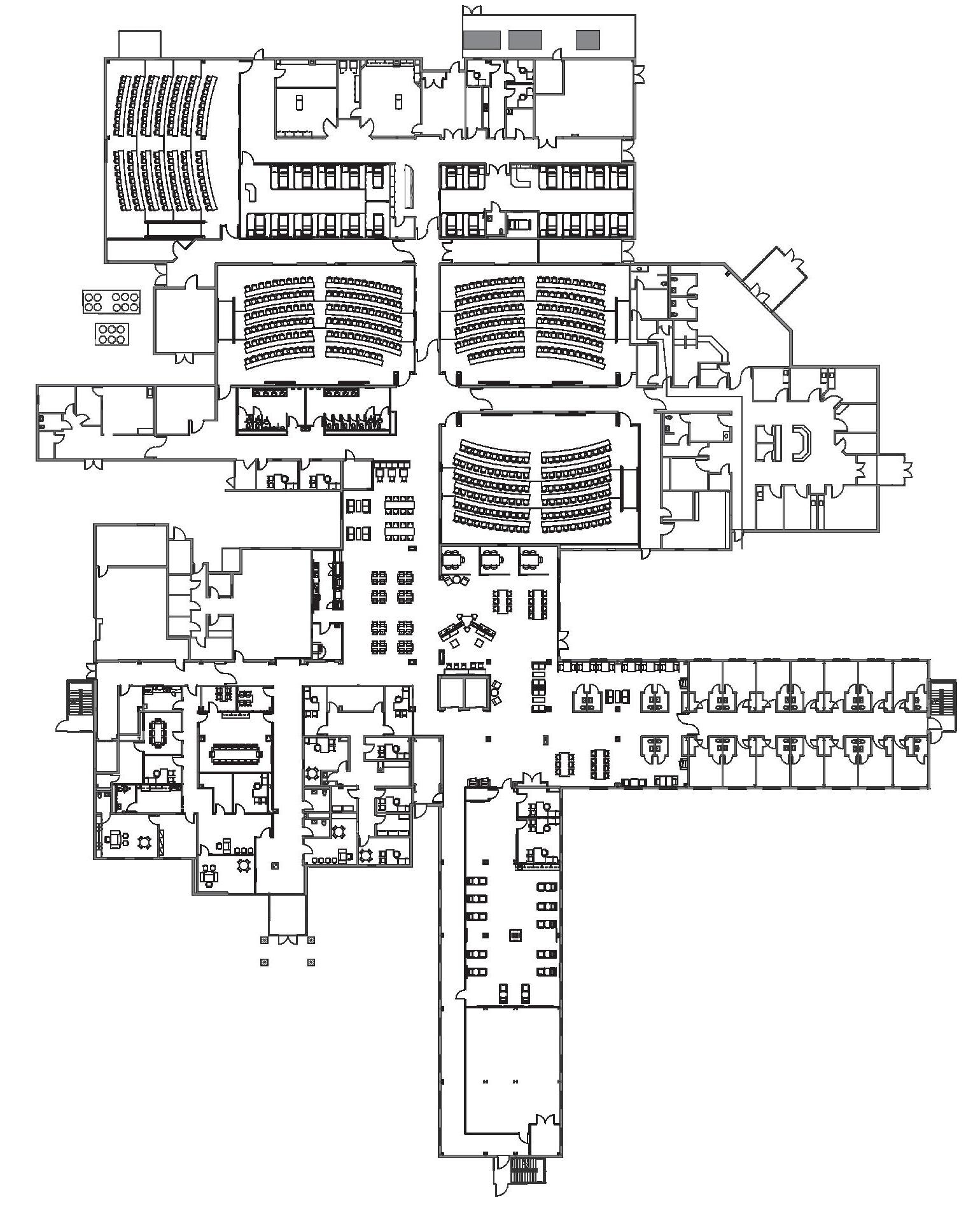
1ST FLOOR
Dean’s Suite
Dean’s Office
Dean’s Conference Room
Employee Lounge
Lactation Room
Student Commons
Dining Area
Classroom 1
Classroom 2
Classroom 3
Classroom 4
Athletic Training Wing
Athletic Training Lab
Athletic Training Offices
Nursing Wing
Nursing Arts Labs
Nursing Skills Lab
IV Room
Operating Room (OR)
Educational Resource Room
Team Room 1
Team Room 2
Team Room 3
Outdoor Courtyard
$100,000

SOUTH COMPLEX NAMING OPPORTUNITIES
2ND FLOOR
Respiratory
Respiratory
Respiratory Therapy Large Classroom
Respiratory
Second
Second
Second

College of Health Professions and Wellness
South Complex 1701 Pelham Road South Jacksonville, AL 36265