Skip to main content

MH Design.衍相建築

Page 1

國立台南藝術大學 建築藝術研究所創意創作組 研究生 黃茗宏 TNNUA
HONG HUANG
A 衍相建築
for Architecture
MING
PORTFOLO
Derivative

2022 - 2023

MING HONG HUANG

CONTENTS

2022-2023 PORTFOLO MING HONG HUANG

目錄

前言 衍相建築- 復返之前

第一章 復相返衍的起始

第一節 復返

第二節 國界

第三節 不在

第四節 空間的暫時性

第二章 空間漫延的過程

第一節 整體

第二節 間隔

第三節 複疊

第四節 外緣

物的形狀

來自於裡面的樣子

日常的內與外

不斷翻轉的自身歸處

第三章 建築創作

01 - First Project 復返之間  修道院 複層相生 間隔相接

02 - Second Project 徊內之在 集合住宅

而這個行為也是下意識的希望它能整整齊齊的。我們在我們的認知裡認為的秩序,也是由無秩序所形成的。偶然的成為有條理的依據,所以產生出來的型為,並沒有所謂永恆的秩序。 秩序的無秩序 物件處於單一狀態時,任意的排列或是層疊的樣貌都能完整辨認存在的形式,而當兩種相異的秩序所並置,擠壓的形變因為兩者相異特質瓦解原本的秩序後往失序共體發展,物與物之間的縫隙進而成為辨認空間相互擠壓的衍生體,秩序與無秩序的對照形成了一種共生關係。秩序之外的失序 個體的物以推疊與擠壓成為了一 個整體,介入空間也被空間介入,相互對照並且多重解讀,內部 的空被壓縮為垂直排列下的面, 建立在我們一直以來的概念,意味著大部分的個體集合後或許會成為一個整體,不刻意的刻意形成內部空間的秩序。混亂被當作是一種連續性的秩序,求取短暫 和跳動的秩序。 可見的整體錯置、分開,成為每個不再整齊的個體,在失序後成為了新的秩序。這樣的現象不斷的發生在每一個地方,虛與實的間與格以形式化後的模式存在,用最刻意的方式去成為最普通的 樣子。 存在中的增生 好比說工作者需要的是工作的地方,但是他並未想到對於生活的有所需求,於是未被使用到的空間成為了生活所需的匯集之處。或許我們一開始便認為建構好整體的樣子,設定了內部應該會長成什麼形狀,直到後來因為生活的需要,增生了一個被包裹的空間,並非完全的封閉,而是創造隔離卻又保有隱私的,可以將外在納入的空間。

所為秩序 或許不過是我們對於人為擺放的 行為下,所產生 的認知概念。

返衍建築 復返之前

前的整理,直到建築成形後才能清楚建築的樣子,然而人也是隨著形成的建築在裡面活動著,因此未整理的地方是必須存在的,因為並沒有所謂完美的建築,在建築未被建築之前,建築早已存

轉瞬的擦身而過 人的一生都在擦身而過,而你或者對他們一無所知,一些事情在你毫無所覺發生在你的身上,而這些你無法預測。如同人形走在街上的道路,經過那個與自己無關的巷口,儘管它在人的身旁,那個空間是路徑的切開點,在人的意識裡沒有存在,只是不斷地 被經過。 安於現狀將道路 挖開再拼湊回原本的樣 貌,每個行為都是一種回歸的方式。就像是人對於生活的活法是一個循環,接受著裡所當然的生活規範,最後沿著時間再回歸到原本的形狀。在建築形成之前,有個還原於最純粹的環境狀態。我以路徑與範圍瞭明建築存在的 裡所當然。 安於現狀 是整體成形

我的所在,透過內與外的活動形成不斷的延續性,這樣的行為或許是徒然的,卻也將內部與外部 的區隔切斷,揭開真實的存在。

間才得以有存在的詮釋意義。因為對自我意義的存在思考,我們得以從存在與信仰之間產生的面與縫隙下移動與往返,流動的人群並不記得留下任何事物,但透過行為延續反映了空間的存有,並且裝載發生過的每一件 事。以

真實的延續 以二十三歲的我來說能否清楚表明我的所有與一切經歷。無論如何描寫,我仍舊無法還原完全, 正因為如此,每個行為在

不斷的迴性路徑 就像我們水管的盡頭會是哪裡,時常思索這個問題,但事實上本質是水在裡面的流動,終歸回應到相同的所在。這種迴性引領著我們探索,它並沒有所謂的起點與終點,開始跟結束沒有必然性。穿梭與此的有各種的人與需求,在此因為更大的存在而佔有 著

不斷行走之間

建構屬於自

Derivative for Architecture 關於被遺忘的所在 台南,六甲/ 2022 - 2023
復返

衍相,是當我思考建築處於 什麼環境之下,關於空間漫延透過行為逐漸孿生的部分。也可以的身體經驗。

衍相建築

沒有所謂的盡頭 台北,台北地下街 /

就如同在數學中已知的函數或序列推導出新的函數或序列的過程, 這個推導過程是基於我們已知的 透過建築來說明,我們的身體與視線身處於行走能到達的路徑之中,所有的事件都在意料之內,人 那是路徑無法進入的原點,成為了一道界限,徑外是我們所見的畫面,徑內是無法接觸的邊界。好比

直到那個沒有 的遠方

復相返衍的起始

/ / / 空間的暫時性 I

在此水面的倒影將空間一分為二, 成為最基本的一種起始 。

當下的行為,往還與反復之間形成一個「

在此復返並不是一個重複來回走動的行為,而是將 物相與型為延伸至整體不斷重複辯證自身的實存, 更是將空間的圍離,進而走向一種無違的承受,不 排除其它的可能性,

證明自我的存在。

動作,在往返之間一個

」是一種空間的重複與實相,呈現每個滯留 下所能置身與停留的位置。「

而是接受其他的衍生,從而

復 /返 「復相
返衍」意指在每個
空間漫延 的狀態 。

這樣的存在得以讓人事物有秩序地呈現出彼此存在的樣貌,如果沒有邊界,人或許還身處 在來回往返失序的狀態

一段隱匿於地平線之中,卻真切存在的插曲,就如同在兩國之上的居所、跨越國家的圖書 館,這樣的形成是由對立兩方境地的側緣狀態所交疊而成的一種無形邊界,其間隱含著若 隱若現的矛盾與衝突,

卻又並置於一道界線之上。

國 界

我們所見的事物經由光線照射,不論是直射或是偏射,照映出的實體讓空間出現了偏差。然而當光線照射下的那一刻,彼此兩端是必然的出現,而彼此的內外區別,是一種偶然。就像如同被切割的平面,空間成為被迫的形成。迫使我們不斷的追求另一端的存在。當邊界形成之後出現了劃分與佔據的行為,本身被賦予建築的定義,也如同被區分之後重新分配自身的所在

當人在冰層之下,我們會原發性的一直找能夠到達的地方,當對於路徑失去方向性時,是對於某一種向性的終止而歸於自然,不在的方向性才是所在的方向。這是理解關於空間存在邊界的一件思考,我們習慣 將空間以上

所認識的方向只是人類自己建立的觀念。當我們站在地球上,以地球的引力為基準,我們感知到的上下方向是相對的。但如果我們站在 太空中遠

下左右去定義方向,但這些定義是否真實存在呢 ? 或許我們

不再是不可碰觸的未盡,是一種在此與在彼的狀態,就好比空間實牆與實牆之間的區隔, 僅是在接觸無法可觸的空域。

離任何引力源, 方向的概念 是 否還有意義

? 作為存在的邊緣

圍 外 不 在
不去哪裡,才是哪裡。
台南,六甲/

Georgia Railway and Power Company,Streetcar Pyramid,Atlanta,GA,c. 1950

一個又一個獨立的個體,相互的距離原本是多麼無所相干與疏離,但是處 於疏離下的並列與自我,成為了構成一切的本因。因為這樣堆疊與排列產 生的邊緣,讓物與物之間的從屬關係,介於在必然與非必然的邏輯。

物件疊加的外緣,對比擠壓至擠壓的裡邊

一種自身狀態。

關係。透過介入的實質,讓原存界線的 與

的介入,讓外緣疊合所凝聚的而成的

,轉譯為另一種

的樣貌是藉由相對兩者關於

這樣兩處對望的狀態形成聯繫的

「邊界」

彼此的對應。

一個螻蟻都到不了的空間。

人性膨脹的邊緣
亦此亦彼
我們終將成為同一條線 台南,官田/ 屏東,恆春/ 屏東,恆春/ ,直至
「 他 者 」

我們都會在外表的皮層嘗試發現什麼,好 比說甘藍真正的存在並非是外圍,而是由 層層的葉片堆疊形成。我們可以接受外表 皮層的掉落,但是無法忽略其內部核心的 存在,因為內部的組成是物件的靈魂。常都只是藉由一個面的表現去回應整體的 空間,如同腳踩在樓地板一樣,我清楚我 在哪裡。就像猴子在樹林之間移動,牠不 在乎每枝樹枝的高度,他仍然能夠辨別空

空間的暫時性

動只是為了尋找所謂的方向,真正的空間 並非由表面可以表達出來,我們只是區隔 了我們過往的認知,劃分所謂地面與天空 這一道界線。

間的形動。我承接了自己所認知的位置,所以我能夠辨別周遭的向度。好比說室內空間由六個面組成,但是沒有 邊界的邊緣打破了面與面銜接的縫隙,這 是一種 打開空間的暫時性

兩種向度的混雜與交融 屏東,牡丹/

,就像不停的移

線,有可能大家不會在規畫好的線裡面等待。透過 縫隙蔓延至各個角落,堆衍生出自體的空間,還原 對於空間的佔有,像雕塑一樣形塑一個類似物狀的

可以說是幾乎消失的牆體認知不再完整,產生身體 的在場性。 好比說就像排隊的人一樣,一旦沒有了警戒

一道平面被切開,使人進入空間的衍生,

Model.2

乎會混在一起,甚至呈現一條線 間的內與外無法明確。就 像在森林裡面走路,並沒有辦法依循著象徵去表現方向分別。這是純粹在空間內找尋原 始的存在,一種游離於外圍。

樓層概念是為了讓地面上的 單位面積增加能使用的範圍或是讓使用機能在面積上能夠樓層疊 加而增加。 海平面跟堤岸重疊,界線幾

空間的暫時性

我們都在同一平面上 《1959 年11 月23 日》 屏東,恆春/ 林壽宇 油彩 畫布 51 x 41 cm
20 cm x 17 cm 22 cm x 13 cm 你成為了我,我成為了你,沒有邊緣的所在 返衍 No.2 返衍 No.1 復相 No.2 復相 No.1
Model.1

空間漫延的過程

/ / / II

意識那一刻起,觸摸那個距離我們最近的物體,我們便對物有了初步的認知,理解有菱有角、帶有邊緣,成為了描述物的形狀。就像我們在幼兒時總會希望自己拿到的東西都會是完整的,我們才會想要珍惜它,這是一種內心的冀望,如此才 能證明它最真實的存在。建築的整體,或許就像一塊積 木,因為可以被排列、被堆疊,同時自身又是完整的,構成完整的邊緣而存有著。 好比說如果一個人的一生只在一個空間裡生活,儘管這個空間是無限的,但是生命有限。有限的時間裡面在無限的空間留下自己的足跡。對他來說這 些事件構成了空間的邊緣。最初對於建築的認知源於柱樑 板牆的型構,以「整體」描述建築的樣貌,使得形狀得以賦名,而後以「物」為意義,讓「物」在土地之上建造,是對於土地邊緣的漫衍,建築聚集,成為人類所棲居與活動的所

在生命的開始,從我們有

物的形狀/

屏東,枋寮/ 凝聚與歸納

CONCEPT 01

集合與層疊 高雄,鹽埕/

往上建造,努力的將我們 能使用的空間越擠越多

最常發生的事情了。我們所注意到的就像是不斷一直重複這個行為直到個體成為了整體,最後的體由人為下的行為產生,人類透過控制去決定空間所該有的樣子。

就像我們一直將房子

空間本質,什麼也沒有改

我們都是一樣的/

的樣貌,不斷的去塑造將它成為我們能使用的樣 整體的不完整由虛與

實去構成,主體上本質重新組織了一次, 而使用的

最後形成了名為透天厝的形貌,卻沒有一處能透天 的地方。

建築維持整體該維持

為同一物/ 來自相同的地方/

疊起來才是對的/

CONCEPT 01
1-1
Model.01
1-2 1-3 1-4 1-5 2-1 2-2 Model.02
層疊/ 似乎是任何現象下,

質是水在裡面的流動,終歸回應到相同的 所在。 這種迴性引領著我們探索,它並沒有所謂的起點與終點,更無關乎是否有物在其中隔絕,所謂的開始跟結束沒有必然性。穿 梭與此的有各種的人與需求,在此因為更

就像我們會思考水管的盡頭會是哪裡 呢 ? 我們時常思索這個問題,但事實上本

的樣子的,兩者之間由布幕的不確定性分別延伸出內與外的空間,內部增長了填充空間,外部肆意堆疊出個體漫延的整體狀 態,阻隔成為了一種分域的空間邊緣。

物體被布幕隔絕後我們是看不見裡面

大的存在而佔有著。 兩樣不同的物體,會透過彼此的特性 合而為一,又或者就像混合物是由兩種或更多種不同的物質組合而成,這些物質在混合後保留各自的特性。混合的物質每個成分仍然是其自身,並且可以根據特性進行分離或結合。就像一個住家不只會有房間,它會有公共區域與私人領域,而公共區域又有好幾個不同的空間,私人領域又有不同的人住的不同房間。然而我們習慣原本的樣子會是什麼,於是我們習慣在看見外表的時候開始定義這應該是什麼形 貌,但是我們並未碰觸它最真實的樣子。

高雄,前鎮/

開,或許進入就是一種再進入,也許間隔的定義本身並沒有正確解答,我們只是不斷的碰觸到答案的邊緣,或許這就是最接 近建築的樣貌。

在思索的當下,不斷地進入建築又離

隔的內外邊緣 外表是從何決定的

CONCEPT 02
來自於裡面的樣子/
屏東,枋寮/

什麼時候以什麼型態顯現,因為沒有遮蔽,所以它就不會有顯現。被樹影遮蔽的陽光。

真理不作為真理,所以隱藏了自己, 不讓你看見的原因,因為它還不是 真理。

係,以人為的構成去塑造了所謂的空域,而自然透

在海岸沿著消波塊步行,直至到了盡頭,海水仍然在我的身旁。閘門阻隔了海水,海水仍然在它 的身旁。

兩者並不是相互獨立的關

過創造的域,

延伸至行為下創造的海平面。以塑造出來的空,乘載自然所形成的間,或許在物之上,空間是在本質的延伸或擴展。

CONCEPT 02 進入不只是一種離開
高雄,前鎮,IKEA/ 屏東,枋寮/ 屏東,枋寮/ 屏東,枋寮/ 自然與人為
Model.01
塑型/
Model.02
我們都不知道裡面是什麼東西

採集著的置放

好比被施工車輾壓 的平面留下了胎痕,重複經過輾壓過後的泥土不斷成為新的多餘部分,一個不斷的行為,我分不清楚哪一些是新的哪一些是舊的,這些泥土是一種必然的離性狀態,被排除在外部同時存在於裡面,在一個平面上它成為了不斷的 複疊,看似相同,卻沿著差異性連結直到那一個不再有車痕的彼方。

一個景象在越模糊 的時候,我只能拼命的瞇起眼睛好讓我容易對焦,對於物件清楚與眼睛張開動作恰巧成為了一個相反動作。透過壓縮的動作,我對於物的認知只能以最外在的形 象去定義。

類似通過集合的呈 放,做為一個整體呈放於眼前,他是一個在場的帶向,存在也只是一個暫時性,進入於沒有遮蔽的狀態而持存出

的物品集中在同一個地方,也或許把不同的物品好好整理起來,這樣整理的聚集成為了憶起 呈放於眼前的發生。

我們始終會把相同

CONCEPT 03 日常的內與外/ 高雄,桃源/ 高雄,南化/
高雄,桃源/ 不斷被建構又破壞的邊緣 密度下的距離與建構

對於道路來說他是 一個末端點,只是收納在其他道路裡面。我還不知道與我不想知道,藉由彼此去凸顯彼與此的不同,這是開始與自我末端的銜接點,就好比於信仰,到達一個終點是為了將過去的所有集結到了另一個起點,

顯了彼此的差異,卻也不是互相獨立。由一個半型,最後構成了全 兩地之間最短的距 離並非一直線,而是在彎繞的替選路徑間分歧

不間斷地行走到這一個 聚合,

透量,規則是每回混亂一次的持與讓,然後嘗試著重新排列。每個單

定的空間裡移轉,有時被一定量的盡處移轉,有時走至盡處而沒有遞 補路線。

透過狹與窄的路徑

折路線。路徑在一

元個體呈現與整體集合後,才能檢視關於意識與直覺的全貌。

CONCEPT 03
Model.01 Model.01 Model.02 Model.03 Model.03 Model.02 Model.04
盡處/ 高雄,桃源/ 台南,官田/ 密度/
" 延續下去 " 體

無法移動,也像是如同房間一樣寬敞,無法感覺到牆的存在,進入也是一種離開,也許人只需要用那菲薄的空間,而走到 自己的顯處。 這裡要說明的是,一般對 於人的印象來自於他對我們的行為顯現,於是我們在習慣的角度下看向那一個面向所在, 但是對於顯現與否,卻也是同 時的在另一個向度與另一個行為形式被我們看見。不斷的移動中,事物被排除在外緣,也同時存在於裡面。

這樣的空間,可以是螻蟻

不斷翻轉的自身歸處/

因為接受了彼此的不完

整,相信並且延續同源的存在,這是一種慣性,也成為一種貫性,擴張而增長。當一個人見到另一個人會檢視他的哪裡與自己不一樣,從懷疑到後來慢 慢接受,好比個體之間的集合 產生了縫隙,空間產生了未明瞭的空白,不再以之間區分界線,界線不再是平面上的距離 延伸、盡處,佔據了空間

的位置,形成了可看見卻到達不了的地方,對人來說是不方便與無法使用的,對於物來說是有意義的、可用的,建築的完整不是在於我們的可用,而 是在一種不見但又能見到的整 正因為物質的存在,了解

了物的物性後才能定義它,我無法否定的正是因為它與我發生了行為,它的自身因而顯現出來。這樣的去鞏固它的空間,我並不需要證明它存在。

高雄,桃源/ 彼方也是此方

CONCEPT 03

體的探索直線之內,試圖將空間重組,探究意識與牆體這兩者的關係,是否是一種 滯留。

外緣,這並不是透過進入而進入空間,就像「你我之間有一堵牆,我對你說話但你 在另一邊」,它不在人

裝載的工具盒/ 包裹的外殼/ 裡邊/ 空間配合著裡邊發展了

塑了另一種關於原本的邊界 與輪廓,去除了對於物的邏

東西,總是以既定的念想把東西放在被歸類好的格子內,到最後東西填滿後我才認為 這物件才被真正的使用。

於是被裝載的背面,形

因為想要整理好每一件

像空間,習慣於我們習慣的空間,也許只記得裡面靜止的樣貌,忘記活動的行走,雖然我們能在空間作動,但 是關於路徑因此被隱藏了。

輯思考而展現出來,成為了再建構的一種定義。

我們常以樓層的量體想

CONCEPT 03 高雄,前鎮,IKEA/ 關於它的空間
Model.01
建築創作 修道院 / 集合住宅 復返之間 / 徊內之在 III
Congregate Residence
Convents

一種不完整塑造更完整的輪廓。我們無法預知建築的完整,只是在起承轉合的省思 而追尋著。

在生命裡人是一個又一個獨立的個體,人與人相互的距離是多麼不相干且疏離,也因為彼此不相容的獨立性,生出適切奇特的並列性,每個人處在不完整卻又完整的 狀態裡面。 建築在成為建築之間,

即使建築仍然以圍離、複層呈現,而這裡建立了屬於移動的行走方式。

創造屬於自身的複層空間做為彼此間的界線存在 , 卻又介於之間 , 延伸平面之外的一個居所與修道所在 。

PROCTECT
建築創作 01 復返之間 修道院 複層相生 間隔相接
01

/ 物型

烤麵包機的外殼褪去之後,原本的內部與外部猶如正反面被翻轉,這時候的內部與外部已無分別,本質上來自於一體成形的機 械內部。 就像是原本的「 我 」抽離掉外 在之後,內在的本質與行為開始被認知與看見,驅使我所動作的內部就像是機械中的個體,一個又一個的發揮作用並且被看見,各物各就其位,無物不在其位。看似無所相關,但也因為彼此的 不完整,完整的將整體串聯。

褪去之後 開始顯現的裡面

摺疊工具箱體產生的空間圍離隱喻,內部是二至三層的置物空間,而外部是箱殼。內部透過折疊所產生的微離空間,經由歸納 過後放置不同屬性的物品, 部再一次進入到內部。

由內部再次進入內部

「 對那些經過卻沒有進入的人而言,這座城市是一個樣子,對那些深陷其中不再離開的人,則是另一個樣子。」 -伊塔羅˙卡爾維諾

關於 ABOUT
依據之體

屏東,佳冬/

的試圖拉回一個起始的平面,才能讓事情繼續延續下去。

回到平整的形貌,好比說我們看見空盒子,總是想到能否將雜物放進去,讓盒子發揮我們認為它所原有 的功用。 我想只是在每個時刻裡創造它

的形貌,因為行為而成為了下個動作滯留的所在。 那麼為何我們仍然想看見它能

回歸原本的樣子 凹處的空間是人為作用下產生

不斷的在不同路途轉換與停留,為了尋找勞贖之路上的歸途。

如同修士進入修道院後是摒棄往後餘生投入修行,這個行為就

路徑行走思考的想像,在移動中我們只想著抵達目的地,並不 存在著穿越樓層之間,它們只是依附路徑上連結片段的狀態。

像生命翻轉,而

被看見一般,質性相同的範圍裡所產生的離合,修士勞動與思索的 本質並不存在 穿越樓層

之間,它只是依附於路徑連結片段的狀態,

的本質沒有改變,將外殼褪去就像翻轉樓層

所產生的實存, 將這些無法回歸

概念與組成 ABOUT
01 02 03
機能組成 FUNCTION 概念模型01 概念模型03 概念模型02 概念模型04 存在於
自體延續
「生」

段狀態,不斷的在不同路途轉換與停留,只為了尋找下一個目的地的地方。或許真實的地方,是一個在我們往返的路徑上所看見的縮影。

因為世界是由無數的路徑所組成,建築原來也只是依附在路徑上連結的片

我總會在路途上計算著到下一個目的地的路程,到後來才發現只是我的潛

意識不斷的被重複罷了。

藉由摺疊箱體產生的空間圍離隱喻由內部 再次進入到內部而追尋信仰的過程性。

行走的修士通過壓迫、開闊與路線轉折的的身 體經驗去追尋自己的信仰,脫離過去修道院修 士日常的固定規範,

十四個空間是停留也是經過的地方,向上

耶穌生命中最後一段路 耶路撒冷/ 「復返之間」

耶穌最後十四路口 每一處 都是獨立的個體

概念來創作的建築空間,由耶穌在受難記走過 的 「苦路默思十四站」

既定距離的空間體驗。

歸納下表面產生的空間

轉而由盒狀空間之間非

構思透過路徑將空間串

01 02 03 04
關於復返 一種日常
樓板是另一個平面的起始 視域連結的重疊實像 自存場域的表象輪廓
是透過折疊 與樓層翻轉的

轉折路口作為垂直移動的轉折點

十四個空間的路徑串聯

修道院以一種「復返」的方式不斷的堆疊,成為修士行走下的認知,明瞭及體現了邊緣。

路徑組成
FUNCTION

臺南 東區 勝利路

利用過後所留白的空地

進入建築的路徑

土地高密度開發下巷弄空間產生的內地,反映人們對於土地開發慾望的結果。就像是被放大的畸零地,透過巷弄蜿蜒路徑成為進入建築的開始,也是修士追尋自身的開始,透過內地將空間的外與內打開,在此求道是 被看見的。

路徑組成
FUNCTION
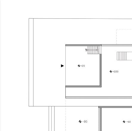
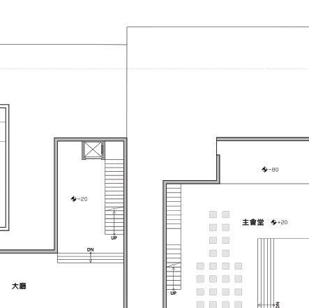
平面圖 PLAN 1F PLAN 2F PLAN 3F PLAN 4F PLAN

將講堂設置在第三樓層是為了再次 強調求道思索本質的行為,透過階梯步行向上直到最後的樓層以圍離做為水平面,十四個路口做為一條路徑,影響修士活動與停留的空間。

告解室與集會堂對於修士是內在與

1F 主會堂
3F 房間 3F 講堂 PERSPECTIVE VIVE
被乘載的內部 因為我們相信信仰,所以將主會堂
設置在最底層,支持一路向上求道的修 士
外在的反思與聯繫,因此設置在第二樓層透過行走到達的機能

圍裡所產生的離合,重新塑造並且延伸空間與空間的距離。 外在的聯繫內在的反思

就像樓層翻轉般,在質性相同的範

空間的蔓延-延外

建築的簍空空間,如同修士求道過程中反映內心自我,四道圍牆對應七件聖事回應至建築之上,將不完 整的畸零地塑造完整的修道院

透過建築之外的圍牆,映射於

映射至 內心的自我

PERSPECTIVE VIVE

不同於一般的修道院來建立系統,停下的轉折點象徵人的不完整是追求生命的經過, 在此思索的不是得道結果,是生命復返的追尋過程,塑造不完整中更完整的輪廓。

空間的背面 PERSPECTIVE VIVE

沒有樓層的所在

不斷地被覆蓋與重述 。 沒有邊界 , 沒有樓層 。

牆體的延伸將物型回歸本體,內部 的牆體同時是整體的外面,開放的表層卻無形取代完整封閉的實牆,始終意識 不到卻不自覺的走完整棟住宅,此空間

的集合住宅,將建築的牆體定義為一道中心,實牆的存在並沒有辦法定義路徑的走向,而是區分居住的私域與活動的空域。樓板並不是層數的參考點,而是 每一次的復返是垂直移動的延伸。

這是一棟對於樓層並沒有明確定義

處於沒有辦法卻又透過邊界

者對於存在的事實

集合住宅徊內之在
, 影響居住
PORTFOLO 衍相建築 Derivative for Architecture
MING HONG HUANG

Turn static files into dynamic content formats.

Create a flipbook