Phase 2 Residential Interior Project

Page 1

Brodeur Home

Residential Home Simulation Phase II jasmyne buenrostro residential design jmoorman april 8th

The Sanctuary

Your home is your relaxation after a long day of work or school. Here you can kick off your boots and lay in your cozy couch away from the noise. That is, until Hudson and Bentley come home to snuggle up right next to you. A slight chill from your open window reminds you of the scent of the countryside with hues of sweet grass and fresh air. A simply perfect life with a simply perfect home.

2022

Vision Mission

Compliment your daily routines in making them easier to accomplish for all members of the household

To provide functionality for daily use and visual appeal to those within the space

Existing Floor Plan
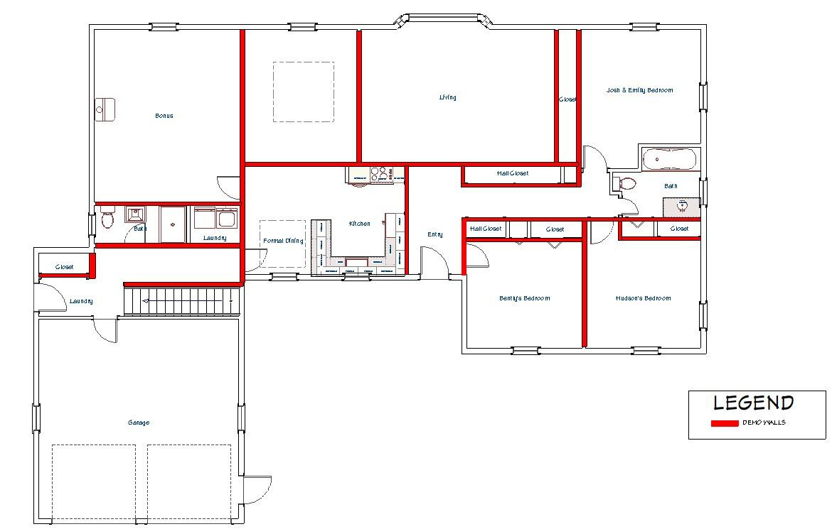
Demo Plan

Proposed Furnishing Plan

Materials & Finishes

Backsplash Tile

Shower Tile

Hudson's Wallpaper

LVT Floor

Porcelin Tile Flooring

Grouted Pebble

Office & Master Bedroom Wallpaper

Bentley''s Wallpaper

Emilly & Josh's Bedroom Furnishings

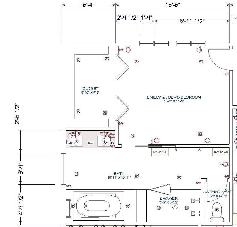
Emilly & Josh's Bedroom Floor Plan
Emilly & Josh's Bedroom Perspective

Josh's Office Furnishings

Josh's Office Floor Plan
Josh's Office Perspective

Hudson's Furnishings

Hudson's Bedroom Floor Plan
Hudson's Bedroom Perspective

Bentley's Furnishings

Bentley's Bedroom Floor Plan

Bentley's Bedroom Perspective

Powder Room Floor Plan
Perspective
Powder Room
Perspective
Powder Room
Watercloset Perspective

Thank You

Turn static files into dynamic content formats.

Create a flipbook
Issuu converts static files into: digital portfolios, online yearbooks, online catalogs, digital photo albums and more. Sign up and create your flipbook.