412 Harrison Street Resume

Page 1

For Lease

412 Harrison Street Kalamazoo, MI 49007

Property Overview

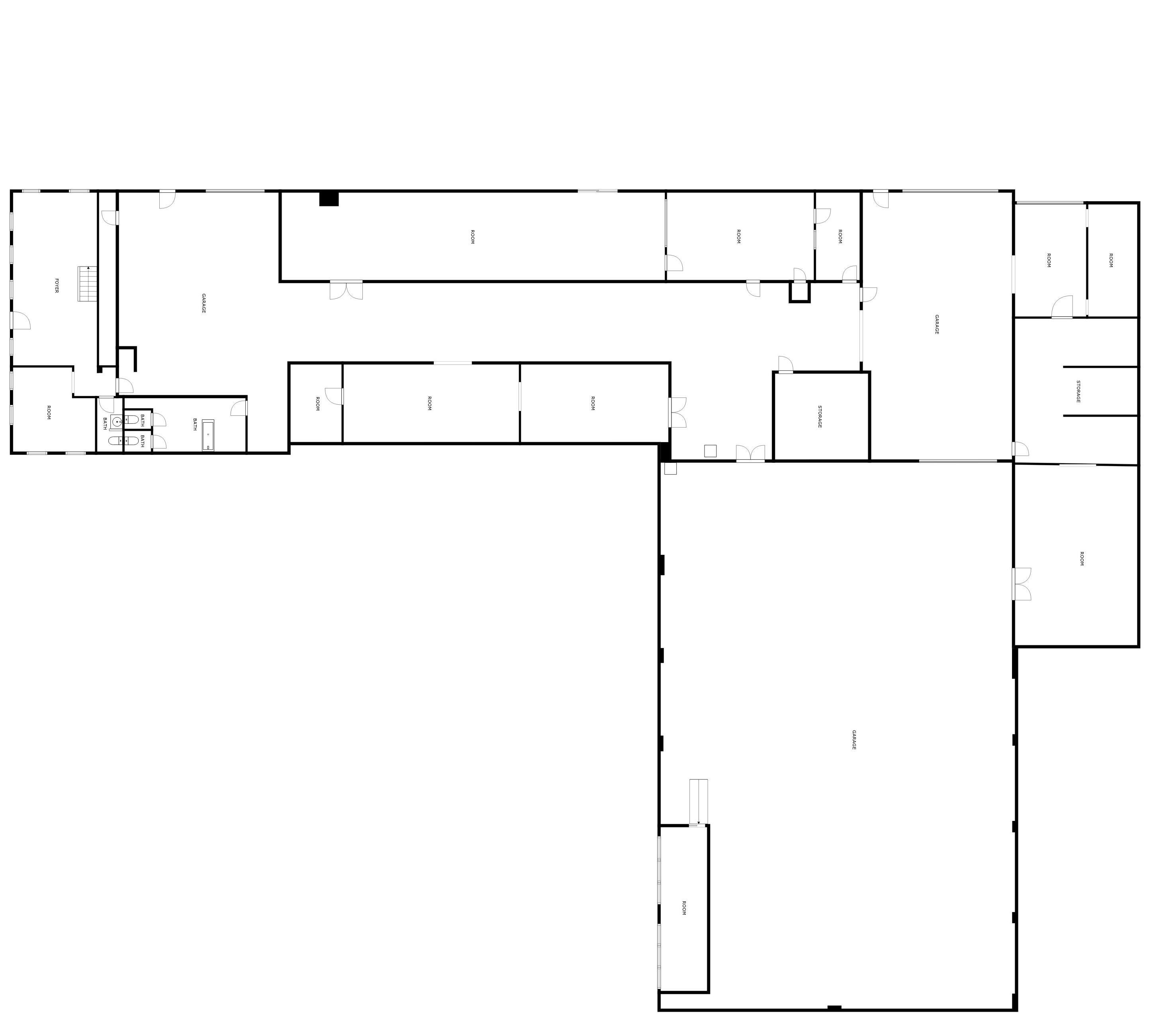
The Iconic Star World building located just East of the Kalamazoo Central Business District. The building consists of 14,550 s.f. on the main level, 675 s.f. on the 2nd floor and a 5,580 s.f. basement for storage. 40% of the building has heat and AC. There are 2 overhead doors. The property has frontage on the Portage Creek and Kalamazoo River with the Arcadia walking trail bordering the North side of property. The CMU (commercial mixed use) zoning allows for many uses including retail.

Demographics

Retail/Commercial

Contact Information:

Joanne Becker

Associate Broker

Cell: (269) 217-9878

jbecker@jaquarealtors.com

328 W. Milham Avenue, Portage, MI 49024

Property Information

Bld. Size: 15,225 s.f.

Land Dimensions: 109’ x 272’ x 194’ x 95’ x 85’ x 177’

Property Type: Retail/Commercial

Municipality: Kalamazoo City

Frontage: 109’

Zoned: CMU

Rent: $6.50 p.s.f. Modified Gross

Contact Information: Sarah Huber

REALTOR®, PSA, GRI

Cell: (850) 687-4867

shuber@jaquarealtors.com

414 W. Milham Avenue, Portage, MI 49024

COMMERCIAL Information provided is believed to be accurate however it is strictly the buyer’s responsibility to confirm and verify all information and perform their own due diligence prior to closing.
Population 2022: Households 2022: Median Household Income 2022: 1 Mile 10,638 4,667 $36,412 3 Miles 77,095 30,741 $48,016 5 Miles 140,146 59491 $51,123
COMMERCIAL 1301 Portage Street, Kalamazoo, MI 49001 Floor Plan OHD OHD 412 Harrison Street, Kalamazoo, MI 49007 East Michigan Aveue Harrison Street 412 Harrison Street, Kalamazoo, MI 49007
COMMERCIAL 1301 Portage Street, Kalamazoo, MI 49001 Parcel View 412 Harrison Street, Kalamazoo, MI 49007
COMMERCIAL 1301 Portage Street, Kalamazoo, MI 49001 Matt Leighton, Associate Broker | Cell: ( | mleighton@jaquarealtors.com Aerial View Joanne Becker, Associate Broker | Cell: ( 269)-217-9878 | jbecker@jaquarealtors.com 412 Harrison Street, Kalamazoo, MI 49007 East Michigan Aveue GullRoad
COMMERCIAL Property Photos Matt Leighton, Associate Broker | Cell: ( | mleighton@jaquarealtors.com Joanne Becker, Associate Broker | Cell: ( 269)-217-9878 | jbecker@jaquarealtors.com 412 Harrison Street, Kalamazoo, MI 49007

Turn static files into dynamic content formats.

Create a flipbook
Issuu converts static files into: digital portfolios, online yearbooks, online catalogs, digital photo albums and more. Sign up and create your flipbook.
412 Harrison Street Resume by Jaqua Realtors - Issuu